






![]()























The 98- year - old National Library was built in 1924 by the colonial government . France In 1954 - After Cambodia gained independence from France , the library was Renamed from Central Library to National Library of Cambodia .. National Library is a Colonial Building Art Dico style. T his ancient library is a heritage building that Should be maintained. Due to the current National Library is too small to use enough space.Recently, architecture students like my group had the opportunity to study the design and expansion of the library.

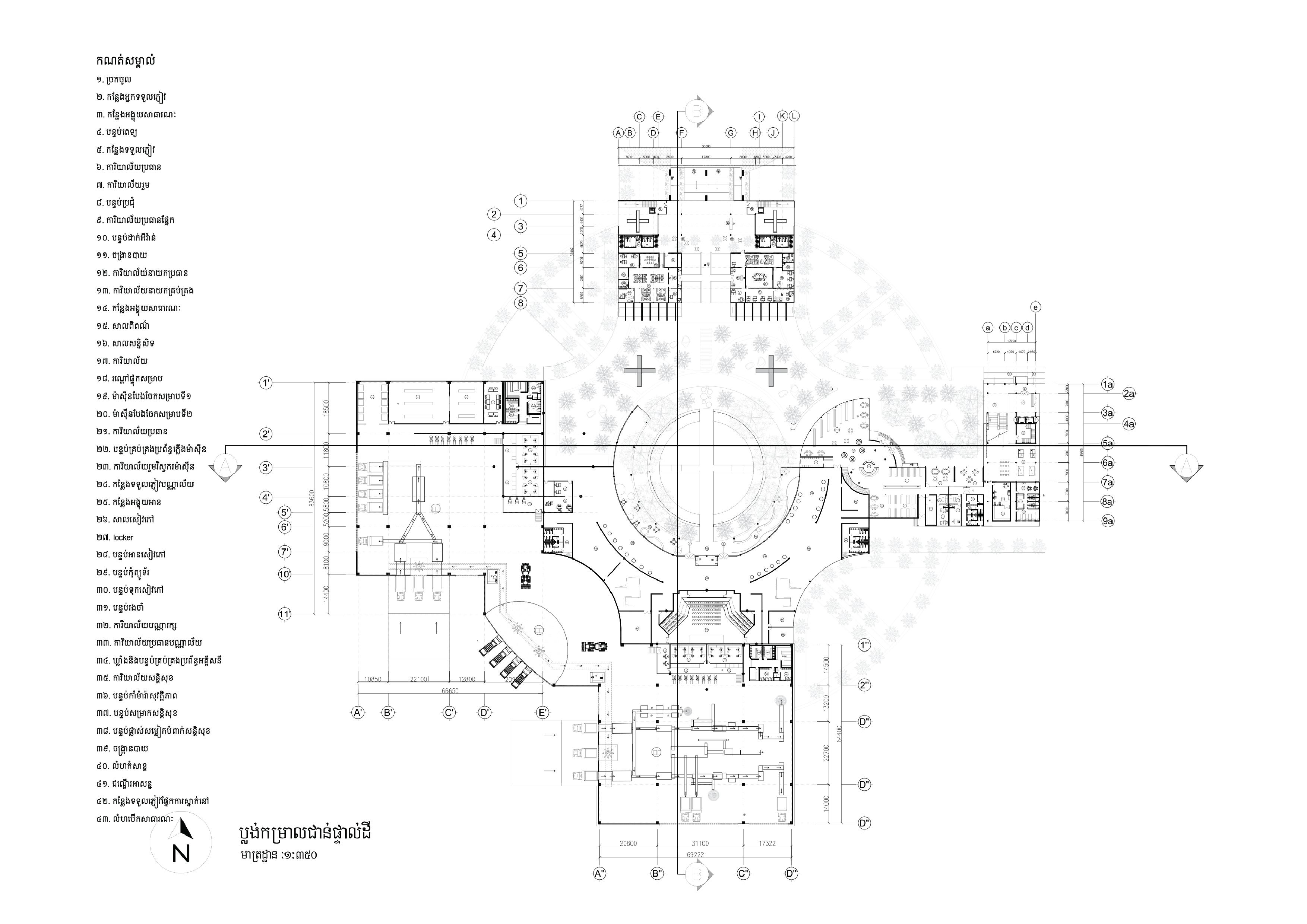
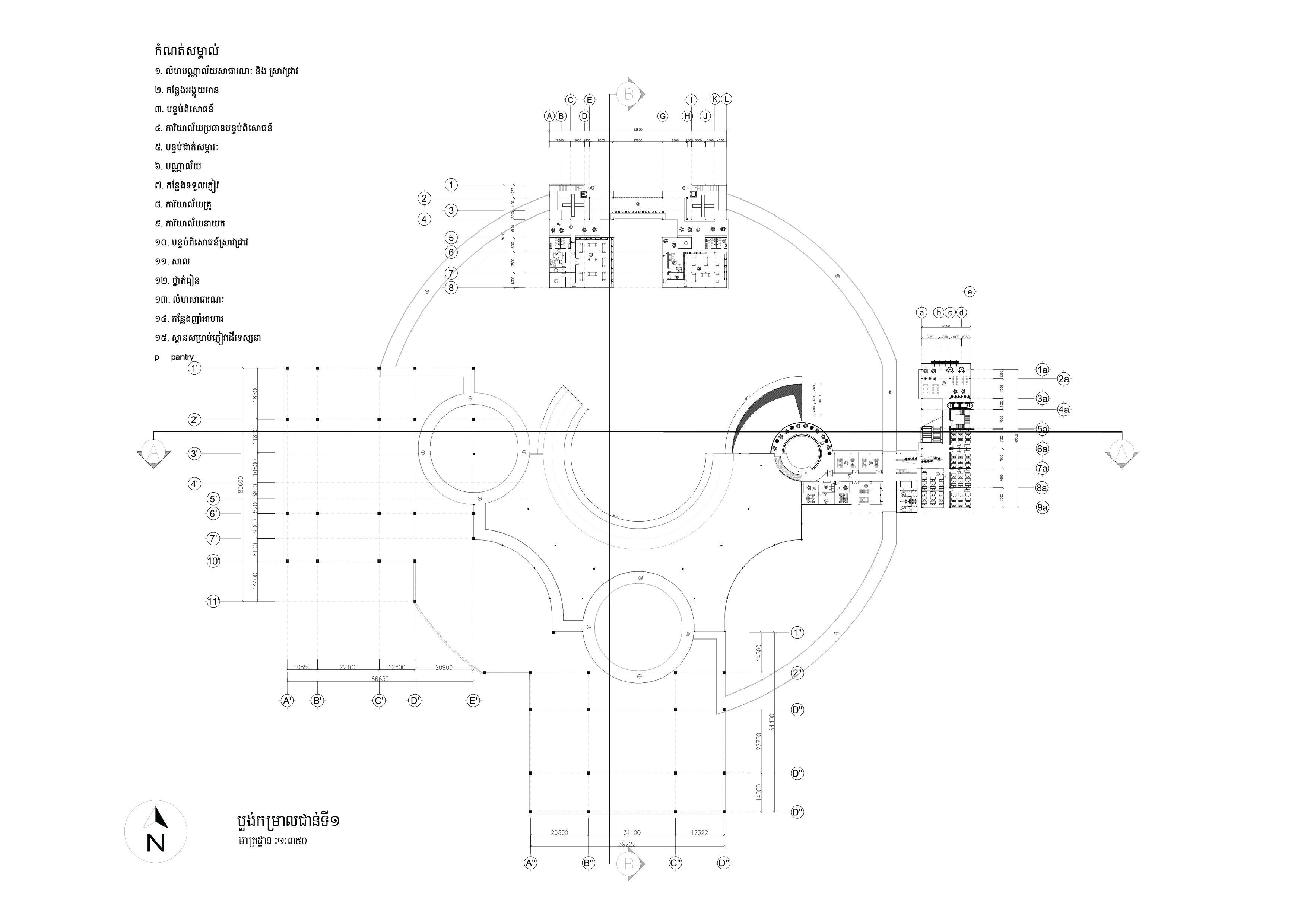
oorplan












Building Map




























































































