2024 Architecture Portfolio

Page 1

Thomas Worstell Architecture

Portfolio
| Kansas
Masters In Architecture
State University

Thomas Worstell

1422 McCain Ln, Apt 242, Manhattan, KS

tjw584@ksu.edu

816-382-9420

Education

Kansas State University

Masters in Architecture

Skills

May 2026 Graduation

Revit | Rhino 7 | InDesign | Photoshop | Illustrator | Enscape | TwinMotion | VRay | ProCreate | Office 360 | Teams | Model Making

Student Involvement

NOMAS

• Participate in design competion

• Volunteer for NOMAS fundraising and college events

Member, AIAS

• Attend and participate in monthly meetings

• Volunteer for fundraisers and service projects

• Offer feed back and improvements to the club

Member, Freedom by Design Board Member, APD Ambassador

• Design and construct camping boxes for KACEE (Kansas Association for Conservation and Environmental Education)

• Teamwork and group communication

• participation in fundraising

• Shop working including: cutting, staining, sanding, and glueing wood for the camping boxes

• Created training slides for new members

• College tours for prospective students

• Generate ideas and feedback for the college staff

• Organize and plan club events

Employment

United States Air Force(Air National Guard)

Command Post Controller

• Command and Control Operations

• Security Clearance

• Mission Monitoring, public communications, and base wide operations

• Constructing and presenting information to Wing Leadership

• Wing communcation and outreach

Praire Stone

Landscaper

• Planting, edging, sod prep/placement, and irrigation

• Operating company vehicles and equipment

Hyvee

Online Personal Shopper

• Responsible for shopping and packing dozens of orders per shift

• Assisting customers with store related questions

Spring 2023-Present

Fall 2022-Present

Spring 2023-Present

Fall 2023-Present

Spring 2020-Present

Summer 2023-Present

Spring 2020-Present

2

4

pages 4-15

Kaw River Cultural Center

pages 16-25

pages 26-33

pages 34-45

3
Selected Works Wichita Wellness Center
3 1 2 Council Grove Public Library Public Housing Project
4

WICHITA WELLNESS CENTER

5
SPRING 2024 | WICHITA, KS

CONCEPT

BIOMEDICAL CENTER RELATIONSHIP

BIOMEDICAL CENTER

PARTI: GROWTH SITE
6

DESIGN INTENT

Filter: The primary concept behind the overall building form and design revolved around the theme of wellness as a filter. In design this represents how people vertically circulation through spaces. The vestibule acts as a threshold or filter that circulates you towards the more qualitative spaces. Each floor has some relationship to the vestibule/rock wall space both visually and acoustically.

Biomedical Facility: The KU/WSU Biomedical Facility is only a block away from the site. A connection was immediately established between the two as both deal with wellness. This site acts as a node for the biomedical center by providing medical and mental wellness solutions for local residents. It also allows students from the facility to acquire real world experience in the medical and psychology fields.

Facade: Finally the facade had two primary objects: 1 provide a public relationship with the surrounding urban area, 2 create a facade that attracts people to the site. In design this became two separate pieces that acted as a whole. The glass curtain wall acts as a public viewing space for the interior rock wall, while the corrugated steel panels mimic the interior rock wall and attract people towards the building.

OPEN CURTAIN WALLS ALLOWS THE ROCK WALL TO BE VISIBILE AND CONNECTED TO THE PUBLIC ENCLOSED FACADE REPRESENTS AN ABSTRACT FORM OF THE INTERIOR ROCK WALL INVITING THE PUBLIC INTO THE WELLNESS CENTER FACADE DESIGN 7
8
SECTION CUTTING WEST
9
SECTION CUTTING SOUTH

BASE FORM

GENERAL BUILDING FORM

CREATING A CONNECTION BETWEEN THE STREET AND THE BUILDING

CARVE FORM MANIPULATION

MANIPULATION OF THE BUILDING MASS IN RELATIONSHIP TO THE SUN PATH

URBAN CONTEXT

HIGHLIGHT THE BUILDING’S URBAN PRESENCE THROUGH THE FACADE

SITE CONTEXT

SKYLIGHTS AND GLAZING ALLOW NATURAL LIGHT TO ALWAYS HAVE A PRESENCE WITHIN THE BUILDING

10

BIOMEDICAL CENTER CONNECTION

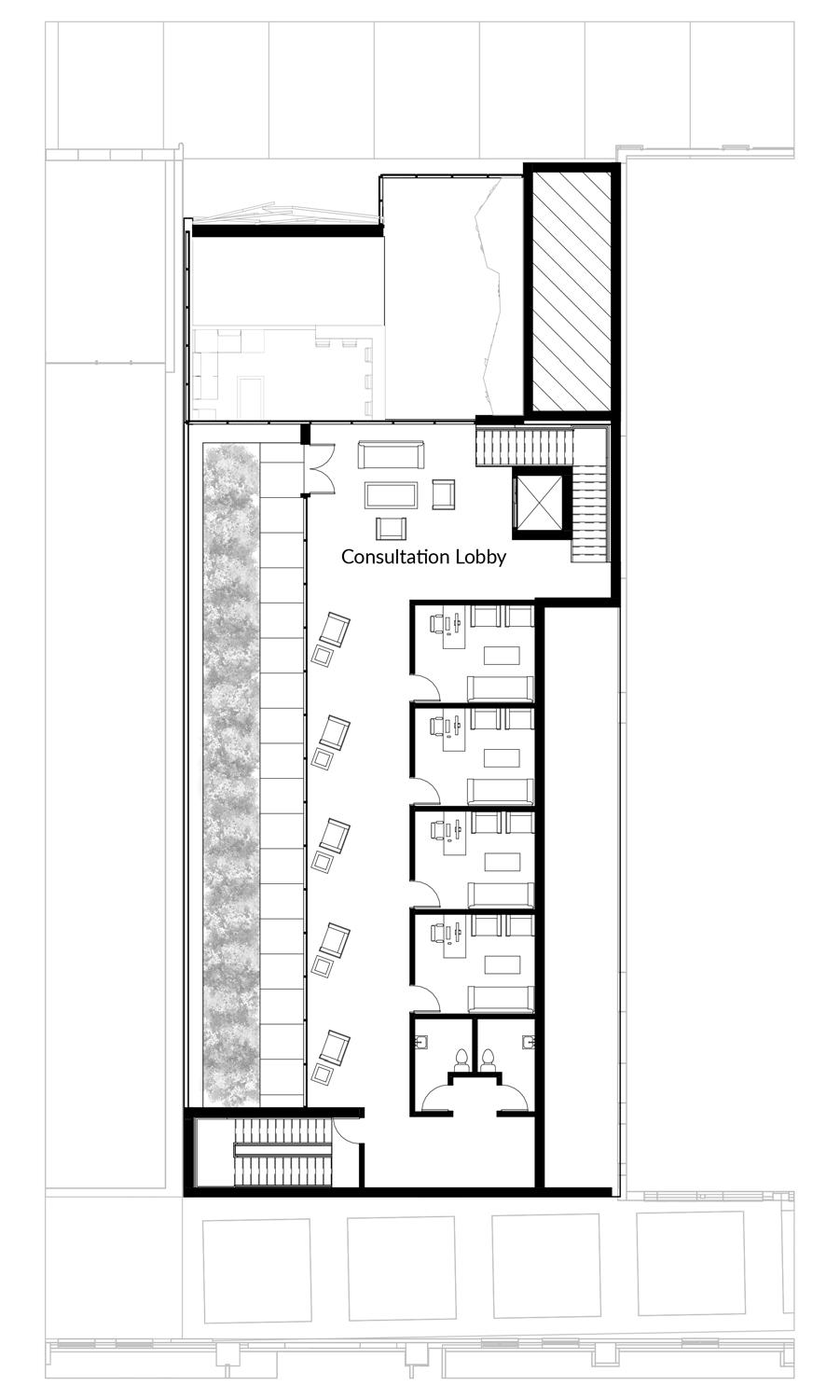
Intent: The purpose behind the relationship between the site and the Biomedical Center is shared ideal of wellness. By bridging that connection the Wellness Center becomes a node by providing spaces that are directly impacted by the Biomedical Center. Those spaces are the retail health store and the consultation spaces.

Retail Health Store: This space provides pharmaceutical needs to the local population. The the store would be directly run by students and staff from the Biomedical Center. Students would able to receive training, gain experience, and provide medical care to the local population. This creates a space that both directly benefits the local population and the students of the biomedical center.

Consultation Spaces: While the retail health store deals more with physical wellness the consultation spaces are meant to confront mental wellness. A primary objective of the Biomedical Center is to provide the area with proper mental health through counselors and therapist. Therapist and counselors would be able to provide the community with mental health needs, along with students studying psychological.

11

DESIGNING QUALITATIVE SPACES

Revit: Designing interior spaces that made visual and programmatic sense was one of the things I challenged myself within this project. Revit helped exponentially with this, allowing me to switch between plan and 3D views of my interior spaces. I was able to experiment with interior light systems for the first time and add extra layer of detail with the renderings. Placing ressed lighting within the retail health store creates an almost gallery like feel to the space.

Materiality: Specifically with the lobby space and the retail health store I wanted the materiality to be apart of the experience of the space. Materiality can greatly impact the tone along with the lighting. For the lobby space I wanted there to be a contrast between the floors, the walls, and the ceilings. For the retail health store I wanted something that felt sterile, but also inviting. I went with a designing that allowed the stone masonry of the floor tiles contrast well with the white plaster of the walls and ceiling.

Circulation: Spaces were designed with circulation as a cohesive element joined within the function of the program. The stairway is a more private experience as each floor provides a more private programmatic element. The circulation between the lobby space and the retail health store is meant start as a public experience that then blends into a much more private journey.

Pool Rock Wall Gym Rock Wall Lobby Lobby Retail Health Store Lab BASEMENT LEVEL LEVEL 1 LEVEL 2
12
Communal Lobby Yoga Studio 1 Yoga Studio 2 Yoga Studio 3
LEVEL 3
13
LEVEL 4
14
15

KAW RIVER CULTURAL CENTER

FALL 2023 | TOPEKA, KS

DESIGN INTENT

Big Idea: As a collective studio we focused on three primary elements of design for this project: the relationship the site has with the city, native americans (culture, wants and needs), and site design. Through my research into the 6 native american tribes of the Topeka area and my own experience as a native american I wanted to focus on the needs and wants of the tribes along with providing a vessel (the site) that they could use to educate and inform the public about tribal history and values. The primary concept behind this design is about relationships. Primarily the relationships the site shares with the city, the master plan, and the river (including the north side). It does this by both through public vs private access to the site and the functions of the two buildings located within the site.

16
17

POW WOW CIRCLES

REWILDING ZONE REWILDING ZONE ACTIVE LAWN
CRANE ST. 18 SITE PLAN
SITE DESIGN
19
SITE CONCEPT

BUILDING DEVELOPMENT

PRECEDENT STUDY

Throughout the design process I repeatedly used the Mosegaard Museum as a reference for how the building design would realistically function. The sloped green roof rising out of the ground is one such design implementation base on the museum. Structurally the building also takes reference to how the Mosegaard works specifically with how it uses columns. The ICA Museum was another precedent that offers a building sectionally design which creates the spaces like the one referenced above.

20

DEVELOPING IN SECTION

The public building was primarily designed in section and went through multiple variations during development. 3 primary ideas were used in the building process: qualitative spaces, vertical circulation, and view orientation. I Two precedents were used as building blocks: The Mosegard Museum and ICA Museum both of which were developed using section. I started with sectional diagrams and drawings until the general form was developed. Finally, Revit was used as a tool to quickly adjust and fix sectional elements to deliver the section you see below.

21
22
23
24
25

COUNCIL GROVE PUBLIC

26
LIBRARY SPRING 2023 | COUNCIL GROVE
27

CONCEPT

PARTI: GROWTH

PERSUTE OF KNOWLEDGE

FICTION NO FICTION ART HISTORY

COMPUTERS WISDOM STUDY ROOMS

PERIODICALS

ADULTS

POLITICS

TEENS

AGRICULTURE

MANGA

COMICS PRIVACY GAMING ROOM

STUDY MATURITY NOISE SCHOOL

EVENTS PUBLIC CELEBRATION

COMMUNITY

CONNECTION

GATHERING

RECEPTIONLOBBY INFORMATION SUPPORT CHECKOUT

KIDS PLAY FUN

DEVELOPEMENT LEARNING TEACHING STORY TIME

28 SUN PATH

DESIGN INTENT

Growth: The Library of Growth is located in Council Grove, Kansas. This library represents growth in multiple facets. Growth in knowledge, growth in community, and growth in nature. The building utilizes multiple green roofs to accommodate local wildlife growth. The program is designed to start from kids (in the basement) to adults(on the second floor) highlighting the growth of knowledge that comes with age. The communal growth is utilized though a communal space on the second floor. A green roof that can be accessed from the ground level and the second floor providing multiple means of entry.

Green Roof: A primary focus of the design revolved around an outdoor reading space that both encourages community and privacy. A large central gathering space accompanied by small pockets of private reading areas. These outdoor spaces were created to encourage participate in outdoor activities and give readers a change of pace from reading strictly within a confined library space.

29 SITE PLAN

GREEN ROOF

30
DETAIL WALL SECTION SECTION CUTTING THROUGH THE GREEN ROOF
S Neosho St. Hockaday St. Teens Kids Reception Loading and storage admin Kids outdoor Lobby bathrooms down mechanical Staff A A’ B B’ C C’ 31 FIRST FLOOR PLAN

GREEN ROOF

32
33

LORIRU HOUSING PROJECT

FALL 2023 | EUREKA, KS

DESIGN INTENT

Demographic: Two demographics were chosen as targets for this project: Veterans and Families. Both have similar and different needs when it comes to housing. Veterans make up 10% of Eureka’s population and with many veterans experiencing homelessness, affordable housing is a big concern for the group. Families are a rapidly evolving demographic within America. Family composition varies widely and housing should reflect that variety.

Site: The site is composed of 10 units separated into two categories: veterans and families. 6 are family units and 4 are veterans units. Along with the units there is a multi-purpose facility designed for more public or communal events. The interior courtyard creates a private outdoor space for both demographics to cohabitate privately with each other. The building orientation creates private outdoor space for each individual unit, including those located on the second floor.

Units: The unit design strategy utilizes similar principles for both demographic types primarily with circulation and spatial separation. Veterans units focus more on the primary basics of dwelling like sleeping, eating, and bathing. The family unit is designed around providing ample communal spaces (dining and living) combined with more private environments (bedrooms).

34
35

SITE DESIGN

Mainstreet

As a primary

Mainstreet

Mainstreet

Park and Creek

Mainstreet Park and Creek

The

Mainstreet Park and Creek As

Mainstreet Park and Creek

SITE CONCEPT

As a primary focal point for the town and the community, the angle both directs viewers from mainstreet towards the site and vise versa.

The park and creek provide a quiet and private space away from the noise of mainstreet. The building orientation allows for more natural views of orientation along with providing more privacy for the residense.

a primary focal point for the town and the community, the angle both directs viewers from mainstreet towards the site and vise versa.
park and creek provide a quiet and private space away from the noise of mainstreet. The building orientation allows for more natural views of orientation along with providing more privacy for the residense.
The
viewers from mainstreet towards the site
vise versa.
focal point for the town and the community, the angle both directs
and
private space away from the noise of mainstreet. The building orientation allows for more natural views of orientation along with providing more privacy for the residense. 36 SECTION FACING NORTH SECTION FACING SOUTH
park and creek provide a quiet and
37 SECTION FACING EAST
SITE PLAN
38
Floor
Floor BUILDING PLACEMENT
Second
First
39 SITE CIRCULATION

MODEL CRAFT

For this project and the previous one I focused on evolving my model craft. Before the process was a bit sloppy and my organization during construction lead to some mediocre models. This semester I specifically focused on creating a 3d model of what the physical model would be from the scale all the way down to the thickness of each material. Everything on these models was either hand cut for materials like foam core, or laser cut for chip board, or museum board. This created a much more effective workflow when model crafting and a higher quality final product than previously seen.

40
1/4 Scale Rhino Model Laser
Cut File
41
42
43

UNIT DESIGN

SINGLE FAMILY UNIT PLAN

The family unit is designed with the thought of both public and private moments. The bedrooms act as individual private spaces for the parents and kids prospectively. The kids bedroom is then separated by vertical space to provide each child with their own individual space. The dining, kitchen, and living space are oriented so parents can have a line of site on their kids without feeling compressed within the same space. Finally, windows along the bedrooms and front facing facade allow for ample light access in each space.

VETERANS UNIT PLAN

This unit design specifically focuses on the functional needs of veterans. The plan is as minimalist as possible, providing the basic needs of sleeping, bathing, and dining. With homeless veterans in mind this unit caters to those who are looking to get their feet off the ground, again focusing on their basic needs. Circulation runs along a linear path with the entrance and exterior space at the end.

Master Bedroom Kids Bedroom Bathroom Kitchen Living Space Dining Bedroom Bathroom Living Kitchen 44
45 UNIT PARTI
SINGLE FAMILY UNIT AXON VETERANS UNIT AXON
1422 McCain Ln, Apt 242, Manhattan, KS tjw584@ksu.edu 816-382-9420 Thank You 46

Turn static files into dynamic content formats.

Create a flipbook
Issuu converts static files into: digital portfolios, online yearbooks, online catalogs, digital photo albums and more. Sign up and create your flipbook.