

PER SIVLES VEG 2
AV THOMA PROSJEKT AS

Om oss
Vi er et lite utbyggingsselskap med lokal forankring på Byåsen. Del av et familiekonsern som har drevet med eiendom i Trondheim siden 1973
Mats Nilsen Hovdal, Daglig Leder
Telefon: 418 12 122
Epost: Mats@Thoma.no

Morten Maaø Jakobsen, Prosjektleder
Telefon: 455 06 075
Epost: Morten@Thoma.no



Per Sivles veg 2D og 2E
I siste fase av utviklingsprosjektet Per Sivles veg 2 lanserer vi to eneboliger med høy kvalitet og særpreg. Prosjektet består totalt av 6 sørvendte boliger som omkranser et lite tun i en privat blindvei.
Hus 2D

Ekstaordinære boliger
Hus 2E
Unik mulighet til å anskaffe deg en ny og særdeles innholdsrik enebolig med populær beliggenhet på Ugla. Eneboligene innehar de fleste kvaliteter som etterspørres og ligger med kort avstand til flere barnehager, Myra idrettsanlegg, Ugla ungdomsskole, Kyvannet, Bymarka, buss og trikk.
Eneboligene som leveres nøkkelferdige vil inne ha kvaliteter som bla.:
• Ekstra takhøyde og panorama vinduer i toppetasje
• Innholdsrikt kjøkken fra Sigdal med Siemens hvitevarepakke
• Voksenavdeling med walkin closet og ensuite bad.
• 4 Soverom og 2 bad i samme etasje
• Gjennomført eksteriørt med vedlikeholdsfrie materialer
• Vannbåren varme i alle gulv
• Kvalitetsflis fra Modena
• Vaskerom og gjestetoalett med flislagt gulv
• Carportløsning for 2 biler inkludert elbillader
• Smarthus
• Komplett lyspakke på alle rom og 14 punkter utelys.
• Stor bodplass
• Devis overbygde balkonger
Arkitekturen gir luftig boatmosfære med 2,6 meter takhøyde og mye lysinnslipp fra vinduene som strekker seg fra gulv til tak.

Illustrasjon viser løsning i bolig 2D
Alle bilder er av illustrativ karakter, endringer vil forekomme. Materialvalg og farger kan avvike og må eventuelt bestilles som tilvalg om disse avviker fra standard leveranse angitt i leveransebeskrivelsen vedlagt. Utsikt, rekkverk og vindusløsning er kun illustrativ. Kjøkkenløsning kan avvike. Se etasjeplaner, romskjema og kjøkkentegning vedlagt i den komplette leveransebeskrivelse.
Thoma Prosjekt

Illustrasjon viser løsning i bolig 2D
Alle bilder er av illustrativ karakter, endringer vil forekomme. Materialvalg og farger kan avvike og må eventuelt bestilles som tilvalg om disse avviker fra standard leveranse angitt i leveransebeskrivelsen vedlagt. Utsikt, rekkverk og vindusløsning er kun illustrativ. Kjøkkenløsning kan avvike. Se etasjeplaner, romskjema og kjøkkentegning vedlagt i den komplette leveransebeskrivelse.

Kjøkken


Gled deg til ditt nye og delikate kjøkken fra Sigdal. Her er alt du trenger, i delikat og praktisk utførelse. Moderne praktiske løsninger, med integrerte hvitevarer.
Hos Sigdal kjøkkenstudio får dere et eget møte med en erfaren kjøkkendesigner slik at dere om ønskelig får tilpasset innredningen. Som standard kommer det en innholdsrik grunnpakke



Masteravdeling
Romslig soverom
Vinklet mot nord er dette rommet naturlig både det stilleste og svaleste rommet i huset
Walk-in Garderobe
Innenfor soverommet finner man en skjermet walk-in garderobe
Plantegning sokkel etasje

En bolig tilrettelagt for praktisk hjemkomst. Organisert snøbrøyting og overbygd inngangsparti gjør at du slipper unna brysom snømåking og kommer tørrskodd hjem hele året. Inne i entreen er det satt av ekstra stor plass for garderobe. I tillegg finner du både vaskerom og bod med umiddelbar tilgjengelighet.
Her er det gulvvarme i alle rom. Inkludert i boden. Ute er det plass til 2 biler under tak.

Illustrasjon viser løsning i bolig 2E
Alle bilder er av illustrativ karakter, endringer vil forekomme. Materialvalg og farger kan avvike og må eventuelt bestilles som tilvalg om disse avviker fra standard leveranse angitt i leveransebeskrivelsen vedlagt. Utsikt, rekkverk og vindusløsning er kun illustrativ. Kjøkkenløsning kan avvike. Se etasjeplaner, romskjema og kjøkkentegning vedlagt den komplette leveransebeskrivelse.
Plantegning første etasje

På dette planet finner du 3 gode barnerom omkranset rundt et familiebad levert med dobbeltservant, innsvingbare dusjdører og WC integrert i veggen. Alle barnerom har plass til både seng, arbeidspult og garderobeplass.
Mot den stille bakhagen i nord finner du master-avdelingen med det største soverommet, walk-in garderobe og sitt eget bad. Her blir det veldig lyst og luftig på morgningene da vinduene er over 2 meter høye og starter i flukt med parketten.
Dine gjester vil også finne sin plass på dette planet da Gjeste WC er sentralt plassert i denne etasjen.

Alle bilder er av illustrativ karakter, endringer vil forekomme. Materialvalg og farger kan avvike og må eventuelt bestilles som tilvalg om disse avviker fra standard leveranse angitt i leveransebeskrivelsen vedlagt. Utsikt, rekkverk og vindusløsning er kun illustrativ. Kjøkkenløsning kan avvike. Se etasjeplaner, romskjema og kjøkkentegning vedlagt i den komplette leveransebeskrivelse.
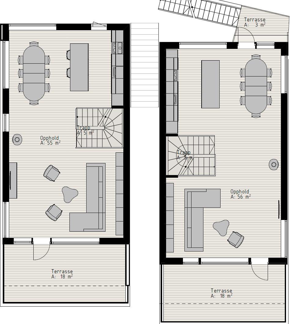
Plantegning andre etasje

Her leveres et moderne kjøkken med kjøkkenøy som standard.
Toppetasjen deles naturlig inn i soner for kjøkken og bespisning i nord og en mer avslappet stuesone i sør som deles av en sone med trapp og ildsted i midten.
Utenfor stuesonen i sør går du trinnløst ut på en luftig terrasse med fantastiske sol og utsiktsforhold.
Kommer kjøper på banen tidlig i byggeprosessen er det mulig å justere på planløsningen noe i 1. og 2. etasje. Dette på forespørsel i samråd med Spark Arkitekter.

Alle bilder er av illustrativ karakter, endringer vil forekomme. Materialvalg og farger kan avvike og må eventuelt bestilles som tilvalg om disse avviker fra standard leveranse angitt i leveransebeskrivelsen vedlagt. Utsikt, rekkverk og vindusløsning er kun illustrativ. Kjøkkenløsning kan avvike. Se etasjeplaner, romskjema og kjøkkentegning vedlagt i den komplette leveransebeskrivelse.

Eksteriør
Gjennomført eksteriør med vedlikeholdsfrie materialer
• Steni Copper aged fasadeplater.
• Weber puss-sytem på betongvegger.
• Royal imp kledning på vegg.
• Royal imp terrasebord.
• Alu-beslag på vindu og balkongdører.




Høyere teknisk standard

Delikat trapp
Naturlig eik i trinn.
Vanger og spiler i dempet sort

Vannbårent varmesystem
Roth varmesystem med trådløs
termostatsyring og
mulighet for APP styring

Oppgadert pakke fra rørlegger
Behagelig regndusj og praktisk servantarmatur med fleksibel slange på kjøkken og vaskerom

Smarthus med SG Smart
Styring av lys I 10 soner.
Utebelysning, varmekabler og uttallige muligheter for utbygging


Type 2 el-bil lader
Klart for å plugge i ladekabel til din elbil.
Lyspakke
55 punkter med sorte spotter og downlights.
10 punkters utebelysning



















































