Ski Time Square Development Site

Page 1

chris sias Commercial & Leasing Specialist The Paoli Group 970.819.5543 CSias@TheGroupInc.com chris paoli Broker, Team Lead The Paoli Group 970.819.1432 CPaoli@TheGroupInc.com steamboat ski time square development land scott steputis Broker Crosbie Real Estate Group 720.287.6868 Step@CREGinc.com

g2 zoning

3.93 acres

High Density

Development Land Steamboat Base Area

ski time square

3.93 Acres | G-2 Zoning

This well-situated parcel enjoys a strategic location in the base area with southerly views from the north side of Ski Time Square Drive, enabling it to capture afternoon sun. Burgess Creek borders the east end of the property and serves as an attractive amenity. Formerly improved with multiple restaurants and retail operations, this location is still known to locals as Ski Time Square, Steamboat’s original mountain village.

Given the size and location of this parcel, the opportunity exists to redefine the base area by developing a new village center. Concepts for redevelopment include retail, hospitality, commercial and high density residential uses with rooftop lawns, a pool, hot tubs and easy access to the ski trails and base area amenities.

Neighboring properties in the base area include One Steamboat Place, a high-end residence club developed by Timbers Resorts, the Steamboat Grand Hotel and the Sheraton Steamboat Resort.

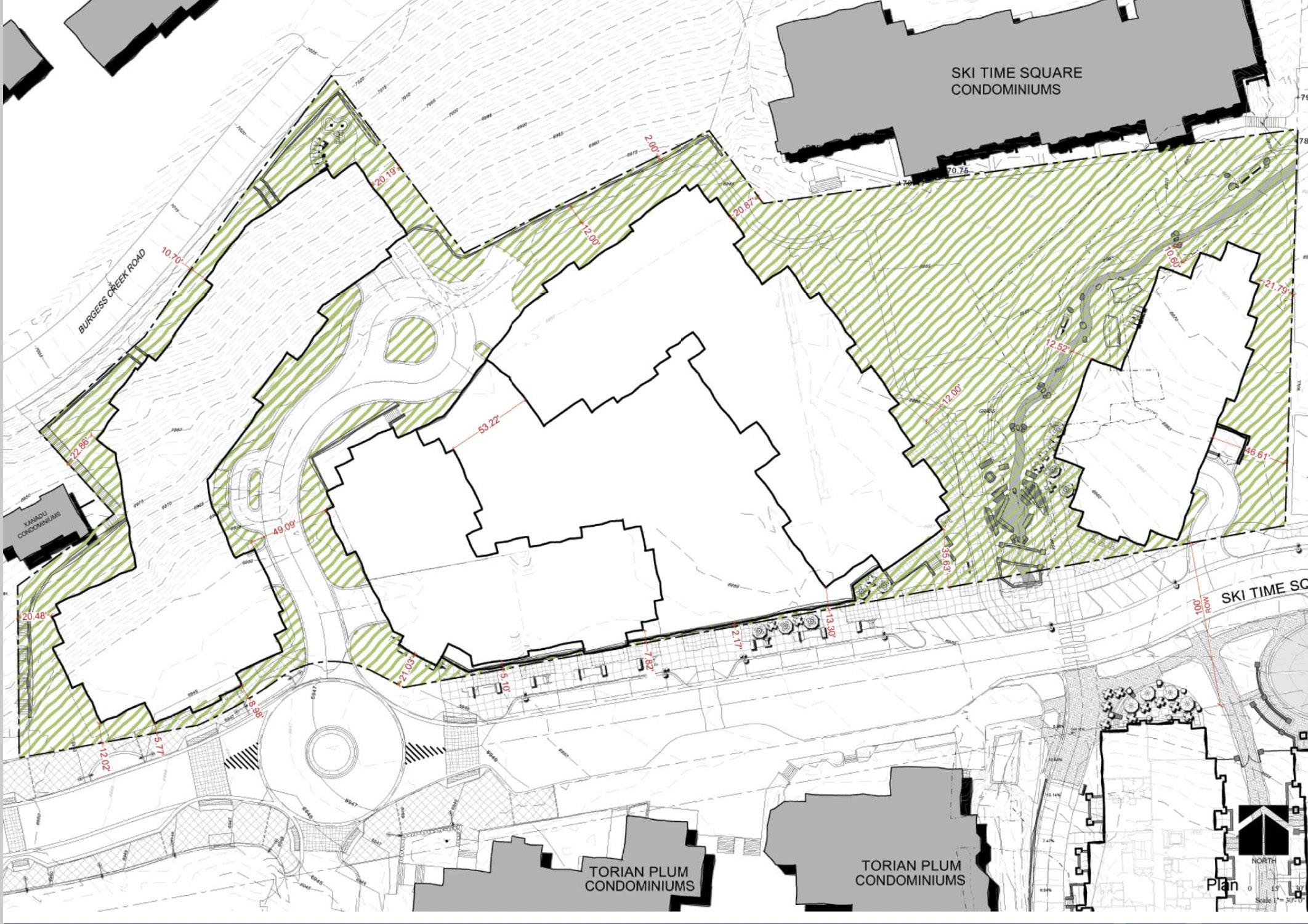
topographic
survey with
overlay
location
location

base area & on-mountain improvements

On-Slope Upgrades: The Greenhorn Ranch, a terrain-based learning area, opened in 2022. Increased snow making capacity will be on-line for the 2023/24 season servicing Sunshine Peak.

base area & on-mountain improvements

Wild Blue Gondola: To be completed for the 2023/24 Ski Season. Wild Blue will ferry passengers to the Greenhorn Ranch teaching area, with the new upper leg continuing on to the top of Sunshine Peak. At more than three miles long, Wild Blue is the longest gondola in North America, as well as being the fastest 10 person gondola.

Mahogany Ridge New Terrain: 650 Acres of Advanced/Expert Terrain will open to lift serviced skiing in 2023/24 making Steamboat the second largest ski area in Colorado.

Base Area Amenities: The Range Food Hall opened in the summer of 2023. Other improvements include an escalator bringing guests from the transit center to the slopes, Skeeter’s Ice Rink, and a new entertainment space featuring an improved stage.

market
steamboat springs real estate
facts

steamboat springs real estate market facts

Situated 100 yards from Steamboat’s Wild Blue Gondola, the nearly four-acre Ski Time Square site holds tremendous potential for developers. With unlimited FAR, 105 feet of allowable height and 60% lot coverage, the parcel invites a significant project and allows the maximum mixed-use development density within Steamboat Springs.

Situated within Steamboat’s “Green Zone,” short term rentals are allowed by right. Combined with an easy walk to the base area, this makes an attractive package for buyers looking to both use and rent their properties, as well as supporting hospitality projects where proximity to the mountain and base area amenities is key.

Alterra Mountain Company is actively investing upwards of $200 million in infrastructure and in the user experience at Steamboat, bringing North America’s longest Gondola (Wild Blue) fully online this coming winter, as well as adding significant new expert terrain, a food hall, ice skating rink and other new base area amenities. Visitorship is supported by excellent airline service, with Steamboat/Hayden Airport connecting to more major markets and with more seats than any other mountain town destination in the United States (2022).

The offering consists of two contiguous parcels totaling 3.93 acres. Density studies suggest a project in the range of 345,000 square feet or more is possible.

Steamboat Springs continues to see a strong residential real estate market, with both homes and condos selling for record prices. Inventory remains tight despite new construction, and properties are routinely going under contract after a short time on the market. Much of 2022 saw a highly competitive market with many properties receiving multiple offers over the asking price. In August of 2023, median home and condo prices were $1.57mm and $1.3mm respectively, with numerous transactions in the $3mm and above range.

The community attracts affluent full and part time residents who enjoy the lifestyle, sense of community and year-round amenities available in the Yampa Valley. With remote work becoming more common, and travel options increasing as the Yampa Valley Regional Airport expands and adds more direct flights and carriers, more people are choosing to make Steamboat their home base.

Despite the increased demand, little new product has been delivered in the past three years, and no larger projects for more than a decade. The few projects to deliver at scale, mainly townhomes, have rapidly increased in price and sell quickly.

Hospitality properties are in a similar position. Overall hotel keys have decreased as several existing hotels were repurposed for employee housing. At the base area, there have been no new condominium developments since One Steamboat Place almost fifteen years ago.

Ski Time Square represents an opportunity to bring modern development at scale to the base area, and could benefit from the current deficit in both new residential condo supply and available hotel rooms within walking distance of the ski area.

the opportunity
the
opportunity
zoning overview
zoning overview

Steamboat is a top 3 spot to start a business, according to Nerd Wallet. This is based on comparing U.S. census data with Steamboat’s business climate and economic health.

steamboat news accolades

Steamboat Springs has made it onto several top lists from national publications and organizations:

Nerd Wallet

Top 3 Places to Start a Business in Colorado

Matador Network

21 Coolest Ski Towns in North America

Ski Magazine Best in the West Ski Resorts

u.s. News and World report

• 15 Best Small Towns to Visit in the U.S.

• 5th Healthiest County in the Country (2020)

men’s journal

The 20 Best Mountain Towns in America

outside magazine

16 Best Places to Live in the U.S. Sunset magazine Top 10 Ski Towns in the West

Expedia.com

30 Most Beautiful Towns in America

employer support of the guard and reserve Most Veterans Friendly Little City in Colorado

The New York Times

52 Places to Go

National Geographic

World’s 25 Best Ski Towns

Smithsonian

20 Best Small Towns to Visit

Forbes

10 Best American Ski Towns

marketWatch

10 Great Mountain Towns for Retirees

budget travel

America’s Coolest Small Towns

ski magazine

• Top Western Ski Resorts

• Best in the West: Ski Resorts

USA Today

• 10 Best Spring Break Destinations

• 10 Best Offseason Ski Resorts for Summer Adventure

Tripfind

Top 10 Uncrowded Ski Resorts in North America

4,039 324

FOOD & RETAIL Employees Establishments

1,123 140

HEALTHCARE Employees Establishments

1,278 358

CONSTRUCTION Employees Establishments

1,027 165

REAL ESTATE Employees Establishments

2,331 535

OTHER SERVICES Employees Establishments

the market: employment

the market: year-round recreation

hot springs

Old Town Hot Springs harbors hot pools, a lap pool, climbing wall, and water slides. Strawberry Park Hot Springs is 6 miles north of town.

yampa river

Tubing, kayaking, and fishing the Yampa River is one of Steamboat’s most popular summertime activities.

ski

Averaging 356 inches per year, Steamboat Resort gets some of the best powder in the country. 2,965 skiable acres with a gain of 3,668 vertical feet, the resort has something for all abilities.

golf

Four beautiful and varied courses.

hike & bike

$5 million building funds have recently been approved to new trail building.

downtown

Downtown Steamboat offers a historic shopping district with boutiques, galleries, restaurants, and more.

Median sale price of single-family home in most recent data is $1,580,000. For a condo/townhome, median sale price is $1,300,000.

In 2022, the median days on market for a single-family home was 9 days.

From 2020 to present day, the real estate market is seeing record highs for annual transactions and dollar volume.

the
market: steamboat springs

Alterra Mountain Company is investing well over $200 million in the Steamboat Ski Resort to improve the visitor experience on and off the mountain. This investment will make Steamboat a premier ski destination world-wide. However, no amount of that investment is earmarked for new residential or hotel development.

The local residential real estate market has boomed in the post-COVID world as more and more people want to visit and live in Steamboat. We are faced with record high prices and record low inventory, creating a spectacular opportunity for development. To wit, the median sale price for a condo is $1.3 million; with recent sales crossing the $2,000 per foot mark.

Combining the high residential demand with the significant net loss of hotel rooms to workforce housing, this is a historic opportunity to create a profitable development and bring back the glory of one of Steamboat’s most storied locations: Ski Time Square.

summary
chris sias Commercial & Leasing Specialist | The Paoli Group 970.819.5543 | CSias@TheGroupInc.com chris paoli Broker, Team Lead | The Paoli Group 970.819.1432 | CPaoli@TheGroupInc.com scott steputis Broker, Crosbie Real Estate Group 720.287.6868 | Step@CREGinc.com

Turn static files into dynamic content formats.

Create a flipbook
Issuu converts static files into: digital portfolios, online yearbooks, online catalogs, digital photo albums and more. Sign up and create your flipbook.
Ski Time Square Development Site by The Agency Steamboat - Issuu