4th YR. ARCHITECTURE PORTFOLIO

Page 1

PORTFOLIO Melkam Sisay|Unity University Architecture Bsc. student| 4th year| Summer 22/23

ABOUT ME

an aspiring architecture student looking for the challenge that would help me shape myself and the world around me. I’m a fast learner, determined and dedicated and ready to grab any opportunity quickly when it presents itself. This here is a collection of my works during my 4 years in architecture school.

CONTACT

Telegram: @Theone_n_only

Email: melkamsisay6@gmail.com

melkam sisay07@gmail.com

Telephone: +251993649027

MELKAM SISAY | CURRICULUM VITAE

EDUCATION

2019-present - Unity University

2015-2019 G.C. - Saint Joseph’s Highschool

COMPUTER SKILLS

CAD - AutoCAD | Sketchup | REVIT

Rendering - Enscape | Twinmotion | D5 Render

Adobe - Indesign | Photoshop | Illustrator

Microsoft office - Word | powerpoint

Model Making

SOFT SKILLS

Leadership

Presentation and public speaking

Working well in group settings

Writing

LANGUAGES

Amharic

English

CONTENT

1. Residence Design 2. Apartment Project 3. Housing Group project 4. Studio Apartment Interior Design 5. Show Room interior Design

ARCHITECTURAL DESIGN STUDIO I | Residence

Time Period: 2021| First semester, 3rd yr

Supervised by: Mr. LisaneWork & Mr. Surafel

design

Set in the setting of the hills of the mountain to the north of the kebena river, this project aimed at providing a 2 story residence by integrating and experimenting on the difficult steep sloping topography of the site with the functionality and aesthetics of the built structure

1

SECOND FLOOR PLAN

GROUND FLOOR PLAN

FIRST FLOOR PLAN

BASEMENT FLOOR PLAN

1 2 4 3 600 354 450 A2 30 381 m 4 536 m2 4 468 m2 4 384 m2 26 026 m2 42 162 m2 23 646 m 78 414 m2 32 965 m 4 196 m2 44 909 m 0 003 m 0 004 m DOWN UP DOWN UP A B C D E 1 2 4 3 650 450 650 650 25 104 215 190 83 68 83 63 215 139 90 69 215 220 220 215 165 653 68 237 79 526 94 680 85 270 264 313 147 177 255 238 600 354 450 20 603 15 527 15 575 20 20 380 700 15 20 630 20 430 15 1,295 20 20 759 15 624 15 973 15 20 130 65 134 15 595 20 20 601 227 255 164 324 74 215 341 ±0.000 ±0.000 ±0.000 ±0.000 ±0.000 ±0.000 A2 A2 A 4 A 4 GUEST BEDROOM 1 GUEST BEDROOM 2 TRADITIONAL KITCHEN LIVING AND DINING MODERN KITCHEN FAMILY ROOM COMMON REST ROOM F F PARQUET TILES F F PARQUET TILES F F PARQUET TILES F F PARQUET TILES F F CERAMIC TILES F F CERAMIC TILES HALLWAY
12 067 m2 15 365 m 37 777 m2 25 076 m2 7 587 m2 4 569 m 71 131 m2 DOWN DOWN UP W W A B C D E 1 2 4 3 650 450 650 650 600 354 450 20 378 15 202 20 334 20 590 20 20 555 20 5 20 153 15 71 98 20 20 225 15 20 380 260 15 440 15 20 640 20 15 120 15 20 948 20 20 20 778 160 215 15 134 -2.700 -2.700 -2.700 -2.700 -2.464 -2.314 -2.164 20 579 m MAIDS BEDROOM GENERAL STORAGE HOME THEATER CAR GARAGE GARAGE STORE LAUNDRY f STONE PAVEMENT F F PLASTIC TILES F F PLASTIC TILES F F CERAMIC TILES F F BAMBOO PARQUET F F CARPET CORRIDOR F F PORCELAIN TILES 361 A2 A2 A 4 A 4 23 646 m2 414 m E 650 653 68 237 79 526 94 680 20 15 973 15 A2 AND DINING MODERN KITCHEN PARQUET TILES F F CERAMIC TILES 27 178 m 4 985 m 5 094 m2 21 599 m 13 643 m 5 520 m2 5 172 m 27 056 m 35 692 m 32 942 m 29 150 m 31 419 m 11 631 m 12 912 m 10 915 m2 DOWN UP A B C D E 1 2 4 3 A2 A2 A 4 650 450 650 450 354 600 650 25 94 221 425 215 46 74 130 73 474 329 74 353 203 25 208 172 155 181 315 321 150 176 270 117 224 228 28 86 211 83 19 260 219 215 91 194 123 20 365 15 250 15 545 15 532 20 435 15 15 210 15 190 15 442 15 177 15 200 15 430 20 632 620 15 174 15 595 20 20 710 15 270 20 20 15 343 125 70 129 158 20 590 20 15 437 20 +3.000 +3.000 +3.000 +3.000 +3.000 +3.000 +3.000 +3.000 BED ROOM 1 BEDROOM 2 STUDY ROOM/OFFICE PRAYER ROOM BEDROOM 3 BEDROOM 4 MASTER BEDROOM WALK IN CLOSET BALCONY BATHROOM F F PARQUET TILES F F PARQUET TILES F F PARQUET TILES F F PARQUET TILES F F PARQUET TILES F F PARQUET TILES F F CARPET F F CERAMIC TILES F F PLASTIC TILES E A2 650

FIRST FLOOR PLAN

BASEMENT FLOOR PLAN

SECOND FLOOR PLAN

12 067 m 15 365 m 37 777 m2 25 076 m2 7 587 m 4 569 m 71 131 m DOWN DOWN UP W W W W A B C D E 1 2 4 3 650 450 650 650 600 354 450 20 378 15 202 20 334 20 590 20 20 555 20 5 20 153 15 71 98 20 20 225 15 20 380 260 15 440 15 20 640 20 15 120 15 20 948 20 20 20 778 160 215 15 134 -2.700 -2.700 -2.700 -2.700 -2.464 -2.314 -2.164 20 579 m2 MAIDS' BEDROOM GENERAL STORAGE HOME THEATER CAR GARAGE GARAGE STORE LAUNDRY STONE PAVEMENT F F PLASTIC TILES F F PLASTIC TILES F F CERAMIC TILES F F BAMBOO PARQUET F F CARPET CORRIDOR F F PORCELAIN TILES 361 A2 A2 A 4 A 4 A2 27 178 m2 4 985 m2 5 094 m2 21 599 m2 13 643 m2 5 520 m 5 172 m2 27 056 m2 35 692 m2 32 942 m2 29 150 m2 31 419 m2 11 631 m2 12 912 m2 10 915 m2 DOWN UP A B C D E 1 2 4 3 A2 A2 A 4 650 450 650 450 354 600 650 25 94 221 425 215 46 74 130 73 474 329 74 353 203 25 208 172 155 181 315 321 150 176 270 117 224 228 28 86 211 83 19 260 219 215 91 194 123 20 365 15 250 15 545 15 532 20 435 15 15 210 15 190 15 442 15 177 15 200 15 430 20 632 620 15 174 15 595 20 20 710 15 270 20 20 15 343 125 70 129 158 20 590 20 15 437 20 +3.000 +3.000 +3.000 +3.000 +3.000 +3.000 +3.000 +3.000 BED ROOM 1 BEDROOM 2 STUDY ROOM/OFFICE PRAYER ROOM BEDROOM 3 BEDROOM 4 MASTER BEDROOM WALK IN CLOSET BALCONY BATHROOM F F PARQUET TILES F F PARQUET TILES F F PARQUET TILES F F PARQUET TILES F F PARQUET TILES F F PARQUET TILES F F CARPET F F CERAMIC TILES F F PLASTIC TILES A2 DRAWN BY: MELKAM SISAY CHECKED BY INSTRUCTORS SURAFEL AND LISANEWORK Drawing Name BASEMENT, GROUND, FIRST AND SECOND FLOOR PLANS ARCHITECTURAL DESIGN 1RESIDNECE SITE ADDRESS KEBENA Drawing Status PENDING FINAL JURY Drawing Scale 1:100
A B C D E 650 450 650 650 83 68 83 63 69 A 4 A 1 2 4 3 A2 450 354 600 25 329 74 353 203 20 ROOM 11 653 m 11 487 m2 22 253 m 39 091 m2 88 502 m2 1 240 m 10 329 m 3 231 m DOWN UP A B C D E 1 2 4 3 A2 A2 A 4 650 450 650 650 450 354 600 354 74 215 341 20 380 130 60 134 20 224 441 214 90 111 20 410 385 15 685 15 230 20 20 280 15 295 20 595 20 15 440 15 140 20 20 1,268 20 790 15 +6.000 +6.000 +6.000 STEAM ROOM SAUNA ROOM GYM TERRACE STORAGE RESTING AREA TERRACE AND TERRACE BAR F F CARPET F F CERAMIC TILES F F PLASTIC TILES F F STONE
2
FLOOR PLANS

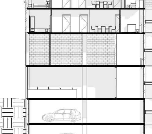
SECTION A2-A2

SECTION A4-A4

GSPublisherVersion 0.0.100.100 A B C D -2.700 ±0.000 +3.000 +6.000 +2.087 +0.750 -1.416 +1.415 +4.415 +8.087 +9.901 +6.503 -0.563 5mm PARQUET TILES 25mm CEMENT SCREED 250mm THICK HARDCORE COMPACTED SOIL ROOF SHINGLES 5X7 WOODEN PURLINS 10cm thick truss 4X4 CEILING BATTONS LIVING ROOM GARAGE GENERAL STORE MODERN KITCHEN BEDROOM 4 BEDROOM 3 MASTER BEDROOM INSULATED GYPSUM BOARD CEILING E 1 2 4 3 600 354 450 -2.700 ±0.000 +3.000 +6.000 +1.105 +3.975 +6.975 +2.100 +1.450 +1.900 -2.164 -2.314 -2.464 -2.614 +2.060 -1.451 -1.151 +4.450 +4.865 +9.989 5mm PARQUET TILES 25mm CEMENT SCREED 250mm THICK HARDCORE COMPACTED SOIL ROOF SHINGLES 5X7 WOODEN PURLINS 10cm thick truss INSULATED GYPSUM BOARD CEILING 4X4 CEILING BATTONS GUEST BEDROOM 1 STUDY ROOM STEAM BEDROOM 3 HOME THEATER GENERAL STORE RESTING AREA

SITE PLAN(1:200)

3. DRIVEWAY

4. TREES

23.78 40.00 25.23 13.14
8
1 2
3 5 6 7 2
LEGEND
MAIN RESIDENCE
1.
2. PLAYGROUND AREAS
5. GREENERY
6. MAIN ROAD TO RESIDENCE
ENTRANCE
7. MAIN
B C D A 6.500 4.500 6.500 ±0.000 +3.000 +6.000 -0.200 +2.500 +2.387 +2.860 +2.781 +5.500 +1.060 +9.901 E South Elevation (1) 1 2 4 3 6.000 ±0.000 +6.000 +2.500 -0.280 -0.350 +8.500 +7.089 +9.989 +4.000 +0.171 +3.150 4 2 1 3 ±0.000 +3.000 +6.000 +2.450 +2.137 +5.500 +5.500 +7.065 +4.000 +9.989 D C B A ±0.000 +2.500 +2.137 +6.503 DRAWN BY: MELKAM SISAY ELEVATIONS ARCHITECTURAL DESIGN 1RESIDNECE SITE ADDRESS KEBENA Drawing PENDING FINAL JURY RIGHT SIDE ELEVATION LEFT SIDE ELEVATION FRONT SIDE ELEVATION BACK SIDE ELEVATION B C D A 6.500 6.500 ±0.000 +3.000 +2.500 +2.387 +2.860 +4.000 +6.503 +7.027 E South Elevation 1) 1 2 4 3 3.541 4.499 +3.000 +6.000 +2.500 -0.280 -0.350 +5.500 +5.500 +8.500 +7.089 +9.989 +4.000 +0.171 +3.150 +6.100 4 2 1 3 ±0.000 +3.000 +2.450 +2.137 +5.500 +5.500 +4.000 +9.989 D C B A +3.000 +6.000 +5.500 +5.500 +5.500 +6.503 +9.900 DRAWN BY MELKAM SISAY CHECKED BY INSTRUCTORS SURAFEL AND LISANEWORK ELEVATIONS ARCHITECTURAL DESIGN 1RESIDNECE SITE ADDRESS KEBENA Drawing Status PENDING FINAL JURY Drawing 1:1 RIGHT SIDE ELEVATION LEFT SIDE ELEVATION FRONT SIDE ELEVATION BACK SIDE ELEVATION SECTIONS AND ELEVATIONS 3
8. NEIGHBOURING BUILDINGS
4
ARCHITECTURAL MODEL PHOTOS

ARCHITECTURAL DESIGN STUDIO II |Apartment Project

Time Period: 2022| Second semester, 3rd yr

In collaboration with: Yohannes Alene, Natnael Addisu, Tamrat kassaye, Robel Tsegaye, Natnael Zeleke,

Supervised by: Mr. Dawit Legesse & Mr. Abel Getachew

This Apartment complex was designed as part of a “social Design” experiment (coined by my design teacher Mr. Dawit).

The project was obtined by going out into the real world, into the city of Addis and finding real life problems in housing and finding special groups which need apartment housing.

During the project selecting phase, the class was split into groups, and our group after much discussion decided to build this apartment complex for the hard working public servants of St. Amanuel Mental Specialized Hospital.

5
DN UP UP 1 2 3 4 6 7178 m² CAFE PLASTIC TILES 175 m² MINI MARKET AND PASTRY SHOP PARQUET AND CERAMIC TILES 10 m² BATHROOM F.F CERAMIC TILES 26 m² OFFICE F.F PLYWOOD TILES 24 m² OFFICE F.F PLYWOOD TILES 75 m² WOMEN HAIR SALON F.F PLASTIC TILES 64 m² MENS HAIR SALON PLASTIC TILES 20 m² SLAUGHER ROOM CERAMIC TILES 30 m² BATHROOM F.F. CERAMIC TILES CENTRAL CORRIDOR F F PORCELAIN CERAMIC T LES 700 700 700 1400 700 1400 2800 700 700 700 700 700 700 4200 ga a a s ac 1455 650 1450 700 725 2121 658 410 1068 700 765 303 5 210 m² GYM F.F PORCELAIN TILES UNITY UNIVERSITY COLLEGE DEPARTMENT OF ARCHITECTURE AND URBAN PLANNING ARCHITECTURAL DESIGN II(APARTMENT) final jury DESIGNED BY: MELKAM SISAY ID: UU79073R CHECKED BY: mr. abel getachew and mr. dawit legesse GROUND FLOOR FIRST COMMECRCIAL AREA drawing no. scale: 1:100 date: july 2022 UNITY UNIVERSITY COLLEGE DEPARTMENT OF ARCHITECTURE AND URBAN PLANNING ARCHITECTURAL DESIGN II(APARTMENT) DESIGNED BY: MELKAM SISAY ID: UU79073R CHECKED BY: mr. abel getachew and mr. dawit legesse INTRODUCTION drawing no. scale: VARIOUS date: 31ST juLY, 2022 1 GROUND LEVEL PLAN

2 SECOND LEVEL + MEZANINE PLAN

CONCEPT + FLOOR PLANS

DN UP DN A B C D E F G 1 2 3 4 6 716 m² TOILET CERAMIC TILES trad tional k tchen events space events space recreational and comunity ZONE (OUTDOOR) CHILDREN DAY CARE 700 700 700 700 700 700 4200 4200 0 1035 739 689 391 1090 2115 713 370 5 greenery CHILDREN DAY CARE corridor exam rooms bathroom ca c 7.00 7.00 7.00 7.00 7.00 7.00 UNITY UNIVERSITY COLLEGE DEPARTMENT OF ARCHITECTURE AND URBAN PLANNING ARCHITECTURAL DESIGN II(APARTMENT) final jury DESIGNED BY: MELKAM SISAY ID: UU79073R CHECKED BY: mr. abel getachew and mr. dawit legesse FIRST FLOOR PLAN SECOND COMMECRCIAL AREA drawing no. scale: 1:100 date: 31st, july 2022 1 : 100 Commercial 2(First floor) 1 UP A B C D E F G w D 5 m ma d ed oom m co o a oo ma t r ba hro m c r m c t s r e m m d ed oom f f c ram c t s r e 3 m oom m ed oom wood n p rqu r e e m l m o e c c s 3 m ma e b th oom m ma t r ba hroom ed oom f f ca p t r e oom 2 c a g q v ng oom and w c e S O AND LA C L S m m t h n f wood p rqu t ar e q f f ca p t 2 m k ch n m t h n 7 m a oo 8 m ed oom 2 1 2 3 4 6 7-2 LAUNDR A 238 394 238 510 183 475 184 246 302 353 312 410 182 140 182 228 205 135 148 242 333 397 363 188 369 282 247 375 229 536 174 451 212 228 325 179 126 424 290 442 176 330 226 732 390 351 225 296 220 346 401 150 218 732 165 660 541 122 5 UNITY UNIVERSITY COLLEGE DEPARTMENT OF ARCHITECTURE AND URBAN PLANNING ARCHITECTURAL DESIGN II(APARTMENT) final jury DESIGNED BY: MELKAM SISAY ID: UU79073R CHECKED BY: mr. abel getachew and mr. dawit legesse Typical residence plan g+3 up to G+14 drawing no. scale: 1:100 date: 31st, july 2022
3 TYPICAL RESIDENCE PLANS G+3 UPTO G+12 6

SECTION A

Level 1 0.00 Level 2 4.00 Level 3 8.00 Level 4 11.00 Level 5 14.00 Level -1 -3.00 Level -2 -6.00 A B C D E F G parking lot commercial zone 1 mezanine floor commercial area garden space garden space 700 700 700 700 700 700 4200 Level 6 17.00 Level 7 20.00 Level 8 23.00 Level 9 26.00 Level 10 29.00 Level 11 32.00 Level 12 35.00 Level 13 38.00 Level 14 41.00 Level 15 44.00 commercial zone 2 living room elevators stairs 17.80 19.10 17.00 15.50 14.00 15.24 16.21 16.03 18.10
1 SECTION 2 Level 1 0.00 Level 2 4.00 Level 3 8.00 Level 4 11.00 Level 5 14.00 Level -1 -3.00 Level -2 -6.00 1 2 3 4 6 7 700 1400 700 700 700 4200 curtain wall curtain wall mulitons rectangular 30x30 basement entrance door Level 6 17.00 Level 7 20.00 Level 8 23.00 Level 9 26.00 Level 10 29.00 Level 11 32.00 Level 12 35.00 Level 13 38.00 Level 14 41.00 Level 15 44.00 5 13.11 11.69 prefab concrete panels glass handra ls wooden louvers Level 1 0.00 Level 2 4.00 Level 3 8.00 Level 4 11.00 Level 5 14.00 Level -1 -3.00 Level -2 -6.00 1 2 3 4 6 7 retaining wall Level 6 17.00 Level 7 20.00 Level 8 23.00 Level 9 26.00 Level 10 29.00 Level 11 32.00 Level 12 35.00 Level 13 38.00 Level 14 41.00 Level 15 44.00 5 UNITY DEPARTMENT ARCHITECTURE PLANNING ARCHITECTURAL II(APARTMENT) DESIGNED ID: UU79073R CHECKED getachew legesse elevations east drawing 1 : 200 EAST ELEVATION 1 1 : 200 WEST ELEVATION 2

SECTIONS AND ELEVATIONS

UNITY UNIVERSITY COLLEGE

DEPARTMENT OF ARCHITECTURE AND URBAN PLANNING

ARCHITECTURAL DESIGN II(APARTMENT) final jury

DESIGNED BY: MELKAM SISAY ID: UU79073R

CHECKED BY: mr. abel getachew and mr. dawit A AND 2

drawing no.

date: 31st, july 2022

Level 1 0.00 Level 2 4.00 Level 3 8.00 Level 4 11.00 Level 5 14.00 Level -1 -3.00 Level -2 -6.00 1 2 3 4 6 7 400 400 asphalt floor finish cement screed 25mm 150mm RC slab 250mm Hard Core compacted soil −4.45 2.00 12.42 11.91 10.21 700 700 700 1400 700 4200 Level 6 17.00 Level 7 20.00 Level 8 23.00 Level 9 26.00 Level 10 29.00 Level 11 32.00 Level 12 35.00 Level 13 38.00 Level 14 41.00 Level 15 44.00 5 supermarket communal area open down/ atrium
SECTION 2 Level 1 0.00 Level 2 4.00 Level 3 8.00 Level 4 11.00 Level 5 14.00 Level -1 -3.00 Level -2 -6.00 A B C D E F G 700 700 700 700 700 700 4200 20 CM HCB WALL 10 mm aluminum framing glass panel with bracket handrail curtain wall curtain wall mulitons rectangular 50x150 Level 6 17.00 Level 7 20.00 Level 8 23.00 Level 9 26.00 Level 10 29.00 Level 11 32.00 Level 12 35.00 Level 13 38.00 Level 14 41.00 Level 15 44.00 Level 1 0.00 Level 2 4.00 Level 3 8.00 Level 4 11.00 Level 5 14.00 Level -1 -3.00 Level -2 -6.00 A B C D E F G 700 700 700 700 700 700 Level 6 17.00 Level 7 20.00 Level 8 23.00 Level 9 26.00 Level 10 29.00 Level 11 32.00 Level 12 35.00 Level 13 38.00 Level 14 41.00 Level 15 44.00 UNITY UNIVERSITY COLLEGE DEPARTMENT OF ARCHITECTURE AND URBAN PLANNING ARCHITECTURAL DESIGN II(APARTMENT) final jury DESIGNED BY: MELKAM SISAY ID: UU79073R CHECKED BY: mr. abel getachew and mr. dawit legesse elevatioNS NORTH AND SOUTH drawing no. scale: 1:200 1 : 200 NORTH SIDE ELEVATION 1 1 : 200 SOUTH side ELEVATION 2
7
8
RENDERINGS

UNDEVELOPEDROADSIDEWITH SPARSEDOUTRESIDENTIAL HOUSES

MAINSTREETWITHSTADIUMSIDE

LOW CHURCHACTIVITYNEIGHBORHOODWITH NEARBY

HIGH-LYACTIVECOMMERCIAL STREETWITHANEIGHBOR-

INTEGRATED DESIGN STUDIO I | Housing

Group Project

Time Period: 2022| First semester, 4th yr

In collaboration with: Yohannes Alene, Natnael Addisu, Tamrat kassaye, Robel Tsegaye, Natnael Zeleke,

Supervised by: Mr. Tewodros & Mr. Wubshet

Located across the street from adey abeba stadium, this project let me explore what it meant to integrate concepts in design, structure, building materials, and urban planning to create a housing project on a 7.4 ha site.

This was my first experience doing a major design studio course in a group setting and I must say that it was one of the most rewarding experiences I’m going to have for a while.

9

GROUND FLOOR LAYOUT

BIRDS EYE VIEW RENDER

10
A 530 1 2 3 4 5 450 480 200 400 470 1 A103 Living/Dinning Room A=38m2 Kitchen A=12m2 Bedroom A=13m2 Bedroom A=13m2 BR A=3m2 BR A=3m2 529 204 462 218 402 222 Level 1 0 Level 2 3000 Level 3 6000 Level 4 9000 Level 5 12000 Level 6 15000 Level 7 18000 1 2 3 4 5 6Level 0 1 2 3 4 1 A101
UP A102 1 A102 3 B C D E F G H 460 330 620 330 460 520 Living/Dinning Room A=50 m2 Living/Dinning Room A=32m2 Kitchen A=10m2 Kitchen A=9m2 Bedroom A=10m2 Bedroom A=10m2 Bedroom A=10m2 Bedroom A=10m2 A=3m2 BR A=3m2 A=3m2 BR A=3m2 BR A=3m2 BR A=3m2 Living/Dinning Room A=50 m2 Living/Dinning Room A=38m2 Kitchen A=12m2 Kitchen A=10m2 Bedroom A=13m2 Bedroom A=10m2 Bedroom A=10m2 Bedroom A=13m2 Bedroom A=10m2 BR A=3m2 BR A=3m2 BR A=3m2 BR A=3m2 Studio A= 30m2 Service room A=3m2 170 290 331 386 202 480 324 235 205 419 200 480 198 344 410 202 288 201 315 329 290 172 517 382 410 Level 1 0 Level 2 3000 Level 3 6000 Level 4 9000 Level 5 12000 Level 6 15000 Level 7 18000 5 6 Level 1 0 Level 2 3000 Level 3 6000 Level 4 9000 Level 5 12000 Level 6 15000 Level 7 18000 A B C D E F G H 1 A102 1 TYPICAL
11
G+5 LOW RISE APARTMENT UNITS
1 2 3 4 690 630 480 1800 1 A103 Level 1 Level 2 3000 Level 3 6000 Level 4 9000 Level 5 12000 Level 6 15000 Level 7 18000 Level 8 21000 Level 9 24000 Level 10 27000 Level 11 30000 Level 12 33000 Level 13 36000 Level 14 39000 Level 15 42000 Level 16 45000 A B C D E A B C D E 2

TYPICAL G+16 HIGH RISE MIXED USE APARTMENT COMPLEXES

A B C D E 630 450 450 630 Service room A=3m2 Bedroom A=10m2 Bedroom A=10m2 Bedroom A=10m2 Bedroom A=10m2 Bedroom A=10m2 Bedroom A=12m2 Living/Dinning Room A=32m2 Living/Dinning Room A=32m2 Living/Dinning Room A=32m2 Kitchen A=9m2 Kitchen A=9m2 Kitchen A=6m2 BR A=3m2 BR A=3m2 BR A=3m2 BR A=3m2 BR A=3m2 BR A=3m2 Bedroom A=10m2 Bedroom A=10m2 Living/Dinning Room A=32m2 Kitchen A=9m2 BR A=3m2 BR A=3m2 630 765 357 142 292 268 466 622 388 355 615 484 298 380 349 288 450 446 307 380 182 154 184 258 2160 Studio A=30m2Level 3000 Level 6000 15000 Level 18000 Level 27000 Level 11 30000 Level 12 42000 Level 16 45000 Level 1 3000 6000 9000 Level 5 12000 Level 6 Level 7 Level 8 21000 24000 27000 30000 Level 12 Level 13 Level 14 Level 15 42000 45000 1 2 3 4Level 0
12
13
RENDERINGS
ARCHITECTURAL MODEL 14

INTERIOR DEISGN | Studio Apartment

Time Period: 2023| Second semester, 4th yr

Supervised by: Mr. Fitsum & Mr. Daniel

We were asked to create an interior design for our 50 sq.m classroom, assuming that it has been turned into a studio aparmtnet. I attempted to create a dark wood and brick toned interior, with complementary white along the walls and ceiling, creating a muted yet cosy space for a residential area, which can be made vibrant through colors through decorations or plantations as per the preference of the user.

15
PROJECT TITLE Project Location 3 6 m 5 9 m 4 6 m 1 6 m 3 0 m 1 0 m 4 6 m BED ROOM OFFICE SPACE BATHROOM OPEN KITCHEN DINING AREA LIVING ROOM 7 28 sq m 4 8 sq m 2 4 m 2 0 m 2 4 sq m 2 6 m 2 8 m 16 56 sq m carpet f f 1 4 m 1 2 m 1 68 sq m ceramic f f woo carpet f f ceram c f f carpet f f
3 6 m 5 9 m 4 6 m 1 6 m 3 0 m 1 0 m 4 6 m BED ROOM OFFICE SPACE BATHROOM OPEN KITCHEN DINING AREA LIVING ROOM 7 28 sq m 4 8 sq m 2 4 m 2 0 m 2 4 sq m 2 6 m 2 8 m 16 56 sq m carpet f f 1 4 m 1 2 m 1 68 sq m ceram c f f wool carpet f f ceramic f f carpet f f A U T H O R N A M E 01 A FLOOR PLANS 16

NIGHT AND DAY RENDERS

17

INTERIOR DEISGN #2 | Showroom Design

Time Period: 2023| Second semester, 4th yr

Supervised by: Mr. Fitsum & Mr. Daniel

For the next assignement in the same interior design course, we were asked to design an interior for our chosen brand in a 20*10*10 space.

I chose the Air jordan’s Jumpman brand and decided to divide the space up into three tiers, the main clothing store, a gallery and a mini basketball court on the upper most floor

18
1 GROUND LEVEL SHOP PLAN 3 ROOF TOP COURT PLAN

FLOOR PLANS

19
2 FIRST LEVEL GALLERY PLAN

PERSPECTIVE VIEWS AND RENDERED SECTIONS

21
22
RENDERINGS
Melkam Sisay|Unity University Architecture Bsc student| 4th year| Summer 22/23
THANK YOU

Turn static files into dynamic content formats.

Create a flipbook
Issuu converts static files into: digital portfolios, online yearbooks, online catalogs, digital photo albums and more. Sign up and create your flipbook.