2023 ARCHITECTURE PORTFOLIO UNL - THEOHARIS

Page 1

PORTFOLIO 2022

NIKOS THEOHARIS

1
2

ARCHITECTURE PROJECTS

3
CONTENTS
KANSAS CITY ART INSTITUTE DEPARTMENT OF ARCHITECTURE ARTIST AND RESIDENCY UNMC MENTAL HEALTH AND WELLNESS CENTER RESUME 4-19 20-25 26-39 45 PERSONAL WORK 40-41

KCAI DEPARTMENT OF ARCHITECTURE

ARCH DESIGN: SITUATE Spring 2022

DR. PETER OLSHAVSKY

KANSAS CITY ART INSTITUTE

KANSAS CITY, MISSOURI

7 WEEKS

NIKOS THEOHARIS, STEVEN POWERS, OZ ECKHORN, LONDELL STUBBLEFIELD

The design field is an ever-evolving growth system, but how will education change in the next 50 years? Through design, we had the opportunity to look at the aspects of designing a better education future. When developing an architecture school for the future, an emphasis is placed on interacting with the community through creating a research center that engages the Kansas City Art Institute. This interaction created the opportunity to look at how architecture research can evolve. The college of architecture in Kansas City allowed for the development of how programming a space can directly correlate with the user. The program’s connections to the site promoted the opportunity to learn about the direct links the building can have with the site it is placed in.

4
5
6
7
8
9
10
11
12
13
14
15
16
17
18
19

ARTIST

The Arch 210: Representation studios’ goal was to find a precedent project to model and transform the building to contain the needed space for an Artist and Residency program. Representation used inspiration from artists of our choosing. For this project, I pulled ideas from the Sansbeek Pavillion because of the various curves throughout the building, which is typical in the artistry form of pottery. I created spaces that accommodated the needed gallery, workspace, and other program areas throughout this process. To represent the building, I pulled ideas from the DOGMA, David Hockney, and Kerry James Marshall. Using their collage style I generated concepts about how to frame the Artist and Residency.

20
2020 HILARY WEISE 6 WEEKS
AND
RESIDENCY
ARCH 210: REPRESENTATION
21
22
23
24
25

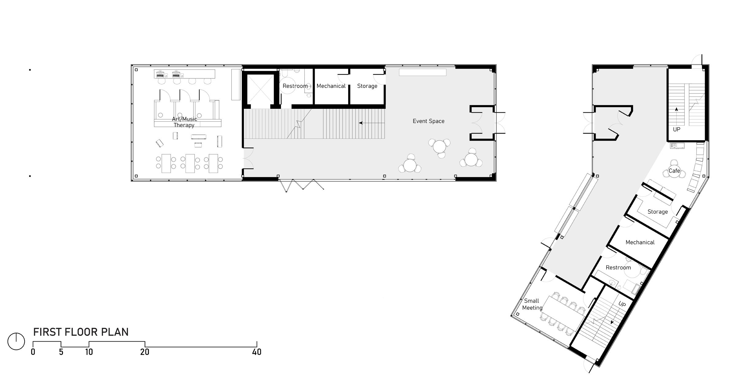
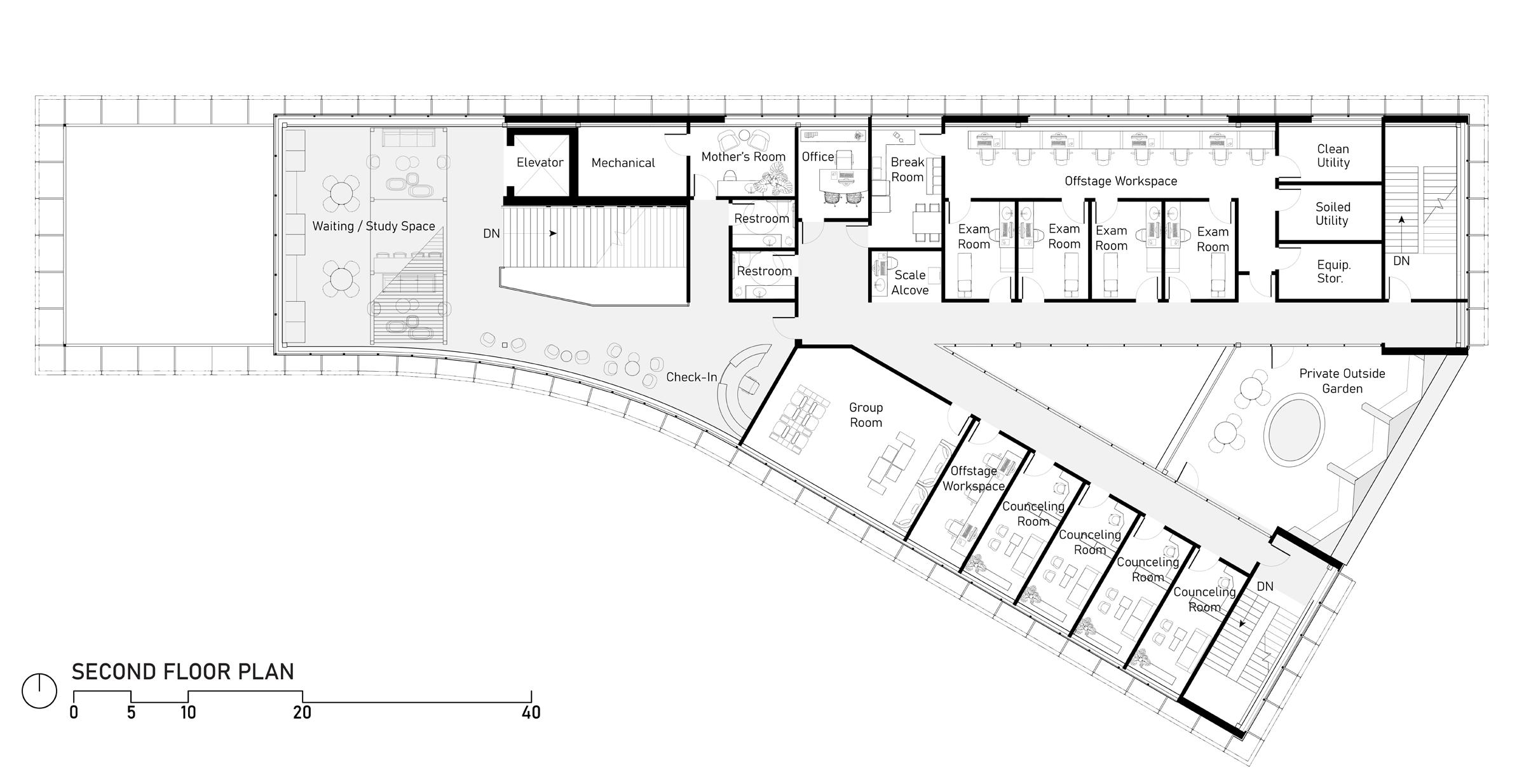
UNMC Mental Health and Wellness Center

BRIAN

ARCH 410: COLLABORATE 2022

6 WEEKS

The University of Nebraska Medical Center sits on an urban campus in Omaha, NE, with over 8 million square feet of state-of-the-art facilities focusing on education, research, and clinical health. The UNMC campus lacks sufficient facilities for students’ mental and physical health. In this studio, we explored designing to remove the stigma of seeking help. Through combined waiting and study areas, amenities that invite people inside, and an amphitheater providing students with daytime/night entertainment and creating a more profound knowledge of biophilic design and the use of materiality when designing for a mental health and wellness center.

26
SPENCER, LINDSAY NEEMAN, UNMC PLANNING TEAM NIKOS THEOHARIS, OZ ECKHORN, MALIK DARWISH, ASHLEY MITCHELL, ALISSA VLACH
27
28
29
30
31
32
33
34
35
36
37
38
39

PERSONAL WORK

40
41
42
43
44

NIKOS THEOHARIS

Address: 900 n 39th st. Lincoln, NE

Email: nttheoharis@gmail.com

Phone: (402) 705 6736

EDUCATION

University of Nebraska-Lincoln

Bachelor of Architecture (expected) May 2023

Landscape Architecture Minor (completed) Dec. 2022

GPA: 3.66

EMPLOYMENT

Adam Combs Detasseling Company, Field Supervisor, Hastings, NE

Oversaw and coordinated the work of fifteen young employees every day. Watched over the health and safety of several teenage workers while in the fields and during transportation.

Richdale Apartments, Landscaping Assistant, Lincoln, NE

Provided input on landscaping plans for the companies property. Oversaw the general upkeep of the large property.

Panera Bread Company, Cashier, Dishwasher, Lincoln, NE

Operated a cash register dealing with over $5,000 daily. Ensured the safety and cleanliness of the store. Served as a leader who could assist new members with learning tasks around the store.

Skills

Volunteer Experience

Lou Gehrig’s Disease Foundation August 2019 - Present

- Volunteered and helped organized events to raise money for ALS research

- Asissted in events that fundraised over $30,000 for the foundation

- Provided over thirty hours of community service to organization

Travel Education

- Italy, (Rome, Pisa, Florence, Vatican City)

- Greece, (Athens, Mykonos, Santorini)

- Austria, Vienna

- Germany, Ulm

- France, (Avignon, Provence, Nice)

- Spain, (Barcelona, Madrid, Zaragoza)

References available upon request

45
Rhino 6 / Adobe Photoshop / Adobe Indesign / Adobe Illustrator / V-Ray / Enscape / Revit
46
47

Turn static files into dynamic content formats.

Create a flipbook
Issuu converts static files into: digital portfolios, online yearbooks, online catalogs, digital photo albums and more. Sign up and create your flipbook.
2023 ARCHITECTURE PORTFOLIO UNL - THEOHARIS by Theoharis_Nicholas - Issuu