EMMANUEL AYO-LOTO
theemloto@gmail.com
+44 7407 134527
https://www.linkedin.com/in/theemloto/
I am a skilled designer with a passion for creating positive impacts through design. I have honed my communication, creativity, organization, and problem-solving skills throughout my career, enabling me to work well with clients and colleagues on various projects. I strive to achieve excellence and lasting experiences in every project I undertake.
I have a broad range of skills that allow me to contribute to different aspects of design, such as architectural design and visualization, interior design, construction and technical drawings, brand design, design thinking, design management, and FF&E (Furniture, Fixtures, and Equipment) design.
Some of my notable achievements include winning architecture competitions and showcasing my ability to produce outstanding designs that stand out among peers. I have also received recognition from the Arts Council England for my exceptional talent in architecture.
In this portfolio, you will find a curated selection of my work, showcasing my expertise in space planning, interior design, FF&E design, technical detailing, and 3D visualization. I invite you to explore my projects, which demonstrate my unique approach, attention to detail, and commitment to delivering exceptional design solutions.
EDUCATION
2022 Masters Of Science (M.Sc.) Architecture
Obafemi Awolowo University, Ife, Nigeria
2017 Bachelor Of Science (B.Sc.) Architecture
Obafemi Awolowo University, Ife, Nigeria
2011 Senior School Certificate
West African Examination Council
WORK EXPERIENCE
APRIL. 2022-JUNE.
2023 Architectural Designer
Hill Star Development & Properties Limited, Lagos, Nigeria.
FEB. 2021-MAR. 2022 Interior Design Manager (Contract)
Sheer Ambience Projects Ltd, Lagos, Nigeria
OCT. 2019-JAN 2021 Interior Architect
Sheer Ambience Projects Ltd, Lagos, Nigeria
JAN.2018-AUG 2019 Junior Architect (CONTRACT)
OAC Architects, Lagos, Nigeria
FEB.2017-NOV 2018 Junior Architect
Onabanjo Architects, Ife, Nigeria
FEB. 2016-DEC. 2016 Brand Design Strategist (Contract)
NETAPP, Dubai, UAE
TRAINING
2021 Certificate Course, Brand Management: Aligning Business, Brand and Behaviour
The University of London, London Business School, Coursera.org
2014 Certificate Course, Brand Design Thinking Red & Yellow Creative School of Business, Cape Town, South Africa
2022 Autodesk Certificate
Revit for Architectural Design Professional
ACHIEVMENTS
Velux International Award for Architecture Students, Daylight in Buildings Category (Africa) 2016, 2018, and 2020
Third Place “Chronos the Competition 2016" The Future Workplace, and "Chronos the Competition 2017" Give Them Home
The Wema Bank ife branch Design Competition Winning Entry
Endorsed by Art Council England as a Global Talent for the Global Talent Visa
SKILLS
INTERIOR DESIGN, PROJECT MANAGEMENT, AUTODESK REVIT, AUTODESK AUTOCAD, BIM, ADOBE SUITE,
AFE HOME REMODEL
YEAR 2018
ORGANIZATION OAC Architects
ROLE ON PROJECT conducting measurements of the existing site and implementing space planning strategies, all while utilizing Revit for precise drafting and design work.
Tool Revit
Project Description: Home Remodeling for Optimal Living Spaces and Outdoor Integration
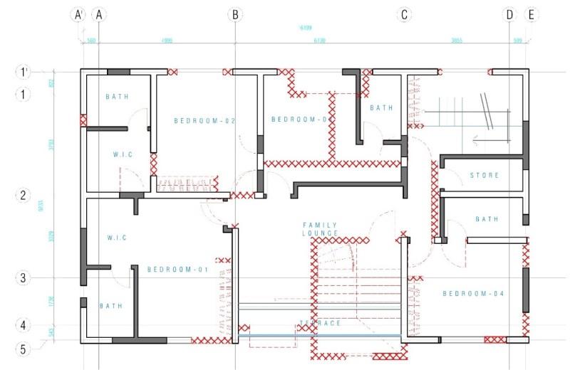
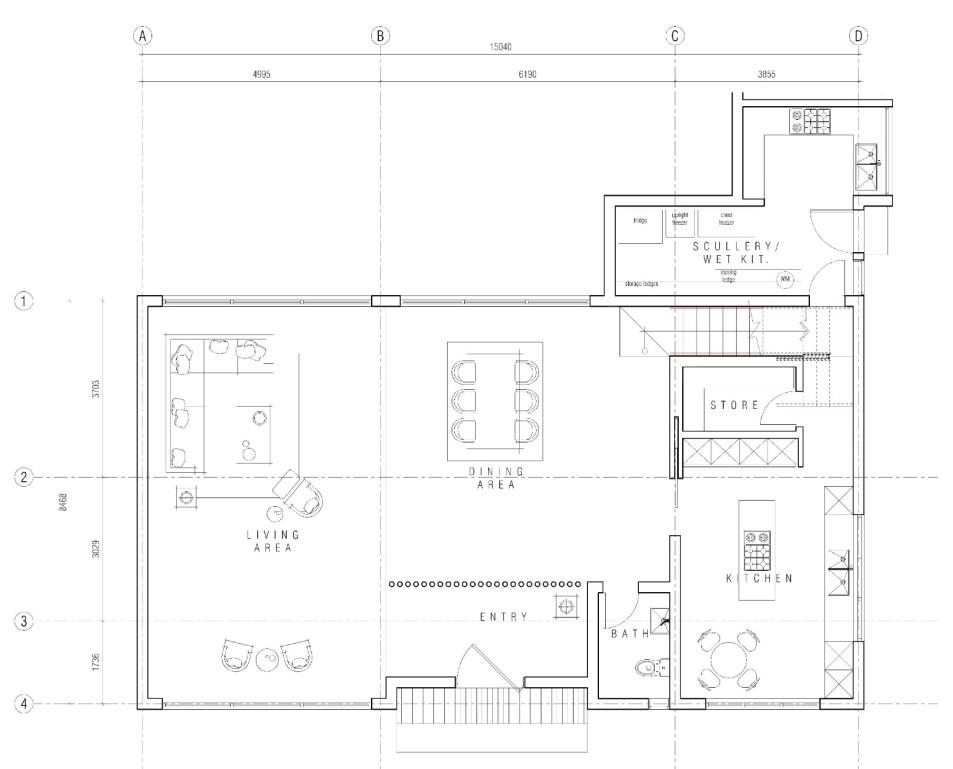
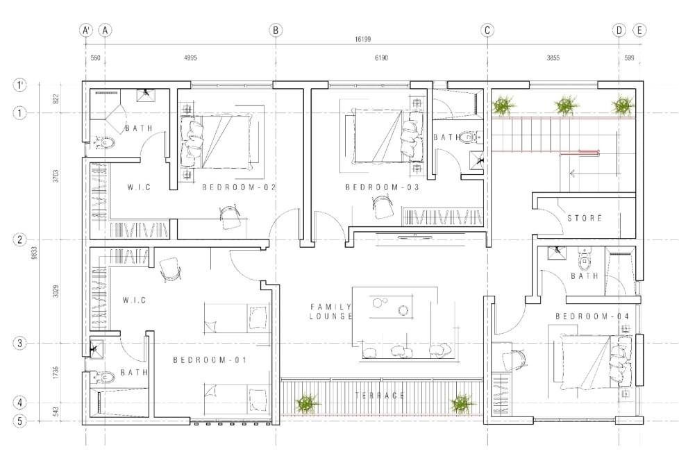
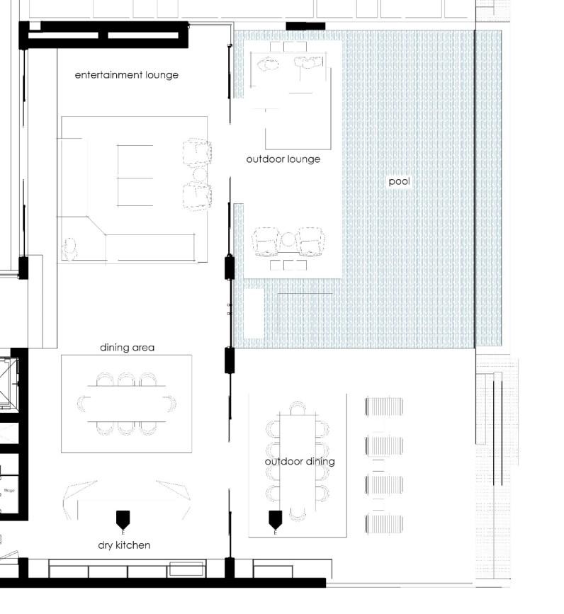
The aim of the home renovation project had been to create a more capacious and practical living space that would integrate a garden area, an additional storey, and a well-conceived furniture layout.
To achieve this objective, I initially carried out a comprehensive site analysis to assess the existing conditions of the home. I measured the dimensions of the area, identified the load-bearing walls and other structural elements, and evaluated the potential challenges and opportunities for renovation.
Based on the site analysis, I devised a demolition scheme that outlined the removal of walls and other elements that were no longer necessary or suitable for the new design. The demolition plan had been meticulously developed to ensure the structural integrity and safety of the home, as well as to adhere to all relevant building codes and regulations.





The scheme I put forth is founded upon a considerate arrangement of the furniture layout. Its objective is to establish an equilibrium between functionality and aesthetics, bringing together communal and individual spaces in harmony. I took into account the client's particular requirements, inclinations, and way of life in my methodology. The arrangement mirrors their uniqueness and preferences.






OASIS EXPERIENCE CENTRE
PROJECT DESCRIPTION:
YEAR 2019
ORGANIZATION OAC Architects
ROLE ON PROJECT Space Planning, Proficient Drafting using Revit, Thorough Documentation, and Precise Scheduling coordination.
TOOL Revit
I crafted a striking and engaging interior layout for the OASIS EXPERIENCE CENTRE that played a pivotal role in showcasing the ongoing commercial development, enhancing sales, and attracting prospective investors and buyers. This project expertly combined creativity with functionality, resulting in an immersive space tailored for investors, buyers, and visitors alike, seamlessly blending aesthetics with sales-oriented design.
The layout showcased meticulously delineated zones for presentations, interactions, meetings, and family engagement. Prominent features encompassed well-orchestrated areas for seamless transitions, a warm and inviting reception zone, interactive technological elements that spurred exploration, appropriately allocated areas for productive meetings, a familyoriented play space, discreet seating arrangements for moments of reflection, VR presentations, a meticulously designed model stand, utilization of high-quality materials for an elegant touch, strategically placed indoor plants to invigorate the ambience, and thoughtfully positioned lighting that accentuated key focal points.










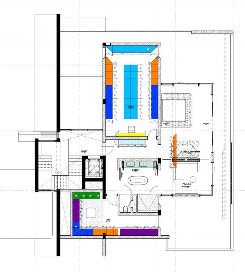
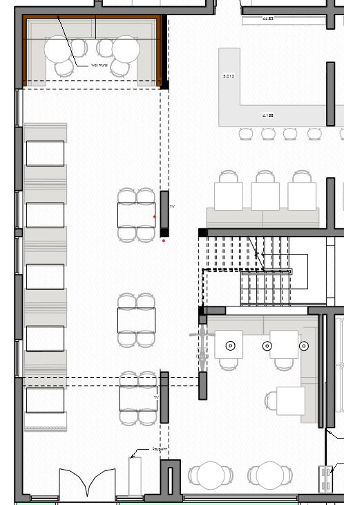
OGEDE RESIDENCE INTERIOR DESIGN
YEAR 2021
ORGANIZATION SHEER AMBIENCE INTERIO DESIGN STUDIO
ROLE ON PROJECT Proficient Space Planning, Drafting using AUTOCAD, Documentation, Accurate Schedule Management, and Visualization utilizing 3ds Max
TOOL AUTOCAD, 3DS MAX

Project Description:
This exquisite housing project is situated in the highly regarded area of Banana Island in Lagos. A design collaboration between Sheer Ambience as interior designers and SAOTA Architects.
In my role, I focused on important areas:
Living Room: I created an attractive and luxurious space by arranging furniture, selecting pieces carefully, and choosing a pleasing colour scheme.
Kitchen and Dining Area: I used smart design principles to create an efficient layout that promotes enjoyable cooking and socializing.
Outdoor Spaces: I designed outdoor areas that smoothly expand the indoor living space, establishing a calm atmosphere.
Visitors Restroom: I enhanced even small spaces with thoughtful design, making a strong impression.
I managed tasks like planning the layout, creating mood boards, making detailed drawings, and visualizing interiors. This project demonstrates effective teamwork and my dedication to top-notch design implementation.

LIVING ROOM AND POOL AREA DESIGN
FABRICS










LIVING ROOM AND POOL AREA
DESIGN VISUALISATION






KITCHEN DESIGN


CUPBOARD







KITCHEN DESIGN VISUALISATION



GUEST RESTROOM DESIGN







GUEST TOILET VISUALISATION


JOINERY SCHEDULES



TECHNICAL DRAWINGS FOR WARDROBE


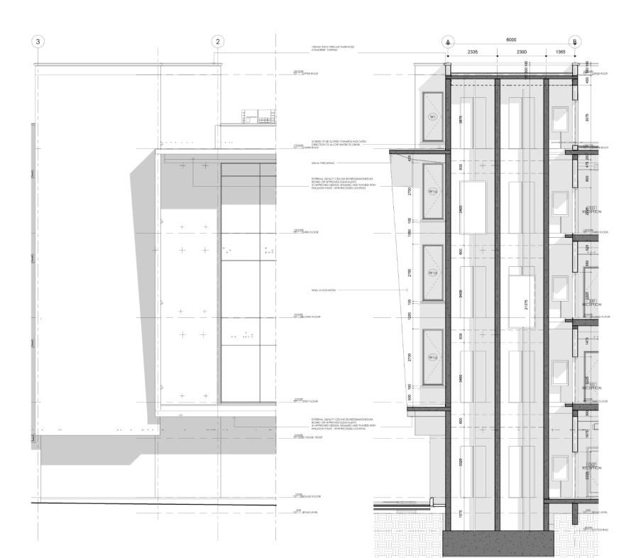
ASABA DOMESTIC AIRPORT INTERIOR DESIGN
Project Description:
YEAR 2021
ORGANIZATION SHEER AMBIENCE INTERIO DESIGN STUDIO In Collaboration With NETHERLANDS AIRPORT CONSULTANTS
ROLE ON PROJECT Research, Space Planning, Drafting, Documentation Accurate Schedule Management, and Visualization utilizing 3ds Max
TOOL Revit, 3Ds Max
This project involved designing the interior of an airport terminal with a long-term vision for the next 30 years. There were two phases, with Task 1 having established the interior vision for all public spaces and Task 2 having focused on implementing the vision in the existing terminal, with a specific focus on the departure area on the first floor. The colour scheme used neutral tones as a base, with each area having its accent colour in furniture and finishes. Some layout modifications were proposed before planned building expansions to streamline the renovation process.
As a team member, my responsibilities included designing the departure lounge and the VIP lounge and selecting suitable furniture, finishes, and accent colours to enhance comfort and aesthetic appeal for passengers and VIP guests.

Exclusive Domestic operations
A new location for security screening (2030 and beyond} is incorporated
A new location of commercial zones (2030 and beyond} is partially incorporated
Existing toilet blocks are expanded towards the airside (alignment with commercial zones)

THE DEPARTURE LOUNGE
DESIGN PRECEDENCE

EXISTING CONDITIONS


CONDITIONS


Integrated vegetation Kunshan Government affairs service center –China, by SDTD


Comfortable and inviting seating
Narita airport - Japan, by MUJI


Alucobond PLUS aluminum composite panel Solid line
Colour 105 Anthracite grey Tray panels SZ20 fixation system
Douglas SEDES aluminum extrusion profile
Colour ELM 8616
30x40 mm Suspension and backing in black RAL9011
MOX MPS-F 304L stainless steel skirting board profile
Colour Anthracite satin (ANT-S)
Standard walls: Fiberglass wall coverings have been chosen for their ease of cleaning and durability. Grés ceramic skirting will complement the flooring design.
Slatted wood: For areas where passengers directly interact, there will be a wood-like aluminium extruded profile to help with navigation. To ensure durability, stainless steel skirting and collision protection bars will be added.
Living wall: An eye-catching feature will be a living wall with artificial plants. This wall will need less maintenance and won't negatively affect nearby equipment and furniture. The lower portion of the wall will be covered in Grés stoneware tiles.
Seamless joint fixation system
Hunter Douglas HD curved ceiling 300C
Colour ELM 8616
Seamless joint fixation system
Adfors Saint-Gobain Novelio Flash Fiber fiberglass wallcovering
Colour White RAL 9010
Top surface coating FLAT
Limestone Gres 14 mm tile
Colour Oyster Natural finish
30x60 OR 60x60

The design and materials used in the departure lounge are intended to match the interior vision while ensuring that they are sturdy and easy to maintain. Here are the main design choices and materials:
Ceiling: The proposed ceiling design is curved and metallic, resembling wood, with gaps that can be easily taken apart for maintenance and to integrate mechanical, electrical, and lighting fixtures.
Flooring: Throughout the lounge and the security screening area, durable Grés stoneware tiles will be used. These tiles are known for their ability to withstand heavy foot traffic and resist staining.
Exterior walls: To ensure long-lastingness and prevent damage, the commercial facades will be made of aluminium composite panels. These panels will have stainless-steel skirting and protective bars to prevent collisions.

Walls
Artificial plant wall with seamless joints
THE DEPARTURE LOUNGE FURNITURE SUGGESTION
7130 bench with metal shell & upholstered pads
Price: € 3.509 - 4.801 (per 4-seater)


Kusch+ CO 8350/5 Circle bench
€ 3945 - 6170


THE DEPARTURE LOUNGE
VISUALISATION


THE VIP LOUNGE
DESIGN PRECEDENCE

Bar
PROPOSED FURNITURE ARRANGEMENT





• Sophisticated materials – darker colour pallet
• Flooring – Grés porcelain stoneware• Accent walls – bronze cladding
• Ceiling – wood or wood equivalent baffle system
• Comfortable and inviting furniture (luxurious materials, shades of green, golden accents)• Integrated vegetation throughout the space with focal lighting green, golden accents)
• Integrated vegetation throughout the space with focal lighting



The VIP area's interior design was characterized by a neutral colour scheme. To create a cosy atmosphere, a modular baffle system with wood-like finishes was integrated into the ceiling. Gold accents were strategically placed throughout the space, symbolizing the prosperous economy of Asaba and Nigeria.
For ensuring durability and easy maintenance, materials for the VIP lounge were chosen with the interior vision in mind. The primary design solutions and materials used were as follows:
▪ Ceiling: A baffle system was proposed with a metal construction but featuring a wood-like finish Adequate space was included between the baffles to allow for easy incorporation of MEP and lighting outlets This setup simplified maintenance and helped extend the lifespan of the ceiling baffles.
▪ Flooring: The proposal included Grès stoneware tiles, renowned for their resistance to heavy foot traffic and impermeability to stains To ensure durability, it was recommended that the internal tiles have a thickness of 14 mm
▪ Reception Feature Wall: The reception area featured a wall adorned with a mosaic of golden metallic tiles. This choice set a tone of luxury and modernity for all VIP areas. The reception counter was clean yet luxurious, and an accent hanging light fixture enhanced the overall ambience
▪ Lounge Feature Wall: Inside the VIP lounge, a feature wall was created using brownish gold tiles, contributing to a luxurious and inviting atmosphere. The richness of the green furniture and focal vegetation further complemented the lounge’s ambience.

THE VIP LOUNGE
VISUALISATION




PITSTOP, VICTORIA ISLAND FIT-OUT
YEAR 2021
ORGANIZATION SHEER AMBIENCE INTERIOR DESIGN STUDIO
ROLE ON PROJECT Space Planning and Drafting using Revit. Additionally, I am responsible for crafting the mood board and establishing precedents, while also playing a pivotal part in overall Project Coordination.
TOOL InDesign, Excel, Revit
Project Description :
Creating a Dynamic Hub for Cycling Enthusiasts:
The main idea was to change an existing area into a lively hub for people who love cycling. Here, they could have meals and drinks, and also have meaningful conversations. The main goal of this project was to make the area better and more connected.
A big part of this effort was making the atmosphere just right. We put a lot of thought into picking a special mood that would match both the cycling spirit and the desire for a friendly feeling. We paid careful attention to every detail during the process of setting up the place. This was to make sure that everything fit together nicely and worked well.
Another important part of the project was arranging the furniture and lighting. We worked on this to make sure that everything fit together and looked good. We balanced how things looked with how they worked, showing how good design can also be practical.






In the end, this project was about more than just changing how the inside of the place looked. It was like a big change. By facing the challenges of making the space better and creating an atmosphere that made people feel like they were part of a group, I wanted to make a place where people who love cycling could come together, talk, and enjoy doing what they love.










PITSTOP, VICTORIA ISLAND FIT-OUT COMPLETED PICTURES







AFREMEX BANK BUILDING MEZZANINE FLOOR INTERIOR DESIGN
YEAR 2021
ORGANIZATION SHEER AMBIENCE WITH JAMES CUBBIT
ROLE ON PROJECT Space design Revit Modelling BIM LEVEL 2 Tool Revit

AFREMEX BANK BUILDING SEVENTH FLOOR INTERIOR DESIGN
YEAR 2021
ORGANIZATION SHEER AMBIENCE
ROLE ON PROJECT Space design Revit Modelling BIM LEVEL 2 Tool Revit

FLOOR LAYOUT


CEILING LAYOUT



NORDICA HOSPITAL ARCHITECTURAL DESIGN
YEAR 2022
ORGANIZATION HILL STAR PROPERTY DEVELOPMENT
ROLE ON PROJECT Architecture Design Revit
Modelling BIM LEVEL 2
Tool Revit
The Nordica Hospital architectural design project involves the creation of a comprehensive and advanced healthcare facility using Building Information Modeling (BIM) technology. The project aims to design a state-of-the-art hospital that meets the highest standards of healthcare delivery while adhering to BIM Level 2 protocols. The chosen platform for design and modelling is Autodesk Revit, a widely used BIM software that facilitates collaboration, visualization, and efficient project management.













