THANG LAM, INTERIOR DESIGN TECHNOLOGIST PORTFOLIO

Page 1

PORTFOLIO OF DESIGN

THANG LAM

PROJECT WITH SKETUP AND ENSCAPE
C O N T E N T S ABOUT ME AUTOCAD SKETCHUP REVIT 02 03 05 07

Thang Lam

20 | November | 1999

16249 70 Street, Alberta, Canada

T5Z 3X7

e.lvthang@gmail.com

+1 (780) 257-5997

"I am Interior Design Technologist, I took 2 years program at Northern Alberta Institute of Technology. In 2 years learning at NAIT, I have done considerably of projects. And I am prepared to present them."

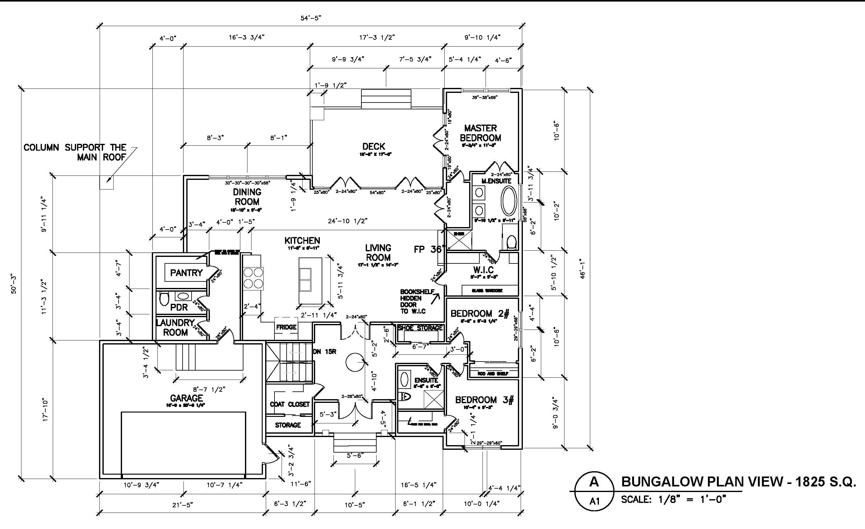
AUTOCAD

"This project I have done this project when I was second year of my program in INDT 2500 course. I made the plan view based on the requirements of client. After I have my plan view set, I builed up all my elevation views and section view. I achieved very much knowledge after I finished this project."

SKETCHUP

"This project I have done in my first year, It called "Red Lion Pub". While making this project, I gained more experiences about pub designs after I researched. I designed two styles of space in this pub, once is private which mean low bright light and public is brighter. And also I choose different style of seats for two kind of spaces. It will give customers have more options to seat and enjoy."

SKETCHUP

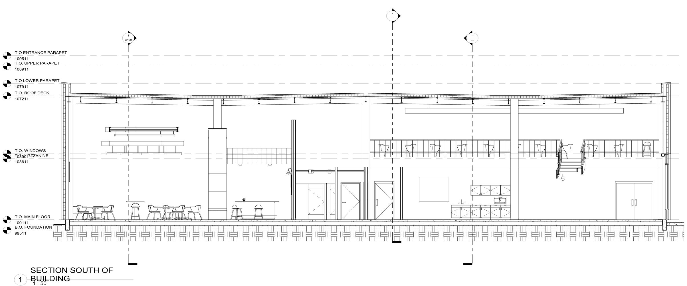
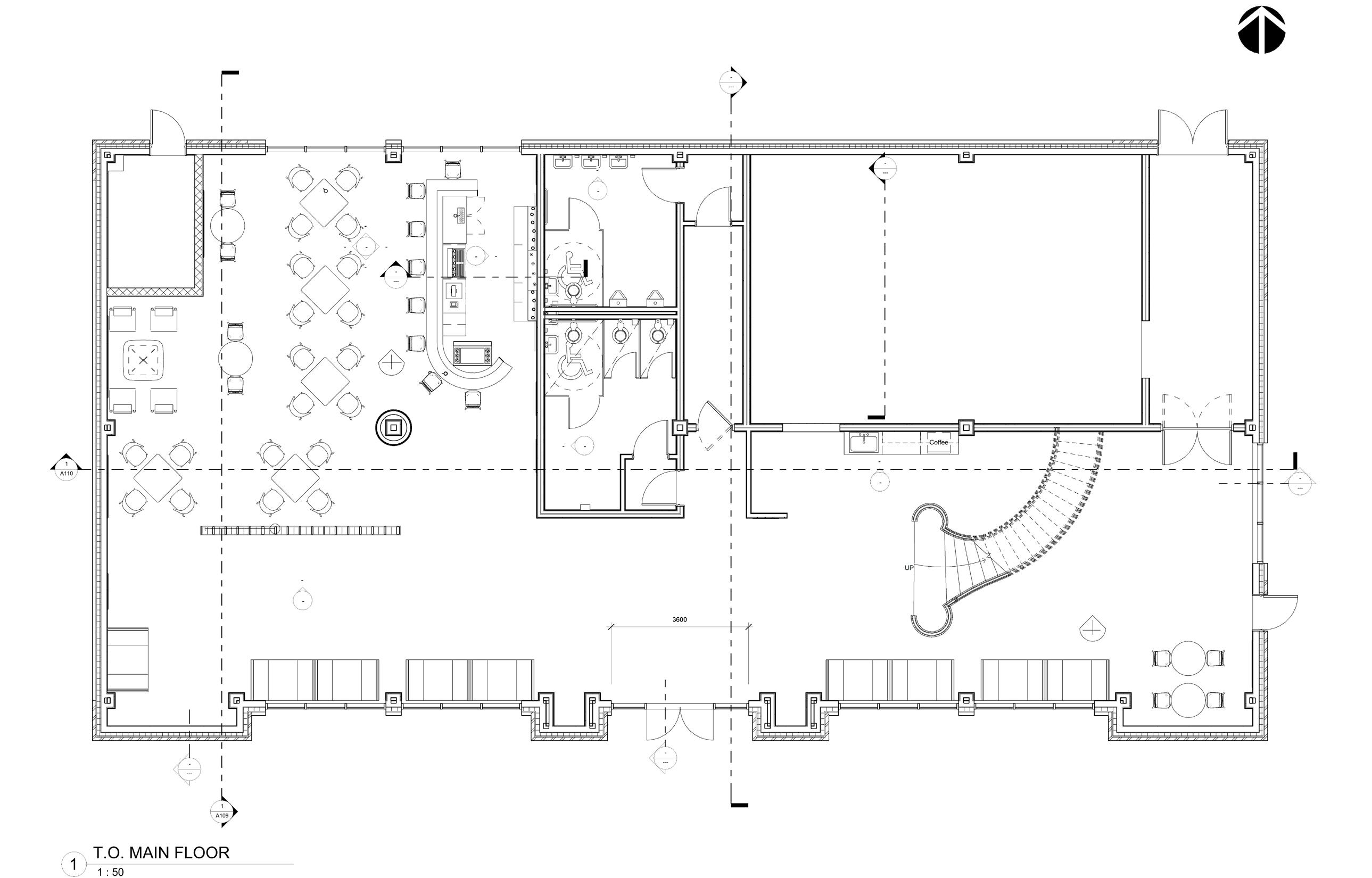
R E V I T

"Blue Parrot pub" I designed through Revit. I built up the pub base from plan view, after I completed raw building, I started to render exterior of the building, and then I continued to interior of the pub. After fnished this project I achieved many technic to use Revit and improved to use took.

ACADEMIC 2020-2023

THANG LAM INTERIOR TECHNOLOGIST

Turn static files into dynamic content formats.

Create a flipbook
Issuu converts static files into: digital portfolios, online yearbooks, online catalogs, digital photo albums and more. Sign up and create your flipbook.