Part 1 Architecture Graduate Portfolio - Thanabodi Muangmoree

Page 1

PORTFOLIO

Part I Architecture Graduate

Selected works

2019 - 2023

Thanabodi Muangmoree

HeartofTempleMeads

Year3DesignStudioProject

2023

WaterCultureBuilding

Year2DesignStudioProject(4)

2022 HousingProject

Year2DesignStudioProject(2)

2022

SelectedWorks

Year1DesignStudioandYear2DesignRepresentation(Revit)

2021-2022

FreelanceGraphicWork&Art

FreelanceworkandDigitalArt

2019-Present

ThanabodiMuangmoree

Thai 07490225303

tommthanabodi@gmail.com

www.linkedin.com/in/thanabodi-m

ArecentArchitecturePart1BSc(Hons)graduatefromtherenowned UniversityoftheWestofEngland(Bristol).Highlyinterestedindesign andtechnologywithapassionforthecreativearts.

MyambitioninArchitecturehasalwaysbeendrivenbyaharmonious blendoffunctionalityandbeauty.Iampassionateaboutcreating spacesthatnotonlyenablehumanstothrivebutalsomakea profoundstatementaboutourenvironmentandthefuture.

SoftwareSkills

AutoCAD

AdobePhotoshop

AdobeIllustrator

AdobeIndesign

AffinityPhoto

Revit

Sketchup

Twinmotion

Model

2
01 02
Contents
03 04 05
Making | Painting | DigitalArt | Sketching Language English

HeartofTempleMeads

Year3DesignStudioProject

2023

Fortheyear3designstudioproject,our objectivewastocreateanexceptionalpiece ofarchitecturethatnotonlyaddressedfour specificsustainabledevelopmentgoalsbut alsoembracedthethemeofbiologic architecture.

Introducing"TheHeartofTempleMeads,"a versatilefoodcourtsituatedinBristolTemple Meads'QuarterDistrict.Thisremarkable buildinghasbeenmeticulouslydesignedto fosteravibrantsocialenvironmentwhile promotingtheconsumptionofhealthy, nourishingfood.

Ourprimarygoalthroughoutthisprojectwas tocultivateaprofoundcomprehensionof biologicarchitectureandapplyittothe creationofafunctionalstructurethat embodiessustainabilityandenvironmental friendliness.

3
01

SiteAnalysis

StudyoftheTempleMeadsSite

SunPath&WindDirection

Byunderstandingthesunlightandwind conditionsofthesite,wecancreatedesigns thatoptimisenaturallightandcontributeto sustainableandenergy-efficientbuilding solutions.Byrecognisingthesite'slimitations andmaximisingitspotential,wecancreatea morebalancedandfunctionalspacethat benefitsbothvisitorsandtheenvironment.

Wind Direction

Noise Caused by Wind

Wind from River Current X

4 06:00AM 12:00PM 06:00PM
01

IndoorStructures

IndoorSocialSpaces

ExposedAgricultureSpaces

IndoorAgricultureSpaces

FloorConcepts

GroundFloortoSecondFloordesign concepts

multiple

ample

GroundFloor FirstFloor SecondFloor GroundFloor FirstFloor SecondFloor 5 01
Thisillustrationexploresintothelayering conceptofthebuilding'sshape.By incorporating openings,thedesign allowsfornaturalairventilationand sunlighttoreachthebuilding'score.
Floorplan Elevation PlanLayers NaturalVentilation NaturalSunlight BuildingCore Layering LayersVolume ExteriorStructure Agriculture
6 01 Manifesto

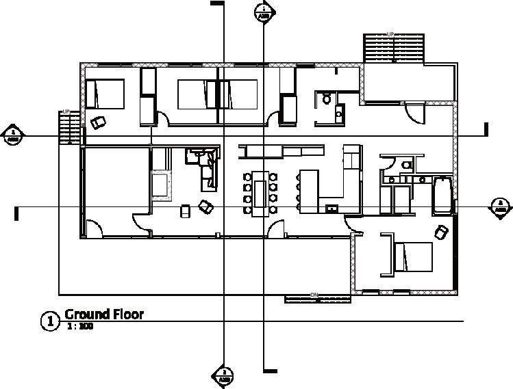
(A)ServiceCorridor

(B)BoilerRoom

(C)CleaningRooms

(D)KitchenSpaces

(E)PublicToilets

(F)DisabledToilets

(G)Stockroom

FloorPlans

GroundFloortoSecondFloorplans

Spaces(KEY)

(H)RetailSpace

(I)WorkshopsSpaces

(J)PrivateAgricultureSpaces

(K)RooftopGreenhouse

(L)OutdoorPrivateFarm

(M)SeatingStaircase

(N)PlantStorageRoom

(O)Staircases

(P)ServiceStaircases

(Q)PublicElevators

(R)ServiceElevator

(S)DeliveryServiceYard

(T)RiverPumpRoom

(U)RooftopTerrace

7 01

Elevations

8 01
5m North
5m West
5m South-East
5m
North-EastElevation
Elevation
Elevation
Elevation

Sections

(A)1:100NESection 5m Indooropenverticalfarm RooftopTerrace ServiceLift 9 01 (B)1:100NSection 5m SecondFloorSeating Area FirstFloor Indoor Farm Kitchen SeatingStaircase RooftopGreenhouse Ground Floor Seating Area GroundFloor CentralSeating Area

HardwoodFlooring

GlulamTimber

Plyboard

DoubleGlazedWindow

NaturalStoneSlab Flooring

GreyQuartisBricks

AACBlock

LifecycleDesign

1:20detailedfacade

Theselectionofmaterialsforthebuilding's facadehasbeenthoughtfullyconsideredto prioritisebothlowembodiedcarbonand durability,ensuringalong-lastingstructure thatcanwithstandthetestoftime.

m2k

Brick AACBlock0.16m2k/w

m2k Plasterboard0.21m2k/w

RockwoolInsulation VaporControlMembrane 0.02m2k/w RockwoolInsulation 0.035m2k/w

m2k

10 01
Quartis
0.77
/w BreatherMembrane0.45
/w Plywood0.13
HardcoreFill InsituConcrete /w

SecondFloor

FloorLayers

FirstFloor

GroundFloor

SecondFloor

FirstFloor

GroundFloor

11 01
Roof ExteriorGlulam TimberSupport Anexplodedisometricviewofthebuilding, featuringitsvariousfloorsandfurniturewithin thefoodcourt.Thecentralspacesofthe buildingaredesignedtoallownaturallightto penetrateintothecore,creatingabrightand welcomingatmosphere. Isometricillustration

TwinmotionRenders

InteriorSpaces

12 01

WaterCultureBuilding

Year2DesignStudioProject(4)

2022

Inoursecond-yearproject,wewereassigned theexcitingtaskofdesigningawaterculture leisurecentrethatseamlesslyintegrateswith thebeautifulAvonRiver.Ourproject's overarchingambitionistocraftabuilding thatoffersaharmoniousblendofrelaxation, work,andleisureopportunities.

Withthisdesign,theaimistocreateaspace whereindividualscanindulgeinvarious activitieswhileenjoyingthesereneambiance oftheriver.Theleisurecentrewillprovidea versatileenvironmentthatcaterstotheneeds ofbothrelaxationseekersandthoseseeking productiveworkspaces.

13 02

FloorLayers IsometricIllustration

Byintegratinggreenroofsandgreenwalls intotheproject,thisenhanceits environmentalimpactandpromoteagreener andmoresustainableapproach.These naturalelementsnotonlyaddbeautyand vibrancytothestructurebutalsoprovide numerousbenefitstotheecosystem.

Theinclusionofgreenroofshelpstoinsulate thebuilding,reduceenergyconsumption,and mitigatestormwaterrunoff.Italsocreates additionalspaceforvegetation,allowingfor thegrowthofplantsthatcontributetoair purificationandbiodiversity.

14 02
Waterflowdirection

FloorPlans

Reception-Desk

Reception-Arrival

Cafe

Kitchen Shop Fitness

2Smallgroup,activitysuite

Swimmerschangingroom,fitnesschangingroom

Saunaroom

Flexibleeventspace

Workshopsuite

Toilet

Smallsensoryroom

Mentalhealthpods

Storageroom

Cleanersroom

Quitewellbeingsuite

Stairs

Elevator Officespaces

Indoorvegetation

15 2000mm 10000mm 02
toSecondFloorplans SecondFloor FirstFloor GroundFloor
GroundFloor

SiteAnalysis

Sun-path&Winddirection

16 02

Elevations

17 02
SouthElevation EastElevation WestElevation NorthElevation

GroundFloorPlans

TwinmotionRenders

VisualExperience

18 02
19 02

HousingProject

Year2DesignStudioProject(2)

2022

Theobjectiveofthisdesignstudioprojectwas tocreatearesidentialcommunityspace specificallytailoredtoaccommodateretired elderlyusersthathaveanathletic background.Theprojectaimistoaddress accessibilitychallengeswhileseamlessly integratingsocialspacesforaholisticand inclusiveenvironment.

Thesiteissituatedonaslopedhill,presenting auniquechallengeofdesigningastructure thatharmoniouslyembracestheterrain.The slopednatureofthesiteservedasbothan opportunityandaconstraint,inspiringusto developadesignthatseamlesslyintegrates withthenaturaltopography.

Thegoalwastocreateacohesiveand visuallyappealingarchitecturalsolutionthat notonlyrespectstheexistingslopebutalso maximisesitspotential.

20 03

UnderstandingtheSite

SaltfordMarina,Bristol

Thesiteanalysisforthisprojectprovidesa comprehensiveunderstandingofkeyfactors suchasthesun-path,winddirection,site orientation,andviewpoints,whichplaycrucial rolesinshapingthedesign.

Byexaminingthesun-path,wegainedinsights intothemovementandintensityofsunlight throughoutthedayandacrossdifferent seasons.Thisinformationallowedusto optimisetheplacementandorientationof windows,openings,andshadingdevices, ensuringoptimaldaylighting,energy efficiency,andacomfortableindoor environment.

10000mm 21 03 Morningsunlight Riverwaterflow direction Afternoonsunlight Eveningsunlight Westwind direction Treeline 10000mm

HousingUnitsand CommunityHub

Elevations

• Housingunit1

• Housingunit2

• Housingunit3

• CommunityHub

• LaundryandKitchenRoom

22 03
Elevation(A) (A) (B) Elevation(B)

HousingUnitOne

FloorPlans&Elevations

Thishousingunithasbeenthoughtfully designedtoaccommodateamaximumof2-3 people,makingitidealforacoupleorasmall familyof3.

Thelayoutfeaturesaspaciouslivingarea withseamlessaccesstothekitchen, bathroom,andbothbedrooms. Recognisingtheimportanceofnaturallight, thedesignincludesstrategicallyplaced windowsinallroomstomaximisetheentryof sunlight.

23 03 1 2 3 4 5
NorthElevation SouthElevation EastElevation

StructureStrategy

HousingUnitOne

Onekeyobjectivewastoenableample sunlighttoentertheinteriorspace.Toachieve this,Iincorporatedaceilinghatchframethat allowsnaturallighttofilterthrough,fillingthe areabelowwithawarmandinvitingglow.This integrationofsunlightenhancestheoverall ambianceofthebuildingandcreatesa pleasantandupliftingatmosphereforits occupants.

24 03

EnvironmentalStrategy

HousingUnitTwo

Windowsfacilitatefreshaircirculation withinthebuilding,enablingaconstant flowoffreshair.Thisnaturalventilation systemutiliseswindowsonopposite sides,allowingairtoenterthroughone setandexitthroughtheother, particularlyeffectiveforcounteracting westwardwinds.

Rainwater

Allhousingunitsfeatureaqueenposttrussdesign,layeredwith waterprotectionmembraneandclaytileroof,ensuringadry interiorduringcoldandwetweather.Theslopedroofsfacilitate efficientrainwaterflowintotheexteriorpipelines.

Thetreelineinthesiteplanactsas anaturalwindbreak,effectively reducingwindstrengtharoundthe housingunits.

25 03 Morningsunrise Afternoonsunlight Eveningsunlight Treeline Aircirculationexit Aircirculation Naturalsunlight enteringbuilding Sunset Strongwind 1000mm Calmwind

TwinmotionRenders

26 03

Features:

• Toilet

• Sink

• CraftingArea

• Hammock

• Skyview

PlanDrawing1:50

SelectedWorks

Year1DesignStudioProject(3)

2021

Thefirst-yeardesignstudioprojecthighlights essentialdrawingskills,includingfloorplans andaxonometricperspectives.Itservesasa foundationfordevelopingarchitectural representationabilities.

27 04
AxonometricPlan1:50
N S E W
AxonometricDrawing

SelectedWorks

DesignRepresentation(Revit)

2022

3DmodellingstudyoftheLockeportBeach HousebyNovaTayonaArchitectsusingRevit, thismodulehasnotonlyintroducedmetothe Revitsoftwarebutalsoequippedmewith essentialskillsinutilisingitsfunctionalities.This RevitmodelwasnominatedfortheVirtualReality displaydegreeshow.

28 04

FreelanceGraphicDesign

DripPunchLtd

2019-Present

Ihavedesignedprofessional logos,labels,andadvertisements foralocalbeveragecompany.

Overthepastfouryears,Ihave forgedstrongconnectionswith thissmallcompanyandcultivated athrivingprofessionalrelationship withthem.

29 05
3DModellingonBlender
30 05 DigitalArt
ThanabodiMuangmoree tommthanabodi@gmail.com 07490225303 ThankYou!

Turn static files into dynamic content formats.

Create a flipbook
Issuu converts static files into: digital portfolios, online yearbooks, online catalogs, digital photo albums and more. Sign up and create your flipbook.