Skip to main content

Chevron Development Presentation_12.8.25 V2

Page 1


3555 W. Winnemucca Blvd., Winnemucca, NV 89445

Type of Project: Travel Plaza, Restaurant, Casino/Bar, Auto Gas

Canopies, Chevron Diesel Truck Stop, Starbucks

Estimated Annual Gallons: 1,800,000

Estimated Annual Diesel Gallons: 1,800,000

Estimated Annual C-Store Sales: $3,000,000

Status: Under Construction – Expected Opening Date 12/19/2025

IN FOR PERMITTING

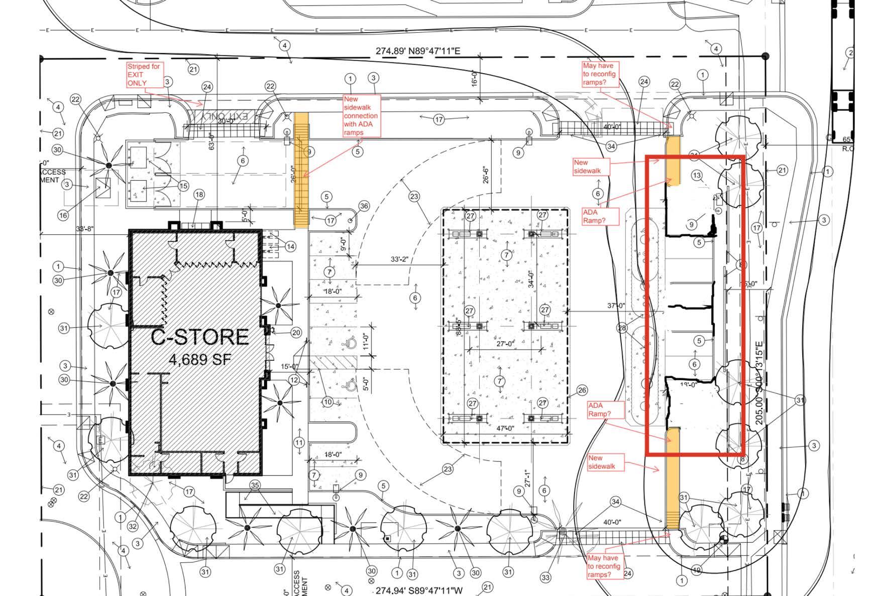
TH #452 Decatur & Windmill (SWC)

Las Vegas, NV

Type of Project: C-Store, Auto Gas Canopy, Car Wash

Estimated Annual Gallons: 1,200,000

Estimated Annual C-Store Sales: $1,600,000

Estimated Annual Car Wash Sales: $250,000

Status: Lease Executed - Landlord is gathering tenants for the development. Once they get tenants and secure financing, then our permits and the landlords civils are ready to be approved. Timing dependent on landlord financing. We have filed for all necessary extensions of time on permits.

TH #470 Decatur & Lone Mountain (NEC)

Las Vegas, NV

Type of Project: C-Store, Auto Gas Canopy, Car Wash

Estimated Annual Gallons: 1,200,000

Estimated Annual C-Store Sales: $1,600,000

Estimated Annual Car Wash Sales: $250,000

Status: Waiting on civil to inform us of next round of comments. Most likely will have building plans submitting second week of December.

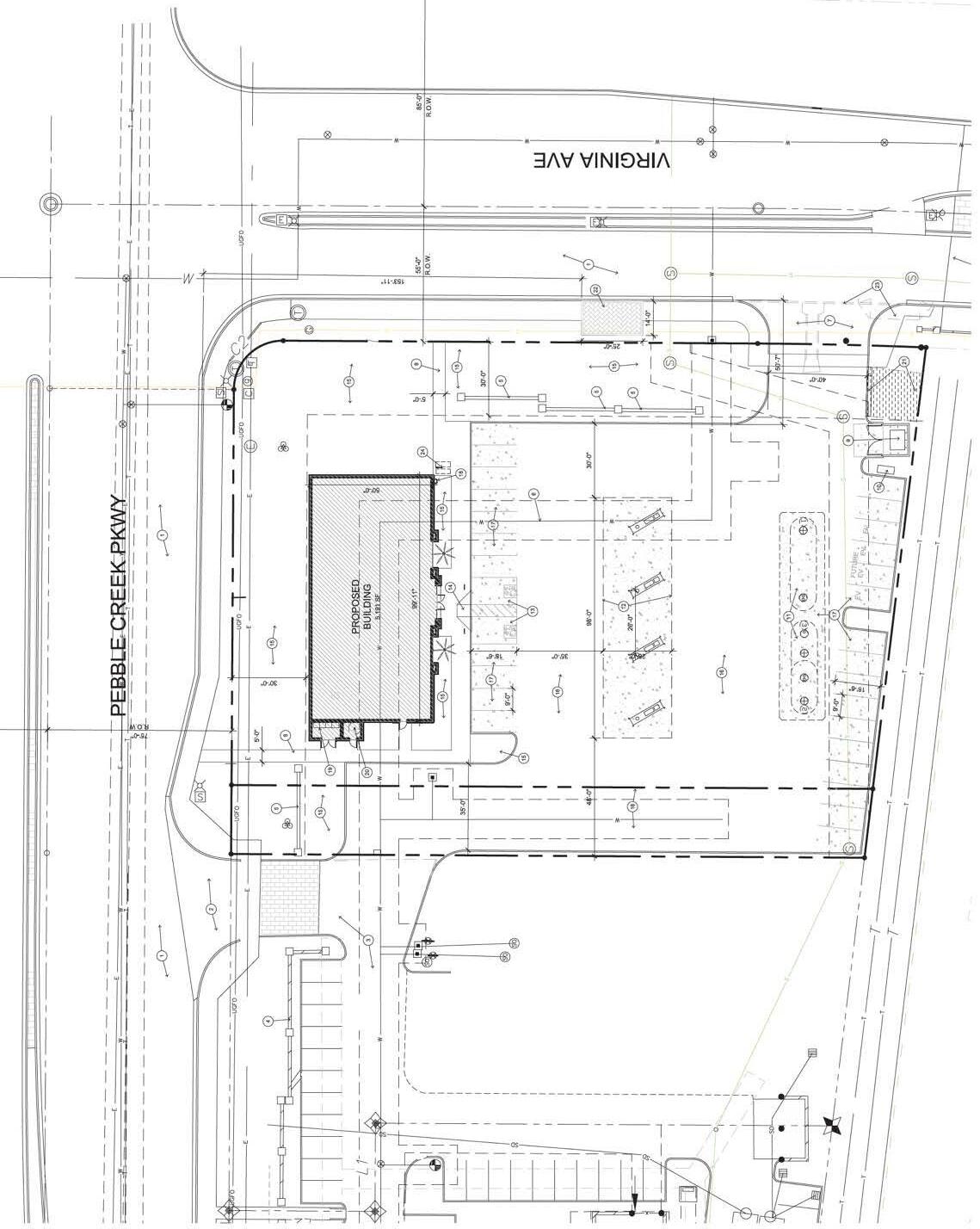
#459 Pebble Creek & Virginia (SEC)

Goodyear, AZ

Type of Project: C-Store, Auto Gas Canopy

Estimated Annual Gallons: 1,800,000

Estimated Annual C-Store Sales: $2,000,000

Status: Architect plans on submitting CDs to the building department first week of December.

CONSTRUCTION DOCUMENTS BEING ENGINEERED

#471 Porter & Bowlin (SEC)

Maricopa, AZ

Type of Project: C-Store, Auto Gas Canopy, Car Wash

Estimated Annual Gallons: 2,400,000

Estimated Annual C-Store Sales: $2,627,772

Estimated Annual Car Wash Sales: $432,000

Status: Uses approved and we closed on the purchase of the property. In for site plan approval and should be receiving comments here soon. We got started on gathering consultants plans that will be needed for CD submittal.

TH #468 Gantzel & Bella Vista (SEC)

San Tan Valley, AZ

Type of Project: C-Store, Auto Gas Canopy, Car Wash

Estimated Annual Gallons: 2,160,000

Estimated Annual C-Store Sales: $2,500,000

Estimated Annual Car Wash Sales: $250,000

Status: Submitted SUB1 review for site plan approval. Meanwhile, requested foodservice plans, car wash plans, sign package plans, canopy plans, etc. so that the architect can then take those plans and share with MEP consultants for the full set of CDs.

TH #458 Lower Buckeye & 83rd (SEC)

Phoenix, AZ

Type of Project: C-Store, Auto Gas Canopy, Car Wash

Estimated Annual Gallons: 2,400,000

Estimated Annual C-Store Sales: $2,600,000

Estimated Annual Car Wash Sales: $250,000

Status: Waiting for landlord to share CAD file of civil so our engineers can use the base file and then prepare our onsite work and submit those plans for Site Plan Approval. Meanwhile we are gathering required foodservice and car wash plans that the architect will need for CDs.

TH #467 Porter & Honeycutt (SWC)

Maricopa, AZ

Type of Project: C-Store and Auto Gas Canopy

Estimated Annual Gallons: 1,800,000

Estimated Annual C-Store Sales: $2,300,000

Status: Zone change was approved and we are scheduled to close escrow on Monday 12/8/25 with Chevron funding expected the week of 12/1/25. Site plan is in review with the city.

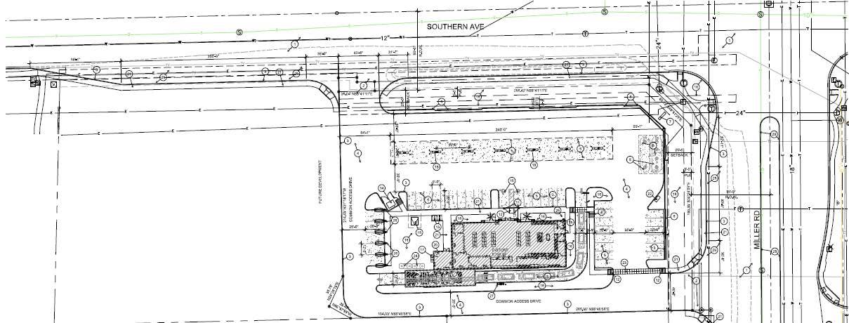
TH #466 Miller & Southern (SWC)

Buckeye, AZ

Type of Project: C-Store, Auto Gas Canopy, and Car Wash

Estimated Annual Gallons: 2,400,000

Estimated Annual C-Store Sales: $2,600,000

Estimated Annual Car Wash Sales: $250,000

Status: Escrow was extended and our architect resubmitted. Most delays were due to city traffic engineer comments. Site plan is in review with the city.

ENTITLEMENTS

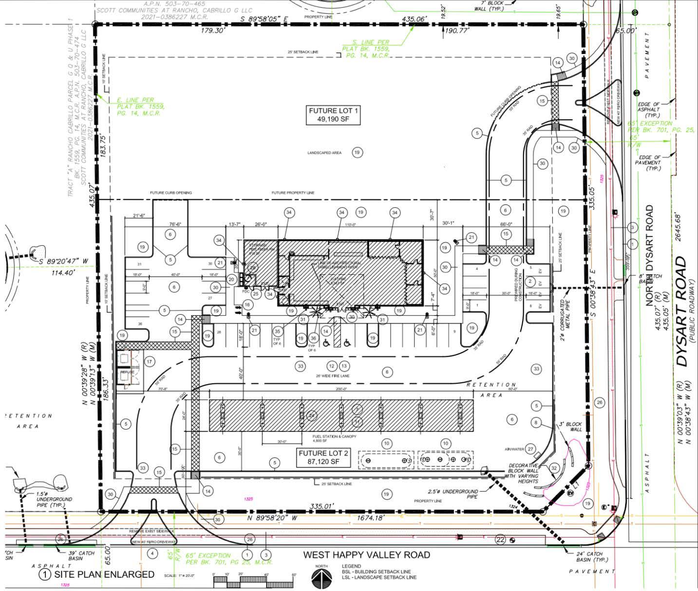
Happy Valley & Dysart (NWC)

Peoria, AZ

Type of Project: C-Store, Auto Gas Canopy

Estimated Annual Gallons: 2,400,000

Estimated Annual C-Store Sales: $2,600,000

Status: Site plan is in review with the city.

Gary & Skyline (NWC)

San Tan Valley, AZ

Type of Project: C-Store, Auto Gas Canopy, and Car Wash

Estimated Annual Gallons: 1,500,000

Estimated Annual C-Store Sales: $2,100,000

Estimated Annual Car Wash Sales: $250,000

Status: Our project is on hold until the Developer gets further along with their multi-family rezone component of the project. Developer has made their rezone submittal with the county; they are waiting to receive 1st round comments.

Happy Valley & 163rd Ave (SEC)

Surprise, AZ

Type of Project: C-Store, Auto Gas Canopy, Car Wash

Estimated Annual Gallons: 2,160,000

Estimated Annual C-Store Sales: $2,400,000

Estimated Annual Car Wash Sales: $250,000

Status: Property owner is coordinating with the flood control district regarding their flood plain use permit for the entire site. Once that is resolved, the Seller can proceed with their CLOMR application to FEMA for their review. Seller also working to complete the rezone efforts for this project as well.

Crismon & Hampton

Mesa, AZ

Type of Project: C-Store, Auto Gas Canopy

Estimated Annual Gallons: 2,220,000

Estimated Annual C-Store Sales: $2,400,000

Status: Site plan, use permit, and design review submittals all have been made to the city. We have a meeting with the city on 12/8 to discuss the project.

Elliot & 59th (NEC)

Pheonix, AZ

Type of Project: C-Store, Auto Gas Canopy, Car Wash

Estimated Annual Gallons: 2,280,000

Estimated Annual C-Store Sales: $2,573,220

Estimated Annual Car Wash Sales: $250,000

Status: Recently completed our pre app meeting with the city. We will be kicking off due diligence reports soon working towards our site plan submittal.

Hunt Hwy & Merrill (SWC)

Florence, AZ

Type of Project: C-Store, Auto Gas Canopy, Car Wash

Estimated Annual Gallons: 2,400,000

Estimated Annual C-Store Sales: $2,600,000

Estimated Annual Car Wash Sales: $250,000

Status: Project has been at a standstill with the property owner responsible for completing the pre plat requirements for the entire 18-acre site. The city will not allow us to proceed with just our 2acre site.

Ocotillo & Schnepf (NWC)

Queen Creek, AZ

Type of Project: C-Store, Auto Gas Canopy, Car Wash

Estimated Annual Gallons: 2,400,000

Estimated Annual C-Store Sales: $2,627,772

Estimated Annual Car Wash Sales: $432,000

Status: We are coordinating with the local irrigation district and a civil engineering firm to obtain preliminary approvals of our site plan before making our rezone submittal to the county.

Cotton & Cactus (NEC)

Surprise, AZ

Type of Project: C-Store, Auto Gas Canopy, Car Wash

Estimated Annual Gallons: 2,040,000

Estimated Annual C-Store Sales: $2,464,116

Estimated Annual Car Wash Sales: $367,000

Status: Developer working to wrap up their offsite improvement plans with the city for the entire development. We are working to finalize our lease.

107th & Broadway

Surprise, AZ

Type of Project: C-Store, Auto Gas Canopy, Car Wash

Estimated Annual Gallons: 2,280,000

Estimated Annual C-Store Sales: $2,520,000

Estimated Annual Car Wash Sales: $250,000

Status: Pre app meeting with city scheduled for 12/3.

Pima & Dynamite (NWC)

Scottsdale, AZ

Type of Project: C-Store, Auto Gas Canopy

Estimated Annual Gallons: 1,600,000

Estimated Annual C-Store Sales: $2,100,000

Status: Entitlements have been approved. Finalizing construction documents.

Wickenburg

Wickenburg, AZ

Type of Project: C-Store, Auto Gas Canopy

Estimated Annual Gallons: 1,440,000

Estimated Annual C-Store Sales: $1,440,000

Status: Working on finalizing civil plans, landscape, photometrics and other required documents for the technical review with the city. Should have those submitted by first week of December.

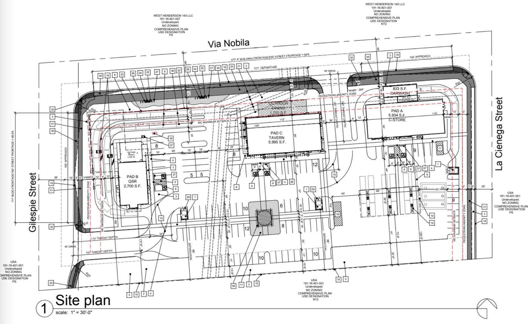
TH #455 Via Nobila & Gilespie (SEC)

Henderson, NV

Type of Project: C-Store, Auto Gas Canopy, Car Wash, Tavern & QSR

Estimated Annual Gallons: 1,440,000

Estimated Annual C-Store Sales: $1,900,000

Estimated Annual Car Wash Sales: $250,000

Status: Received entitlement approval on all our uses. We have two years till expiration.

FUTURE SITES

o Skye Canyon & I-11

LOI SUBMISSIONS

o Camelback & Citrus – Goodyear, AZ

o 27th & Southern (NEC) – Pheonix, AZ

o Warm Springs & Gilespie – Las Vegas, NV

o Meridian & Germann (SEC) – Queen Creek, AZ

o Ellsworth & Germann (NEC) – Queen Creek, AZ

o 83rd Ave & Roosevelt (NEC) – Tolleson, AZ

o Sun Valley Pkwy & Tartesso (SWC) – Buckeye, AZ

o Cottonwood & Peart (SWC) – Casa Grande, AZ

o Riggs & Sun Lake Blvd (NWC) – Sun Lakes, AZ

Turn static files into dynamic content formats.

Create a flipbook
Chevron Development Presentation_12.8.25 V2 by Terrible's - Issuu