CHEVRON DEVELOPMENT PRESENTATION
Monday, August 28, 2025



![]()
Monday, August 28, 2025



OPEN /UNDER
AWAITINGSTART OF CONSTRUCTION
IN FORPERMITTING
CONSTRUCTION DOCUMENTSBEINGENGINEERED
ENTITLEMENTSTAGE
FUTURESITES
ANALYTICS
CHEVRONDIESEL DISCUSSION
CHEVRONPRICINGDISCUSSION





1. TH#401 Cedar City –opened2/14/2025
2. TH#392I-15 LVB SEC –opened5/23/2025
3. TH#463FabulousFreddy’s: 1101 S. Fort ApacheRd.
4. TH#464 Fabulous Freddy’s: 9611 TrailwoodDr.
5. TH#465 Fabulous Freddy’s: 4350 S. DurangoDr
6. TH#446 Winnemucca – expected opening date11/15/2025
7. TH#443Parowan Exit 78 – expected opening date11/1/2025
8. TH#398 Cheyenne & Bucyrus –expected opening date10/31/2025
9. TH#456 23rd andNorthern–expected opening date1/31/2025





1. TH#408 LVBand Carey
2. TH#45771st andOlive
3. TH#451 ParowanExit 75
4. TH#445 Littlefield, AZ





1. TH#452 Decatur & Windmill
2. TH#404 Sunset & Quarterhorse






1. TH#470Decatur & LoneMountain 2. TH#458 Lower Buckeye & 83rd
3. TH#468 Gantzel & Bella Vista
4. TH#471 Porter & Bowlin
5. Pima& Dynamite




Maricopa,AZ

TypeofProject:C-Store, Car Wash
EstimatedAnnualGallons:2,000,000
EstimatedAnnualC-StoreSales:2,200,000
EstimatedAnnualCarWashSales:250,000
Status: Uses andrezone are nowapproved. We are moving forward with design review /siteplan approval now. Expectingthat in 1-2 months. Then wecan moveforwardwith full CDs.











1. TH#459 Pebble Creek & Virginia 2. TH#423Halloran Summit 3. TH#455 Via Nobila & Gilespie
Gary & Skyline 5. TH#467 Porter & Honeycutt
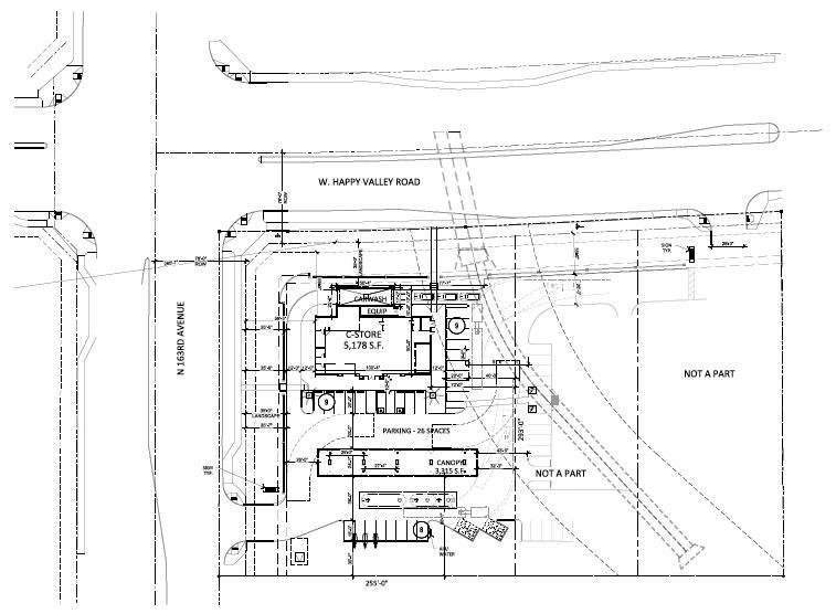
TH#469 Litchfield and Sweetwater 7. TH#466 Miller & Southern 8. Hunt Hwy & Merrill 9. Happy Valley& 163rd
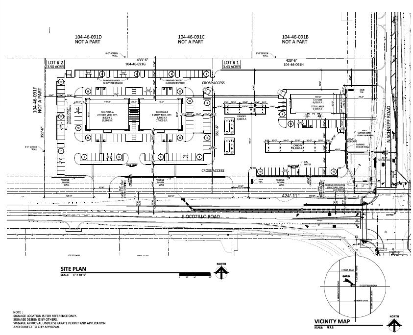
Ocotillo& Schnepf
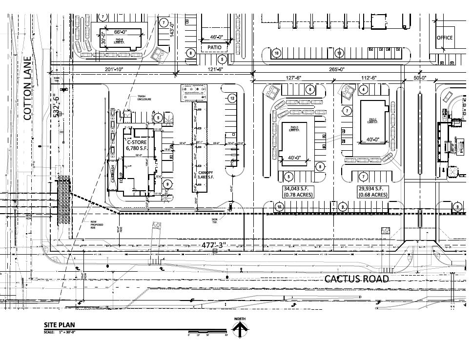
Cotton& Cactus
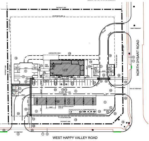
Happy Valleyand Dysart
107th andBroadway





TypeofProject:C-store, Car Wash
EstimatedAnnualGallons:1,800,000
EstimatedAnnualC-StoreSales:1,600,000
EstimatedAnnualCarWashSales:250,000
Status: Seller’steamis targeting a2nd site plan submittal date to city on 8/5. Seller’steamworking through flood plain permit and CLOMR issueson site. Seller is responsible for obtaining theuse permitfor the entire site.









Creek,AZ

TypeofProject:C-Store
EstimatedAnnualGallons:1,650,000
EstimatedAnnualC-StoreSales:1,500,000
Status:Completedneighborhood meeting on6/9. Hada goodfollow up meeting with Supervisor Goodman to discussneighbor outrage andlikelihood of receiving favorable votesif we proceed with rezone efforts. Team is comfortable moving forward withrezone. Currently obtainingproposalsfor our trafficstudy andcivil groupto work towardsour rezone submittal. Also workingwith thelocal irrigation district to understand the scopeof workinvolved with obtaining approvals.










TypeofProject:C-Store, Car Wash
EstimatedAnnualGallons:1,800,000
EstimatedAnnualC-StoreSales:1,600,000
EstimatedAnnualCarWashSales:250,000
Status:Landlord and Developer are running point on offsites for entire development. Landlord is currently in for 2nd review with city. We are workingto get site under contract. Once under contract,wewill engagea civil group to better understand theflood plain permitissue on our site with the county flood control district.









AZ

TypeofProject:Car Wash
EstimatedAnnualGallons:1,650,000
EstimatedAnnualC-StoreSales:1,500,000
Status:Leaseexecuted on7/21. We re-engaged our Architect on7/22 to pickproject back upand get siteplans drafted. Once siteplans are finalized,wewillsubmitfor apreappwith the county.










TypeofProject:C-Store, Car Wash
EstimatedAnnualGallons:1,800,000
EstimatedAnnualC-StoreSales:1,700,000
EstimatedAnnualCarWashSales:250,000
Status:Engaged Architect on 7/18,requested initial siteplan. Working through siteplan revisions, will obtain Landlord’sfeedback, andthen need to coordinatewith our neighbor to the north (O’Reily’s) andfilea preappmeeting with the city.










TypeofProject:C-Store
EstimatedAnnualGallons:1,500,000
EstimatedAnnualC-StoreSales:1,500,000
Status:Requested proposal fromArchitecton7/21. Workingonan initialsite plan.








1. Wickenburg,AZ - No Address Yet
2. Wells,NV– No Address Yet
3. Revereand CC-215(NEC)–North LasVegas,NV
4. Hunt Hwy & Spring Valley – No Address Yet
5. Crimson & Hampton - No Address Yet
6. Lindsay& Pecos- No Address Yet
7. Tartesso& Sun Valley Pkwy (SWC) – Buckeye, AZ
8. Ellsworth & Germann (NEC) – Queen Creek,AZ
9. Meridian & Germann (SEC) – Queen Creek,AZ
10. Elliot& 59th Ave (NEC) –Laveen, AZ






































