



![]()







jouw



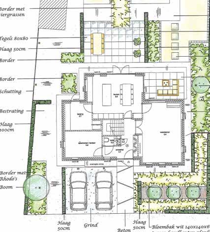
ROSCO is dé doe-het-zelf tuinformule voor iedereen die een mooie tuin wil en niet te veel wil betalen. Wij hebben alles onder één dak.
Inspiratie is waar het begint. Eerst bepaalt u zelf welke richting u op gaat. Onze KompasKamers helpen u daarbij. Het is de modernste showroom van Nederland waarin u allerlei tuinsferen en -stijlen in het echt beleeft. Zowel binnen als buiten wordt u hierin meegenomen. Zo weet u precies wat u kiest. Handig toch?
Aan de hand van een tuinscan die u samen met één van onze vakspecialisten invult en het doorlopen van onze KompasKamer verzamelen wij al uw wensen.
Vervolgens kunnen onze tuinontwerpers met deze informatie aan de slag! Hierdoor krijgt u een
Ontdek jouw smaak in onze KompasKamer
Goormatenweg 6
Overdinkel
tuinontwerp volledig naar eigen wens en stijl. Dit vormt de basis voor een prachtige tuin!
Heeft u al een tuinontwerp? U kunt ook alleen langskomen voor onze producten. Alle producten die u nodig hebt voor uw droomtuin kunnen wij voor een zeer scherp tarief leveren. Dankzij onze ruime ervaring in de tuinwereld helpen we u op weg om de juiste keuze te maken in ons ruime assortiment aan producten.
Steekt u vervolgens graag zelf de handen uit de mouwen? Gaat u de aanleg van de tuin aan met hulp van familie en vrienden? Of laat u uw droomtuin liever aanleggen door een zzp ‘ er/hoveniersbedrijf?
Alles is mogelijk!
‘ROSCO DE tuinoplossing voor de toekomst’
U wilt graag met uw tuin bezig maar u heeft inspiratie nodig? Kom dan langs in onze kompaskamers en wij vinden samen de weg naar uw droomtuin!
We beginnen met een tuinscan waarin uw persoonlijke wensen en eisen naar voren komen. Daarna maken we samen een ronde door onze showtuinen waarin we verschillende tuinsferen – tuinstijlen bekijken om u te inspireren en te laten zien wat er allemaal mogelijk is. U kunt in onze showroomtuinen zowel binnen als buiten de tuinen met al uw zintuigen ervaren.
Kom langs en ervaar het zelf!





Aan de hand van de ingevulde tuinscan gaan onze tuinontwerpers aan de slag om een tuinontwerp te maken waarin uw persoonlijke wensen en eisen zijn verwerkt.
Een 2D tuinontwerp op schaal is de basis om te beginnen met de aanleg van uw tuin.
Wilt u graag een nog uitgebreider beeld van uw tuin dan is het ook mogelijk een 3D ontwerp of zelfs een film te laten maken!
Extra uitbreidingen op een tuinontwerp zijn:
• Beplantingsplan
• Verlichtingsplan
• Beregeningsplan
• Kabel- en leidingsplann






Bent u al klaar voor de aanleg van de tuin? Kom dan langs om het brede assortiment aan tuinproducten bij ons op locatie te bekijken en te ervaren! Onze vakspecialisten kunnen u goed adviseren en maken gebruik van de beste kwaliteit producten. Dat alles tegen een zeer scherp tarief. Hieronder een greep uit ons assortiment:
• Straatwerk
• Klinkers, beton en gebakken
• Tegels, beton, keramisch, geoceramica
• Gazon
• Kunstgras in diverse soorten
• Graszoden / Graszaad
• Beregeningsinstallatie
• Verlichting
• Tuinverlichting 12 volt
• Tuinverlichting 230 volt
• Bemesting
• Gazonbemesting
• Borderbemesting
• Beplanting
• Alle soorten beplanting wat in een tuin voor komt kan besteld worden; Bomen, heesters, vaste planten, klimplanten etc.
• Kunstplanten
• Bloembakken/potten
• Unieke soorten bloembakken en potten
• Waterornamenten
• Diverse overige tuinproducten


GeoCeramica entree flow taupe

“Met deze tuin vier je iedere dag vakantie thuis!”
- Dee van der Zeeuw















1. Siertegels keramiek
2. Siertegels beton & natuursteen
3. Sierbestrating beton & natuursteen
4. Sierbestrating gebakken
5. Muur- en stapelelementen
6. Kantopsluitingen
7. Grind, split & ondergrond
8. Buitenverlichting
9. Tuininrichting
10. Toebehoren
11. Composiet schermen & terrasplanken Bamboe terrasplanken Gevelbekleding
12. Tuinhout
13. Buitenverblijven & terrasoverkappingen 14. Verkoopinformatie

terras & trends collectie
Avatar
Baltramica
Baltramica Specials
Luxury
Skyline
GeoCeramica Pointer
Baltico
Bresscia
Filo
Ipanema
Rappalano
Surface
GeoCeramica Starter
Aura
Meso
Palanta Plus
Quartzstone
Tempo
Uros Plus
GeoCeramica Entrée
Ambiente
BB Stone
Flow
Stone Select
GeoCeramica Pure
Ambiente Flower
Aspen
Brooklyn
Chateaux
Cherrie
Concreet
Concreet Flower
Cosi Style
Decor Liefs
Design Mosaik
Dijon
Di Travertino
Eiken
Elios Decoro
Evoque
Facewood
Facewood Decor
Fiordi
Framework Concrete
Framework Stone
Fumato
Glocal
Grande Piazza
Heritage
Imola Azuma
Imperial
Landstone
Locarno
Marble
Marmony
Marmostone
Motion
Motley
Mundo
Must Mywood
Mywood Decora
Nyuma
Pietra Blu
Porto
Roccia
Saint Laurent
Steel 2.0
Symbol Block
The Rock Timber
Timeless
Vena
Vetro Concerto
Via Delle Alpi
Vision Tropic
GeoCeramica Premium
Solid
Terra
GeoCeramica 2drive
Ambiente 2Drive
BB Stone 2Drive
Flow 2Drive
Fiordi 2Drive
Timber 2Drive
Via delle Alpi 2Drive
GeoCeramica Specials
Exadeck
VT wonen
Solostone Decoren
Solostone Uni
Solostone 3.0 by Douglas & Jones
Piet Boon by Douglas & Jones
Ceramaxx keramische tegels 2 & 3 cm
Tegel & terras onderconstructie
Vloerdragers
terras trends
tuininspiratie

Kenmerken van keramiek
√ Onderhoudsvriendelijk
√ Kleurvast
√ Maatvast










Kenmerken van Keramiek
√ Onderhoudsvriendelijk
√ Kleurvast
√ Maatvast






tuininspiratie

Kenmerken van Baltramica
√ Onderhoudsvriendelijk
√ Eenvoudige verwerking
√ Kleurvast
√ Beschikbaar in meerdere kleuren en formaten






Belgian Grey
tuininspiratie terras trends

Kenmerken van Baltramica
√ Onderhoudsvriendelijk
√ Eenvoudige verwerking
√ Kleurvast
√ Beschikbaar in meerdere kleuren en formaten




Voegmiddelen

Beige
tuininspiratie

Kenmerken van Baltramica
√ Onderhoudsvriendelijk
√ Eenvoudige verwerking
√ Kleurvast
√ Beschikbaar in meerdere kleuren en formaten




Plus Dunia Grey

Kenmerken van Baltramica
√ Onderhoudsvriendelijk
√ Eenvoudige verwerking
√ Kleurvast
√ Beschikbaar in meerdere kleuren en formaten








Dit product combineert de voordelen van beton én keramiek. GeoCeramica® staat voor de combinatie van een keramische tegel op een nieuw ontwikkelde Stabikorn®-drager. Keramiek vertegenwoordigt de maximale voordelen in gebruik, Stabikorn® is eenvoudig verwerkbaar en in elke tuin toepasbaar.
Een droomterras, dat het jaar rond bruikbaar is, wordt hiermee voor iedereen bereikbaar.


Siertegels

1. PROTECTION PLUS
2.
4.
6.
8.
2. LICHT BELASTBAAR
3. GEMIDDELD BELASTBAAR
4. ZWAAR BELASTBAAR
5. EASY TO CLEAN
6. FOOTCOMFORT
7. BESCHIKBAAR IN 4 CM DIK
8. GRES PORCELLENATO
9. DIGITALE TOPLAAG
10. OP NATUURLIJKE KLEUR GESELECTEERDE GRANULATEN
GeoCeramica®, het beste van twee werelden. De combinatie van een keramische tegel op een sterke Stabikorn®-drager is uniek en revolutionair. Genieten van stijlvol keramiek met hoogwaardige eigenschappen, profiteren van de relatief eenvoudige en betaalbare verwerkingskosten van een betontegel. Het keramiek is onlosmakelijk verbonden (dankzij AquaFerm®) met de waterdoorvoerende Stabikorn®-laag met geïntegreerde afstandhouders. Hierdoor is plaatsing van deze sierbestrating makkelijk, snel en tegen relatief lage kosten in vergelijking tot normale keramische tegels.

Sandy Beach

Kenmerken van GeoCeramica
√ Onderhoudsvriendelijk
√ Eenvoudige verwerking
√ Kleurvast
√ Beschikbaar in meerdere kleuren en formaten
√ Hoge antislip








Kenmerken van GeoCeramica
√ Onderhoudsvriendelijk
√ Eenvoudige verwerking
√ Kleurvast
√ Beschikbaar in meerdere kleuren en formaten
√ Hoge antislip










Kenmerken van GeoCeramica
√ Onderhoudsvriendelijk
√ Eenvoudige verwerking
√ Kleurvast
√ Beschikbaar in meerdere kleuren en formaten
√ Hoge antislip








Sand

Kenmerken van GeoCeramica
√ Onderhoudsvriendelijk
√ Eenvoudige verwerking
√ Kleurvast
√ Beschikbaar in meerdere kleuren en formaten
√ Hoge antislip







Strakke stoere lijnen in jouw tuin. Materialen op pagina 255 t/m 262.








Kenmerken van GeoCeramica
√ Onderhoudsvriendelijk
√ Eenvoudige verwerking
√ Kleurvast
√ Beschikbaar in meerdere kleuren en formaten
√ Hoge antislip






Kenmerken van GeoCeramica
√ Onderhoudsvriendelijk
√ Eenvoudige verwerking
√ Kleurvast
√ Beschikbaar in meerdere kleuren en formaten
√ Hoge antislip









Kenmerken van GeoCeramica
√ Onderhoudsvriendelijk
√ Eenvoudige verwerking
√ Kleurvast
√ Beschikbaar in meerdere kleuren en formaten
√ Hoge antislip



Deze tegels zijn ook verkrijgbaar in 1 cm dikte.




Deze tegels zijn ook verkrijgbaar in 1 cm dikte.

Kenmerken van GeoCeramica
√ Onderhoudsvriendelijk
√ Eenvoudige verwerking
√ Kleurvast
√ Beschikbaar in meerdere kleuren en formaten
√ Hoge antislip


Prijs







Kenmerken van GeoCeramica
√ Onderhoudsvriendelijk
√ Eenvoudige verwerking
√ Kleurvast
√ Beschikbaar in meerdere kleuren en formaten
√ Hoge antislip








Beige

Kenmerken van GeoCeramica
√ Onderhoudsvriendelijk
√ Eenvoudige verwerking
√ Kleurvast
√ Beschikbaar in meerdere kleuren en formaten
√ Hoge antislip






Bazechoses

Kenmerken van GeoCeramica
√ Onderhoudsvriendelijk
√ Eenvoudige verwerking
√ Kleurvast
√ Beschikbaar in meerdere kleuren en formaten
√ Hoge antislip







Kenmerken van GeoCeramica
√ Onderhoudsvriendelijk
√ Eenvoudige verwerking
√ Kleurvast
√ Beschikbaar in meerdere kleuren en formaten
√ Hoge antislip









Kenmerken van GeoCeramica
√ Onderhoudsvriendelijk
√ Eenvoudige verwerking
√ Kleurvast
√ Beschikbaar in meerdere kleuren en formaten
√ Hoge antislip







Creëer een intieme sfeer én een schaduwrijke plek in je tuin. Materialen op pagina 344 t/m 347.

Kenmerken van GeoCeramica
√ Onderhoudsvriendelijk
√ Eenvoudige verwerking
√ Kleurvast
√ Beschikbaar in meerdere kleuren en formaten
√ Hoge antislip









Kenmerken van GeoCeramica
√ Onderhoudsvriendelijk
√ Eenvoudige verwerking
√ Kleurvast
√ Beschikbaar in meerdere kleuren en formaten
√ Hoge antislip






Plaats een schutting in de tuin voor privacy. Materialen op pagina 386 t/m 429.

Kenmerken van GeoCeramica
√ Onderhoudsvriendelijk
√ Eenvoudige verwerking
√ Kleurvast
√ Beschikbaar in meerdere kleuren en formaten
√ Hoge antislip







Basalt

Kenmerken van GeoCeramica
√ Onderhoudsvriendelijk
√ Eenvoudige verwerking
√ Kleurvast
√ Beschikbaar in meerdere kleuren en formaten
√ Hoge antislip
Prijs per m²
60x60x4 cm
€ 84,95
120x60x4 cm
€ 98,95
€ 98,95
60x60x4 cm
€ 84,95
€ 84,95
€ 84,95

Let op! Een tegel met de afmeting; 120x30x4 cm, 40x80x4 cm en 120x60x4 cm dient op 1/3 verband gelegd te worden. art.nr. 19570507


100x100x4 cm
€ 99,95
€ 99,95
€ 99,95



Om gelijkmatige, strakke voegen te creëren.. Materialen op pagina 353.
Scan de QR code voor actuele informatie.

Kenmerken van GeoCeramica
√ Onderhoudsvriendelijk
√ Eenvoudige verwerking
√ Kleurvast
√ Beschikbaar in meerdere kleuren en formaten
√ Hoge antislip








Kenmerken van GeoCeramica
√ Onderhoudsvriendelijk
√ Eenvoudige verwerking
√ Kleurvast
√ Beschikbaar in meerdere kleuren en formaten
√ Hoge antislip








Schots Eiken

Kenmerken van GeoCeramica
√ Onderhoudsvriendelijk
√ Eenvoudige verwerking
√ Kleurvast
√ Beschikbaar in meerdere kleuren en formaten
√ Hoge antislip





Grigio

Kenmerken van GeoCeramica
√ Onderhoudsvriendelijk
√ Eenvoudige verwerking
√ Kleurvast
√ Beschikbaar in meerdere kleuren en formaten
√ Hoge antislip
Nauwelijks te onderscheiden van natuurlijk quartz: Fiordi. Een serie vol gevarieerde texturen en kleuren. Door het mooie, licht-golvende profiel wordt lichtval onderbroken en ontstaat een intrigerend schaduweffect op uw terras. Nooit hetzelfde, nooit saai, maar blijvend mooi en speels. De serie Fiordi is er ook in een speciale 2 Drive’ (6 cm) variant.






Voor de meest sfeervolle buitenavonden. Materialen op pagina 297 t/m 313.

Kenmerken van GeoCeramica
√ Onderhoudsvriendelijk
√ Eenvoudige verwerking
√ Kleurvast
√ Beschikbaar in meerdere kleuren en formaten
√ Hoge antislip







Kenmerken van GeoCeramica
√ Onderhoudsvriendelijk
√ Eenvoudige verwerking
√ Kleurvast
√ Beschikbaar in meerdere kleuren en formaten
√ Hoge antislip









Kenmerken van GeoCeramica
√ Onderhoudsvriendelijk
√ Eenvoudige verwerking
√ Kleurvast
√ Beschikbaar in meerdere kleuren en formaten
√ Hoge antislip





Creëer hoogteverschillen in je tuin met muurblokken. Materialen op pagina 222 t/m 239.

Naturel

Kenmerken van GeoCeramica
√ Onderhoudsvriendelijk
√ Eenvoudige verwerking
√ Kleurvast
√ Beschikbaar in meerdere kleuren en formaten
√ Hoge antislip




Zorg voor een goede afwatering in je tuin met draingoten.. Materialen op pagina 322 t/m 327. Draingoten
Decorate



Kenmerken van GeoCeramica
√ Onderhoudsvriendelijk
√ Eenvoudige verwerking
√ Kleurvast
√ Beschikbaar in meerdere kleuren en formaten
√ Hoge antislip
Sommige materialen floreren in al hun eenvoud. De serie Concreet is enerzijds heel subtiel met zachte cementtinten. Anderszins biedt de serie een heel speels patroon om uw terras een eigen draai te geven. Wissel de genuanceerde gedecoreerde tegels af of leg ergens een stijlvol accent.

De bonte tegels van de Porto collectie halen het vakantiegevoel in uw tuin. Kleur is erg bepalend voor de sfeer van een tuin. De tegels bestaan als het ware uit 9 verschillende vlakjes met ieder een eigen patroon. Hierdoor lijkt het alsof de tegel uit meerdere kleinere tegeltjes bestaat.



Kenmerken van GeoCeramica
√ Onderhoudsvriendelijk
√ Eenvoudige verwerking
√ Kleurvast
√ Beschikbaar in meerdere kleuren en formaten
√ Hoge antislip





Mergel Zand

Kenmerken van GeoCeramica
√ Onderhoudsvriendelijk
√ Eenvoudige verwerking
√ Kleurvast
√ Beschikbaar in meerdere kleuren en formaten
√ Hoge antislip













Kenmerken van GeoCeramica 2Drive
√ Geschikt voor de oprit
√ Hoge antislipwaarde
√ Leverbaar in verschillende kleuren √ Kleurvast














Belgian Grey

Kenmerken van GeoCeramica & Baltramica Specials
√ Diverse mogelijkheden in maatwerk
√ Hoge antislipwaarde
√ Leverbaar in verschillende kleuren
√ Kleurvast




Bovenzijde + 1 lange zijde
Als de zijden B+C samen kleiner zijn dan de grootte van de tegel dan geldt Prijs 1. Zijn ze groter dan geldt Prijs 2.
Bovenzijde + 2 lange zijden
Als de zijden B+C+C samen kleiner zijn dan de grootte van de tegel dan geldt Prijs 1. Zijn ze groter dan geldt Prijs 2. Hoek uitwendig
Hoek inwendig
GeoCeramica® en Baltramica Specials worden per project op maat geproduceerd. Genoemde prijzen zijn inclusief de benodigde tegels. Levertijd bedraagt circa 8 weken na bestelling. Afname per stuk. Na bestelling kan de order niet meer gewijzigd of geannuleerd worden en geldt er afnameplicht.
L-Model
Formaat te Aantal tegels nodig Prijs per stuk gebruiken tegel voor element*
60x30x4 cm Prijs 1 Prijs 2
60x60x4 cm Prijs 1 Prijs 2
75x75x4 cm Prijs 1 Prijs 2
80x40x4 cm Prijs 1 Prijs 2
80x80x4 cm Prijs 1 Prijs 2
Muurafdekker
Formaat te Aantal tegels nodig Prijs per stuk gebruiken tegel voor element*
60x30x4 cm Prijs 1 Prijs 2
60x60x4 cm Prijs 1 Prijs 2
75x75x4 cm Prijs 1 Prijs 2
80x40x4 cm Prijs 1 Prijs 2
80x80x4 cm Prijs 1 Prijs 2
Hoek uitwendig
Formaat te gebruiken tegel Prijs per stuk
60x30x4 cm
60x60x4 cm
75x75x4 cm
80x40x4 cm
80x80x4 cm
Hoek inwendig Formaat te gebruiken tegel Prijs per stuk
60x30x4 cm
60x60x4 cm
75x75x4 cm
80x40x4 cm
80x80x4 cm
Met keramische terrasplanken van Exadeck® geniet je van de natuurlijke uitstraling van hout met het onderhoudsvrije gemak van keramiek. Exadeck® is geschikt voor alle ruimtes en beschikbaar in 6 kleuren.
Kenmerken van Exadeck
√ Uitstraling van hout
√ Gebruiksgemak van keramiek
√ Hoge antislip
√ Hoge slijtvastheid
√ Handig voor leidingwerken en bedrading

Exadeck is de ideale vloer voor buitenruimtes van het huis, zoals: patio’s, terrassen, zwembaden, veranda’s en tuinen.
Commerciële en drukbezochte gebieden
Geëxtrudeerde Exadeck is geschikt voor drukbezochte gebieden zoals restaurants en de hotelbranche, vanwege de hoge weerstand tegen vlekken en slijtage, de duurzaamheid en lage poreusheid.
Exadeck® is een zwevend vloersysteem dat bestaat uit snel te installeren keramische terrasplanken die onzichtbaar op onderregels worden bevestigd. Eenvoudige en handige verdeling van leidingwerk en bedrading eronder wordt hierdoor mogelijk gemaakt.
Gemakkelijk schoon te maken en vlekt niet!
Ons product biedt de mogelijkheid om looppaden te creëren tussen zwembaden en vochtige omgevingen dankzij de hoge slipweerstand.
Geschikt voor recreatiegebieden, wandelpaden en voetpaden in tuinen, parken, stranden en terrassen die kunnen worden geïntegreerd in elke omgeving dankzij hun hoge weerstand tegen vochtigheid en hoge temperaturen.







Voordelen
Antislip oppervlak
Weerstand tegen temperatuurverschillen
Bestand tegen hoge luchtvochtigheid
Hoge slijtvastheid
Onderhoudsarm
Mechanische weerstand Vlekbestendig
Technische informatie: Patronen:
Meer over Exadeck® ? Scan de QR-code!



dekdeel met randafwerking

Prijs per stuk
Dekdeel 121,7x14,1x2,6 cm
Dekdeel met randafwerking 121,7x14,1x2,6 cm
Traptrede 120x33x3 cm
Zwembadrand 75x45x3 cm
Plint 60x9 cm



zwembadrand

Exadeck Maple
Prijs per stuk
Dekdeel 121,7x14,1x2,6 cm
Dekdeel met randafwerking 121,7x14,1x2,6 cm
Traptrede 120x33x3 cm
Zwembadrand 75x45x3 cm
Plint 60x9 cm

dekdeel met randafwerking traptrede





Prijs per stuk
Dekdeel 121,7x14,1x2,6 cm
Dekdeel met randafwerking 121,7x14,1x2,6 cm
Traptrede 120x33x3 cm
Zwembadrand 75x45x3 cm
Plint 60x9 cm

dekdeel met randafwerking





Prijs per stuk
Dekdeel 121,7x14,1x2,6 cm
Dekdeel met randafwerking 121,7x14,1x2,6 cm
Traptrede 120x33x3 cm
Zwembadrand 75x45x3 cm
Plint 60x9 cm











Benodigde aantallen per m2
Dekdeel 5,5 stuks
Aluminium onderregel 1,44 stuks
Klemmen 21 stuks
Begin/eindklem RVS (7mm) 2,76 stuks
De genoemde aantallen is een gemiddelde per m2, deze kunnen variëren afhankelijk van snijwerk en de grootte van het project.

Klemmen


Begin/eindclip

Aluminium onderregel
Prijs per stuk
Klemmen (verpakt per 100 stuks)
Begin/eindlkem RVS (7mm)
Aluminium koppelplaat t.b.v. balk 35x25 mm laag
Epdm band (rol 20 mtr)
Onderregel aluminium 220x3,5x2,5 cm
12091219 12091221 12091208 12091174 12091201
€ 95,00
€ 0,50
€ 0,75
€ 21,75
€ 17,50

Afstand en omtrek

Mín. 20 mm Mín. 50 mm
Bevestiging van de onderregels aan de vloer Máx.1200 mm Máx.1200 mm





Kenmerken van Solostone
√ Geschikt voor in de tuin en als dakterras
√ Beschikbaar in meerdere designs
√ Kleurvast
√ Onderhoudsvriendelijk














Kenmerken van Solostone
√ Geschikt voor in de tuin en als dakterras
√ Beschikbaar in meerdere designs
√ Kleurvast
√ Onderhoudsvriendelijk











Douglas & Jones
Unico Sand

Kenmerken van Solostone
√ Geschikt voor in de tuin en als dakterras
√ Beschikbaar in meerdere designs
√ Kleurvast
√ Onderhoudsvriendelijk










Prijs per m²
Form Taupe
Form Sand
Form Clay
Form Beige
Marble Stone Warm Grey
Hormigon Antracite
Unico Antraciet
Unico Sand
Form Limestone Taupe
Form Limestone Beige

Maak je tuin compleet met bijpassende plantenbakken.. Materialen op pagina 336 t/m 343.
Scan de QR code voor actuele informatie.
by Douglas & Jones

Kenmerken van Piet Boon
√ Unieke kleuren en texturen
√ Kleurvast
√ Makkelijk schoon te maken
√ Onderhoudsvriendelijk







Concrete
Concrete
Concrete
Texture


Kenmerken van Ceramaxx
√ Beschikbaar in veel kleuren
√ Onderhoudsvriendelijk
√ Kleurvast










Andes Gold
Andes Grigio
Andes Moka
Andes Nero
Ardesia Nero 2.0
Ardesia Grigio 2.2
Bourgogne Crema Beige Prijs per m²
Andes Gold
Andes Grigio
Andes Moka
Andes Nero
Ardesia Nero 2.0
Ardesia Grigio 2.0
Bourgogne Crema Beige
Ardeche Carbon
Ardeche Coffee
Ardeche Grey
Ardeche Beige

Kenmerken van Ceramaxx
√ Beschikbaar in veel kleuren
√ Onderhoudsvriendelijk
√ Kleurvast







per m²
Basaltina Olivia Black 2.2
Cimenti Clay Grey
Cimenti Clay Smoke
Cimenti Clay Anthracite
Cimenti Clay Marrone
Durban Slate Black Berry 2.2
Durban Slate Multicolor 2.2
Prijs per m²
French Vintage Grey
French Vintage Moka
French Vintage Beige
Durban Slate Black Berry
Durban Slate Black Multicolor
Dekor Classic Carbone
Dekor Classic Grigio
Dekor Classic Taupe
Cimenti Clay Smoke
Cimenti Clay Grey
Cimenti Clay Anthracite
Cimenti Clay Marrone



43,85
43,85




Puzzolato Nero
Kenmerken van Ceramaxx
√ Beschikbaar in veel kleuren
√ Onderhoudsvriendelijk
√ Kleurvast





Frescato Grigio

Prijs per m²
Puzzolato Nero
Puzzolato Grigio
Puzzolato Smoke
Frescato Carbone
Frescato Grigio
Frescato Taupe
Pietra Belgio Grigio Chiaro
Pietra Belgio Grigio Scuro
Limerock Beige
Limerock Greige
Limerock Taupe


80x80x2 cm




art.nr.
85291215 85291216 85291217 85292724 85292725 85292726 85293959 85293960 85295541 85295542 85295543
60x60x2 cm
€ 39,90
€ 39,90
€ 39,90
€ 43,85
€ 43,85
€ 43,85
€ 43,85 € 43,85
€ 39,90
€ 39,90 € 39,90
Prijs per m²
Puzzolato Nero
Puzzolato Grigio
Puzzolato Smoke
Frescato Carbone
Frescato Grigio
Frescato Taupe
Pietra Belgio Grigio Scuro
Limerock Beige
Limerock Greige
Limerock Taupe
Metalica Greige
art.nr. 85291386 85291385 85291705 85291653 85291654 85291655 85230120 85295538 85295539 85295540 85230085
60x60x3 cm
€ 54,90
€ 54,90
€ 54,90
€ 59,70
€ 59,70
€ 59,70
€ 59,70
€ 54,90
€ 54,90
€ 54,90
€ 59,70
85293947 85293948
85291352 85291353
€ 58,95
€ 58,95
€ 58,95
€ 58,95
Hebben jouw keramische tegels een onderhoudsbeurt nodig? Gebruik Varistone Keramiek Tegelreiniger. Materialen op pagina 358.



Koppelstuk t.b.v.


Verstelbare vloerdrager




Verhoger t.b.v. Verstelbare vloerdrager






Prijs per stuk
Aluminium onderregel 4.000x40x75 mm
Aluminium onderregel 2.200x35x25 mm
Aluminium onderregel 4.000x35x25 mm
Aluminium onderregel met dubbele kamer 2.200x40x40 mm
Aluminium onderregel met dubbele kamer 4.000x40x40 mm
Aluminium haakse hoek incl. 4 bouten + 4 moeren t.b.v. balk 40x40 en 40x75 mm
Aluminium montage hoekbeugel t.b.v. dwarsligger constructie
Aluminium koppelstuk t.b.v. balk 40x75 mm hoog
Aluminium koppelstuk t.b.v. balk 35x25 mm laag
Aluminium koppelstuk t.b.v. balk 40x40 mm midden
Aluminium montageplaat incl. bout + moer t.b.v. balk 40x75 mm
Aluminium multihoek incl. 2 bouten + 2 moeren t.b.v. balk 40x40 en 40x75 mm
Torx bitje TX 20
Verhoger t.b.v. verstelbare vloerdrager
Verstelbare vloerdrager
Vloer montageplaat t.b.v. balk 35x25 mm
Vulplaat t.b.v. verstelbare vloerdrager
RVS clip - sponning gelijk A (verpakt per 100 stuks)
RVS clip - sponning ongelijk B (verpakt per 100 stuks)
Klemmen (verpakt per 100 stuks)
Begin/Eindklem RVS (10 mm)
Begin/Eindklem RVS ( 7 mm)
Begin/Eindklem RVS ( 5 mm)
Tool t.b.v. installeren clip
Contact kruis (verpakt per 100 stuks)
Tegelkruis inclusief verzonken bout + moer
Tegelstop inclusief 2 bouten + 2 moeren
Aluminium onderregel met dubbele kamer 2.200x35x25 mm t.b.v. rubberprofiel
Aluminium onderregel met dubbele kamer 2.200x40x40 mm t.b.v. rubberprofiel
Rubberprofiel met klemrand en trekkoord 11,5x1,4 mm

Verstelbare vloerdragers
Prijs per stuk
Vloerdrager H 26-35 mm
Vloerdrager H 35-50 mm
Vloerdrager H 50-80 mm
Vloerdrager H 80-140 mm
Vloerdrager H 140-260 mm
Opzetkruis voor tegels
Adapter voor onderbalken
Adapter voor tegels
Adapter voor aluminium onderregel
Adapter t.b.v. afschot
Verlengstuk 60 mm
Vaste tegeldrager
Prijs per stuk
art.nr. 27903137 27903138 27903139 27903140 27903136 27903134 27903131 27903133 27902197 27903130 27903135
Vaste onderplaat RC14 120x120x10 (met uitsparing)
Premium bovenplaat C4T tegels voeg 3 mm
Vaste terrasdrager 100x100x10 mm
Vaste terrasdrager 100x100x15 mm
Vaste terrasdrager 100x100x20 mm
Vaste terrasdrager 150x150x10 mm
Vaste terrasdrager 150x150x15 mm
Vaste terrasdrager 150x150x20 mm
Vaste terrasdrager 200x200x10 mm
Vaste terrasdrager 200x200x15 mm
Vaste terrasdrager 200x200x20 mm
4,80
5,60
6,90
8,60
11,70
1,30
2,00
0,60
4,95
3,35
art.nr. K11004942 K11003277
K11003241 K11003242 K11003243
K11003244 K11003246 K11003248
K11003249 K11003251 K11003253







Granulaat zegel




terras & trends collectie
Allemagne tegels
Grandola
Oudhollandse tegels
Tegels
Tegels rond
GeoSteen
GeoArdesia Alivo
GeoColor 3.0
GeoColor 3.0 Tops
GeoCorso
GeoCorso Brezza
GeoProArte
GeoProArte Design
GeoProArte Specials
GeoProArte Starter
GeoStretto Alivo
GeoStretto Plus
GeoStretto Plus Tops
Tripple T
Premiton
Premiton Plus
Smartton Linea
Nature Wave
SE Mica
SE Vlak
Vlak
Wave
XL Vlak
Eliton Supreme Linea
Terrastegel + Terrastegel + Designo
Excluton Cosmopolitan
Excluton Soft Comfort
Betontegels
Merina
Industrieplaten
Natuursteen tegels
Flagstones
Donker Grijs Gevlamd 2.0

Kenmerken van Allemagne
√ 5 cm dik
√ Voorzien van softtouch deklaag
√ Afstandhouder in tegel verwerkt
√ Geborsteld, geïmpregneerd én gehydrofobeerd




Donkergrijs Gevlamd 2.0
Prijs per m²
Antraciet
Grafiet Grijs/Antraciet
Bruin Gevlamd
Donkergrijs Gevlamd 2.0
Modern Grijs
Zand/Bruin Gevlamd



tuininspiratie

Kenmerken van Grandola
√ Met mini-facet
√ Extra goede beschermlaag
√ Ook verkrijgbaar in 6 cm dikte














Siertegels beton & natuursteen
Schellevis Oudhollandse tegels


Met de kenmerkende open structuur is de Oudhollandse tegel van Schellevis een opvallende en zeer gewilde siertegel. Deze typische oud-Hollandse uitstraling is zowel aan de zij- als de bovenkant zichtbaar. De tegels zijn verkrijgbaar in verschillende vormen, diktes en maatvoeringen en zijn daardoor breed toepasbaar. Deze tegels doen het bijvoorbeeld erg goed bij een zwembad, een vijver of als traptrede. Ook creëer je een speels looppad met de trapezium of rond gevormde tegels. Het robuuste karakter van deze tegel past in weelderige tuinen maar ook zeker heel goed in de strakkere tuinontwerpen.


Kenmerken van Oudhollandse tegels
√ Beschikbaar in veel formaten en diktes
√ Breed inzetbaar
√ Beschikbaar in ronde vorm en trapezium
√ Beschikbaar als zwembadrand
√ Robuuste uitstraling in diverse kleuren








Taupe
Grijs
Antraciet
Carbon
Rood/Bruin
Taupe Creme
Grijs


Kenmerken van Oudhollandse tegels
√ Beschikbaar in veel formaten en diktes
√ Breed inzetbaar
√ Beschikbaar in ronde vorm en trapezium
√ Beschikbaar als zwembadrand
√ Robuuste uitstraling in diverse kleuren






Grijs

Kenmerken van Oudhollandse tegels
√ Beschikbaar in veel formaten en diktes
√ Breed inzetbaar
√ Beschikbaar in ronde vorm en trapezium
√ Beschikbaar als zwembadrand
√ Robuuste uitstraling in diverse kleuren





Geniet jaarrond van je tuin in een buitenverblijf. Materialen op pagina 473 t/m 481.
GeoSteen® siertegels zijn verkrijgbaar in verschillende formaten, kleuren en afwerkingen. De tegels zijn uitgerust met een 'protection plus' beschermlaag en voorzien van 'footcomfort®'.
Tegeloppervlakken
Naast de diverse formaten en kleuren zijn GeoSteen® siertegels in verschillende afwerkingen te verkrijgen: gestructureerd, geprofileerd of vlak. In de categorie gestructureerd vinden we de 'uitgewassen' tegels. Bij deze nabewerking worden de natuursteentjes fraai geaccentueerd. De geprofileerde tegels bevatten unieke profielen ook wel reliëf genoemd. De reliëfverschillen lopen uiteen van hele fijne lijntjes bij GeoPiazza tot het grillige en gevarieerde leisteenprofiel van de GeoArdesia. Het woord ‘Vlak’ slaat op de bovenkant van de tegel, deze is vlak. Daarbij zijn wel verschillende nabewerkingen mogelijk die een totaal ander uiterlijk opleveren onder dezelfde noemer. Zo bestaat er een verouderde steen met een nostalgisch karakter en machinaal verouderde randen en ziet de GeoStretto Plus, dankzij superstrakke randen, er juist heel modern uit.
Ongeacht het type sierbestrating (beton en natuursteen) zorgt vuilafzetting in de poriën voor versnelling van ongewenste groenafzetting zoals algen en mossen.
Met als resultaat dat het terras in het voor- en najaar intensief gereinigd moet worden. Een oplossing hiervoor is een water- en vuilafstotende behandeling.

Protection Plus
De protection plus factor zorgt ervoor dat de poriën afgedekt worden waardoor vuil minder hecht. De tegels zijn daardoor eenvoudiger te reinigen. Een extra voordeel op onze GeoSteen® collectie is dat deze behandeling de kleur extra verdiept. Verkrijgbaar in drie varianten, waaronder een matte en licht glanzende afwerking.
DE VERSCHILLEN OP EEN RIJ:
Kleurverdiepend met een licht glanzende toplaag
Duurzaam kleurveredeld
Gereduceerde vuilopname
Gereduceerde kauwgumhechting
Relatief makkelijk te reinigen
Ook geschikt voor binnentoepassingen
Regeneratieve diepte beschermende werking
Vorst- en dooizoutbestendig
Zonlicht- en hittebestendig
Beter beschermd tegen bloemsappen, ketchup, zout en bakvetten
Wijnvlekken zijn makkelijker te reinigen dankzij Protection Plus
Mogelijkheid voor onkruid branden

Protection Plus van MBI De Steenmeesters is een echte innovatie. Bijna al onze stenen zijn goed beschermd met Protection Plus factor 15, factor 25, factor 30 en factor 90. Alle sierbestrating met deze beschermingsfactoren is eenvoudiger te reinigen. Bijkomstig voordeel is dat de lichte glans een bijzonder fraai en chique uiterlijk geeft aan de producten. Protection Plus met de P van perfectie!
Al onze sierbestrating van 4, 5 of 6 cm dikte, met uitzondering van de trommelstenen, is minstens voorzien van factor 15. Protection Plus factor 15 biedt bescherming van binnenuit. Dit is namelijk geen impregneermiddel of coating die wordt aangebracht op de tegel. Nee, deze beschermende vloeistof maakt deel uit van de receptuur. Het is één van de grondstoffen die mede de kwaliteit van onze terrastegels bepaalt. Hiermee geniet je terras van basisbescherming en heeft de sierbestrating betere eigenschappen dan tuinbestrating zonder deze bescherming.
Bij factor 25 is over de toplaag een transparante beschermlaag aangebracht, zodat de poriën van de deklaag praktisch gesloten worden. Dit gebeurt direct na productie.
Factor 30 heeft een dubbele beschermlaag. De tweede beschermlaag wordt 24 uur na de eerste laag aangebracht. Het gevolg hiervan is dat de tegel nog beter verdicht wordt, de kleur nog beter tot uiting komt en bovenal krijgen de tegels er ook nog eens een mooie subtiele glans van!
Factor 90 heeft een dubbele beschermlaag. De tweede beschermlaag wordt 24 uur na de eerste laag aangebracht. Het gevolg hiervan is dat de tegel nog beter verdicht is, de kleur nog beter tot uiting komt en bovenal krijgen de tegels er ook nog eens een mooie subtiele glans van!






Kenmerken van GeoProArte
√ Tegel met digitale print
√ Voorzien van beschermfactor 90
√ Makkelijk te onderhouden
√ Met mini-facetrand
√ Ook verkrijgbaar als traptreden, vijver- en afdekranden












Kenmerken van GeoProArte
√ Tegel met digitale print
√ Voorzien van beschermfactor 90
√ Makkelijk te onderhouden
√ Met mini-facetrand
√ Ook verkrijgbaar als traptreden, vijver- en afdekranden





Flowers
Flowers
Flowers
Flowers
Mosaic Taupe
Mosaic Grey
Decor Industrieel
Decor Alhambra



€
€
€
€

Een breed assortiment aan onderhoudsvriendelijke soorten kunstgras. Materialen op pagina 332 t/m 333.
Naturals Quartz Antra

Kenmerken van GeoProArte
√ Tegel met digitale print
√ Voorzien van beschermfactor 90
√ Makkelijk te onderhouden
√ Met mini-facetrand
√ Ook verkrijgbaar als traptreden, vijver- en afdekranden













Kenmerken van GeoProArte
√ Tegel met digitale print
√ Voorzien van beschermfactor 90
√ Makkelijk te onderhouden
√ Met mini-facetrand
√ Ook verkrijgbaar als traptreden, vijver- en afdekranden










Traptreden, vijver- en afdekranden

Kenmerken van GeoProArte
√ Tegel met digitale print
√ Voorzien van beschermfactor 90
√ Makkelijk te onderhouden
√ Met mini-facetrand
√ Ook verkrijgbaar als traptreden, vijver- en afdekranden
Siertegels beton & natuursteen




Bovenzijde + 1 lange zijde
Als de zijden B+C samen kleiner zijn dan de grootte van de tegel, dan geldt Prijs 1. Zijn ze groter, dan geldt Prijs 2.
Bovenzijde + 2 lange zijden
Als de zijden B+C samen kleiner zijn dan de grootte van de tegel, dan geldt Prijs 1. Zijn ze groter, dan geldt Prijs 2.
Hoek uitwendig
Hoek inwendig
Let op: De treden en de eventueel benodigde GeoProArte tegels dienen tegelijk besteld te worden. De normale tegels worden aan u uitgeleverd en de treden worden in productie genomen en volgen later. Dan bent u er te allen tijde van verzekerd dat alles hetzelfde kleurnummer heeft.
GeoProArte Specialties worden per project op maat geproduceerd. Genoemde prijzen zijn inclusief de benodigde tegels. Levertijd bedraagt circa 10-15 weken na bestelling. Afname is per stuk. Na bestelling kan de order niet meer gewijzigd of geannuleerd worden en geldt er afnameplicht.
L-Model
Formaat te Aantal tegels nodig Prijs per stuk gebruiken tegel voor element*
60x30x4 cm Prijs 1 Prijs 2
60x60x4 cm Prijs 1 Prijs 2
80x40x4 cm Prijs 1 Prijs 2
100x100x6 cm Prijs 1 Prijs 2
€ 133,00
€ 138,00
€ 145,25
€ 155,50
€ 182,50
€ 190,50
€ 267,75
€ 300,75
Muurafdekker
Formaat te Aantal tegels nodig Prijs per stuk gebruiken tegel voor element*
60x30x4 cm Prijs 1 Prijs 2
60x60x4 cm Prijs 1 Prijs 2
80x40x4 cm Prijs 1 Prijs 2
100x100x6 cm Prijs 1 Prijs 2
€ 220,50
€ 225,75
€ 230,75
€ 241,00
€ 298,75
€ 308,00
€ 409,00
€ 449,25
Hoek uitwendig Formaat te gebruiken tegel Prijs per stuk
60x30x4 cm
60x60x4 cm
80x40x4 cm
100x100x6 cm
€ 206,00
€ 275,00
€ 271,00
€ 470,75
Hoek inwendig Formaat te gebruiken tegel Prijs per stuk
60x30x4 cm
60x60x4 cm
80x40x4 cm
100x100x6 cm
€ 232,75
€ 300,75
€ 297,75
€ 496,50
Scan de QR code voor actuele informatie.

Kenmerken van Trippel T
√ Met mini-facet
√ Voorzien van beschermfactor 25
√ Ook verkrijgbaar in 6 cm dikte





Zwart/Grijs Genuanceerd Grijs Genuanceerd

Prijs per m²
Antraciet
Licht Grijs
Taupe
Bruin Genuanceerd
Zwart/Grijs Genuanceerd
Grijs Genuanceerd
Grezza Genuanceerd art.nr. 19569065 19569068 19569069 19569066 19569070 19569067
Donkergrijs
Beige Genuanceerd
Grezza Genuanceerd
Kova Genuanceerd


Donkergrijs

Kova Genuanceerd
60x60x4
19569300 19569307 19569308
€ 32,95 € 32,95 € 32,95


Beige Genuanceerd

Kenmerken van GeoStretto Plus
√ Slijtvast en kleurvast oppervlak
√ 6 cm dikte: geschikt voor intensief gebruik
√ Modern en strak design
√ Voorzien van beschermfactor 30
√ Geen facet









Kenmerken van GeoStretto Plus
√ Vlak en modern design
√ Geschikt voor terras
√ Leverbaar in veel kleuren
√ Voorzien van beschermfactor 30
√ Geen facet












19567100 19567103 19567102 19569028
50x50x4
€ 53,95 € 53,95 € 53,95 € 53,95

46,95
46,95
46,95
46,95
46,95
46,95
19567180 19567183 19567182 19567188 19569005 19567186 19569001 19569003 19569056 19569002 19569030 60x30x4

Kenmerken van GeoCorso
√ Beschikbaar in 4 cm en 6 cm dikte
√ Geschikt voor terras en oprit
√ Voorzien van beschermfactor 40
√ Neutrale kleuren
√ Geen facet



60x60x4 cm









80x80x4 cm
art.nr.
Ancona
Catania
Foggia
Materra
Parma
Pescara
Taormina
Bari
Pisa
Peschiera del Garda
Rimini
San
19568989 19568991 19568992 19568993 19568994 19568995 19568997 19568990 19568996 19569188 19569189 19569190
€ 39,95
€ 39,95
€ 39,95
€ 39,95
€ 39,95
€ 39,95
€ 39,95
€ 39,95
€ 39,95
€ 39,95
€ 39,95
€ 39,95
19568998 19568947 19568948 19568949 19568950 19568951 19569098 19568999 19568952 19569191 19569192 19569193
€ 49,95
€ 49,95
€ 49,95
€ 49,95
€ 49,95
€ 49,95
€ 49,95
€ 49,95
€ 49,95
€ 49,95
€ 49,95
€ 49,95 Prijs

Strakke stoere lijnen in jouw tuin. Materialen op pagina 255 t/m 262.
19568979 19568980 19568982 19568981 19568983 60x60x6 cm € 44,95 € 44,95
44,95 € 44,95 € 44,95

Kenmerken van GeoCorso Brezza
√ Beschikbaar in 4 cm en 6 cm dikte
√ Geschikt voor terras en oprit
√ Voorzien van beschermfactor 40
√ Neutrale kleuren
√ Geen facet











Kenmerken van GeoColor 3.0 Tops
√ Beschikbaar in 4 cm en 6 cm dikte
√ Geschikt voor terras en oprit
√ Voorzien van beschermfactor 30
√ Neutrale kleuren
√ Geen facet










Prijs
Dusk Black
Graphite Roast
Lakeland Grey
Denim Grey
Argento Tabacco
Twilight Bronze
Meteor White/Grey
Maple Brown
Autumn Brown

Kenmerken van GeoStretto Alivo
√ Vijhoekige tegels
√ Voor een speelse, maar moderne uitstraling
√ Geschikt voor terras en oprit
√ Voorzien van beschermfactor 30
√ Geen facet
Natuurlijk verband 6 cm (per 4,14 m²)
€ 65,95
€ 65,95
€ 65,95
€ 65,95
De voegen tussen de GeoStretto Alivo zijn groter dan bij andere GeoSteen, het verbruik is circa 3,2 kg per m² Wildverband uitsluitend per vol pakket à 4,14 m²




Prijs
Lasize Elba
Natuurlijk verband 6 cm
(per 4,14 m²)
€ 65,95
€ 65,95
€ 65,95
€ 65,95
€ 65,95
De voegen tussen de GeoArdesia Alivo zijn groter dan bij andere GeoSteen, het verbruik is circa 3,2 kg per m² Wildverband uitsluitend per vol pakket à 4,14 m²


Voordelen van GeoArdesia Alivo
√ Organische vorm
√ Vijfhoekige tegel
√ Geschikt voor terras en oprit
√ Voorzien van beschermfactor 25
√ Geen facet
Scan de QR code voor actuele informatie.






Borstelen
Door deze bewerking voelt de bestrating zacht (soft touch) aan
Hydrofoberen
Reduceert het ontstaan van kalkuitbloei en vervuiling





Impregneren
Bescherming tegen intreding van vocht en vuil
2x Impregneren
Dubbele bescherming tegen intreding van vocht en vuil
Zonder facet
Bestrating zonder facet
Gebogen kanten
Bestrating met gebogen kanten
Gewelfde zijkanten
Bestrating met gewelfde zijkanten
Natuursteen deklaag Kleurechte natuursteen granulaat-deklaag

Hameren
Licht verouderd
Kogelstralen
Met RVS kogeltjes stralen voor een natuursteenlook
Trommelen
Voor een authentieke uitstraling



Met facet
Bestrating met facet
Waterpasserend Waterpasserende bestrating
Gewelfd oppervlak
Bestrating met gewelfd oppervlak


Kenmerken van Premiton
√ Strakke randafwerking
√ Geschikt voor terras en oprit
√ Beschikbaar in wildverband





Prijs per m²
La Palma
Lanzarote
Gran Canaria
Tenerife
Ibiza





Prijs per m²
Gran Canaria
Tenerife
Lanzarote
La Palma
Ibiza
Aftrillen met lichte trilplaat met rubbermat. Vanaf 30x30 cm niet aftrillen. Onkruidbrander, staalborstel en strooizout kunnen schade veroorzaken aan de bestrating. Bestrating invegen met het geschikte inveegmateriaal. Let op: met organische vervuiling, zoals blad, tuinaarde op bestrating. Dit is moeilijk te verwijderen.

Kenmerken van Smartton Vlak
√ Leverbaar in diverse diktes en formaten
√ Geschikt voor het terras en de oprit
√ Geïmpregneerd, gehydrofobeerd en geborsteld
√ Beschikbaar in wildverband
√ Afstandhouder in de tegel verwerkt








Mount Everest
Sierra Madre
Amiata
Aftrillen met lichte trilplaat met rubbermat. Vanaf 30x30 cm niet aftrillen. Onkruidbrander, staalborstel en strooizout kunnen schade veroorzaken aan de bestrating. Bestrating invegen met het geschikte inveegmateriaal. Let op: met organische vervuiling, zoals blad, tuinaarde op bestrating. Dit is moeilijk te verwijderen.

Kenmerken van Smartton SE Vlak
√ Beschikbaar in 4 en 5 cm dikte
√ Afstandhouder in de tegel verwerkt
√ Geïmpregneerd en gehydrofobeerd
√ Kleur word extra versterkt
√ Levendige kleuren door meervoudig borstelen












Mont
Mount Mulanje
Mount Cameroon
Aftrillen met lichte trilplaat met rubbermat. Vanaf 30x30 cm niet aftrillen. Onkruidbrander, staalborstel en strooizout kunnen schade veroorzaken aan de bestrating. Bestrating invegen met het geschikte inveegmateriaal. Let op: met organische vervuiling, zoals blad, tuinaarde op bestrating. Dit is moeilijk te verwijderen.
Matterhorn

Kenmerken van Smartton Linea
√ Leverbaar in diverse diktes en formaten
√ Geschikt voor het terras en de oprit
√ Geïmpregneerd, gehydrofobeerd en geborsteld
√ Beschikbaar in wildverband
√ Afstandhouder in de tegel verwerkt



Voordelen van Smartton SE Mica
√ Leverbaar in diverse diktes en formaten
√ Geschikt voor het terras en de oprit
√ Geïmpregneerd, gehydrofobeerd en geborsteld
√ Beschikbaar in wildverband
√ Afstandhouder in de tegel verwerkt




Aftrillen met lichte trilplaat met rubbermat. Vanaf 30x30 cm niet aftrillen. Onkruidbrander, staalborstel en strooizout kunnen schade veroorzaken aan de bestrating. Bestrating invegen met het geschikte inveegmateriaal. Let op: met organische vervuiling, zoals blad, tuinaarde op bestrating. Dit is moeilijk te verwijderen.

Kenmerken van Smartton Wave
√ Golvend oppervlak
√ Levendige kleuren door meervoudig borstelen
√ Geïmpregneerd en gehydrofobeerd








Kenmerken van Eliton Supreme Linea
√ Verkrijgbaar in verschillende diktes en formaten
√ Waterafstotend door impregnering
√ Robuuste uitstraling door geruwd oppervlak
√ Tegels met facetrand







Kenmerken van Terrastegel + √ Uitstekende prijs- kwaliteitsverhouding
Geschikt voor terras
Met facet



















Kenmerken van Soft Comfort
√ Tegels met facet
√ Tegels zijn stroef, vorstbestendig en onderhoudsvriendelijk
√ Tegels zijn behandeld om vuil, mos en algen te weren















Siertegels beton & natuursteen
Betontegels/Merina/Industrieplaten

Deze siertegels hebben een klein facet en zijn voorzien van een deklaag om de tegel goed te beschermen. Mooie tegels tegen een goede prijs.





De industrieplaten zijn leverbaar in diverse maten. Alle prijzen zijn op aanvraag. Neem hiervoor contact met ons op.

Kenmerken van natuursteen tegels
√ Elke tegel is uniek met eigen uitstraling
√ Behoudt uitstraling bij intensief gebruik, blootstelling aan zonlicht of regen





Vietnam
60x60x3

Geniet jaarrond van je tuin in een buitenverblijf. Materialen op pagina 473 t/m 481.

Kenmerken van Flagstones
√ Natuurlijke uitstraling
√ Voor terrassen of tuinpaden
√ Unieke patronen










Prijs per m2
Alta Kwartsiet 2-3 cm (20 m 2/pak)
Kavala Kwartsiet 2-3 cm (20 m 2/pak)
Rio Sunrise 13-25 mm (32 m 2/pak)
Rio Sunrise Extra 25-40 mm (26 m 2/pak)
Rosso Bologna 13-25 mm (32 m 2/pak)
Rosso Bologna 25-40 mm (22 m 2/pak)
Karistos Zwart 15-25 mm (30 m 2/pak)
Uitsluitend per volle pallet.

R2610547
R2613247
R2614647 R2614847 R2615147 R2615247 R2615747
Prijs per stuk
Gres Grijs
Gres Rood
Gres Beige
Black Beauty
Modak
Blue Moon

art.nr. R2614201 R2614202 R2614203 R2614206 R2614207 R2614208
€ 21,10
€ 20,05
€ 21,10
€ 17,25
€ 21,65
€ 33,95

Romano
Romano Punto
Stonique Trommel Dikformaat
Longstone
Waalformaat
21x14x7
20x30x5
Stonique Trommel Betonstraatsteen
Betonstraatsteen
Waal- & Dikformaat Strak
Klinker Plus
Vialetta
GeoCotto
GeoRetron Privato
Premiton Linea
Demiton Extra XS
Maas & Waal Strackstone
Retro Natura
Natura Strak
Grasbetontegel
Hydro Lineo
Virage
Kasseisteen Lineair Verband 8 cm
New City Basic Klinker
Waterpasserende Dikformaat Green Label A
Ecosteen Stroke
Eco-tegel
Citta Klimata
Aqua Draintegel
Vietnamees hardsteen
Kandla & kinderkoppen

Kenmerken van Romano
√ Geschikt voor elk oppervlak
√ Leverbaar met schuine kant voor een speels effect (punto)
√ Beschikbaar in vier chique kleuren
√ Geschikt voor de oprit




Met de Romano steen kiest u voor kwalitatieve klinkers voor de bestrating van elk oppervlak. Deze klinkers zijn geschikt voor het aanleggen van een nieuw terras, maar ook voor een looppad door uw voor- of achtertuin. U kunt ze bovendien ook gebruiken voor het bestraten van een volledige oprit.




Ontdek de Romano Punto, een strakke betonsteen met schuine kanten voor een speelse en modieuze oprit. De Romano Punto is ontwikkeld als Hongaarse puntvloer legverband voor buiten. Eigentijds door de kleuren, luxueus door de uitstraling en chique door het legpatroon. Met een dikte van 8 cm zijn ze naast opritten ook perfect voor terrassen en paden.
40x8x8
€ 49,95
€ 49,95
€ 49,95
€ 49,95
Scan de QR code voor actuele informatie.

Siepatico

Kenmerken van Trommel Waal- en Dikformaat
√ Geschikt voor ieder oppervlak
√ Ideaal voor het maken van slingerpaadjes en ronde vormen
√ Getrommelde stenen hebben een klassieke uitstraling
√ Geschikt voor de oprit



Grijs/Zwart

Oud
Prijs
Antraciet
Oud Bruin
Oud Bussum
Oud Bont
Mangaan
Oud Sneek
Siepatico
Oud Kampen
Grijs/Zwart
Nature
Musselkalk
Groningerbruin
Oud Emmen
Oud Drachten
Oud Heeg
Oud Joure












Oud Drachten

Kenmerken van Stonique Trommel Longstone
√ Veelzijdige toepasbaarheid
√ Antieke trommelstenen lijken op gebakken bestrating
√ Beschikbaar in zes kleuren
√ Geschikt voor de oprit



Prijs per m²
Antraciet
Grijs/Zwart
Musselkalk
Oud Drachten
Oud Emmen
Oud Lemmer
Oud Bruin
Oud Bussum
Oud Kampen
Chelsea



K11002771
K11002774
20x30x5
26,45
K11002779 K11002785 K11007693 K11007611
K11008405
K11002781
K11002791 K11002783 K11002784
K11007609
26,45
K11004337
K11004339
K11007617
K11008256
K11008403
29,60

Maak organische vormen met behulp van Mevosteel kantopsluitingen. Materialen op pagina 262. Tip! Mevosteel




K11008260
K11007639
K11007640
K11008399
Groningerbruin

Kenmerken van Stonique Trommel Betonstraatsteen
√ Mooie kleur nuances voor een speels effect
√ Geschikt voor de oprit
Sierbestrating


Oud Drachten
Prijs per m²
Antraciet
Grijs/Zwart
Musselkalk
Groningerbruin
Oud Drachten
Oud Emmen




Oud Emmen
art.nr.
K11004343
K11008258
K11004349
K11004348
K11007272
K11007634
21x10,5x6 cm
€ 30,90 € 30,90 € 30,90 € 30,90


Kenmerken van Betonstraatsteen
√ Verkrijgbaar in verschillende afwerkingen en kleuren
√ 6 cm voor tuin, terras en oprit

Grijs/Zwart


Prijs per m²
Grijs/Zwart
Tricolore
Antraciet
Oud Bont
Oud Bruin
Grijs
Oud Bussum
Rood/Zwart
Oud Drachten
Oud Emmen







art.nr.
K11000646
K11000655
K11000976
K11000977
K11000978
K11000983
K11000987
K11000989
K11007600
K11007601
21x10,5x6 cm
€ 23,50
€ 23,50
€ 23,50
€ 23,50
€ 23,50
€ 21,50
€ 23,50
€ 23,50
€ 23,50
€ 23,50

Creëer hoogteverschillen in je tuin met muurblokken. Materialen op pagina 222 t/m 239.
Black

Kenmerken van Betonstraatsteen
√ Met mini-facet
√ Geschikt voor de oprit
√ Kleurechte natuurstenen deklaag
√ Voorzien van afstandhouder
√ Onderhoudsvriendelijk
√ 7cm en 8 cm voor tuin, terras, oprit en zwaardere verkeersbelasting


Betonstraatsteen 21x10,5x6 cm
Prijs per m²
Desert Rock
Concrete
Black
Nero/Grey
Tricolore
Ocean
Black Slate
Black TOP
Tricolore TOP
Ocean TOP
art.nr.
K11008234
K11008232
K11008233
€ 29,95
€ 29,95
€ 29,95
K11001643
K11008235
K11008015
Kleurechte deklaag
€ 32,05
€ 32,05
€ 32,05


Longstone 31,5x10,5x7 cm
art.nr.
K11008242
K11008240
K11008241
€ 36,20
€ 36,20
€ 36,20
K11007668
K11008243
K11008023
Kleurechte deklaag
€ 38,25
€ 38,25
€ 38,25


Betonstraatsteen 21x10,5x8 cm
Dikformaat XL 28x7x8 cm
art.nr.
art.nr.
K11008238
K11008236
K11008237
€ 36,20
€ 36,20
€ 36,20
Kleurechte deklaag
K11008012
K11008008
K11008009
K11008010
K11008011
K11008630
€ 42,70
€ 42,70
€ 42,70
€ 42,70
€ 42,70
€ 42,70
K11004900
K11008239
K11008017
€ 38,25
€ 38,25
€ 38,25

Een breed assortiment aan onderhoudsvriendelijke soorten kunstgras. Materialen op pagina 332 t/m 333.

Scan de QR code voor actuele informatie.
Antraciet

Kenmerken van Waal- en Dikformaat & XL Strak
√ Met afstandhouder
√ Moderne uitstraling door strakke afwerking
Sierbestrating





Grijs/Zwart
Prijs per m²
Oud Drachten
Oud Emmen
Antraciet
Oud Bussum
Grijs/Zwart
Tricolore
Mangaan
Gebakken Bruin



K11008249
K11008244
K11008245
K11008246
K11008247

Voor de meest sfeervolle buitenavonden. Materialen op pagina 297 t/m 313.

Kenmerken van Klinker Plus
√ Beschikbaar met en zonder facet
√ Beschikbaar in verschillende formaten
√ Geschikt voor de oprit
√ Voorzien van beschermfactor 25













Kenmerken van Vialetta
√ Geschikt voor terras en oprit
√ Schitterende kleurnuances
√ Voorzien van beschermfactor 25
√ Voorzien van afstandhouder
√ Footcomfort






Prijs per m²
Asfalto
Bruno
Colorato
Granito
Velutto
Zinco
art.nr.
19569089
19569090
19569091
19569092
19569093
19569094
30x20x6 cm
€ 35,95
€ 35,95
€ 35,95
€ 35,95
€ 35,95
€ 35,95












Kenmerken van Premiton Linea
√ Schitterende kleurnuances
√ Geschikt voor terras en oprit
√ Met deklaag
√ Met facet










Kenmerken van Strackstone
√ Nostalgische uitstraling √ Mooie kleurnuances
√ Ongetrommeld, zonder facet







Havanna/Antraciet genuanceerd
Prijs per m²
Wijnrood
Antraciet
Oker
Havanna
Havanna/Antraciet genuanceerd
Wijnrood/Havanna genuanceerd
Wijnrood/Oker genuanceerd
Wijnrood/Antraciet genuanceerd


Wijnrood/Havanna genuanceerd


Wijnrood/Oker genuanceerd


Wijnrood/Antraciet genuanceerd

art.nr. 11340350 11340351 11340359 11340357 11340358 11340352 11340360 11340353 21x7x8 cm
€ 39,95
€ 39,95
€ 39,95
€ 39,95
€ 41,95
€ 41,95
€ 41,95
€ 41,95

Kenmerken Retro Natura
√ Lichtjes gehamerd voor een retro-look
√ Subtiele sporen van slijtage
√ Hoge kleurvastheid
√ Natuurstenen deklaag
√ Ook leverbaar in moderne uitvoering



Prijs
Old London (bruin genuanceerd) Old Berlin (antraciet) Old Paris (bruin-beige genuanceerd)



Prijs per m²
London (bruin genuanceerd)
Berlin (antraciet)
Paris (bruin-beige genuanceerd)


Kenmerken van een Grasbetontegel
√ Bestand tegen hoge verkeersbelasting
√ Voorzien van grote gaten waar gras door kan groeien
√ Hoge waterdoorlatendheid Grasbetontegel (vlakke bovenzijde)










NCB Kinker type 1
Kenmerken van NCB Klinker type 1
√ Ook te verkrijgen in 17% open steen en 0% volledig dichte steen











Sierbestrating beton & natuursteen Green Label A/Ecosteen Stroke/ Eco-tegel




Scan de QR code voor actuele informatie.
Kenmerken van Grasbetontegel
√ Waterdoorlatende tegel
√ Zeskantige open ECO-tegel
√ Geschikt voor oprit en tuin
√ Gemaakt van gerecycled grind


√ Ideale bestrating voor waterbeheer of groene bestrating
√ Transparante beschermlaag
√ Onder de oppervlakte zijn ze verbonden als tegel
√ Beschikbaar in 60x40 en 60x60
√ Geschikt als looppad en oprit





Bent u op zoek naar een milieuvriendelijke bestrating als alternatief op traditionele betonstenen of betontegels om uw parkeerplaats of tuin te voorzien van waterdoorlatende tegels? Door klimaatverandering stijgt niet alleen de temperatuur wereldwijd, ook neerslagpatronen veranderen. Een geheel bestrate tuin en oprit zijn onvoldoende drainerend en leveren daardoor geen positieve bijdrage aan onze waterhuishouding; Aqua-draintegels zijn hiervoor een uitstekende oplossing omdat deze regenwater de kans geeft in de grond weg te zakken en zo ons rioolstelsel te ontlasten en onze waterhuishouding te verbeteren. Aqua-draintegels worden net als 'gewone' betontegels gelegd maar zijn eenvoudiger en sneller te plaatsen. Aqua-draintegels zijn zeer waterdoorlatend. Door de solide vorm kan de Aqua-draintegel een hoge belasting verdragen. U kunt de Aqua-draintegel plaatsen in uw oprit of bijvoorbeeld als pad of parkeerplaats.





Scan de QR code voor actuele informatie.

Kenmerken van Vietnamees Hardsteen
√ Natuurstenen klinkers
√ Kleurvast en onderhoudsvriendelijk
√ Voor een luxe uitstraling van de oprit of looppad









terras & trends collectie
Gebakken dikformaat XL
Vormbak getrommeld
Vormbak 6 cm ongetrommeld
Vormbak 7 cm getrommeld
Vormbak 8 cm getrommeld
Vormbak ongetrommeld
Vormbak 6 cm ongetrommeld
Vormbak 7 cm keiformaat ongetrommeld
Vormbak 8 cm ongetrommeld
Greenflow
Terra Antica serie
Oude gebakken stenen
Toermalijn
tuininspiratie

Kenmerken van gebakken bestrating terras & trends
√ Klinkers gemaakt van rivierklei uit Nederland
√ Leverbaar in dikformaat en waalformaat
√ Geschikt voor looppaden, terras en als oprit
Sierbestrating gebakken terras & trends strengpers 6 cm, vormbak 8 cm 4
Strengpers 6 cm, vormbak 8 cm




Prijs per m²
Chevron (bezand)
Faden (bezand)
Arista (onbezand)
art.nr. 16120093 16120095 16120094 16120143
Corado (bezand)
Prijs per m²
Toermalijn (onbezand)


Waalformaat getrommeld ca. 20x5x6 cm € 69,45 € 74,45 € 69,45 € 65,45 art.nr. 16102165 16102163
Waalformaat getrommeld ca. 20x5x8 cm € 75,25 € 77,45 art.nr. 16120073 16120075 16120074 16120142
Dikformaat getrommeld ca. 20x6,5x6 cm € 69,45 € 74,45 € 69,45 € 65,45
Apatiet (bezand) art.nr. 16102162 16102164
Dikformaat getrommeld ca. 20x6,4x8 cm € 75,25 € 77,45


Kenmerken van gebakken bestrating terras & trends
√ Breed toepasbaar
√ Beschibaar in dikformaat en waalformaat
√ Kleurvast
√ Verschillende legpatronen mogelijk
Strengpers 6 cm, vormbak 7 cm



Sierbestrating gebakken
Strengpers 5,2 cm en 6 cm, vormbak 7 cm 4
Strengpers 5,2 cm art.nr.




16252462
16252459
16252460
16252461
Dikformaat ongetrommeld
ca. 24x8x5,2 cm
€ 84,05
€ 69,80
€ 69,85
€ 73,35



Kenmerken van gebakken bestrating
√ Tijdloze uitstraling
√ Krasbestendig
√ Slijtvast
√ Geschikt voor looppaden, terras en oprit
Vormbak 6 cm










Prijs per m²
Carpo (bezand)
Atlas (bezand)
Zenneton (onbezand)
Lotis (onbezand)
Megaton (bezand)
Norton (bezand)
Nostalgie (onbezand)
Novoton (bezand)
Novoton (onbezand)
16100745 16120147 16120187 16120128 16120183 16120169 16120178 16120162 16120173
Waalformaat getrommeld
ca. 20x5x6 cm
€ 51,95
€ 70,95
€ 71,95
€ 76,95
€ 67,95
€ 67,95
€ 71,95
€ 67,95
€ 71,95
art.nr. 16120024 16120141 16120188 16120145 16120184 16120170 16120180 16120164 16120174
Dikformaat getrommeld
ca. 20x6,5x6 cm
€ 51,95
€ 70,95
€ 71,95
€ 76,95
€ 67,95
€ 67,95
€ 71,95
€ 67,95
€ 71,95

Kenmerken van gebakken bestrating
√ Kleurvast
√ Luxe uitstraling
√ Leverbaar in dikformaat en waalformaat
√ Geschikt voor looppaden, terras en oprit
Vormbak 6 cm





Eros (onbezand)
Prijs per m²
Preston (bezand)
Ruston (bezand
Supraton (bezand)
Varia (onbezand)
Eros (onbezand)
Pastorale Mix (bezand)
art.nr. 16120171 16120157 16120185 16120175 16120149 16120181

Waalformaat getrommeld
ca. 20x5x6 cm
€ 71,95
€ 67,95
€ 67,95
€ 71,95
€ 71,95 € 71,95
art.nr. 16120172 16120156 16120186 16120176 16120106 16120182
Dikformaat getrommeld ca. 20x6,5x6 cm
€ 71,95
€ 67,95
€ 67,95
€ 71,95
€ 71,95
€ 71,95

Plaats een schutting in de tuin voor privacy. Materialen op pagina 386 t/m 429.
Norton

Kenmerken van gebakken bestrating
√ Krasbestendig
√ Slijtvast
√ Verschillende legpatronen mogelijk
√ Leverbaar in dikformaat en waalformaat
√ Geschikt voor looppaden, terras en oprit
Vormbak 8 cm





Novoton (bezand) Oliva (onbezand)
Prijs per m²
Gala (onbezand)
Gasol (onbezand)
Incana (onbezand)
Norton (bezand)
Novoton (bezand)
Oliva (onbezand)

Waalformaat getrommeld
ca. 20x5x8 cm
art.nr. 16120152 16120153 16120154 16120167 16120159 16102159
€ 75,95
€ 75,95
€ 75,95
€ 74,95
€ 74,95
€ 75,95
art.nr. 16120131 16120132 16120133 16120168 16120160 16120138
Dikformaat getrommeld
ca. 20x6,5x8 cm
€ 75,95
€ 75,95
€ 75,95
€ 74,95
€ 74,95
€ 75,95

Geniet jaarrond van je tuin in een buitenverblijf. Materialen op pagina 473 t/m 481.

Kenmerken van gebakken bestrating
√ Krasbestendig
√ Slijtvast
√ Verschillende legpatronen mogelijk
√ Leverbaar in dikformaat en waalformaat
√ Geschikt voor looppaden, terras en oprit
Sierbestrating gebakken
Vormbak 6 cm & keiformaat 7 cm
Vormbak 6 cm en gebakken keiformaat 7 cm





(bezand) Ravenna (bezand)


Prijs per m²
Eros (onbezand)
Nostalgie (onbezand)
Novoton (bezand)
Ruston (bezand
Prijs per m²
Padova (bezand)
Ravenna (bezand)
Nero (bezand)
art.nr. 16120127 16120177 16120161 16120165
art.nr. 16109004 16109006 16109009
Waalformaat ongetrommeld ca. 20x5x6 cm
€ 71,95
€ 66,50
€ 61,95 € 61,95
Keiformaat ongetrommeld ca. 20x10x7 cm
€ 60,75 € 60,75 € 65,50

Strakke stoere lijnen in jouw tuin. Materialen op pagina 255 t/m 262.
Scan de QR code voor actuele informatie.
Violeto

Kenmerken van gebakken bestrating
√ Krasbestendig
√ Slijtvast
√ Verschillende legpatronen mogelijk
√ Leverbaar in dikformaat en waalformaat
√ Geschikt voor looppaden, terras en oprit










Kenmerken van gebakken bestrating
√ Krasbestendig
√ Slijtvast
√ Verschillende legpatronen mogelijk
√ Leverbaar in dikformaat en waalformaat
√ Geschikt voor looppaden, terras en oprit
Strengpers, onbezand




Terra



Prijs per m²
Terra Ancona Antica
Terra Bergamo Antica
Terra Bolzano Antica
Terra Carbona Antica
Terra Iseo Antica
Terra Lucca Antica
Terra Modena Antica
Terra Novara Antica
Terra Roma Antica
Terra Verona Antica
Terra Vulcano Antica
Terra Lugano Antica
Terra Gromo Antica
art.nr. 16202530 16202536 16202524 16202534 16202522 16202526 16202528 16202544 16202546 16202540 16202532 16202520 16202542



Waalformaat getrommeld
ca.20x5x6 cm
€ 70,95
€ 65,95
€ 65,95
€ 74,95
€ 70,95
€ 70,95
€ 70,95
€ 65,95
€ 65,95
€ 68,95
€ 68,95
€ 70,95
€ 74,95
art.nr. 16202531 16202537 16202525 16202535 16202523 16202527 16202529 16202545 16202547 16202541 16202533 16202521 16202543
Dikformaat getrommeld
ca.20x6,5x6 cm
€ 70,95
€ 65,95
€ 65,95
€ 74,95
€ 70,95
€ 70,95
€ 70,95
€ 65,95
€ 65,95
€ 68,95
€ 68,95
€ 70,95
€ 74,95



Oude gebakken straatstenen

Kenmerken van gebakken bestrating
√ Oude waaltjes zorgen voor een authentiek karakter
√ Leverbaar in waalformaat, dikformaat en keiformaat
√ Prijs op aanvraag
Sierbestrating gebakken Oude gebakken straatstenen
Oude gebakken straatstenen
Bij gebakken bestrating geldt over het algemeen: hoe ouder de klinker, hoe mooier die wordt. Oude waaltjes, dikformaten en keiformaten worden toegepast in veel tuinen. Uiteraard zijn oud gebakken klinkers uitermate geschikt voor tuinen in een landelijke omgeving, maar worden tegenwoordig ook toegepast in combinatie met andere materialen zoals beton en keramiek.
De oud gebakken klinkers zijn leverbaar in drie formaten: waalformaat, dikformaat en keiformaat. De klinkers vormen een mooi schouwspel van diverse kleuren. De kleurnuances per steen zorgen voor een schitterend geheel.



Prijs per m² Kleuren op aanvraag
Waalformaat getrommeld ca. 20x5x8 cm Op aanvraag
Dikformaat getrommeld ca. 21x7x8 cm Op aanvraag
Dikformaat getrommeld ca. 20x10x8 cm Op aanvraag
Scan de QR code voor actuele informatie.

Prijzen op aanvraag, afhankelijk van de beschikbare partij.

Muur- en stapelementen Beton
Allure Block Linea
Betonbiels
Blocco Bordano
Cornwallblock
GeoColor+
GeoMattone
GeoPlano (Giga) Splitblok
Granuwall
Linea muurblock
Line Block
Muurblok getrommeld
Muurblok strak
Promo Wall
Schellevis Oudhollands
Smartblock
Splitrock 2.0
Splitton getrommeld
Splitton strak
Stackton
Stone Walling
Muur- en stapelementen Natuursteen
Bielzen/Palissaden
Schanskorven
Struga Nature Wall
Afdekelementen
Beton
Natuursteen
Overzetstukken
Traptreden
Beton
Natuursteen
Schellevis Oudhollands
U- en L-elementen
Keerwanden
Funderingselementen








art.nr. 12052006 12052019 12052002 12052029 12087618
75x15x15 cm
13,55 € 12,25
15,15
15,20 € 22,30
Kenmerken van Schellevis Oudhollandse stapelelementen
√ Unieke Schellevis structuur
√ Superstrakke blokken zonder facet
√ Door de herkenbare uitstraling goed te combineren met andere Schellevis tegels en traptreden.
12052042 12058139
19,05
17,75
12052001 12052038
28,30
26,30
30,25

Antraciet

Kenmerken van Cornwallblock
√ Gespleten muurblokken geven een robuust karakter
√ Strakke randen
√ Leverbaar in diverse kleurnuances








Grijs/Zwart
Kenmerken van Stone Walling
√ Klassiek, Italiaans ontwerp
√ Leverbaar in drie mooie kleuren
√ Kalkuitbloei remmend










Kenmerken van GeoPlano
√ Duurzame deklaag met protection factor 25
√ Beschikbaar in diverse afmetingen en kleuren
√ Strakke randen

Kenmerken van GeoMattone
√ Natuurlijke, gevarieerde structuur
√ Diverse texturen zonder repeterend patroon
√ Duurzame deklaag met protection factor 15
√ Strakke randen
GeoMattone stapelelementen
per stuk
Kenmerken van GeoColor+
√ Robuust karakter door de uitgewassen textuur
√ Duurzame deklaag met protection factor 15
√ Strakke randen

Kenmerken van Granuwall
√ Getrommeld
√ Leverbaar in 4 zijden gespleten
√ Voor een robuust karakter





Brons
Roubaix
Nuance










Kenmerken van Splitblok & Giga Splitblok √ Gespleten muurblokken √ Strakke randen

Kenmerken van Muurblokken
√ Leverbaar in strak en getrommeld
√ Leverbaar in diverse maten
√ Perfect te combineren met betontegels



















Kenmerken van van Stackton
√ Droog stapelen; zonder mortel of lijm
√ Geschikt om grond te keren en vrijstaande muren en pilasters te plaatsen; zonder problemen meters hoog!

Met het Stackton-systeem kunt u op een zeer eenvoudige en snelle manier vrijstaande muren bouwen. Deze kunnen verder gebouwd worden op een keermuur of kunnen volledig vrijstaand zijn. Zonder hulpmiddelen kunt u een muur bouwen tot 1,40 m. Hogere muren worden gebouwd door gewapend beton op bepaalde afstanden in de uitsparingen voor de verankeringsblokken aan te brengen. Prachtige omheiningen worden gerealiseerd door pilasters te integreren in een vrijstaande muur. De pilasters zijn beschikbaar in twee formaten en kunnen ook weer heel eenvoudig droog gestapeld worden. Er komt geen metselwerk aan te pas. Pilasters zijn ideaal om poorten en hekken aan te bevestigen.



Stackton G-blok 1 zijde gesplit 40x20x12,5 cm
Stackton G-blok 2 zijde gesplit (L) 40x20x12,5 cm
Stackton G-blok 2 zijde gesplit (R) 40x20x12,5 cm
Stackton counterblock 40x30x12,5 cm
Stackton cap muurblok 20x20x6 cm (2 zijden gesplit)
Stackton cap muurblok 20x25x6 cm, overstek (zijde 20 cm gesplit)
Stackton cap G-blok 20x20x6 cm (1 zijde gesplit)
Stackton kolomblok pilaster 40/40 40x20x12,5 cm
Stackton kop rechts pilaster 60/60 40x20x12,5 cm
Stackton kop links pilaster 60/60 40x20x12,5 cm
Stackton pilastercap klein 50x50x6 cm (set a 4 st.)
Stackton pilastercap groot 70x70x6 cm (set a 6 st.)
Stackton curved binnenbocht (4 blokken per set)
Stackton curved buitenbocht (4 blokken per set)
elk

4,85
4,85
13,90
10,25
10,25
68,75
63,70
63,70

Kenmerken van Splitton strak
√ Zichtzijde kant gekloofd
√ Strakke randen
√ Leverbaar in diverse kleurnuances











Supersnelle lijm om muurblokken mee te verlijmen. Materialen op pagina 356 t/m 357.

Kenmerken van Splitton getrommeld √ Getrommeld √ Leverbaar in diverse kleurnuances
Kenmerken van Smartblock
√ Strak muurblok met deklaag
√ Leverbaar met afdekplaat
√ Perfect te combineren met betontegels van Redsun



Muurelement uitsluitend per volle laag á 21 stuks Afdekplaat uitsluitend per volle laag á 8 stuks





Kenmerken van Promo Wall
√ Gebruiksvriendelijk formaat
√ Getrommelde steen
√ Geschikt om ronde elementen te creëren
Kenmerken van Line Block
√ 2 zijden gekloofd
√ Voorzien van een facet


Kenmerken van Allure Block Linea
√ Zichtzijde met schaduwvoeg √ Glad oppervlak


Kenmerken van Blocco Bordano
√ Stapelblok van gebakken klei
√ Bewerkte voor en zijkant
√ Kleurvast muurblok waardoor ze lang mooi blijven



Tascana Basic




Kenmerken van Natuursteen, Bielzen & Palissaden
√ Zowel verticaal als horizontaal te gebruiken
√ Luxe uitstraling met de voordelen van natuursteen
√ Leverbaar in strakke variant en gespleten variant


Bielzen/Palissaden natuursteen/ Struga Nature Wall
De leverancier Natuurgevelsteen is 12 jaar actief in de Nederlandse markt en is ontstaan met als belangrijkste doelstelling werkgelegenheid te scheppen in Macedonië. De opzet om werkgelegenheid te scheppen in Macedonië is zeer geslaagd. Een vijftal groeves leveren een grote diversiteit in Natuurgevelsteen. Zo’n 25 tot 30 gezinnen hebben een boterham i.v.m. de productie van natuurgevelsteen voor de Nederlandse markt. terras & trends ondersteunt dit mooie initiatief en heeft drie populaire sorteringen in haar collectie opgenomen. Het bedrijf is vooral actief in de bouwkundige markt waarbij men zich richt op het leveren van gevels in Natuursteen. Geen (kunst-beton-composiet) strips maar echte natuursteen in baksteen breedte zodat het past in elk bouwkundig ontwerp en aansluit bij de Nederlandse bouwmethode. Ook in tuinen kan Struga Nature Wall uitstekend toegepast worden. Het kan een prachtig contrast vormen in strak gevormde tuinen, maar ook in romantische tuinen zijn er uiteraard mogelijkheden.
De Struga Nature Wall is verpakt in pallets van 6 m2. Heeft een muurbreedte van ca. 90/100 mm en wordt gemixt geleverd in een verhouding 1/3 ca. 40 mm, ca. 60 mm, ca. 80 mm dik. De lengte is variabel.



Kenmerken van Struga Nature Wall
√ Robuuste en authentieke uitstraling
√ Handbewerkt
Prijs per m²
Skopje
Bitola
Mavrovo
56002350
56002352
56002351 € 210 € 210 € 210
(gemixt geleverd in een verhouding van 1/3 4 cm dik, 1/3 6 cm dik en 1/3 8 cm dik)
Uitsluitend per volle kist a 6 m2 art.nr.

Ardenner Grijs

Kenmerken van Schanskorven
√ Natuurlijke uitstraling
√ Robuuste elementen
√ Verschillende vullingen mogelijk
√ Onderhoudsarme afscheiding
√ Geluid- windwerend
Staalmatten/Tuinafscheidingen
Prijs per stuk
Staalmat (verzinkt) 100x200 cm maaswijdte 50x50x4 mm
Afstandhouders 10 cm (20 st per 2 staalmatten)
Clips enkel (doos a 100 stuks)
Clips dubbel (doos a 100 stuks) (16 st/paal, 8st/zijde)
Schanskorven toebehoren
Prijs per stuk
Handtang
C-ringen (doos a 1600 st.)
Steigerbuis 300 cm
Steigerbuis 200 cm
Koppelspiraal 200 cm
Koppelspiraal 100 cm
Vulmaterialen staalmatten
Prijs per stuk
Ardenner grijs brokjes 40-80 mm
Basalt brokjes 45-63 mm
Grauwacke brokjes 60-80 mm
Yellow Sun 60-90 mm
Maaskeien 60-90 mm
Hardsteen brokjes 60-90 mm
Verbruik staalmatten per m² is ± 175 kg
Schanskorven incl. bodem en deksel (lxbxh)
Prijs per stuk
100x21x50 cm (ca. 160 kg vulling per korf)
100x21x100 cm (ca. 320 kg vulling per korf)
100x21x120 cm (ca. 400 kg vulling per korf)
100x21x200 cm (ca. 640 kg vulling per korf)
200x21x50 cm (ca. 320kg vulling per korf)
200x21x100 cm (ca. 640 kg vulling per korf)
200x21x120 cm (ca. 800 kg vulling per korf)






Prijs per stuk
Bouwstaalmat, maaswijdte 10x10 cm, roest Bouwstaalmat, maaswijdte 15x15 cm, roest Bouwstaalmat, maaswijdte 5x5 cm, verzinkt Bouwstaalmat, maaswijdte 10x10 cm, verzinkt

Kenmerken van Afdekelementen natuursteen
√ Luxe afdekelementen
√ Strakke, moderne look
√ De Rockface varianten zijn aan twee zijden gekloofd






Blue Moon Honed Linea (dakvorm)





Prijs per stuk
Dark Grey
Siam Bluestone Pacific Waterjet
Blue Moon Honed Linea
Blue Stone Honed Linea
Afdekplaten natuursteen
Afdekplaat Milano

Overzetstukken muurelementen
Prijs per stuk
Overzetstuk recht Verzinkt
Overzetstuk recht Corten
Overzetstukken muurelementen
Prijs per stuk
Overzetstuk hoek Verzinkt
Overzetstuk hoek Corten

Overzetstuk muurelement recht Verzinkt

Overzetstuk muurelement recht Corten

Overzetstuk muurelement hoek Verzinkt

Overzetstuk muurelement hoek Corten
Kenmerken van Overzetstukken
√ Voor een luxe afwerking van een muurelement
√ Leverbaar in diverse formaten
√ Leverbaar in corten en verzinkte uitvoering
Muurelement 15 cm 150x45x15,8 cm € 47,00 € 52,80
Muurelement 15 cm 20/20x45x15,8 cm € 23,25
€ 25,05


Kenmerken van Traptreden
√ Te gebruiken als traptrede of als biels voor subtiele hoogteverschillen
√ Voorzien van beschermfactor 5
√ Minder kans op kalkuitbloei
Heeft u enig hoogteverschil in de tuin? Dan kunt u daarin mooi traptreden aanbrengen. Dat voorkomt het wegspoelen van grond en uiteraard loopt het gemakkelijker. Traptreden vindt u bij ons in meerdere soorten en maten. Voor kleinere tuinen zijn er subtiele groottes verkrijgbaar. Voor grotere tuinen is het vaak fraai om voor grote formaten te kiezen.










Grijs


Kenmerken van Oudhollandse traptreden
√ Unieke Schellevis structuur
√ Superstrakke traptreden zonder facet
√ Door de herkenbare uitstraling goed te combineren met andere Schellevis tegels
√ Ook beschikbaar in L-model





Antraciet
Carbon
Rood/Bruin
Taupe
Creme
Schellevis Oudhollandse Traptreden Hoekstuk 90°

Schellevis Oudhollandse Traptreden L-Model






Kenmerken van Traptreden Natuursteen
√ Natuurlijke uitstraling en gebruiksvoordelen van natuursteen
√ Leverbaar in verschillende formaten




Stootbord
Prijs per stuk
Padang Grijs
Tahiti Blue
Blue Moon
Pacific Waterjet Elegance
art.nr.
R5210584
R5210585
R5320291
R5210527
Opstapstuk
100x35x3 cm
€ 44,15
€ 62,00
€ 46,20
€ 90,85
art.nr.
R5210578
R5210579
R5320289
R5210526
100x12x2 cm
€ 7,85
€ 18,35
€ 11,55
€ 19,95
Opstapstuk: Gezaagd, bovenzijde gezoet, zijkanten en geronde neus gepolijst, rondom facet.
Stootbord: Gezaagd, voorzijde en zijkanten gepolijst, rondom facet.








Autum Antique
Prijs per stuk
Tahiti Blue Piazzo Linea
Grijs Piazzo
Blue Moon Honed Rockface Linea
Blue Moon Antislip Linea
Pacific Waterjet Elegance Linea
Juparana Waterjet Linea
Toscana Basic
Travertino Autum Antique

Scan de QR code voor actuele informatie.
Grijs

Kenmerken van U- en L-Elementen
√ Multi inzetbaar, zoals:
√ Verhoging
√ Borders
√ Houtopslag
√ Tuinmeubilair
√ Beschikbaar in diverse formaten

U-element Grijs

L-element Grijs

U-element Zwart

L-element Zwart

U-element Roestbruin

L-element Roestbruin
U-elementen
L-elementen
L-hoekelementen
art.nr. 34001900 34001901 34001912 U-element 40x40x50 cm (lxdxh) € 29,55 € 33,55 € 37,25
34001910 34001911 34001913 U-hoekelement
art.nr. 34001800 34001801 34003101 50x30x40 cm (lxdxh) € 17,70 € 21,25 € 23,55 art.nr. 34003040 34003041 34003107 30x30x40 cm (lxdxh) € 101,20 € 111,10 € 124,30
34001810 34001811 34003102
34003080 34003081 34003108




De keerwanden zijn leverbaar in diverse maten. Alle prijzen zijn op aanvraag. Neem hiervoor contact met ons op.

Muur- en stapelelementen Keerwanden/Funderingselement
De funderingselementen worden droog en in verband op elkaar gestapeld zodat er doorlopende hellende kanalen gevormd worden. De open zijde wordt steeds in dezelfde richting geplaatst. Indien nodig kan de muur gewapend worden in de verticale en horizontale uitsparingen. Beton wordt achteraf in de holtes gestort zodat de muur een geheel vormt. De stapelblokken worden o.a. gebruikt bij de constructie van zwembaden, keermuren en dragende binnen-en buitenmuren.
TECHNISCHE SPECIFICATIES
Funderingselement 14 19 29
Inhoud per pak
Afmetingen(l/b/h)



stuks
stuks
stuks
art.nr. 10001007
Formaat: 39x14x20 cm (lxdxh)
Prijs per stuk € 4,90
Benodigde wapening:
Muurhoogte: 100 cm, 150 cm
Verticale Wapening: Ø8 alle 20 cm
Horizontale Wapening: 1Ø8 per laag
art.nr. 10001008
Formaat: 49x19x20 cm (lxdxh)
Prijs per stuk € 5,50
Benodigde wapening: Muurhoogte:
Verticale Wapening: Ø6 alle
Wapening:
art.nr. 10001009
Formaat: 39x29x20 cm (lxdxh)
Prijs per stuk € 5,50
Benodigde wapening:
Verticale Wapening: 2x Ø12 alle 20 cm 2x Ø14
Algemeen:
- Kwaliteit betonmortel C25/30-7 mm -S4
- Stapelblokken zijn niet waterdicht
- Wapeningstaven type BE500
- De funderingsplaat dient berekend te worden aan de hand van de grondkarakteristieken
- Stapelblokken voldoende schoren voor het opgieten

Stapelblok 29
1. Funderingsplaat gieten met de nodige wapeningsstaven
2. Eerste laag stapelblokken waterpas in de mortel plaatsen
3. Stapelen van de blokken droog op elkaar met de sleuf naar boven, in een 1/3de verband
4. Het plaatsen van de horizontale en verticale wapening
5. Storten van het beton, te starten vanaf de hoeken en opgieten in lagen van max. 1.0 m1 hoogte
6. Beton lichtjes trillen zodoende alle blokken goed gevuld zijn.

Kantopsluiting beton
Opsluitbanden beton
Schellevis Oudhollandse opsluitbanden
U Profielen opsluitband
Kantopsluiting corten/ verzinkt
Borders
Double
Double flg
Mevosteel Fast Edge
Mevosteel Rolled Top PRO
Mevosteel Supreme Edge
Single
Single Flex
Single Flex flg
Single flg
Stroke
Stroke flg
Kantopsluiting kunststof
Ecoboard
Gator Edge Rigid & Flex
Kantopsluiting natuursteen
Kantopsluiting hout
Damwand Hardhout
Rolborders


Kenmerken van Oudhollandse Opsluitband
√ Oudhollandse structuur
√ Goed te combineren met andere Oudhollandse artikelen
√ Diverse maten en kleuren leverbaar


Opsluitband Grijs
Kantopsluiting beton
Prijs per stuk Grijs Zwart
Prijs per stuk Grijs Zwart
Meerprijs
(vanaf 10x20)

Opsluitband Antraciet
03016100MB 03016101MB

U-profiel gelijkzijdig Verzinkt
U-profielen opsluitbanden
Prijs per stuk
U-profiel gelijkzijdig Verzinkt
U-profiel gelijkzijdig Corten
U-profielen opsluitbanden
Prijs per stuk
U-profiel ongelijkzijdig Verzinkt U-profiel ongelijkzijdig Corten
U-profiel gelijkzijdig Corten

Opsluitband 5 cm
12005329 12005345 art.nr. 12005333 12005349
220x5,1x5,1x5,4 cm € 24,05 € 25,85
Opsluitband 5 cm
220X5,1X20,1X5,4 cm € 37,45 € 41,20

U-profiel ongelijkzijdig Verzinkt

U-profiel ongelijkzijdig Corten
Opsluitband 6 cm
Kenmerken van U-profielen
√ Mooie afwerkingen
√ Meerdere hoogtes verkrijgbaar
√ Verkrijgbaar in verzinkt en corten








Koppelspies Koppelplaat Koppelpin
Voor een eenvoudige en solide verwerking van kantopsluitingen, adviseren wij het toepassen van 3 of 4 spiesen op een lengte van 300 cm. Met de spies kunnen ook meerdere kantopsluitingen met elkaar op een mooie manier verbonden worden.
Wanneer er geen spies toegepast wordt, kan er gebruik gemaakt worden van het koppelplaatje om meerdere kantopsluitingen te verbinden.
Wanneer je de flg kantopsluitingen toepast, maak je doorgaans gebruik van een pin of bij een harde ondergrond ander montagemateriaal.
Kantoplsuitingen corten/ verzinkt Stalen kantopsluiting
Deze kantopsluiting van cortenstaal of verzinkt staal kenmerkt zich door zijn eenvoud en smal bovenaanzicht. Doordat deze kantopsluiting niet omgezet is, is deze rand flexibel en geschikt om organische vormen mee te maken. Let op, de bovenkant is scherper dan de randen met een omgezette bovenkant.
art.nr. 12005478 12005483
300x10 cm
(1,5 mm dik)
€ 24,70
€ 26,40
Koppelspies 10 cm
art.nr. 12005490 12005495
300x16,5 cm (1,5 mm dik)
€ 34,60 € 37,80
art.nr. 12005482 12005489
€ 1,60
€ 1,60
Deze kantopsluiting van cortenstaal of verzinkt staal is aan de bovenkant omgezet. Door deze bewerking verkrijgt de strook zijn stevigheid en geeft de rondingen aan de bovenkant een mooi esthetisch geheel.
art.nr. 12005479 12005484 12005486
300x10 cm
(1,5 mm dik)
€ 30,40
€ 32,50
€ 55,10
Verzinkt Corten
art.nr. 12005491 12005496 12005498
300x16,5 cm (1,5 mm dik)
€ 38,20 € 41,25


Deze kantopsluiting van cortenstaal of verzinkt staal is aan de bovenkant omgezet. Door deze bewerking verkrijgt de strook zijn stevigheid en geeft de rondingen aan de bovenkant een mooi esthetisch geheel.
Door de inkepingen aan de binnenkant van deze kantopsluiting, kun je eenvoudig organische vormen maken.
art.nr. 12005480 12005485 12005487
300x10 cm (1,5 mm dik)
€ 30,95
€ 33,25
€ 55,65
Verzinkt
Corten
12005583 12005585
12005590 12005592
12005591 12005593
9,70
10,35
De Double kantopsluiting is aan de bovenkant omgezet en wordt vooral toegepast als beide zijdes zich in het zichtveld bevinden. Deze kantopsluiting kan niet organisch gevormd worden, maar is door zijn afwerking uitermate geschikt voor het creëren van rechte lijnen.
art.nr. 12005356 12005366
300x10 cm
(1,5 mm dik)
€ 50,20
€ 53,80








Deze kantopsluiting van cortenstaal of verzinkt staal kenmerkt zich door zijn eenvoud en smal bovenaanzicht. Doordat deze kantopsluiting niet omgezet wordt, is deze rand flexibel en geschikt om organische vormen mee te maken. Let op, de bovenkant is scherper dan de randen met een omgezette bovenkant.
De onderkant van de strook is recht omgezet. Hierdoor is deze strook uitermate geschikt voor bevestiging op harde ondergrond.
art.nr. 12005357 12005367
300x10 cm
(1,5 mm dik)
€ 33,65
€ 36,50
art.nr. 12005378 12005387
300x16,5 cm (1,5 mm dik)
€ 43,90 € 48,30
Koppelpin Universeel
Deze kantopsluiting van cortenstaal of verzinkt staal is aan de bovenkant omgezet. Door deze bewerking verkrijgt de strook zijn stevigheid en geeft de rondingen aan de bovenkant een mooi esthetisch geheel.
300x10 cm
(1,5 mm dik)
art.nr. 12005358 12005368
€ 41,45
€ 44,50
Verzinkt Corten
Staal
art.nr. 12005379 12005388
300x16,5 cm (1,5 mm dik)
€ 49,05
€ 53,40
Koppelpin
Deze kantopsluiting van cortenstaal of verzinkt staal is aan de bovenkant omgezet. Door deze bewerking verkrijgt de strook zijn stevigheid en geeft de rondingen aan de bovenkant een mooi esthetisch geheel.
Door de inkepingen aan de binnenkant van deze kantopsluiting, kun je eenvoudig organische vormen maken.
art.nr. 12005359 12005369
300x10 cm
(1,5 mm dik)
€ 48,10
€ 51,30
art.nr. 12005380 12005389
300x16,5 cm (1,5 mm dik)
€ 56,05
€ 60,25
Deze kantopsluiting van cortenstaal of verzinkt staal is aan de bovenkant omgezet. Door deze bewerking kan deze strook niet voor organische vormen gebruikt worden, maar is door zijn sterkte uitermate geschikt om mooie rechte lijnen te creëren. De Double kantopsluiting wordt ook toegepast als beide zijdes zich in het zichtveld bevinden.
300x10 cm
(1,5 mm dik)
Verzinkt
Corten
Hoekstukken
art.nr. 12005360 12005370
€ 67,85
€ 73,00
art.nr. 12005381 12005390












Prijs per stuk
Kenmerken van Borders
√ Niveauverschillen opvangen
√ Makkelijk te plaatsen
√ Meerdere hoogtes verkrijgbaar
√ Op aanvraag in andere kleuren verkrijgbaar
Borderpaneel Flex Corten
Hoekstuk Uitwendig Corten
Hoekstuk Inwendig Corten
Borders van cortenstaal zijn niet alleen een decoratieve toevoeging aan tuinen, maar ze kunnen ook dienen om hoogteverschillen te creëren en visuele interesse te brengen in het landschap. Je kunt er verhoogde bloembedden mee maken of niveaus toevoegen aan een tuin met meerdere terrassen. Deze hoogteverschillen zorgen voor een gevarieerd en interessant landschap, waarbij verschillende delen van de tuin opvallen en de aandacht trekken. Daarnaast kunnen cortenstaal borders ook worden gebruikt om paden en looproutes te markeren, wat zorgt voor een duidelijke scheiding tussen verschillende delen van de tuin. art.nr. 12005403 12005406 12005409 220x28

Corten

Kenmerken van Rolled Top PRO
√ Voorzien van omgeslagen rand
√ Bovenkant dikte 8 mm; esthetisch mooi en extra stevig
√ Uniek koppelssysteem: strips kunnen met één pen verbonden en verankerd worden. Geen schroeven nodig

Voorbeeld verbinding

U-vormige koppelpen verzinkt

U-vormige koppelpen corten

Supreme Edge kantopsluiting is zeer goed te buigen. Elk stuk van 100 cm heeft een effectieve lengte van 95 cm en heeft 6 vaste verankeringspennen van 10 cm.


Kenmerken Supreme Edge
√ Afgeronde bovenrand
√ Lange en brede pennen voor meer houvast in de grond
√ Eén zijde altijd vlak. Kiert niet wanneer vlak gelegd wordt tegen bestrating

Scan de QR code voor actuele informatie.

Verzinkt
Kenmerken van Mevosteel Fast Edge
√ Goed buigbaar
√ Snelle montage zonder boren of schroeven
√ Met afgeronde rand


Eindverbindingsclippen
Prijs per m1
Mevosteel Fast Edge 225x10,2 cm (2 mm)
Mevosteel Fast Edge 225x10,2 cm (3 mm)
Mevosteel Fast Edge 225x15,2 cm (2 mm)
Mevosteel Fast Edge 225x15,2 cm (3 mm)
Mevosteel Fast Edge 225x20,3 cm (3 mm)
Door de manier van verbinden kun je met 11,25 m¹ effectief een lengte van 10,25 m¹ maken.

Verzinkt

Eindverbindingsclippen


informatie.



Kenmerken van Ecoboard
√ Onderhoudsvrij
√ Duurzaam
√ Ecologische afboording
Ecoboard
Ecoboard
Ecoboard Plank
Ecoboard Plank Black 3 m1
Ecoboard in de bruine kleur of in hoogte 20 cm op aanvraag




Kenmerken van Gator Edge Rigid & Flex
√ Gemaakt van 100% polypropyleen Co-polymeer
√ Verkrijgbaar in flexibele en starre randen
√ UV-bestendig
√ De Flex kan worden aangesloten op de Rigid













Hardhouten geschaafde damwand
Hardhouten geschaafde damwandregel met sponning


Grindplaat
Eccogravel
Siergrind/ Split/ Brokjes(bigbag/mini bag)
Siergrind/ Split/ Brokjes zakgoed
Siergrind/ Split/Exclusief
Rotsen/ Brokken
Franse Boomschors
Caldera Mix
Halfverharding Nobre Cál
Halfverharding Olivijn
Halfverharding Koersmix/ KoMex
Teelaarde plus Substraat intensief 0-6
Ecobase glasschuim
Yalibims
Voegzand/split
Brekerzand
Inveegzand
Metselzand
Onkruidremmend voegzand
Ophoogzand
Speelzand
Zilverzand
Drainagemortel
Brekerzand
Drainzand
Monokorn
Stabimix
Tubag bindmiddel
Tubag flexibele tegellijm
Varistone Drainagemortel
Easymix Snelbetonmortel
Stabimix Ondergrondversteviger
Stabimix Drainmortel HDM

Aslon Garden heeft een split- en grindplaat ontwikkeld met een aantal zeer sterke eigenschappen. De onderkant is goed verdicht, zodat het split of grind niet uit de platen gedrukt kan worden. Door een doordacht ontwerp zijn de platen koppelbaar en stapelbaar. Split- en grindplaten worden veel gebruikt om verzakking en spoorvorming te voorkomen. Daarnaast blijft het grind of split goed vast liggen, waardoor het niet verspreid naast de oprit, parkeerplaats, pad of border ligt. De belangrijkste toepassingen van de split- en grindplaten zijn opritten, parkeerplaatsen, looppaden, daktuinen, erf of bermverhardingen en uitwijkzones. We noemen dit een halfverharding. Het voordeel van een halfverharding is de snelle afwatering, door de open structuur van de split- en grindplaten in combinatie met split of grind kan regenwater sneller afgevoerd worden.
Bestand tegen zware belasting
De split- en grindplaten zijn zo sterk door hun structuur, dat belasting van zwaar verkeer geen enkel probleem is. De split- en grindplaten kunnen naar eigen wens gevuld worden met grind of split. De grootte van de korrel kan gekozen worden van 7 mm tot 22 mm voor split en 32 mm voor grind.

Voordelen

√ Eenvoudig te verwerken en aan te leggen d.m.v. koppelsysteem
√ Stapelbaar en daardoor erg compact voor transport en opslag
√ Onderhoudsarm
√ Ideaal voor o.a. opritten, paden, parkeerplaatsen, campings, golfbanen, stallingen, berm, uitwijkzones, hulpdienstroutes en boomspiegelafdekking
√ Zeer snelle afwatering
√ Spoorvrije en stabiele verharding met grind en split
√ Gevuld belastbaar tot 3.000 ton per m2
√ Ongevuld belastbaar tot 250 ton per m2
√ Getest door TNO op een oneindig stijve ondergrond
√ 100% gerecycled polypropyleen
√ 100% recyclebaar
√ Rioolontlastend
√ Lange levensduur
Milieuvriendelijk
√ 100% gerecycled polypropyleen
√ 100% recyclebaar
√ Loskoppelbaar, dus opnieuw aan te leggen
√ Ontlast het riool
√ Lange levensduur
Vorstbestendige grindplaten in HDPE
ECCOgravel grindmatten zijn vorstbestendige platen vervaardigd uit HDPE (HighDensity Polyethyleen). Grindstabilisatie uit HDPE blijft te allen tijde flexibel, zelfs bij vorsttemperaturen tot – 20°. Grindroosters die vervaardigd zijn van andere materialen zouden kunnen breken bij koude temperaturen.
Hoge drukweerstand
ECCOgravel grindmatten hebben een drukweerstand gevuld tot 400 ton/m². Ongevuld hebben de platen een drukweerstand van 90 ton/m². De drukweerstand is belangrijk omdat deze weergeeft in welke mate de plaat maximaal belast kan worden. Dankzij de hoge drukweerstand is een ECCOgravel grindplaat uitermate geschikt voor de aanleg van uw oprit, parking, brandweerwegen, etc.
Hoge wringlastweerstand
Niet alleen de drukweerstand van een grindplaat is van belang, ook de wringlastweerstand is erg belangrijk. Als je met de wagen over de grindmatten rijdt, oefen je niet alleen druk uit, maar door het manoeuvreren (draaien en keren) oefen je ook wringlasten uit op de ondergrond. Ook hier speelt het belang van HDPE (High-Density Polyethyleen): dankzij deze samenstelling blijven ECCOgravel splitplaten flexibel en zullen zij niet gaan breken of gaan vervormen op termijn. Bovendien hebben alle ECCOgravel kunststofversterkingen tussen de honingraten om zo de wringlastweerstand te verhogen.
Uiterst sterk geotextiel
Niet alleen aan de samenstelling van de plaat zelf werd veel aandacht besteed, ook de anti-worteldoek (ook wel geotextiel genoemd) werd met veel zorg uitgezocht. Het geotextiel zorgt ervoor dat de kiezeltjes niet onder de plaat terechtkomen. Het geotextiel van ECCOgravel grindroosters is 100% verlijmd, waardoor dit probleem hier niet kan optreden. Bovendien is het geotextiel vervaardigd uit polyester, wat een uitermate sterk materiaal is. Niet alleen is het geotextiel zeer sterk, maar dit heeft tevens een open structuur. Dit zorgt ervoor dat het hemelwater snel naar de ondergrond doorsijpelt, waardoor uw grindverharding proper blijft. Ten slotte kunnen plantjes en grassen zich ook minder makkelijk hechten en onkruidgroei wordt beperkt.

√ Waterdoorlatend
√ Onkruidwerend
√ Belastbaar tot 400t/m²
√ Recyclebaar
√ UV en vorst bestendig


Kenmerken van grind en split
√ Breed toepasbaar
√ Zowel licht- als zwaarbelastbaar
√ Onkruidwerend
√ Drainerende werking

Ardennersplit geel 8-16 mm

Alpengrind 8-12 mm






8-16 mm




Ardenner brokjes grijs 40-80 mm
Alpengrind 8-12 mm
Basaltsplit 8-11 mm
Basaltsplit 8-16 mm
Basaltsplit 16-22 mm
Caldera mix 2-8 mm
Elbe split 8-16 mm
54042501 54043104 54043103 77201029 54043101 54043106 54043107 54043108 77201054 54043121 54042503 54042504
Bij afname vanaf ± 15 ton losgestort, zeer interessante prijzen op aanvraag.
Benodigd: (bij een laagdikte van ca. 5 cm).
Bij gebruik van gronddoek circa 75 kg/m2 Bij gebruik van een grindstabilisatiesysteem circa 60 kg/m2
Icy Blue



Grindstabilisatiesysteem
Dankzij nidagravel gemakkelijk tot los grind. de rolstoel of is geen probleem vastgelegd in meer weg kan los grind
Kenmerken van Grind en Split
√ Breed toepasbaar
√ Zowel licht als zwaar belastbaar
√ Onkruidwerend
√ Drainerende werking












Prijs per stuk
Castle grind black 8-16 mm
Castle grind 4-10 mm
Castle grind 5-15 mm
Duitse witte kwarts 5-8 mm
Duitse witte kwarts 8-12 mm
Flachkorn 8-16mm
Gletsjergrind 8-16 mm
Granietsplit rood 8-16 mm
Grauwacke 8-16 mm
Grauwacke 14-25 mm
Gravier d'Or 0-5 mm (Dololux)
Hardsteensplit 6-16 mm
Hardsteensplit 16-22 mm
Hardsteensplit 16-32 mm
Hardsteen brokjes 60-90 mm
Icy blue split 8-16 mm
Icy blue split 16-22 mm



Bij afname vanaf ± 15 ton losgestort, zeer interessante prijzen op aanvraag.
Gronddoek

Kenmerken van grind en split
√ Breed toepasbaar
√ Zowel licht- als zwaarbelastbaar
√ Onkruidwerend
√ Drainerende werking











Olivijnsplit 0-6 mm
Olivijnsplit 8-16 mm
Olivijnsplit 16-32 mm
Schelpen 3-20 mm
Taunuskwarts 6-12 mm
Terra split 8-16 mm
Yellow Sun split 11-22 mm
Zebra split 8-16 mm
54043112 54043113 54043111 54043114 54042516 54042531 54042517 54042533 54043115 54042518 54042519 54043116 54042520
54043216 54042620
Bij afname vanaf ± 15 ton losgestort, zeer interessante prijzen op aanvraag.
Benodigd: (bij een laagdikte van ca. 5 cm).
Bij gebruik van gronddoek circa 75 kg/m2. Bij gebruik van een grindstabilisatiesysteem circa 60 kg/m2.

Ardennersplit geel 8-16 mm

Basaltsplit 8-16 mm


16-25 mm

6-14 mm

8-16 mm

Grauwackesplit 8-16 mm


Ardennersplit grijs 8-16 mm

Basaltsplit 16-32 mm


9-12 mm

14-20 mm

20-40 mm



Ardennersplit grijs 20-40 mm

10-30 mm

8-12 mm

5-7 mm


8-16mm

Grind genuanceerd 2-5 mm

2-5 mm



8-16 mm


16-22 mm

Grind genuanceerd 8-16 mm Grind genuanceerd 30-60 mm Grind genuanceerd 16-32 mm

8-11 mm






Grind genuanceerd 5-8 mm
Kenmerken van Grind en Split
√ Breed toepasbaar
√ Zowel licht als zwaar belastbaar
√ Onkruidwerend
√ Drainerende werking

Prijs per stuk
Ardennersplit geel 8-16 mm
Ardennersplit grijs 8-16 mm
Ardennersplit grijs 16-22 mm
Ardennersplit grijs 20-40 mm
Basaltsplit 2-5 mm
Basaltsplit 8-11 mm
Basaltsplit 8-16 mm
Basaltsplit 16-32 mm
Canadian slate grijs/blauw 10-30 mm
Canadian slate grijs/blauw 30-60 mm
Canadian slate groen 30-60 mm
Canadian slate violet 10-30 mm
Canadian slate violet 30-60 mm
Cappuccinosplit 8-12 mm
Caribbean split 8-16 mm
Carrara rond 12-16 mm
Carrara rond 16-25 mm
Carrara split 9-12 mm
Castle grind 5-7 mm
Castle grind 8-16 mm
Flachkorn 8-16 mm
Flachkorn 16-32 mm
Flamingo marble split 6-14 mm
Flamingo marble split 14-20 mm
Gletsjerkeien grijs 15-25 mm
Gletsjerkeien grijs 30-60 mm
Gletsjerkeien grijs 50-100 mm
Granietsplit grijs 8-16 mm
Granietsplit grijs 20-40 mm
Granietsplit rood 8-16mm
Granietsplit rood 16-22 mm
Granietsplit royal grey 16-22 mm
Grauwackesplit 8-16 mm
Grauwacke split 14-25 mm
Grind genuanceerd 2-5 mm
Grind genuanceerd 5-8 mm
Grind genuanceerd 8-16 mm
Grind genuanceerd 16-32 mm
Grind genuanceerd 30-60 mm
Icy blue split 16-32 mm
art.nr.
R2411424
R2211320
R2211322
R2602324
R2311524
R2211620
R2412324
R2311724
R2615124
R2616124
R2315624
R2615924
R2616024
R2320924
R2520324
R2310120
R2310220
R2210920
R2614924
R2616824
R2610524
R2614524
R2417024
R2417124
R2634924
R2634724
R2634824
R2615724
R2616424
R2213720
R2312124
R2615824
R2413324
R2413524
R2612524
R2612624
R2312720
R2312820
R2612924
R2601224
Zak à 20 kg
€ 6,10 € 4,20 € 5,05
Je krijgt kleur en afwisseling in de tuin door grind en split te gebruiken. Bijvoorbeeld het aanleggen van een decoratief looppad. Om het pad nog onderhoudsvriendelijker te maken is het aan te raden om als ondergrond anti-worteldoek te gebruiken. Gebruik voor zwaar belaste oppervlakken, zoals opritten, Eccogravel als ondergrond. Hierdoor kunnen personenauto’s probleemloos over het split of het grind rijden zonder dat er sporen worden achtergelaten.
Gronddoek

bont 2-6 mm

grind genuanceerd 30-60 mm

groen 7-14mm

imperial split 8-12 mm

8-16 mm

8-16 mm

Mont blanc grind 16-27 mm

15-25 mm

rood 7-14 mm

Sienna giallo split 16-25 mm

Vanillasplit 8-11 mm

sun split 16-32 mm

blanc split 8-16 mm

imperial 30-60 mm

16-25 mm

Taunus kwarts 8-16 mm

16-22 mm

sun split 32-56 mm

Morane grind genuanceerd 8-16 mm

Pandasplit 8-12 mm


Taunus kwarts 16-32 mm

Wit grind genuanceerd 8-16 mm

8-16 mm

Morane grind genuanceerd 16-32 mm

8-12 mm


Tiroler split 8-16 mm

Wit grind genuanceerd 16-25 mm
Kenmerken van Grind en Split
√ Breed toepasbaar
√ Zowel licht- als zwaarbelastbaar
√ Onkruidwerend
√ Drainerende werking

Prijs per stuk
Icy blue split 8-16 mm
Japanssplit bont 2-6 mm
Mont blanc split 8-16 mm
Mont blanc grind 16-27 mm
Morane grind genuanceerd 8-16 mm
Morane grind genuanceerd 16-32 mm
Morane grind genuanceerd 30-60 mm
Nero ebano rond zwart 15-25 mm
Nero imperial 30-60 mm
Pandasplit 8-12 mm
Perle noir antraciet 8-12 mm
Porfiersplit groen 7-14mm
Porfiersplit rood 8-16 mm
Rosso verona rond 8-12 mm
Rosso verona rond 16-25 mm
Rosso verona split 16-25 mm
Rouge imperial split 8-16 mm
Sienna giallo split 16-25 mm
Taunus kwarts 8-16 mm
Taunus kwarts 16-32 mm
Tiroler split 8-16 mm
Valencia split 8-16 mm
Vanillasplit 8-11 mm
Verde alpi split 16-22 mm
Wit grind genuanceerd 8-16 mm
Wit grind genuanceerd 16-25 mm
Yellow sun split 8-16 mm
Yellow sun split 16-32 mm
Yellow sun split 32-56 mm
Yellowsplit 8-16 mm
art.nr.
R2501120
R2311924
R2602424
R2602524
R2613324
R2613424
R2613524
R2322824
R2650024
R2420224
R2615524
R2415524
R2415824
R2419324
R2419624
R2419524
R2419424
R2602224
R2610624
R2611424
R2603124
R2418324
R2419924
R2322624
R2612224
R2612324
R2217520
R2420024
R2322124
R2416024
Zak à 20 kg
€ 8,15
€ 5,15
€ 13,30
€ 20,70
€ 5,30
€ 5,15
€ 6,60
€ 17,45
€ 6,85
€ 8,30
€ 7,65
€ 6,00
€ 7,25
€ 11,55
€ 18,85 € 11,55
€ 18,95
€ 13,85 € 9,15 € 8,80 € 13,80 € 14,05
€ 7,50 € 13,90 € 4,80 € 4,80 € 6,00 € 6,00 € 6,00 € 7,60
Je krijgt kleur en afwisseling in de tuin door grind en split te gebruiken. Bijvoorbeeld bij het aanleggen van een decoratief looppad. Om het pad nog onderhoudsvriendelijker te maken is het aan te raden om als ondergrond anti-worteldoek te gebruiken. Gebruik voor zwaar belaste oppervlakken, zoals opritten, Eccogravel als ondergrond. Hierdoor kunnen personenauto’s probleemloos over split of het grind rijden zonder dat er sporen worden achtergelaten.
Gronddoek

Slate Black
Kenmerken van Grind en Split
√ Breed toepasbaar
√ Zowel licht- als zwaarbelastbaar
√ Onkruidwerend
√ Drainerende werking








Gronddoek







Prijs per stuk
Alpengrind 8-12 mm
Basaltsplit zwart 11-16 mm
Basaltsplit zwart 16-22 mm
Basaltsplit zwart 2-5 mm
Basaltsplit zwart 8-11 mm
Black Slate 15-30 mm
Black Slate 30-90 mm
Castle grind 10-20 mm
Glitter stone black 10-30 mm
Granada split 10-18 mm
Granito grigio 11-16 mm
Icy blue grind 16-25 mm
Icy blue grind 8-16 mm
Marbre rose split 10-20 mm g
Morane grind 8-16 mm (Duitsland)
Polar white 8-16 mm
Rosalino split 8-16 mm
Rouge belge split 8-16 mm
Torino rosso split 8-10 mm
Yellow sun extra split 11-16 mm
Yellow sun extra split 8-11 mm
Yorkshire split 8-16 mm
Kenmerken van grind en split
√ Breed toepasbaar
√ Zowel licht- als zwaarbelastbaar
√ Onkruidwerend
√ Drainerende werking


Kenmerken van rotsen en blokken
√ Decoratieve stenen
√ Toe te passen voor hoogteverschillen
√ Volledig door de natuur gevormd
Decoratieve sierkeien zijn uitstekend geschikt om een muur mee te bouwen. Dit kan op verschillende manieren. Opgestapeld tussen gaas, verbonden door speciale natuursteenmortel of op authentieke wijze zoals dat in de oudheid al gebeurde. Dan wordt de muur ‘droog’ gebouwd, zonder voegmortel of cement te gebruiken. De stenen worden stevig op elkaar geplaatst waarna de voegen opgevuld worden met kleinere stenen of aarde (als er planten moeten groeien).



Prijs per kg
Breukstenen grijs 80-200 mm
Carrara rond 80-150 mm
Glas turquoise 100-300 mm
Gletsjer grijs 30-60 mm
Gletsjer grijs 50-100 mm
Grauwacke 100-300 mm
Lava 100-200 mm
Lava 200-400 mm
Lava 50-80 mm
Maaskei bont 100-300 mm
Maaskei bont 300-600 mm
Moranekei 100-200 mm
Moranekei 50-100 mm
Rosario 120-250 mm
Rosario 200-400 mm
Yellow sun 100-250 mm
art.nr.
R2415939
R2410239
R2434539
R2434739
R2434839
R2415639
R2418639
R2418739
R2418339
R2411339
R2411439
R2410639
R2410539
R2413339
R2413439
R2432039
Deze materialen zijn uitsluitend leverbaar per volle gaas of mini gaas.








Verpakkinkgseenheid
Gaasbox 900 kg
Gaasbox 1000 kg
Gaasbox 900 kg
Gaasbox 1000 kg
Gaasbox 1000 kg
Gaasbox 900 kg
Gaasbox 600 kg
Gaasbox 600 kg
Gaasbox 600 kg
Gaasbox 900 kg
Gaasbox 900 kg
Gaasbox 1000 kg
Gaasbox 1000 kg
Gaasbox 1000 kg
Gaasbox 1000 kg
Gaasbox 900 kg

Franse boomschors is afkomstig van de Franse pijnboom en wordt ook wel Pinus Maritima genoemd. Het is een duurzame en decoratieve boomschors met een mooie roodbruine kleur. De boomschors heeft een lange levensduur van wel 4 à 5 jaar door zijn harde structuur. Het formaat van deze boomschors is 18 - 25 mm.
Franse boomschors wordt toegepast als:
√ Selectieve onkruidbestrijder
√ Wandelpaden (fijnere fractie is meer geschikt)
√ Afdekking van boomspiegels en borders
√ Erfafscheiding en/of geluidswal in gaaspanelen
√ Decoratiemateriaal
√ Grondstof voor de orchideeënteelt
√ Om potplanten mee af te dekken voor de boomkwekerij
Wij adviseren een laag van 8 tot 10 cm aan te brengen om het onkruid geen kans te geven om op te komen. U kunt dan met 1000 liter 8 tot 10 m2 uitbrengen.
Mocht u worteldoek gebruiken, dan is een laag van 5 cm genoeg. U kunt dan met 1000 liter 20 m2 uitbrengen.
Bij afname vanaf ± 40 m3 losgestort, zeer interessante prijzen op aanvraag.
Prairie beplanting is toepasbaar op veel grondsoorten; een vereiste is wel dat de grond vrij gemaakt is van wortelonkruiden. De grond moet goed van structuur zijn; doorspitten, bemesten en doorfrezen. Daarna wordt over de grond een laag van 8 cm terras & trends Caldera Mix aangebracht. De Caldera Mix is een mengsel van lavagesteente. Op dit materiaal worden de planten uitgezet waarna ze met een speciale plantschop worden geplant. Door de speciale samenstelling heeft onkruid nagenoeg geen kans van kiemen. Een bijkomend voordeel is dat het materiaal voldoende water vasthoudt. Hierdoor hebben planten geen last van droge zomers, waardoor in het voorjaar de planten sneller boven de grond staan dan in een traditionele border.
terras & trends Caldera Mix bestaat uit twee verschillende soorten vulkanische materialen uit verschillende lagen van een groeve.
Een prairietuin is een onderhoudsarm beplantingssysteem, waarbij een natuurlijk evenwicht ontstaat tussen planten. In tegenstelling tot andere beplantingswijze worden er geen groepen van eenzelfde plant neergezet, zoals bijvoorbeeld in borderbeplanting. Wel komen de planten terug op verschillende plekken binnen de oppervlakte.
De combinaties van sterke vaste planten en siergrassen geven vijf tot zes keer per jaar een volledig ander beeld in kleur en structuur. Het beeld is het hele jaar rond aantrekkelijk. Een prairietuin met Caldera Mix is een stabiel systeem dat weinig tot geen onkruid toelaat, omdat de planten diep wortelend zijn.
Kenmerken van terras & trends Caldera Mix:
√ Goede vochthuishouding: Caldera Mix kan in droge periodes tot een derde van zijn gewicht aan water vasthouden.
√ Caldera Mix heeft een natuurlijke uitstraling.
√ Onkruidwerend vermogen.
√ Verhindert structuurbederf van de grond.
√ Houdt de warmte van de opgewarmde grond vast.
√ Belet overvloedig uitzaaien van planten.

0,3 m3
art.nr. 77201054
77201056 Bigbag € 169,00 € 80,00
Bij afname vanaf ± 15 ton losgestort, zeer interessante prijzen op aanvraag.


Nobre Cál Halfverharding
Nobre Cál is een fijnkorrelig breekmateriaal dat zeer geschikt is als halfverharding. Dit materiaal is afkomstig uit natuurlijk kalkgesteente en het heeft een hoog gehalte calciumcarbonaat.



Kenmerken van Nobre Cál
√ 100% Natuurlijk
√ CO2 Neutraal
√ Onderhoudsarm
√ Natuurlijke kleuren
Prijs


Prijzen losgestort op aanvraag.
Olivijn is een steensoort (mineraal) dat van nature de eigenschap heeft dat het CO2 bindt. Door de olivijnbrokjes neemt het bufferend vermogen van water en plantenwortels flink toe. Ook kan Olivijn gebruikt worden om een schuurdak mee te bedekken, waarop je eventueel weer sedum kunt laten groeien. Door bijvoorbeeld Olivijn uit te strooien over oppervlakken, zal het aanwezige CO2 worden gebonden tot een bicarbonaat (kalk) dat goed is voor het milieu. Olivijn is ook zeer geschikt als halfverharding in paden of opritten. Ook heeft Olivijn een sierlijke functie en zorgt het ondertussen voor een beter leefklimaat in uw eigen tuin. Het is dus niet alleen goed voor de tuin, maar ook voor onze planeet.
Prijzen losgestort op aanvraag.
Kenmerken van Nobre Cál
√ CO2 Bindend
√ Zeer hard
√ Geschikt voor zware belasting
√ Uniek splitsoort




Kenmerken van Komex
√ Verkrijgbaar in vier kleuren
√ Zwaar belastbaar
√ Een natuurlijke uitstraling
√ Waterdoorlatende eigenschappen en bestand tegen erosie
Koersmix-halfverhardingen hebben een hoge draagkracht en een natuurlijke uitstraling. Door hun unieke samenstelling zijn de Koersmixen waterdoorlatend en reduceren ze hittestress, wat bijdraagt aan het tegengaan van de opwarming van de aarde. Koersmixen zijn uitermate geschikt voor wandel- en fietspaden, boomspiegels, opritten, parkeerplaatsen en wegen.
KoMex® is verkrijgbaar in naturel, gele, roodbruine en antracietkleur. KoMex krijgt zijn stabiliteit door een mineraal bindmiddel en is heel geschikt voor paden in parken en wandelen fietspaden.
KoMex® BIO is zachtgeel van kleur en is gebonden door middel van een plantaardig bindmiddel. De combinatie van steensoorten en biopolymeren zorgt voor uitstekende, duurzame eigenschappen eigenschappen. Dit materiaal werkt als een adhesieve gel en is in staat grote hoeveelheden vocht op te nemen, waardoor het materiaal weer in bepaalde mate flexibel is en zelfherstellende eigenschappen krijgt. KoMex BIO is zwaarder te belasten dan gewone KoMex.
DurEko-mix® is qua uitstraling vergelijkbaar met schelpen (grijs gemêleerd). Het is iets sterker en stabieler dan KoMex. In DurEko-mix wordt ook een mineraal bindmiddel gebruikt. Het product is heel geschikt voor wandel- en fietspaden, op hellingen, landbouwwegen en parkeerplaatsen.
DurEko-mix® BIO wordt net als KoMex® BIO gebonden door middel van een plantaardig bindmiddel. Het product heeft daardoor minder last van stuiven en is zwaarder te belasten dan de mineraalgebonden DurEko-mix®
Prijs per stuk
KoMex Naturel
KoMex Geel
KoMex Antraciet
KoMex Rood
KoMex Bio Naturel
DurEko-Mix
DurEko-mix BIO
art.nr.
54042401
54042402
54042403
54042404
54042405
54042406
24042407 Bigbag
Prijzen losgestort op aanvraag.
€ 211,75
€ 211,75
€ 211,75
€ 231,55
€ 224,95
€ 217,25
€ 228,80








Teelaarde Plus is een kant-en-klaar eindproduct. Het hoeft niet gemengd te worden met de bestaande grond, waardoor er direct in geplant kan worden. Teelaarde Plus is onkruidarm en heeft een hoog organisch stofgehalte. Ideaal voor bemesting in het openbaar groen en voor hoveniers of particulieren.
Kenmerken van Teelaarde Plus
√ Goede basis voor vaste beplanting
√ Goede beluchting
√ Werkt niet verzurend
√ Vrij van verontreinigingen
√ Homogeen van structuur
√ Gemakkelijk te verwerken
√ Hoge aantallen micro-organismen
√ Waterdoorlatende eigenschappen
√ Bestaat uit organische stoffen

Grind, split & ondergrond Teelaarde plus/Substraat Intensief 0-6
Mineraal-organisch substraat, zoutarm, ontmengingsbeveiligd samengesteld uit de basiscomponenten löss, lava, puimsteen, zand en compost. Voor de intensieve vergroening. Geoptimaliseerd voor de aanleg van gazonoppervlakken.
Details:
√ Openporig en voorzien van een hoog totaal porievolume, drukvast, duurzaam stabiel
√ Goede voedingsstoffenbuffering, pH-stabiel, kiem- en groeibevorderend
√ Vrij van wortelonkruiden
√ Verwerkbaar bij nat weer en bij lichte vorst
√ Ook na lang aanhoudende of sterke neerslag na korte tijd weer bruikbaar
√ Geschikt voor zaaien en het leggen van graszoden, bij dakvergroeningen voor aanbrengdiktes tot ongeveer 40 cm moet met permanente bewatering rekening worden gehouden
Toepassingsgebieden:
√ Gazonzaaien bij groenoppervlakken, binnenplaatsen en dakvlakken
√ Sanering en nieuwe aanleg van gebruiks- en siergazons
√ Als vervanging van grond, voor de aanplant met vaste planten en houtachtigen
√ Permanente potplanting met hout-achtigen en meerjarige vaste planten

Kenmerken van Substraat Intensief 0-6
√ Hoge waterbergingscapaciteit
√ Voldoende waterdoorlatend vermogen
√ pH-stabiel, kiem- en groeibevorderend
√ Hoog bufferend vermogen van voedingsstoffen
Prijs per stuk
Bigbag á 1 m3
Mini bigbag á 0,3 m
Bij afname vanaf ± 20 m zeer interessante prijzen op aanvraag.


Kenmerken van Ecobase glasschuim 800+
√ Lichtgewicht en goed belastbaar
√ Duurzaam en circulair, lage MKI
√ Uitstekende fundering
Het materiaal dat we als nieuwe ontwikkeling op het gebied van lichtgewichtmaterialen gebruiken is EcoBASE glasschuim 800+. Dit materiaal wordt geproduceerd in Duitsland en wordt daar al sinds enkele decennia gebruikt als isolatiemateriaal in de bouw, als ophoging in infraprojecten en als ophoging in landschapsprojecten.
EcoBASE glasschuim 800+ bestaat uit een glasmeel dat vrijkomt bij de recycling van glas.


Het verdichten kan worden uitgevoerd met een lichte trilplaat. Er dient rekening te worden gehouden met een inklinking van circa 13 – 15%.
Bij afname vanaf ± 40 m3 losgestort, zeer interessante prijzen op aanvraag.

Toebehoren Ecobase glasschuim 800+
Prijs per m²
Romfix E`Grid 3030 rol 3,90x51,3 meter (200m²/rol)
R`Cel type 150/1 rol 3,18x10,9 meter (34,66 m²/rol)
R`Cel type 200/1 rol 3,18x10,9 meter (34,66m²/rol)
Yalibims is een licht ophoog- en aanvulmateriaal, afkomstig van het eiland Yali in Griekenland. De chemische samenstelling van Yalibims, het resultaat van de eruptievorm, blijkt van een hoog siliciumgehalte van ruim 70%. Yalibims is hierdoor uitzonderlijk geschikt om in zure omstandigheden te worden verwerkt, zoals veengebieden.
Yalibims is een milieuvriendelijk vulkanisch product, dat o.a. geschikt is in de volgende toepassingen:
√ Als isolerend aanvulmateriaal onder gebouwen en woningen.
√ Als aanvulmateriaal bij de aanleg van rioleringen en leidingen.
√ Als funderingsmateriaal bij de aanleg van wegen in zettingsgevoelige gebieden.
√ Als aanvulmateriaal voor sloten en vaarten, wanneer een ongelijke zetting verwacht moet worden.
√ Als licht aanvulmateriaal achter damwanden.
√ Als mengmateriaal in de land- en tuinbouw.
√ Als waterbergend funderingsmateriaal (ca. 50% waterberging is mogelijk) onder open bestratingsmateriaal.
Eigenschappen:
De conclusie is dat het een bijzonder schoon materiaal is en in een dikte van 20 meter toegepast kan worden. Yalibims is een vulkanisch product met een grote porositeit en daardoor een groot contactoppervlak. Hierdoor kunnen bacteriën (micro-organismen) zich gemakkelijk vestigen, die op hun beurt de verontreinigingen (olie, pak e.d.) afbreken en omzetten in milieuvriendelijke stoffen.
De constructie bestaat uit:
√ Een verhardingsoppervlak van betonstraatstenen met een waterpasserende eigenschap.
√ De voegen worden opgevuld met fijn split (2-6 mm) voor maximale waterdoorlaatbaarheid en minimale vervuiling.
√ Een straatlaag van 5 cm split 2-6 mm.
√ Een fundering van Yalibims met een dikte van 30 à 40 cm.
√ Een drain met een diameter van 80 mm voert in geval van een te extreme regenbui het overtollige water af naar het oppervlaktewater.
√ Een waterdoorlatend weefseldoek dat lagen van elkaar scheidt.

Bij afname vanaf ± 40 m3 losgestort, zeer interessante prijzen op aanvraag.
Kenmerken van Yalibims
√ Lichtgewicht vulkanisch puimsteen
√ Hoog siliciumgehalte van ruim 70%
√ Betere mineralenbalans in de bodem
√ Grote waterdoorlatendheid


Brekerzand


Ophoogzand Speelzand Inveegzand basalt 0,02-2 mm

Voegzand/Split
Prijs per stuk
Brekerzand
Speelzand
Metselzand
Zilverzand
Ophoogzand
Inveegzand basalt 0,02-2 mm
Inveegsplit zwart 1-3 mm
Inveegsplit rood 0-3 mm
Inveegsplit geel 1-3 mm
Onkruidvrij voegzand neutraal
Onkruidvrij voegzand steengrijs
Onkruidvrij voegzand basalt
à 20 kg € 3,10 € 3,35 € 4,20 € 2,95 € 8,85 € 6,70 € 5,40 € 7,90

Metselzand

Inveegsplit zwart 1-3 mm
Voegzand/Split
Prijs per stuk
Straatzand Brekerzand 0-2 mm art.nr. R1110120 R1411124 R1210420 R1310220 R2502820 R2417624 R2417824 R2417924 12001168 12001170 12001167
€ 21,50 € 26,50 € 26,50

Drainagemortel/Terrasstabilisatie
Prijs per stuk
Varistone Stabimix, zak à 20 kg
Drainzand (grof), big bag à 1500 kg
Brekerszand, big bag à 1500 kg
Ondergrond/Drainagemortel
Prijs per stuk
Monokorn 4-8 mm, big bag à 1500 kg
Monokorn 4-8 mm, mini bag à 500 kg
verbruik bij 5-8 cm laagdikte ca. 8-10 kg/m² ca. 75-120 kg/m² ca. 75-120 kg/m²
Tubag bindmiddel tbv monokorn, zak à 25 kg
Tubag flexibele tegellijm, zak à 25 kg
Varistone Drainagemortel DM 2-6, 20 ton per silo
Varistone Drainagemortel TDM 2-6, 20 ton per silo


Inveegsplit geel 1-3 mm
verbruik bij 5-8 cm laagdikte ca. 75-120 kg/m² ca. 75-120 kg/m² ca 19-30 kg/m² ca 1,5-2 kg/m²
58,70 op aanvraag op aanvraag
Scan de QR code voor actuele informatie.
Voegzand/Spit/Drainagemortel/Snelbeton/Ondergrondversteviger
Kenmerken van Varistone®
√ Geschikt voor het vastzetten van betonpoeren, palen en piketten
√ Gemakkelijk te verwerken
√ Snelhardende mortel
√ Zonder vooraf met water te mengen
Kenmerken van Varistone®
√ Ondergrondversteviger op basis van trascement
√ Voor het stabiliseren van het zand- of splitbed
√ Minder kans op vlekvorming
√ Eenvoudig te verwerken
Kenmerken van Varistone® √ Kant en klare drainmortel
(verbruik




Nachttuinen
Het in-lite systeem
Noviteiten
Micro Scope
Smart bridge Touch dimmer
Lichtbundels
Grondspots
Staande lampen
Wandlampen
Buitenspots
Plafondlampen
Lijnverlichting
Systeem
Toebehoren

Het in-lite systeem is geschikt voor iedere tuin. Het is gebaseerd op laagspanning waardoor het eenvoudig en veilig aan te sluiten is. De verlichting is gemaakt van hoogwaardige materialen en voorzien van de nieuwste leds. Hierdoor is in-lite duurzaam en wordt iedere in-lite tuin gegarandeerd sfeervol verlicht.
in-lite ontwerpt de armaturen en het systeem zelf. Dagelijks is in-lite bezig met het design van hun producten. Zij vinden dat alles wat ze bedenken er goed uit moet zien en van hoge kwaliteit moet zijn. Alleen zo kan in-lite 5 jaar garantie geven. Tot slot besteed in-lite veel tijd aan het zo intuïtief mogelijk houden van het systeem. Het installeren en gebruiken van het in-lite systeem moet zo simpel mogelijk zijn. En dat is het inmiddels al ruim 25 jaar.
De concepten van in-lite bestaan uit een serie producten van verschillende categorieën maar met één en hetzelfde uiterlijk. Zo kun je staande lampen en wandlampen combineren zonder eenheid in je tuin te verliezen.
Met dit concept kan nagenoeg iedereen uit de voeten. Het ontwerp is minimalistisch en het licht heeft een kenmerkend strak lichtbeeld.




Het SWAY concept is een unieke lichtserie die volledig opgaat in de natuur. Door natuurlijke vormen en rondom schijnende lichtuittrede is deze serie opvallend onopvallend. Geniet van subtiel fonkelend licht tussen de grassen en op je terras.




Het EVO concept staat voor design en premiumkwaliteit.
EVO is verkrijgbaar in geïntegreerde, staande, wand- en opbouwarmaturen en biedt oneindig veel mogelijkheden.



Bij het DISC concept staan rondingen en zachte vormen centraal, waarin duidelijke elementen uit de natuur zijn verwerkt. Het concept bestaat uit staande-, hang- en wandlampen.



AIM is verkrijgbaar in drie verschillende hoogtes: 80 cm, 40 cm en 16 cm. Perfect voor het verlichten van beplanting in borders en paden.



Met het unieke in-lite systeem is het mogelijk om de verlichting stap voor stap uit te breiden. Begin met het aanleggen van voldoende kabels in je tuin en gedurende de tijd sluit je telkens enkele nieuwe armaturen aan. Zo ontstaat binnen de kortste keren jouw droomtuin!




Wil je de kabel splitsen of aftakken? Gebruik dan een kabelverbinder (CC-2) en binnen een handomdraai heb je het kabelplan gesplitst.
De HUB is een transformator die de verlichting in de tuin aanstuurt. Er is keuze uit vier verschillende HUBS: HUB-50, HUB100, SMART HUB-150 en SMART HUB-300. Weet je niet welke HUB je moet kiezen? Tel de VA-waarde van je verlichting bij elkaar op om te weten welke transformator geschikt is voor jouw tuin.
Vanuit de transformator wordt de 72V kabel uitgerold en langs de armaturen geleid. Je kunt kiezen uit twee soorten: de 10/2 en de 14/2 kabel.
Is de kabel te kort? Gebruik dan verlengkabels. Ook handig is de SPLITTER, waarmee je twee armaturen aansluit op één verlengkabel.
De kabel kan op een willekeurige plek eindigen en hoeft geen gesloten systeem te vormen. Het uiteinde van de kabel werk je af met afdekdopjes (CABLE CAPS), zodat er geen vocht bij kan.
leder armatuur wordt geleverd met een EASY-LOCK. Hiermee verbind je het armatuur op een willekeurige plek met de hoofdkabel.






SMART BRIDGE is een accessoire voor het in-lite SMART systeem die in feite een brug naar het internet maakt. De internetverbinding maakt het mogelijk om het in-lite SMART systeem te integreren met 'Smart Home' systemen zoals Google Home, Apple HomeKit en Amazon Alexa. Ook met spraakcommando's kan dan de verlichting worden aangezet. Sluit eenvoudig aan jouw Smart Home systeem.


MICRO SCOPE is de allerkleinste spot van in-lite. Met dit armatuur licht je gemakkelijk kleinere objecten en lagere beplanting uit. MICRO SCOPE is subtiel in formaat en lichtoutput, maar met de hoogwaardige afwerking past deze perfect in het in-lite SCOPE-concept.
Wil je moeiteloos de intensiteit van je wand- en hanglampen aanpassen? Ontdek dan de TOUCH DIMMER. Met dit handige accessoire kun je elke buitenlamp individueel dimmen en kiezen uit vier verschillende lichtstanden. Het beste van alles? Voor de TOUCH DIMMER heb je geen SMART systeem nodig, waardoor bedieningsgemak binnen handbereik is.

Is gemakkelijk in te stellen met de in-lite app. Naast het instellen van verschillende kleuren is het aanpassen van de lichtintensiteit ook mogelijk.



Zodra de zon ondergaat verdwijnen geleidelijk alle kleuren uit de tuin. Wanneer de verlichting aangaat komt de tuin opnieuw tot leven, en mooier dan ooit. Er ontstaan nieuwe contrasten, schaduwen en effecten die overdag niet zichtbaar zijn. De gezelligheid gaat door en je kunt genieten tot in de late uren. Met in-lite maak je buiten bijzonder.







Ben je op zoek naar een armatuur om iets uit te lichten?
Kies dan één van de spots uit de categorie grondspots of buitenspots. Het juiste type spot bepaal je aan de
hand van twee punten: de ondergrond waarin je de spot gaat verwerken en de afmeting van het te verlichten element. We hebben de spots voor je op een rij gezet.














Grondspots verwerk je bijvoorbeeld in bestrating, hout of grind. Overdag gaan ze volledig op in hun omgeving terwijl ze je ’s avonds verrassen met hun bijzondere effect. Integreer LED grondspots met een zacht diffuus licht in je terras of gebruik juist armaturen met een (richtbaar) accentlicht om een aangrenzende haag aan te lichten.











PUCK / PUCK 22
€ 120,00 / € 73,00
Installatiewaarde: 2,50 VA / 0,60 VA
FUSION 22 € 55,00 FUSION 22 RVS € 64,00
Installatiewaarde: 0,20 VA



€ 105,00
Installatiewaarde: 1,00 VA
HYVE 22 € 55,00 HYVE 22 RVS € 64,00
Installatiewaarde: 0,20 VA
HYVE
Installatiewaarde: 0,80 VA





€ 140,00 / € 64,00
Installatiewaarde: 0,80 / 0,50 VA
€ 154,00
€ 105,00
LUNA € 145,00
Installatiewaarde: 5,00 VA SMART FLUX
Installatiewaarde: 9,50 VA
264,00
€ 106,00
Installatiewaarde: 2,50 VA
234,00
234,00
Installatiewaarde: 4,70 VA BIG FLUX € 159,00
Installatiewaarde: 4,20 VA
Installatiewaarde: 11,90 VA EVO GROUND 300 € 199,00
Installatiewaarde: 1,00 VA EVO FLOOD € 230,00
Installatiewaarde: 8,00 VA
We beschouwen gekleurde verlichting als een ‘extra laag’ in de tuin. Het is het soort verlichting dat je aanzet om de sfeer te bepalen tijdens intieme gesprekken.
Het assortiment staande lampen van in-lite bevat armaturen voor tussen de beplanting, voor aan een oprit en aan een pad. Heb je verschillende planthoogtes in je tuin? Combineer met de LOW en HIGH armaturen. Bekijk het volledige assortiment staande lampen op terrasentrends.nl






ACE HIGH / ACE
€ 239,00 / € 199,00
Installatiewaarde: 5,30 VA
VOQUE / BIG VOQUE € 399,00 / € 699,00
Installatiewaarde: 5,20 VA / 8,00 VA
SWAY TABLE € 249,00 SWAY TABLE BIG GREEN EGG EDITION € 299,00








SWAY / MINI SWAY € 118,50 / € 108,50
Installatiewaarde: 1,00 VA
LIV / LIV LOW
Installatiewaarde: 2,50 VA
/ € 134,00
EVO / EVO LOW € 309,00 / € 249,00
Installatiewaarde: 2,10 VA
DISC / DISC
€ 223,00 / € 200,00
Installatiewaarde: 4,90 VA
Dit is een greep uit het assortiment wandlampen van in-lite. Met de wandlampen maak je een statement in jouw tuin. De armaturen hebben een strak design en zijn verkrijgbaar in verschillende kleuren. Bekijk het volledige assortiment wandlampen op terrasentrends.nl









CUBID / BIG CUBID
€ 62,00 / € 115,00
Installatiewaarde: 0,60 VA / 2,00 VA
Installatiewaarde: v.a. 0,60 VA
v.a. € 69,00




ACE (UP-) DOWN
v.a. € 159,00 / € 199,00
Installatiewaarde: v.a. 5,30 VA


EVO DOWN v.a. € 224,00
Installatiewaarde: v.a. 2,10 VA
HALO (UP-) DOWN v.a. € 179,00 / € 215,00
Installatiewaarde: v.a. 5,00 VA
SWAY WALL € 128,00 MINI SWAY WALL € 118,00
Installatiewaarde: 0,60 VA / 1,00 VA
Met de buitenspots van in-lite maak je van een kleine struik tot een flinke boom een echte blikvanger! Door de duurzame behuizing en een hoogwaardige coating zijn de armaturen perfect bestand tegen de meest extreme weersomstandigheden.




MICRO SCOPE € 69,00
Installatiewaarde: 1,10 VA
MINI SCOPE € 99,00
Installatiewaarde: 2,00 VA
MINI SCOPE DUO € 219,00
Installatiewaarde: 4,00 VA
SCOPE € 119,00
Installatiewaarde: 5,20 VA





SMART SCOPE TONE € 189,00
Installatiewaarde: 9,5 VA
BIG SCOPE € 159,00
BIG SCOPE NARROW € 159,00
Installatiewaarde: 8,00 VA
SUB € 189,00
Installatiewaarde: 5,60 VA AIM € 199,00 AIM LOW € 159,00 AIM EXTRA
€ 139,00 AIM LIGHTHEAD € 109,00
Installatiewaarde: 2,10 VA
De plafondarmaturen van in-lite zijn perfect voor het verlichten van pergola’s, veranda’s en overkappingen en zijn niet verblindend. Met de LED strips (Evo Flex & Evo Hyde) van in-lite verlicht je traptreden, vijverranden en overstekken in muurelementen. Beide series zijn in verschillende formaten te verkrijgen.





MINI SCOPE CEILING € 99,00
SCOPE CEILING € 129,00
Installatiewaarde: 2,00 VA / 4,80 VA


AIM CEILING € 139,00
AIM LIGHTHEAD € 109,00
Installatiewaarde: 2,10 VA
SWAY PENDANT € 146,00
SWAY PENDANT
100-230V € 258,00
Installatiewaarde: 1,00 VA / 7,10 VA
DISC PENDANT € 169,00
DISC PENDANT
100-230V € 274,00
Installatiewaarde: 4,90 VA / 11,80 VA
Maximaal gebruiksgemak staat centraal in onze armaturen. In het DISC-concept dim je de 230V hanglampen eenvoudig zonder dimmer, maar met een handbeweging: Human Dimming.
Stijlvol en zeer veelzijdig; dat is de lijnverlichting voor buiten van in-lite. Zo subtiel als ze zijn in hun voorkomen, zo groots is het lichteffect.



EVO HYDE 180 € 91,00
EVO HYDE 550 € 126,00
Installatiewaarde: 0,60 VA / 2,10 VA
EVO FLEX 1, 2, 3
SMART EVO FLEX 1, 2, 3
Installatiewaarde: 9,90 VA / 15,70 VA / 20,20 VA
€ 163,00
SMART EVO FLEX TONE 1, 2, 5 v.a. € 203,00
Installatiewaarde: 4,50 VA / 7,50 VA / 14,50 VA
Het systeem van in-lite is eenvoudig te installeren en erg betrouwbaar. Op alle onderdelen van het systeem geldt dan ook 5 jaar garantie. Hieronder alle systeemonderdelen op een rij.







HUB-50 € 151,00
HUB-100 € 176,00
SMART HUB-150 € 398,00
SMART HUB-300 € 699,00




HUB PROTECTOR € 37,00
SMART HUB PROTECTOR 1 € 45,00
SMART HUB

PROTECTOR 2 € 49,00 CABLE CAP




Afwateringssystemen
terras & trends EPDM Drain mini 65/60
terras & trends EPDM Drain 65/100
terras & trends EPDM Drain 50/100
terras & trends EPDM Drain 100/100
terras & trends EPDM Topstone
Aco Hexaline
Aco Slotline
terras & trends EPDM Afvoerput
terras & trends EPDM rubberfolie
Zwembadranden
Schellevis Oudhollandse
Natuursteen zwembadranden
Kunstgras
Rubbertegel
Watertafels
Planten- & bloembakken
Plantenbakken staal
Metalic Line
Carrez
Ecopots
Bloembak Module+
Schaduwdoeken
Schaduwdoeken
Schaduwpergola
tuininspiratie

Kenmerken van Drain mini 65/60
√ Subtiel afwateringselement
√ Moderne uitstraling
√ Makkelijk te installeren
terras & trends
Drain Mini 65/60
Aluminium grijs
art.nr. 10001061
€ 29,95



Hoekstuk 65/60
Hoekstuk 65/60
Aluminium grijs
art.nr. 10001067
€ 36,05

Eindplaat gesloten 65/60
art.nr. 10001065
€ 5,75

Hijsgereedschap voor afvoerroosters
art.nr. 10001096
€ 14,80

terras & trends
Drain Mini 65/60
Aluminium zwart
art.nr. 10001062
€ 32,95

Aluminium zwart
art.nr. 10001068
€ 40,10

Eindplaat met horizontale uitloop Ø50mm 65/60
art.nr. 10001066
€ 5,90


T- stuk 65/60
T- stuk 65/60
Aluminium grijs
art.nr. 10001069
€ 40,10

Gootverbindingsstuk
art.nr. 10001063
€ 6,10
Scan de QR code voor actuele informatie.
Aluminium zwart
art.nr. 10001070
€ 43,70

Gootverbindingsstuk met verticale uitloop Ø75 mm 65/60
art.nr. 10001064
€ 7,30


terras & trends
Drain 65/100
Aluminium
€ 30,95

Hoekstuk 65/100 Aluminium grijs
10001055 € 37,95

T- stuk 65/100

terras & trends
Drain 65/100

Hoekstuk 65/100
terras & trends Drain 65/100
43,95




65/100

T- stuk 65/100

gesloten 65/100

Eindplaat met horizontale uitloop Ø50mm 65/100


Gootverbindingsstuk 65/100
10001051 € 6,40

Zandvanger 65/100
art.nr. 10001097
€ 16,05

Gootverbindingsstuk met verticale uitloop Ø75 mm 65/100
10001052 € 7,65

Hijsgereedschap voor afvoerroosters art.nr. 10001096
€ 14,80


Kenmerken van Drain 65/100
√ Subtiel afwateringselement
√ Moderne uitstraling
√ Makkelijk te installeren
√ Zandvanger toepasbaar

Kenmerken van Drain 50/100 √ Subtiel afwateringselement
√ Moderne uitstraling √ Makkelijk te installeren √ Perfect voor op een balkon














terras & trends Drain 100/100
Aluminium grijs
art.nr. 10001081
€ 56,95

Hoekstuk 100/100
Aluminium grijs
art.nr. 10001087
€ 68,20

Eindplaat gesloten 100/100 art.nr. 10001085
€ 7,55

terras & trends Drain 100/100
Aluminium zwart
art.nr. 10001082
€ 66,95

Hoekstuk 100/100
Aluminium zwart
art.nr. 10001089
€ 74,35

Eindstuk met horizontale uitloop Ø75 mm 100/100 art.nr. 10001086
€ 8,35

Hijsgereedschap voor afvoerroosters
art.nr. 10001096
€ 14,80



T-stuk 100/100
Aluminium grijs
art.nr. 10001088
€ 69,00

Gootverbindingsstuk 100/100 art.nr. 10001083
€ 8,40

T-stuk 100/100
Aluminium zwart
art.nr. 10001090
€ 75,00

Gootverbindingsstuk met verticale uitloop Ø110 mm 100/100 art.nr. 10001084
€ 9,45

Kenmerken van Drain 100/100
√ Subtiel afwateringselement
√ Moderne uitstraling
√ Makkelijk te installeren
√ Extra volume voor afwatering


Kenmerken van Drain 100/100
√ Subtiel afwateringselement
√ Moderne uitstraling
√ Makkelijk te installeren
√ Unieke uitstraling d.m.v. vulling met grind/split


Hijsgereedschap voor










Zwart aluminium met afsluitkap
200 x 200 mm
zijuitloop: 75 mm
onderuitloop: 75/110 mm
art.nr. 10001094
€ 56,10

Grijs aluminium met afsluitkap
200 x 200 mm
zijuitloop: 75 mm
onderuitloop: 75/110 mm
art.nr. 10001093
€ 45,75
Kunststof goot incl. kunststof of verzinkt stalen sleufrooster



Gootelement zwart incl. zwart kunststof rooster
L= 1000 mm - H= 78 mm art.nr. 43813058 € 30,90
Universele eindplaat kunststof t.b.v. ACO Hexaline 2.0 en ACO Euroline art.nr. 43853251 € 8,40
Hoekelement zwart incl. zwart kunststof rooster
L= 126x126 mm - H= 78 mm art.nr. 43813059 € 32,35



Volledig kunststof met asymmetrisch sleufopzetstuk - schachthoogte 60 mm - sleufbreedte van 17 mm


Gootelement incl. 2 sleufopzetstukken
L= 1000 mm - H= 138 mm
art.nr. 43813365 € 59,35
Eindplaten set onderuitloop Ø 110 mm
t.b.v. ACO Hexaline 2.0 en ACO Euroline art.nr. 43813066 € 18,50


Gootelement zwart incl. verzinkt stalen sleufrooster
L= 1000 mm - H= 78 mm art.nr. 43852277
€ 33,95
Universele eindplaat kunststof met PVC en zijuitloop Ø 110 mm art.nr. 43813096 € 25,55
Zandvang element H= 250 mm art.nr. 43813185 € 62,80



Sleufrooster gietijzer
L= 500 mm
art.nr. 43813110 € 30,10
Eindplaten set onderuitloop Ø 110 mm t.b.v. ACO Hexaline 2.0 en ACO Euroline art.nr. 43813066 € 18,50
Riool Sifon Ø 110 cm PVC art.nr. 43813186 € 61,35
Gootelement zonder rooster art.nr. 43853324
€ 20,75

Opzetstuk verzinkstaal t.b.v ACO Hexaline/Euroline toepasbaar op polymeer- en kunstof onderbak
L= 1000 mm - H= 65 mm
art.nr. 43813095
€ 115,80
Hoekelement met spie Ø 110 mm en voorvorming voor onderuitloop
L= 126x126 mm - H= 146 mm
art.nr. 43813072
€ 38,05
Scan de QR code voor actuele informatie.


terras & trends EPDM rubberfolie
Voordelen van de EPDM rubberfolie:
√ Door het werken met op maat gemaakte membranen is de kans op lekkage te verwaarlozen
√ Veilige en eenvoudige verwerking door middel van verlijming
√ Van nature UV- en ozonbestendig
√ Blijvend flexibel
√ Loogt niet uit
√ Bevat geen weekmakers
√ Bewezen levensduur van meer dan 50 jaar
√ Onderhoudsarm
√ Ook geschikt als dakbedekking voor overkappingen
Eenvoudige verwerking:
Het grote voordeel van het werken met EPDM membranen is dat het sneller gaat. Het vlak wordt in één keer afgedekt. Geen extra naadverbindingen dus. De membranen zijn makkelijk aan te brengen. Na de juiste positionering is het uitrollen, uitvouwen, terugrollen en verlijmen.

terras & trends EPDM rubberfolie
Prijs per m2
Breedte 420 cm, 1 mm dik
Breedte 560 cm, 1 mm dik
Breedte 700 cm, 1 mm dik
Toebehoren rubberfolie
Prijs per stuk
terras & trends EPDM Spuitlijm (750 ml)
terras & trends multikit (290 ml)
terras & trends EPDM lijm (blik a 5 ltr) Hemelwaterafvoer, PE buis doorsnede 75 mm/400 mm
Vraag ook eens naar de mogelijkheden betreft een 3D gelaste vijver! Prijs op aanvraag aan de hand van een detailtekening. art.nr. 43890331 43890332 43890333 € 16,55 € 16,55 € 16,55
Scan de QR code voor actuele informatie.
Grijs


Kenmerken van Oudhollandse Zwembadranden
√ Voor een strakke afwerking van je zwembad
√ Leverbaar in verschillende materialen, zoals natuursteen en beton
√ Beschikbaar in diverse kleuren
√ Anti-slip









Diamond 60 mm

Diana 45 mm
Kenmerken van kunstgras
√ Niet gevoelig voor weersinvloeden
√ Bijna niet van echt gras te onderscheiden
√ Verkrijgbaar in meerdere kleurnuances
√ Meerdere poolhoogtes
√ Onderhoudsarm










Kunstgras
Kunstgras Specials
Kunstgras toebehoren
Prijs
Kunstgrashaken
Drukverdelend
Lijmband
Kunstgras spuitlijm 500ml
Kunstgraskit 300ml
Instrooizand zak 25 kg (ca. 7,5 kg/m²)












Rubbertegel (SBR) met pen/gat verbinding
Prijs per stuk
Zwart
Rood
Groen
Grijs
Verbindingspennen zwart
Prijs per stuk
Zwart
Rood
Groen
Grijs
Verbindingspennen zwart
Pennen t.b.v. tegels 02082401 € 0,25 (Benodigd 4 stuks per tegel)
Kunstgrastegel
Prijs per stuk
Kunstgrastegel 50x50x3 cm
Pennen t.b.v. tegels (Benodigd 4 stuks per tegel)



18,80
100x100x4,5 cm Valhoogte 1,50 mtr.
€ 64,95 € 72,30
€ 78,50
18,80 art.nr. 02082067 02082068 02082069 02082070
€ 78,50
50x50x3 cm met een pen/gat verbinding.
cm zonder pen/gat verbinding.







Wit







Kenmerken van plantenbakken van staal
√ Vorstbestendig
√ Leverbaar in verschillende kleuren en maten
Plantenbakken Staal (zonder bodem)
Prijs per stuk (LxBxH)
30x120x40 cm
60x60x40 cm
60x90x40 cm
60x120x40 cm
90x90x40 cm
90x120x40 cm
120x120x40 cm
60x60x60 cm
60x90x60 cm
90x90x60 cm
Toebehoren
Prijs per stuk
art.nr. 12005563
12005564 12005565 12005566 12005567 12005568 12005569 12005546 12005547 12005548
Corten € 152,65
€ 125,25 € 146,30 € 173,70 € 167,35 € 177,90 € 188,40 € 156,85 € 188,40 € 198,95
Bodemplaat 30x120 cm verzinkt
Bodemplaat 60x120 cm verzinkt
Bodemplaat 90x120 cm verzinkt
Bodemplaat 120x120 cm verzinkt
Bodemplaat 60x60 cm verzinkt
Bodemplaat 90x60 cm verzinkt
Bodemplaat 90x90 cm verzinkt
Potenset 5 cm hoog corten
Potenset 9,5 cm hoog corten
Zwenkwielenset
art.nr. 12005574 12005575 12005576
1200577 12005472 12005473
12005474
12005463
12005464 12005471










Plantenbakken Staal (zonder bodem) fijnstructuur
Prijs per stuk (LxBxH)
30x120x40 cm
60x60x40 cm
60x90x40 cm
60x120x40 cm
90x90x40 cm
90x120x40 cm
120x120x40 cm
60x60x60 cm
60x90x60 cm
90x90x60 cm
Toebehoren
Prijs per stuk
Potenset 5 cm hoog
Potenset 9,5 cm hoog
Zwenkwielenset
Bodemplaat 30x120 cm verzinkt
Bodemplaat 60x120 cm verzinkt
Bodemplaat 90x120 cm verzinkt
Bodemplaat 120x120 cm verzinkt
Bodemplaat 60x60 cm verzinkt
Bodemplaat 90x60 cm verzinkt
Bodemplaat 90x90 cm verzinkt
Taupe
€ 226,30 € 198,95
€ 215,80
€ 241,05
€ 236,85
€ 262,10
€ 289,45
€ 262,10
€ 276,40
€ 304,20
Taupe
€ 55,50
€ 58,10
€ 83,15
€ 19,00
€ 48,45
€ 77,60
€ 106,75
€ 21,85
€ 39,10
€ 62,75
Wit RAL9016
€ 226,30
€ 198,95
€ 215,80
€ 241,05 € 236,85 € 262,10
€ 289,45 € 262,10 € 276,40 € 304,20
Wit RAL9016
€ 55,50
€ 58,15
Antraciet RAL7016
€ 226,30 € 198,95 € 215,80 € 241,05 € 236,85 € 262,10 € 289,45 € 262,10 € 276,40 € 304,20
Antraciet RAL7016
€ 55,50 € 58,15
Scan de QR code voor actuele informatie.
Grafietzwart RAL7021
€ 226,30
€ 198,95
€ 215,80
€ 241,05
€ 236,85
€ 262,10
€ 289,45
€ 262,10
€ 276,40
€ 304,20
Grafietzwart RAL7021
€ 55,50
€ 58,15
12005615 12005616 12005617 12005618 12005619 12005620 12005621
art.nr. 12005624 12005625
Supra Bruin
€ 256,50
€ 228,40
€ 258,60
€ 280,80
€ 288,85
€ 311,05
€ 333,25
€ 284,80
€ 315,90
€ 347,00
Suprabruin
€ 55,50
€ 58,15



Kenmerken van Metallic Line
√ Leverbaar in Modern & Vintage
√ Metallic poedercoating
√ Goud, Brons, Koper
√ Diverse formaten en vormen









50x50x50 cm (lxbxh)
art.nr. 45034016
Prijs vanaf € 213,00
in-lite ready!

Carrez Aluminium, zonder bodem (RAL7021)
80x80x40 cm (lxbxh)
art.nr. 45039609 Prijs vanaf € 453,00
Voor elke plantenbak is er een opzetrand beschikbaar. Zo kun je jouw plantenbak voorzien van in-lite verlichting voor extra sfeer!


Carrez Hardhout, met bodem
40x40x43,5 cm (lxbxh)
art.nr. 45038899 Prijs vanaf € 300,00


40x40x40 cm
art.nr. 45038231
vanaf € 128,00


Kenmerken van Carrez
√ Leverbaar in verschillende materialen
√ Vorst- en weersbestendig
√ in-lite integratie mogelijk
√ Diverse formaten en vormen


De herkomst van onze gerecycleerde kunststoffen:
√ 15% kunststofafval afkomstig van eindgebruikers
PET en plastic winkelzakjes
√ 80% postindustrieel afval (LDPE 23% ; HDPE 35%; PP 42%)
PE van plastic flessen, coatings, verpakkingsfolie en plastic buizen
PP van luiers en hygiënedoekjes
√ 5% circulair afval van productiefouten, teruggewonnen in onze fabriek
Alle Ecopots zijn gemaakt met een unieke formule van 80% gerecycled plastic van hoge kwaliteit voor een sterke structuur, 17% gerecycleerde natuurlijke mineralen om de duurzaamheid te verbeteren en 3% natuurlijke mineraalpigmenten voor een tijdloze kleur en UV-bestendigheid..

70x70x25 cm (lxbxh)
Kleur: Dark Grey


Hanging Bruges 55 55x20x21 cm (lxbxh)
Kleur: Dark Grey
45039507
vanaf € 41,60
Vraag naar de beschikbare kleuren per pot. Vienna



Wheels
cm (lxbxh) Kleur: Dark Grey
€ 276,50 Oslo 55

cm (lxbxh)
Dark Grey
vanaf
114,55 Amsterdam High

41x41x76 cm (lxbxh)
Kleur: Dark Grey


Paris Wheels 85x40x65 cm (lxbxh)
Kleur: Dark Grey
45039550
vanaf € 461,65

Rotterdam High 32x32x70 cm (lxbxh)
Kleur: Dark Grey
45039540



gerecycleerde kunststoffen van hoge kwaliteit

20%
gerecycleerde natuurlijke mineralen 80%

Cortenstaal bloembakken Module+
Prijs per stuk
Recht Paneel (A) incl. schetsplaat en trekstang
Hoekpaneel Uitwendig-R (B)
Hoekpaneel Uitwendig-L (B)
Hoekpaneel Inwendig-R (C)
Hoekpaneel Inwendig-L (C)
Kopschot Paneel (D)
Paneel Parallel-R (E)
Paneel Parallel-L (E)
Cortenstaal bloembakken Module+
Prijs per stuk
€ 51,60 € 51,60
€ 51,60
art.nr. 12005420 12005421 12005422 12005423 12005424 12005425 12005426 12005427 60x28 cm (bxh)
€ 51,60
€ 51,60
€ 51,60
€ 51,60
€ 51,60
art.nr. 90x28 cm (bxh)
art.nr. 12005310 12005312 12005313 12005314 12005315 12005311 12005430 12005431 60x42 cm (bxh)
€ 57,35
€ 57,35
€ 57,35
€ 57,35
€ 57,35
€ 57,35
€ 57,35
€ 57,35
Kenmerken van Module+
√ Ontwerp je eigen bak
√ Volop ontwerpvrijheid
√ Zes standaardelementen
√ Verkrijgbaar in meerdere maten
art.nr. 12005440 12005441 12005442 12005443 12005444 12005445 12005446 12005447 60x56 cm (bxh)
€ 62,10
€ 62,10
€ 62,10
Recht Paneel (A) incl. schetsplaat en trekstang
Hoekpaneel Uitwendig-R (B)
Hoekpaneel Uitwendig-L (B)
Hoekpaneel Inwendig-R (C)
Hoekpaneel Inwendig-L (C)
Kopschot Paneel (D)
Paneel Parallel-R (E)
Paneel Parallel-L (E)



art.nr. 12005300 12005302 12005303 12005304 12005305 12005301 12005428 12005429 90x42 cm (bxh)


Onderdelen verkrijgbaar in: - 60cm breed en 42cm hoog - 90cm breed en 42cm hoog


Opbouw
Inspiratie / Combinatie Mogelijkheden
Inspiratie / Combinatie Mogelijkheden
Module+ is een uniek systeem waarbij u met elementen van cortenstaal in meerdere maten kantafscheidingen en bloembakken in diverse vormen kunt maken. Ook is het mogelijk met deze elementen hoogteverschillen in een tuin op te vangen. Module+ geeft u ontwerpvrijheid met standaard elementen en is daardoor een uniek systeem. De lengte- en breedtematen zijn onbeperkt. Door de toepassing van in- en uitwendige hoekstukken zijn veel vormen eenvoudig te bouwen. Maatwerk is normaal gesproken erg duur; er moet een tekening gemaakt worden en er is geen volumeproductie mogelijk. Module+ is daarentegen een stuk voordeliger.
Inspiratie / Combinatie Mogelijkheden



Opbouw

(Links)

Opbouw

(Links)
(Rechts)

(Rechts)


(Rechts)
Onderdelen verkrijgbaar in: 60cm breed en 42cm hoog - 90cm breed en 42cm hoog
Onderdelen verkrijgbaar in: - 60cm breed en 42cm hoog - 90cm breed en 42cm hoog
(Rechts)

Inspiratie / Combinatie Mogelijkheden en 42cm hoog en 42cm hoog
(Rechts)
(Links)

Onderdelen verkrijgbaar in: - 60cm breed en 42cm hoog - 90cm breed en 42cm hoog
Recht Paneel (A)
Opbouw
Recht Paneel (A)
Recht Paneel (A)

(Rechts)
Hoekpaneel Uitwendig-R (B)
Hoekpaneel Uitwendig-R (B)
(Links)
(Rechts)
Hoekpaneel Uitwendig-R (B)


Hoekpaneel Uitwendig-L (B)
Kopschot Paneel (D)
Hoekpaneel Uitwendig-L (B)
Hoekpaneel Uitwendig-L (B)
Onderdelen verkrijgbaar in: - 60cm breed en 42cm hoog - 90cm breed en 42cm hoog



Links B (Links)
(Rechts)
Links

Kopschot Paneel (D)
Kopschot Paneel (D)
Paneel (D)

Paneel Parallel-R (E)
Paneel Parallel-R (E)
Parallel-R (E)


Hoekpaneel Inwendig-R (C)
Hoekpaneel Inwendig-R (C)
(Links)
Paneel Parallel-L (E)
Paneel Parallel-L (E)
(Rechts)
Parallel-L (E)
Hoekpaneel Inwendig-R (C)
Paneel Parallel-R (E)
Recht Paneel (A)
Hoekpaneel Inwendig-L (C)
Hoekpaneel Inwendig-L (C)
Hoekpaneel Inwendig-L (C)
Paneel Parallel-L (E)
Hoekpaneel Uitwendig-R (B)



Hoekpaneel Uitwendig-L (B)
Schoorplaat
Schoorplaat
Schoorplaat
Kopschot Paneel (D)
Trekstang
Trekstang
Trekstang
Paneel Parallel-R (E)
Paneel Parallel-L (E)
Kenmerken van schaduwdoeken
√ Leverbaar in 3 vormen en 3 kleuren
√ Eenvoudige montage
√ Voor schaduwrijke plekken in je tuin

Driehoek 400x400x400 cm
85027151 Schaduwdoek driehoek 400x400x400 antraciet € 85,00
85027141 Schaduwdoek driehoek 400x400x400 cm zand € 85,00
85027161 Schaduwdoek driehoek 400x400x400 gebroken wit € 85,00
Driehoek 500x500x500 cm
85027152 Schaduwdoek driehoek 500x500x500 antraciet € 115,00
85027142 Schaduwdoek driehoek 500x500x500 cm zand € 115,00
85027162 Schaduwdoek driehoek 500x500x500 gebroken wit € 115,00
Vierkant 400x400 cm
85027153 Schaduwdoek vierkant 400x400 antraciet € 145,00
85027148 Schaduwdoek vierkant 400x400 zand € 145,00
85027163 Schaduwdoek vierkant 400x400 gebroken wit € 145,00
Vierkant 500x500 cm
85027154 Schaduwdoek vierkant 500x500 antraciet € 225,00
85027149 Schaduwdoek vierkant 500x500 zand € 225,00
85027164 Schaduwdoek vierkant 500x500 gebroken wit € 225,00
Rechthoek 200x400 cm
85027155 Schaduwdoek rechthoek 200x400 antraciet € 95,00
85027140 Schaduwdoek rechthoek 200x400 zand € 95,00 85027165 Schaduwdoek rechthoek 200x400 gebroken wit € 95,00
Rechthoek 300x400 cm
85027156 Schaduwdoek rechthoek 300x400 antraciet € 125,00
85027150 Schaduwdoek rechthoek 300x400 zand € 125,00
85027166 Schaduwdoek rechthoek 300x400 gebroken wit
Rechthoek
Accesoires
rechthoek 300x500 gebroken wit
spanhaak

ketting


RVS karabijnhaak

plaat met oog

aluminium rail met oog




Scan de QR code voor actuele informatie.


De schaduwpergola wordt gemaakt van kleurloos geïmpregneerd douglashout. De staanders van 240 cm kunnen op de gewenste afmeting worden ingekort of in de grond worden gezet. De constructie maakt u met halfhoutverbindingen, als alternatief kunt u optioneel stalen koppelprofielen gebruiken. De afmetingen 324/424x324 worden met 4 staanders geleverd en de afmeting 324x524 cm met 6 staanders.
Het houtpakket bestaat uit:
• Douglas staanders, 12x12 cm
• Douglas liggers, 12x12 cm
• Douglas schoren 4,5x12 cm
• Bevestigingsmateriaal
• Opbouwbeschrijving
Douglas houtpakket
324x324 cm
T.b.v. harmonicadoek
290x300 cm
W12400 € 785,00
Douglas houtpakket
324x424 cm
T.b.v. harmonicadoek
290x400 cm
W12403 € 865,00
Douglas houtpakket
324x524 cm
T.b.v. harmonicadoek
290x500 cm
W12405 € 1115,00

HDPE Waterdoorlatend Harmonicadoek
Harmonicadoeken zijn sfeervolle schaduwdoeken en handig in gebruik. Creëer in een handomdraai een heerlijke schaduwplek op uw gazon of op het terras. Harmonicadoeken bieden zeer goede bescherming tegen schadelijke UV stralen (TÜV getest) en zijn uitermate geschikt voor het creëren van schaduw op iedere gewenste plek.
Door middel van de bijgeleverde katrollenset is het doek eenvoudig open en dicht te schuiven.Het harmonicadoek kan de hele zomer buiten blijven hangen en is snel en eenvoudig op te hangen en te verwijderen. De polyester geweven stof is vuilafstotend en verkleurt niet. HDPE harmonicadoek is waterdoorlatend.
Harmonicadoek 290x300 cm
Antraciet W27115 € 675,00
Gebroken wit W27130 € 675,00
Harmonicadoek 290x400 cm
Antraciet W27120 € 783,00
Gebroken wit W27135 € 783,00
Harmonicadoek 290x500 cm
Antraciet W27125 € 879,00


Gebroken wit
Gebroken wit W27140 € 879,00
Beschermhoes t.b.v. harmonicadoek Wanneer het doek is ingeschoven kunt u deze er omheen hangen. W27090 € 167,00
Scan de QR code voor actuele informatie.

Varistone Voegmortel
LM Aqua MST
terras & trends voegkruisjes
Afstandhouders varispacer
Gatorsand voegmortel
Gator Eurostone
Gator Nitro Zand
Gator XP G2
Varistone PZ Easy
Variquartz
Varifalt
Lijmen en Kitten
Multitack
Multi PU Tix Constructielijm
Ottoseal
PU Fix
Sealtack-Afdichtingskit
Gator Rock
Only Binder
Split en Binder
Vari Fix Steenlijm
Reiningings- en Onderhoudsmiddelen
Beton Tegelreiniger
Bio Krachtreiniger
Green Ex
Impregneer Perfect Plus
Impregneer Color
Kalk Ex
Keramiek Tegelreiniger
Keramiek Tegelreiniger X-tra
Keramiek met LM Aqua Steengrijs


Oudhollands met LM Aqua Basalt
Kenmerken van Varistone® LM Aqua
√ Snelle verwerking
√ Verkrijgbaar in verschillende kleuren
√ Voegen zijn duurzaam drainerend
√ Vermindert groei van onkruid
Door de 1-component samenstelling en de verwerkbaarheid met veel water is een snelle verwerking mogelijk (ook op grote oppervlakken), waardoor op een economische manier duurzame voegen tussen de bestrating kunnen worden ingevoegd.










Technische specificaties
Bindmiddel 1-componentige, hooggemodificeerde, door zuurstof uithardende polymeer
Minimale voegbreedte 3 mm
Minimale voegdiepte 30 mm
Verwerkingstijd ca. 45 minuten bij 20ºC
Verwerkingstemperatuur + 5 ºC tot + 25 ºC
Vorstbestandheid ja

Varistone LM Aqua Basalt
Varistone LM Aqua Zilvergrijs
Kenmerken van Varistone® MST
√ Met veel water een snelle verwerking
√ Na 24-uur beloopbaar
√ Drainerend
√ Voorkomt groei van onkruid
√ Waterdoorlatend

VARISTONE MST is een 2-componenten, duurzaam drainerende voegmortel op basis van epoxyhars en geschikt voor het voegen van terrassen met (keramische) tegels met voegbreedte vanaf 3 mm. VARISTONE MST is een met water emulgeerbare epoxy voegmortel en bevat geen oplosmiddelen.
Eigenschappen
- Waterdoorlatend
- Zelfnivellerend en zelfverdichtend
- Geen bindmiddelfilm
- Bij lichte regen en lage temperaturen verwerkbaar
- Vorst- en dooizoutbestendig
- Bestand tegen veeg- en reinigingsmachines
- Milieuvriendelijk
- Vanaf de maatvoering 90x90 niet geschikt
Technische specificaties
Bindmiddel 2-componenten epoxy
Verwerkingstijd ca. 15 minuten bij 20 °C
Verwerkingstemp +3 °C tot +25 °C
(*) Bij ca. 10% voegaandeel




Handig hulpmiddel om de gehele bestrating te leggen op de gewenste voegbreedte. De afstandhouders zijn eenvoudig aan te brengen en te verwijderen, tevens zijn er ook afstandhouders die herbruikbaar zijn.
LET OP: Haal de afstandhouders nooit weg tijdens het leggen, zo voorkomt u dat de tegels doorschuiven tijdens het leggen.

Voegkruisjes afbreekbaar 5x19x55 mm


Voegkruisjes afbreekbaar 3x19x55 mm

Voegkruisjes afbreekbaar 8x19x55 mm T-stukjes afbreekbaar 5x50x55 mm

Voegkruisjes herbruikbaar 5x50x55 mm
Prijs per stuk
terras & trends, kruis afbreekbaar 3x19x55mm
terras & trends, kruis afbreekbaar 5x19x55mm
Afstandhouders varispacer, kruis 2x10x40 mm
Afstandhouders varispacer, kruis 3x10x55 mm
Afstandhouders varispacer, kruis 3x50x55 mm
Afstandhouders varispacer, kruis 5x10x55 mm
Afstandhouders varispacer, kruis 5x50x55 mm
Afstandhouders varispacer, kruis 8x19x55 mm
Afstandhouders varispacer, T-stuk 2x10x55 mm
Afstandhouders varispacer, T-stuk 3x50x55 mm
Afstandhouders varispacer, T-stuk 5x50x55 mm
Afstandhouders varispacer, T-stuk 8x30x40 mm
Afstandhouders varispacer, T-stuk 10x30x40 mm

Gatorsand XP G2 is een nieuw en revolutionair waterdoorlatend polymeervoegzand. Deze één-component-voegmortel is geschikt voor een drainerende ondergrond met gebakken steen en betonproducten, natuursteen, kinderkoppen, GeoCeramica, maar is ook geschikt voor openbare bestrating met verkeersbelasting tot wel 3 ton. Het polymeerbindmiddel is geschikt voor voegen van 2 tot 50 mm en omdat het bindmiddel transparant is, is de kans op sluier op uw bestrating minimaal. De voeg blijft na binding ook enigszins elastisch, waardoor er minder snel scheuren zullen ontstaan.




Gator EuroStone is het eerste polymere voegzand speciaal ontworpen voor natuursteen. Het kan gebruikt worden bij toepassingen van ondergronden met en zonder drainage. Het is perfect voor stenen wegen, piazzas, opritten, paadjes en stenen opritten. Dit complete multifunctionele zand is verkrijgbaar in vier kleuren: Ivoor, Beige, Antraciet en Zwart. Dit product kan op dezelfde manier worden aangebracht als normaal ongebonden voegzand.
Ideaal voor;
- Voor natuursteenvoegen, tot 3,8 cm
- Residentieel en commercieel gebruik
- Straatstenen, terrassen, opritten, voetpaden en stenen opritten
Gator Nitro Zand is het ideale lucht hardende, waterdoorlatende voegmateriaal. Het is een gebruiksklaar mengsel van gekalibreerd zand en een gepatenteerde harsformule die uithardt bij blootstelling aan de lucht en van de top tot de bodem van de voeg uithardt. Het product kan bij nat of droog weer worden aangebracht.
Ideaal voor;
Residentiële en commerciële voetgangerstoepassingen
- Woonopritten met in elkaar vergrendelde betonstraatstenen
- Keramische tegels, stenen en in elkaar vergrendelde betonstenen



VARISTONE PZ Easy is een innovatieve polymeergebonden voegmortel voor het voegen van allerlei soorten (sier)bestrating zoals tuinpaden, terrassen en opritten. VARISTONE PZ Easy wordt kant-en-klaar gemengd in zakken van 22,7 kg geleverd in de kleuren naturel, caramel, steengrijs en basalt. VARISTONE PZ Easy kan eenvoudig over de bestrating worden uitgestrooid en droog in de voegen worden ingeveegd. Het materiaal is zo fijn dat ook smalle voegen probleemloos kunnen worden gevuld. Aansluitend worden de restanten met een zachte waterstraal afgespoeld. De eerste keer wanneer het bindmiddel met water in contact komt begint de uitharding. Het bindmiddel reageert al na enige minuten, zodat de voegen niet bij het afspoelen uit kunnen spoelen. VARISTONE PZ Easy hard daarna uit en is blijvend flexibel. U blijft een stabiele voeg houden, die bestand is tegen vorst, wind en water.
Prijs per stuk
Naturel
Caramel
Steengrijs
Basalt
art.nr.
zak à 22,7 kg
€ 65,30
€ 65,30
€ 65,30
€ 65,30
VARIQUARTZ onkruidremmend voegzand is een natuurlijk kwartszand voorzien van kleurpigment en een speciale coatinglaag. Door het speciale productieproces heeft VARIQUARTZ een verhoogde pH-waarde waardoor onkruid minder snel kans krijgt te ontkiemen. VARIQUARTZ is zeer geschikt voor allerlei soorten sierbestrating zoals tuinpaden, terrassen en opritten. VARIQUARTZ onkruidremmend voegzand bevat geen fijnstof dat vlekken zou kunnen veroorzaken in de toplaag van uw zojuist aangelegde sierbestrating. VARIQUARTZ bestaat uitsluitend uit minerale en natuurlijke stoffen en is daarmee uiterst duurzaam.VARISTONE PZ Easy hard daarna uit en is blijvend flexibel. U blijft een stabiele voeg houden, die bestand is tegen vorst, wind en water.
Prijs per stuk
Naturel
Steengrijs
Basalt
art.nr. 57083522 57083521 57083520
€
VARISTONE Varifalt 2-5 MOD is een kant-en-klaar gemodificeerd koudasfalt op basis van plantaardige bitumen, geschikt voor duurzame reparatie van asfaltschades en andere doeleinden. VARISTONE Varifalt 2-5 MOD is geschikt voor het uitvullen van gaten, verzakkingen en bezweken plaatsen in het asfaltvlak. VARISTONE Varifalt 2-5 MOD is tevens geschikt voor het repareren van sleuven, het vullen van aansluitingen tussen asfalt en (betonnen) klinkers en het repareren van betonpaden of –wegen.
Prijs per stuk
Varifalt, emmer à 20 kg
Kleefprimer, bus à 600ml
Prijs per stuk
Donkergrijs
Platina
Taupe
Vanille
Zwart
Emmer 12,1 kg
€ 76,70
€ 76,70
€ 71,50
€ 76,70
€ 74,70




VARISTONE Multitack is een universele lijm en constructievoegkit voor het verlijmen van alle soorten materialen behalve PE en PP. VARISTONE Multitack kan toegepast worden op iedere ondergrond; is extreem veelzijdig en is het antwoord voor iedere verlijming. Voor het verlijmen van alle metalen, houtsoorten, EPDM, lood, zink, koper, spiegels, steen, polystyreen, kunststoffen en beton en natuursteensoorten. Kan door zijn veelzijdigheid alle soorten lijmen vervangen.
Prijs per stuk
Patroon 300 ml, zwart
Patroon 300 ml, grijs
Worst 600 ml, zwart
Kitspuit t.b.v. worst 600 ml
art.nr. 12009984 12009983 12001050 12001051
€ 8,95
€ 9,45
€ 17,50
€ 88,95
VARISTONE Multi PU Tix is een zeer snel uithardende transparante polyurethaan constructie bruislijm met een thixotrope structuur. VARISTONE Multi PU Tix is geschikt voor bijna alle in de bouw en industrie voorkomende ondergronden, zoals hout en steen. VARISTONE Multi PU Tix heeft een licht vullend vermogen. De lijm hardt uit door reactie met vocht uit de ondergrond en vormt na uitharding een duurzame, zeer sterke en waterbestendige verbinding (D4).
Prijs per stuk
Patroon 300 ml, transparant/geel
art.nr. 12009959
€ 12,15
VARISTONE Sealtack is een hoogwaardige universele MS Polymeer afdichtingskit die toegepast kan worden op alle ondergronden en gebruikt kan worden voor het afdichten van alle soorten voegen. VARISTONE Sealtack is na uitharding overschilderbaar met alle soorten verven en lakken en kan tevens gebruikt worden voor beglazing. Drogingsvertraging kan door weersinvloeden soms optreden. Testen vooraf wordt aanbevolen. VARISTONE Sealtack is tevens geschikt als afdichting in chemische omgevingen en in natte ruimtes.
Prijs per stuk
Zandkleur (RAL1015)
Grijs (RAL7004)
Donkergrijs (RAL7005)
Antraciet (RAL7016)
Rugvulling rond 20 mm, 100 cm lengte
art.nr. 12009961 12009962 12009960 12009963 12009967
Patroon 290 ml
€ 13,70
€ 13,70
€ 13,70
€ 13,70
€ 2,20
Prijs per stuk
Instrooizand naturel
Instrooizand zilvergrijs
Instrooizand steengrijs
Instrooizand basalt
art.nr. 12009968 12009969 12009970 12009971
bus 1 kg
€ 9,65
€ 9,65
€ 9,65
€ 10,10
VARISTONE PU Fix is een zeer sterke en supersnelle lijm gebaseerd op gemodificeerde polyurethanen. VARISTONE PU Fix is ontwikkeld voor het verlijmen van verschillende steensoorten zoals natuursteen, betonsteen, kalkzandsteen, gipsblokken en keramische steensoorten. VARISTONE PU Fix is langdurig bestand tegen water, zeewater, kalkwater, verdunde zuren en bijtende oplossingen. VARISTONE PU Fix is speciaal ontwikkeld voor het snel en makkelijk verlijmen van stapelmuren in de (tuin)bouwbranche, maar kan tevens worden toegepast op diverse in de (tuin)bouw voorkomende ondergronden.
Prijs
(Antraciet)
€ 13,25
€ 13,40
€ 17,15
€ 36,05
€ 19,55






Ottoseal S70 is een zeer geschikt afdichtmiddel voor keramische en natuurstenen oppervlakken. Daar waar een duurzame afdichting gewenst is voor zowel terras als vijverrand en zwembad. Voorkomt groei van onkruid en ongedierte.
Kleuren




Kenmerken van Ottoseal S70
√ Leverbaar in meer dan 35 kleuren
√ Matte kleuren beschikbaar
√ Structuur kleuren met 'steenachtig' oppervlak
√ verwerkbaar met handkitspuit
Creëer een duurzaam, waterdoorlatend en decoratief oppervlak met de gebruiksklare Gator Rock Binder Kit. De gemengde Gator Rock Bond kit is klaar voor gebruik met 100% gewassen en gedroogde riviersteen, waardoor een duurzaam doorlaatbaar en decoratief oppervlak ontstaat. Zeer geschikt voor tuinpaden waar erosie en drainage een probleem is.
Verbruik Gator Rock:
- Only Binder: Meng in een verhouding van één verpakking (3,78 L) met schoon gewassen grind of split (145 kg) - Rock split en binder: Bereid een stevige basis voor door 10 cm gebroken stenen (0-20 mm) stevig te verdichten Meng een verpakking van 473 ml GATOR ROCK BOND met 100% droge schone riviersteen (18,2 kg) gedurende 4 minuten. Verspreid met een spatel de gemengde riviersteen met een minimale dikte van 13 mm op het gewenste oppervlak, binnen 20 minuten na het mengen.
Vari Fix steenlijm is een fabrieksmatig vervaardigde droge mortel op cementbasis. Vari Fix is speciaal ontwikkeld voor het verlijmen van vrijwel alle steensoorten zoals baksteen en betonsteen ten behoeve van tuinmuren e.d. Deze mortel is geschikt voor zowel binnen- als buitentoepassingen en kan worden verwerkt in laagdikten van minimaal 2 mm tot maximaal 6 mm (afhankelijk van de steensoort).
15 kg
art.nr.
€ 32,75
(verbruik ca. 3m2 per emmer)










√ Universeel, allround reinigingsconcentraat
√ Voor het reinigen van alle materialen
√ Bij verwarming van Bio Krachtreiniger wordt de reinigende werking veelvoudig versterkt
√ Zuurvrij
Prijs per stuk Bio Krachtreiniger



Op basis van wasactieve substanties, bevat geen zoutzuur
Tast beton niet aan Neemt lichte kalkuitbloei weg
Voor het schoonmaken van bestratingen met een algemene vervuiling (organisch en synthetisch)
Prijs per stuk Beton Tegelreiniger


√ Speciale reiniger voor keramische tegels
√ Werkt op basis van tensiden
√ Verwijdert ook olie- en vetverontreinigingen
√ Verwijdert ook resten van vloeronderhoudsmiddelen, lichte wasfilms en andere hardnekkige vervuilingen
Prijs per stuk Keramiek Tegelreiniger
√ Speciale krachtige reiniger voor keramische tegels
√ Werkt op basis van tensiden
√ Verwijdert ook olie- en vetverontreinigingen
√ Verwijdert ook resten van vloeronderhoudsmiddelen, lichte wasfilms en andere hardnekkige vervuilingen
Prijs per stuk Keramiek Tegelreiniger X-tra






√ Voor het verwijderen van kalkuitbloei in beton
√ Beschermt het oppervlak gelijktijdig tegen toekomstige vervuilingen
√ Zoutzuur vrij
√ Toepasbaar op beton en minerale bouwstoffen van diverse structuur

VARISTONE® Green Ex
√ Voor het verwijderen van algen en mossen op alle betonoppervlakken, natuursteen, keramiek, hout, glas, kunststof, stuclagen en verschillende metalen
√ Algen en mossen sterven na behandeling vanzelf af
√ Werkt op biologische basis
√ Voor allerlei soorten ondergronden
√ Wettelijk toelatingsnummer: 13817 N
√ 1 en 5 liter flacon
√ Kleurintensiverend impregneer voor beton
√ Uiterst vuilafstotend
√ Oplosmiddelvrij
√ Niet filmvormend
√ Voor alle zuigende ondergronden
√ Toepassen op nieuw straatwerk ná 6 weken

√ Kleurige kleurverdieper voor oude en nieuwe oppervlakken
√ Voor intensivering, opfrissen en kleuregalisering
√ Voor zuigende betonoppervlakken
√ Filmvormende laag die sterk hydrofoberend is
√ Kleuren: gitzwart, rood en platinagrijs




terras & trends Fence
Composiet Poorten
Composiet Schermen
terras & trends Deck
Massief
Ronde Kamer
Vintage
Millboard Terrasplanken Accessoires
Enhanced Grain
Enhanced Grain SB
Weathered Oak
Millboard Gevelbekleding
Fascia Facade Board
Envello Shadow Line
Envello Board & Batten
Bamboe Terrasplanken
WEO Gevelbekleding
WEO35 Gevelbekleding
WEO60 Gevelbekleding









Composiet schermen terras & trends Fence poorten


Diverse

Alu poortframe
Prijs per stuk

Poortbeslag
terras & trends alu poortframe 98x183 cm (RAL7016)*
terras & trends alu poortframe 120x183 cm (RAL7016)*
terras & trends poortbeslag
terras & trends Fence alu poortpaal 9x9x275 cm
terras & trends Fence pvc paalkap 9x9 cm (RAL7016)*
Aanslaglat met slotlijst, lengte 183 cm (RAL7016)*
terras & trends Fence poortbeugel voor paalmontage onderzijde poort (RAL7016)*
* Deze artikelen zijn ook verkrijgbaar in RAL9005


Kenmerken terras & trends Fence
√ Stabiel en robuust schuttingsysteem.
√ Minimaal onderhoud en maximale levensduur.
√ Combinatie van modern aluminium en een warme houtuitstraling.
√ Duurzaam beschermd door co-ëxtrusieoppervlak Ultrashield®
√ Eenvoudige en snelle montage.
√ Flexibel: de aluminium palen zijn inzetbaar als begin-, tussen-, of hoekpaal.
√ Verkrijgbaar in meerdere realistische houtkleuren, kleurvast!
√ Poortframes beschikbaar in RAL7016 en RAL9005

Start/eindprofiel set

Trellis horizontaal aluminium

Palen aluminium
Optionele stabiliseringslijsten



Diverse profielen leverbaar in RAL7016

Diverse profielen leverbaar in RAL9005

Modern schermprofielen*
WPC 21 21x160 mm
Donker Grijs ,Teak en Cedar
terras & trends Deco schermen
Prijs per stuk
terras & trends Fence Deco-profiel trellis horizontaal 45x176,5 cm (RAL7016)*
terras & trends Fence Deco-profiel trellis verticaal 88x182 cm (RAL7016)*
terras & trends Fence Deco-profiel iron horizontaal 30x176,5 cm (RAL7016)*
terras & trends Fence Deco Iron verticaal 58x182 cm (RAL7016)*
terras & trends Fence Deco Crios horizontaal 30x175 cm, dikte 2 mm (RAL7016)*
terras & trends Fence Deco Crios verticaal 58x182 cm, dikte 2 mm (RAL7016)*
terras & trends Fence Deco Lamia horizontaal 30x175 cm, dikte 2 mm (RAL7016)*
terras & trends Fence Deco Lamia verticaal 58x182 cm, dikte 2 mm (RAL7016)*
terras & trends Fence Alu lamel 178x2,1x10 cm (RAL7016)*
terras & trends Fence Alu lamel 178x2,1x4,5 cm (RAL7016)*
terras & trends Fence PVC afstandhouder 15mm, set 66 stuks (RAL7016)*
terras & trends Fence alu rhombus wedges 10mm (22st links + 22st rechts) (RAL7016)*
terras & trends Fence alu rhombus profiel 21x75 mm, lengte 178 cm (RAL7016)*
terras & trends Fence Deco 8 mm matglas gepolijst 177x30 (incl. alu trims)
terras & trends Fence Deco 8 mm matglas gepolijst 177x45 (incl. alu trims)
* Deze artikelen zijn ook verkrijgbaar in RAL9005
terras & trends toebehoren
Prijs per stuk
terras & trends Fence modern 2,1x16(15)x178 cm multi grey dark
terras & trends Fence modern 2,1x16(15)x178 cm teak
terras & trends Fence modern 2,1x16(15)x178 cm cedar
terras & trends Fence ultrashield 2,1x16(15)x178 cm multi grey dark
terras & trends Fence ultrashield 2,1x16(15)x178 cm multi grey light
terras & trends Fence ultrashield 2,1x16(15)x178 cm multi brown wild
terras & trends Fence ultrashield 2,1x16(15)x178 cm teak
terras & trends Fence ultrashield 2,1x16(15)x178 cm cedar
terras & trends Fence ultrashield 2,1x31(30)x178 cm multi grey dark
terras & trends Fence ultrashield 2,1x31(30)x178 cm multi grey light
terras & trends Fence ultrashield 2,1x31(30)x178 cm teak
terras & trends Fence aluminium 2,1x16(15)x178 cm (RAL7016)*
* Deze artikelen zijn ook verkrijgbaar in RAL9005
terras & trends schermen
Prijs per stuk
terras & trends Fence paal 7,5x7,5x124 cm, incl. alu afwerkingsprofiel (RAL7016)*
terras & trends Fence paal 7,5x7,5x190 cm, incl. alu afwerkingsprofiel (RAL7016)* terras & trends Fence paal 7,5x7,5x250 cm, incl. alu afwerkingsprofiel (RAL7016)* terras & trends Fence paal 7,5x7,5x300 cm, incl. alu afwerkingsprofiel (RAL7016)*
terras & trends Fence pvc paalkap 7,5x7,5 cm RAL9005**
terras & trends Fence alu U-lijst start/top 175x2,5x3,0 cm (zonder connectors) terras & trends Fence set 4 connectors tbv U-lijsten terras & trends Fence paalhouder op plaat 120x120 mm, lengte 20 cm incl kap RAL9005**
terras & trends Fence stabiliserings-set 176 cm
terras & trends Fence wand hoekprofiel, lengte 190 cm (RAL7016)*
* Deze artikelen zijn ook verkrijgbaar in RAL9005
** Uitsluitend verkrijgbaar in RAL9005
Composiet schermen
terras & trends Fence

Ultrashield schermprofielen*
WPC 21 21x160 mm Multi Bruin, Teak, Donker grijs, Licht Grijs en Cedar




Lunar Grey tuininspiratie terras

Kenmerken van terras & trends Deck Vintage
√ De uitstraling van hout
√ Robuust en zeer kleurvast
√ Onderhoudsvriendelijk
√ Maximale levensduur
√ 95% gerecyclede kunststoffen en gecertificeerd houtafval




Graphite
terras & trends Deck Vintage - bi-color
Prijs per stuk

Graphite / Wenge
Lunar Grey / Cedar
terras & trends Deck Vintage - bi-color
Prijs per stuk
Graphite / Wenge
Lunar Grey / Cedar
terras & trends Deck Vintage
Prijs per
terras & trends Deck toebehoren
Prijs per stuk
terras & trends Deck hybrid clip 8-18 (90 st incl. schroeven)
Cobra beginclip 20 (per zak) 30 stuks + RVS schroeven+bit
Cobra Air spacer voor Hybride clips 100 stuks met afstandhouders, 3-4-5-6mm
Hardhouten onderligger (bangkirai) 4x6x390 cm gevingerlast
Aluminium onderconstructie 400x3,0x5,0 cm (RAL7016) 2 mm wanddikte
Cobra L-beslag 20 stuks, incl. schroeven
Verbinder hout 26x46 mm lengte 30 cm
Cobra alu verbinder
EPDM-band t.b.v. aluminium onderconstructie (rol 20 m)
Montageschroef bruin (150 stuks + bitje)
Montageschroef grijs (150 stuks + bitje)
Let op! Bij plaatsing op aluminium onderbalken heeft u een EPDM-band nodig.




Donker Grijs
tuininspiratie

Kenmerken van terras & trends Deck
√ De uitstraling van hout
√ Robuust en zeer kleurvast
√ Onderhoudsvriendelijk
√ Maximale levensduur
√ 95% gerecyclede kunststoffen en gecertificeerd houtafval












terras & trends Deck massief (13,8 cm breed)
Prijs
Licht
art.nr.
29050090
29050087
29050084
29050093
29050141 20177175 20177176 20177420
300x13,8x2,25 cm
€ 44,90
€ 44,90
€ 44,90
€ 44,90
€ 48,05
€ 48,05
€ 48,05
€ 44,90
Fuse
terras & trends Deck massief (21 cm breed)
Prijs per stuk Licht
65,30
art.nr.
29050098
29050096
29050094
29050100
400x21x2,25cm € 94,55
€ 94,55
€ 94,55 € 94,55
terras & trends Deck toebehoren
Prijs per stuk
terras & trends Deck hybrid clip 8-18 (90 st incl. schroeven)
Cobra beginclip 20 (per zak) 30 stuks + RVS schroeven+bit
Cobra Air spacer voor Hybride clips 100 stuks met afstandhouders, 3-4-5-6mm
Hardhouten onderligger (bangkirai) 4x6x390 cm gevingerlast
Aluminium onderconstructie 3,0x5,0x400 cm (RAL7016) 2 mm wanddikte
Cobra L-beslag 20 stuks, incl. schroeven
Verbinder hout 26x46 mm lengte 30 cm
Cobra alu verbinder
EPDM-band t.b.v. aluminium onderconstructie (rol 20 m)
Montageschroef bruin (150 stuks + bitje)
Montageschroef grijs (150 stuks + bitje)
Let op! Bij plaatsing op aluminium onderbalken heeft u een EPDM-band nodig.
De terrasplank Fuse, Lokus en Cedrus is één artikel maar dubbelzijdig in een mix gekleurd. Je ontvangt altijd de gehele mix en dient dit zelf op de uitgekozen kleur als zichtzijde te leggen. Scan de QR code voor actuele informatie.
kantplank
300x13,8x2,25 cm
29050089
500x13,8x2,25
59,90
29050086 20177161
29050082 20177147 20177148 20177421
20177419 20177435
€ 50,25
€ 50,25
€ 50,25
€ 50,25
€ 50,25
€ 50,25
€ 50,25
€ 50,25
€ 55,15




Ipé
tuininspiratie

Kenmerken van terras & trends Deck
√ De uitstraling van hout
√ Robuust en zeer kleurvast
√ Onderhoudsvriendelijk
√ Maximale levensduur
√ 95% gerecyclede kunststoffen en gecertificeerd houtafval






terras & trends Deck ronde kamer (13,8 cm breed)
Prijs
Licht
Ipé
Teak
Eiken
terras & trends Deck ronde kamer (21 cm breed) art.nr.
Licht
Donker
Teak
Eiken
terras & trends Deck toebehoren
Prijs per stuk
terras & trends
Deck hybrid clip 8-18 (90 st incl. schroeven)
Cobra beginclip 20 (per zak) 30 stuks + RVS schroeven+bit
Cobra Air spacer voor Hybride clips 100 stuks met afstandhouders, 3-4-5-6mm
Hardhouten onderligger (bangkirai) 4x6x390 cm gevingerlast
Aluminium onderconstructie 3,0x5,0x400 cm (RAL7016) 2 mm wanddikte
Cobra L-beslag 20 stuks, incl. schroeven
Verbinder hout 26x46 mm lengte 30 cm
Cobra alu verbinder
EPDM-band
t.b.v. aluminium onderconstructie (rol 20 m)
Montageschroef bruin (150 stuks + bitje)
Montageschroef grijs (150 stuks + bitje)
Let op! Bij plaatsing op aluminium onderbalken heeft u een EPDM-band nodig.
Kantplank
300x13,8x2,25 cm
€ 50,25
€ 50,25
€ 50,25
€ 50,25
€ 50,25
€ 50,25
€ 50,25 € 50,25
€ 50,25
€ 50,25





Coppered Oak

Kenmerken van Millboard
√ Kleurvast
√ Splintervrij
√ Hoge antislip
√ Schroeven verdwijnen onzichtbaar in de plank
√ Intensieve nabewerking










Durafix schroeven rvs 35 mm (verpakt per 100 stuks)
Durafix schroeven rvs 45 mm (verpakt per 250 stuks)
Durafix schroeven rvs 60 mm (verpakt per 250 stuks)
Multispacer groen 3,4,5,6 mm (verpakt per 10 stuks)
Millboard touch-up coating blik
Millboard touch-up coating blik
ml golden oak
ml coppered oak
Millboard touch-up coating blik 500 ml jarrah
Millboard touch-up coating blik 500 ml brushed basalt
Millboard touch-up coating blik 500 ml limed oak
Millboard touch-up coating blik 500 ml smoked oak
Millboard touch-up coating blik 500 ml burnt cedar
Millboard touch-up coating blik 500 ml antique oak
Millboard touch-up coating blik 500 ml ashwood
Millboard touch-up coating blik 500 ml ebony grey
Limed Oak

Kenmerken van Millboard
√ Kleurvast
√ Splintervrij
√ Hoge antislip
√ Schroeven verdwijnen onzichtbaar in de plank
√ Intensieve nabewerking









rvs 45 mm (verpakt per 250 stuks)
Durafix schroeven rvs 60 mm (verpakt per 250 stuks)
Multispacer groen 3,4,5,6 mm (verpakt per 10 stuks)
Millboard touch-up coating blik 500 ml golden oak
Millboard touch-up coating blik 500 ml coppered oak
Millboard touch-up coating blik 500 ml brushed basalt
Millboard touch-up coating blik 500 ml limed oak
Millboard touch-up coating blik 500 ml smoked oak
Millboard touch-up coating blik 500 ml burnt cedar
Millboard touch-up coating blik 500 ml antique oak
Millboard touch-up coating blik 500 ml ashwood
Millboard touch-up coating blik 500 ml ebony grey

Kenmerken van Millboard
√ Kleurvast
√ Splintervrij
√ Hoge antislip
√ Schroeven verdwijnen onzichtbaar in de plank
√ Intensieve nabewerking



Prijs per stuk
Onderbalk 280x8x4 cm
Durafix schroeven rvs 35 mm (verpakt per 100 stuks)
Durafix schroeven rvs 45 mm (verpakt per 250 stuks)
Durafix schroeven rvs 60 mm (verpakt per 250 stuks)
Multispacer groen 3,4,5,6 mm (verpakt per 10 stuks)
Millboard touch-up coating blik 500 ml vintage oak
Millboard touch-up coating blik 500 ml embered
Millboard touch-up coating blik 500 ml driftwood
Accessoires
Alles wat je nodig hebt. Naast onze onderregels, gemaakt van 100% gerecycled kunststof, kunnen we diverse onderdelen leveren voor het verhogen en nivelleren van je terras. De combinatie van de unieke Lastane toplaag met de speciale Durafix schroeven zorgt voor "het 'lost head'-effect". Na het indraaien van de schroef sluit de toplaag zich weer. Voor de finishing touch kun je uit ons assortiment bijpassende Edgings en Fascia Boards toevoegen.



Let op! Alle accessoires zijn gelijk aan de kleuren van de planken; maar zijn alleen in een gladde uitvoering verkrijgbaar.





















Millboard Gevel toebehoren
Prijs per stuk
Millboard touch-up coating blik
500 ml golden oak
Millboard touch-up coating blik 500 ml coppered oak
Millboard touch-up coating blik 500 ml jarrah
Millboard touch-up coating blik
500 ml brushed basalt
Millboard touch-up coating blik
Millboard touch-up coating blik
Millboard touch-up coating blik
Millboard touch-up coating blik
500 ml limed oak
500 ml smoked/ driftwood
500 ml embered/burnt cedar
500 ml antique oak
Millboard gevel envello ventilatieprofiel aluminium 250x3x3 cm
Millboard gevel envello ventilatieprofiel aluminium 250x4x3 cm
Millboard gevel envello ventilatieprofiel aluminium 250x5x3 cm
Millboard gevel envello ventilatieprofiel aluminium 250x7x3 cm
Millboard gevel envello ventilatieprofiel zwart aluminium 250x3x3 cm
Millboard gevel envello ventilatieprofiel zwart aluminium 250x5x3 cm
Millboard gevel envello ventilatieprofiel zwart aluminium 250x7x3 cm
Millboard gevel envello ventilatieprofiel zwart pvc 250x3x3 cm
Millboard gevel envello ventilatieprofiel zwart pvc 250x5x3 cm
Millboard gevel envello startprofiel zwart aluminium 305,5x4 cm
Millboard gevel envello startprofiel blank aluminium 305,5x4 cm
Millboard gevel envello symmetrische buitenhoek zwart aluminium 300 cm
Millboard gevel envello click buitenhoek zwart aluminium 300 cm
Millboard gevel envello waterslang aluminium 300 cm RAL9005
Millboard gevel envello kopschot set links en rechts RAL9005
Millboard hoeklijn verticaal startprofiel aluminium 300x1,4x3,5 cm RAL9005
Millboard gevel envello EPDM zelfklevend voegband zwart 0,5x60 mm rol 20m1
Millboard gevel envello EPDM zelfklevend voegband zwart 0,5x90 mm rol 20m1
Millboard gevel envello ventilatie clips P 6-8 mm 100 stuks
Millboard gevel envello bostik PU tix-express transparant 310 ml
Millboard envello cladding schroef shadow line en board en batten, RVS 3,5x30 mm 200 stuks
€ 26,45
€ 39,35
€ 71,45
€



Kenmerken Solid Bamboe
√ Hoge duurzaamheid
√ Natuurlijke vergrijzing
√ Voor kleurbehoud onderhoud met water gedragen teakolie





Bamboe terrasdelen
Prijs per stuk
Terrasplank 2x14x220 cm, 1 zijde standaard gegroefd, 1 zijde vlak
Terrasplank 2x18x220 cm, 1 zijde yacht-look, 1 zijde vlak
Terrasplank 2x14x186 cm, 1 zijde standaard gegroefd, 1 zijde vlak
Terrasplank 2x18x186 cm, 1 zijde yacht-look, 1 zijde vlak
Bamboe dekdelen
Prijs per stuk
Bank/dekdeel 4-zijden vlak 200x7x4 cm
Bank/dekdeel 4-zijden vlak 200x12x3 cm
Bank/dekdeel 4-zijden vlak 200x14x4 cm

Chocolate Begin eindclip Begin eindclip
Bamboe toebehoren terras- en dekdelen


Prijs per stuk
Zwart RVS tussen clip + RVS schroeven (doosje 100 stuks)
Zwart RVS begin- en eindclip + RVS schroeven (zak 10 stuks)
Caramel buiten olie 0,75 liter*
Caramel buiten olie 2,5 liter*
Dark chocolate buiten olie 0,75 liter*
Dark chocolate buiten olie 2,5 liter*
* Verbruik ca. 6-8 m² per liter

Kenmerken van WEO
√ Moderne uitstraling
√ Kleurvast
√ Leverbaar in smalle en brede varianten
√ Kan zowel horizontaal als verticaal geplaatst worden






WEO® is gevelbekleding van co-extrusiehoutcomposiet met rhombus-uitstraling. Doordat
WEO® een trapeziumvormig profiel heeft, kan het zowel horizontaal als verticaal geplaatst worden. De matte multicolor-kleuren met een natuurlijke houtuitstraling geven de gevel, structuur en een ongekende warme uitstraling.




WEO60 Gardenwall
WEO35 / WEO60
WEO alu klikprofiel
WEO35-60 alu F-profiel
46,45


WEO 60
WEO60 Gevelbekleding (brandklasse D)
46,45 290x17x3,3

(hoekprofiel)
cm
WEO RVS schroeven 4,2x38 mm (100 stuks + bitje)
WEO35 / WEO60 toebehoren
WEO alu klikprofiel
cm onbehandeld
WEO35-60 RVS schroeven 4,2x32 mm (200 stuks + bitje)
WEO35-60 RVS schroeven 4,2x32 mm (500 stuks + bitje)

Elan schermen & deuren
Thermovision Ayous schermen & deuren
Schermen & deuren
Triple profiel, vellingdeel & planken
Redvision schermen & deuren
Douglas schermen & deuren
Hardhout
Damwandprofiel
Palen, dekdelen & planken
Poorten
Reliëftegels
Rolborders
Schermen & deuren
Jaloezie & shutterschermen
Grenen zwart
Plankendeur
Planken en Palen grenen zwart
Plankenscherm grenen zwart
Jumbo schermen & deuren
Grenen schermen & deuren
Zelfbouwsysteem grenen
Trellisschermen
Hout-Beton schuttingsystemen
Betonpaal met diamantkop
Lichtgewicht betonpaal
Stampbetonpaal (ruw)
Schuttingen met betonplaten met motief
Betonpaal glad met sponning en platte kop
Stapelprofielscherm schutting
Natuurlijke schuttingen
Hazelaar hekwerk - poorten & schermen
Bamboe
Palen
Schermen & poortdeuren
Schermen op rol
Schuttingpanelen
Prefabpanelen
Robinia en kastanje palen
Kastanje hekwerk- poorten & schermen
Hekken & Poorten
Douglas
Grenen
Hardhout
Hillfence
Douglas hout fijnbezaagd
Douglas hout geschaafd
Douglas planken gedroogd & geschaafd
Beitsen
Eikenhout fijnbezaagd & geschaafd
Redvision rabatdelen & dakbeschot
Douglas triple profiel
Grenen palen
Grenen regels, planken & dekdelen
Vuren regels en planken
terras & trends schroeven
Gebintschroeven
Spaanplaatschroeven
Vlonderschroeven
Schuifdeuren
Beslagset schuifdeuren
Ramen & deuren steellook
Glazen schuifwanden
Lichtstraten
Douglas deuren & ramen
Plaatdeuren
Hardhouten deuren
Stelkozijnsets
Hang
Stalen
Kenmerken van Elan schermen
√ Dynamisch effect door de verschillende plank- en lathoogtes
√ Leverbaar in schermen en deuren
√ Leverbaar in horizontale en verticale balkjes


Linksdraaiend



RVS luxe deurbeslagset Hoogwaardige klinkset, volledig RVS beslag. Met SKG keurmerk. Inclusief slotkast, cilinder en slot. incl. duimen. W25850 € 117,00

Elan scherm Excellent 180 Met horizontale balkjes.
180x180 cm 1063092 € 225,00

Basicscherm Excellent 180
Met horizontale planken.
180x180 cm A303119 € 169,00

Elan scherm Excellent 90
Met horizontale balkjes.
90x180 cm W304543 € 145,00

Basicscherm Excellent 90 Met horizontale planken.
90x180 cm A303151 € 105,00


Elan deur Excellent Deur met frame van vuurverzinkt ijzer. Verstelbare scharnieren. Linksdraaiend. Excl. sluitwerk.
100x180 cm W304573 € 315,00

Basicdeur Excellent Met horizontale planken.
100x180 cm A303143 € 169,00
Elan verticaal Met verticaal balkjes. 180x180x4,2 cm 1064294 € 229,00

Elan deur verticaal Met verticaal balkjes. 99x190 cm 1041146 € 249,00

Scan de QR code voor actuele informatie.

Kenmerken van Thermovision Ayous
√ Thermisch gemodificeerd
√ Warme, egale kleur
√ Zowel horizontaal als verticaal toepasbaar
Thermisch modificeren is een behandeling waarbij het hout in een stoomoven door een gecontroleerd proces op hoge temperatuur wordt verhit. Vervolgens wordt het gedroogd tot het juiste vochtgehalte is bereikt. Hiermee wordt de levensduur aanzienlijk verlengd en krijgt het hout een mooie, egale kleur! Aan het proces worden geen chemicaliën toegevoegd, wat het zeer milieuvriendelijk maakt. Zowel horizontaal als verticaal toepasbaar.



Lattenscherm
Geschaafd thermisch gemodificeerd ayous.
Zowel horizontaal als verticaal toepasbaar.
180x180 cm 1058803 € 389,00

Lattendeur Verticaal
Geschaafd thermisch gemodificeerd ayous.
Op verstelbaar zwart stalen frame
excl. hang- en sluitwerk
99x178 cm 1060777 € 259,00

Lattendeur Horizontaal
Geschaafd thermisch gemodificeerd ayous.
Op verstelbaar zwart stalen frame
excl. hang- en sluitwerk
99x178 cm 1060778 € 269,00
Aluminium afdekkap met sponning
zwart RAL 9005. 4,5 x 6,1 x 179,5 cm 1060251 € 15.75

Lattenpaneel Horizontaal
Geschaafd thermisch gemodificeerd ayous. 180x60cm
€ 135.00
Redvision Schermen & deuren

Plankenscherm Redvision
21 planken 16 mm
Geschaafd Verticaal, recht.
180x180 cm 1046016 € 145,00

Tuindeurkozijn Redvision
Inclusief aanslaglat

Plankenscherm Redvision
19 planken 16 mm
Geschaafd Verticaal, recht.
180x180 cm 1046017 € 125,00
180x90 cm 1064311 € 85,00


Plankendeur Redvision 16 mm
Op verstelbaar stalen frame 100x190 cm 1060622 € 189,00
Geef uw tuin een fraaie afscheiding met onze nieuwe Redvision schermen en deur en werk deze af met een afdekkap.

De schermen hebben een zeer glad oppervlak, een mooie uitstraling en zijn door droging vormvast.
Kenmerken van Douglas schermen & deuren
√ Fijnbezaagde douglas schermen en deuren
√ Duurzaamheidsklasse 3
√ Leverbaar in diverse hoogtes
√ Leverbaar in 15, 17, 19 en 21-planks schermen

De fijnbezaagde douglas schermen en deuren hebben een natuurlijke en warme uitstraling. Douglashout valt in duurzaamheidsklasse 3 en is daarmee één van de duurzaamste houtsoorten van Europa.

Douglas plankendeur combi Fijnbezaagd met zwart gecoate binnenzijde. Recht verticaal. Planken 1,9x19,5 cm. Excl. hang + sluitwerk.
100x180 cm W42008 € 279,00

Douglas plankenscherm combi Fijnbezaagd met zwart gecoate binnenzijde. Recht verticaal. Planken 1,9x19,5 cm.
180x180 cm W42007 € 195,00 Scherm is in combinatie met betonsysteem te gebruiken.

Elan deur 100 Excellent
Op verstelbaar stalen frame 100x180 cm 1050384 € 335,00


180 Excellent douglas 180x180 cm 1050361 € 242,00

Douglas plankenscherm 15-planks

13 planken, 2 tussenplanken. Fijnbezaagd (onbehandeld afgebeeld). Recht verticaal. Planken 1,9x19,5 cm. 180x180 cm.
Onbehandeld 1011340 € 149,00
Scherm is in combinatie met betonsysteem te gebruiken.

Douglas plankenscherm 15 planken, 3 tussenregels. Fijnbezaagd (onbehandeld afgebeeld). Recht verticaal. Planken 1,5x14 cm. 180x180 cm.
Onbehandeld W42005 € 115,00

Douglas plankenscherm zwart 15-planks
13 planken, 2 tussenplanken. Fijnbezaagd. Geïmpregneerd en zwart gedompeld.
Planken 1,9x19,5 cm.
180x180 cm W08089 € 155,00
Scherm is in combinatie met betonsysteem te gebruiken.

Douglas plankenscherm 17-planks
15 planken, 2 tussenplanken. Geschaafd (onbehandeld afgebeeld).
Recht verticaal. Planken 1,8x16 cm. 180x180 cm.
Onbehandeld W41099 € 169,00
Scherm is in combinatie met betonsysteem te gebruiken.

Douglas plankenscherm 19-planks 17 planken, 2 tussenplanken. Fijnbezaagd (onbehandeld afgebeeld). Recht verticaal. Planken 1,5x14 cm. Dik 1,5 cm. 180x180 cm.
Onbehandeld W42006 € 109,00
Scherm is in combinatie met betonsysteem te gebruiken.


Douglas plankenscherm 19-planks
17 planken, 2 tussenplanken. Geschaafd (onbehandeld afgebeeld).
Recht verticaal. Planken 1,6x14 cm. 180x180 cm.
Onbehandeld W41096 € 149,00
Scherm is in combinatie met betonsysteem te gebruiken.

Douglas plankenscherm 21-planks
19 planken, 2 tussenplanken. Geschaafd (onbehandeld afgebeeld). Recht verticaal. Planken 1,6x14 cm. 180x180 cm. Onbehandeld W42001 € 165,00 Scherm is in combinatie met betonsysteem te gebruiken.
Scherm zwart/douglas dubbelzijdig 180x180x4.3cm met kader. zowel horizontaal als verticaal toepasbaar Rhombus. 1060804 € 259.00 Ook
Plankenscherm douglas enkelzijdig 180x180x3cm lattenconcept. zowel horizontaal als verticaal toepasbaar 1060803 € 199.00
Scan de QR code voor actuele informatie.


Douglas plankenscherm 19-planks 17 planken, 2 tussenplanken. Geschaafd recht verticaal. Planken 1,6x14 cm 180x130 cm W42084 € 139,00 Scherm is in combinatie met betonsysteem te gebruiken.

Kenmerken van Douglas schermen & deuren
√ Fijnbezaagde douglas schermen en deuren
√ Duurzaamheidsklasse 3
√ Leverbaar in diverse hoogtes
√ Leverbaar in 15, 17, 19 en 21-planks schermen
180x130 cm terras & trends Vlonderschroeven
Douglas plankenscherm 19-planks 17 planken, 2 tussenplanken. Fijnbezaagd recht verticaal. Planken 1,5x14 cm 180x130 cm W42086 € 89,00 Scherm is in combinatie met betonsysteem te gebruiken.



Douglas plankendeur
Geschaafd. Recht op verstelbaar stalen frame. Planken 1,8x16 cm. 100x195 cm. Excl. hang + sluitwerk.
Onbehandeld 1060618 € 275,00


Douglas plankendeur
Geschaafd. Recht op verstelbaar frame. Planken 1,6x14 cm. 100x195 cm. Excl. hang + sluitwerk.
Onbehandeld 1060617 € 255,00


Douglas plankendeur
Fijnbezaagd. Recht op verstelbaar stalen frame. Planken 1,5x14 cm. 100x195 cm. Excl. hang + sluitwerk.
Onbehandeld 1060615 € 225,00

RVS luxe deurbeslagset

Hoogwaardige klinkset, volledig RVS beslag. Met SKG keurmerk. Inclusief slotkast, cilinder en slot. incl. duimen W25850 € 117,00


Douglas plankendeur
Fijnbezaagd. Recht op verstelbaar stalen frame. Planken 1,9x19,5 cm. 100x195 cm.
Excl. hang + sluitwerk.
Onbehandeld 1060616 € 239,00


Douglas plankendeur
Geschaafd. Recht op zwart verstelbaar frame. Planken 1,6x14 cm. 100x195 cm. Excl. hang + sluitwerk.
Onbehandeld 1063291 € 259,00

Douglas afdeklat
T.b.v. douglas scherm. 2,8x8,5x180 cm.
Sponningmaat: 6x1,2 cm.
Onbehandeld 1011341 € 9,35
Douglas tuindeurkozijn
Maximale breedte 160 cm. Set bestaat uit: 3 regels, waarvan 1 verticale regel met aanslaglat is uitgevoerd. Incl. bevestigingsmaterialen en handleiding.


RVS luxe deurbeslagset zwart gecoat

Hoogwaardige klinkset, volledig RVS beslag. Met SKG keurmerk.
Inclusief slotkast, cilinder en slot. Incl. duimen. W25855 € 120,00

Douglas afdekkap
T.b.v. douglas scherm. 4,2x8,5x180 cm.
Sponningmaat: 6x1 cm.
Onbehandeld W06830 € 13,25
Alle hardhouten plankenschermen zijn RVS-geschroefd.


Enkele toegangspoort
Hardhout verticaal. Frame 4,5x14 cm.
Planken 1,9x9 cm. Uitgevoerd met zware schoor.
Inclusief verzinkte hengen, duimen en klinkstel. Naar keuze links- of rechtsdraaiend. T.b.v. de bevestiging zijn alle uitsparingen uitgefreesd en voorgeboord.
100x180 cm. W14430 € 999,00
Kenmerken van Hardhouten schermen en deuren
√ Leverbaar in verschillende vormen
√ Alle hardhouten schermen zijn RVS-geschroefd
√ Mooie, donkere kleur van hardhout


Dubbele toegangspoort
Hardhout verticaal. 2 delen van 150 cm breed. Frame 4,5x12 cm.
Planken 1,9x9 cm.
Uitgevoerd met zware schoor aan de achterzijde van de poort. Inclusief verzinkte hengen, duimen en klinkstel. Bij montage aan palen minimale paaldikte 12x12 mm gebruiken.
300x180 cm W14435 € 2235,00

Steunwiel t.b.v. houten poort Geveerd. Hoogte 38 cm W19074 € 79.95

Hardhouten geschaafde paal 4-zijden glad diamant kop. Duurzaamheidsklasse 1.
Azobe. 12x12x300 cm W14450 € 129,00 14x14x300 cm 1038856 € 179,00
Hardhouten plankenschermen zijn geproduceerd van planken 1,4x14,5 cm. De schermen kunnen soms “bloeden”. Dit betekent dat de inhoudstoffen van het scherm soms gedeeltelijk uit het hout kunnen lopen. Dit kan dus verkleuring op aangrenzend materiaal, zoals betonproducten, veroorzaken.
Prijzen kunnen gedurende het seizoen fluctueren. Vraag altijd
Hardhouten schermen & deuren

Hardhouten plankenscherm 17 planken, 3 tussenregels. Geschaafd recht verticaal. Scherm is in combinatie met betonpalen te gebruiken. 180x180 cm W14361 € 245,00

Hardhouten plankenscherm
Geschaafd recht, verticaal, met trellis-driehoek 180x180 cm W14369 € 285,00

Hardhouten toogplankenscherm
Geschaafd toog, verticaal 180x165/180 cm W14365 € 225,00

Hardhouten plankenscherm
Geschaafd recht, verticaal. Ook horizontaal te gebruiken 180x180 cm 1064004 € 219,00

Hardhouten tuindeurkozijn
Maximale breedte 160 cm. Set bestaat uit: 3 regels, waarvan 1 verticale regel met aanslaglat is uitgevoerd. Incl. bevestigingsmaterialen en handleiding W07537 € 105,00


Hardhouten plankendeur
Geschaafd recht, verticaal, met verstelbaar stalen frame 100x180 cm 1041163 € 329,00

RVS luxe deurbeslagset

Hoogwaardige klinkset, volledig RVS beslag. Met SKG keurmerk. Inclusief slotkast, cilinder en slot.
Incl. duimen. W25850 € 117,00

Hardhouten afdekkap
Geschaafd. Met sponning 4,6 cm. T.b.v. Plankenschermen recht. 7x3,5x180 cm W06840 € 22,95


RVS luxe deurbeslagset zwart gecoat Hoogwaardige klinkset, volledig RVS beslag. Met SKG keurmerk.
Inclusief slotkast, cilinder en slot.
Incl. duimen. W25855 € 120,00
Hardhouten plankenscherm
Geschaafd recht, verticaal 180x90 cm W14368 € 165,00
Scan de QR code voor actuele informatie.


Lattendeur zwart
Grenen geschaafd latten deur op verstelbaar frame, horizontaal zwart gespoten
180 x 180 x 5 cm 1064425 € 335.00

Lattendeur zwart
Grenen geschaafd latten deur op verstelbaar frame, verticaal zwart gespoten
178 X 99 x 5 cm 1066426 €365.00


Aluminium afdekkap met sponning zwart RAL 9005. 4,5 x 6,1 x 179,5 cm 1060251 € 15.75
De zwart gespoten schermen worden eerst groen geimpregneerd en daarna gespoten met een dekkende verf

Shutterscherm Excellent 90 zwart
Met beweegbarelamellen zwart gespoten
Vuren lamellen 1,9x7 cm vuren raamwerk 3x8 cm 90x180 cm. 1054997 € ????.00

Shutterscherm zwart
Grenen geschaafd latten scherm, recht horizontaal verticaal zwart gespoten. 180 x 180 x 5 cm. 1064424 € 229.00
Jaloezie, Schermen & Deuren

Vierkante paal zwart
Geschaafd grenen. Geïmpregneerd en zwart gedompeld.
8,8x8,8x270 cm W08095 € 24,50

Plank grenen zwart
Geschaafd grenen. Geïmpregneerd en zwart gedompeld. 1,5x14x180 cm W07445 € 4,25


Plankendeur zwart
Geschaafd grenen recht op verstelbaar zwart frame. 1,5x14 cm. Geïmpregneerd en zwart gedompeld. Excl. hang + sluitwerk.
100x180 cm W08086 € 205,00


Deurframe met planken verticaal zwart Zwart gespoten jumbo planken op stalen verstelbaar deurframe. Met uitgefreesd slotgat. Excl. hang + sluitwerk. Planken 1,5x14 cm. 100x195cm 1060621 € 259,00
Gemaakt van geschaafd grenenhout, KOMO geïmpregneerd en daarna 2x zwart gedompeld. Niet dekkend zwart, de kleur van het hout kan doorschijnen. Desgewenst nabehandelen.

Plankenscherm zwart
15 planken, 3 tussenregels. Planken 1,5x14 cm. Geïmpregneerd en zwart gedompeld.
180x180 cm 1007181 € 125,00


RVS luxe deurbeslagset zwart gecoat
Hoogwaardige klinkset, volledig RVS beslag. Met SKG keurmerk.
Inclusief slotkast, cilinder en slot.
Incl. duimen. W25855 € 120,00

Plankenscherm zwart 19-planks
17 planken, 2 geschaafde grenen tussenplanken. Planken 1,5x14 cm. Geïmpregneerd en zwart gedompeld.
180x180 cm W08088 € 123,00



L-beslag
Per 4 stuks verpakt. Geel verzinkt W19007 € 2,25 RVS W19019 € 5,50 Zwart gepoedercoat W19036 € 3,95

Afdekkap zwart
Geschaafd grenen, voorzien van sponning 6,2 cm.
Geïmpregneerd en zwart gedompeld.
3,5x8,5x180 cm W08090 € 8,35
160 cm
Universeel tuindeurkozijn
Geïmpregneerd en zwart gedompeld. Maximale breedte 160 cm. Set bestaat uit: 3 regels, waarvan 1 verticale regel met aanslaglat is uitgevoerd. Incl. bevestigingsmaterialen en handleiding. W08035 € 42,50

Zwart gespoten!
Plankenscherm zwart 21-planks
19 planken, 2 geschaafde grenen tussenplanken. Planken 1,5x14 cm. Geimpregneerd en zwart gespoten.
180x180 cm W08018 € 169,00
180x90 cm 1064708 € 115,00


Jumboscherm 180/180
15 planken, 3 geschaafde steunplanken. Ook verticaal toe te passen.
180x180 cm A306223 € 99,95

17 planken, 15 planken op 2 tussenregels.
180x90 cm A306193 € 69,95

Jumboscherm 20 planken
Minder inkijk door de 17 planken op 3 steunplanken. Ook horizontaal toe te passen.
180x180 cm A306304 € 107,00

Jumboscherm 21 planken
19 planken, 2 tussenplanken. Scherm is in combinatie met betonsysteem te gebruiken.
180x180 cm W306306 € 115,00
Kenmerken van Jumbo schermen
√ Geschaafde vuren planken
√ Zeer solide
√ Schermdikte +- 5 cm
√ Deurstijlen van gevingerlast hout

Jumboscherm 18-planks
Minder inkijk door de 15 planken op 3 tussenregels. Ook horizontaal toe te passen.
180x200 cm W306495 € 109,00


Deurframe met planken horizontaal
Jumbo planken op stalen verstelbaar deurframe. Met uitgefreesd slotgat. Excl. hang + sluitwerk.
100x180 cm W306310 € 189,00

Jumboscherm 18-planks
Minder inkijk door de 15 planken op 3 tussenregels Ook horizontaal toe te passen.
180x170/180 cm W306207 € 105,00


Deurframe met planken

Jumbo planken op stalen verstelbaar deurframe. Met uitgefreesd slotgat.
100x180 cm W306759 € 185,00
100x200 cm W306803 € 195,00
max. 160 cm
max. 210 cm
Universeel tuindeurkozijn
Maximale breedte 160 cm.
Set bestaat uit: 3 regels, waarvan 1 verticale regel met aanslaglat is uitgevoerd. Incl. bevestigingsmaterialen en handleiding. 1011339 € 35,00

RVS luxe deurbeslagset

Hoogwaardige klinkset, volledig RVS beslag. Met SKG keurmerk. Inclusief slotkast, cilinder en slot.
Incl. duimen. W25850 € 117,00

Afdeklat geschaafd
T.b.v. recht- en toogschermen. Voorzien van sponning 6,2 cm
1,9x9,6x181,5 cm W06806 € 4,95
Afdekkap
3,5x8,5x180 cm W06803 € 7,25


RVS luxe deurbeslagset zwart gecoat Hoogwaardige klinkset, volledig RVS beslag. Met SKG keurmerk.
Inclusief slotkast, cilinder en slot. Incl. duimen. W25855 € 120,00



Plankenscherm 23-planks
Grenen geschaafd plankenscherm verticaal
180x180 cm 1050329 € 115,00
Kenmerken van Grenen schermen en deuren
√ Leverbaar in diverse maten en vormen
√ 19- en 21-planks schermen
√ Mooie licht kleur van grenen
Voor bevestiging aan houten palen



L-beslag Per 4 stuks verpakt
Geel verzinkt W19007 € 2,25 RVS W19019 € 5,50 Zwart gepoedercoat W19036 € 3,95
Voor bevestiging aan betonpalen

Unibeslagset
T.b.v. betonpaal 10x10 cm met doorgeboorde gaten. Geel verzinkt W19024 € 2,49 RVS W19050 € 4,50 Zwart gepoedercoat W19035 € 4,35

Plankenscherm 19-planks
Geschaafd grenen recht plankenscherm verticaal
180x180 cm W08176 € 95,00

Plankenscherm 21-planks
Geschaafd grenen recht verticaal
180x180 cm (15 mm) W08190 € 115,00
180x180 cm (17 mm) W08116 € 105,00
Scherm is in combinatie met betonsysteem te gebruiken.

Plankenscherm 19-planks
Geschaafd grenen toog plankenscherm verticaal
180x180 cm W08177 € 105,00

Afbouwscherm 21-planks
Geschaafd grenen verticaal
180x180/89 cm W08111 € 135,00



Plankenscherm 21-planks
Geschaafd grenen recht verticaal
180x89 cm W08101 € 77,50
180x130 cm W08107 € 99,95
Scherm is in combinatie met betonsysteem te gebruiken.
19- planks schermen zijn gemaakt van planken 1,5x14 cm
21- planks schermen zijn gemaakt van planken 1,7x14 cm


Plankenscherm grenen
15 mm recht
180x180 cm 924406 € 85,00

Plankenscherm grenen
15 mm toog
180x180 cm 1000052 € 99,95
De 15 mm schermen zijn gemaakt van planken 1,5x14,0 cm


Plankendeur
Geschaafd grenen recht op verstelbaar frame. Planken 1,7x14 cm.
Excl. hang + sluitwerk.
90x180 cm W07575 € 179,00
100x180 cm W07550 € 189,00
100x195 cm 1060619 € 205,00
120x195 cm 1060620 € 225,00

RVS luxe deurbeslagset

Hoogwaardige klinkset, volledig RVS beslag. Met SKG keurmerk. Inclusief slotkast, cilinder en slot. Incl. duimen. W25850 € 117,00


RVS luxe deurbeslagset zwart gecoat
Hoogwaardige klinkset, volledig RVS beslag. Met SKG keurmerk.
Inclusief slotkast, cilinder en slot. Incl. duimen. W25855 € 120,00
max. 210 cm
max. 160 cm
Afdekkap
Geschaafd, t.b.v rechtscherm.
Voorzien van sponning 6,2 cm.
3,5x8,5x180 cm W06803 € 7,25
3,5x8,5x235 cm W06804 € 9,50
Afdeklat geschaafd
T.b.v. recht- en toogschermen. Voorzien van sponning 5,2 cm.
1,9x7x181,5 cm W06805 € 4,69
Voorzien van sponning 6,2 cm.
1,9x9,6x181,5 cm W06806 € 4,95
W06803
Universeel tuindeurkozijn
Maximale breedte 160 cm.
Set bestaat uit: 3 regels, waarvan 1 verticale regel met aanslaglat is uitgevoerd. Incl. bevestigingsmaterialen en handleiding. 1011339 € 35,00

W06805
W06803 / W06804

Profielplanken
Werkend 13,5 cm.

2,8x14,5x180 cm W06145 € 9,50
2,8x14,5x200 cm W06150 € 10,50
2,8x14,5x300 cm W06155 € 15,85
2,8x14,5x400 cm W06160 € 21,15
(Let op: 400 cm planken niet als 1 lengte toepassen, i.v.m. mogelijk kromtrekken)
Profielafdekplank
Onderzijde met groef en bovenzijde glad geschaafd met vellingkant.
2,8x13,5x200 cm W06165 € 9,85



Geschaafde vierkante palen met sponning
Sponningmaat is 2,8 cm breed en 2,5 cm diep, t.b.v. profielplanken.
Sponningmaat is 3,0 cm breed en 2,5 cm diep, t.b.v. profielplanken.
Eindpaal voorzien van één sponning.
8,8x8,8x270 cm W07030 € 23,95
Tussenpaal voorzien van twee sponningen.
8,8x8,8x270 cm W07035 € 23,95
Hoekpaal voorzien van twee sponningen.
8,8x8,8x270 cm W07040 € 23,95






Jaloezie-element Excellent
14 vaste vurenhouten lamellen (2,1x6 cm) onder een hoek van 45 graden op 3 ingekeepte onderregels 2,4x4,8 cm. Ook toepasbaar als pergoladak.
180x90 cm A306568 € 95,00

Shutterscherm Excellent 90 Met beweegbarelamellen groen geimpregneerd
Lamellen 1.9x9.5 cm
Raamwerk 4.5x9 cm
90x180 cm. A299405 € 205.00
Alle bloemen en planten worden hier blij van!



Douglas Betonijzertrellis


Betonijzertrellis met verzinkt betonijzer en een douglas raamwerk van 4,5x7 cm. Het betonijzer heeft een maaswijdte van 7,5x7,5 cm en een doorsnede van ø 5 mm.
180x180 cm W32050 € 155,00
90x180 cm W32055 € 105,00




Grenen Betonijzertrellis
Betonijzertrellis met verzinkt betonijzer en een grenen raamwerk van 4,5x7 cm. Het betonijzer heeft een maaswijdte van 7,5x7,5 cm en doorsnede van ø 5 mm.
180x180 cm W08317 € 125,00
90x180 cm W08318 € 79,00
60x180 cm W08319 € 65,00





Eco gaastrellis

Eco gaastrellis met verzinkt gaaspaneel en een grenen raamwerk van 4,5x4,5 cm. Het gaaspaneel heeft een
maaswijdte van 7,5x7,5 cm en een doorsnede van ø 3,8 mm.
180x180 cm W08325 € 79,00
90x180 cm W08326 € 55,00

Montagebeslag t.b.v. gaaspanelen
4 clips + schroeven W19010 € 0,90


U kunt met hout-beton schuttingen echt alle kanten op. Kies uw gewenste paal, plaat én scherm.
Hout-beton schuttingsystemen

Systeem 1
Glad beton
Pagina 408

Systeem 3
Ruw (stamp)beton
Pagina 409

Systeem 5
Glad beton, palen met sponning en platte kop
Pagina 418-419
1

Systeem 2
Lichtgewicht beton
Pagina 409

Systeem 4
Glad beton met onderplaten met motief
Pagina 414-417

Systeem 6
Glad beton met sleuf t.b.v. stapelprofielscherm
Pagina 418-419
Zo werkt het.
Kies achtereenvolgens de betonpalen, betonplaten, schermen en de accessoires
2
3
4

Gladde betonpalen met diamantkop ongecoat en gecoat
Ongecoate betonpalen
10x10x190 cm, tussenpaal t.b.v. scherm 90 cm
10x10x280 cm, tussenpaal
10x10x310 cm, tussenpaal, t.b.v. 2 betonplaten
10x10x280 cm, hoekpaal
Antraciet Grijs
W13231 € 48,50 W13411
W13232 € 48,50 W13412
W13234 € 75,00 W13414
W13233 € 57,50 W13413
10x10x310 cm, hoekpaal, t.b.v. 2 betonplaten W13244 € 82,50 W13416
10x10x280 cm, T-paal
10x10x280 cm, eindpaal
W13247 € 57,50 W32315
W13236 € 57,50 W32320
Betonpalen van 280 en 310 cm zijn voor zowel rechte als toogschermen te gebruiken.
Gecoate betonpalen
€ 36,95
€ 35,00
€ 69,95
€ 42,95
€ 78,50
€ 42,95
€ 42,95
Antraciet
10x10x180 cm, tussenpaal t.b.v. scherm 90 cm hoog 1022799
10x10x280 cm, tussenpaal W13232-C 10x10x310 cm, tussenpaal t.b.v. 2 betonplaten 1022801
10x10x280 cm, hoekpaal 1022804 10x10x310 cm, hoekpaal t.b.v. 2 betonplaten 1022806
10x10x280 cm, T-paal 1022807
10x10x280 cm, eindpaal W13236-C
Gladde betonplaten ongecoat en gecoat
Ongecoate betonplaten
24x3,5x184
24x3,5x224
Gecoate betonplaten
3,5x24x184 cm
€ 65,00
€ 65,00 € 91,50
€ 74,95
€ 99,00
€ 74,95
€ 74,95
Sponning t.b.v. betonplaat ca. 4,6 cm loopt taps toe naar ca. 4,0 cm.
Antraciet Grijs
W13215 €
Antraciet
W32120 € 37,95
3,5x24x224 cm W32125 € 48,95

Voorbeeldopstelling: Beton grijs glad met grenen plankenscherm.

Voorbeeldopstelling: Beton antraciet glad met douglas plankenscherm.

Lichtgewicht betonpaal met diamantkop ongecoat
Betonplaten Antraciet Grijs
8,5x8,5x275 cm, tussenpaal
Gladde betonplaten ongecoat
Betonplaten
24x3,5x184 cm
2 3
Stampbetonpalen ongecoat
Antraciet Grijs
Betonpalen Antraciet Grijs
10x10x180 cm, tussenpaal, t.b.v. toog- en rechtschermen (artikel W08101)
10x10x280 cm, tussenpaal, t.b.v. rechtschermen 180 cm hoog W13035
10x10x310 cm, tussenpaal, t.b.v. rechtschermen 180 cm hoog t.b.v. 2 betonplaten
10x10x280 cm, hoekpaal, t.b.v. rechtschermen 180 cm hoog W13041
Stampbetonplaten ongecoat
Betonplaten Antraciet Grijs
25x3,5x184 cm
25x3,5x225 cm
Sponning




Grenen plankenschermen

19-planks
180x180 cm W08176 € 95,00

23-planks
180x180 cm 1050329 € 115,00

Plankenscherm Redvision 19 planken 16 mm
Geschaafd Verticaal, recht. 180x180 cm 1046017 € 125,00

19-planks Toog
180x180 cm W08177 € 105,00

Zwart gedompeld

21-planks
180x180 cm W08116 € 115,00
Zwart gedompeld!
180x180 cm W08088 € 123,00

Plankenscherm Redvision 21 planken 16 mm
Geschaafd Verticaal, recht. 180x180 cm 1046016 € 145,00


Douglas plankenschermen


15-planks
180x180 cm
Onbehandeld

17-planks



19-planks

21-planks

Vuren plankenscherm
Jumboscherm 21 planken

20-planks
Hardhouten plankenscherm

Accessoires

Unibeslagset
T.b.v. lichtgewicht betonpaal 8,5x8,5 cm met doorgeboorde gaten.
Verzinkt W19101 € 2,19
RVS W19102 € 3,85
Zwart W19103 € 3,25

U-profiel
T.b.v. betonplaatbevestiging rechtstreeks aan een muur of het creëren van een T-opstelling. Per stuk W19025 € 5,35

Opvulblokje voor betonpaal
T.b.v. toogschermen in combinatie met betonpalen. Indien u een schutting plaatst met toogschermen kunt u met de opvulblokjes de hoogte uitvullen. Per scherm heeft u er 2 nodig. Afmeting: 1,7x11x4,5 cm.
Antraciet W13210 € 0,45 Grijs W13410 € 0,45

Unibeslagset
T.b.v. betonpaal 10x10 cm met doorgeboorde gaten.
Verzinkt W19024 € 2,49
RVS W19050 € 4,50
Zwart W19035 € 4,35
Afdeklat geschaafd
T.b.v. recht- en toogschermen.
Voorzien van sponning 5,2 cm.
1,9x7x181,5 cm W06805 € 4,69
Voorzien van sponning 6,2 cm.
1,9x9,6x181,5 cm W 06806 € 4,95
Afdekkap
Geschaafd, t.b.v rechtscherm.
Voorzien van sponning 6,2 cm.
3,5x8,5x180 cm W06803 € 7,25
3,5x8,5x235 cm W06804 € 9,50
Zwart gedompeld.
3,5x8,5x180 cm W08090 € 8,35
W06806

W06805
W06803 / W06804
W08090

Voorbeeld schutting ca. 8 meter lang
Hiervoor heeft u nodig:
• 4 stuks plankenschermen (in dit geval 1 rechtscherm, 1 rechtscherm met trellis, 1 afbouwscherm en 1 ca. 90 cm hoog scherm).
• 3 stuks betonpalen 280 cm, 2 stuks betonpalen 180 cm
• 5 stuks unibeslag-set.
• 4 stuks betonplaten 184 cm lang.
Als extra:
• 4 stuks afdeklatten recht.
De betonpalen/platen zijn gewapend. Met dit systeem zijn hoogteverschillen zonder problemen op te vangen.

Het hout-beton systeem met motief geeft sfeer in de tuin. Het is een ideale samenstelling voor een lange levensduur. U kunt kiezen uit diverse combinaties van schermen en motieven. De betonplaten zijn verkrijgbaar in gecoate en ongecoate varianten. Tussen het scherm en de betonplaat ligt een betonnen afdekkap ter afwerking.
Voor de opstelling rechts heeft u nodig:
• 1 stuks plankenscherm.
• 2 stuks betonpalen.
• 2 stuks unibeslag-set.
• 2 stuks betonplaten (rots)motief.
• 1 stuks betonnen afdekkap.
• 1 stuks houten afdekkap.
Palen antraciet glad met diamantkop
Schuttingpalen Ongecoat Gecoat
10x10x280 cm, tussenpaal W13275 W32200
10x10x280 cm, hoekpaal W13280 W32205
10x10x280 cm, T-betonpaal W13285 W32210
10x10x280 cm, eindpaal W13290 W32215
Schuttingen met betonplaten met motief

Ongecoate plaat rotsmotief
Betonplaat rotsmotief dubbelzijdig
36x3,5x184 cm W13265 € 48,95

Ongecoate plaat leisteenmotief
Betonplaat leisteenmotief dubbelzijdig
36x3,5x184 cm W13266 € 48,95
Plankenschermen

Douglas plankenscherm 19-planks
17 planken, 2 tussenplanken. Fijnbezaagd recht verticaal. Planken 1,5x14 cm Onbehandeld. 180x130 cm

Douglas plankenscherm 19-planks
17 planken, 2 tussenplanken. Geschaafd recht verticaal. Planken 1,6x14 cm Onbehandeld. 180x130 cm

Gecoate plaat rotsmotief
Betonplaat rotsmotief dubbelzijdig
36x3,5x184 cm W32220 € 61,95

Gecoate plaat leisteenmotief
Betonplaat leisteenmotief dubbelzijdig
36x3,5x184 cm W32225 € 61,85
De voordelen van gecoat beton zijn:
• Een fraaiere uitstraling van uw betonproduct.
• Sterk verminderde vorming van alg en schimmel.
• Betoncoating vermindert het ontstaan van kalkuitbloei aanzienlijk.
• Betoncoating beschermd tegen overige gevolgen van weersinvloeden en UV straling.


Accessoires t.b.v. schermen en borders

Betonnen afdekkap zonder coating
T.b.v. betonplaten.
4,5x8x180 cm W13260 € 52,95
Polymeer montagekit
t.b.v. afdekkap W19060 € 15,75

Betonnen afdekkap met coating
T.b.v. betonplaten.
4,5x8x180 cm W32235 € 59,95
Polymeer montagekit
t.b.v. afdekkapW19060 € 15,75

Fles zwarte coating 1 liter W32486 € 61,50


Douglas afdeklat
T.b.v. douglas scherm. 2,8x8,5x180 cm.
Sponningmaat: 6x1,2 cm.
Onbehandeld 1011341 € 9,35
Douglas afdekkap
T.b.v. douglas scherm. 4,2x8,5x180 cm.
Sponningmaat: 6x1 cm.
Onbehandeld W06830 € 13,25


Gladde betonpalen ongecoat
Betonpalen Antraciet
10x10x270 cm tussenpaal W32400 € 45,95
10x10x270 cm eindpaal W 32405 € 53,50
Sponning t.b.v. betonplaat ca. 4,0 cm loopt taps toe naar ca. 3,5 cm.
Gladde betonplaat ongecoat
Betonpalen Antraciet
24x3,5x180 cm betonplaat W32495 € 27,95



Veel soorten schermen uit het assortiment kunnen bij dit systeem worden gebruikt. Bijzonder geschikt zijn de schermen vermeld op de pagina hiernaast.
Wil je een winddichte schutting dan kun je hiervoor de speciaal voor dit systeem gemaakte beto-dichtplankschermen gebruiken.
Onderstaande worden bij dit systeem geadviseerd.

Vuren beto-dichtplankscherm
Beto-dichtplankschermen zijn geproduceerd van fijnbezaagde vuren planken 1,7x14,5 cm en worden voorzien van RVSbevestigingsmaterialen. Wij raden u aan deze schermen alleen in combinatie met het op deze pagina genoemde betonsysteem te gebruiken.
180x180 cm W07920 € 125,00
Bovenregels
Geschaafde Scandinavisch vuren bovenregel.
3,8x10x450 cm W06603 € 25,50
Douglas geschaafde gording
4,5x12,0x400 cm, onbehandeld. 1009219 € 32,15 Slagschroef met plug.
T.b.v. montage bovenregel.
Per stuk W25024 € 0,25

Douglas beto-dichtplankscherm
Beto-dichtplankschermen zijn geproduceerd van fijnbezaagde douglas planken 1,9x14,5 cm en worden voorzien van RVS-bevestigingsmaterialen. Wij raden u aan deze schermen alleen in combinatie met het op deze pagina genoemde betonsysteem te gebruiken.
180x180 cm W40794 € 165,00
Scan de QR code voor actuele informatie.
Douglas scherm met douglas ligger 4,5x12 cm.

Bij dit systeem worden zowel de betonplaat alsmede de schermen opgesloten in de doorlopende sponning. De constructie wordt verder verstevigd door bovenop de palen en schermen een hardhouten of geïmpregneerde bovenregel te plaatsen (zie detailfoto).


NIEUW
Verstelbaar stalen poortframe incl. kokerprofiel, slot en beslagset zwart gepoedercoat
98,5x190 cm 1060383 € 479,00

Scherm is 220 cm breed!
Betowood betonpalen
Betonpalen grijs zonder coating met diamantkop
11,5x11,5x278 cm, tussenpaal W13045 € 49,95
11,5x11,5x278 cm, hoekpaal W13055 € 57,50
11,5x11,5x278 cm, eindpaal W13050 € 57,50
Betonpalen antraciet met coating en met platte kop
11,5x11,5x277 cm, tussenpaal W32100 € 82,95
11,5x11,5x277 cm, hoekpaal W32105 € 89,95
11,5x11,5x277 cm, eindpaal W32115 € 89,95
Gladde betonplaten
Betonplaten Grijs ongecoat Antraciet gecoat
24x3,5x224 cm W13417 € 34,95 W32125 € 48,95
Plankenschermen
De antraciet of grijze betonpalen en -platen zijn te combineren met douglas, vuren, of grenen blokhutprofielen van 2,8 cm dikte. Ook kunt u kiezen voor een Betowood scherm (bouwpakket) of plankenscherm.




Accessoires
Fles zwarte coating 1 liter W32486 € 61,50
De voordelen van gecoat beton zijn:
• Een fraaiere uitstraling van uw betonproduct.
• Sterk verminderde vorming van alg en schimmel.
• Betoncoating vermindert het ontstaan van kalkuitbloei aanzienlijk.
• Betoncoating beschermd tegen overige gevolgen van weersinvloeden en UV straling.
Sponning t.b.v. betonplaat ca. 4,2 cm loopt taps toe naar ca. 3,8 cm.



Betowood schermen
Links afgebeeld: 1x Betowood scherm vuren, 2x betonpalen en 1x betonplaat 224 cm
Deze schutting kan gemakkelijk tussen de Betowood betonpalen worden gestapeld. De schutting wordt als bouwpakket geleverd. De meegeleverde afdekkap maakt het geheel af.
Buitenmaat (bxh) 224x185 cm.
Bouwpakket vuren Betowood scherm bestaat uit: 14 blokhutprofielen 2,8x14,5x224 cm en 1 afdekkap 4,5x7x220 cm.
Vuren, groen geïmpregneerd W31660 € 189,00
Bouwpakket douglas Betowood scherm bestaat uit: 10 douglas blokhutprofielen 2,8x19,5 (18 werkend) x224 cm en 1 douglas afdekkap 4,5x7x220 cm.
Douglas, onbehandeld W31672 € 215,00
Douglas, groen geïmpregneerd W31673 € 225,00
Douglas, zwart gedompeld W31676 € 239,00
Kleurloos geïmpregneerd W31674 € 225,00
Scan de QR code voor actuele informatie.

Zwarte bamboekstokken
Rietplaat 2 cm dik
Met staaldraad gevlochten
200x200 cm W17034 € 92,50
Rietmat 1,5/2 cm dik
Met perlondraad gebonden, meerdere stengels per steek.
100x200 cm W17024 € 18,95
150x200 cm W17025 € 28,50
175x200 cm W17026 € 33,50
200x200 cm W17027 € 38,50



Bamboescherm op rol
Stokken ca. ø 2 cm, gelakt 180x180 cm W17080 € 125,00
Stokken ca ø 2
zwart 180x180 cm 920517 € 145,00

Boomschorsmat

175x300 cm W17001 € 85,00
200x300 cm W17002 € 95,00

Wilgentenenscherm grof
Bovenkant en onderkant voorzien van latten (hxb)
90x180 cm W17042 € 95,00
180x180 cm W17043 € 175,00

Looppoortje
Tamme hazenlaarhout incl. beslag en 2 steunpalen met 2 afgekante geschilde ronde palen Rechtsdraaiend.
100x100 cm 1046046 € 229,00

Ca. 1,5 cm dik
175x500 cm W17012 € 85,00
200x500 cm W17013 € 99,00
Ca. 3 cm dik
175x300 cm W17019 € 119,00
200x300 cm W17020 € 139,00

Wilgentenenscherm fijn
Met ijzeren frame (hxb)
90x180 cm W17053 € 75,00
180x180 cm W17048 € 145,00

Schapenhek
Tamme hazenlaarhout,

Bamboescherm in frame
Met extra dikke zwarte bamboestokken.
Frame van douglashout 4,5x7 cm.
Alleen verticaal toe te passen.
186x186 cm. W17078 € 285,00

Wilgentenenmat 1 stengel dik met staaldraad gevlochten

Zet om de ca. 100 cm een paal.

De opgegeven maten van de schermen zijn circa maten en kunnen licht afwijken Voor de duurzaamheid van de natuurlijke afscheidingen verwijzen wij u naar onze website/dealer..
ø 10/12x250 cm 1050635 € 35,00


per stuk
90x500 cm, latafstand 4 cm
100x500 cm, latafstand 4 cm
120x500 cm, latafstand 4 cm
90x500 cm, latafstand 8 cm
100x500 cm, latafstand 8 cm
120x500 cm, latafstand 8 cm





Bamboerol Naturel
Bamboerol Zwart

Bamboematten

Bamboepalen






Kastanje Palen (gepunt)
P rijs per stuk
150 cm lengte
200 cm lengte
250 cm lengte
300 cm lengte
Meerdere lengtes en doorsnedes leverbaar.

Robinia spintvrije palen
Prijs per stuk
160 cm lengte
180 cm lengte
250 cm lengte
300 cm lengte


Robinia geschuurde palen
Robinia palen spintvrije geschuurd (ongepunt) P rijs per stuk
250 cm lengte
300 cm lengte
400 cm lengte
500 cm lengte

Kastanje Hekwerk Engels
Prijs per stuk
100x500 cm, afstand 4-5 cm
120x500 cm, afstand 4-5 cm
90x500 cm, afstand 8-10 cm
100x500 cm, afstand 8-10 cm
120x500 cm, afstand 8-10 cm

Kastanje Hekwerk Frans
Prijs per stuk
50x500 cm, latafstand 4-5 cm
80x500 cm, latafstand 4-5 cm
100x500 cm, latafstand 4-5 cm
120x500 cm, latafstand 4-5 cm
150x500 cm, latafstand 4-5 cm
175x500 cm, latafstand 4-5 cm
80x500 cm, latafstand 8-9 cm
100x500 cm, latafstand 8-9 cm
120x500 cm, latafstand 8-9 cm

Kastanje Hekwerk Frans en Poort
Kenmerken Kastanje hekwerk
√ Latten Frans hekwerk zijn rechter en puntiger
√ Latten Engels hekwerk zijn grilliger en meer afgerond

Kastanje Poort
Prijs per stuk 80x100 cm, incl. beslag 100x100 cm, incl. beslag 120x100 cm, incl. beslag 150x100 cm, incl. beslag 180x100 cm, incl. beslag

Scherm







Bamboe schutting/gevel delen
Prijs per stuk
Deluxe schuttingplank 1,8x14x195 cm met schijnvoeg (stapelen of schroeven)
Triple rhombus schuttingplank (installatie middels clips)
U-profiel 3x4,5x200 cm
Toplat 4x4,5x200 cm
Frame lat 2x4,5x200 cm
Frame lat 3x6x200 cm
Schutting paal dicht 7x7x300 cm
Schutting paal tussen 7x7x300 cm (2 groeven)
Bamboe schutting/gevel delen
Prijs per stuk
buiten olie 0,75 liter*
buiten olie 2,5 liter*
chocolate buiten olie 0,75 liter*
chocolate buiten olie 2,5 liter* * Verbruik ca. 6-8 m² per liter
Bamboe schuttingen/prefabpanelen
Prefabpaneel Plat voorzijde

Prefabpaneel Plat achterzijde

Prefabpaneel Haaks voorzijde

Bamboe pre-fab panelen
Prijs per stuk
Plat paneel 6 latten, 2,8x30,6x250 cm
Plat paneel 13 latten, 2,8x65,1x195 cm
Haaks paneel 8 latten, 5x32,1x250 cm
Haaks paneel 16 latten, 5x64,1x195 cm
Bamboe schutting/gevel delen
Prijs per stuk
Caramel buiten olie 0,75 liter*
Caramel buiten olie 2,5 liter*
Dark chocolate buiten olie 0,75 liter*
Dark chocolate buiten olie 2,5 liter*
* Verbruik ca. 6-8 m² per liter
art.nr.
27902708
27902710
27902709
27902711
Caramel
€ 90,85
€ 163,80
€ 124,75
€ 215,10

Prefabpaneel Haaks achterzijde
Kenmerken Bamboe schuttingen en prefabpanelen
√ Extreem duurzaam voor het milieu
√ Luxe en exclusieve uitstraling
√ Superieur aan hardhout





Dubbele staafmatten
Draaddikte 6/5/6 maas 5x20 cm verzinkt en zwart gecoat (RAL9005) 250x103


Enkele poort Premium
Draaddikte 6/5/6 maas 5x20 cm verzinkt en zwart gecoat (RAL9005) incl. slot, palen van 6x6 cm en bevestigingsmateriaal
100x100 cm 1052654 € 619,00
100x180 cm 1052655 € 789,00
Dubbele poort Premium
Draaddikte 6/5/6 maas 5x20 cm verzinkt en zwart gecoat (RAL9005) incl. slot, palen van 6x6 cm en bevestigingsmateriaal
300x100 cm 1052656 € 1269,00
300x180 cm 1052657 € 1635,00









Spuitbus lakspray
400 ml lakspray zwart RAL 9005 Voor het bijwerken van kleine beschadigingen.
W08470 € 18,85

Privacystroken op rol
Rol à 50 meter hoogte 19 cm zwart gemaakt van polyethyleen waterbestendig en UV gestabiliseerd
W08465 € 175,00

Bevestigingsclips
t.b.v. privacystroken Set van 10 stuks
1052663 € 6,65
Scan de QR code voor actuele informatie.


Douglas reliëf rechthek
Gemaakt van onbehandeld douglashout, latten 8,8 cm breed met reliëf.
80x180 cm W01008 € 71,95

Douglas reliëf rechtpoort

Gemaakt van onbehandeld douglashout. Inclusief verzinkte hengen, duimen en klinkstel.
80x100 cm W01508 € 105,00

L-beslag
Scan de QR Code voor de actuele prijzen.
Voor het monteren van hekken en schermen.


Per 4 stuks verpakt Geel verzinkt W19007 € 2,25
RVS W19019 € 5,50
Zwart gepoedercoat W19036 € 3,95
Hardhouten & grenen hekken & poorten

Hardhouten spijlenpoort
Frame 4,5x7 cm. Spijlen 2x3 cm. Excl. hang- en sluitwerk. Bijpassend poortbeslag 19013. De poort is ook als hek te gebruiken.
100x80 cm 1064223 € 167,00

Reliëf rechthek
Gemaakt van grenenhout.
190x60 cm W01001 € 43,50
190x80 cm W01002 € 52,50
190x100 cm W01003 € 59,95

Hardhouten spijlenhek
Frame 4,5x7 cm. Spijlen 2x3 cm. 180x80 cm 1064222 € 175,00

Excellent hek
Vuren latten 2,8x6 cm op steunbalken 3,5x7 cm. Latten bovenaan afgerond.
180x80 cm 1063087 € 80,95
De vuren latten zijn mooi rond afgewerkt.

Reliëf rechthekpoort
Gemaakt van grenenhout.
100x 60 cm W01501 € 51,95
100x 80 cm W01502 € 56,50
100x100 cm W01503 € 60,95

Excellent poort

Inclusief verzinkte hengen, duimen en klinkstel. Vuren latten 2,8x6 cm op steunbalken 3,5x7 cm. Latten bovenaan afgerond.
100x80 cm 1063088 € 92,95

Nieuw van Hillhout zijn het spijlenhek en de bijpassende poort. Door de verticaal geplaatste spijlen is uw tuin mooi afgesloten maar behoud het toch een open karakter.

Deurbeslag
Voor alle plankendeuren met houten frame. Incl. duimen. W19002 € 77,95


Palen fijnbezaagd


Palen fijnbezaagd



Palen fijnbezaagd

Regels fijnbezaagd


Balken fijnbezaagd
20.16030
20.16050

fijnbezaagd

Balken fijnbezaagd

Planken fijnbezaagd

Planken fijnbezaagd


Planken fijnbezaagd

Planken fijnbezaagd

fijnbezaagd





















Vellingdelen geschaafd
16.18300 18x145x3000 mm € 15.00
16.18400 18x145x4000 mm € 19.95
16.18500 18x145x5000 mm € 24.95
Werkende breedte: 18x135 mm

Blokhut planken geschaafd
12.19540
12.19550

Vellingdelen geschaafd wit vuren

Halfhouts rabat
Zichtzijde fijnbezaagd Werkende breedte: 18x130 mm

Vellingdelen geschaafd

Zichtzijde fijnbezaagd Werkende breedte: 18x127 mm

Sponningplanken
22.18300 18x190x3000 mm € 16.35
22.18400 18x190x4000 mm € 21.75
22.18500 18x190x5000 mm € 27.20
Werkende breedte: 18x170 mm
1 zijde fijnbezaagd, 1 zijde geschaafd

Planken geschaafd
12 18300
12.18400
1 zijde fijnbezaagd, 1 zijde geschaafd

Rhombus profielplank
12.25150 25x140x5000 mm € 37.25
12.25140 25x140x4000 mm € 29.80
12.25130 25x140x3000 mm € 22.35
Werkende breedte: 120 mm

Sponningplanken zwart gespoten 23.18500 18x190x5000 mm € 38.30
Werkende breedte: 18x170mm


Voor de perfecte montage zie ons gehele assortiment terras & trends schroeven op pagina 448.

Planken geschaafd
12 25500
1 zijde fijnbezaagd, 1 zijde geschaafd
Werkende breedte: 18x170mm 1 zijde fijnbezaagd, 1 zijde geschaafd
1 zijde fijnbezaagd, 1 zijde geschaafd Sponningplanken zilvergrijs

geschaafd
€

Terrasplanken geschaafd 05 25300 25x140x3000 mm € 16.60 05
Scan de QR code voor actuele informatie.

Potdekselplank



Potdekselplank 145 mm onbehandeld
10.10203
Zichtzijde fijnbezaagd (Werkende breedte: 127 mm)

Potdekselplank 145 mm zwart gespoten




HK Lasur is een beschermingsimpregnering voor alle houtsoorten met een zeer goed indringvermogen en conserverend vermogen. Het beschermt het hout tegen nagenoeg alle houtaantastende organismen en weersinvloeden. Het materiaal kan absoluut niet bladderen en is op basis hiervan onderhoudsvriendelijk maar ook uitstekend verwerkbaar. HK Lasur wordt hoofdzakelijk gebruikt voor buitenwerk en dan met name voor tuinhuizen, pergola’s, schuren, deuren, schuttingen, gevelbetimmering enzovoort. De beits heeft een vochtwerende doch dampregulerende werking, geeft bescherming tegen afbraak door UV en weersinvloeden en kan geleverd worden in diverse mooie tinten. Gebruik vooraf een proefstuk om het effect te beoordelen.








Watergedragen semi-filmvormende dekkende lazuur/beits. Beschermd het hout tegen vocht, schimmels en algen, vuil, UV-straling en houtaantastende organismen. Bladdert niet af, ademings-actief en vochtregulerend, dringt diep in, waterwerend. Ingebouwde grondering, nabehandeling en onderhoud zonder schuren of afbijten.


Deze set is incl. 1 speciale schrobber. Hout-ontgrijzer verwijdert effectief vervuiling, grijze verkleuringen, roestsporen, algen en mos op houten meubelen, terrassen en andere houten ondergronden. Daardoor is het schuren van het oppervlak niet meer noodzakelijk. Hout-ontgrijzer heeft een gel-achtige consistentie en is biologisch afbreekbaar.

Kenmerken van Eikenhout fijnbezaagd
√ Eikenhout is extreem sterk en slijtvast
√ Het heeft een aantrekkelijke en natuurlijke houtnerf, wat het visueel aantrekkelijk maakt.
√ Beschikbaar in verschillende formaten










Kenmerken van Redvision
√ Zeer glad oppverlak
√ Door de droging vormvast


Dakbeschot Redvision
1,8x14,5x300 cm 1045900 € 9,50

1,8x14,5x400 cm 1045902 € 12,75
1,8x14,5x500 cm 1045903 € 15,95
Triple profiel Redvision

2,2x14x300 cm (rhombus) 1045904 € 14,35
2,2x14x400 cm (rhombus) 1045905 € 18,95

Geschaafde planken Redvision
1,6x14x180 cm 1045934 € 4,95
1,6x14x400 cm 1045940 € 11,25

Regels Redvision
4,5x7x300 cm 1045907 € 10,95
4,5x7x500 cm 1045909 € 18,35

Geschaafd triple profiel douglas Zwart gespoten
Werkend 13,3 cm zwart gespoten met afgeschaafde voorzijde
2,5x14x300 1058474 € 28,25
2,5x14x400 1058475 € 37,65
2,5x14x500 1058476 € 46,95

Geschaafd triple profiel vuren Zwart gedompeld
Werkend 13,5 cm zwart gedompeld
2,2x14x300 1052649 € 14,95
2,2x14x400 1052650 € 19,95
2,2x14x500 1058374 € 24,95

Geschaafd halfhouts rabat vuren Zwart gespoten
Werkend 18,1 cm zwart gedompeld
1,8x19,5x300 cm 1058829 € 14,75
1,8x19,5x400 cm 1058830 € 19,65
1,8x19,5x500 cm 1058831 € 24,50

Zweeds rabat vuren Zwart gedompeld
1 zijde geschaafd, 1 zijde fijnbezaagd werkend 17,5 cm zwart gedompeld
1,1-2,7x19,5x300 cm 1040370 € 15,85
1,1-2,7x19,5x400 cm 1040373 € 20,95
1,1-2,7x19,5x500 cm 1040376 € 27,75

Geschaafde palen, vuren Zwart gespoten
Geschaafde paal grenen geïmpregneerd en zwart gedompeld
8,8x8,8x270 cm w08095 € 24,50
Scan de QR code voor actuele informatie.
DOUGLAS EN VUREN, ZWART GEDOMPELD
Bij de zwart gedompelde artikelen is er sprake van een grondlaag en geen afwerklaag. De kleur is mogelijk niet totaal egaal. Kijk voor meer informatie over houtbehandeling op bladzijde 441. Eventueel andere afmetingen /types in de kleur zwart zijn op aanvraag leverbaar.

Geschaafd blokhutprofiel vuren Zwart gedompeld
Werkend 13,2 cm zwart gedompeld
2,8x14,5x400 cm 1058822 € 19,65
2,8x14,5x500 cm 1058824 € 24,50
Onder invloed van het weer en door vochtdoorslag kan hout gaan verkleuren. Om dit te voorkomen kunt u onze producten beitsen of schilderen. Zeer geschikt voor het duurzaam behandelen van nieuwe houtproducten voor buiten én voor het renoveren van bestaand houtwerk zijn onze buitenbeits en impregneervloeistoffen, te vinden op pagina 441.
Kenmerken van Grenen Midden Europees
√ Leverbaar in ronde en vierkante palen
√ Klassieke uitstraling en heeft een lichte, geelachtige kleur
√ Wordt vaak gebruikt als paal voor schuttingen

Halfronde regel
ø 7 cm twee zijden haaks gekort.
ø 7x250 cm W03005 € 7,75

Ronde palen
ø 4 cm cilindrisch gefreesd, één zijde gepunt, één zijde gekroond.
ø 4x150 cm W03055 € 2,75
ø 4x200 cm W03060 € 3,65
ø 6 cm cilindrisch gefreesd, één zijde gepunt, één zijde gekroond.
ø 6x50 cm W04009 € 1,85
ø 6x75 cm W04010 € 2,75
ø 6x100 cm W04011 € 3,29
ø 6x125 cm W04012 € 4,15
ø 6x150 cm W04013 € 4,95
ø 6x200 cm W04015 € 6,65
ø 6x250 cm W04016 € 8,29
Geschaafde vierkante palen
Grenen.
6,8x6,8x180 cm W07006 € 8,55
6,8x6,8x210 cm W07008 € 9,95
6,8x6,8x240 cm W07009 € 11,35
6,8x6,8x270 cm W07010 € 12,85
6,8x6,8x300 cm W07011 € 14,25
6,8x6,8x400 cm W07012 € 18,95

Kastanje palen
ø 10/12x180 cm W20015 € 24,95
ø 10/12x250 cm 1050635 € 35,00
ø 6/8x180 cm W20006 € 11,50
ø 6/8x250 cm W20007 € 15,50

ø 8 cm cilindrisch gefreesd, één zijde gepunt, één zijde gekroond.
ø 8x200 cm W04027 € 11,70
ø 8x250 cm W04028 € 14,65
ø 8x300 cm W04029 € 17,25
ø 10 cm cilindrisch gefreesd, haaks gekort, één zijde gekroond.
ø 10x300 cm W04614 € 26,95
ø 10x400 cm W04616 € 35,95
ø 10x500 cm W04617 € 44,95
Geschaafde vierkante palen Grenen
8,8x8,8x180 cm W07013 € 13,65
8,8x8,8x210 cm W07015 € 15,95
8,8x8,8x240 cm W07016 € 18,15
8,8x8,8x270 cm W07017 € 20,50
8,8x8,8x300 cm W07018 € 22,75
8,8x8,8x400 cm W07020 € 30,50


Geschaafde vierkante paal zwart
Grenen. Geïmpregneerd en zwart gedompeld.
8,8x8,8x270 cm W08095 € 24,50

Geschaafde planken grenen
1,5x14x180 cm W06001 € 3,65
1,5x14x300 cm W06010 € 6,05
1,5x14x360 cm W06011 € 7,25
1,5x14x400 cm W06012 € 8,05
1,5x14x500 cm W06015 € 9,95
1,7x14x179,5 cm W06101 € 3,85
1,7x14x300 cm W06127 € 6,49
1,7x14x360 cm W06128 € 7,75
1,7x14x400 cm W06129 € 8,65
1,7x14x500 cm W06130 € 10,75

Geschaafd rabat Midden-Europees grenen Werkend 13 cm.
1,8x14,5x300 cm W05101 € 8,49
1,8x14,5x360 cm W05102 € 10,25
1,8x14,5x400 cm W05103 € 11,50
Plank grenen, zwart Geschaafd. Plank wordt eerst geïmpregneerd en vervolgens tweemaal zwart gedompeld.
1,5x14x180 cm W07445 € 4,25

Geschaafde regels grenen
1,9x7x180 cm W06648 € 2,90
3,4x4,5x180 cm W06609 € 3,19
4,4x6,8x240 cm W06701 € 7,65
4,4x6,8x300 cm W06704 € 9,95
4,4x6,8x400 cm 1064307 € 12,75
4,4x6,8x500 cm 1064309 € 15,95
4,4x9,5x400 cm 1064303 € 17,75

Plank grenen (Ook te gebruiken als dekdeel) 1 zijde geschaafd, 1 zijde fijnbezaagd.
2,8x19,5x400 cm 1011337 € 22,50
terras & trends Vlonderschroeven Prijs per emmer Verpakt per Prijs
11043266 5,0x50 mm TX 150 stuks € 34,50
11043269 5,0x60 mm TX 125 stuks € 34,50





Kenmerken van Thermisch gemodificeerd vuren
√ Duurzaamheidsklasse 2
√ Na de behandeling heeft het hout een mooie warme bruine kleur
√ De noesten en vlamtekening die vuren zo kenmerken geven Vuré
Wie op zoek is naar een duurzame en natuurlijke gevelbekleding, hoeft niet verder te zoeken. Trendhout biedt thermisch gemodificeerd vuren met drie unieke profielen: Channelsiding, dubbel (double) en triple rhombus. Deze gevelbekleding combineert esthetiek en duurzaamheid op een perfecte manier. Door toepassing van een verhittingsproces krijgt het hout zijn duurzame eigenschappen en kenmerkende geur en donkere kleur. Onder invloed van zonlicht, weer en wind verweert het hout op natuurlijke wijze. Deze verwering tast de duurzaamheid van het hout niet aan, maar geeft het hout een zilvergrijze tint.
Prijs
20x140x4500mm (geschaafd)

20x140x4800mm (geschaafd)
20x140x5100mm (geschaafd)
20x140x5400mm (geschaafd)

20x140x4500mm (geschaafd)
20x140x4800mm (geschaafd)
20x140x5100mm (geschaafd)
20x140x5400mm (geschaafd)

& trends Gebintschroef

Prijs per stuk
20x140x4500mm (geschaafd)
20x140x4800mm (geschaafd)
20x140x5100mm (geschaafd)
20x140x5400mm (geschaafd)

Noir de extra robuuste uitstraling terras & trends Vlonderschroeven
& trends Spaanplaatschroef


Banddeel
Werkende breedte 13,5 cm
Groen geimpregneerd
1,8x14,5x224 cm 1015397 € 8,95


Dakbeschot
Werkend 9 cm.
Groen geïmpregneerd 1,6x10x300 cm W88204 € 5,95
Groen geïmpregneerd 1,6x10x420 cm W26525 € 8,35


Geschaafd rabat
Werkend 13 cm.
1,9x14,5x300 cm W05001 € 10,25
1,9x14,5x360 cm W05002 € 12,35
1,9x14,5x420 cm W05004 € 14,45
1,9x14,5x480
1,9x14,5x540
€ 16,45
€ 18,50


Blokhutprofielen
Werkend 13,2 cm.
Groen geïmpregneerd 2,8x14,5x300 cm W18700 € 14,95
Groen geïmpregneerd 2,8x14,5x420 cm W26515 € 20,95


Zweeds rabat
1 zijde geschaafd, 1 zijde fijnbezaagd, werkend 12,8 cm.
1-2,1x14,5x300 cm W05208 € 9,50
1-2,1x14,5x420 cm W05209 € 13,25
Werkend 18 cm.

Kenmerken van Thermovision Ayous
√ Thermisch gemodificeerd
√ Warme, egale kleur
√ Zowel horizontaal als verticaal toepasbaar

Thermisch modificeren is een behandeling waarbij het hout in een stoomoven door een gecontroleerd proces op hoge temperatuur wordt verhit. Vervolgens wordt het gedroogd tot het juiste vochtgehalte is bereikt. Hiermee wordt de levensduur aanzienlijk verlengd en krijgt het hout een mooie, egale kleur! Aan het proces worden geen chemicaliën toegevoegd, wat het zeer milieuvriendelijk maakt. Zowel horizontaal als verticaal toepasbaar.

Ayous geschaafd triple profiel
gemodificeerd.
2
2
2
• Milieuvriendelijk
• Zeer lange levensduur
• Vrij van chemicaliën

Ayous geschaafd Vellingdeel
• Gemakkelijk te monteren
• Licht in gewicht
• Zeer stabiel en vormvast
• Strakke uitstraling
• Geen noesten of kwasten
• Egale kleur (vergrijst mooi)

Ayous geschaafde plank

Rolborder hardhout
Latten
4x20x180 cm 1000037 € 15,75
4x30x180 cm 1000038 € 21,95

Hardhouten fijnbezaagde vierkante palen gepunt Duurzaamheidsklasse 1.
Azobe.
4x4x100 cm W14210 € 2,79
4x4x150 cm W14211 € 4,29
6x6x150 cm W14194 € 9,50
6x6x200 cm W14198 € 12,95
6x6x250 cm W14199 € 17,25
6x6x275 cm W14201 € 18,95
6x6x300 cm W14203 €

Hardhouten geschaafde paal 4-zijden glad diamant kop. Duurzaamheidsklasse 1.
Azobe.
12x12x300 cm W14450 € 129,00
14x14x300 cm 1038856 € 179,00

Hardhouten fijnbezaagde plank
Beschoeiïngsplank.
2x20x250 cm 1045718 € 25,65
2x20x300 cm W14975 € 30,95
2x20x400 cm W14976 € 40,95

Hardhouten geschaafde plank Met v-groeven.
1,5x14,5x180 cm W14009 € 18,50
1,5x14,5x395 cm 1050726 € 40,95 Zonder v-groef.
1,6x9,0x180 cm 1063704 € 12,15

Hardhouten geschaafde vierkante palen gepunt 4-zijden met V-groef. Duurzaamheidsklasse 1.
Azobe.
6,5x6,5x180 cm W14208 € 19,25
6,5x6,5x200 cm W14209 € 21,55 6,5x6,5x250 cm W14212 € 26,25
6,5x6,5x275 cm W14205 € 28,85
6,5x6,5x300 cm W14206 € 31,50
8,5x8,5x200 cm W14219 € 36,65 8,5x8,5x275 cm W14220 € 50,75 8,5x8,5x300 cm W14221 € 59,25 8,5x8,5x400 cm W14224 € 78,95 (zonder punt)

Hardhouten geschaafde damwand Met veer en groef. Werkende maat 18,5 cm. Duurzaamheidsklasse 1.
Azobe.
3x20x200 cm W14603 € 31,95
3x20x250 cm W14604 € 39,95
3x20x300 cm W14602 € 48,25
4,5x6,8x200 cm W14297 € 17,50

Hardhouten geschaafde regels 4-zijden glad. Duurzaamheidsklasse 1.
Azobe.
4,5x7x300 cm W14041 € 22,65

Hardhouten geschaafde vierkante palen gepunt Angelim Vermelho 4 zijden glad
Uiterlijk Donker roodbruin / vergrijst zonder behandeling buiten / nerf grof
Donker rood / vergrijst zonder behandeling buiten / nerf grof
Herkomst West-Afrika Brazilië
Duurzaamheidsklasse 1 1
Typering
Zware hardhoutsoort, grote sterkte, slijtvastheid, duurzaamheid. Neiging tot torderen (krom trekken).
Zware hardhoutsoort, grote sterkte, slijtvastheid, duurzaamheid. Uitgesproken (stank)geur
Bewerkbaarheid Met scherp gereedschap en machinaal Breed toepasbaar, goed te bewerken
Combinatie met IJzer: kan corroderen
Toepassingen
o.a. tuinafscheidingen, hekpalen, damwanden, vlonderplanken, balken, gordingen, beschoeiingen, steunconstructies. (tuin, weg en waterbouw)
Bij hardhoutsoort met duurzaamheidsklasse 1 kan enige kromming optreden. Hardhout kan “bloeden". Dit kan verkleuring geven op aangrenzend materiaal zoals beton of bestrating.
Water: kan afgeven Water en ijzer: grijsblauwe verkleuring
o.a. tuinafscheidingen, tuinpalen, dekdelen, overkappingen, pergola’s, poorten, trappen, terras, vlonderplanken, damwanden, beschoeiingen, zwaar constructiewerk (tuin, grond- weg en waterbouw) Niet geschikt voor zitbanken buiten!

Hardhouten geprofileerd dekdeel
1 zijde grof profiel, 1 zijde glad. Minimale duurzaamheidsklasse 2.
2,1x14,5x245 cm W14950 € 39,95
2,1x14,5x365 cm W14954 € 59,95
2,1x14,5x395 cm W14955 € 64,95
2,1x14,5x425 cm W14956 € 69,75

Hardhouten geprofileerd dekdeel
1 zijde grof profiel, 1 zijde glad. Minimale duurzaamheidsklasse 2.
2,5x14,5x245 cm W14960 € 47,85
2,5x14,5x305 cm W14962 € 59,50
2,5x14,5x365 cm W14964 € 71,50
2,5x14,5x395 cm W14965 € 77,25
2,5x14,5x455 cm W14967 € 88,95

Douglas geprofileerd dekdeel
1 zijde grof profiel, 1 zijde fijn profiel. Onbehandeld.
2,4x13,8x300 cm W31355 € 15,85
2,4x13,8x400 cm 1009208 € 20,95
2,4x13,8x500 cm W31358 € 26,50

geschaafde zijde fijnbezaagde zijde
Grenen geschaafde/fijnbezaagde plank
1 zijde geschaafd, 1 zijde fijnbezaagd.
2,8x19,5x400 cm 1011337 € 22,50

Grenen geprofileerd dekdeel
1 zijde grof profiel, 1 zijde glad.

Hardhouten dekdelen
1 zijde met v-groeven, 1 zijde glad. Minimale duurzaamheidsklasse 2.
2,8x19x245 cm W14970 € 74,25
2,8x19x305 cm W14971 € 92,50
2,8x19x365 cm W14972 € 109,00
2,8x19x545 cm W14973 € 165,00

Voor de perfecte montage zie ons gehele assortiment terras & trends schroeven op pagina 448.

terras & trends Vlonderschroeven
Prijs per emmer Verpakt per Prijs
- AANGEPAST IN 2020 T O V 2019

Schuifdeur systeem recht
2000 mm
(Excl. slot- en sluitplaat)
92.0070 € 87.00

Beslagset schuifdeur systeem recht met slot
92.0072 enkel € 210.00
92.0073 dubbel € 296.00

Schuifdeur enkel
(Excl. hang- en sluitwerk)
Deur: 980x1950 mm (bxh)
54.0114 links onbehandeld € 504.00
54.0115 rechts onbehandeld € 504.00


Schuifdeur dubbel
(Excl. hang- en sluitwerk)
Deur: 1960x1950 mm (bxh)
54.0116 onbehandeld € 843,00
Scan de QR code voor actuele informatie.
Verander de uitstraling van een steel look raam of deur door één of meerdere roedes toe te passen!
























Wordt geleverd als bouwpakket. Incl. gelaagd dubbel glas, kit, glasband, bevestigingsmaterialen en een duidelijke opbouwhandleiding. Het aantal vermeldde roedes worden los bijgeleverd en kunnen op iedere gewenste hoogte gemonteerd worden.
Wordt geleverd als bouwpakket. Incl. gehard dubbel glas in de deuren, geslaagd dubbel glas in de zijlichten, kit, glasband, bevestigingsmaterialen en een duidelijke opbouwhandleiding. Het aantal vermeldde roedes worden los bijgeleverd en kunnen op iedere gewenste hoogte gemonteerd worden. Afmeting deur: 750x2060mm (bxh). Afmeting kozijn: 1636x2136mm (bxh). Voor bijbehorende RVS dorpels.
Maten vermeldt in breedte x hoogte. Inclusief rubberen tochtstrips, dubbel glas en hang- en sluitwerk. Het aantal vermeldde roedes worden los bijgeleverd en kunnen op iedere gewenste hoogte gemonteerd worden. Voor bijbehorende stelkozijnset.
Inclusief rubberen tochtstrips, dubbel glas en hang- en sluitwerk. Het aantal vermeldde roedes worden los bijgeleverd en kunnen op iedere gewenste hoogte gemonteerd worden. Voor bijbehorende RVS dorpels en stelkozijnset.
Het aantal vermeldde roedes worden los bijgeleverd en kunnen op iedere gewenste hoogte gemonteerd worden.
*Bestel voor een enkele schuifdeur één systeem, en voor een dubbele schuifdeur twee systemen. Lengte rail: 2000mm.





Maatwerk meet- en keuze instructies:


Rechtsschuivend
Buitenzijde
Buitenzijde
Vanuit het midden schuivend


1. Meet de hoogte waar de glazen schuifwand incl. rails tussen of op gemonteerd dient te worden. De minimale hoogte is 1000mm en de maximale hoogte is 2600mm.
2. Meet de lengte van de dagmaat waar de glazen schuifwand tussen komt.
3. Bepaal het aantal gewenste panelen; glazen panelen zijn tussen de 600mm en de 1100mm verkrijgbaar (maatvoering heeft geen invloed op de prijs per paneel).
4. Bepaal de openingsrichting (links, rechts of vanuit het midden, vanuit de buitenzijde gezien) en de gewenste kleur; RAL9010 (Zuiver wit), RAL9016 (Verkeerswit), RAL7016 (Antraciet) of RAL9005 (Zwart). Kies eventueel voor een RVS cilinderslot en/of tochtstrippen.
Glazen schuifwanden - maatwerk
Type
informatie
Per paneel - op maat gemaakt Afmeting paneel: 600 tot 1100mm. Incl. rails, handgreep, en 1-sporig aansluitprofiel.
Buitenzijde

€ 594,00
Inclusief 10mm gehard veiligheidsglas, rails, RVS handgreep, 1-sporig aansluitprofiel en duidelijke opbouwhandleiding. Overlap panelen ca. 26mm. Met kogelgelagerde en verstelbare wielen per paneel. Op kleur: bovengeleiderail, wand-aansluitprofiel en eventuele tochtstrips. Zie voor bestel- en meetinstructies de informatie bovenaan deze pagina.
informatie
Type
Tochtstrip in kleur Per paneel.
RVS cilinderslot T.b.v. glazen schuifwand links/rechts openend.
RVS cilinderslot T.b.v. glazen schuifwand vanuit het midden naar links en rechts openend.
Glazen schuifwanden - modules
€ 33,00
€ 164,00
€ 218,00
Glazen schuifwanden & Lichtstraten

Type zadeldak

Type lessenaar






Type Lengte Breedte Dakuitsparing
Zadeldak 1500 1300 1370x1170
Zadeldak 2000 1300 1870x1170
Zadeldak 2500 1300 2370x1170
Lessenaar
Lessenaar
Wordt geleverd als bouwpakket. Incl. gelaagd isolatieglas 24mm, aluminium afdekprofielen compleet met rubbers, EPDM hoeken 90 graden, bevestigingsmateriaal en een duidelijke opbouwhandleiding.
Kenmerken van Lichtstraten
√ Natuurlijk lichtinval van de zon
√ Sfeervolle toevoeging in het plafond van je overkapping
√ Leverbaar in verschillende lengtes
Kenmerken van Douglas deuren en ramen
√ Meerdere opties en maten beschikbaar
√ Stijlvolle toevoeging van je overkapping
√ Deuren leverbaar met en zonder raamkozijn


Stapeldorpeldeur enkel met kozijn, borstwering 812 mm
(Incl. losse voorzetroede, enkel glas en hang- en sluitwerk)
Deur: 830x2060mm + kozijn: 964x2136 mm
54.0063 linksdraaiend onbehandeld € 751,00
54.0064 rechtsdraaiend onbehandeld € 751,00
54.0091 linksdraaiend wit gegrond 2x rondom € 943,00
54.0092 rechtsdraaiend wit gegrond 2x rondom € 943,00

Paneeldeur dubbel met kozijn, borstwering 687 mm
(Incl. losse voorzetroede, enkel glas en hang- en sluitwerk)
Deur: 780 x1930 mm + kozijn: 1696x2006 mm
54.0071 onbehandeld € 1.063,00
54.0096 wit gegrond 2x rondom € 1.316,00

Paneeldeur enkel met kozijn, borstwering 687 mm
(Incl. losse voorzetroede, enkel glas en hang- en sluitwerk)
Deur: 780x1930mm + kozijn: 910x2006 mm
54.0066 linksdraaiend onbehandeld € 670,00
54.0067 rechtsdraaiend onbehandeld € 670,00
54.0093 linksdraaiend wit gegrond 2x rondom € 843,00
54.0094 rechtsdraaiend wit gegrond 2x rondom € 843,00

Vleugelraam enkel met kozijn
(Incl. losse voorzetroede, enkel glas en hang- en sluitwerk)
Raam: 674x1296mm + kozijn: 808x1430 mm
54.0073 linksdraaiend onbehandeld € 611,00
54.0074 rechtsdraaiend onbehandeld € 611,00
54.0097 linksdraaiend wit gegrond 2x rondom € 772,00
54.0098 rechtsdraaiend wit gegrond 2x rondom € 772,00

Stapeldorpeldeur dubbel met kozijn, borstwering 422 mm
(Incl. losse voorzetroede, enkel glas en hang- en sluitwerk)
Deur: 750x2060mm + kozijn: 1636x2136 mm
5 4.0069 onbehandeld € 1.227,00 54.0095 wit gegrond 2x rondom € 1.468,00

Vleugelraam dubbel met kozijn met middenstijl
(Incl. losse voorzetroede, enkel glas en hang- en sluitwerk)
Raam: 674x1296 mm + kozijn: 1515x1430 mm
5 4.0078 onbehandeld
979,00 54.0100 wit gegrond 2x rondom € 1.219,00

Vleugelraam enkel met kozijn
(Incl. losse voorzetroede, enkel glas en hang- en sluitwerk)
Raam: 754x905 mm + kozijn: 888x1039 mm
54.0082 linksdraaiend onbehandeld € 567,00
54.0083 rechtsdraaiend onbehandeld € 567,00
54.0102 linksdraaiend wit gegrond 2x rondom € 727,00
54.0103 rechtsdraaiend wit gegrond 2x rondom € 727,00

Vast raamkozijn
(Incl. losse voorzetroede, enkel glas en hang- en sluitwerk)
Kozijn: 726x87 7 mm
54.0085 onbehandeld € 331,00
54.0104 wit gegrond 2x rondom € 444,00

Uitzetraam met kozijn
(Incl. losse voorzetroede, enkel glas en hang- en sluitwerk)
Raam: 905x754 mm + kozijn: 1039x88 8 mm
54.0110 onbehandeld € 554,00
54.0111 wit gegrond 2x rondom € 714,00

Uitzetraam met kozijn
(Incl. losse voorzetroede, e nkel glas en hang- en sluitwerk)
Raam: 951x1296 mm + kozijn: 1085x1430 mm
54.0080 onbehandeld
€ 602,00
54.0101 wit gegrond 2x rondom € 778,00

Vast raamkozijn
(Incl. losse voorzetroede, enkel glas en hang- en sluitwerk)
Kozijn: 726x1268 mm
54.0087 onbehandeld
€ 363,00
54.0105 wit gegrond 2x rondom € 476,00

Uitzetraam met kozijn
(Incl. losse voorzetroede, enkel glas en hang- en sluitwerk)
Raam: 1296x674 mm + kozijn: 14 30x808 mm
54.0112 onbehandeld € 621,00
54.0113 wit gegrond 2x rondom € 781,00

Uitzetraam met kozijn
(Incl. losse voorzetroede, enkel glas en hang- en sluitwerk)
Raam: 674x 1296mm + kozijn: 808x1430 mm
54.0076 onbehandeld € 570,00
54.0099 wit gegrond 2x rondom € 730,00

Vast panoramaraam met kozijn
(Incl. losse voorzetroede, enkel glas en hang- en sluitwerk)
Kozijn: 1072x 342 mm
54.0089 onbehandeld € 312,00
54.0106 wit gegrond 2x rondom € 424,00
Scan de QR code voor actuele informatie.


Opgeklampte deur enkel met bovenraam
(Incl. losse voorzetroede, enkel glas, excl. hang- en sluitwerk)
Deur: 880x1950 mm + kozijn: 1015x2020 mm
54.0057 linksdraaiend onbehandeld € 777,00
54.0061 rechtsdraaiend onbehandeld € 777,00

Opgeklampte deur enkel
(Excl. hang- en sluitwerk)
Deur: 880x1950 mm + kozijn: 1015x2020 mm
54.0015 onbehandeld € 648,00 links- en rechtsdraaiend toepasbaar

Opgeklampte deur XL dubbel met bovenraam
(Incl. losse voorzetroede, enkel glas, excl. hang- en sluitwerk)
Deur: 2400x2100 mm + kozijn: 2540x2170 mm
54.0060 onbehandeld € 1.584,00
Opgeklampte deur dubbel met bovenraam
(Incl. losse voorzetroede, enkel glas, excl. hang- en sluitwerk)
Deur: 1760x1950 mm + kozijn: 1900x2020 mm
54.0058 onbehandeld € 1.215,00

Opgeklampte deur dubbel
(Excl. hang- en sluitwerk)
Deur: 1760x1950 mm + kozijn: 1900x2020 mm 54.0016 onbehandeld € 1.012,00

Opgeklampte deur XL enkel met bovenraam
(Incl. losse voorzetroede, enkel glas, excl. hang- en sluitwerk)
Deur: 1200x2100 mm + kozijn: 1335x2170 mm
54.0059 linksdraaiend onbehandeld € 1.049,00
54.0062 rechtsdraaiend onbehandeld € 1.049,00

Opgeklampte deur XL enkel
(Excl. hang- en sluitwerk)
Deur: 1200x2100 mm + kozijn: 1335x2170 mm
54.0029 onbehandeld € 843,00 links- en rechtsdraaiend toepasbaar

Opgeklampte deur XL dubbel
(Excl. hang- en sluitwerk)
Deur: 2400x2100 mm + kozijn: 2540x2170 mm
54.0030 onbehandeld € 1.419,00









Wordt geleverd met driepuntsluiting, anti-diefstal beslag en verborgen scharnieren. Standaard in wit of zwart gespoten. Inclusief rubberen tochtstrips. Gemaakt van Okoumé met aluminium inlage voor een hoge stabiliteit en maatvastheid. Scan de QR code voor actuele informatie.





Hardhouten deuren
1017090
Hardhouten enkele dichte deur Prestige, linksdraaiend,109 x 221 cm, grijs gegrond.
€ 1.019,00 1017091
Hardhouten enkele dichte deur Prestige, rechtsdraaiend, 109 x 221 cm, grijs gegrond.
€ 1.019,00 1017092
Hardhouten enkele 1-ruits deur Prestige met dubbelglas, linksdraaiend, 109 x 221 cm, grijs gegrond.
€ 1.499,00 1017093
1017096
1017095
Hardhouten enkele 1-ruits deur Prestige met dubbelglas, rechtsdraaiend, 109 x 221 cm, grijs gegrond.
Hardhouten dubbele dichte deur Prestige, 202 x 221 cm, grijs gegrond.
Hardhouten dubbele 1-ruits deur Prestige met dubbelglas, 202 x 221 cm, grijs gegrond.
€ 1.499,00
€ 1.625,00
€ 2.595,00
Trendhout heeft een stelkozijn ontwikkeld voor haar wandmodules en adviseert deze bij al haar ramen en deuren.Dankzij deze stelkozijnen wordt het doordringen van de slagregen en lichtinval tussen het kozijn en de wand tot een minimum beperkt. De stelkozijnen zorgen dan ook voor een strakke aansluiting tussen het kozijn en de wand. De onderdorpel bij het stelkozijn voor de ramen is afgeschuind, zodat het water afgevoerd wordt.

Stelkozijnset ramen
54.0004 Stelkozijnset ramen onbehandeld € 103,00
54.0005
54.0006
Stelkozijnset ramen wit gegrond € 140,00
Stelkozijnset ramen zwart gegrond 2x € 140,00

Staartgrendel verzinkt 500x65 mm
92.0004 € 10,00


RVS dag- en nachtslot compleet
92.0002 rvs € 39,00
92.0009 zwart € 51,00

Beslagset zwart gecoat t.b.v. opgeklampte deuren 92.0050



Stelkozijnset deuren
54.0001 Stelkozijnset deuren onbehandeld € 109,00
54.0002 Stelkozijnset deuren wit gegrond € 149,00
54.0003 Stelkozijnset deuren zwart gegrond 2x € 149,00

Rolschuif met bocht 120x55x2 mm, verzinkt 92.0005 € 5,00


Verstelbare duimheng

Beslagset blank verzinkt t.b.v. opgeklampte deuren



RVS luxe deurbeslagset

Hoogwaardige klinkset, volledig RVS beslag. Met SKG keurmerk. Inclusief slotkast, cilinder en slot. Incl. duimen. W25850 € 117,00

Duim
Verzinkt. T.b.v. deuren en poorten. Rond 16, per 2 stuks. 1015342 € 5,25


RVS luxe deurbeslagset zwart gecoat
Hoogwaardige klinkset, volledig RVS beslag. Met SKG keurmerk.
Inclusief slotkast, cilinder en slot. Incl. duimen. W25855 € 120,00

Duim zwart
Zwart gecoat. T.b.v. deuren en poorten. Rond 16, per 2 stuks W19076 € 10,25

Klinkstel
Aluminium klinkstel met cilinderslot t.b.v. poort op stalen frame. Incl. duimen W19005 € 38,50

Verstelbare heng
Verzinkt. Lengte heng 70 cm. T.b.v. deuren en poorten. Per stuk 1021815 € 31,95

Deurbeslag
Voor alle plankendeuren met houten frame. Incl. duimen. W19002 € 77,95

Poortbeslag
T.b.v. hardhouten plankendeur. Incl. duimen. W19013 € 75,00

Verstelbare heng
Zwart gecoat. Lengte heng 70 cm. T.b.v. deuren en poorten. Per stuk 1021816 € 25,95

Palensteunen verzinkt
7x7x75 cm W19011 € 7,25
9x9x75 cm 1001209 € 9,95
12x12x75 cm 1001210 € 16,50

Regenwaterafvoerbeugel
13,7x11x13,7 cm W19018 € 4,25

Vloerpaalhouder
Verzinkt
7x 7 cm W19026 € 5,95
9x9 cm 1001102 € 7,50 12x12 cm 1001103 € 8,79


DHZ shutter framewerk
Shutter framewerk met draaibare lamellen.
(excl. planken en schroeven). 2 stuks rvs rails van 165 cm lang, t.b.v. 14 planken.
W56000 € 169,00 1048721 € 179,00


Stalen poortframe
Vuurverzinkt verstelbaar
90x155 cm W07630 € 58,95
100x155 cm 926731 € 59,95
120x155 cm 926782 € 65,00
150x155 cm W07640 € 75,00




L-beslag
Per 4 stuks verpakt.
Geel verzinkt W19007 € 2,25
RVS W19019 € 5,50
Zwart gepoedercoat W19036 € 3,95

Steunwiel t.b.v. houten poort
Geveerd. Hoogte 38 cm W19074 € 79,95

Stalen poortframe zwart
Zwart gecoat. 100x155 cm
Verstelbaar stalen poortframe
incl. kokerprofiel, slot en beslagset zwart gepoedercoat
98,5x190 cm 1060383 € 479,00


Montagebeslag
S et à 4 stuks voor betonijzermatten en wilgentenenmatten W19010 € 0,90

U-profiel
T.b.v. betonplaatbevestiging rechtstreeks aan een muur of het creëren van een T-opstelling. Per stuk W19025 € 5,35

Stalen poortframe





Dakpan profielplaten-set (per m2)
De dakpanplaten worden geleverd als complete sets:
Dakpanprofiel plaat genoeg voor 1m2 dakoppervlak, dampdoorlatende folie, tengel, panlat, platte nok en bevestigingsmaterialen.
52.0252 Zwart € 52,00
52.0254 Antraciet € 52,00
52.0253 Terracotta € 52,00



Dakpannenset betonpan (per m2)
De dakpannensets worden geleverd als complete sets:
Betonpannen met nokvorsten genoeg voor 1m2 dakoppervlak, dampdoorlatende folie, tengel, panlat, ruitersteun, hoekkeperband en lood voor over de nok.
52.3110 Zwart



Dakpannenset keramisch (per m2)
De dakpannensets worden geleverd als complete sets:
Keramische dakpannen met nokvorsten genoeg voor 1m2 dakoppervlak, dampdoorlatende folie, tengel, panlat, ruitersteunen, hoekkeperband en lood voor over de nok.
52.3101 Mat zwart verglaasd € 167,00
52.3104 Blauw gesmoord € 153,00
52.3107 Natuurrood € 137,00

EPDM dakbedekking
EPDM membraam
Dit pakket is exclusief lijm en kit.
52.0708 4,20x3,80
80,00
52.3113 Antraciet € 80,00
52.3116 Hollands rood € 80,00





























CarpGarant
Hillhout
Trendhout
Lugarde Aluxe 474-475 476-477 478-479
Voor meer inspiratie en het complete assortiment, vraag naar de terras & trends buitenverblijven & overkappingen catalogus.




CarpGarant Buitenverblijven is het eerste merk op het gebied van buitenverblijven dat niet alleen visueel aantrekkelijk is, maar ook het montageproces op een prachtige wijze heeft verzorgd. Een snelle en eenvoudige montage met direct zichtbaar resultaat is waar het merk voor staat. CarpGarant Buitenverblijven is uniek in zijn doordachte aanpak van het montageproces en speelt in op de veranderingen in de markt.
In een tijd waarin ervaren timmermannen steeds zeldzamer worden, hun werkdruk toeneemt en de kosten stijgen, waarbij ergonomisch werken en tijdsbesparing belangrijker zijn dan ooit, en waar mensen willen genieten van het buitenleven, biedt CarpGarant Buitenverblijven de oplossing.
Met een CarpGarant Buitenverblijf combineert men een prachtige uitstraling tegen een aantrekkelijke prijs. Met diverse maatvoeringen is er altijd een model dat bij de behoeften past. Bovendien kunnen alle basispakketten worden uitgebreid met wanden, deuren en ramen naar keuze.
De CarpGarant Buitenverblijven worden geleverd als bouwpakket inclusief digitale bouwtekening. Alle constructiematerialen en wanden dienen zelf op maat

assortiment, vraag naar de terras & trends buitenverblijven & overkappingen catalogus.


Ga zelf aan de slag met de Hillhout configurator en bouw jouw droomoverkapping


Ochtenden en avonden, dagen en seizoenen. Tegenwoordig geniet je meer én langer van je tuin. Een plek waar herinneringen ontstaan, een plek van mooie momenten. Hillhout wil jou van deze momenten laten genieten. Jouw droomtuin bereikbaar maken. Dus we luisteren, we sparren, we ontdekken en we maken. We creëren de nieuwste trends en doen er alles aan om onze producten nét wat smaakvoller en duurzamer te maken. Elke dag opnieuw, al meer dan vijftig jaar…


de terras & trends buitenverblijven & overkappingen catalogus.

Wil je het hele jaar door genieten van je tuin met een overkapping die precies aan jouw wensen voldoet? Met de 3D-configurator app van TrendHout bouw je in een handomdraai je eigen droomoverkapping.
Kies uit de vele designs, bepaal de afmetingen en voeg accessoires toe van een simpele overkapping tot een complete buitenkamer. Nadat je de overkapping hebt samengesteld, kun je deze als 3D-tekening bekijken.

1. Categorie
Er bestaan verschillende soorten overkappingen en buitenverblijven. Maak hier jouw keuze tussen aanbouwveranda’s, buitenverblijven met plat dak, buitenverblijven met zadeldak of kapschuren.
2. Model


Binnen de categorieën zijn er nog verschillende modellen. Kies een model dat perfect past bij jouw tuin. Denk hierbij bijvoorbeeld aan het type dak.


3. Afmeting
Kies de diepte en breedte van jouw droomoverkapping.

Selecteer de gewenste kleuren, wanden, deuren, raammodules, louvres, glazen schuifwanden en fundering.
4. Ontwerp uw verblijf 5. Offerte

Bekijk de offerte. Hier zie je de prijzen en kun je ervoor kiezen de overkapping te laten plaatsen.


Voor meer inspiratie en een het complete, vraag naar de terras & trends buitenverblijven & overkappingen catalogus.

Start direct met het ontwerpen van uw droomoverkapping!

Of ga naar terrasentrends.nl/trendhout

Hoe meer jaarringen, des te beter de kwaliteit van het hout
Lugarde hout is sterk en van hoge kwaliteit. Juist de kwaliteit van het hout is een van de redenen waarom de producten van Lugarde zo’n lange levensduur hebben.
Wij gebruiken slechts de goede delen van de stam voor de verwerking tot planken. Elk van onze planken en elke balk is kernvrij.
Tevens wordt het hout speciaal teruggedroogd in droogkamers. Hierdoor wordt de werking (krimpen en uitzetten) van het hout gereduceerd.
Alle voordelen op een rijtje:
√ Zeer goede kwaliteit hout uit de koudste gebieden, waardoor het hout stabiel, sterk en duurzaam is.
√ Planken met grote en/of uitvallende noesten worden uit het proces verwijderd.
√ Alle planken zijn kernvrij.
√ Al het hout wordt in speciale droogkamers teruggedroogd om werking van het hout te reduceren.
√ Raam-/deurhout en palen worden gelamineerd en gevingerlast om kromtrekken te voorkomen.
√ Tevens is het raam- en deurhout noestvrij.
Aluxe biedt een uitgebreid aanbod aan aluminium toepassingen: van een overkapping met glazen schuifdak, tot aan een overkapping met lamellen. Wij adviseren je graag over alle mogelijkheden en kunnen jouw wens realiseren!
Vraag om onze uitgebreide catalogus of een offerte op maat.
10 redenen waarom je zou kiezen voor Aluxe
1. Aluxe veranda’s bestel je geheel op maat en zijn aan te passen aan de stijl van jouw woning.
2. Grote verscheidenheid aan verschillende typen horizontale en schuine daken.
3. Hoogwaardige montagematerialen en kleurvaste coating.
4. Grote keuze in dakbeplating zoals onder meer gelaagd glas of polycarbonaat.
5. Ledverlichting in de liggers is mogelijk.
6. Eigen lijn van aluminium kozijnen in dezelfde kleur als uw veranda.
7. Duidelijke handleiding voor zelfmontage of montage door de vakman.
8. Duurzaam, prijsgunstig en milieuvriendelijk.
9. Zeer onderhoudsvriendelijk en gemakkelijk te reinigen.
10. 10 jaar garantie.




Algemene informatie terras & trends
Leveringen
Levertijden worden in onderling overleg afgesproken. Materialen dienen, daar waar mogelijk, minimaal 1 dag voor aanvang van het werk bezorgd te worden, daar dit anders wachttijden tot gevolg kan hebben. Leveringen worden gelost op een door de opdrachtgever gewenste losplaats. De chauffeur zal ter plekke beoordelen of dit mogelijk is, anders wordt de dichtstbijzijnde mogelijkheid genomen.
Materialen
Door toepassing van natuurlijke grond- en kleurstoffen in zowel betonnen, gebakken als natuurstenen bestrating kunnen in onderling geleverde partijen verschillen in kleur en structuur voorkomen. Producten kunnen afwijken van eventueel eerder geleverde monsters. Men wordt geacht materialen vóór verwerking te controleren op gebreken in welke vorm dan ook. Reeds verwerkte materialen worden dan ook als goedgekeurd beschouwd.
Verwerking
Allereerst begint men met een Cunet, waarbij een stabiele en egale ondergrond een must is. Voor grotere belastingen zoals een oprit is het raadzaam een stevige laag gebroken puin of kalkvrije brekerzand te gebruiken, om zodoende spoorvorming te voorkomen. Hier bovenop is het aan te bevelen om alle verharding te verwerken op een drainerende toplaag; dit zorgt ervoor dat zowel vocht, vuil als kalk vanuit de onderbaan niet naar boven kan, Drainerende grondstoffen kunnen zijn: metselzand, drainagezand, split, kalkvrije brekerzand en drainagemortel. Zorg tevens dat de bestrating op afschot verwerkt is; waterpas = waterplas. Men dient de materialen te verwerken volgens de van toepassing zijnde verwerkingsvoorschriften. Meerdere pakken moet men bij verwerking onderling mengen.
Daar materialen kunnen uitzetten en inkrimpen is het raadzaam deze te verwerken met een smalle voeg. Vóór het aftrillen (met de juiste trilplaat, voorzien van rubberen mat) dienen de voegen ingeveegd en de bestrating schoongeveegd te worden. Eventueel de bestrating naderhand afsproeien.
Let op: tegels groter dan 40x40x6 cm niet aftrillen.
Wanneer men een onderhoudsarme bestrating wil, wordt er meestal een voegmortel gebruikt. Men dient een stabilisé te maken omdat de bestrating hierna niet mag bewegen. Hierbij is van de vier traditionele manieren het mengen in de betonmolen de beste methode. Ideaal en aan te bevelen voor dunne natuurstenen- en keramische tegels is het stabiliseren met een drainagemortel. Bij alle methoden dienen de tegels op deze stabilisé verlijmd te worden om zodoende een goede verbinding te krijgen met de onderbaan.
Maattolerantie
Maattolerantie in lengte, breedte en dikte kan voorkomen in alle tegels en stenen.
Witte uitslag
Beton wordt gemaakt van de natuurlijke producten zand, grind, cement en water. Door de samenvoeging van cement en water wordt er calciumhydroxide oftewel zogenoemde ‘vrije kalk’ gevormd. De kalkafzetting gaat vervolgens een reactie aan met kooldioxide (CO2) in de lucht, waardoor calciumcarbonaat ontstaat.
Feitelijk kan witte uitslag in beton al direct bij de productie ontstaan. Om die zogenoemde ‘primaire uitslag’ tot een minimum te beperken of zelfs uit te sluiten, worden de productieprocessen binnen terras & trends vanzelfsprekend voortdurend bewaakt en verder ontwikkeld. Kalk is de enige stof in beton die niet gebonden is door de andere grondstoffen. Eenmaal buiten opgeslagen of in gebruik genomen, kan er dus een vervolgreactie tussen de naar buiten tredende vrije kalk en CO2 ontstaan, de zogenoemde ‘secundaire uitslag’. Met als mogelijk gevolg: witte uitslag op het betonoppervlak. Geduld is een schone zaak’
Het ontstane calciumcarbonaat is, zonder het product aan te tasten, praktisch niet van het betonoppervlak te verwijderen. Echter, onder invloed van koolstofdioxide in de lucht, verandert het calciumcarbonaat in een stof die wel oplosbaar is. Zure verontreiniging in de lucht versnelt dit proces, waardoor witte uitslag op het betonoppervlak dus sneller verdwijnt op plaatsen in de buurt van veel industrie dan in gebieden met relatief schone lucht. Witte uitslag verdwijnt op den duur dus vanzelf, waarbij geduld letterlijk en figuurlijk een schone zaak is!
Ontstane aantastingen van het oppervlak als gevolg van mechanische reiniging of reiniging bijvoorbeeld door inzet van zoutzuur, kunnen uiteraard niet bij terras & trends gereclameerd worden. Ter geruststelling: witte kalkuitslag heeft géén negatieve invloed op de sterkte of de duurzaamheid van een product en verdwijnt, zoals gesteld, op den duur vanzelf. Het is zeer moeilijk aan te geven hoe lang het duurt voordat de witte uitslag verdwenen is. Het is o.a. afhankelijk van gebruiksintensiteit en weersomstandigheden. Witte uitslag is geen reden tot afkeur van een door de terras & trends geleverd product.
Onderhoud
Alle aangelegde verhardingen dienen geregeld onderhouden c.q. schoongemaakt te worden, dit om verkleuring en indringen van vuil te voorkomen. Bij vorstperiode gelieve geen dooizouten en bijtende zuurhoudende middelen te gebruiken, daar dit het materiaal kan beschadigen.
Statiegeldpallets
Om schadevrij te kunnen leveren worden materialen vaak op statiegeldpallets geleverd; deze worden vooraf en achteraf gecontroleerd op gebreken.
Verkoopinformatie terras & trends
Met het verschijnen van de catalogus en prijslijst komen alle voorgaande prijslijsten te vervallen. De in deze prijslijst en catalogus genoemde prijzen zijn geldig tot en met 28 februari 2026, tussentijdse prijswijzigingen zijn uitdrukkelijk voorbehouden.
Particuliere bestellingen dienen altijd vóór levering betaald te worden. Voor onze zakelijke klanten geldt een betaaltermijn van 21 dagen na facturatie.
Alle prijzen zijn inclusief 21% BTW, maar exclusief 2% kredietbeperking.
Deze wordt te allen tijde apart op de factuur vermeld, en kan alleen in mindering worden gebracht indien binnen 21 dagen na factuurdatum aan de betalingsverplichting wordt voldaan.
Onvoorziene en/of externe omstandigheden, eventuele overheids-heffingen, dan wel overmacht kan aanleiding zijn tot noodzakelijke prijsverhogingen.
U kunt op verschillende manieren bij ons bestellen. Om de kans op fouten te beperken genieten bestellingen per email de voorkeur. Wij kunnen géén aansprakelijkheid aanvaarden voor fouten door telefonische opgave.
Veel van de in deze catalogus opgenomen producten zijn afgepast te bestellen. Sommige producten zijn uitsluitend per volle verpakking af te nemen. Voor bestratingproducten geldt dat deze veelal per laag worden afgerond.
Materialen die niet in deze catalogus zijn opgenomen zijn vaak wel voor u te bestellen. Hiervoor geldt dat afname uitsluitend per volle verpakking mogelijk is en dat retournering niet mogelijk is!
Materialen die wij speciaal voor u bestellen kunnen wij niet altijd binnen 3-4 werkdagen leveren. Hiervoor kunnen er extra vrachtkosten in rekening gebracht worden vanwege een aparte aflevering. In veel gevallen kunnen deze artikelen niet retour genomen worden!
De in de catalogus genoemde maten en gewichten zijn bij benadering. Met name bij natuursteen en gebakken materialen zijn kleine afwijkingen mogelijk.
Wijzigingen in geplaatste bestellingen kunnen tot uiterlijk 48 uur voor levering worden geaccepteerd, mits het geen speciaal voor u bestelde artikelen betreft. Mocht dit toch noodzakelijk zijn, dan zien wij ons genoodzaakt u transportkosten te berekenen.
Om materiaal goed te verpakken of te transporteren kan het nodig zijn dat wij op statiegeldpallets leveren. Ook materiaal dat normaliter niet op statiegeldpallets staat kan om deze reden op statiegeldpallets geleverd worden! Statiegeldpallets worden berekend per stuk. Deze pallets kunnen, mits onbeschadigd, binnen 3 maanden na leverdatum retour gebracht worden. Desgewenst kunnen wij de pallets binnen twee weken na uw melding bij u retour halen, mits deze op een voor de vrachtwagen bereikbare plaats recht opgestapeld staan. Hiervoor brengen wij € 115,- in rekening. Wij voeren een aparte palletadministratie.
Uitsluitend de pallets die we u berekend hebben kunnen u worden gecrediteerd. Na 3 maanden vervalt het recht op terugbetaling van het statiegeld. Bestellingen worden op (één van) de afgesproken dag(en) afgeleverd. De bezorgkosten bedragen € 115,-. Bij aflevering op de Waddeneilanden worden aparte tarieven berekend. Daar de chauffeur meerdere losadressen op één dag heeft en er onderweg van alles kan gebeuren, is het voor ons onmogelijk om een exacte bezorgtijd af te spreken.
Bestellingen op woonerven, campings en andere, voor een vrachtauto, onbereikbare plaatsen worden gelost op de dichtstbijzijnde, voor de vrachtauto, bereikbare plaats, uitsluitend via een verharde weg. Eén en ander ter beoordeling van de chauffeur. Géén enkele vertraging kan aanleiding geven tot schadevergoeding.
Materialen dienen zo snel mogelijk na ontvangst gecontroleerd te worden. Het verdient daarom aanbeveling bij de aflevering aanwezig te zijn. Bovendien kunt u met de chauffeur in overleg over de losplaats. Klachten over zichtbare gebreken en aantallen moeten in ieder geval binnen 24 uur na levering worden gemeld. Eenmaal verwerkte materialen worden als geaccepteerd beschouwd en kunnen géén reden meer zijn tot reclamatie.
Bewaar altijd de aankoopnota’s, vrachtbrieven en labels van pakketten i.v.m. productiedata en garantie. Op alle producten wordt garantie verstrekt ingaande op de dag van bezorging/afhaling, mits de materialen op de juiste wijze zijn verwerkt.
‘Witte uitbloei’ is een algemeen bekend verschijnsel bij betonproducten en kan derhalve nooit tot reclamatie leiden.
De waarborg van de fabrikant of handelaar kan nooit verder gaan dan vervanging van gebrekkig erkende waren, bij uitsluiting van elke andere tussenkomst. Voor herstratingskosten wordt dan ook géén vergoeding gegeven!
Teveel bestelde materialen kunnen in overleg retour gebracht worden, mits onbeschadigd en niet speciaal besteld. Indien u materiaal retour brengt, crediteren wij het aankoopbedrag minus 25% handelingskosten. Indien wij het materiaal retour moeten halen brengen wij daarnaast ook de gemaakte vrachtkosten in rekening, met een minimum van € 230,-
Op al onze aanbiedingen, verkopen, leveringen en/of diensten zijn onze Algemene Leverings- en Verkoopvoorwaarden van toepassing. Deze voorwaarden zijn gedeponeerd bij de KvK en kosteloos op te vragen.
Prijswijzigingen, druk- en zetfouten voorbehouden.
Een tuin aanleggen is een ware ontdekkingstocht. Maak je de keuze voor strak en modern, of voor een speelse leeftuin? Inspiratie vind je overal: om je heen, in documentatie, online of bij familie en vrienden. Maar soms kom je er gewoon niet uit...
Bij Buiter Beton ontdek je de nieuwste trends en mooiste tuinmaterialen, verwerkt in onze showtuinen en bestratingspleinen. Je vindt ons in Balkbrug, Hengelo, Naarden, Heemskerk en Drachten. In Hengelo is onze presentatie iets kleiner, maar daar bieden we juist een prachtig assortiment voor binnenshuis.
Liever een verkooppunt dichter bij huis?
Op onze website vind je altijd een dealer in de buurt: terrasentrends.nl/vakspecialisten
1
5000 m² tuininspiratie
meer dan 20 thematuinen
GeoCeramica centrum
meer dan 2500 tuinproducten in-lite avondtuin
alle materialen onder één dak




2
groot aanbod aan bestrating
meer dan 2500 tuinproducten
ook tegels voor binnenshuis
in-lite avondtuin
3
3000 m² tuininspiratie
meer dan 10 thematuinen
GeoCeramica centrum
meer dan 2500 tuinproducten in-lite avondtuin
alle materialen onder één dak


5
4000 m² tuininspiratie
outdoor showtuin 24/7 geopend in- & outdoor showtuin
meer dan 2500 tuinproducten alle materialen onder één dak



4
groot aanbod aan bestrating
meer dan 10 thematuinen
meer dan 2500 tuinproducten
in-lite avondtuin
alle materialen onder één dak alle materialen onder één dak



terras & trends is een uitgave van Buiter Beton B.V.
Concept: Buiter Beton B.V. & halte2 creatieve communicatie
Vormgeving & realisatie: halte2 creatieve communicatie
De artikelen in deze uitgave zijn met zorg samengesteld en worden vrijblijvend ter informatie aangeboden.
Over de juistheid kunnen wij geen aansprakelijkheid aanvaarden.








