Building 22 Edition 22

Page 1

XELPARDAUQ 22
//2021:2022 ::
Archite

Note from the Editor

Edition 22 is the celebratory namesake edition of Building 22. As such, we wanted a create a book visually representative of the Azrieli School of Architecture, but more importantly representative of the school’s continuous effort to promote inclusivity.

As part of Edition 22, we launched an inclusivity initiative to provide the opportunity for all students to be published. A self-nomination portal allowed students to progress and develop their projects beyond the confines of course deadlines and nominate projects not previously considered for publishing. Projects from the Summer 2021 to Winter 2022 academic year along with architecture-based projects from elective courses outside the school of architecture were included in an effort to wholly encompass the student body.

Our cover design pays homage to Carleton’s Architecture Building 22’s signage, pictured on the left, while simply designed pages allow for the student work to be celebrated without distraction.

We would like to take this opportunity to congratulate all the students on their incredible work. Without your creativity, drive, and talent, Building 22 would not be possible. Thank you for sharing your projects with Building 22 and allowing us to showcase the endless creative talents that you hold.

Lauren Taylor @lauren.taylor_art
ARCS1005 | DRAWING
The Human Leg and Design | Using The Action of Kicking a Soccer Ball to Create a Drawing Tool
07 A Space For Thinking
@lauren.taylor_art
Lauren Taylor
A Clifftop Sanctuary
ARCS1005 | DRAWING
Angelica Bradley @angelicab.arch
011

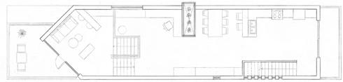
Home and Habitat

Habitual Communication

Confinement within the four walls of a bedroom and isolation from the outside world inspired an exploration into how communication works in a bilingual household. The drawings depict how English and Polish, the two languages used in the household, play different vital roles in day-to-day life. A map of communication is overlaid atop an isometric drawing of the liveliest space in the house, the first floor. From the front entrance to the kitchen, one sees the movement of conversation

in both languages.

As in any bilingual home, each language is never entirely autonomous; a hybrid language unique to each household is formed. The photo essay translated to the plans conveys the bridge between languages. In one area which is heavily dominated by one language, the other finds its way in showcasing the unique habits created throughout a family.

ARCS1105 | STUDIO 01

Déjà Vu Of Home and Habit

The same daily routine repeats within a realm defined and held within four walls. This realm is a container of footsteps. One walks across this space one foot at a time in a continuous loop. One moves from one room to the next, seeing each room, piece of furniture, and object, a thousand times, utilizing them in every way possible. It appears as if one will never stop returning to this room, this piece of furniture, or this object. One’s footsteps cover the entire area and inhabit the entirety of the environment. The walk continues daily in a never-ending loop

017
Ji Young Chung

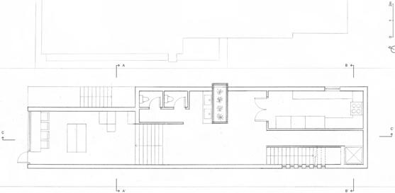
The Bakery House Of

Hosting and Having

The project is located at 145 Forward Avenue, where the houses (most of which are long and narrow in form) are very close to each other. The community space is for a bakery and contains a shop and a shared kitchen. The design starts with four cubes. They respectively represent a public community space, a private community space, a public family space, and a private family space. One cube was rotated by 45 degrees to respond to the sun’s path and surrounding scenery.

As the parents run the bakery together, the family and

community spaces are inter-connected. Customers may enter the bakery through the door on the right. Family members may enter the house through the higher door on the left, but they may also enter through the bakery door on the first floor.

The house façade is generously fenestrated. However, this long house requires more natural light, so a “lightbox” was inserted into its middle. The lightbox is made entirely of glass and runs from the ground floor to the top floor. It is not very wide and the plants within it provide additional privacy.

ARCS1105 | STUDIO 01
021

Blank Gallery

City Passage and Studios

“The City Passage and Studios” project is located on 185 Rue de la Montagne, Montréal, QC, in the neighbourhood called Griffintown. Once a hub for industrial buildings, then repurposed by artists, and recently the site of large-scale demolitions for development, the neighbourhood was largely composed of orthogonal streets and brick buildings.

The design for a new gallery reflects the history of the site through its materiality, column-grid structure, and machinelike functionality with transformative spaces and moveable

ameliakreager@gmail.com

walls. An angled and modest passageway at the back of the lot extends from the opposing street to informs the project’s form and circulation. Blank Gallery is composed of an art gallery, café, and ten artist studios with revolving doors that transform the studio spaces into independent galleries. The design emphasizes the connection between the interior and exterior by allowing the public to view the contents of the gallery from the outside. The slanted walls allow for the art to be seen from different angles from the front façade.

ARCS2105 | STUDIO 02

The Offset Collective

An Artist Collective’s Workspace, Exhibition and Shop for Griffintown, Quebec

The Offset Collective is an artist centre that utilizes angles and stairs to create a building that experiments with and explores circulation. The most public areas are on the ground floor while uses are increasingly private as one ascends each half level. The main circulation -- including half-flights of stairs connecting the offset levels in the front and back halves of the building -is in the centre. Secondary circulation follows the borders of

each offset portion, with tertiary stairs departing from there. The studios are offset further, articulated by two-step intervals. The wood slats on the ceilings direct light through the building from the large floor-to-ceiling wall of windows in each space. The Offset Collective is intended to be a comfortable building offering functional and collaborative workspaces for artists to create and design.

ARCS2105 | STUDIO 02
Stephanie Opdebeeck @stephopdbck
039

Green Pocket Community

The Stack and Twist

[Pella

Green Pocket Community is a holistic social housing district, breaking apart from the traditional urban environment of Ottawa by rotating the grid. This strategic move constructs an important social element, a green corridor connecting Somerset and Preston Streets. This green pathway is a social hub encouraging the inhabitants to interact and engage in various social and cultural activities. A space of unification. The adjacent housing is purposely staggered along the corridor to create

important pockets of green space for fixed activities: sports, Indigenous exhibitions, and communal gardening. The façades are scattered with continuous greenery, to demonstrate the continuity of the green corridor. In addition, the green corridor is complemented with paved piazzas, designed specifically for activities requiring hard surfaces: skateboarding, hopscotch, and road hockey. In essence, the Green Pocket Community encourages togetherness through a holistic experience.

ARCS4105 | COMPREHENSIVE STUDIO
069
ARCS4107 | STUDIO 07

Salt Cult is a cynical examination of contemporary capitalism and consumption. Modern business has become all encompassing, festering systematic inequality, corruption, and exploitation through lobbying and social propaganda. The wealth gap is growing, slowly destroying the middle class, and creating a new western oligarchy of the ultra-rich. These business moguls have become policy makers, controlling government to advance their status and wealth at the expense of the whole. The people have become addicted to consumption and prone to radicalization. Our system is one full of hypocrisy and absurdity.

Salt Cult looks into a future where late-stage capitalism has reached a morbid depth. The wealth gap has left only the ultra-rich and the ultra-poor. With the collapse of a buying class, global trade has stopped, commodities that were once abundant have become precious. Companies have formed into absolute monopolies, jealously hoarding their wealth and assets. Society settles into outposts revolving around industries extracting essential resources. The poor go on pilgrimages between sites to secure the necessities for survival. One resource, however, drives a craving beyond expectation: salt.

089
Saltcult Sustainable Urban Living Bennet Harvey + Tim Schmidt bildhaus.ca

A Place for Wind

Antarctic Research Vessel

The McMurdo Dry Valleys are known for their extreme “Katabatic” winds. Created by the specific climate conditions of the Antarctic, these physically reshape the landscape. A flock of research-based balloons that travels through the Mcmurdo Dry Valleys and engages with the Katabatic winds and prevailing currents of the Antarctic continent forms A Place for Wind.

There are four types of balloons within our project. The main balloon -- the leader of the flock -- houses the researchers. In turn, weather balloons collect environmental data; lab pod

balloons can be ejected when not needed and float long the murmuration until they are reeled back in. Finally, turbine balloons generate sufficient energy for all the needs onboard the main balloon. Research, a fundamental component of the program, takes place on two floors containing equipment such as weather balloon launching stations, open-net floor areas allowing safe exposure to the harsh environment outside, and various other specialized tools. Beyond fulfilling utilitarian goals, the interior of the inflated balloon provides the researchers with flexible space for decompression and play.

ARCS4107 | STUDIO 07
093

Existence as Resistance

& The Narratives Which Make Up Afghan Identity

During the 1996-2001 rule of the Taliban in Afghanistan, the cultural practices, traditions, arts, and recreational activities of the Afghan people were heavily restricted – with many banned altogether. Among these were: Nowruz (Persian New Year), Attan (traditional Afghan dance), music, visual art, film, keeping birds, kite flying, Buzkashi (National sport of Afghanistan), and the wearing of traditional women’s clothing in public spaces. An Afghan who indulged in such expressions was therefore partaking in a form of resistance.

This project explores Afghan resistance through a series of mappings created using various fabrics and printing media.

Here, ideas and themes related to refuge, tradition, concealing and revealing acts of resistance, and the everlasting impacts of war, were explored. To conclude the research and complex themes explored throughout the term, a short film was created to illustrate the two narratives that shape Afghan identity in the West. The video reflects on feelings of profound pride and a great longing for one’s homeland undermined by moments of deep tragedy and pain. Through juxtaposing of scenes of the daily lives of the Afghan people against the horrific impacts of foreign imperialism and occupation, we begin to see the expressions of Afghan Existence as Resistance.

ARCS4107 | STUDIO 07
099

Threshold Landscapes

The Israel/Palestine border with Egypt stretches over two hundred and forty-five kilometers from the Israeli city of Eilat in the South to the Palestinian Gaza border in the North. Military buffer zones extend infrastructures by one kilometer on either side of the border. Mapping exercises uncovered various kinds of passages at several scales. These extended beyond the border between Israel/Palestine and Egypt, reaching into the Sinai Peninsula, the greater Arabian Peninsula, all the way to the Sahara Desert, showing that the interruption of borders is not definitive.

The arbitrary division of a historically continuous and unified

landscape has left a visible scar along the borderline, and the region’s connective elements are no longer able to function as part of an ecosystem. Threshold Landscapes proposes a border region retrofit that takes into consideration the military requirements of the area while prioritizing the biotic. The result is a flip of the military buffer zone into an ecological buffer zone with opportunities for the biotic to flourish. Life pushes through the existing border infrastructure at various scales, rewilding the barren landscape. Interventions are explored at the scale of the border wall, the outpost, and the dune, to foster and stabilize threshold ecosystems.

ARCS5106 | GRADUATE OPTION STUDIO
Sarah Fahmy + Natasha Lemire-Waite + Cam Penney @sarahfahmy | @hakuna_ma_tasha | @_campenney
149

The Commemorative Monument of the Non-Visible

The Commemorative Monument of the Non-Visible transforms the abandoned heritage site of the Carbide Mills located on the waterfront in downtown Ottawa into a space of use by the “non-visible” citizens of Canada including marginalized minorities and vulnerable groups. This project takes advantage of the National Capital Commission’s mission to create commemorative monuments for the people by celebrating the portion of the population who never get celebrated in Ottawa. The Commemorative Monument of the Non-Visible’s design avoids power-geometry and grows organically from the central “heart of the home.” The building is divided into three zones:

the Heart, Creative Making, and Quiet Rest. Members of the community build and transform the ever-evolving monument by changing and adding to a scaffolding structure and clipping to it materials from their own communities. This community-run design produces a site for sharing stories, teaching, learning, making, and nurturing self-worth. Diversity is here not a matter of obligation or quotas, but rather, the driver of an architectural idea -- one that promotes a decolonized society.

Project url: hilaryromaniuk.wixsite.com/hilary-romaniuk/ commemorative-monument

ARCS5106 | GRADUATE OPTION STUDIO
Hilary Romaniuk + Jamie Wong
165
ARCS5106 | GRADUATE OPTION STUDIO

Literapolis

Dickson @affectivearchitecture

Daniel

city – and structurally redefines these scales through research in informatics, archival sciences, and media studies. The third develops a provoking methodology: mapping and drawing through a system of points, vectors, and fields to investigate how the scales can disclose complex urban ethics. The fourth transcribes Literapolis citizen narratives to re-mediate and reenfranchise a vital living literary. Lastly, the fifth reflects on the Literapolis as epistemology and enacts a spatio-text in Ottawa. At end, in proposing a means of – and language for – imagining just urban spaces, the thesis advocates for the sociocultural health of cities.

ARCN5909 | THESIS
The Post-Internet Textual City [RAIC Medal 2022] | issuu.com/affectivearchitecture
The thesis reacts to a loss of citizen agency, accessibility, and heterogeneity in the textual digital environments overlaying the post-Internet city. In response, it proposes the Literapolis: the city as a ‘born-digital living literary.’ In this infrathin heterotopia, texts are created, lived in, and renewed by plural communities whose spaces of writing and reading are intimately tied to place. The Literapolis critical frame is developed over five scrolls, taking San Francisco, the internet epicentre, as case study. The first examines primary terms: the literary, the borndigital, the post-internet, and the text. The second organizes five nested spatio-textual scales – code, page, codex, archive, and

The Nine Valleys - Towards Embodied Experience

Understanding The Confluence of Material and Spirit in The Design of a Bahá’í House of Worship

This thesis proposes a Temple for Canada situated in Thornhill, Ontario, and is guided by the Institution of the Mashriqu’lAdhkár – a Law embodied within the Bahá’í Faith. At the center of the Institution is the Temple, or House of Worship, open to all irrespective of religious affiliation, background, or gender. The premise of this thesis was to resist the dominance of sight in experiencing environments, and to validate/reconcile it other modes of perception. Guided by phenomenology, the thesis was built on prolonged multi-sensorial engagement: visits and field studies spanning a two-year period melded openended experiential discovery and scientific methods. As such

Vedad Haghighi @vedad.haghighi www.vedadh.com

“experienced wisdom” provided design prompts. The fact that preparatory studies were protracted over time, embodied, and rooted in place, and time, informed the design. A daily practice of drawing and model-making strove to activate potentials for contact between site, place, and people. Nine gardens above the valley surround the Temple and punctuate the descent towards it. Each garden contends with specific microenvironmental conditions. A small work of sacred architecture in each one aims to activate physical, mental, and spiritual engagement with the land.

ARCN5909 | THESIS

The Archive of Lost Stories and Dormant Memories

A Portal into The Oasis

The Old Town of Ghadames, in Libya, is a desert oasis that is a portal through time offering an apt setting to explore architecture’s entanglement with place and memory. Its walls have long carried with them the scars, traces, and stories from its ancient past. Despite its abandonment in the 1990s, the town is rejuvenated every summer by the temporary return of its past inhabitants. Ghadames continues to hold the latent memories

of its history and seems to await the opportunity to be ignited once again. This thesis reflects on Ghadamesian narrative, histories, and experiences, as means of revealing, analyzing, and interpreting spatial possibilities in the town. The thesis uses semi-fictional narratives to guide speculative interventions that engage with past and present in order to reimagine the town as an archive of lost stories and dormant memories.

187

Course Directory

ARCS1005 | Drawing

Émélie Desrochers-Turgeon + Marco Ianni + Isabel Potworowski

Drawing-Out the Architectural Imagination

This course provides an introduction to architectural representation offering students a critical understanding of this fundamental instrument of the imagination. Drawings and models are the principal means of communication of architectural ideas. Drawings are informed by thinking through making. The body and the human senses are engaged in the representation and mediated perception of objects through drawing. Drawing is a translation of materials into ideas and vice versa. This process of transmediation takes place through purposefully chosen media and techniques.

Through crafted drawing exercises that join the practical and theoretical aspects of representation, students are brought to experience the imaginative nature of architectural drawing as a process rather than a finished product.

ARCS1105 | Studio 01

Piper Bernbaum + Adriana Ross + Gabrielle Argent

Habitual Studio | Lessons of Habits, Inhabiting, And the Every Day Focusing on the universally accessible notions of “home” and “dwelling” this studio seeks to study the spatial conditions that orbit around the “habitual,” both in the way we live as people and in the way we practice as architects. Recognizing the habitual as both personal and plural, the studio balances the opposing intricacies of the individual and the universal, the one and the many, the room and the community, the small and the large, while cultivating an understanding of how we, as a collective and as individuals, carry out our lives. Broadening an understanding of narratives, of building and spatial implications, and of celebrations of the every-day, this studio investigates the “habitual” in architecture, orbiting around themes of balance/grace, community, grounding/site, dwelling/living and responsibility. Through the exploration of dwellings and public spaces, students frame their own position through analysis and design. Designs seek to consider the habitual qualities of their spaces and others surrounding them to develop an understanding of how to become a conscious practitioner.

COURSE DIRECTORY

ARCN2105 | Digital Practice and Theory

Digital technologies assert their presence in nearly every aspect of our 21st century lives— from purchasing groceries to communicating with our families, from entertainment to education. To participate in digital techniques, then, is not a matter of choice; it is a necessity and a matter of degree. Digital drawings develop from the long history of architectural representation and engage technical procedures that developed in parallel with Western modernity. Thus, while computers have largely replaced drafting boards and dramatically changed the work of the practitioner, analogue methods using projective geometry (plan, section, elevations, axonometry) and perspective techniques that emerged during the eighteenth century, persist in architectural representation, and find their way into digital drawing. This course explores computer modeling as a medium of architectural analysis, documentation, and presentation through analysis of the enduring and evolving principles and techniques of 2D drawing and 3D modeling.

ARCS2105 | Studio 02

Stephan Kowal + Eric Archambault + Gonzalo Muñoz-Vera + Adriana Ross

Elements of Architectonic Space

Studio 02 investigates the fundamentals of architectural designs, the elements of space definition and abstract languages to describe spatial qualities, as well as other notation and visualization methods to tackle increasing complexities – including cultural, social, phenomenal, historical, and political issues affecting the built environment -- as these relate to site and context.

Sites range from the studio space to an outdoor public space, to a bustling urban setting in full mutation. Students develop these through exploratory processes leading to sensitive and meticulous projects, introducing elements of structure and materiality in the form of architectonic assemblages.

ARCN2106 | Introduction to Multimedia

Adriana Ross

The course offers an introduction to the theoretical, conceptual, and technical aspects of multimedia representation. Structured around two main themes, Traces in Time and Reveal and Conceal, students learn how to transform drawings of artifacts from one medium to another. Using a variety of representational processes, students realize the dreams and potentialities present in the original artifact. Assignments are conceived to stimulate metaphorical thinking and to challenge and question the limitations of the digital and analogue realms. Students produce a creative fusion that involves personal engagement, curiosity, and a vision of latent possibilities.

ARCS2106 | Design Studio 03

Holding… And Holding Up!

Holding: a protective embrace; Holding up: to resist collapse. This studio invited students to deeply consider that the act of holding up a roof also generates space under which to gather and dwell. To structure is to give birth to space. Our goals were to ideate and translate ideas into architectonic language; to organize architectural journeys at the scale of the site; to design a “good room;” and finally, to discover that the actions of holding and of holding up can be intimately related to each other. In a spirit of return to our shared world after a long period of remote study, this studio’s projects responded to invitations from the community for architectural visions: the Nakkertok Ski Club wished for conceptual designs of a lodge, while Councilor Mathieu Fleury desired ideas for aging community centres in his Rideau-Vanier ward. The students embraced these calls, venturing into, first, the snowy hills of Cantley, Québec, and then, into three aging community centres in Ottawa’s core. A “beautiful drawing” exercise - a first digital drawing printed on watercolour paper - marked a gentle step from hand to digital making.

201
2 2

Index

Abdelrahman, Hager

Interconnected*

Water Webs

Al-Idrissi, Hadiya

The Forest Factory

Allard, David Bastien

The Cloud Factory

Almacin, Alexis

Lo-Fi Music as Architecture

Alstyne, Sarah Van

Foundation Of Play

Saltscapes

Amarioarei, Corina

Trash Towers*

Tree Factory*

Antunes, Elisa

Obligatory Coexistence

Bacalu, Catalin

Hydrobus Central Station

Baric, Hayley

Transient Factory

Beliak, Matthew

Urban Forestry Research Facility

Booth, Andrea

Convergence

Borujerdi, Fatemeh

Individualism & Context

Borwick, Sasha

Between the Stones

Bradely, Angelica

A Clifftop Sanctuary

Brady, Melissa

Crossroads

Holistic Community Design

The Weaved Sanctuary

Broadhurst, Sean

Details for Multiworld Assemblies

Tending to Weeds

Burghed, Mira

The Archive of Lost Stories and Dormant

Memories

Chan, Annette

Phase Four

The Weaved Sanctuary

Cheung, Janis Vagabond

Déjà Vu Chung, Jonathan

Belonging To a Bar

Cichon, Sarah

Home and Habitat

Clouatre, Derek

A

to The Dream House

Combaluzier, Megan

Our Social Future

Dave, Nishant

Constructed Topographies

Green Pocket Community*

Denis, Mathieu

Aw(AIR)ness

Risers Ad Infinitum Towards Shelter

Desjardins, Noah

Constructed Topographies

Green Pocket Community*

Dickson, Daniel

Chung, Ji Young
Gargantuan Colenutt , Karyn
Ladder
Literapolis* Dillabaugh, Darion City Passage and Studios The Nakkershack 079 096 140 192 191 078 082 159 133 022 060 122 144 095 113 084 010 126 152 146 173 184 187 154 146 090 017 134 016 112 014 156 086 068 106 166 086 068 182 036 042 * Award Winning Project
209 Dinh, Huy Level-Up Lodge RCC Gym Eckert, Joshua Tower for the Trees* Effah, Daniel F. Between This Space and Me Egan, Charlotte Saltscapes Elekes, Megan Crossroads Viewport Fahmy, Sarah Crossroads Our Social Future Submerged Immersion Threshold Landscapes Fink, Melissa Hoa Hakananai’a Intersections Follis, Ty Ascension Friedman, Karin Delineation Gangnon, Charbel Fabien Phoenix House Gialouris-Tsivikas, Georgios Lock(e) Lounge Godfrey, Max Herongate Community Centre Graaf, Kate De Of Hosting and Having Graziani, Tobia L’intermédiaire 044 048 130 188 082 030 126 156 137 148 172 102 080 027 024 031 054 025 071 Hacker, Bianca Ascension Haghighi, Vedad The Nine Valleys Haqani, Sideqa Existence as Resistance Traverse* Harvey, Bennet Centretown Loop* Saltcult Hermer, Will A Place for Wind Huang, Joey Memory of The Feet Huang, Ju The Oppression and Criticism of the Olfactory Cells Jacques, Hugo The Life and Death of an Untold Speech* Jamili, Mouhamad Muskoka West Bay Jermyn, Connor Sub-Urban Jiang, Nan The Bakery House The Ceiling as Woven Lines Juntilla, Klariza Champagne Baths Renewal Kettler, Evan Table Étendu Kigel, Yana A Golden Green Belt The Study of Paths and Their Users Kreager, Amelia Bank Gallery The Robin Gymnasium 080 186 098 072 074 088 092 009 162 193 066 059 020 008 052 123 190 110 028 049

Lamug, Shela

Delineation

Lemire-Waite, Natasha

Bloom

Machine For Living

Phase Four

Threshold Landscapes

Levesque, Chloe

Phase Four

The Weaved Sanctuary

Li, Justin

Li, Ruby

Lodgings For a Weary Traveller

Traverse*

Overbrook Community Center

Liebe, Lauren

The Frustration Station

Luu, Jason

Gathering

Macdonald, Ailsa

Visualization

Maiolo, Cameron

Our Current Condition

Maksymshyn, Megan

Constructed Topographies

Mandac, Michael

Accordion Towers and Squeaking

Inflatables

Manstrangelo, Dana

Holistic Community Design

Marwah, Ahaan

L’intermédiaire

Melhado, Otmar

Our Social Future

Merchant, Arkoun

HCR Industries

Project Revamp

Merrick, Claire

The Third Seascape*

Monfette, Emma

Tokyo Series

Murdoch, Natalie

Visualization

Nicell, Conor

The Shipwright’s Symphonic

Nguyen, Thompson Cong

Altars, Offerings and Inheritances

Oleksiak, Robert Our Social Future

Olivares, Daniela

Opdebeeck, Stephanie

The Bridge

The Offset Collective

To Reflect Is to

Euphony*
Frame Penney, Cam
Ecologies Bloom
Four Seascapes of Memory Threshold Landscapes Perini, Milena Intertwined and Interconnected Perrella , Damiano Saltscapes Pottinger-Gentles, Sianna Delineation Qasem, Dalia Densification, Exposure, and Protection 027 124 132 154 148 154 146 085 072 058 115 012 026 168 086 118 152 071 156 120 114 176 062 026 064 180 156 128 043 038 034 142 124 154 196 148 040 082 027 145 * Award Winning Project
[In]visible
Phase
Index

Rafael-White, Gerry

A Place for Wind

Rath, Emma

Assembling Narcissus’s Pond

Robitaille, Jonathan

Foundation Of Play

Vagabond

Romaniuk, Hilary

The Commemorative Monument of the Non-Visible

Schickedanz, Grace

Chain Reaction Distraction

Schmidt, Tim

Centretown Loop*

Saltcult

Sejdinovic, Lejla

Conceal & Reveal

Fragmented Memory

Sheikh, Muneebah

Eccles Soup n’ Stay

Shen, Jiaxuan

Gaming World

Siage, Reem

Interconnected*

Singh, Shreetika

Holistic Community Design

Stapper, Amos

The Building Block Library

Stojanoski, Goce

Amnestic Syndrome of a Lost Geographical Location

Mythopoetic Narratives of The Invisible Minorities

Strochinski, Travis

Tamborro, Connor

Holistic Community Design

Taylor, Lauren

A Space For Thinking

The Human Leg and Design

Thomson, Stuart

Bank Street LTC Housing

Tromp, Eva

Cliff Hanger

Villarasa, Jessica

Champagne Baths Aquatic Complex

Nakkertok Ski Lodge

Wallace , Kayla

Visualization

Wang, Helen

Building on Community

Lines Of Si[gh]te

Weinberger, Jill

The Kinetic Reef

Wilson, Jacob

Between the Stones

Wong, Jamie

The Commemorative Monument of the Non-Visible

Woolfrey, Martha

River Ij Hydrology Centre

The

Youssef, Anthony

211
Water
Treading
STEAMship
Meaning (A)Drift
Yiping Lines of Sight 092 163 078 090 164 018 074 088 138 103 019 091 079 152 023 160 104 136 152 007 006 116 013 053 046 026 050 035 194 084 164 063 056 174 032
Zhan,

The Golf Exécutif Montréal Clubhouse Montreal, QC 2018

The Golf Exécutif Montréal Clubhouse, is located on Nuns’ Island in Montreal, a green oasis in the St. Lawrence River facing downtown. The clubhouse’s architectural signature is a direct response to the nature of the project. The building’s curve, echoing the driving range, harmonizes with the setting while meeting the needs of golfers working on their game. The exceptional size of the wooden roof’s cantilevers, dictated by the need to provide adequate shelter from the elements, also led to the creation of a contemplative space for golfers. The plan’s precision is evident in the clubhouse’s ample windows and distinct arrangement of materials: zinc, wood and glass.

Project Team

Virginie Pontbriand Principal-in-Charge

Alexandre Sauvé Lead Designer

Alexandre Landry Designer

Nicoleta Dan Ferenta Interior Designer

Robert LaPierre

Sophie Lepage-Pellerin

Jorge Lizzaraga

Liu Zen Ghen Paul O’Borne Victor Napuri

To Our Sponsors, Supporters and Donors

We would like to thank all the sponsors, donors, and supporters of Edition 22. Without the financial support from all the gracious organizations and individuals, this not-forprofit publication could not be realized. It is with their generosity that Building 22 is able to continue to create a stimulating and inspiring publication, which contributes to the growth of our architectural community.

Firstly, we would like to thank our generous major sponsor of Edition 22, Architecture 49. We are grateful for their generous financial contribution and look forward to continued collaboration in future publications.

We would also like to thank our sponsor Perkins&Will and supporters: CSV Architects, Kosmic, N45 Architecture, Robertson Martin Architects, and Heritage Ottawa. The continued support demonstrates an unyielding commitment to the practice of architecture and to the future of the profession.

213

ecture

Turn static files into dynamic content formats.

Create a flipbook
Issuu converts static files into: digital portfolios, online yearbooks, online catalogs, digital photo albums and more. Sign up and create your flipbook.
Building 22 Edition 22 by Building 22 - Issuu