KIẾN TRÚC MÔI TRƯỜNG

Page 1

TRƯỜNG ĐẠI HỌC KIẾN TRÚC THÀNH PHỐ HỒ CHÍ MINH KHOA KIẾN TRÚC BỘ MÔN MÔI TRƯỜNG VÀ THIẾT KẾ BỀN VỮNG BÀI THU HOẠCH KẾT THÚC MÔN HỌC KIẾNTRÚCVÀ MÔITRƯỜNG GVHD: TS.KTS TRƯƠNG NGUYỄN HOÀNG LONG SVTH: PHAN KHƯƠNG CHÍ TÂM 18510101309

MỤCLỤC PHẦN 1: GIỚI THIỆU CÔNG TRÌNH PHẦN 2 : CÁC GIẢI PHÁP KIẾN TRÚC NHÓM 1: ĐỊA ĐIỂM, SINH THÁI VÀ CẢNH QUAN NHÓM 2: TIẾT KIỆM NĂNG LƯỢNG NHÓM 3: VẬT LIỆU BỀN VỮNG NHÓM 4: SỬ DỤNG NƯỚC HIỆU QUẢ NHÓM 5: CHẤT LƯỢNG MÔI TRƯỜNG TRONG NHÀ PHẦN 3: KIẾN THỨC VÀ KINH NGHIỆM QUA MÔN HỌC

PHẦN1:GIỚITHIỆUCÔNGTRÌNH 1. THÔNG TIN SƠ BỘ 2. CÁC BẢN VẼ KỸ THUẬT VÀ TIỂU CẢNH, PHỐI CẢNH CÔNG TRÌNH

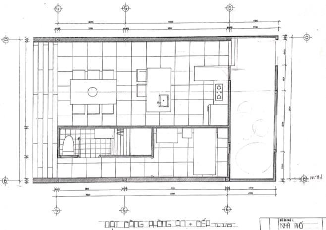
1.THÔNGTINSƠBỘ VỊ TRÍ KHU ĐẤT - Tên đồ án: Nhà phố - Hình thức thực hiện: Vẽ tay - Vị trí khu đất xây dựng: Chợ Amaron, thôn Đoàn kết, xã iapa, tỉnh Gia Lai. Cách trung tâm 40km. - Diện tích khu đất: 6x24m - Quy mô công trình: 4 tầng - Mật độ xây dựng: 100% Bàithuhoạchsẽdungcáchìnhảnhscantừbảnvẽtayvàvẽmáyđểphântích Đồ án nhà ở 1 – được GVHD thầy Nguyễn Đình Vinh hướng dẫn. Yêu cầu của đồ án là hoàn thành 1 bộ hồ sơ Thiết kế công trình nhà ở trên khu đất của gia đình của mình. SV thiết kế dựa trên một số yêu cầu và theo mong muốn của gia chủ. Hồ sơ Nhà phố của em gồm 33 trang, triển khai tỉ lệ 1/100 và trích đoạn các phòng ốc 1/25 và các tiểu cảnh công trình - Địa hình bằng phẳng, độ cao trung bình so với mặt nước biển từ 200-500m. - Cảnh quan xung quanh thoáng đãng với nhiều cây xanh. Nhà ở lân cận chủ yếu theo nếp nhà truyền thống, mật độ thấp, xen kẽ ruộng vườn. - Điều kiện tự nhiên: Đây là vùng có những lợi thế phát triển chủ yếu như: trồng cây ôn đới, cây công nghiệp ngắn ngày và dài ngày, cây lâm nghiệp, khai thác khoáng sản,… - Hệ thống sông ngòi tương đối lớn. Chính vì vậy mà khí hậu được điều hòa tự nhiên. - Có gió thường xuyên từ hướng sông thổi vào

2. CÁC BẢN VẼ KỸ THUẬT VÀ TIỂU CẢNH, PHỐI CẢNH CÔNG TRÌNH

2. CÁC BẢN VẼ KỸ THUẬT VÀ TIỂU CẢNH, PHỐI CẢNH CÔNG TRÌNH

2. CÁC BẢN VẼ KỸ THUẬT VÀ TIỂU CẢNH, PHỐI CẢNH CÔNG TRÌNH

2. CÁC BẢN VẼ KỸ THUẬT VÀ TIỂU CẢNH, PHỐI CẢNH CÔNG TRÌNH

2. CÁC BẢN VẼ KỸ THUẬT VÀ TIỂU CẢNH, PHỐI CẢNH CÔNG TRÌNH

STT CHỨC NĂNG VỊ TRÍ HƯỚNG KÍCH THƯỚC CỬA SỔ 1 Phòng khách Tầng 1 – Nam Bắc 7mx4mx3,6m 1 CỬA SỔ HƯỚNG NAM, ĐỂ THOÁNG HƯỚNG BẮC 2 Bếp + phòng ăn Tầng 1 – Nam Bắc 7mx3,5mx3,6m CỬA SỔ ĐỂ LAM HƯỚNG NAM 3 Gagare Tầng 1 – Nam Bắc 7mX3,5mX3,6m CỬA SỔ THỐNG VỚI PHÒNG KHÁCH HƯỚNG BẮC 4 Phòng gia nhân Tầng 1 – Nam – Bắc 2mx2,5mx3,6m CỬA SỔ HƯỚNG BẮC 5 Phòng Làm việc Tầng 2 – Nam – Bắc 12,5mx4mx3,6m CỬA SỔ VÁCH KÍNH TÂY NAM 6 2 Phòng ngủ con Tầng 2, 3 – Nam – Bắc 7mx4mx3,6m CỬA SỔ HƯỚNG BẮC 7 Phòng ngủ Master Tầng 3 – Nam – Bắc 9mx3,5mx3,6m CỬA SỔ HƯỚNG NAM 8 Nhà vệ sinh cho khách Tầng 1 – Đông – Tây 4mx2mx3,6m CỬA SỔ 400X400 HƯỚNG NAM 9 Phòng tắm Master Tầng 3 – Đông – Tây 9mx2,5mx3,6m ĐỂ LAM HƯỚNG NAM 10 3 phòng vs bố trí các tầng Tầng 2,3 – Bắc – Nam 7mx4mx3,6m CỬA SỔ 400X400 HƯỚNG BẮC – NAM 11 Phòng sinh hoạt chung Tầng 4 – Nam – Bắc 5mx4mx3,6m CỬA SỔ HƯỚNG BẮC 12 Phòng thờ Tầng 4 – Nam – Bắc 2,5mx2,5mx3,6m ĐỂ LAM HƯỚNG NAM 13 Phòng xông hơi Tầng 4 – Đông Tây 3mX2,5mX3,6 CỬA SỔ HƯỚNG BẮC 14 Phòng ngủ khách Tầng 4 – Nam – Bắc 4mx6mx3,6m CỬA SỔ HƯỚNG BẮC 15 Phòng giặt Tầng 4 – Nam – Bắc 4mx2mx3,6 LÔ GIA HƯỚNG BẮC 16 Phòng vs khách Tầng 3 – Đông – Tây 3mx1,5mx3,6m CỬA SỔ 400X400 HƯỚNG ĐÔNG 17 Nút Giao thông – thông tầng Đông - Tây 5mx2mx15m BỐ TRÍ CỬA SỔ MÁI THÔNG TẦNG 18 Sân vườn Nam – Bắc 5,5mx1m1,5mx6m,2mx6m, 19 Sân thượng Nam Bắc 3,5mx6m BẢNG LIỆT KÊ CÁC THÀNH PHẦN KHÔNG GIAN CHỨC NĂNG

PHẦN2:GIẢIPHÁPTHIẾTKẾ NHÓM 1: ĐỊA ĐIỂM, SINH THÁI VÀ CẢNH QUAN NHÓM 2: TIẾT KIỆM NĂNG LƯỢNG NHÓM 3: VẬT LIỆU BỀN VỮNG NHÓM 4: SỬ DỤNG NƯỚC HIỆU QUẢ NHÓM 5: CHẤT LƯỢNG MÔI TRƯỜNG TRONG NHÀ

1.1 Khu đất có giá trị sinh thái thấp : - Khu đất nằm nằm khu vực dân cư, khu vực chợ của vùng iapa ( chợ Amaron), , không xâm phạm các cá thể tự nhiên như: cây xanh, nguồn nước, các địa điểm văn hóa, các công trình có giá trị bảo tồn. - Khu đất không nằm trong khu công nghiệp hay khu vực ô nhiễm nặng nên không cần các biện pháp cải tạo môi trường sống. NHÓM1:ĐỊAĐIỂM,SINHTHÁIVÀCẢNHQUAN-ĐỊAĐIỂMBỀNVỮNG 1.LỰACHỌNKHUĐẤT: 1.2 Tận dụng khu đất đã phát triển: • Giao thông: Khu đất nằm ở đường dân sinh nhỏ, không tiếp xúc trực tiếp với các tuyến giao thông lớn. - Hạ tầng kĩ thuật được xây dựng sẵn - Khu đất có tầm nhìn ra cảnh quan sân vườn 1.3 Khoảng cách đến các đầu mối giao thông lớn - Vì khu đất nằm trong khu vực chợ của vùng nên gần các đường tỉnh đi đến các khu vực khác. 1.4 Kết nối cộng đồng Khu vực nằm ở vùng nông thôn nên - Xung quanh chỉ có khu dân cư và cảnh quan tự nhiên (đồng ruông, vườn cây, sông ngòi,...). Cách xa các tiện ích công cộng. HÌNHCẢNHCÁCKHUVỰCXUNGQUANHHọađồvịtríkhuđất

NHÓM1:ĐỊAĐIỂM,SINHTHÁIVÀCẢNHQUAN-ĐỊAĐIỂMBỀNVỮNG 2.THIẾTKẾKHUĐẤT: 2.1 Phân tích khu đất xây dựng: - Diện tích khu đất: 144 m2 - Công trình sẵn có: Khu đất tiếp giáp với nhà dân và vườn cây, vườn rau. - Kết cấu sẵn có tại khu vực: nhà dân được xây dựng với kết cấu bê tông cốt thép - Địa hình: khu đất có địa hình bằng phẳng, không có ao trũng, không dốc, không có điểm chênh lệch cao độ quá lớn. - Tầm nhìn khu đất: Xung quanh khu đất là nhà dân cao độ 23 tầng và vườn cây. 2.2 Diện tích không phát triển xây dựng: - Diện tích xây dựng: 117.5 m2 - Tổng diện tích sàn: 486 m2 - Qui mô: 4 tầng - Diện tích không xây dựng: 44.6m2 chiếm 30.9 % diện tích khu đất. - Tiếp xúc: +Hướng Bắc: Tiếp xúc với nhà dân +Hướng Nam: Tiếp xúc trục đường giao thông +Hướng Đông: Tiếp xúc với nhà dân +Hướng Tây: Tiếp xúc với nhà dân KHUVỰCXUNGQUANH Phântíchkhuđất

NHÓM1:ĐỊAĐIỂM,SINHTHÁIVÀCẢNHQUAN-ĐỊAĐIỂMBỀNVỮNG 3.HIỆUỨNGĐẢONHIỆT: 3.1. Hệ số phản xạ Albedo bề mặt mái. - Công trình dùng mái bằng với độ dốc nhỏ 2% hướng sang 2 bên để thoát nước - Vật liệu xây mái dùng bê tông GGBS, xỉ hạt đáy lò cao (GGBS) có dạng bột nghiền màu trắng, nhạt hơn màu bê tông nên làm tăng lượng phản xạ bức xạ mặt trời, giúp chống nóng cho công trình. - GGBS làm tăng Alebo của bê tông tới giá trị trong khoảng 0.4 - 0.7. Cứ với mỗi 50m2 diện tích mái bằng dùng bê tông GGBS ta có thể tiết kiệm được 6.5 tấn CO2 mỗi năm. - Ngoài dùng thêm biện pháp hoàn thiện bề mặt như dùng chất lỏng chống thấm Sikalastic 560 - Loại này có lượng VOC thấp, thân thiện môi trường, Albedo cao, kháng tia UV, phù hợp với yêu cầu LEED EQ Credit 4.2 và 7.2. Tổngdiệntíchlátvàmáicókhảnănghạnchếhiệuứngđảonhiệt 3.2. Giải pháp bố trí pin mặt trời ở mái: - Giúp tạo ra nguồn điện phục vụ cho sinh hoạt gia đình. - Giúp giảm thiểu chi tiêu điện và góp phần bảo vệ môi trường. - Dùng năng lượng xanh, tận dụng được nguồn tài nguyên thiên nhiên. - Hệ thống hòa lưới năng lượng mặt trời là giải pháp rất hữu ích, hiệu quả cho các hộ gia đinh, doanh nghiệp hay công ty muốn giảm số điện khi sử dụng điện nhiều vào ban ngày với chi phí đầu tư thấp, không cần bảo dưỡng, độ bền cao. Tấmpinmặttrời

NHÓM1:ĐỊAĐIỂM,SINHTHÁIVÀCẢNHQUAN-ĐỊAĐIỂMBỀNVỮNG 4.NƯỚCMƯACHẢYTRÀN: Diệntíchtrungbìnhcókhảnăngthấmnướccủakhuđất 4.1. Diện tích thấm nước mưa của công trình - Hiện tại khu đất có diện tích có khả năng thấm nước là sân sau và sân trước và thông tầng: 25m2 - Diện tích có khả năng thấm nước -> Diện tích thảm cỏ, vườn cây = 25 m2 - Tỉ lệ diện tích có khả năng thấm nước so với diện tích khu đất = 25/144 %= 17.4% 4.2 Sử dụng gạch trồng cỏ: Khi trời nắng các hoạt động sinh hoạt sẽ diễn ra nhẹ nhàng và thoải mái hơn. Bề mặt cỏ sẽ góp phần điều hòa không khí cũng như giảm bớt sức nóng lên phần sân ngoài trời. Vào trời mưa, bề mặt có các rãnh cũng như những tấm cỏ sẽ giúp một phần nước ngấm vào đất giúp ngăn tối đa tắc nghẽn cống thoát nước, chống trơn trượt, làm chậm lại quá trình thoát nước mưa Gạchtrồngcỏ

NHÓM2:TIẾTKIỆMNĂNGLƯỢNG 1.THIẾTKÉTHỤĐỘNG: 1.1. Tỷ số mặt đứng hướng đông - Tây - Công trình nhà phố có 3 hướng tiếp cận với nhà dân ->Xét theo hiện trạng các công trình tiếp giáp có 2 tầng cao 3,6m mỗi tầng Ta có các diện tích mặt đứng các hướng như sau: + Diện tích mặt đứng hướng Đông 7.2m x 8.5m = 59,5 m2 + Diện tích mặt đứng hướng Tây = 7.2m x 13.5m = 97.2 + Diện tích mặt đứng hướng Bắc =14.4m x 6m = 86.4 m2 + Diện tích mặt đứng hướng Nam =86.4 m2 - Tổng diện tích các mặt đứng = 59.5 + 97.2 + 86.4 + 86.4 = 329.5 - (Diện tích mặt đứng hướng Đông tính toán + Diện tích mặt đứng hướng Tây) / Tổng diện tích các mặt đứng x 100 = 47.5 % ( Chưa đạt ) -> Thiết kế kết cấu chắn nắng

NHÓM2:TIẾTKIỆMNĂNGLƯỢNG 1.THIẾTKÉTHỤĐỘNG: 1.2. Tỷ số diện tích cửa sổ - tường Với mặt đứng hướng Đông và Tây, ta có: + Diện tích cửa sổ và tường kính hướng Đông : 0 m2 + Diện tích cửa sổ và tường kính hướng Tây 0 m2 -> Tổng diện tích cửa sổ và tường kính hướng Đông và Tây : 0 m2 + Diện tích tường hướng Đông: 59.5 m2 + Diện tích tường hướng Tây : 97.2 -> Tổng diện tích tường hướng Đông và Tây : 156.7 m2 -> Tỷ số diện tích cửa sổ - tường của mặt đứng hướng Tây và Đông = 0 / 156.7 x 100% = 0% ( đạt ) -> Không cần biện pháp chắn nắng hướng Đông - Tây

NHÓM2:TIẾTKIỆMNĂNGLƯỢNG 1.THIẾTKÉTHỤĐỘNG: 1.3. Kết cấu chắn nắng - Các phòng ngủ của công trình đều bọc bởi một lớp lam nhôm đứng rộng 300 và dày 100, cách lớp kính bên trong 300 để tạo mái hiên và 1 khoảng đệm để gió lưu thông qua làm mát lớp kính. - Vì để phù hợp thẩm mỹ mặt đứng tạo tính liên tục trong ngôn ngữ thiết kế, nên mặt đứng hướng Bác – nam chỉ sử dụng hệ Lam dọc có thể điều chỉnh độ nghin để chống nóng nhưng vẫn đảm bảo thông gió tự nhiên. - Riêng đối với phía Đông và Tây được chắn nắng một phần bởi công trình nhà ở hiện hữu bên cảnh, và có thể chống nóng bằng biện pháp xây them một lớp vật liệu mỏng nhẹ, rỗng khí để chống nhận nhiệt. TấmcáchnhiệtchốngnóngchotườngnhàhướngĐôngTây Lamchenắng

NHÓM2:TIẾTKIỆMNĂNGLƯỢNG 2.VỎCÔNGTRÌNH: Sử dụng biện pháp Lam gió giớ kết hợp trồng cây xanh, tạo mặt đứng cho công trình.2.1. Truyền nhiệt tường và mái Sử dụng ốp tường bằng tám cách âm cách nhiệt GACHMAT Là vật liệu xây dựng có tính năng cách nhiệt, cách âm được cấu tạo bởi lớp PU (PolyUrethane) ở giữa và 2 lớp bề mặt bằng giấy xi măng có kết cấu đặc biệt. Tỷ suất truyền nhiệt của Gachmat là 0,0182 Kcal/m.h.OC, thấp nhất trong số các vật liệu cách nhiệt đương đại Sử dụng Gachmat giúp tiết kiệm trên 50% chi phí điện năng dùng cho điều hòa và quạt mát. Do không làm trung gian trao đổi nhiệt nên Gachmat không để xảy ra hiện tượng “đổ mồ hôi” khi nhiệt độ thay đổi đột ngột, ngăn chặn quá trình tạo nấm mốc trên bề mặt công trình.

NHÓM2:TIẾTKIỆMNĂNGLƯỢNG 2.VỎCÔNGTRÌNH: 2.2. Bức xạ mặt trời qua cửa sổ: Sử dụng kính hộp LOW-E: - Là sản phẩm kính được cấu tạo bởi 2 lớp kính ghé lại với nhau (Kính trắng+Chân không hoặc khí argon+Kính Low-e). Trong đó, tấm kính low e được phủ trên bề mặt một loại hợp chất đặc biệt. Đặc tính: Điều khiển năng lượng mặt trời: Kính Low-e có tính năng phát xạ phát nhiệt chậm, làm chậm quá trình truyền tải nhiệt nhưng vẫn đảm bảo độ sáng cho căn phòng. Bảo vệ sức khỏe con người: Tính năng điều khiển năng lượng mặt trời của kính low-e giúp cho căn phòng luôn ấm áp vào mùa đông và mát mẻ vào mùa hè, tạo nên sự ổn định về nhiệt độ nên bảo vệ sức khỏe con người. - Tiết kiệm: Kính Low-e 2 lớp tiết kiệm tối đa chi phí điện năng. Ngoài ra, các thiết bị điện sẽ hoạt động ổn định hơn, do đó sẽ bền hơn.. 2.3. Bức xạ mặt trời trên bề mặt không trong xuốt - Hệ số phản xạ ( Albedo ) của mái + Như ở phần hiệu ứng đảo nhiệt đã nói, mái công trình dùng bê tông GGBS có hệ số phản xạ Albedo cao (0.4 - 0.7) kết hợpvới lớp chống thấm Sikalastic sẽ làm tăng giá trị này thêm. - Đối với mái : + Dùng Các vật liệu cách nhiệt được chế tạo theo phương pháp công nghiệp, ép thành từng tấm hoặc tết thành từng cuộn có kích thước và độ dày cũng như độ xốp khác nhau theo tiêu chuẩn. + Trong quá trình thi công, các tấm/cuộn vật liệu nói trên sẽ được chèn vào mái trên –mái dưới. Tùy thuộc chất liệu và độ dày của các tấm/cuộn đặt vào mà hiệu quả cách nhiệt của tường/mái sẽ khác nhau. Lợptônchóngnóngchomái

NHÓM3:VẬTLIỆUBỀNVỮNG 1.HỆKẾTCẤU: 1.3. Sử dụng gạch không nung: - Các loại gạch không nung được sản xuất dựa trên dây chuyền cơ giới hoá cao, vì thế người lao động không cần phải tiếp xúc trực tiếp với nhiệt độ cao. Ngoài ra, gạch không nung có tính cách âm, cách nhiệt cao, trọng lượng khá nhẹ nên việc thi công các công trình giảm thiểu được công sức và thời gian, việc sử dụng cũng đạt được các hiệu quả riêng tư và tiết kiệm tối đa nguồn năng lượng - Gạch không nung đảm bảo được sự chắc chắn, kết cấu móng bền vững, có tính chịu lực cao, khung dầm giảm, nhờ đó giá thành các công trình cũng được giảm. - Ngoài sử dụng chất kết dính là xi măng thì thành phần còn lại trong gạch không nung đều là đá mạt, sỉ… đến từ các chất thải công nghiệp, góp phần giảm thiểu ô nhiễm môi trường 1.1 Sử dụng vật liệu địa phương: - Sử dụng vật liệu xây dựng của địa phương, than thiện môi trường, không tốn kém. - Ngoài ra cần nhập thêm các vật liệu như thép tái chế, gạch không nung, thạch cao tái chế. 1.2. Thép tái chế: thép có thể chuyển đổi thành các vật thể mới mà không làm giảm chất lượng. Quá trình tái chế thép góp phần làm giảm lượng điện tiêu thụ tới 80%, ít gây tác động đến môi trường hơn và loại bỏ hoàn toàn nhu cầu khai thác nguyên liệu thô. Cốt thép sử dụng cho bê tông chịu lực, dây điện, đinh và ống kim loại làm từ phế liệu.

NHÓM3:VẬTLIỆUBỀNVỮNG 2.VỎBAOCHE: 2.1.Kính kiểm soát bức xạ mặt trời ( Solar Control glass) - Loại kính này có thể loại bỏ bức xạ mặt trời như tia UV hay tia cực tím có hại cho sức khỏe. Bên cạnh đó giúp tiết kiệm lên đến 55% chi phí điện cho hệ thống điều hòa giúp nâng cao sức khỏe người sử dụng, giảm khả năng ô nhiễm môi trường và giúp kiểm soát độ chói từ ánh sáng mặt trời chiếu vào nhà. - Ngoài ra nó còn có thể gia công cường lực để tăng độ an toàn khi sử dụng, có thể làm kính hộp Solar Control hoặc ghép dán lại với nhau tăng hiệu quả cách âm cách nhiệt.

2.2.Gạch không nung: Tường ngoại thất dùng gạch không nung với những ưu điểm vượt trội than thiện môi trường và tính bền vững như đã kể ở trên.

là độ ẩm ít hơn, chỉ khoảng 20%, so với gỗ nguyên sinh là khoảng 60% đến 70%. Độ ẩm thấp hơn cũng có nghĩa là độ bền sản phẩm cao hơn. Với việc tái chế gỗ, có thể giảm chi phí nguyên liệu thô cũng như chi phí vận hành. Vậtliệuchovỏbaoche 2.4. Trồng cây dây leo bám tường: - Giàn dây leo giúp giảm bớp hấp thụ nhiệt lên bề mặt các sàn, các mặt đứng.

2.3. Gỗ Tái chế Sử dụng tường lam chắn nắng bằng gỗ tái chế. - Gỗ tái chế có ưu điểm

NHÓM3:VẬTLIỆUBỀNVỮNG 3.CỬASỔ,CỬAĐI 3.1. Khung cửa gỗ công nghiệp: - Cửa gỗ công nghiệp là sản phẩm được tạo thành từ cốt gỗ công nghiệp và được phủ lên bề mặt một lớp sơn hoặc một lớp gỗ veneer, laminate, melamin…Đặc điểm của loại cửa gỗ này là có độ ổn định cao và ít biến dạng dưới tác động của thời tiết. 3.2. Thượng song hạ bản: có những khe hở phí trên cửa và phía dưới vách để lưu thông không khí. • Thiết kế bằng các thanh gỗ song song • Các thanh gỗ định hưỡng dòng chảy của không khí lưu thông • Các thanh gỗ có khả năng di động, linh hoạt trong kết hợp với các thiết bị điện lạnh 3.3.Gỗ nhựa composite - là một loại nguyên liệu tổng hợp, gồm 2 thành phần chính là gỗ keo nghiền mịn trộn với nhựa. Sản phẩm được làm từ nhựa gỗ thân thiện môi trường và tốn ít chi phí bảo trì hơn sản phẩm được làm từ gỗ tự nhiên. Có thể dùng phế liệu nhựa để tái chế làm loại vật liệu này. - Cửa gỗ nhựa composite có những ưu điểm vượt trội như: + Khả năng chống nước tuyệt đối + Không bị cong vênh, mối mọt + Trọng lượng cửa nhẹ, giảm khả năng xệ cánh sau thời gian dài sử dụng. + Khả năng cách âm, cách nhiệt tốt, cửa đóng mở êm + Sản phẩm không chứa những chất độc hại cho sức khỏe và môi trường + Dễ dàng lắp đặt và vệ sinh... 3.4.Cửa đi và cửa sổ kính khung -nhôm:Dùng kính kiểm soát bức xạ mặt trời (Solar control) như đã nói trên, khung nhôm sơn tĩnh điện đen để tạo điểm nhấn về mặt thẩm mỹ.

được các nhược điểm như không chứa những chất độc hại, thân thiện môi trường, không biến dạng khi gặp nước, khó bắt lửa, không nứt tách. 5.MÁI Mái bằng - Mái bằng không ốp lát chỉ để bê tông trần, vì mái 2 lớp với độ dày lớn nên dùng bê tông nhẹ để thi công. - Bê tông nhẹ: Bê tông nhẹ có nhiều ưu điểm vượt trội hơn bê tông thường như trọng lượng nhẹ, giảm áp lực công trình, trung bình cứ mỗi 1m2 sàn bê tông nhẹ sẽ nhẹ hơn 5 7 kg cho với sàn truyền thống, có tính năng chống nóng, chống ồn và tiết kiệm thời gian thi -công. Lớp chống thấm Sikalastic: Sikalastic-560 là vật liệu chống thấm dạng lỏng thân thiện môi trường được ứng dụng cho giải pháp chống thấm sika cho sàn mái dựa trên công nghệ CET. Sikalastic-560 là sản phẩm lỏng gốc nước, một thành phần có thể thi công nguội tạo thành màng chống thấm có tính đàn hồi cao và kháng UV. Có tính năng đặc biệt như: + Giảm chi phí nhờ gia hạn vòng đời của sàn mái hỏng + Tạo lớp phủ phản xạ tránh thất thoát năng lượng do đó giảm chi phí làm lạnh + Kháng UV , thời tiết và sự chuyển màu vàng + Tính đàn hồi cao và hàn gắn vết nứt + Không độc hại và lớp phủ gốc nước đạt yêu cầu VOC + Có tính bám dính rất tốt trên mặt nền rỗ hoặc kín + Màng chống thấm không vết nối + Hơi nước có thể thoát ra

4.LÁTSÀN Gỗ lát sàn công nghiệp Khả năng chống mối mọt cao, chất lượng gỗ ổn định, khắc phục được nhược điểm nặng, dễ cong, vênh của gỗ tự nhiên, nên có thể dùng thay thế gỗ tự nhiên mà không làm mất tính thẩm mỹ. - Mặt khác, trong những năm qua, qua nhiều lần nghiên cứu và cải tiến công nghệ, gỗ CN đã khắc phục

NHÓM3:VẬTLIỆUBỀNVỮNG

NHÓM3:VẬTLIỆUBỀNVỮNG 6.VẬTDỤNGNỘITHẤT Thiết bị vật dung - nội thất được làm bằng gỗ tái chế và các nguồn gỗ bền vững. Sử dụng lại hoặc tái chế lại phế liệu và để sản xuất các vật dụng nội thất. - Vật liệu trang trí từ và , những vật liệu tái chế này có thể sản xuất thành sản phẩm chất lượng tốt và bền vững, tuổi thọ cao.

NHÓM4:SỬDỤNGNƯỚCHIỆUQUẢ 1.TÁISỬDỤNGNƯỚC 1.1. Hệ thống thu gom nước mưa: - Có thể được phân loại theo yêu cầu chất lượng nước sử dụng cụ thể như sau: + Yêu cầu chất lượng nước khong cao (dùng cho xối rửa tưới cây,...) + Yêu cầu chất lượng nước cao (dùng cho ăn uống và sinh hoạt) =>Hộ gia đình sử dụng hàng ngày nên cần sử dụng hệ thống giải pháp thu gom nước mưa chất lượng cao. - Nhìn chung, hệ thống thu gom nước mưa đầy đủ thường bao gồm các công đoạn: thu nước mưa (mái nhà, máng xối), truyền dẫn nước mưa (hệ thống ống) làm sạch nước mưa (thiết bị bỏ nước đầu trận mưa, lướ lược,...), chứa nước mưa (bể chứa, lu kiệu,...), xử lí nước mưa (lọc, khử trùng) - Mở rộng: Cải tiến hệ thống thu nước mưa Sử dụng hệ thống thu gom nước mưa có bao gồm 2 buồn chứ nước và 1 bồn trung chuyển. - Giúp linh hoạt kết hợp việc sử dụng nước mưa và nước máy nhờ vào thiết kế cải tiến của bồn trung chuyển và van phao. - Công trình sử dụng nước mưa để sinh hoạt và ăn uống nhưng khi sử dụng hết nước mưa lưu trữ hệ thống sẽ tự động chuyển sang sử dụng nước máy.WCWCWCWCWCWC THUNƯỚCMƯA GAINCẤPNƯỚC BỂTHUNƯỚCMƯA TƯỚITIÊU CHÚTHÍCH

NHÓM4:SỬDỤNGNƯỚCHIỆUQUẢ 1.TÁISỬDỤNGNƯỚC 1.2. Hệ thống nước thải kép - Sử dụng công nghệ xử lý nước thải Jokaso. Đây là phương pháp chủ yếu dùng vi sinh vật để phân giải chất thải. Áp dụng đồng thời các nguyên tắc vật lý và xử lý kép nước thải nhà vệ sinh, nước thải sinh hoạt cùng lúc. - Lắp bể Jokaso kép: Đây là loại bể ưu việt khi có thể làm sạch tất cả các loại nước thải sinh hoạt (nhà vệ sinh, nhà tắm, giặt giũ, nấu ăn...). - Lợi ích của việc lắp đặt công nghệ Jokaso: + Không sử dụng hóa chất, thân thiện với môi trường + Thiết kế lắp đặt đơn giản, độ bền cáo, dễ dàng vận hành + Nước thải đầu ra đảm bảo đạt quy chuẩn (QCVN 14:1008) + Hệ thống vận hành không phát ra tiếng ồn góp phần đảm bảo chất lượng cuộc sống. + Nước thải sau khi xử lý có thế dùng cho các hoạt động tái chế khác nhau. Các phẩmsản sau xử lý có thể được sử dụng làm khí sinh học, vật liệu composite, gạch nhẹ, - sản xuất phân bón hoặc xi măng...

NHÓM4:SỬDỤNGNƯỚCHIỆUQUẢ 2.SÂNVƯỜNSỬDỤNGNƯỚCHIỆUQUẢ 2.1. Hệ thống tưới nước nhỏ giọt - Tưới nước đến từng gốc cây, thích hợp tưới cho cây lớn trong vườn và vườn trên mái. Tiết kiệm được tối đa lượng nước, có thể áp dụng cho nhiều loại vườn, cho phí hợp lý. Nhược điểm là không làm mát được cho lá và thân cây 2.2. Hệ thống tưới phun sương: - Phun ra tia nước mạnh thành màn sương mòng, tạo môi trường ẩm cho cây sinh trưởng. Thường ứng dụng cho vườn treo, giàn dây leo, làm mát không khí. Nước phun mịn, tốn ít nước. - Nhược điểm là nước dễ bay hơi, rễ cây ít hấp thụ được nước 3.LỰACHỌNCÂYTRỒNG 3.1. Cây Trầu Bà có nhiều loại làm cảnh quen thuộc như trầu bà vàng, trầu bà xanh, trầu bà cẩm thạch, trầu bà sữa, trầu bà leo cột, … Giống cây này được coi là cây cảnh lọc không khí tốt nhất, bởi theo nghiên cứu của NASA, cây có thể hấp thu benzene, fomandehit, tricloetylen, toluene và xylen. Đặc biệt, Trầu Bà là cây dây leo, sức sống mạnh mẽ, trồng trong đất hay trong nước cũng đều sinh trưởng tốt, trong chậu treo hay chậu để bàn đều được. 3.2. Cây Lưỡi Hổ: Loại cây này phát triển mạnh trong ánh sáng thấp. Vào ban đêm, nó hấp thụ CO2 và giải phóng oxy (một sự đảo ngược của quá trình tổng hợp oxy của hầu hết các cây). Hãy đặt một chậu gồm 2 cây trong phòng ngủ của bạn để tăng lượng oxi trong khi bạn ngủ. Ngoài ra, bạn cũng nên đặt cây này trong phòng có nhiều máy tính, cây lưỡi hổ có thể hấp thụ formaldehyde, benzene trong không khí.

3.3.Cây Lan Ý: không chỉ mang vẻ quý phái sang trọng của những bông hoa trắng muốt. Lan Ý còn là cây lọc không khí cực tốt, phù hợp trồng trong nhà, văn phòng hay cơ quan làm việc. Những khí độc bay ra từ hóa chất dùng trong bột giặt, hồ dán, nhựa, sơn, vật liệu dán tường, lớp cách nhiệt hay trichloroethylene dùng trong quá trình giặt khô đều được cây này lọc sạch.

NHÓM5:CHẤTLƯỢNGMÔITRƯỜNGTRONGNHÀ 1.THÔNGGIÓTỰNHIÊN - Công trình chủ yếu đón gió mùa Tây Nam và một ít gió mùa Đông Nam do bị các công trình cản trở. - Thông gió xuyên phòng: tầng 1 để trống không có vách ngăn, đảm bảo không khí được lưu thông - Để các tầng trên có thể thông gió, thiết kế tạo thông tầng để thông gió đối lưu xuyên suốt từ dưới lên trên. Thônggióngoàicôngtrình Thônggiótrongcôngtrình

NHÓM5:CHẤTLƯỢNGMÔITRƯỜNGTRONGNHÀ 2.HẠNCHẾPHÁTTHẢIVOC: 2.1. Sơn và lớp phủ: - Sơn ngoại thất Toa Shield: Sản phầm này là dòng sản phẩm với“xanh”, các chứng nhận hàm lượng VOC rất thấp và không chứa phoócmôn. Công nghệ bảo vệ 3 lớp Titanium, cùng với công nghệ TiPureTM và khả năng Tự làm sạch giúp sản phẩm này không chỉ thân thiện với môi trường mà còn vượt trội trong việc bảo vệ công trình từ dân dụng đến công nghiệp. - Sơn nước nội thất SuperShield DuraClean A+: .Là loại sơn siêu bóng được chế tạo từ nhựa Acrylic nguyên chất, mang đến tính năng dễ lau chùi nên không lưu lại vết bẩn sau khi lau. Công nghệ Air Detoxify giúp chuyển hóa Phoóc-môn trong không khí thành hơi nước mang đến chất lượng không khí trong nhà trong lành nhất, mùi rất nhẹ. Hơn nữa, màng sơn có khả năng kháng khuẩn lâu dài với công nghệ Microban mà không gây tác hại cho con người. Khả năng chống nấm mốc tuyệt vời với hàm lượng chất hữu cơ bay hơi (V.O.C) gần như bằng không.

2.2. Chất kết dính và chống thấm - Là chất kết dính công nghiệp có độ bền cao được sản xuất bằng Polymer biến đổi silic không mùi là độ ẩm. Nó có thể được tạo thành một hệ thống thành phần hoặc hai thành phần. Nó không bị nứt, vàng hoặc phấn khi tiếp xúc lâu dài với tia cực tím. Nó cũng hầu như không mùi với hàm lượng VOC thấp, không có dung môi và không có isocyanat.

NHÓM5:CHẤTLƯỢNGMÔITRƯỜNGTRONGNHÀ 3.CHIẾUSÁNGTỰNHIÊN: - Tỉ lệ chiếu sáng tầng 1: (57,46/99.4)x100% = 57.8% - Tỉ lệ chiếu sáng tầng 2: (52,67/117,5)x100% = 44.8% - Việc ứng dụng các hệ lam che nắng, ô văng, gạch hoa gió giúp cho công trình vừa giảm được lượng bức xạ mặt trời, vừa có thể thoải mái thông gió tự nhiên, đồng thời cung chấp chiếu sáng tự nhiên lên hầu khắp các không gian trong công trình

- Tỉ lệ chiếu sáng tầng 3: (47,27/117,5)x100% = 40.2% - Tỉ lệ chiếu sáng tầng 4: (52,94/117,5)x100% = 45.1% NHÓM5:CHẤTLƯỢNGMÔITRƯỜNGTRONGNHÀ 3.CHIẾUSÁNGTỰNHIÊN:

PHẦN3:KIẾNTHỨCVÀ KINHNGHIỆMQUAMÔNHỌC Qua 8 buổi được học với lượng kiến thức được thầy truyền dạy cùng với làm bài tập thu hoạch giúp e có cái nhìn đúng đắn hơn về “Kiến trúc bền vững”. Giờ đây em còn không hiểu không rõ ràng về “Kiến trúc và môi trường” chỉ là trồng cây trên mái, trồng cây xanh thật nhiều trong công trình là được. Môn học giúp cho em hiểu rõ được các khái niệm, về các khía cạnh giữa kiến trúc và môi trường và mối liên hệ to lớn xoay quanh một trình xây dựng lên cần phải đáp ứng những tiêu chuẩn qui chuẩn gì, giúp người sử dụng cảm thấy thoải mái và to lớn hơn là bảo vệ môi trường trong xã hội phát triển ngành xây dựng chiếm tỉ lệ lớn trong việc tàn phá môi trường. Vì vậy, môn học Kiến trúc và môi trường được đưa vào giảng dạy là môn học vô cùng thiết thực giúp chúng em những người kiến trúc sư tương lai nhìn rõ vấn đề và đưa ra giải pháp tối ưu nhất cho công trình và môi trường sống chứ không chỉ dừng lại tạo không gian mà còn phải quan tâm sâu sắc đến môi trường xung quanh. Tuy em đã cố gắng nghiên cứu thực hiện bài thu hoạch hết sức có thể nhưng cũng không thể tránh những hạn chế và sai sót trong quá trình nghiên cứu và thực hiện. Mong được Thầy có thể góp ý nhận xét để em có thể tốt hơn và cải thiện nhiều hơn nữa. Em cảm ơn Thầy đã đọc bài thu hoạch của em!

- https://kienviet.net/ -

- https://vi.wikipedia.org/ - https://3ce.vn/san-xuat-va-tai-che-thep/ TÀILIỆUKHAMKHẢO

san/--dep---behttps://betongtrangtribm.vn/san-pham/be-tong-mai-chat-lam-cung--mathttps://sikavietnam.vn/xem-san-pham/91-sikalastic-560.htmlhttps://www.toagroup.com.vn/https://sanvuontrucxinh.com/tong-hop-cac-loai-co-trong-san-vuon--duoc-su-dung-nhieu-nhathttps://vuonuomsomot.com/cay-bui-cong-trinh-canh-quan/https://vatlieuxaydung.org.vn/vlxd-hoan-thien/vlxd-hoan-thien-mat-vat-lieu-san-than-thien-voi-moi-truong-12798.htm

Turn static files into dynamic content formats.

Create a flipbook
Issuu converts static files into: digital portfolios, online yearbooks, online catalogs, digital photo albums and more. Sign up and create your flipbook.