Architecture Portfolio | Taryn Tsujimoto

Page 1

TARYN TSUJIMOTO

Portfolio

2022

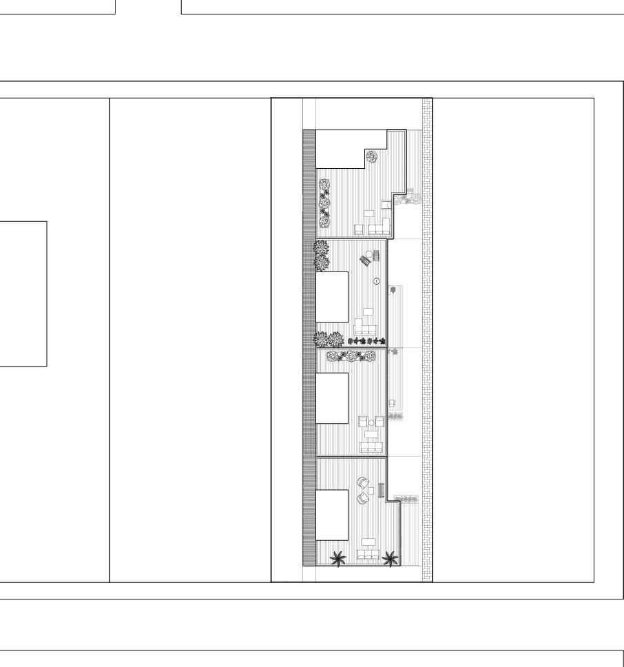
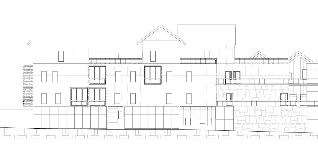
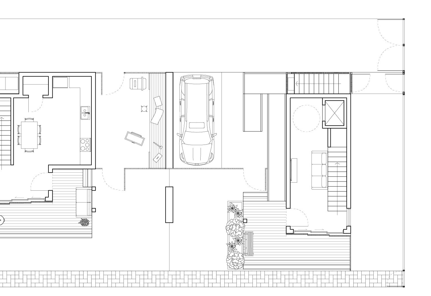
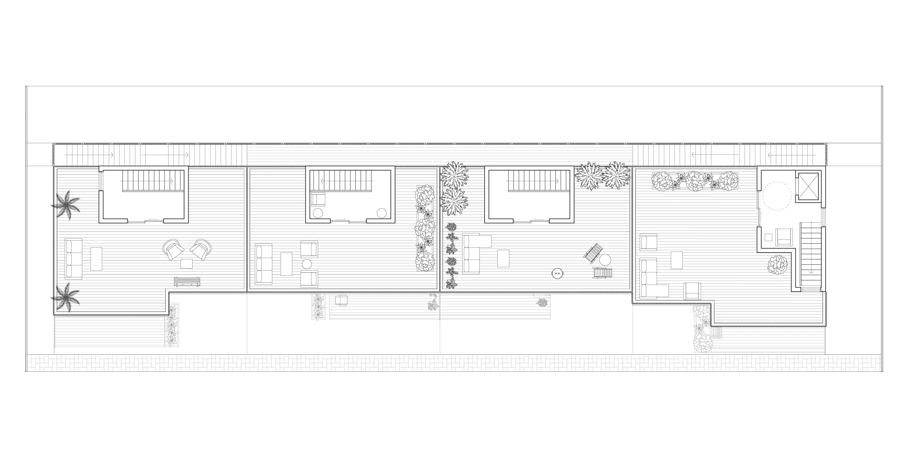
ROW HOUSE

EXPANSION NIGHTSTAND LANDBACK SERENITY GARDENS

3
RESUME 4 22 34 38 48 67
4

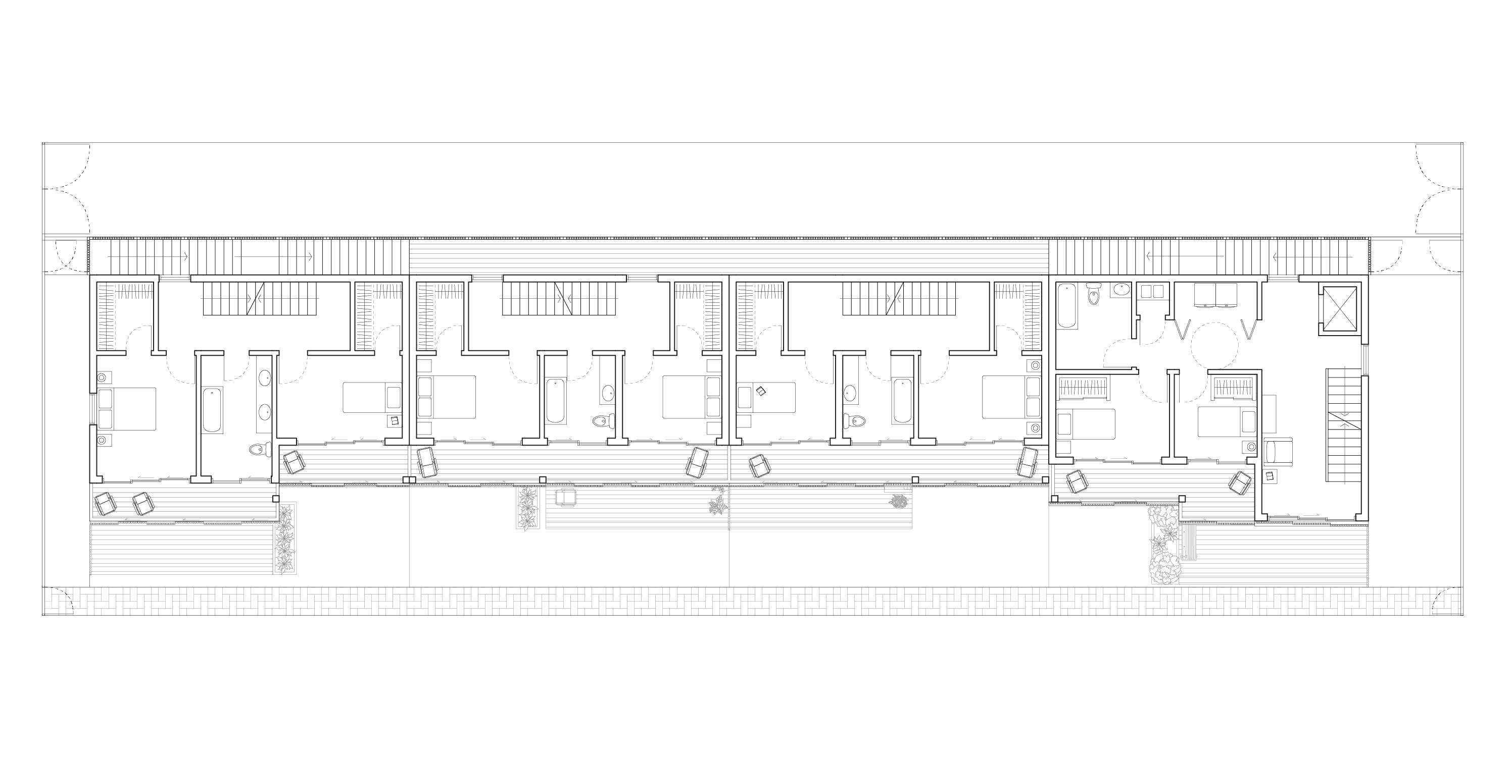
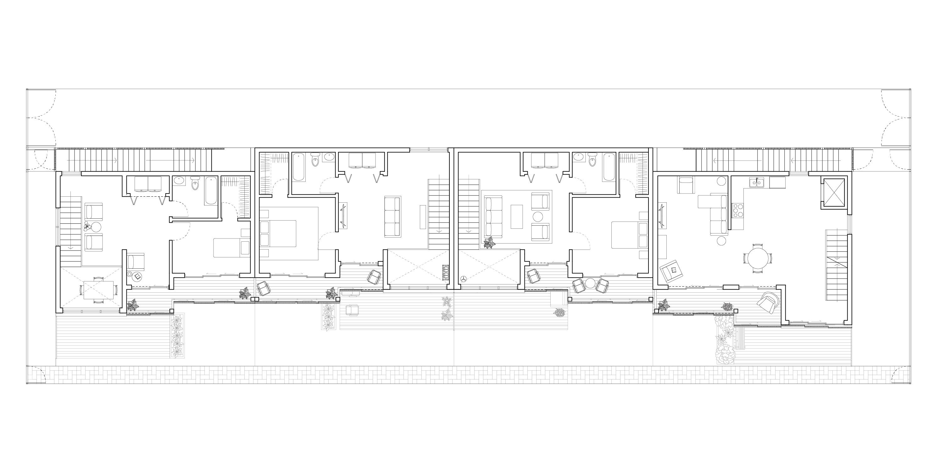
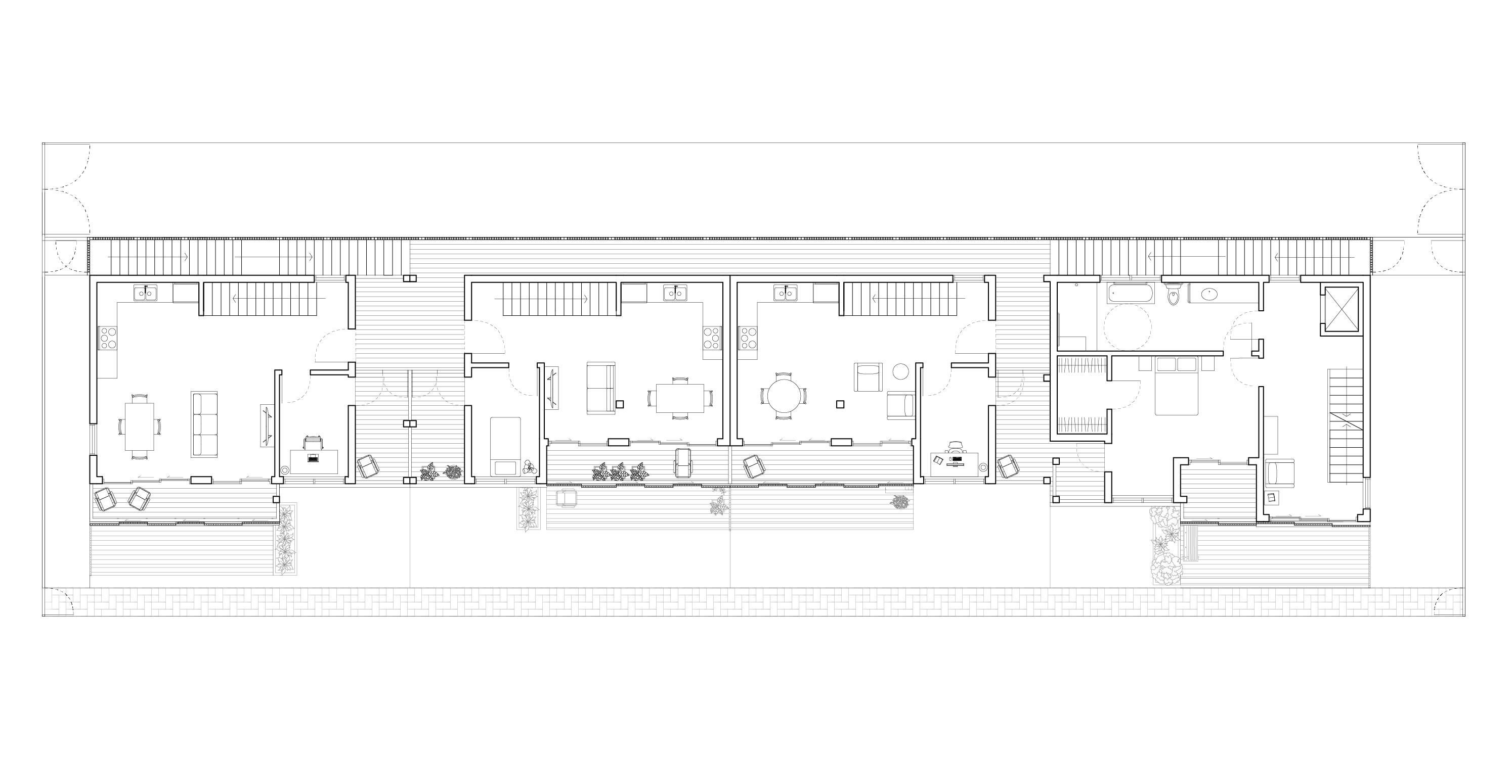
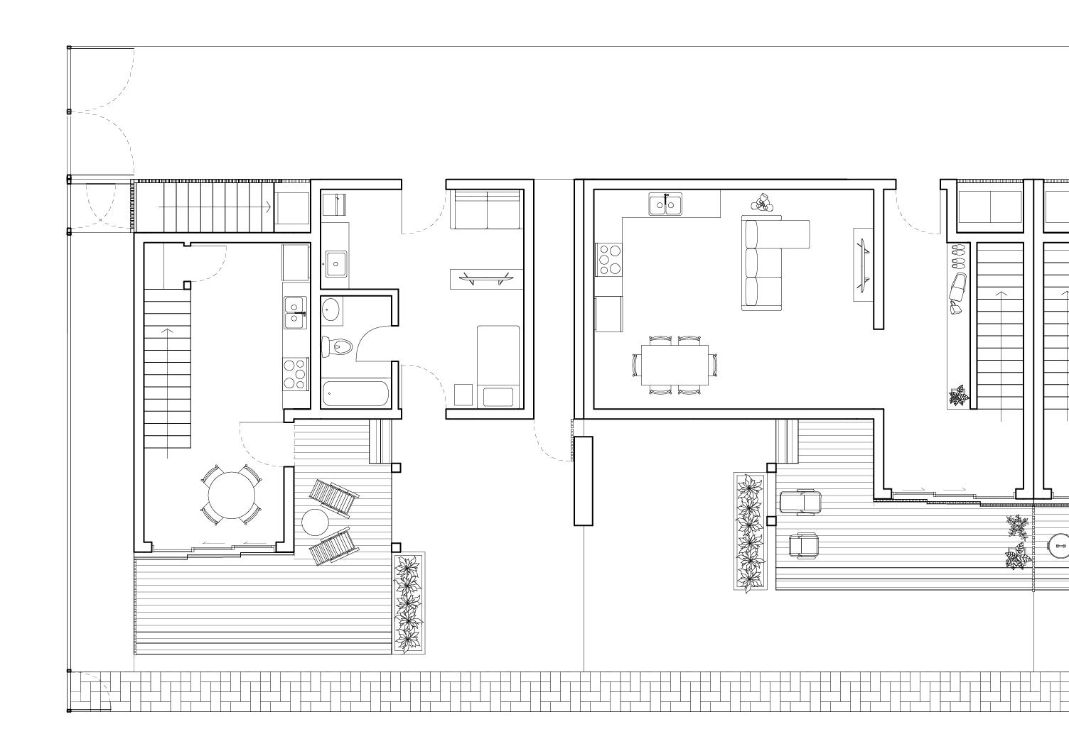
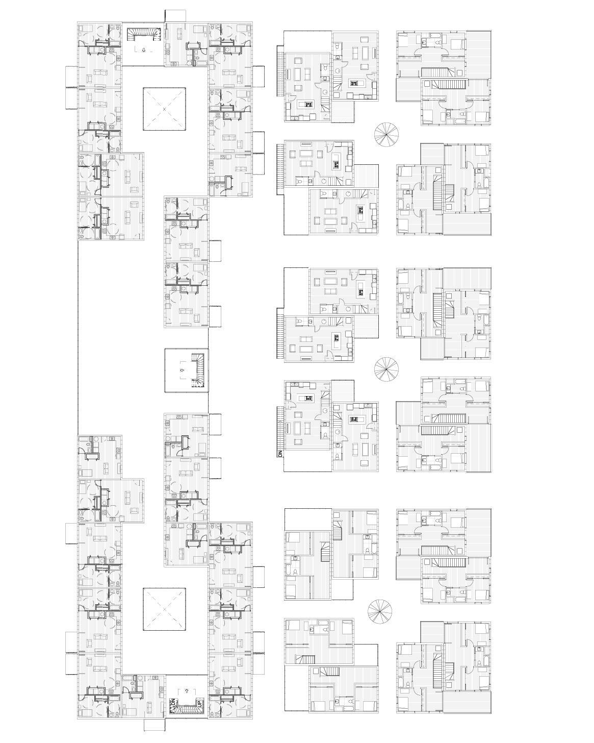
ROW HOUSE

DESIGN VI REIMAGINING THE ROW HOUSE INSTRUCTOR: PIERGIANNA MAZZOCCA SPRING 2021

As Austin’s population increases and the downtown area continues to densify, inhabitants should still be able to have a sense of community with the options to maintain a private life in the home and to experience nature in a closer proximity.

The sense of community in an infill condition necessitates dedicated area for shared spaces such as alleys, walkways, balconies, and gardens which facilitate interactions between neighbors. Approximately half of the lot area is liberated from inhabitable space and is dedicated to large green spaces to maintain nature and gardens within the city. As a result, the top floors respond to the dedicated ground conditions to allow light to penetrate through this narrow space to prolong the life of these gardens.

Additionally, the top floors maximize balcony spaces to provide more private opportunities for outside experience per dwelling, and the top dwellings access a shared roof terrace to compensate for their lack of occupancy on the ground green spaces.

5

4TH STREET

6 SITE PLAN

FORMAL DEVELOPMENT

Green Space Parking

Dwelling Footprint

7
ONION STREET

GROUND LEVEL

POTENTIAL FUTURE GROUND LEVEL

8
9
10 LEVEL 2 LEVEL 3
11 4TH ST. SECTION
12 ALLEY SECTION

ROOF TERRACE

13 LEVEL 4
14 SITE SECTION
15

EAST ELEVATION

WEST ELEVATION

16
17

OPERABLE SHADING ON EAST FACADE

18

ALLEY ELEVATION

ST. ELEVATION

19 4TH
20
21
22

EXPANSION

As the population continues to grow, cities become taller and more densely clustered, so people are forced to live in high rise apartments or condos are considered the most ideal locations within close proximity to work and city life. They initially moved into these apartments that not only fit their needs at that time but also because they had limited choices of available homes. Over time, they need to expand their apartments as their families grow and needs change. Without having to completely uproot their lives far out of the city, they have the option to expand their current living space off their balconies and into the air.

Air rights laws in the future have relaxed allowing these cities to conitine to grow, so that more air space can be utilized as land space become more and more limited. People can implement a new building technique using wood members that slide and interlock with each other and are lightweight enough to expand and cantilever off of the buildings. This technique allows people to build expanson that are more suited to their changing lifestyles.

23
DESIGN IV: SPECULATIVE DISCRETE FUTURES INSTRUCTORS: KEVIN SULLIVAN+SUHASH PATEL SPRING 2020
24
25

CONNECTIONS

H G K L J D C 6” 4” 4” 4” 8’ 1’4” 1’4” 1’ 3’8” 2’8” 1’4” 6”3’ A B E F I 6” 26 FACE
UNIT CONNECTIONS A | B C | D G | G G | F’ B | A D | C E | H H | E’ E | F G | H I | G L | H B | A’ F | E H | G J | A B | H A | B’

A_01 | Multi-Floor Condition

Total Sq. Ft.: 2,591

Number of Rooms: 2-3 Total Members Used: 2,291

CORNER AGGREGATIONS

A_05 | Balcony Condition

Total Sq. Ft.: 312

Number of Rooms: 1 Total Members Used: 312

A_09 | Extra Room Condition

Total Sq. Ft.: 872

Number of Rooms: 1 Total Members Used: 872

B_02 | Balcony Condition

Total Sq. Ft.: 523

Number of Rooms: 1-2 Total Members Used: 530

SURFACE AGGREGATIONS

B_03 | Multi-Floor Condition

Total Sq. Ft.: 1,828

Number of Rooms: 4-5

Total Members Used: 1,747

B_09 | Exterior Stairs Condition

Total Members Used: 647

27
28
29 FLOOR PLAN
30
31
32
33
34

NIGHTSTAND

The primary design objective for this project was to creatively express the structural properties of plywood. We chose to curve the wood by scoring the edges of the table. To push the design and structural capabilities further, we incorporated two 180 degree curves to include a shelf within the nightstand, thus creating a more cohesive design

After several trial and error experiments, we discovered that the wood bends with more ease while damp and results in less cracking, and only glue was necessary to hold the nightstand together.

35
MATERIALS AND METHODS OF BUILDING CONSTRUCTION INSTRUCTOR: DR. JAMES T. O’CONNOR WITH CESAR GONZALEZ, EVE WANG, ARIK LIANE FALL 2021

DIMENSIONS

RADII OF CURVED EDGES

36
37 COMPONENT A COMPONENT B
38

LANDBACK

FOOD SOVEREIGNTY AND LAND REPARATIONS IN OWENS VALLEY

ADVANCED DESIGN - WATER FUTURES

This Proposal is a future that rights the wrongs of the Owens Valley Land Exchange. We imagine a future where the Paiute have regained full right to water and land in the Owens Valley. As the first peoples of the land, Paiute people spent years adapting to the region, developing irrigation systems that listened to nature. Thus, it is key to givethem full rights to water in an effort to combat the ecological and social problems created through colonization.

This project posits that modern Paiute have reconstructed ancient irrigation techniques to sustain new generations that rival their own vege-cultures of the past. The result is an affluence of benefits for the Owens Valley and beyond. This future has restored soil quality to pre-colonized levels, reducing the pollution surrounding the reservations’ water supply. The future has increased the establisment of compost and reduced harmful fertilizer usage. The future includes permacultre gardens and vegetable greenhouses and farmer’s markets. The future is sustainable agriculture and healthy families. The future establishes a model for food sovereignty throughout Central and Southern California. As a result of full water autonomy, the Paiute manage to heal much of the valley, even mitigating the dust emitted by Owens Lake.

39

METHODS OF RESERVATION LAND DISTRIBUTION IN CALIFORNIA

ISOLATION

Owens Valley Paiute: Bishop, Lone Pine, Big Pine, and Fort Independence

CHECKERBOARDING

Agua Caliente and Torres Martinez

CARVING/FORCED DISPLACEMENT

La Jolla, Santa Ysabel, Pauma and Yuima, etc.

40

PITANA PATU: PRECEDENT FOR RESTORATION

Pitana Patu is the name for what is now known as the area around the city of Bishop, California and the accompanying Bishop Paiute Indian Reservation. The people living at Pitana Patu reserved large plots of land for growing and harvesting their staple food - Nahavita and Tupusi, the wild hyacinth and the yellow nutsedge, respectively. Paiute designed irrigation ditches and dams, diverting the water flow of stream and creeks to slowly supply the needed water for each tribe. Paiute often harvested certain plots as aform of fallowing, to allow soil and clops to replenish health.

BeforeAfter After

BEFORE RESTORATION AFTER RESTORATION

41

NORTHERN PLOTS

Northern Plots

Plots

SOUTHERN PLOTS

AGRICULTURAL FIELD

Southern
42

AGRICULTURAL SCHOOL | FLOOR PLAN

43
44 AGRICULTURAL SCHOOL | SECTION
45
46
47
48

SERENITY GARDENS

Due to the expansion of the UT Austin into the Blackland Neighborhood, tensions over the recent graduate student housing project tested their relationship. Serenity Gardens acts as a mediatior to bring the two entities together in an amiable coexistence by providing an inviting atmosphere, facilitating and mending the relationships between the two.

Townhouses along Leona blend the neighborhood’s Swedish wood frame style to the more institutional structure of UT, while the apartment building merges the communities together with public and retail spaces in the center of the site to foster interactions between people. Organizing the units into clusters around small, more private courtyards provide intimate spaces for neighbors to grow acquainted with and develop stronger relationships. Rain gardens in the courtyards provide a serene space and a passive cooling microclimate within the clusters. The grand, public courtyard in the apartments faces the UT Softball Stadium allowing for large gatherings to watch games, further facilitating interactions among residents.

49
COMPREHENSIVE DESIGN MEDICAL GRADUATE STUDENT HOUSING INSTRUCTOR: MICHAEL GARRISON WITH MARINA BOULTINGHOUSE SPRING 2022
50 SITE PLAN
51

GROUND LEVEL

52
53 FLOOR 2
54 FLOOR 3

NORTH ELEVATION

55 SECTION

EAST ELEVATION

WEST ELEVATION

56
57
58

LIVING WALL DETAIL

LIVING WALL GUTTER DETAIL

STOREFRONT HEAD DETAIL

STOREFRONT SILL DETAIL

WINDOW HEAD DETAIL

WINDOW SILL DETAIL

BALCONY HANDRAIL DETAIL

59
60

WINDOW HEAD DETAIL

WINDOW SILL DETAIL

TOWNHOUSE FOUNDATION DETAIL

GUTTER DETAIL

61
62
63
64
65

RESUME

66

TARYN S. TSUJIMOTO

ttsujimoto99@gmail.com

EDUCATION

The University of Texas at Austin - Bachelor of Architecture Expected graduation May 2024

- Bachelor of Science of Architectural Engineering Expected Graduation May 2024

- Business Foundations Minor

RELEVANT COURSEWORK

Architecture

- Comprehensive Studio, Architectural Details and Materials, Site Design, Energy Modeling and the Design Process

Engineering

- Advanced Structural Analysis, Reinforced Concrete Design, Materials and Methods of Building Construction, Building Environmental Systems

SKILLS

Architecture Rhinoceros 3D SketchUp

Revit AutoCAD

Enscape Lumion Grasshpper

Wasp Weaverbird

Vray Sefaira Laser Cutting Model Making Basic Woodworking

Graphics Illustrator Photoshop InDesign Lightroom

Acrobat Additional Microsoft Suite Excel MatLab Python

EXTRACURRICULAR

Student Mentor - Undergraduate Architecture Student Council Fall 2021

Provided guidance and knowledge to mentee in their first semester in the School of Architecture.

Vietnamese Student Association - Historian Officer Position Fall 2018 - Spring 2019 Took leadership role in an officer position, collaborated with other officers to organize and lead events, and provided mentorship to members.

ADDITIONAL EXPERIENCE

Starbucks - Barista May 2022 - Present

UTea Pho - Server

August 2019 - February 2021

Academic Outfitters

- Retail Sales Associate

June 2015 - August 2017

67

Turn static files into dynamic content formats.

Create a flipbook
Issuu converts static files into: digital portfolios, online yearbooks, online catalogs, digital photo albums and more. Sign up and create your flipbook.