Architecture Portfolio | Taryn Tsujimoto

Page 1

TSUJIMOTO 2024 Portfolio
TARYN
3 ROW HOUSE EXPANSION PUZZLE TABLE LANDBACK SERENITY GARDENS RESUME 4 22 34 43 52 71
4

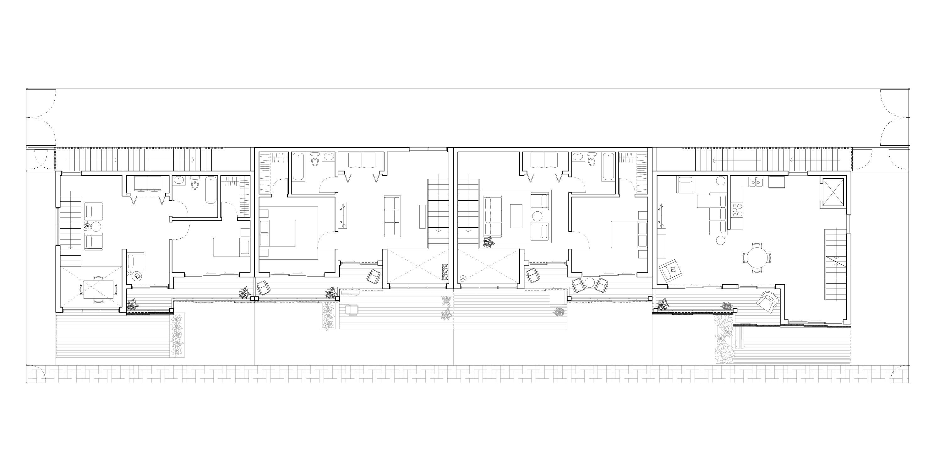
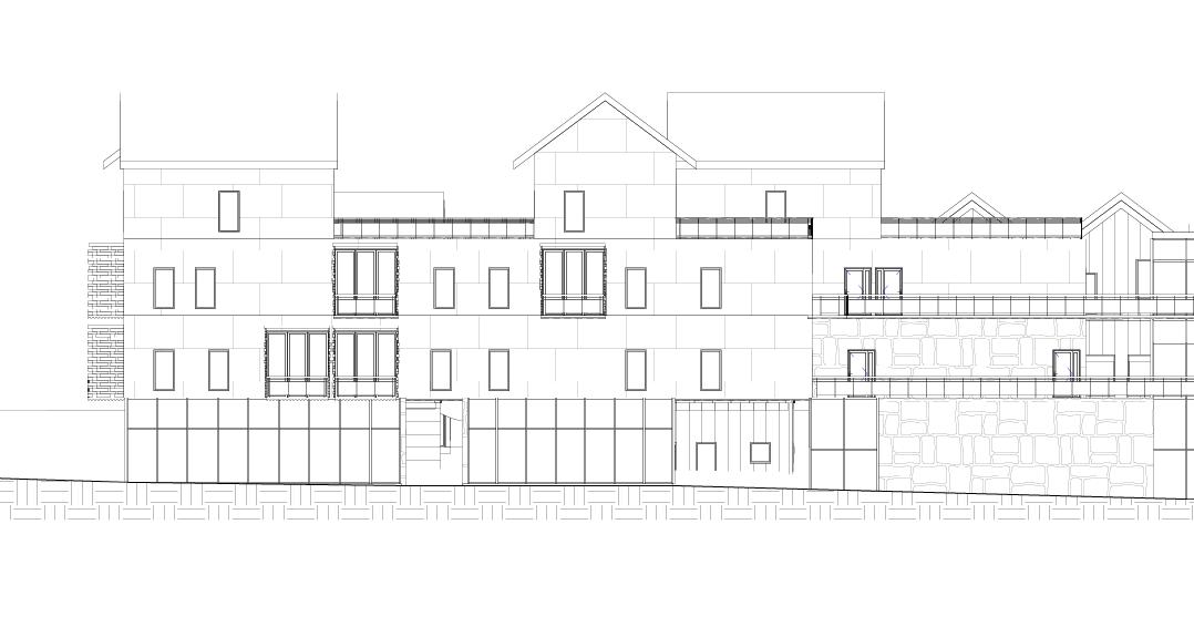
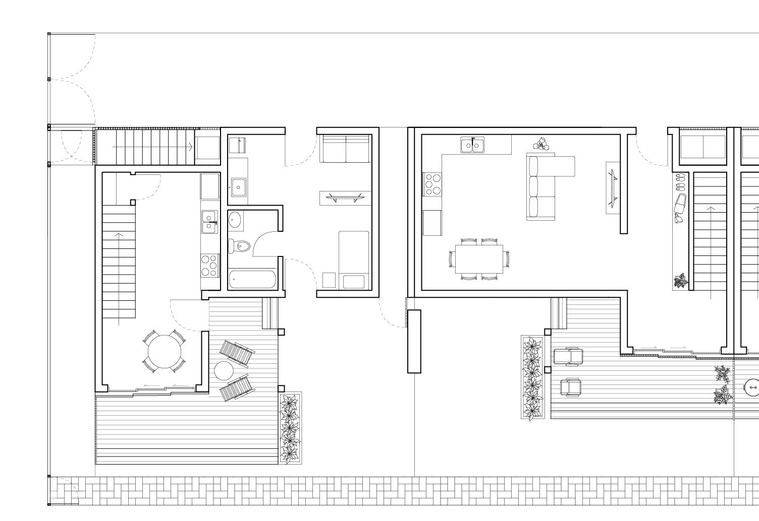
ROW HOUSE

DESIGN VI

REIMAGINING THE ROW HOUSE

INSTRUCTOR: PIERGIANNA MAZZOCCA

SPRING 2021

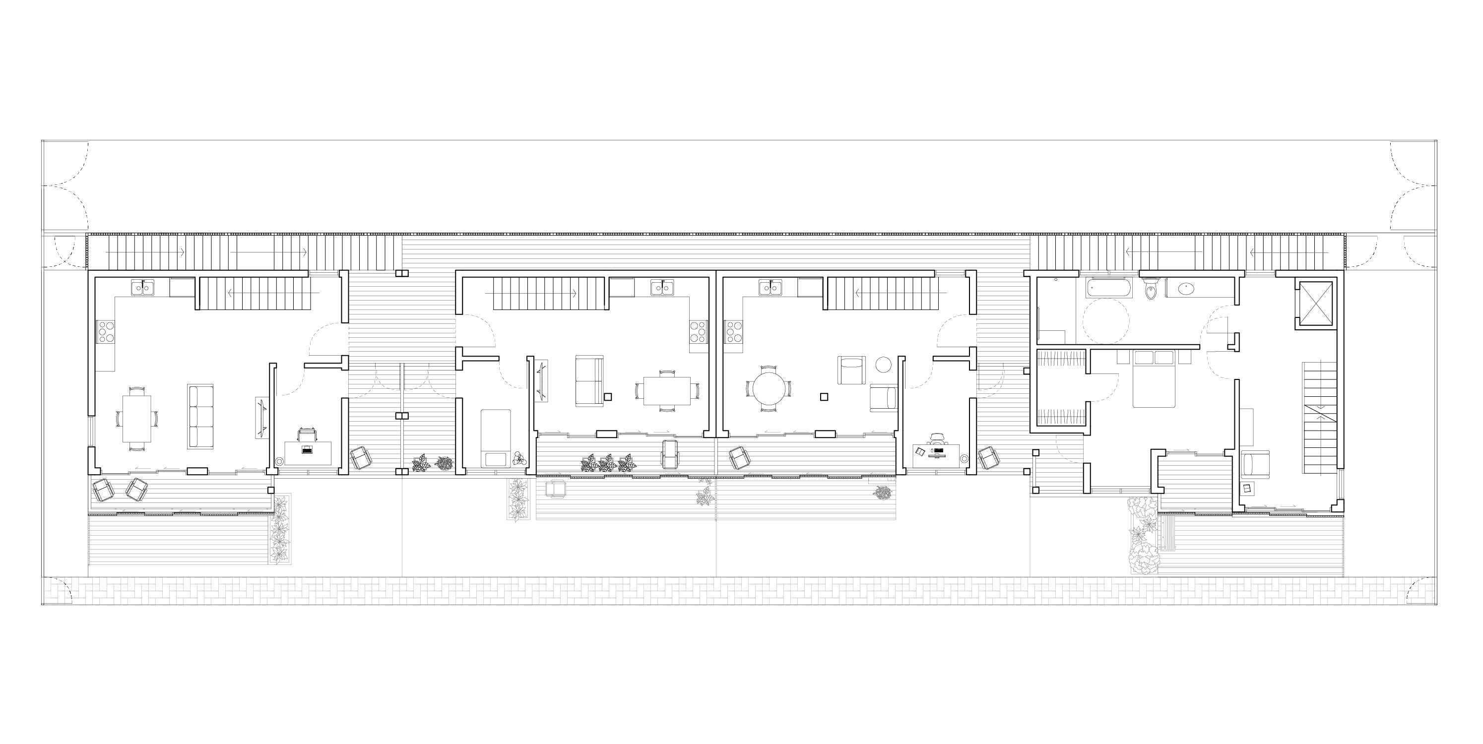
As Austin’s population increases and the downtown area continues to densify, inhabitants should still be able to have a sense of community with the options to maintain a private life in the home and to experience nature in a closer proximity.

The sense of community in an infill condition necessitates dedicated area for shared spaces such as alleys, walkways, balconies, and gardens which facilitate interactions between neighbors. Approximately half of the lot area is liberated from inhabitable space and is dedicated to large green spaces to maintain nature and gardens within the city. As a result, the top floors respond to the dedicated ground conditions to allow light to penetrate through this narrow space to prolong the life of these gardens.

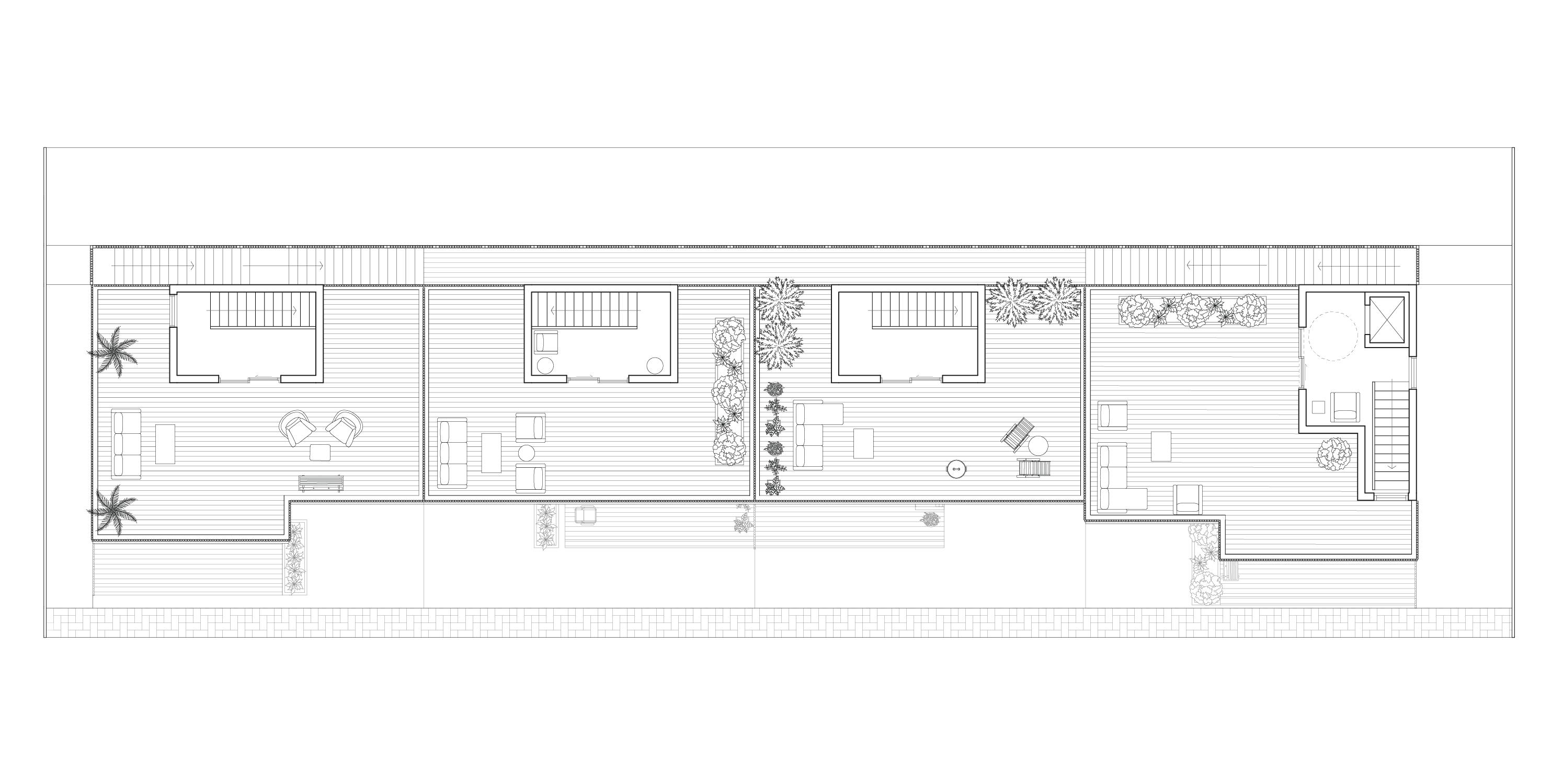
Additionally, the top floors maximize balcony spaces to provide more private opportunities for outside experience per dwelling, and the top dwellings access a shared roof terrace to compensate for their lack of occupancy on the ground green spaces.

5
6 SITE PLAN
4TH STREET

Dwelling Footprint

Parking

7
Green Space
ONION STREET FORMAL DEVELOPMENT

GROUND LEVEL

POTENTIAL FUTURE GROUND LEVEL

8
9
10
LEVEL 2 LEVEL 3
11 4TH ST. SECTION
12 ALLEY SECTION
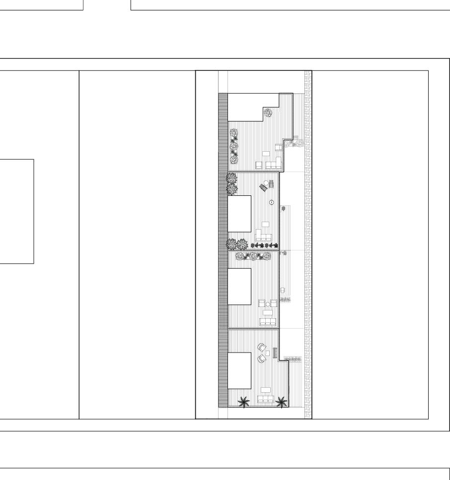
13 LEVEL 4
ROOF TERRACE
14
SITE SECTION
15
16
EAST ELEVATION WEST ELEVATION
17
18 OPERABLE SHADING ON EAST FACADE
19
4TH ST. ELEVATION ALLEY ELEVATION
20
21
22

EXPANSION

DESIGN IV: SPECULATIVE DISCRETE FUTURES

INSTRUCTORS: KEVIN SULLIVAN+SUHASH PATEL SPRING 2020

As the population continues to grow, cities become taller and more densely clustered, so people are forced to live in high rise apartments or condos are considered the most ideal locations within close proximity to work and city life. They initially moved into these apartments that not only fit their needs at that time but also because they had limited choices of available homes. Over time, they need to expand their apartments as their families grow and needs change. Without having to completely uproot their lives far out of the city, they have the option to expand their current living space off their balconies and into the air.

Air rights laws in the future have relaxed allowing these cities to conitine to grow, so that more air space can be utilized as land space become more and more limited. People can implement a new building technique using wood members that slide and interlock with each other and are lightweight enough to expand and cantilever off of the buildings. This technique allows people to build expanson that are more suited to their changing lifestyles.

23
24
25
H G K L J D C 6” 4” 4” 4” 8’ 1’4” 1’4” 1’ 3’8” 2’8” 1’4” 3’ 6” A B E F I 6” 26 FACE CONNECTIONS UNIT CONNECTIONS A | B C | D G | G G | F’ B | A D | C E | H H | E’ E | F G | H I | G L | H B | A’ F | E H | G J | A B | H A | B’

A_01 | Multi-Floor Condition

Total Sq. Ft.: 2,591

Number of Rooms: 2-3

Total Members Used: 2,291

CORNER AGGREGATIONS

A_05 | Balcony Condition

Total Sq. Ft.: 312

Number of Rooms: 1

Total Members Used: 312

A_09 | Extra Room Condition

Total Sq. Ft.: 872

Number of Rooms: 1

Total Members Used: 872

B_02 | Balcony Condition

Total Sq. Ft.: 523

Number of Rooms: 1-2

Total Members Used: 530

SURFACE AGGREGATIONS

B_03 | Multi-Floor Condition

Total Sq. Ft.: 1,828

Number of Rooms: 4-5

Total Members Used: 1,747

B_09 | Exterior Stairs Condition

Total Members Used: 647

27
28
29 FLOOR PLAN
30
31
32
33
34

PUZZLE TABLE

WOOD DESIGN

FURNITURE DESIGN

INSTRUCTOR: MARK MACEK FALL 2023

This furniture design is a minimal design which creatively expresses the properties of wood. This coffee table doubles as a working puzzle table consisting of two components: the coffee table surface and puzzle working surface. These two components nest into each other where the coffee table protects the puzzle surface in its primary position and can then pivot around a leg to reveal the puzzle surface. The coffee table component has an upper surface and a lower surface which serves the purpose for storage and puzzle box display.

Some considerations for this design consisted of common puzzle sizes, the point of pivot, rotation radius, space between puzzle and top surface, and the size limits of available materials.

35
36
PRIMARY POSITION

SECONDARY POSITION

37
38
PROCESS
39

2” MAPLE DOWEL CAP

7/16” HEX NUT

(7) 1/8” BENDING BIRCH PLY

7/16” THREADED ROD

2” MAPLE DOWEL

1/2” OPEN BALL BEARING

WASHER WASHER

(7) 1/8” BENDING BIRCH PLY

1/2” OPEN BALL BEARING

2” MAPLE DOWEL

(7) 1/8” BENDING BIRCH PLY

7/16” HEX NUT

2” MAPLE DOWEL

40
PIVOTING MECHANISM DESIGN
41
42

LANDBACK

FOOD SOVEREIGNTY AND LAND REPARATIONS IN OWENS VALLEY

ADVANCED DESIGN - WATER FUTURES

INSTRUCTOR: STEPHANIE

FALL 2021

This Proposal is a future that rights the wrongs of the Owens Valley Land Exchange. We imagine a future where the Paiute have regained full right to water and land in the Owens Valley. As the first peoples of the land, Paiute people spent years adapting to the region, developing irrigation systems that listened to nature. Thus, it is key to givethem full rights to water in an effort to combat the ecological and social problems created through colonization.

This project posits that modern Paiute have reconstructed ancient irrigation techniques to sustain new generations that rival their own vege-cultures of the past. The result is an affluence of benefits for the Owens Valley and beyond. This future has restored soil quality to pre-colonized levels, reducing the pollution surrounding the reservations’ water supply. The future has increased the establisment of compost and reduced harmful fertilizer usage. The future includes permacultre gardens and vegetable greenhouses and farmer’s markets. The future is sustainable agriculture and healthy families. The future establishes a model for food sovereignty throughout Central and Southern California. As a result of full water autonomy, the Paiute manage to heal much of the valley, even mitigating the dust emitted by Owens Lake.

43

METHODS OF RESERVATION LAND DISTRIBUTION IN CALIFORNIA

ISOLATION

Owens Valley Paiute: Bishop, Lone Pine, Big Pine, and Fort Independence

CHECKERBOARDING

Agua Caliente and Torres Martinez

CARVING/FORCED DISPLACEMENT

La Jolla, Santa Ysabel, Pauma and Yuima, etc.

44

PITANA PATU: PRECEDENT FOR RESTORATION

Pitana Patu is the name for what is now known as the area around the city of Bishop, California and the accompanying Bishop Paiute Indian Reservation. The people living at Pitana Patu reserved large plots of land for growing and harvesting their staple food - Nahavita and Tupusi, the wild hyacinth and the yellow nutsedge, respectively. Paiute designed irrigation ditches and dams, diverting the water flow of stream and creeks to slowly supply the needed water for each tribe. Paiute often harvested certain plots as aform of fallowing, to allow soil and clops to replenish health.

After Before After

AFTER RESTORATION

45
BEFORE RESTORATION

NORTHERN PLOTS

AGRICULTURAL FIELD

SOUTHERN PLOTS

Northern Plots

Southern Plots

46
47
AGRICULTURAL SCHOOL | FLOOR PLAN
48
SCHOOL | SECTION
AGRICULTURAL
49
50
51
52

SERENITY GARDENS

COMPREHENSIVE DESIGN

MEDICAL GRADUATE STUDENT HOUSING

INSTRUCTOR: MICHAEL GARRISON

WITH MARINA BOULTINGHOUSE SPRING 2022

Due to the expansion of the UT Austin into the Blackland Neighborhood, tensions over the recent graduate student housing project tested their relationship. Serenity Gardens acts as a mediatior to bring the two entities together in an amiable coexistence by providing an inviting atmosphere, facilitating and mending the relationships between the two.

Townhouses along Leona blend the neighborhood’s Swedish wood frame style to the more institutional structure of UT, while the apartment building merges the communities together with public and retail spaces in the center of the site to foster interactions between people. Organizing the units into clusters around small, more private courtyards provide intimate spaces for neighbors to grow acquainted with and develop stronger relationships. Rain gardens in the courtyards provide a serene space and a passive cooling microclimate within the clusters. The grand, public courtyard in the apartments faces the UT Softball Stadium allowing for large gatherings to watch games, further facilitating interactions among residents.

53
54 SITE PLAN
55
56 GROUND LEVEL
57 FLOOR 2
58 FLOOR 3
59 SECTION NORTH ELEVATION

EAST ELEVATION

WEST ELEVATION

60
61
62

LIVING WALL DETAIL

WINDOW HEAD DETAIL

LIVING WALL GUTTER DETAIL

WINDOW SILL DETAIL

STOREFRONT HEAD DETAIL

STOREFRONT SILL DETAIL

BALCONY HANDRAIL DETAIL

63
64
65
WINDOW HEAD DETAIL GUTTER DETAIL WINDOW SILL DETAIL TOWNHOUSE FOUNDATION DETAIL
66
67
68
69

RESUME

70

TARYN S. TSUJIMOTO

taryn.tsujimoto@gmail.com

EDUCATION

The University of Texas at Austin

- Bachelor of Architecture

Expected graduation May 2024

- Bachelor of Science of Architectural Engineering

Expected Graduation May 2024

- Business Foundations Minor

RELEVANT COURSEWORK

Architecture

- Comprehensive Studio, Architectural Details and Materials, Site Design, Energy Modeling and the Design Process, Wood Design

Engineering

- Advanced Structural Analysis, Reinforced Concrete Design, Materials and Methods of Building Construction, Building

Environmental Systems

SKILLS

Architecture

Rhinoceros 3D

Revit

SketchUp

AutoCAD

Enscape

Lumion

Grasshpper

AWARDS

Wasp Weaverbird

Vray

Sefaira

Woodworking

Laser Cutting

Model Making

Design Excellence Nomination

Wood Design Fall 2023

Graphics Illustrator

Photoshop InDesign

Lightroom

Acrobat

Additional Microsoft Suite

Excel

MatLab

Python

WORK EXPERIENCE

Olson Kundig

- Architecture Intern

January 2023 - July 2023

Collaborated with senior architects to design and develop drawings to build client presentations and in-house critiques.

Starbucks

- Barista

May 2022 - Present Prepared and served a variety of coffee beverages with a focus on quality, consistency, and customer service.

UTea Pho

- Server

August 2019 - February 2021

EXTRACURRICULAR

UT Habitat for Humanity

- Active Member Spring 2024

Vietnamese Student Association

- Historian Officer Position

Fall 2018 - Spring 2019

Collaborated with other officers to organize and lead events, and provided mentorship to members.

71

Turn static files into dynamic content formats.

Create a flipbook
Issuu converts static files into: digital portfolios, online yearbooks, online catalogs, digital photo albums and more. Sign up and create your flipbook.