Tara Sutton Portfolio

Page 1

Tara Sutton

BA(Hons) Interior Design

Portfolio

Final Major Project:

ReBuy

YEAR 3

Unit X Pop-Up:

ReCentre

YEAR 3

RDSA Puma:

PUMA Score

YEAR 2

RSA Transformation Station:

Mind on Track

YEAR 2

01. Contents:

ReBuy

Saving plastic usage by using the refill section in ReBuy for dry ingredients.

ReBuy is a combined whole food cooperative offering organic, locally sourced produce, a refill centre and fair trade goods. Upstairs houses a community swap library, family food bank support and a food market hall sustained by local businesses from the Ancoats area wishing to promote themselves by using the pop up scheme. Taking inspiration from the nostalgic feeling of a farmers market and upscaling it to support the numbers in the community, ReBuy is ideal for wanderers, food enthusiasts and small business patrons.

ReBuy

Third Year: ID4 Final Major Project

Date: April 2023.

Who What Where.

02.

ReBuy

Try floor (not to scale).

VECTORWORKS EDUCATIONAL VERSION

1. Void showing produce section

2. Seating for viewing

3. Plant space

4. Children’s area

5. Family meeting rooms

6. Lift

7. Swing chairs

8. Food donation bank

9. Plant space

10. Void displaying refill section

11. Swing chairs

12. Community book swap

13. Customer WC 14. Lift

15. Staff WC

16. Staff recreation room

17. Food market high seats 18. Food market stalls

19. Seating viewing void

20. Viewing platform 21. Emergency exit

1. Registery threshold

2. Customer WC

3. Flower display pots

4. Floristry preparation area

5. Lift 6. Basket collection

7. Produce crates 8. Produce wall 9. Shelf stock 10. Bakery window display

Buy floor (not to scale).

Third Year: ID4 Final Major Project

Date: April 2023. Floorplans (not to scale).

EDUCATIONAL VERSION

11. Bakery preparation area

12. Delivery doors

13. Lift 14. Staff door to basement storage

15. Refill centre

20. Wine tasting experience bar 21. Recipe inspiration boards & screen 22. Grab&Go bakery display 23. Grab&Go produce stands 24. Grab&Go essentials

25. Order collection stock room 26. Food market staff entrance

03.
16. Cheese packaging station 17. Cheese displays 18. Chilled wall 19. Shelf stock
DATE 1 03 20 3 PROJECT NAME REBUY DRAW NG T LE GROUND FLOOR PLAN LOCAT ON 1 OLDHAM ROAD DRAWN BY TARA SUTTON SCALE 1 10 @ A Legend 1 Reg er h esho d 2 Cus ome WC 3 F owe d sp ay po s 4 F or s y p epa a on a ea 5 L 6 Bas e co e on 7 P oduce ra es 8 P oduce wa 9 She s ock 10 Ba er w ndow d sp ay 11 Bake y p epa a on a ea 12 De ve y doo s 13 L 14 S a do r o ba emen s o age 15 Re cen e 16 Cheese pa kag ng a on 17 Cheese d sp ay 18 Ch ed wa 19 She s ock 20 W e as ng expe ence ba 21 Rec pe nsp a on oard & c een 22 G ab&Go bake y d p ay 23 G ab&Go p oduce s ands 24 G ab&Go essen a s 25 O de co e on s oc room 26 Fo d mar e s a en ance Ground f oor p an Sca e 1 100 2 1 2 3 4 7 8 14 9 11 1 12 13 21 15 6 5 22 2 2 26 25 18 17 1 20 6 C C B A A VECTORWORKS EDUCATIONAL VERSION VECTORWORKS
F rs oor p an Sca e 1 100 3 DATE 1 03 20 3 PROJECT NAME REBUY DRAW NG T TLE F R F OOR PLAN OCA ON 1 OLDHAM ROAD DRAWN BY TAR SUTTON SCALE 1 @ A Legend 1 Vo d how ng p odu e sec on 2 Sea ng o v ew ng 3 P an spa e 4 Ch d en ar a 5 Fam y mee ng ooms 6 L 7 Sw ng cha s 8 Food dona on bank 9 P an spa e 10 Vo d d sp ay ng r se on 11 Sw ng cha s 12 Commun y boo swap 13 Cus ome WC 14 L 15 S a WC 16 S a ec ea on oom 17 Food ma ke h gh sea s 18 Food ma ke a s 19 Sea ng v ew ng o d 20 V ew ng p a o m owe ed ce ng he gh be ow 21 Eme gency e 1 2 4 7 8 14 9 11 10 12 13 15 16 5 1 17 19 20 6 21 C C B B A A
EDUCATIONAL
VECTORWORKS
VERSION

ReBuy

Third Year: ID4 Final Major Project

Date: April 2023.

Sections (not to scale).

VECTORWORKS EDUCATIONAL VERSION

VECTORWORKS EDUCATIONAL VERSION

04.
DATE 10 03 2023 PROJECT NAME: REBUY DRAW NG T TLE SECTION A LOCATION: 110 OLDHAM ROAD DRAWN BY TARA SUTTON SCALE: 1 100 @ A2 PROJECT NAME: REBUY DRAWING T TLE SECT ON B LOCATION 110 OLDHAM ROAD DRAWN BY TARA SUTTON SCALE 1 100 @ A2
Section A Scale: 1:100 4
Section B Scale: 1:100 5
Section A. Section B. Section C.

Authentic Red Brick. Geopolymer Concrete. Cork Panelling.

ReBuy

Third Year: ID4 Final Major Project

Date: April 2023.

Visuals.

The ReBuy refill space is designed to encourage customers to bring their own reuable containers when shopping to minimise single use plastic packaging.

Locally sourced flour used in the bakery to provide the community with fresh bread and pastries.

05.

ReBuy

Third Year: ID4 Final Major Project

Date: April 2023.

Visuals.

Organic produce on offer, locally sourced where possible to minimise carbon footprint.

Independent growing businesses from the area combining to fill the food market hall with local, fresh food options.

06.
Stainless Steel. Recycled Plastic Terrazzo. Oak Timber.

ReCentre

ReCentre

Third Year: Unit X.

Date: June 2023.

Who What Where.

The Retired - time on their hands. The Worker - commuting through the space. The Youth - lacking inspiration towards cooking.

ReCentre is a pop up refill and recipe hub, connecting communities through recipe sharing and bonding through the journeys of food. Each recipe pinned up in the space is to be exchanged with another and provoke discussion points between visitors, widening their sense of community.

A A B B Da e 28 04 2023 Pro ec name ReCent e Draw ng t e F oor p an Locat on: Manchester Drawn by: Tara Su on Sca e 1:20 Shee numbe : Shee s ze A3 Legend 1 Rec pe ho d suppor s 2 P n up pegs 3 Re l ubes 4 Res ock ng space 5 P vot door h nge 6 Doo opening 01 02 03 04 05 06 Floo p an Open door) Scale 1 20 02 F oor p an C osed doo ) Sca e 1 20 01 A B VECTORWORKS EDUCATIONAL VERSION VECTORWORKS EDUCATIONAL VERSION
(not
to scale). 3630mm 1850mm 1000mm 2600mm Legend: 01. Pin up supports. 02. Pin up pegs. 03. Refill tubes. 04. Restocking space. 05. Pivot door hinge. 06. Door opening. 2605 3 6 3 0 1 8 5 4 1 0 0 0 A A B B Da e 28 04 2023 Pro ec name ReCen e Draw ng t e: F oor p an Loca on: Manches e D awn by Ta a Su on Sca e 1 20 Sheet number 02 Shee s ze A3 Legend: 01 Rec pe hold suppor s 02 P n pegs 03 Re i tubes 04 Restocking space 05 P vot door h nge 06 Door open ng 01 02 03 04 05 06 Floo p an Open door Scale 1 20 02 Floor p an (Closed door Scale 1:20 01 A B VECTORWORKS EDUCATIONAL VERSION VECTORWORKS EDUCATIONAL VERSION 07.
Floorplan
shown

ReCentre

Third Year: Unit X.

Date: June 2023.

VECTORWORKS EDUCATIONAL VERSION

Section A (not shown to scale).

VECTORWORKS EDUCATIONAL VERSION

Height of 1860mm from ground, staff will stand on raised platform of 200mm to refill the tubes.

Hinge meaning refill hatch can be secured shut so food will not spoil. Turn handle releases food through ball mechanism and into customers’ container.

Floorplan and Sections (not to scale).

VECTORWORKS

Aluminium frame will secure mechanism and refill tube in place on the main structure.

08. 3580 2 0 0 0 Date: 28 04 2023 Pro ec nam e: ReCentre Drawing i le Elevat on B Locat on M anches er D awn by Tara Sut on Sca e: 1 20 Sheet num ber 04 Shee size: A3 Elevation B Scale 1:20 01
VECTORWORKS EDUCATIONAL VERSION Date: 28 04 2023 Pro ect nam e ReCentre Draw ng t t e Sect on A Locat on: M anches er Drawn by: Tara Sut on Sca e: 1 20 Sheet num ber 05 Shee s ze A3 2555 2 0 0 0 299 1204 2 0 0 Section A Scale 1:20 01 VECTORWORKS EDUCATIONAL VERSION
EDUCATIONAL
Elevation B (not shown to scale).
VERSION
300mm 2555mm 2000mm 200mm 1205mm 1 8 6 2 8 6 2 1 1 0 289 100 1 0 0 Date: 01 05 2023 Project nam e ReCentre Draw ng t tle: Re i l Function Detai s Location: M anchester Drawn by: Tara Su ton Sca e: Var es Sheet num ber: 08 Sheet s ze: A3 Sect on Scale 1 10 02 Floor plan Sca e 1:10 01 Detai 04 Scale 1:5 05 Detai 03 Sca e 1:5 03 Deta l 03 Scale 1:5 04 Deta l 04 Scale 1:5 06
110mm 300mm 100mm 100mm
VECTORWORKS EDUCATIONAL VERSION

ReCentre is a pop up refill and recipe hub, connecting communities through recipe sharing and bonding through the journeys of food.

ReCentre

Third Year: Unit X.

Date: June 2023.

Visuals.

09.

Made at scale 1:20.

ReCentre

Third Year: Unit X.

Date: June 2023.

Model.

10.

Puma Score

This PUMA flagship store is designed to be an immersive retail experience for athleisure wearers, football fanatics or keen trainer collectors whereby collections new and old are displayed and available for purchase via a subscription service to the PUMA app.

Legend:

01. Main Entrance

02. QR code scan in

03. AstroTurf football zone

04. Football goal

05. Locker display

06. Football VR booth

07. Storage room

08. Storage cupboards

09. Changing cubicles

10. Clothing rails

11. Self checkout

12. Seating area

13. Shoe display

14. Centre sculpture

15. Display platforms

16. Exit - - - - Step in floor of depth 200mm.

Puma Score

Second Year: ID3.2, RDSA.

Date: March 2022.

Floorplan (not to scale).

11.

Puma Score

Puma Score

Second Year: ID3.2, RDSA.

Date: March 2022.

Section (not to scale).

12.

Puma Score

Puma Score

Second Year: ID3.2, RDSA.

Date: March 2022.

Visual.

13.
Puma retail space catered to Manchester’s history with football and retail.

Puma Score

Puma Score

Second Year: ID3.2, RDSA.

Date: March 2022.

Visual.

14.

Mind on Track

An elderly mind centre. Preventing illness particularly in the elderly whilst also putting them into a social environment which is calming for their wellbeing. A multifunctional space for visitors to engage in activities and with the other people at the centre, improving overall health by reducing and delaying chances of brain deterioration.

Mind on Track

Second Year: ID3.1, RSA.

Date: January 2022.

Visual.

15.

Mind on Track

Mind on Track

Second Year: ID3.1, RSA.

Date: January 2022.

Axonometric Visual.

16.
Sound vibrations talking pipe. Modular framing. Roof slats allowing sunight penetration. Seating and Art Boards arrangements.

Mind on Track

Mind on Track

Second Year: ID3.1, RSA.

Date: January 2022.

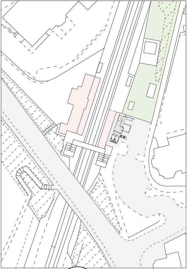
Location.

Existing

building Road Green space

17.
Technical Drawing of plan on site location. Technical Drawing of site location. station

Mind on Track 18.

Section A (not shown to scale).

(not shown to scale).

Section B (not shown to scale).

Mind on Track

Second Year: ID3.1, RSA.

Date: January 2022.

Floorplan and Sections (not to scale).

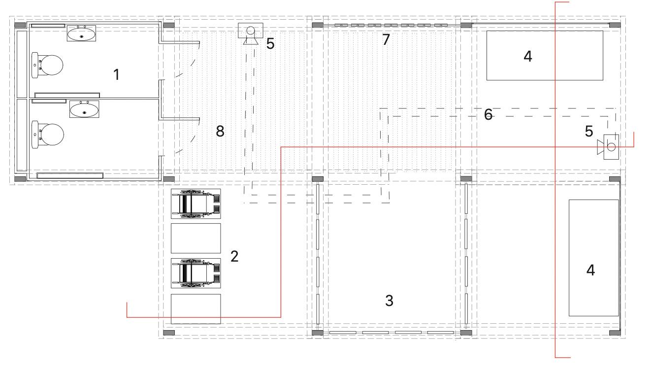
Legend: 1. Accesible toilets 2. Wheelchair parking 3. Suspended canvases 4. Social game huts 5. Echo reflecting horn 6. Echo reflecting pipe 7. Story board of towns past
- - - - - Over roof
------- Structural
.......... Roof
B A Floorplan
8. Roof slats
pipe
beams
slats

Turn static files into dynamic content formats.

Create a flipbook
Issuu converts static files into: digital portfolios, online yearbooks, online catalogs, digital photo albums and more. Sign up and create your flipbook.