Skip to main content

Architectural Technologist_Portfolio

Page 1

Architectural Portfolio

Architectural Technologist / Intern Architect (AAA)| B.Arch

Taranjot Moonga

CONTENTS

START Architecture Projects

• Bibliotheque St. jean Digital Classroom , Edmonton, AB

• Modular Demolition & RelocationLanding trail School,

• St. Jean Baptiste Church, Morinville, AB

• Aberhart centre window Replacement, Edmonton, AB

• CFER Feasibility Study, Edmonton, AB

• Youville Home Site Renovation, St. Albert, AB

• Holy Trinity Site Plan Presentation

• Edmonton Youth Offender Centre

– Youth Centre of Excellence Development, Edmonton, AB

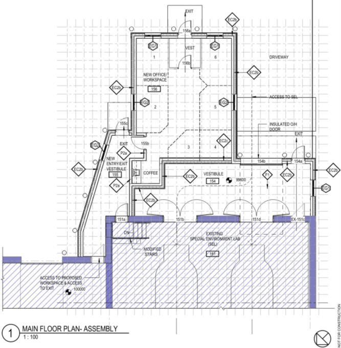
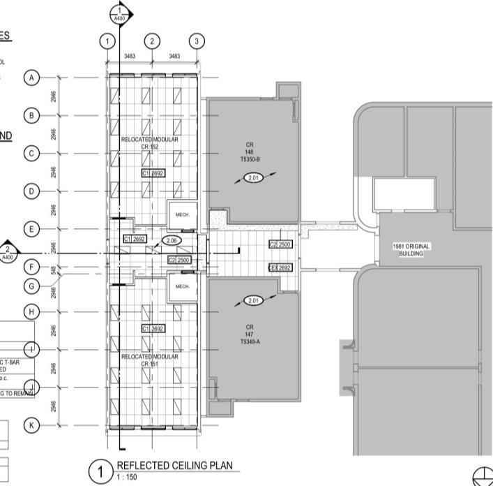
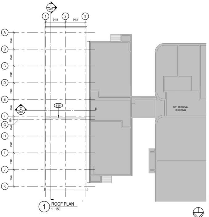
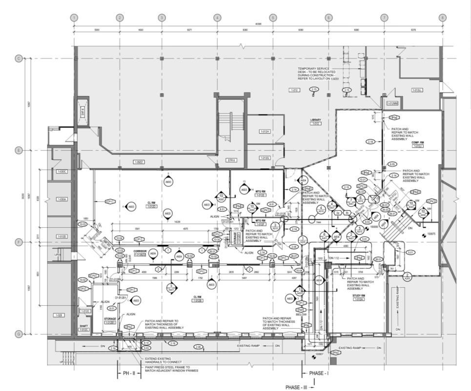
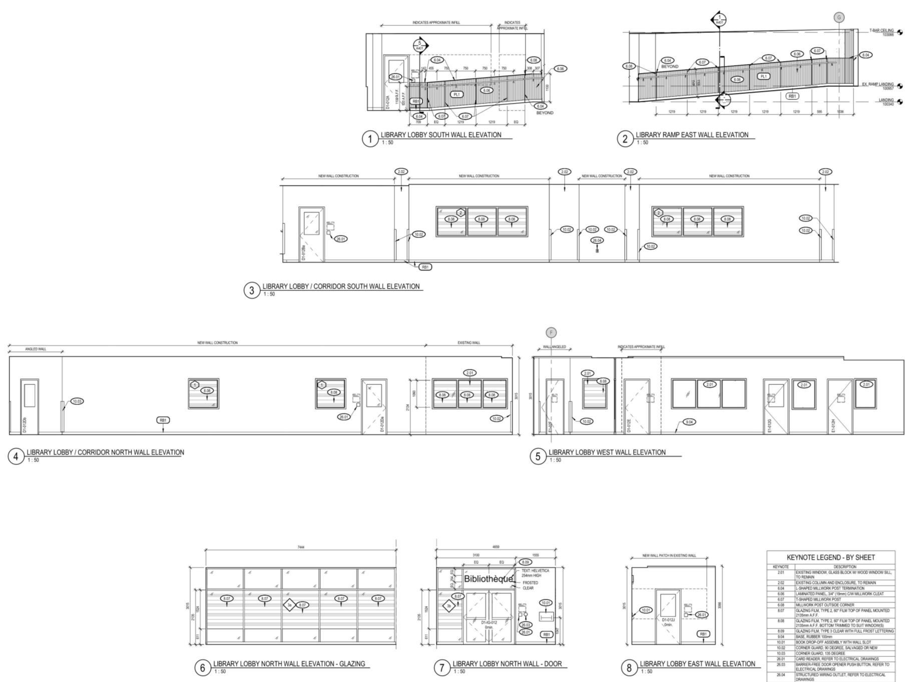
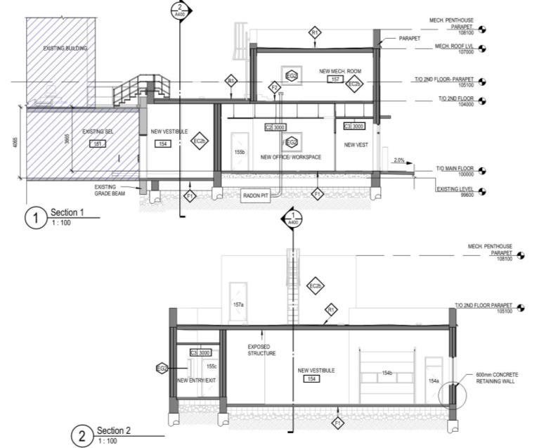
Bibliotheque Saint Jean- Digital Classroom

Saint Jean Library in University of Alberta was to be renovated and new addition of digital classrooms. My involvement in the project was to assist the Architect in furniture layout planning & preparing construction documents, details, meeting minutes, site visits and site reviews.

Software - Revit

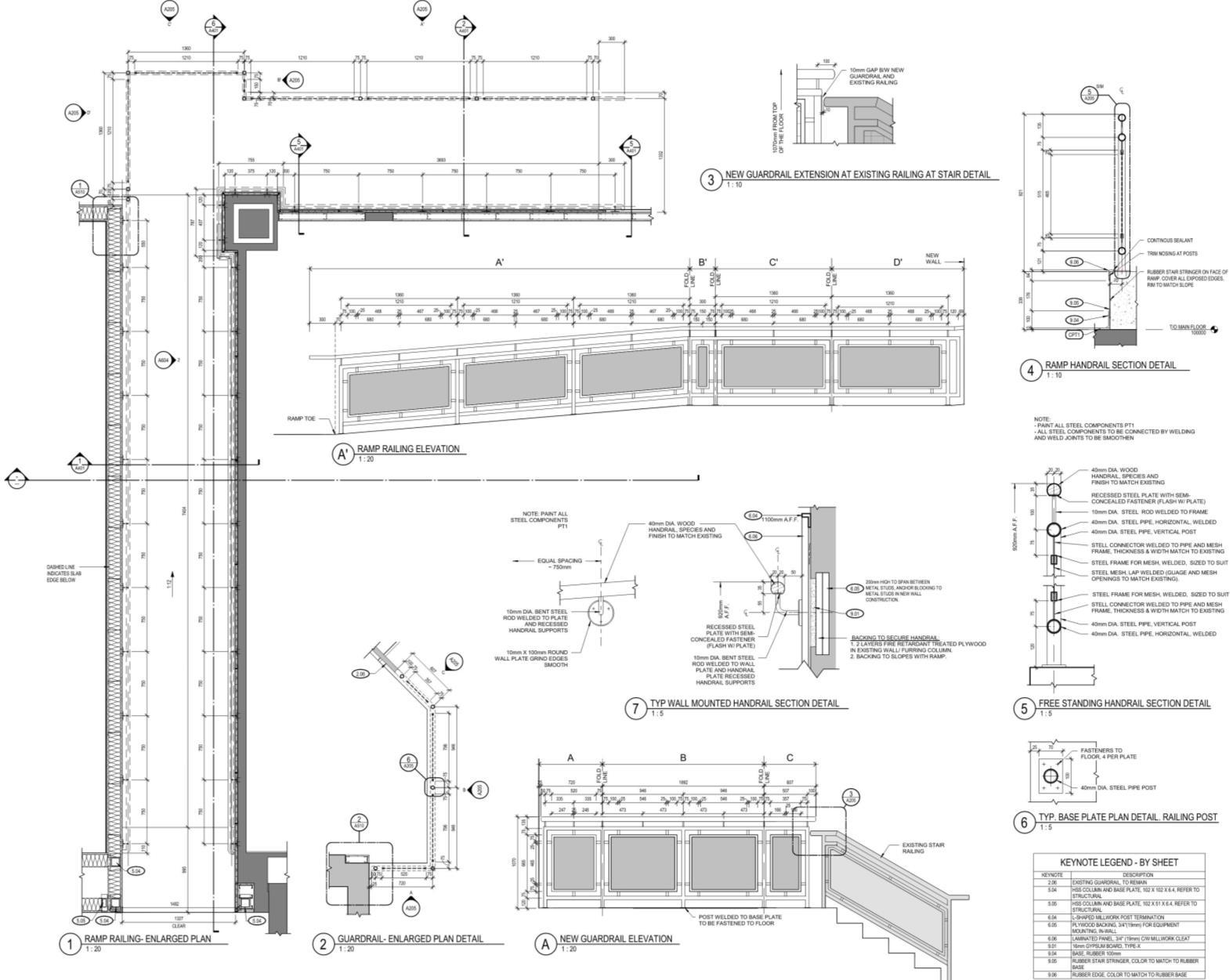
Main Floor - Demolition plan Main Floor - Demolition Reflected Ceiling plan Main Floor - Renovation plan Main Floor – Renovation Reflected Ceiling plan Ramp
Section
Ramp & Stair Detail Interior
Elevations

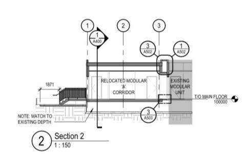
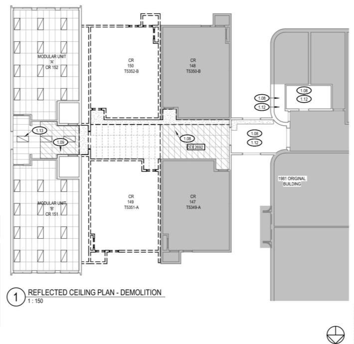
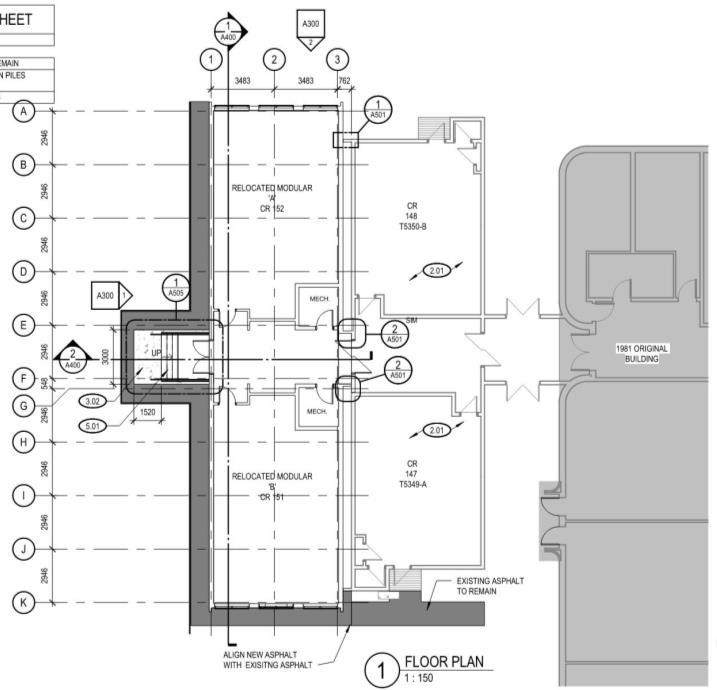
Modular Demolition & Relocation – Landing Trail

School, Gibbons, AB

Sturgeon Public School Division wanted demolition and relocation of the modular units in Landing Trail School. This is the project where I was involved right from the demolition and development permit application drawing set submission to the construction documents and details to tender submission in a timely manner.

Included the coordination with the Mechanical, Electrical and Structural consultants.

Plan

Ceiling Plan - Demolition Enlarged Site Plan

Site Plan
Demolition
Excavation Plan Floor Plan Reflected Ceiling Plan
Reflected
Software
– Revit
Plan
Roof
2 Construction Details
Section 1 Section

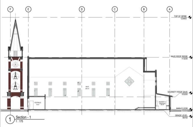
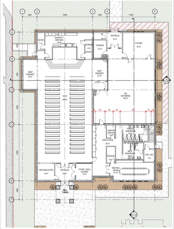
Saint Jean Baptiste Church, Morinville, AB

Saint Jean Baptiste Church in Morinville is a new construction project. I was introduced to the work to create area requirements obtained from all sources. This is the project where I directly worked with Senior Principal Architect to prepare schematic drawings and created animated presentation for the clients to review, started preparing design development sets and attended meetings with consultants and made necessary changes to the design. Softwares – Revit BIM 360, PowerPoint, Bluebeam

Site Plan- Phase 1 Site Plan – Phase 2 Floor Plan- Phase 1 Floor Plan- Phase 2

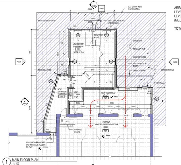
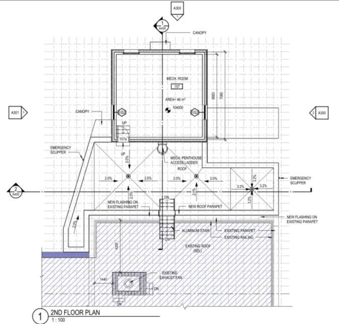
Windows Replacement Aberhart Centre, Edmonton, AB

Aberhart Centre in Edmonton is health care centre under Alberta Health Services wanted the old window replacement. This is my independent project with minimal supervision. I created drawings from blueprints, went on site independently and took the necessary measurements and created construction documents and details.

Software - Revit

TYP. Floor Plans

Details

Window
Exterior Elevation - South Exterior Elevation - East Exterior Elevation – North- Zone B Exterior Elevation – North- Zone C

C-FER Feasibility Study, Edmonton

C-FER Technologies in Edmonton Research Park wanted to expand the facility in Edmonton. This is the project where I directly assisted the Principal Architect and prepared drawings for feasibility study, attended site visits and meetings to cover and understand the scope of the project and client’s requirements and Coordinate with the consultants to submit report in timely manner

Software – Revit, Microsoft Word

Youville Home Site

Renovation, St. Albert, AB

Youville Home is a continuing care community in St. Albert. The client wanted to redevelop the site where they wanted to add landscaping, gazebos and sitting. My role was to create design options for the client. I assisted the Architect and Project Manager with Site measurements on site visits to understand the scope and prepared detail site redevelopment’s construction drawings.

Software - Revit

Holy Trinity Catholic Church, Spruce Grove, AB

In this project I was asked by Principal Architect to prepare the presentation Site Plan for client’s review for a banner

Software - Photoshop

Site Plan & Details
Plan
Site

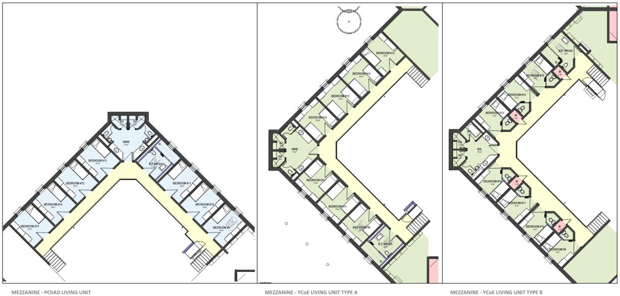
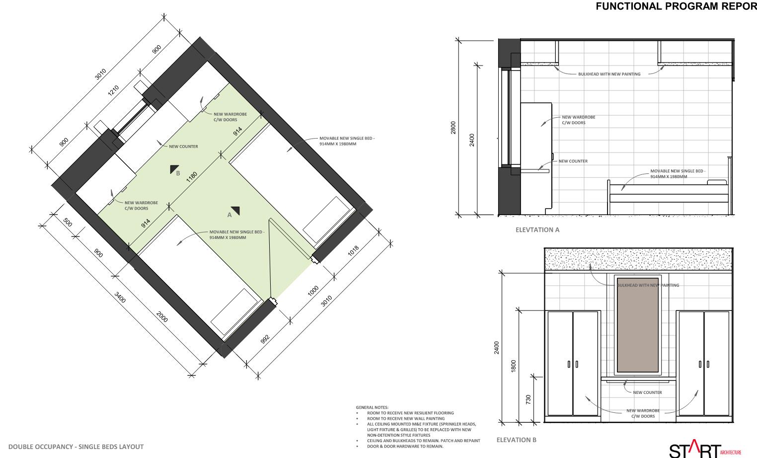
Edmonton Youth Offender Centre – Youth

Centre of Excellence Development , Edmonton, AB

The Detention Centre in Edmonton wanted to renovate and new construction in the facility. START to provide a feasibility report. I participated in conferences with the clients regarding programming, formal presentations and assisted the Architect in preparing meeting notes for future reference. Also, in site visits and studying existing building conditions. I created the design options for the Jail’s room for Project’s report.

Software – Revit, InDesign, Twin motion

Overall Site Plan Overall Main Floor Plan Overall Mezzanine Plan
Living Unit YCoE- Unit Type A YCoE- Unit Type B EYOC- Admin Area & Chapel
PChAD
Mezzanine Floor Plans Room Layout YCoE- Main Entrance Elevation PChAD- Main Entrance Elevation
3D Views
EYOC
Admin Area &
Chapel
North Elevation North
West Elevation

Turn static files into dynamic content formats.

Create a flipbook