



Hi! I’m
![]()




Hi! I’m
Architect | Interior Designer
With a foundation in architecture and interior design, I create spaces that prioritize the well-being and comfort of their occupants. My approach blends timeless elegance with innovative functionality, ensuring each design is both aesthetically pleasing and practical. Inspired by the unique stories of my clients, I craft personalized and meaningful environments. Committed to sustainability, I use eco-friendly materials and energyefficient solutions to create beautiful, responsible spaces that stand the test of time.
EDUCATION
MASTERS IN INTERIOR DESIGN
Coventry university UK 2022 - 2023
BACHELORS IN ARCHITECTURE
Oxford School of Architecture Bangalore - India 2016 - 2021
WORK EXPERIENCE
London UK
INTERNIDECO (INTERN-SHIP)
London UK
CREO CONCEPT’S
Bangalore , India
E-Mail : 98thammi@gmail.com Ph : 07721681613, WA : +91-9916520804

During my bachelor’s degree, two friends and I participated in a national competition and secured second place. Despite our strong ideas, we fell short due to our presentation and software skills. That experience motivated me to never let a lack of skills hinder my ideas again. Since then, I’ve dedicated myself to learning as many skills as possible, and I continue to expand my knowledge. Here is a glimpse of the software I’m now proficient with:


Portfolio Journey
Projects between ( 2021 - 2025 )
As you explore my portfolio, you’ll board on a journey through my creative evolution. Each project showcases my growth, from early experiments to polished masterpieces, reflecting my dedication and passion.
You’ll witness the challenges I’ve overcome and the skills I’ve honed. This journey isn’t just about the work; it’s about the story behind each piece, revealing my unique artistic voice.

I’ve worked on a range of hospitality projects,this portfolio includes projects like restaurants and cafés, with a particular emphasis on designing and enhancing airport lounges.

This portfolio section features workplace design spaces primarily created for GPA, DAA and FCDO. It highlights my expertise in creating functional and aesthetically pleasing environments tailored to the unique needs of these organizations.

I’ve previously worked on a couple residential projects in India and three projects in the UK. The projects in India gave me experience in architecture, while the ones in the UK were for interior space design.

In this section, you’ll find a showcase of my work on various hospitality projects, including airport lounges and restaurants. These projects highlight my expertise in creating inviting and functional spaces that enhance the guest experience. From elegant dining areas to comfortable lounges, I focus on meticulous detailing and innovative design solutions to meet the unique needs of each hospitality environment. Explore my work and see how I bring hospitality spaces to life.

Refurbishment design of a Middle Eastern airport, enhancing passenger experience with modern amenities, efficient layouts, and cultural elements.

an airport lounge in Glasgow, transforming both exterior and interior with modern aesthetics, increased capacity, and enhanced traveller comfort.


an airport lounge in Dublin, increasing capacity with efficient layouts, modern amenities, and enhanced comfort for travelers.















A restaurant in India, incorporating local heritage and using locally available materials to create an authentic, cultural experience.











Luxury restaurant, utilizing a rich palette of materials to create an opulent and sophisticated dining experience.

This is one of three DAA airport lounges refurbished to maximize their potential, enhancing traveller experience and operational efficiency.




Revamped an airport lounge, boosting capacity with smart layouts, contemporary amenities, and improved traveller comfort.
Blending creative aesthetics with functional spaces, showcasing local artwork, and fostering a vibrant, inspiring atmosphere.
This VVIP airport refurbishment project in the Middle East seamlessly blends modern luxury with local heritage. We meticulously designed the space to reflect the region’s rich cultural history, incorporating traditional architectural elements and art. Emphasizing hospitality, the project ensures an unparalleled experience for VVIP travelers, offering state-ofthe-art amenities and personalized services that honour the warmth and generosity of Middle Eastern hospitality.









































This airport lounge design draws inspiration from the vibrant local landscapes and their rich colours. The space features hues and textures that reflect the natural beauty of the Dublin region, creating a serene and inviting atmosphere. With comfortable seating, modern amenities, and a touch of local artistry, the lounge offers travelers a unique and relaxing experience, seamlessly blending functionality with the essence of the surrounding environment while increasing capacity with efficient layouts, modern amenities, and enhanced comfort for travelers.



CONCEPT _ ARCHES

RENDER_SEATING TYPES

RENDER_VIEW TO CENTRAL CHECK-IN AREA







































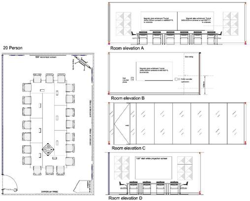
For the T2 Lounge project, I contributed during RIBA Stages 2, 4, and 5. My work involved developing the concept design, refining detailed designs, and overseeing the technical aspects of construction. I focused on space planning, material selection, and creating detailed drawings to ensure a seamless execution. This comprehensive involvement allowed me to ensure that the final design met both aesthetic and functional requirements, delivering a high-quality lounge experience.











Servery detail drawing -
The detailed drawing for the servery unit in the airport lounge showcases a sleek, functional design tailored for high-traffic areas. It includes precise measurements, material specifications, and ergonomic considerations to ensure efficiency and comfort. The layout optimizes space for food preparation and display, incorporating durable surfaces and modern fixtures, seamlessly blending aesthetics with practicality to enhance the overall guest experience.



In this section of my portfolio, I showcase my experience working on various government projects, including the Government Property Agency (GPA), Welsh Government, and Foreign, Commonwealth & Development Office (FCDO) offices. My contributions also extend to creating design guides and participating in BID submissions. These projects have honed my skills in developing functional, efficient, and aesthetically pleasing workspaces that meet the unique needs of workplace design.

Designed a GPA workplace, focusing on efficient space planning, modern aesthetics, and functional layouts to enhance productivity and collaboration.

Designed a modern, sustainable FCDO office, incorporating flexible workspaces, advanced technology, and eco-friendly materials to enhance productivity and collaboration.


Created an efficient and modern airport workplace for DAA, emphasizing ergonomic design, collaborative spaces, and a sleek, professional environment.

Worked towards the bid submission for CCR energy plant workplace design, emphasizing ergonomic stations, safety features, efficient work flows, and collaborative spaces.

Produced realistic renders for a Welsh government project, showcasing detailed visualizations to support planning and decision-making processes.


Created a comprehensive document with room briefing sheets, detailing specifications and requirements to guide the design and planning process.
Compiled three documents into one cohesive design guide, ensuring consistency, clarity, and comprehensive coverage of all necessary information.












Designed the FCDO office in Delhi, integrating local heritage elements to create a modern yet culturally rich workspace.
For this project, I focused on space planning, material selection, detailed drawings, fixed furniture designs, and creating schedules. My role involved optimizing the layout for functionality and aesthetics, selecting highquality materials, and producing precise drawings to guide construction. I also designed custom fixed furniture and developed comprehensive schedules to ensure timely project completion. This holistic approach ensured a cohesive and well-executed design from concept to completion.
















































RENDERS






For the secured GPA project, I coordinated with suppliers to select high-quality materials, ensuring they met our design and functional requirements. I created detailed material boards to visualize our selections and guide the project’s aesthetic. After the project’s handover, I conducted a site visit to capture images, documenting the final outcome meticulously. This hands-on approach allowed me to ensure that every detail aligned with our vision and standards.

RENDER _ WAITING AREA














KEY:
FLOOR FINISHES:
FF1: MILLIKEN_DTN209-118_Tremor
FF2: MILLIKEN_DTN153-250_Ambience
FF3: AMTICO_SG5W1010_Eden Oak
FF4: DOMUS_Build 2.0 Cement_DFBCE 05_Natural
WALL FINISHES:
WF1: DULUX TRADE_RAL 5011
WF2: DULUX TRADE_RAL 4007
WF3: SOLUS_Contrast_5GCY102_Metaphor
WF4: SOLUS_Fluting_5FLT008_FLT-Fern
WF5: BAUX_Acoustic Wood Wool_Natural












WF6: BAUX_Acoustic Wood Wool_Woods Pine Green
WF7: ARTE_Puro_27011A_Silver Pine
WF8: BAUX_Acoustic Wood Wool_Sky Antique Blue
JOINERY & UPHOLSTERY:
JF1: CAMIRA_Yoredale_UDA35_Marsden
JF2: CAMIRA_Main Line Flax_MLF48_Chigwell
JF3: CAMIRA_Yoredale_UDA38_Swaledale
JF4: CAMIRA_Sumi_SUR20_Yabu
JF5: CAMIRA_Sumi_SUR02_Tokyo
JF6: CAMIRA_Sumi_SUR01_Tang
JF7: EGGER_U9631 ST9_Solid Diamond Grey
JF8: CORIAN_Corian Solid Surface_Sparkling Granita
JF9: HAVWOODS_Purepanel_HW31018_Blanco

SITE PHOTOGRAPHY






SITE PHOTOGRAPHY

ENTRANCE WAITING AREA

TEA POINT SEATING

MEETING PODS


TEA POINT SEATING

COLLABORATION SPACE
I eagerly volunteered to contribute to designing room data sheets to deepen my understanding of space planning and zonal analysis. This hands-on experience allowed me to engage with the intricacies of spatial layouts and zoning requirements for GPA projects, enhancing my practical knowledge.
By actively participating in this project, I gained valuable insights into the design process and improved my ability to create efficient and functional spaces. This experience has been instrumental in my professional growth.

















































With Residential design experience in the UK and India, I specialize in space planning and problem-solving. My expertise shines through detailed drawings and innovative solutions, ensuring each project is both functional and aesthetically pleasing. From cozy homes to luxurious residences, I bring a meticulous approach to every design, creating spaces that truly reflect the client’s vision and lifestyle.

An accessible getaway home for the elderly, focusing on comfort, safety, and ease of mobility, ensuring a serene retreat.

Designed an urban home for a couple and their parents, balancing privacy and shared spaces for multi-generational living.

Designed a terrace garden for an apartment, providing residents with a serene space to relax or host small events on their own terrace.



Transformed living space and bedrooms, enhancing functionality and aesthetics with modern design elements, improved layouts, and updated furnishings.


Designed four identical villas for brothers on shared land, each reflecting unique personalities through distinct structural elements and interior designs.

Designed a future-ready house for a middle-class family, focusing on adaptability, functionality, and comfort to meet evolving needs.

Designed a luxury home for a real estate agent in central Bangalore, featuring extensive use of premium materials and modern aesthetics.

Designed a modern apartment for a couple, optimizing space for comfort and style, with personalized touches to reflect their lifestyle.
Design Concept
Our design concept harmonizes with nature, using a floral and arborealinspired colour palette to distinguish individual rooms from each other while complementing architectural elements. Earthy greens and floral pastels highlight the areas, creating serene, natural atmospheres. Rich, wood-toned accents and vibrant hues reflect outdoor landscapes, seamlessly blending interior and exterior. This colour integration not only defines distinct spaces but also ensures a cohesive connection with the building’s design, promoting a tranquil, nature-infused living experience.






OUR DESIGN CONCEPT HARMONIZES WITH NATURE, USING A FLORAL AND ARBOREAL-INSPIRED COLOUR PALETTE TO DISTINGUISH INDIVIDUAL ROOMS FROM EACH


PALETTE OPTION 1





FLOOR FINISHES:
FF1: ALTRO WOOD COMFORT - SOFT OAK
WALL FINISHES:
WF1: DULUX Red Ochre
WF2: DULUX Inca Orange
WF3: DULUX Brushed Gold
WF4: DULUX Sage Green
WF5: DULUX Breton Blue
WF6: DULUX Very Berry
WF7: DULUX DH Blossom
WF8 DULUX Rubble Road


ENTRANCE VIEW TO THE STRUCTURE


Bedroom Designing & Reasoning
Designing a bedroom inspired by Japandi style, I aimed to blend the simplicity of Japanese design with the warmth of Scandinavian aesthetics. The focal point was a low platform bed, crafted from light-coloured wood to maintain a natural and airy feel. The bed’s minimalist design emphasized clean lines and functionality, staying true to Japandi principles.
The colour palette was kept neutral, featuring shades of white, beige, and soft Gray, with subtle accents of muted greens and blues to add a touch of tranquillity. I incorporated natural materials like bamboo & linen to enhance the room’s cozy and inviting atmosphere.
Furniture pieces were carefully selected for their simplicity and practicality, including a sleek dresser and bedside tables with hidden storage. To complete the look, I added potted plants, soft ambient lighting, and a few carefully chosen decorative items, creating a serene and harmonious retreat that embodies the essence of Japandi style.
Designing a luxurious bedroom for the client in his late 20s, I drew inspiration from straight lines and dark colours to create a sophisticated and modern space. The foundation of the design was a sleek, minimalist approach, emphasizing clean lines and geometric shapes. I chose a colour palette dominated by deep shades of charcoal, navy, and black, accented with metallic touches of gold and silver to add a touch of great wealth.
The furniture selection included a platform bed with a brown, upholstered headboard, complemented by nightstand’s with a glossy finish. To enhance the luxurious feel, I incorporated high-quality materials such as velvet, and polished wood. Ambient lighting played a crucial role, with strategically placed LED strips and modern pendant lights creating a warm, inviting glow.
Elements like wall led and a statement rug added personality, making the bedroom a stylish and comfortable retreat.
Designing a bedroom inspired by Balinese style was an immersive and rewarding experience. I began by incorporating natural materials like bamboo, teak wood, and rattan to create a warm, earthy ambiance. The colour palette was carefully chosen, featuring soothing shades of beige, brown, and green to evoke the serene landscapes of Bali.
To enhance the tranquil atmosphere, I added elements such as a canopy bed with sheer white drapes, reminiscent of Balinese resorts. Hand crafted wooden furniture and intricate carvings were used to add authenticity and cultural richness. Soft, ambient lighting was strategically placed to create a calming glow, while large windows allowed for ample natural light and a connection to the outdoors.
Accents like tropical plants, woven baskets, and traditional Balinese artwork completed the look, making the bedroom a peaceful retreat that captures the essence of Bali’s natural beauty and cultural heritage.












Participating in design competitions showcases my creativity, problem-solving skills, and dedication, enhancing my portfolio with practical experience.
As a designer, I actively engage in a variety of enriching activities beyond my core responsibilities. I participate in design competitions and workshops to continually hone my skills and stay updated with industry trends. I create content for interior photography, capturing the essence of spaces. Additionally, I host events and lead a 3D printing team, fostering innovation and collaboration. My role as an experience program host allows me to design impactful user experiences, while my commitment as a sustainability champion drives eco-friendly initiatives. These diverse activities not only enhance my professional growth but also contribute to a vibrant and sustainable design.

Designed several exhibition spaces during my previous workplace and university period.
I enjoy getting my hands dirty and feeling materials and their textures, consequently I always sign up for any kind of workshop that I may attend.



I actively participated in BD social groups, helping organize events for our 225 team members, fostering teamwork and engagement.







Has adequate knowledge and experience in developing professional documents for bid submissions and design guidelines.

My tech enthusiasm drives my curiosity, enabling me to contribute to our 3D printing and VR coordination efforts effectively.

Photography is one of my passions, which also helps me capture the space as a designer looks and feels.

Participating in these programs inspires students, keeps me self-aware of my progress, and facilitates the exchange of ideas and knowledge.

Created posts and presentations to enhance our market presence, showcasing our strengths and attracting more attention.

These fun weekly sessions, with new learning opportunities, motivated me to help organize more for the team.
I find immense joy in sketching as it allows me to express creativity, relax, and bring my imaginative ideas to life on paper.
























PHONE NUMBER : 07721681613
E-MAIL: Vishwanath.Thammi@gmail.com
Address: London,UK


WEBSITE: https://issuu.com/tammivisu