ARCHITECTURAL PORTFOLIO SEMESTER 5

Page 1

MANGROVE WORKSHOP

LEARNING CENTRE X

PROJECT 1 PROJECT 2 PROJECT 3

SERVICES: FIRE SUBMISSION

SERVICES: INTERGRATED DESIGN

content
AR518 Design Studio 5- Portfolio & Technical Report
AR518 Design Studio 5- Portfolio & Technical Report
Prepared by Sylvester Gabriel Hong Kah Weng 1001746722
AR518 Design Studio 5- Portfolio & Technical Report
Prepared by Sylvester Gabriel Hong Kah Weng 1001746722

AR518 Design Studio 5- Portfolio & Technical Report

Prepared by Sylvester Gabriel Hong Kah Weng 1001746722
AR518 Design Studio 5- Portfolio & Technical Report
Prepared by Sylvester Gabriel Hong Kah Weng 1001746722
AR518 Design Studio 5- Portfolio & Technical Report
Prepared by Sylvester Gabriel Hong Kah Weng 1001746722

AR518 Design Studio 5- Portfolio & Technical Report

Prepared by Sylvester Gabriel Hong Kah Weng 1001746722
AR518 Design Studio 5- Portfolio & Technical Report
Prepared by Sylvester Gabriel Hong Kah Weng 1001746722

AR518 Design Studio 5- Portfolio & Technical Report

Prepared by Sylvester Gabriel Hong Kah Weng 1001746722

PROJECT 2

Task 1a, 1b

PROGRAMMATIC STRATEGY

ESEARCH AREA CO- WORKING SPACES ANGROVE WORKSHOP POCKET GARDEN
AMMES:
Ed ti t h h it t th
Ed ti t h h it t th

PROGRAMMATIC STRATEGY

THE PROGRAMMATIC STRATEGY SHOWS HOW THE EDUCATION CENTRE PROVIDES EDUCATION SERVICES TOWARDS THE COMMUNITY OF KAMPUNG PASIR PANJANG STARTING FROM REGROWING THE DESTROYED MANGROVE TREES ON THE COASTLINE, THEN EXPORTING FOOD THAT CAN BE COLLECTED FROM THE MANGROVE TREES SUCH AS IT’S EADIBLE SEEDS AND THE FISHES FROM THE MANGROVE FISH FARM FOR THE COMMUNITY AROUND THE KAMPUNG. THUS GIVING INCOMES TO THE LOW INCOME GROUPS.

Prepared by Sylvester Gabriel Hong Kah Weng 1001746722

AR518 Design Studio 5- Portfolio & Technical Report

INITIAL FORM EXPLORATION

AR518 Design Studio 5- Portfolio & Technical Report
Prepared by Sylvester Gabriel Hong Kah Weng 1001746722
AR518 Design Studio 5- Portfolio & Technical Report
Prepared by Sylvester Gabriel Hong Kah Weng 1001746722
AR518 Design Studio 5- Portfolio & Technical Report
Prepared by Sylvester Gabriel Hong Kah Weng 1001746722
AR518 Design Studio 5- Portfolio & Technical Report
Prepared by Sylvester Gabriel Hong Kah Weng 1001746722

AR518 Design Studio 5- Portfolio & Technical Report

Prepared by Sylvester Gabriel Hong Kah Weng 1001746722
AR518 Design Studio 5- Portfolio & Technical Report
Prepared by Sylvester Gabriel Hong Kah Weng 1001746722

INITIAL FORM MODEL DEVELOPMENT

AR518 Design Studio 5- Portfolio & Technical Report
Prepared by Sylvester Gabriel Hong Kah Weng 1001746722

PROJECT 3

PROGRAMME DESIGN DEVELOPMENT FINAL DESIGN PROPOSAL

AR518 Design Studio 5- Portfolio & Technical Report
Prepared by Sylvester Gabriel Hong Kah Weng 1001746722

AR518 Design Studio 5- Portfolio & Technical Report

Prepared by Sylvester Gabriel Hong Kah Weng 1001746722

AR518 Design Studio 5- Portfolio & Technical Report

Prepared by Sylvester Gabriel Hong Kah Weng 1001746722

AR518 Design Studio 5- Portfolio & Technical Report

Prepared by Sylvester Gabriel Hong Kah Weng 1001746722
AR518 Design Studio 5- Portfolio & Technical Report
Prepared by Sylvester Gabriel Hong Kah Weng 1001746722
AR518 Design Studio 5- Portfolio & Technical Report
Prepared by Sylvester Gabriel Hong Kah Weng 1001746722
AR518 Design Studio 5- Portfolio & Technical Report
Prepared by Sylvester Gabriel Hong Kah Weng 1001746722

SCHOOL OF ARCHITECTURE AND BUILT ENVIRONMENT

BCRAT_ARCHITECTURE_SEM 5

ASSIGNMENT 1: BOMBA SUBMISSION

ALARM AND DETECTION SYSTEM

Alarm, detection system & devices are the most sensitive active fire protection system as they are the first system to react in an event of fire emergency. The detection systems will in turn trigger and activate the rest of the fire protection system as a collective to control and extinguish the fire

FIRE ALARM SYSTEMS

Fire alarm system usually consists of alarm bells, fireman’s switch, voice communication system, manual pull station (or button) and smoke detectors. The system provide audible and visual alarm signal for the occupants of the building to warn them in case of a fire. It can be activated manually using the manual pull station or automatically operated using devices such as smoke, heat or flame detectors. Fire Alarm Fire alarm is a visual (beacon) and audible (siren) alarm. In Block D7, the alarm can be triggered automatically through smoke detectors, manual pull station or through manual activation from control panel. It produces a loud methodical sound and a visual beacon to alert user throughout the building when a fire occurs. The warning siren can also be propagated using the public address (PA) system

There are four different types of fire alarm systems:

1. Conventional

2. Analogue

3 Addressable

4. Wireless system

A system that is used most of the times are conventional and addressable alarm systems.

The model present in Block G at UCSI University KL Campus is the ‘DEMCO’, a Malaysian local brand for Polarized alarm bells. It is the Model D-102 which is known to be

incorporated with surface and semi-conceal fixing and the bell can be sunk into a wall without being too extruded from the wall.

According to the demco catalogue, The simplicity of the design incorporates fewer working parts, easy installation and high level of efficiency capable for operating under most adverse conditions. Demco alarm bells are designed to meet the requirements of EN54-3:2001.

UBBL 1984

PART VIII: FIRE ALARMS, FIRE DETECTION, FIRE EXTINGUISHMENT AND FIRE

FIGHTING ACCESS, BY-LAW 237

(1) Fire alarms shall be provided in accordance with the Tenth Schedule to these By-laws.

(2) All premises and buildings with gross floor area excluding car park and storage areas exceeding 9290 square metres or exceeding 30.5 metres in height

Figure: Demco D-102 fire alarm bell.

shall be provided with a two-stage alarm system with evacuation (continuous signal) to be given immediately in the affected section of the premises while an alert (intermittent signal) be given in adjoining section.

(3) Provision shall be made for the general evacuation of the premises by action of a master control.

FIREMAN INTERCOM SYSTEM

This system is quite useful as it provides a proper communication between the fire control room to the remote handset station in case of a fire outbreak. There are a number of things that are included in such a system. Such as a handset station and a master control panel that is usually located in the fire control room. Usually near most staircases or lifts there will be an Intercom handset station at the entry level of the building

In case of a call, there will a call alert which flashes a lamp also accompanied by a loud signal. When the hanset is lifted, the noise signal will stop.

Figure: Emergency Fire Phone

PART VIII: FIRE ALARMS, FIRE DETECTION, FIRE EXTINGUISHMENT AND FIRE FIGHTING ACCESS, BY-LAW 239

MANUAL CALL POINT

There shall be two separate approved continuously electrically supervised voice communications systems, one a fire brigade communications system and the other a public address system between the central control station and the following areas:

(a) lifts, lift lobbies, corridors and staircases;

(b) in every office area exceeding 92.9 square metres in area;

(c) in each dwelling unit and hotel guest room where the fire brigade system may be combined with the public address system

In some of the hazardous points of the building, there will be manual alarm call points that are designed to raise alarms manually in case it has not been detected yet Because it is a manual alarm, they are too strong to break. The signal would be activated if the glass was broken. The moment it is broken, the alarm is set off and the operators in the fire control room need to verify if the alarm was true and not faulty. Just as it manual to set off the alarm, it is also manually reset using a key to stop it.

Clause 155

(1) The fire mode of operation shall be initiated by a signal from the fire alarm panel which may be activated automatically by one of the alarm devices in the building or manually.

UBBL 1984
Figure: Manual alarm station

Clause 44.5

In large or complex buildings a staged evacuation procedure may be adopted, in which the operation of a call point or detector gives an evacuation signal on the storey or zone affected, and an “alert” warning signal sounds in all other parts of the premises. The decision to evacuate the remainder of the occupants then rests with the management and/or the Fire Authority. It is essential that adequate means of communication between storeys or zones is provided. A public address system or voice alarm system is the most suitable way to control the evacuation process instead of fire alarm sounders.

FIREMAN’S SWITCH

In case of fires and the fire fighters have reached the building, it is important to disconnect the power source from high voltage devices so that the fire does not affect the electrical devices or cause the fire to change into an electric type These are usually located beside the door of the fire staircase on every level available.

UBBL 1984

PART VIII: FIRE ALARMS, FIRE DETECTION, FIRE EXTINGUISHMENT AND FIRE

FIGHTING ACCESS, BY-LAW 240

(1) Every floor or zone of any floor with a net area exceeding 929 square metres shall be provided with an electrical isolation switch located within a staircase enclosure permit the disconnection of electrical power supply to the relevant floor or zone served.

Figure: Fireman’s Switch located at the fire escape staircase

(2) The switch shall be of a type similar to the fireman's switch specified in the Institution of Electrical Engineers Regulations then in force.

FIRE HOSE REEL SYSTEM

One of the ‘Hand-operated Firefighting Equipment’s’ is a hose reel. It is an important part of the active fire protection equipment that provide a fire control and extinguishing in severely emergency situations. Usually, the hose reels are used in the beginning stages of fire before it begins to be extreme.

There are two main types of hose reels. The first is the automatic type which has the reel pulling effect help the water start pouring. The other type is the manual fire hose reel which requires a tap to be rolled in order for it to start pouring

In the case of Block G UCSI KL Campus unit, there are only manual hose reels present around the premises. This type of hose is considered to be the cheaper option. Although it requires someone to set it up and turn the valve to control the water, it is still useful before the fire gets too extreme and it helps it calm down in time for the fire fighters to reach the building. The tanks that store water connected to the hose reel valves are usually located on the rooftop of the building.

Figure: Manual Fire Hose Reel

PART VIII: FIRE ALARMS, FIRE DETECTION, FIRE EXTINGUISHMENT AND FIRE FIGHTING ACCESS, BY-LAW 247

FIRE EXTINGUISHING SYSTEMS

WATER BASED SYSTEMS

(2) Main water storage tanks within the building other than for hose reel systems shall be located at ground first or second basement levels with fire brigade pumping inlet connections accessible to fire appliances.

FIRE SPRINKLER SYSTEM

A system that is triggered automatically in case it detects heat is known as an automatic sprinkler. These sprinklers are automatically activated sprinkling water in the areas under in within its perimeter. This helps minimize the fire and its destruction. It also helps reduce the amount of smoke around the vision of anyone within the fire perimeter. These sprinklers are located in several regions of a building and they are in the category of the active fire protection systems. They contain a constant water supply system that has a proper pressure to be able to supply the optimum amount of water to the area in case of a fire to multiple heads that are connected through a singular pipe.

UBBL 1984
Figure: Fire Sprinkler System

UBBL 1984

PART VIII: FIRE ALARMS, FIRE DETECTION, FIRE EXTINGUISHMENT AND FIRE

FIGHTING ACCESS, BY-LAW 226

Where hazardous processes, storage or occupancy are of such character as to require automatic sprinklers or other automatic extinguishing system, it shall be of a type and standard appropriate to extinguish fires in the hazardous materials stored or handled or for the safety of the occupants.

Clause 31.2.2

All buildings with an occupied storey over 30 m above access level should be sprinkler protected.

UBBL 1984

PART VIII: FIRE ALARMS, FIRE DETECTION, FIRE EXTINGUISHMENT AND FIRE

FIGHTING ACCESS, BY-LAW 228

(1) Sprinkler valves shall be located in a safe and enclosed position on the exterior wall and shall be readily accessible to the Fire Authority.

(2) All sprinkler systems shall be electricity connected to the nearest fire station to provide immediate and automatic relay of the alarm when activated.

UBBL 1984

PART VIII: FIRE ALARMS, FIRE DETECTION, FIRE EXTINGUISHMENT AND FIRE

FIGHTING ACCESS, BY-LAW 228

EXTERNAL FIRE HYDRANT

External fire hydrant is an active fire protection measure with the water source provided from the public water service. The fire hydrant system supplies water with sufficient pressure to be delivered through pipes throughout the building to the valve network. The system consists of the water tank, suction piping, fire pumps, and distributed piping system. During a fire emergency, the firefighters will attach a hose reel to the hydrant. It can also be attached to the fire engine to boost the water pressure using an engine pump. The fire hydrant must be in good and working condition with unobstructed access.

WET RISER SYSTEM

Wet Riser System There are two types of main fire-fighting system available for office buildings: dry riser and wet riser systems. However, due to the size of Block G, wet riser system is used as the main fire-fighting system according to the UBBL. The difference between wet riser and dry riser systems are that wet risers are pressurized and have its own water storage tanks

WET RISER

The wet riser supply pipes are located on each floor along with the landing valves to allow firefighters to access to a ready water supply to combat a fire. All the landing valve are covered with a coupling adapter. The coupling adapter acts as a lock at the discharge outlet to lock the canvas hose in place when the need to use arises.

RISER MAINS LOCATION

Wet rising mains are fitted in tall buildings due to the excessive pressures required to pump water to high levels A Wet riser is a supply system intended to distribute water to multiple levels or compartments of a building, as a component of its firefighting systems. Wet rising mains consist of vertical pipes similar to the dry rising main system with landing valves at each floor except the ground. The pipe system is connected to a permanent water supply normally a tank fed from the town mains. Duplicate automatic pumps, one duty and one standby supply this water to the pipe system.

FIRE EXTINGUISHER

For fire-fighting purposes, the fire extinguisher is considered as a portable device that can be moved at any position away from where it is kept. It is also light enough to be carried by hand which makes it very convenient. There are various different types of fire extinguishers that are for different circumstances and functions. In the case of Block G

UCSI KL Campus, the type of fire extinguisher is the type 1 fire extinguisher.

UBBL 1984

PART VIII: FIRE ALARMS, FIRE DETECTION, FIRE EXTINGUISHMENT AND FIRE

FIGHTING ACCESS, BY-LAW 227

Portable extinguisher shall be provided in accordance with the relevant codes of practice and shall be sited in prominent positions on exit routes to be visible from all directions and similar extinguishers in a building shall be of the same method of operation.

Figure: Water fire extinguisher Figure: Color codes for the fire extinguisher types

RAMP RATIO

Buildings require a number of different types of access abilities. This is due to the fact that different people require different types of attention in order to be fully accommodated and comfortable. People who find it hard to climb stairs or are on

wheelchairs requires ramps to be able to go in and out of the building. Especially during a fire escape, it important to keep everyone in mind for the safety of the majority

Block G building in the UCSI KL Campus has a ramp that gives access to the building from the back. The ramp ratio and slope is calculated below:

Figure: Dimensions and calculation for the ramp ratio

AR518 Design Studio 5- Portfolio & Technical Report

DRAWING NUMBER DRAWING TITLE

REVISED DRAWINGS

15 / AR 524 / SEM21-01 / L / 01

- KEY PLAN

- LOCATION PLAN

* CHANGED DRAWING, ADDED STREET AND RIVER NAMES, ADDED SITE LOCATION

15 / AR 524 / SEM21-01 / SP / 01 - SITE PLAN

* ADDED FIRE APPLIANCE ACCESS AND FIRE HYDRANT LOCATION

15 / AR 524 / SEM21-01 / P / 02 - GROUND FLOOR PLAN

* ADDED PURPOSE GROUP, TRAVEL DISTANCE, AND EXIT WIDTH

15 / AR 524 / SEM21-01 / P / 04 - GROUND FLOOR PLAN

* UPDATED FIRE EXTINGUISHING SYSTEM

15 / AR 524 / SEM21-01 / D / 01 - STAIRCASE DETAIL

* NO REVISION

DRAWING NUMBER DRAWING TITLE

ADDED DRAWINGS

15 / AR 524 / SEM21-01 / P / 06

- FIRST FLOOR PLAN

- PURPOSE GROUP, TRAVEL DISTANCE, EXIT WIDTH

15 / AR 524 / SEM21-01 / P / 07

- FIRST FLOOR PLAN

- FIRE EXTINGUISHING SYSTEM

15 / AR 524 / SEM21-01 / S / 01

- SECTION A-A

- HORIZONTAL EXIT, VERTICAL EXIT, PURPOSE GROUP

15 / AR 524 / SEM21-01 / S / 02

- SECTION B-B

- HORIZONTAL EXIT, VERTICAL EXIT, PURPOSE GROUP

15 / AR 524 / SEM21-01 / E / 01 - FRONT ELEVATION

15 / AR 524 / SEM21-01 / D / 02 - SECTION Y-Y

- CONSTRUCTION DETAIL

15/ AR 524 / SEM21-01 / T / 01

- TABULATION 1

- CALCULATION OF VOLUME, AREA, AND BUILDING HEIGHT

15 / AR 524 / SEM21-01 / T / 02

- TABULATION 2

- CALCULATION OF OCCUPATIONAL LOAD AND EXIT WIDTH

15 / AR 524 / SEM21-01 / P / 8 - ROOF PLAN

PROPOSED TO BUILD A 2 STOREY CROSS-CULTURAL MANGROVE REPLANTATION WORKSHOP AT NO. 420 LOT 6969, KAMPUNG PASIR PANJANG,JALAN PASIR PANJANG, 32000 SITIAWAN, PERAK

Prepared by Sylvester Gabriel Hong Kah Weng 1001746722

DRAWING TITLE DRAWING NO. REVISION LIST 15 / AR 524 / SEM21-01 REV/ 01 DRAWING TITLE DRAWN BY:
GABRIEL HONG KAH WENG STUDENT NUMBER: 1001746722 SCALE: DATE: REMARKS: NTS 2.5.2021
SYLVESTER
N

AR518 Design Studio 5- Portfolio & Technical Report

PROPOSED TO BUILD A 2 STOREY CROSS-CULTURAL MANGROVE REPLANTATION WORKSHOP AT NO. 420 LOT 6969, KAMPUNG PASIR PANJANG,JALAN PASIR PANJANG, 32000 SITIAWAN, PERAK

Prepared by Sylvester Gabriel Hong Kah Weng 1001746722

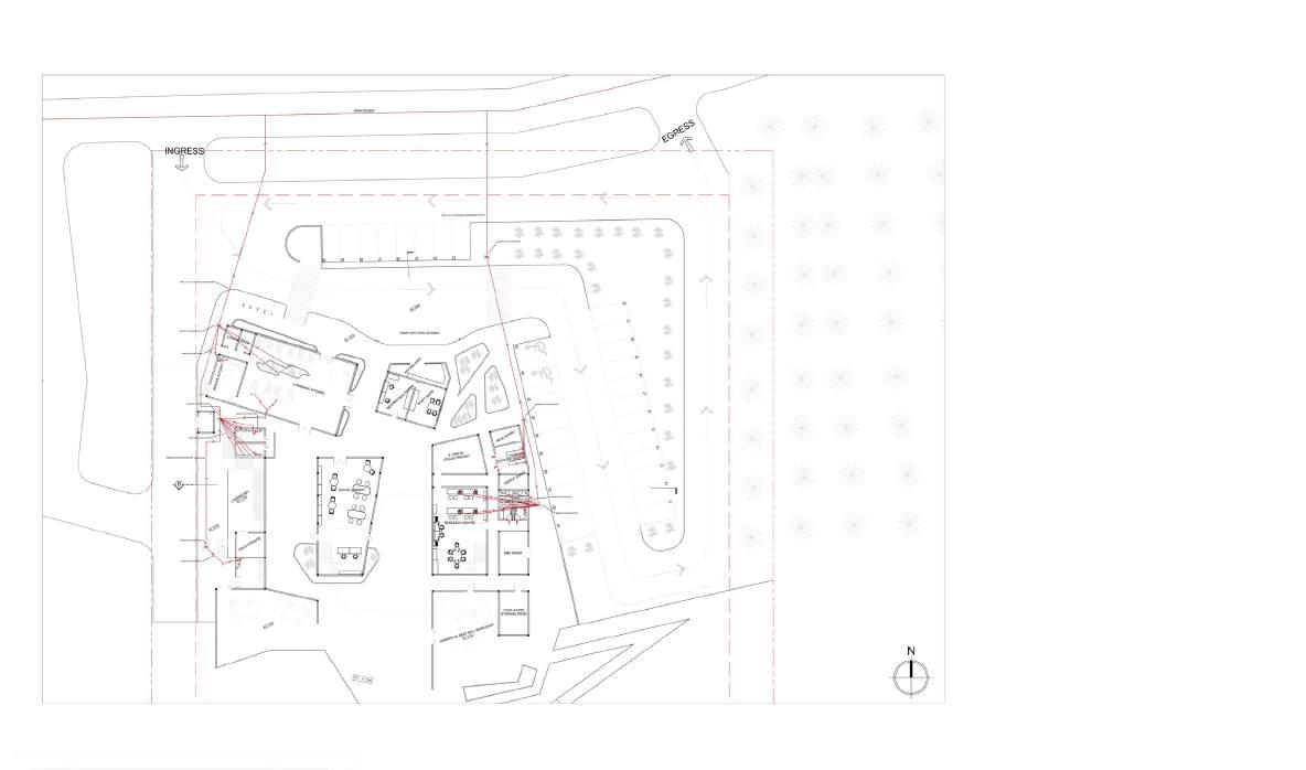
EGRESS INGRESS B A H H Legends Fire Appliance Access Assembly Point Fire Hydrant H Assembly Point DRAWING TITLE DRAWING NO. SITE PLAN 15 / AR 524 SEM21-01 / SP 01 DRAWING TITLE DRAWN BY: SYLVESTER GABRIEL HONG KAH WENG STUDENT NUMBER: 1001746722 SCALE: DATE: REMARKS: 1:300 2.5.2021 N
REVISION: SITE PLAN 1:300 SP01 ADDED FIRE APPLIANCE ACCESS AND FIRE HYDRANT LOCATION

AR518 Design Studio 5- Portfolio & Technical Report

PROPOSED TO BUILD A 2 STOREY CROSS-CULTURAL MANGROVE REPLANTATION WORKSHOP AT NO. 420 LOT 6969, KAMPUNG PASIR PANJANG,JALAN PASIR PANJANG, 32000 SITIAWAN, PERAK

Prepared by Sylvester Gabriel Hong Kah Weng 1001746722

INGRESS DIGITALLIBRARY MANGROVE/REEFBALLWORKSHOP STAFFROOM RESEARCHCENTRE E- WASTE COLLECTING BAY PLANTATIONDECK DROP OFF/ PICK UP AREA M&EROOM MALESURAU FEMALESURAU A B COMMUNALKITCHEN SERVICE KITCHEN LOCKERROOM COLDSTORAGE LOADINGBAY WAITINGAREA INFORMATIONCENTRE STAFFROOM Legends Group V - Shop Group VII - Place of Assembly Group IV - Office DRAWING TITLE DRAWING NO. GROUND FLOOR PLAN PURPOSE GROUP 15 / AR 524 SEM21-01 / P / 02 DRAWING TITLE DRAWN BY: SYLVESTER GABRIEL HONG KAH WENG STUDENT NUMBER: 1001746722 SCALE: DATE: REMARKS: 1:200 2.5.2021
EGRESS
REVISION: ADDED PURPOSE GROUP N GROUND FLOOR PLAN 1:200 1 P02

AR518 Design Studio 5- Portfolio & Technical Report

PROPOSED TO BUILD A 2 STOREY CROSS-CULTURAL MANGROVE REPLANTATION WORKSHOP AT NO. 420 LOT 6969, KAMPUNG PASIR PANJANG,JALAN PASIR PANJANG, 32000 SITIAWAN, PERAK

Prepared by Sylvester Gabriel Hong Kah Weng 1001746722

INGRESS DIGITAL LIBRARY MANGROVE/REEFBALLWORKSHOP STAFF ROOM RESEARCH CENTRE E- WASTE COLLECTING BAY PLANTATIONDECK DROP OFF/ PICK UP AREA M&E ROOM MALE SURAU FEMALE SURAU A B COMMUNALKITCHEN SERVICE KITCHEN LOCKERROOM COLD STORAGE LOADINGBAY WAITINGAREA INFORMATIONCENTRE STAFFROOM 14M 12M 11M 10M H H 4.3M 6M 7M 4.2M 6.5M 3.4M 3.3M 3.4M 3.4M 8.5M 9.6M 5.8M 12M 12M 1 P03 DRAWING TITLE DRAWING NO. GROUND FLOOR PLAN TRAVEL DISTANCE, EXIT DOORS, VERTICAL EXIT 15 AR 524 / SEM21-01 / P / 03 DRAWING TITLE DRAWN BY: SYLVESTER GABRIEL HONG KAH WENG STUDENT NUMBER: 1001746722 SCALE: DATE: REMARKS: 1:200 2.5.2021
EGRESS
REVISION: N GROUND FLOOR PLAN 1:200 Legends H Fire Hydrant Keluar Signage Travel Distance Vertical Exit

AR518 Design Studio 5- Portfolio & Technical Report

PROPOSED TO BUILD A 2 STOREY CROSS-CULTURAL MANGROVE REPLANTATION WORKSHOP AT NO. 420 LOT 6969, KAMPUNG PASIR PANJANG,JALAN PASIR PANJANG, 32000 SITIAWAN, PERAK

Prepared by Sylvester Gabriel Hong Kah Weng 1001746722

INGRESS DIGITAL LIBRARY MANGROVE/REEFBALLWORKSHOP STAFF ROOM RESEARCH CENTRE E- WASTE COLLECTING BAY PLANTATIONDECK DROP OFF/ PICK UP AREA M&E ROOM MALESURAU FEMALESURAU A B COMMUNALKITCHEN SERVICE KITCHEN LOCKERROOM COLDSTORAGE LOADINGBAY WAITINGAREA INFORMATIONCENTRE STAFFROOM H H Legends H Fire Hydrant Hose Reel Fire Alarm/ Break Glass Dry Powder CO2 Portable Fire Extinguisher, 2kg Keluar Signage 1 P04 DRAWING TITLE DRAWING NO. GROUND FLOOR PLAN FIRE EXTINGUISHING SYSTEM 15 / AR 524 SEM21-01 / P / 04 DRAWING TITLE DRAWN BY: SYLVESTER GABRIEL HONG KAH WENG STUDENT NUMBER: 1001746722 SCALE: DATE: REMARKS: 1:200 2.5.2021
EGRESS
REVISION: ADDED FIRE EXTINGUISHING SYSTEM N GROUND FLOOR PLAN 1:200

Group V - Shop Group VII - Place of Assembly Group IV -

PROPOSED TO BUILD A 2 STOREY CROSS-CULTURAL MANGROVE REPLANTATION WORKSHOP AT NO. 420 LOT 6969, KAMPUNG PASIR PANJANG,JALAN PASIR PANJANG, 32000 SITIAWAN, PERAK

Prepared by Sylvester Gabriel Hong Kah Weng 1001746722

AR518 Design Studio 5- Portfolio & Technical Report
INGRESS
DROP OFF/ PICK UP AREA A CO-WORKING SPACE
EGRESS
PLANTATIONDECK
Legends
DRAWING TITLE DRAWING NO. FIRST FLOOR PLAN PURPOSE GROUP 15 / AR 524 SEM21-01 / P / 05 DRAWING TITLE DRAWN BY: SYLVESTER GABRIEL HONG KAH WENG STUDENT NUMBER: 1001746722 SCALE: DATE: REMARKS: 1:200 2.5.2021
Office
REVISION: N FIRST FLOOR PLAN 1:200 1 P05

AR518 Design Studio 5- Portfolio & Technical Report

PROPOSED TO BUILD A 2 STOREY CROSS-CULTURAL MANGROVE REPLANTATION WORKSHOP AT NO. 420 LOT 6969, KAMPUNG PASIR PANJANG,JALAN PASIR PANJANG, 32000 SITIAWAN, PERAK

Prepared by Sylvester Gabriel Hong Kah Weng 1001746722

INGRESS PLANTATIONDECK DROP OFF/ PICK UP AREA A CO-WORKING SPACE 19M 18M 19M 1 P06 DRAWING TITLE DRAWING NO. FIRST FLOOR PLAN TRAVEL DISTANCE, EXIT DOORS, VERTICAL EXIT 15 / AR 524 SEM21-01 / P / 06 DRAWING TITLE DRAWN BY: SYLVESTER GABRIEL HONG KAH WENG STUDENT NUMBER: 1001746722 SCALE: DATE: REMARKS: 1:200 2.5.2021
EGRESS
REVISION: N FIRST FLOOR PLAN 1:200 Legends H Fire Hydrant Keluar Signage Travel Distance Vertical Exit

AR518 Design Studio 5- Portfolio & Technical Report

PROPOSED TO BUILD A 2 STOREY CROSS-CULTURAL MANGROVE REPLANTATION WORKSHOP AT NO. 420 LOT 6969, KAMPUNG PASIR PANJANG,JALAN PASIR PANJANG, 32000 SITIAWAN, PERAK

Prepared by Sylvester Gabriel Hong Kah Weng 1001746722

INGRESS PLANTATIONDECK DROP OFF/ PICK UP AREA A CO-WORKING SPACE Legends H Fire Hydrant Hose Reel Fire Alarm/ Break Glass Dry Powder CO2 Portable Fire Extinguisher, 2kg Keluar Signage 1 P07 DRAWING TITLE DRAWING NO. FIRST FLOOR PLAN FIRE EXTINGUISHING SYSTEM 15 / AR 524 SEM21-01 / P / 07 DRAWING TITLE DRAWN BY: SYLVESTER GABRIEL HONG KAH WENG STUDENT NUMBER: 1001746722 SCALE: DATE: REMARKS: 1:200 2.5.2021
EGRESS
REVISION: N
1:200
FIRST FLOOR PLAN

PROPOSED TO BUILD A 2 STOREY CROSS-CULTURAL MANGROVE REPLANTATION WORKSHOP AT NO. 420 LOT 6969, KAMPUNG PASIR PANJANG,JALAN PASIR PANJANG, 32000 SITIAWAN, PERAK

Prepared by Sylvester Gabriel Hong Kah Weng 1001746722

AR518 Design Studio 5- Portfolio & Technical Report
VOID VOID VOID FRONT ELEVATION 1:150 1 E01 DRAWING TITLE DRAWING NO. FRONT ELEVATION BUILDING SERVICES ASSIGNMENT 1 15 / AR 524 SEM21-01 / E / 01 DRAWING TITLE DRAWN BY: SYLVESTER
STUDENT NUMBER: 1001746722 SCALE: DATE: REMARKS: 1:150 2.5.2021
GABRIEL HONG KAH WENG
N

Legends

Group V - Shop

Group VII - Place of Assembly

Group IV - Office

PROPOSED TO BUILD A 2 STOREY CROSS-CULTURAL MANGROVE REPLANTATION WORKSHOP AT NO. 420 LOT 6969, KAMPUNG PASIR PANJANG,JALAN PASIR PANJANG, 32000 SITIAWAN, PERAK

Prepared by Sylvester Gabriel Hong Kah Weng 1001746722

AR518
Design Studio 5- Portfolio & Technical Report
BOUNDARIES SETBACK DRAWING TITLE DRAWING NO. SECTION A-A BUILDING SERVICES ASSIGNMENT 1 15 / AR 524 SEM21-01 / S / 01 DRAWING TITLE DRAWN BY: SYLVESTER GABRIEL HONG KAH WENG STUDENT NUMBER: 1001746722 SCALE: DATE: REMARKS: 1:150 2.5.2021
SECTION A-A 1:150 1 S01 N

Legends

Group V - Shop

Group VII - Place of Assembly

Group IV - Office

PROPOSED TO BUILD A 2 STOREY CROSS-CULTURAL MANGROVE REPLANTATION WORKSHOP AT NO. 420 LOT 6969, KAMPUNG PASIR PANJANG,JALAN PASIR PANJANG, 32000 SITIAWAN, PERAK

Prepared by Sylvester Gabriel Hong Kah Weng 1001746722

Portfolio
AR518 Design Studio 5-
& Technical Report
VOID
BOUNDARIES SETBACK SETBACK BOUNDARIES
DRAWING TITLE DRAWING NO. SECTION B-B BUILDING SERVICES ASSIGNMENT 1 15 / AR 524 SEM21-01 / S / 02 DRAWING TITLE DRAWN BY: SYLVESTER GABRIEL HONG KAH WENG STUDENT NUMBER: 1001746722 SCALE: DATE: REMARKS: 1:150 2.5.2021
Vertical Exit
1:150 1 S01 N
SECTION B-B

AR518 Design Studio 5- Portfolio & Technical Report

PROPOSED TO BUILD A 2 STOREY CROSS-CULTURAL MANGROVE REPLANTATION WORKSHOP AT NO. 420 LOT 6969, KAMPUNG PASIR PANJANG,JALAN PASIR PANJANG, 32000 SITIAWAN, PERAK

Prepared by Sylvester Gabriel Hong Kah Weng 1001746722

1 2 3 4 5 6 7 8 9 10 11 12 13 14 15 16 17 1000mm high 50mm dia. stainless steel handrail mounted to brick wall 2 2 200mm x 200mm 1hr fire rated reinforced concrete column without plaster 150 255 10mm thk cement and sand screed finishes reinforced concrete step 50mm dia. stainless steel handrail 25mm dia. stainless steel baluster DRAWING TITLE DRAWING NO. COMMON STAIRCASE DETAIL BUILDING SERVICES ASSIGNMENT 1 15 / AR 524 SEM21-01 / D 01 DRAWING TITLE DRAWN BY: SYLVESTER GABRIEL HONG KAH WENG STUDENT NUMBER: 1001746722 SCALE: DATE: REMARKS: 1:25 2.5.2021
N STAIRCASE PLAN 1:25 1 D01 STAIRCASE DETAIL 1:10 3 D01 1:10
Technical
AR518 Design Studio 5- Portfolio &
Report
Prepared by Sylvester Gabriel Hong Kah Weng 1001746722
AR518 Design Studio 5- Portfolio & Technical Report
Prepared by Sylvester Gabriel Hong Kah Weng 1001746722 Prepared by Sylvester Gabriel Hong Kah Weng 1001746722

AR518 Design Studio 5- Portfolio & Technical Report

Prepared by Sylvester Gabriel Hong Kah Weng 1001746722 ing Area NTS

AR518 Design Studio 5- Portfolio & Technical Report

Prepared by Sylvester Gabriel Hong Kah Weng 1001746722

AR518 Design Studio 5- Portfolio & Technical Report

Prepared by Sylvester Gabriel Hong Kah Weng 1001746722

Turn static files into dynamic content formats.

Create a flipbook
Issuu converts static files into: digital portfolios, online yearbooks, online catalogs, digital photo albums and more. Sign up and create your flipbook.
ARCHITECTURAL PORTFOLIO SEMESTER 5 by Sylvester Gabriel Hong - Issuu