
01 APL SERVICE AREAHAZARA-HAVELIAN EXPRESSWAY

02 COMMUNITY MOSQUEDHA-V ISLAMABAD



03 PAK ARMY MEMORIAL COMPEXISLAMABAD
04 AVICENNA MEDICAL CENTERDHA-V ISLAMABAD





![]()

01 APL SERVICE AREAHAZARA-HAVELIAN EXPRESSWAY

02 COMMUNITY MOSQUEDHA-V ISLAMABAD



03 PAK ARMY MEMORIAL COMPEXISLAMABAD
04 AVICENNA MEDICAL CENTERDHA-V ISLAMABAD





This motorway service area project represents a holistic approach to modern urban design, where functionality, sustainability, and inclusivity converge. By seamlessly integrating environmental footprint but also creates a space that feels connected to the surrounding region both in visual appeal and spirit. The careful consideration of the site’s topography terraces that offer users beautiful views of the surrounding environment.
At the heart of this design is inclusivity. The focus on disability accessibility ensures that all travelers can access the facility with ease. Thoughtful design choices, such as impaired individuals can navigate the space comfortably and independently. Accessibility isn’t just about physical spaces but also about creating an experience where all commitment to creating a secure environment. The focus on lighting, clear sightlines, and strategic security features helps foster a sense of safety and confidence for all the needs of female travelers, who often require different types of services for their comfort and privacy.
This motorway service area is more than just a place for travelers to rest. It is a community-oriented space that embodies the principles of safety, sustainability, and accessibility, the well-being of individuals and the environment are central to every decision. By prioritizing social responsibility, environmental stewardship, and economic sustainability, can shape the built environment to create a positive, lasting impact.

integrating the building into the natural landscape, respecting the sloping terrain, and utilizing local materials and building aesthetics, the design not only minimizes its topography ensures that the buildings remain sensitive to the land, avoiding disruption of the existing contours, natural drainage paths and landscape, while creating wheelchair ramps, elevators, and wide doorways, allow the service area to be truly welcoming to everyone. Tactile pathways and Braille signage ensure that visually users feel respected and valued. Incorporating safety features in public and private spaces that prioritize women and vulnerable populations further demonstrates a visitors. Women-specific amenities, such as secure and private restrooms, as well as nursing areas, ensure that the space accommodates accessibility, fostering a sense of well-being and belonging for everyone. It serves as a model for the future of infrastructure design, where sustainability, this service area project goes beyond the functional needs of the motorway—it is a testament to how thoughtful, responsible design





USING PARKING AS A TRASITION BETWEEN THE SERVICE ROAD AND LANDSCAPING.



The site came with many challenges which compounded with a demanding project scope of designing forty unique buildings, each with their own requirements and challenges. These constraints were taken as opportunities to inform the design and after analysis of the local vernacular architecture.
The design elements and proportions used to develop the design language was what best matched the existing aesthetic as well as reflective the surrounding materiality. The architectural form for each strcuture was carefully planned to adapt to the topography, ensuring minimal disruption to the natural landscape while offering panoramic views for travelers.
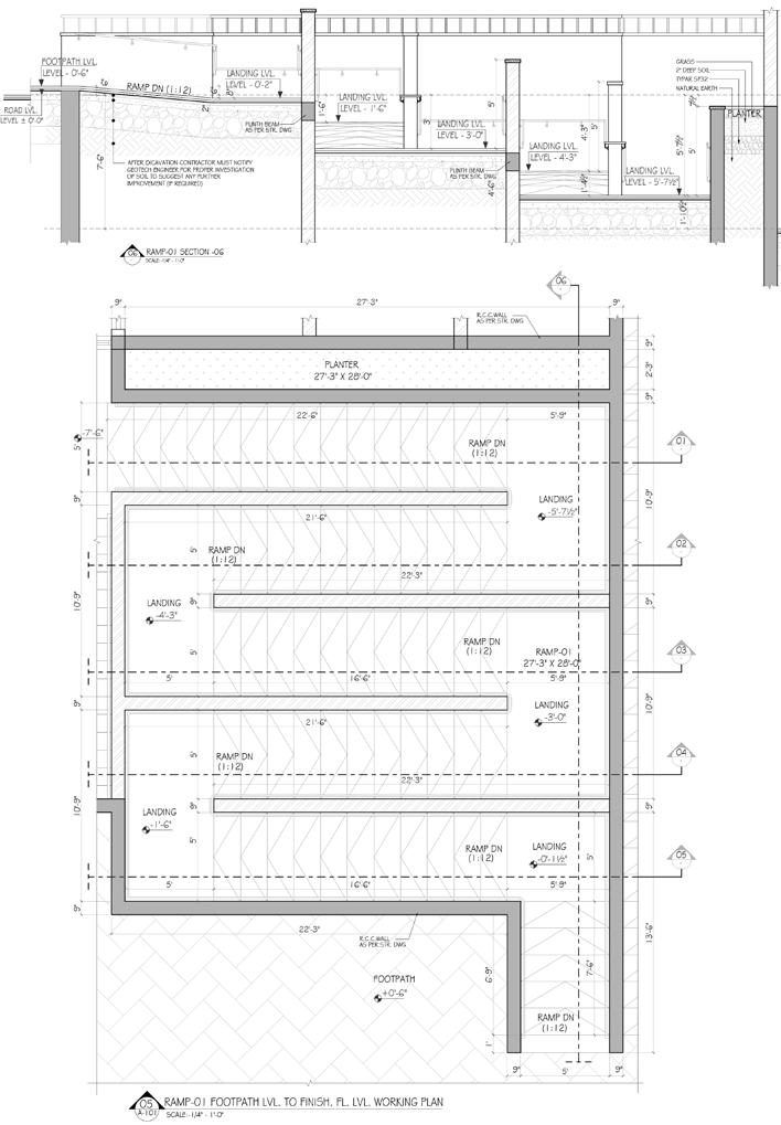
End-to-end there was a difference of sixty five feet along the length of the site. This informed our stormwater management and drainage design decisions. The slope also let us design the intervention on terraced sections with varying elevations, and gave us the opportunity to include disabled parking and accesbility throughout the site.
From a sustainability point of view, rainwater harvesting tanks, solar panel parking structures and solar-geysers systems were used throughout the project to reduce the electrical and water consumption load of a site of such a scale. Rainwater tanks were concentrated along programs with high water usage, like car washes etc. In the design of landscaping as well, gravel beds were used to allow maximum drainage of water into the water table.
Natural landscaping and terraced green spaces are also incorporated into the slope, promoting relaxation and green spaces for travelers to enjoy. The placement of trees and plants near buildings to lower the solar heat gain, and therefore the need for airconditioned interiors. The majority of the flora used in the landscape design were those that are local to the area. This makes sure the impact on the local ecosystem is as low as possible
For women’s public restroom areas, the entrances were kept with sightlines to the parking, keeping both the safety and privacy of the users in mind. Similarly in the mosque, the women’s entrance was given the as monumentality as that of their male counterparts, reflecting equity in architectural design.
One section of the design was also alloted to truckers and high vechile drivers, providing them with the necessary rest area and a desinated parking. Similarly, a provision for school buses was also added along with a children’s play area was provided in the design to cater to the school trips that frequent the area.


The buildings proposal includes energy-efficient materials such as high-performance insulation, recycled steel, and lowemission glazing. Energy-efficient LED lighting, motion sensors, and energy-efficient HVAC systems ensure that energy consumption is minimized, while large windows optimize daylight penetration, reducing the need for artificial lighting. The facility includes electric vehicle (EV) charging stations and bicycle racks, encouraging eco-friendly transportation alternatives.
Natural finishes are used throughout the interior, including wood paneling, stone flooring, and terracotta detailing, which enhances the tactile and visual experience of the space. The local material palette is chosen not only for its environmental benefits but also for its aesthetic qualities, offering a sense of connection with the region’s heritage and natural beauty. The building is designed to reduce its carbon footprint by utilizing locally sourced building materials, such as locally quarried stone and gravel, from local vendors, thereby reducing transportation emissions and supporting the regional economy.


CREATING POINTS OF INTERACTION BETWEEN ADJACENT SPACES











The community mosque project involves the design and construction of a large-scale mosque, capable of accommodating up to 1,300 worshippers, between two highly cultural respect, functionality, and spiritual experience. The design is a thoughtful combination of contemporary materials and techniques, intertwined with traditional Islamic
The key design feature of the mosque is its striking red brick Jaali (lattice) work, which plays a pivotal role in both the aesthetics and environmental comfort of the building. maintaining privacy and cooling the internal spaces. The modularity of the brickwork follows varying rhythmic, geometric patterns that enhance the architectural coherence with the brick module, creating a unified and harmonious design language.

population sectors in DHA-V, Islamabad. The mosque is envisioned as a harmonious blend of modern and traditional construction methods, with an emphasis on Islamic architectural elements, ensuring a timeless presence in the community.
building. The Jaali, a traditional feature, is intricately designed and implemented across the façade, allowing natural light to filter through while coherence of the structure. Every element of the mosque, from its imposing minarets to the intricate roof detailing, is carefully proportioned in-line

In addition to its primary function as a place of worship, the mosque provides a broad range of community services to cater to the toward the public park, located adjacent to the site, providing easy access and a tranquil setting for both the worshippers and the community.
This allows visitors to enjoy the green space, reflect, and engage in social activities without interferring with the primary entrances. worshippers. These buffers also protect the mosque from noise and visual disturbance, creating a serene and sacred space for reflection.



spiritual, educational, and social needs of the public. Public Courtyard has been given as a gathering space, strategically located community.
The mosque’s boundary maintains privacy buffers, such as trees and landscaped zones, to ensure a peaceful environment for reflection. The courtyard is framed by landscaped gardens and provides shaded areas for visitors to relax.




The mosque is carefully designed to balance the traditional needs of Islamic worship with the practicalities of modern life. Special attention has been given to the proportions of the mosque, ensuring that the layout and spatial organization follow a modular system that respects the inherent dimensions of the red brick.
This careful attention to proportion enhances the spiritual experience, harkens to the traditional symmetric design aesthetics of typical islamic architecture and provides an overall sense of balance and calm to the worshippers.
Ventilation, particularly in the ablution areas, has been another central consideration. The design incorporates natural ventilation techniques to ensure that these spaces are well-ventilated, promoting a comfortable and hygienic environment. The orientation of the mosque and its strategic placement of windows and air vents also help to enhance airflow, while the use of brickwork for the façade supports temperature regulation, keeping the interior cool during hot weather and warm during colder months.

The design of the mihrab, the focal point of the prayer hall, is a defining feature of the mosque. The mihrab is carefully aligned with the setting sun, enhancing the architectural experience for worshippers as they pray towards Mecca. This thoughtful alignment not only adds to the spiritual experience but also creates a visual connection with the natural world, symbolizing the relationship between the mosque and the universe.



Sustainability is deeply embedded into the design of this mosque. The structure takes advantage of passive design strategies, such Solar panels are incorporated into the roof to generate renewable energy for the mosque, helping to power the building in an eco-friendly
The extensive use of local materials, especially the red brick, reduces the carbon footprint of the construction, while also supporting water usage and support the mosque’s maintenance and landscaping needs. Additionally, the mosque’s landscaping design incorporates
The mosque is designed with accessibility in mind. Thoughtful care has been taken to ensure that all areas, including prayer halls, ablution doorways, and accessible restrooms to ensure inclusivity for all users.
Women’s safety and comfort are prioritized in this mosque. Dedicated spaces for women’s prayer and gatherings are provided with private space for worship. Additional safety features, such as clear sightlines, well-lit pathways, CCTV monitoring, and secure entrances,

such as natural lighting, ventilation, and shading, to reduce the reliance on artificial lighting and mechanical cooling systems. eco-friendly manner.
supporting the local economy. Water conservation measures are in place, including rainwater harvesting systems, which help to reduce incorporates drought-resistant plants, creating an eco-friendly and low-maintenance green space.
ablution spaces, and educational facilities, are fully accessible to people with disabilities. The design incorporates ramps, wider
with ample natural light and ventilation. The women’s prayer hall is placed in a prime location, ensuring easy access and a quiet, entrances, are integrated into the design to ensure a secure environment for all users.

The mosque houses a public library that offers Islamic literature, religious texts, and general educational resources, promoting intellectual that necessary religious and cultural practices are followed with dignity and respect. The space is designed to be discreet and functional,
Additionally, a soup kitchen has been provided as a social welfare initiative providing meals for those in need, reinforcing the mosque’s
The mosque also accommodates an Islamic school, offering both religious education and general studies. It serves as a center for



intellectual growth within the community. A dedicated space for the preparation of the deceased has been provided as well, ensuring functional, adhering to the traditions of Islamic burial practices.
mosque’s commitment to community care and supporting those facing financial hardship. for the transmission of knowledge, where children and adults alike can learn about Islam, its history, and its cultural heritage.




The competition entry for the Pakistan Army Memorial Complex is a masterful integration of architecture and emotional experience, where the that guides visitors through a journey of reflection and personal engagement. The complex is envisioned as a sequence of interconnected spaces, create moments of tension and release, symbolizing the contrasts of sacrifice—strength and vulnerability, life and loss.
Materiality plays a significant role, with the use of somber yet timeless materials—such as weathered steel, stone, and glass—evoking the permanence the space to speak through its geometry and proportion, offering a quiet dialogue with the surroundings. Light and shadow are carefully orchestrated, and the cyclical nature of remembrance.
The design invites visitors to engage not just with the architecture, but with their own inner reflections, creating a deeply personal experience. that does more than commemorate—it becomes a vessel for individual and collective memory.


the concept of sacrifice is embedded at its core. The design transcends conventional memorial architecture, proposing a spatial narrative spaces, each evoking a different emotional and psychological response. The spatial organization utilizes axial alignments and varying scales to
permanence of the past and the fragility of memory. The form of the memorial is minimalist, allowing orchestrated, casting dramatic effects at different times of the day, symbolizing the passing of time
The journey through the complex is intended to provoke introspection, creating a space

The landscape that cradles these structures is not merely an adornment but a profound extension of the memorial’s soul. The weeping willows, with their drooping branches, seem to mourn, their very presence heavy with the sorrow of sacrifice. that refuse to fade.

Each olive tree, a symbol of peace and the hardwon fruits of sacrifice, stands as a living testament to those who have given their all
The scent of motia (jasmine) lingers in the air, a fragrant reminder of the land’s history, of stories whispered through the leaves, and of memories

AXONOMETRIC MASTER PLAN

THE SCAPE



This concept is reflected in the spatial organization and the architectural narrative, where each element of the utes to a cohesive whole. The design seeks to honor not just the sacrifices of individual soldiers, but the collective and strength that emerges from their combined efforts.
This concept is reflected in the spatial organization and the architectural narrative, where each element of the utes to a cohesive whole. The design seeks to honor not just the sacrifices of individual soldiers, but the collective and strength that emerges from their combined efforts.



the complex contrib collective spirit of unity
the complex contribcollective spirit of unity





The proposed Army War Memorial Complex is con ceived with this profound sense of sacrifice at its core. The architectural vision for the complex is not merely to construct buildings but to craft an experience—a journey that allows visitors to engage with the meaning of sacrifice in a deeply personal and reflective manner.

The proposed Army War Memorial Complex is conceived with this profound sense of sacrifice at its core. The architectural vision for the complex is not merely to construct buildings but to craft an experience—a journey that allows visitors to engage with the meaning of sacrifice in a deeply personal and reflective manner.




The Museum, with its meticulously curated exhibits, becomes a narrative woven from threads of sacrifice, where every artifact tells a tale of courage, loss, and unyielding resolve.
The plan lays out a seamless flow of the user directing them towards the idea of learning, absorbing and getting prepared for the next step of the journey to come. The displays wrap on the side of the walk sneaking peaks into the climax of the architectural narrative.
The inside space uses galleries for immersive experiences for the users starting from a narrative build up and slowly taking the user through the journey of multidimensional 4D experiences using lighting, VR, soundscapes etc. The spatial qualities match the overall exterior pallette for the complex, earthy nuetrals.




The Library, a sanctuary of reflection, offers a quiet embrace to those who seek to understand, to learn, and to remember.Though these structures stand apart in their architectural expressions, they are unified by the warm, “mitti earthy tones of their materials—a palette that whispers of unity, of shared purpose, and of the common values that knit them into a single, cohesive story.



The Avicenna Medical Center is a pioneering healthcare facility that blends cutting-edge technology, contemporary design principles, and sustainability healing, accessibility, and efficiency while respecting its surrounding neighborhood. It serves as the intermediatory service provider oas well as
Its contemporary form and emphasis on accessibility ensure that it is a welcoming space for all, while its environmental initiatives reinforce its The project is a prime example of how thoughtful architecture can enhance healthcare delivery and positively impact the surrounding community

sustainability to create a state-of-the-art medical environment within a residential context. The project focuses on providing a space that fosters as immediate triage during emergency situations. its commitment to a sustainable future. community

In an era where healthcare facilities often feel detached from the everyday lives of the people they serve, the Avicenna Medical Center


The design of the Avicenna Medical Center draws inspiration from modern architectural principles, emphasizing clean lines, open spaces, and transparency. The building’s form is minimalist yet bold, with a dynamic facade that incorporates cutting-edge materials such as glass, steel, and sustainable composites. The interior spaces are designed to be flexible, easily adaptable to future healthcare innovations, and comfortable for patients and staff alike.
Natural light is a key element of the design, with large windows and skylights throughout the building, creating bright and welcoming environments. The interiors combine functionality with aesthetics, utilizing warm materials and calming colors to enhance the healing atmosphere. Aiming for LEED certification and minimizing its environmental footprint, the building incorporates energy-efficient systems, including solar panels, high-performance insulation, and advanced HVAC technology that reduces energy consumption.
Rainwater harvesting systems help manage stormwater and provide additional water for landscape management and upkeep.

The selection of materials was carefully chosen to minimize embodied carbon, using locally sourced and recyclable materials wherever possible. The facility also includes green spaces for relaxation and recuperation, contributing to the overall well-being of patients and staff. The center features fully integrated digital health systems, including telemedicine capabilities, smart diagnostics, and robotics-assisted surgery, ensuring high-quality care that is both efficient and patient centered.
The building is equipped with automated systems for patient flow, lighting, climate control, and security, enhancing the overall user experience for both medical professionals and patients.
Additionally, the use of AI-driven software in managing patient data and medical records ensures seamless, real-time communication within the facility and with external health networks.
Center stands as an example of how architecture can bridge the gap between the public and private realms.















































































Located within a residential area, the Avicenna Medical Center is designed to blend harmoniously with its surroundings.























The building’s scale, massing, and material palette are sensitive to the topographical contours as well as the neighborhood, ensuring that the facility serves as an asset to the community rather than an intrusion.
























The architecture responds to the residential fabric through its use of soft landscaping, green courtyards, and pedestrian-friendly pathways.











































By integrating public spaces that are open to the community, such as gym areas, a recreational garden, and a wellness area, the medical center creates a sense of belonging and connection between the healthcare facility and the neighborhood.













A wide range of medical and healthcare services are provided at this facility.
The main challenge of organizing the spaces in the medical center had to do with proximity of certain programs to the other, or to services and access points. OPD, Ambulatory and Emergency zoning helped in maintaining the optimal circulation and separation between the different sections of the center.





Ensuring accessibility is a central tenet of the design.
The Avicenna Medical Center was developed to meet the needs of a diverse community, with thoughtful consideration given to patients with varying abilities. Wide, clear circulation paths and ramps are integrated throughout the building to facilitate smooth movement for those with mobility impairments.
The facility is fully compliant with ADA standards and features user-friendly interfaces, including voice-activated systems and easy-to-read signage.
Thoughtful placement of elevators, handrails, and seating ensures the comfort and ease of navigation for all visitors.



Layout of the ramps themselves were taken as part of the overall architectural form, showcasing a holistic approach to accessibility throughout the design..

The facade uplift project for the Siddiqsons factory showcases the innovative integration of advanced parametric design tools, such as Grasshopper, reimagined using cutting-edge parametric techniques to craft a visually compelling and responsive design. The focal point of the redesign is the functional performance.
The perforations on the panels are not merely decorative but are intricately designed to form the logo, subtly embedding the company’s branding experience as the perforations interact with natural light, casting dynamic shadows and changing in appearance throughout the day. The panels By leveraging parametric design, the panels’ perforations are customized to respond to both environmental factors and the design’s overarching ensuring an organic yet cohesive flow of light to the entire building. This method of design allows for flexibility and precision, with each perforation and performance of the building envelope.
The new facade transforms the factory from a conventional industrial building into a modern, visually striking architectural statement, reflecting not only elevates the building’s appearance but also maximizes functionality, ensuring the facade serves as a fitting representation of the company’s

Grasshopper, to create a dynamic and functional exterior that reflects the company’s identity and modernity. The existing factory facade was the incorporation of galvanized, perforated aluminum panels. Each panel is parametrically designed to optimize both aesthetic appeal and branding within the architectural language of the facade. This approach not only reinforces the brand identity but also creates an engaging visual panels themselves have been finished according to the climatic requirements of the site; the coastline of Karachi. overarching aesthetic goals. Each panel’s pattern is precisely tailored based on its location on the facade, perforation optimized for light control, ventilation, and visual impact, enhancing the overall sustainability reflecting Siddiqsons’ commitment to innovation and craftsmanship. The use of advanced parametric design company’s ethos while addressing practical design requirements.



The site bounds had intersecting axis of approach, where informed the placement of the most hierachical elements of the facade.
The landscaping surrounding the factory envelope was devleoped using these axes.

The facade was designed using the proportions of the existing column grid of the factory, creating a sense of cohesion between the exospace and endospace.
The node tree shown, showcases how grasshopper divides a panel into a square-grid, locates the center of each square in the grid and then, based on the gradient modifiers, adds a circle(perforation) to the panel.
To achieve complex geometric results, each “node” in Grasshopper is used to control a parametric contraint. These can then be altered to achieve unique outcomes, tailored to the use-case.







The light system, for the facade, was design in tandem with the substructure of the panel system. This allowed for precise control over the illumination of the perforations from the inside.




