Interior design portfolio

Page 1

Syed Azaz Mustafa

Interior Designer / Architect

+971 - 507943526

syedazazmustafa@gmail.com

Al-Marsa Street, Marina Dubai

Summary Skills

Accomplished Architect / Interior Designer, with 6 years spent in Architecture and Interior Design roles in Italy, Netherlands and Dubai.

Skilled in planning, designing and managing commercial, public and residential projects from predesign phase to conceptual Design and completion of construction documents with construction site phases.

Graphic Skills

• AutoCAD

• SketchUp

• Photoshop

• InDesign

• Illustrator

• Revit

• Lumion

• Rhino

• 3dsMax / Corona

• Conceptual interior design with FF&E specification.

• Architectural design, including space planning, furniture, lighting & finishings layouts.

• Detail design, 3d renders specification. construction drawings & documentation.

• REF tender process - site supervision & coordination.

• Project planning, procurement and timeline management.

• cost planning and budgeting establishment.

Education

2011 – 2015

Bachelor of Architectural Engineering University of Engineering & Technology Lahore, Pakistan

2016 – 2018

Master of Architecture & Urban Design Polytechnic University of Milan, Italy

Professional Experience

Senior Interior Designer / Architect at Grounded Design, Dubai UAE 03 / 2022 – Present

• Managing the design process from Initial Concept to Site implementation and Handover.

• Supervision of production of 3d Renders and detail design drawings according to Detail design concept & FF&E specifications.

• Coordinating consultants, suppliers and fit-out contractors.

• Negotiating Cost Budgets and Revising Bill of Quantities, FF&E and Tender Documents

• Managing Site construction process. Solving problems on site and conflicts between parties involved in the project.

Pg 1 of 2

Professional Experience

Interior Architect at SADA Architects, Rijssen Netherlands 03 - 2021 to 02 - 2022

• Conceptualizing, designing and assisting the production documents of various Architectural projects including multi-family residential complex.

• Producing detail design concept with FF&E specifications.

• Producing conceptual 3d Renders and design drawings according to Detail design concept & FF&E specifications.

• Coordinating consultants, suppliers and fit-out contractors.

Interior Designer / Architect - 10 – 2018 to 01 -2021 at Faisal Associates , Lahore, Pakistan Junior Architect - 07 – 2015 to 02 -2016 at Faisal Associates , Lahore, Pakistan

• Conceptualizing, designing and assisting the production documents of various Architectural projects including residential single-family houses to commercial projects.

• Producing detail design concept with FF&E specifications.

• Managing the teams and supervising the production of 3d Renders and detail design drawings.

• Coordinating consultants, suppliers and fit-out contractors.

• Preparing Deliverables for Approvals.

Architectural Intern at Gianluca Milese Architects, Milan, Italy 09 - 2017 to 03 - 2018

• Assisting Senior Architects with space planning of various residential projects.

• Producing conceptual 3d sketches for façade design.

• Producing initial architectural renderings on Lumion for conceptual design phase of projects

Reference

• Federica@grounded.design

Pg 2 of 2

* APARTMENT - ONE AT PALM BY OMNIYAT DUBAI, UAE

* VILLA 23 AT ARABIAN RANCHES DUBAI, UAE

* BEACH HOUSE SAINT TROPEZ, FRANCE

* CONCEPT PROPOSAL, HOPITALITY

* FITNESS CLUB - DUBAI CITY WALL, UAE

* TRANS HUB BLUE WATERS ISLAND, UAE

UP UP 1:100 FLOOR PLAN LEGEND: NOTE: - ALL MEASUREMENTS MUST BE VERIFIED ON SITE PRIOR TO CONSTRUCTION/FABRICATION AND FINAL POSITIONING OF FIT-OUT WORKS, FIXTURES AND SERVICE OUTLETS. GROUND FLOOR DEMOLITIONS PLAN PM ID067-DP-107.1 REV. 00 24.05.2023 PM SCHEMATIC DESIGN The contractor is responsible for verifying correct dimensions on site and should send detailed drawings before construction to GROUNDED DESIGN. Update Date Scale Drawn by Sheet # File Drawing Project Client ID Revision No. Date Revised By The drawing is property of Grounded Design and is protected under copyright. Reproduction is prohibited. 1m 2m 0 5m RACHIT GULATI AND ALEFIA SALEEM 063 PM ARABIAN RANCHES AS SHOWN MAID'S ROOM KITCHEN LAUNDRY ELEC. ROOM SERVICE PASSAGE STORE POWDER ROOM FOYER STORE STAIR LOBBY FAMILY LIVING TERRACE DINING OPEN COURTYARD FORMAL LIVING GUEST BEDROOM GARAGE STORE MAID'S BATH GUEST BATHROOM 08.08.2023 REV. 01 15.06.2023 PM REV. 02 08.08.2023 PM UP UP UP DKP KP KP TS DKP DKP DKP DKP DKP POWER LEGENDS: SYMBOL DESCRIPTION SINGLE SOCKET OUTLET MEP NOTE: TOTAL AMOUNT OF POWER AND SWITCH OUTLETS ARE SUBJECT TO FINAL LOAD CALCULATION BY MEP CONSULTANT. DOUBLE CONVENIENCE OUTLET JUNCTION BOX / ELECTRICAL PROVISION NO. OF SOCKET OUTLET WITH USB PORT DATA POINT TELEVISION ANTENNA OUTLET THERMOSTAT DRYER SHAVER SOCKET TOUCH SCREEN (MAIN SWITCH) DISPLAY KEYPAD WITH THERMOSTAT KEYPAD TS KP DKP LIGHTING LEGENDS: MAIN DISTRIBUTION BOARD DISTRIBUTION BOARD POWER LEGENDS NOTES: INDICATES NEW/PROPOSED POWER SOCKETS INDICATES EXISTING POWER SOCKETS REV. 00 GROUND FLOOR POWER LAYOUT PLAN PM ID067-PL-106.1 24.05.2023 PM SCHEMATIC DESIGN 1:100 PLAN The contractor is responsible for verifying correct dimensions on site and should send detailed drawings before construction to GROUNDED DESIGN. Update Date Scale Drawn by Sheet # File Drawing Project Client ID Revision No. Date Revised By The drawing is property of Grounded Design and is protected under copyright. Reproduction is prohibited. 1m 2m 0 5m RACHIT GULATI AND ALEFIA SALEEM 063 PM ARABIAN RANCHES AS SHOWN NOTE: - ALL MEASUREMENTS MUST BE VERIFIED ON SITE PRIOR TO CONSTRUCTION/FABRICATION AND FINAL POSITIONING OF FIT-OUT WORKS, FIXTURES AND SERVICE OUTLETS. MAID'S ROOM KITCHEN LAUNDRY ELEC. ROOM SERVICE PASSAGE STORE POWDER ROOM STORE FAMILY LIVING TERRACE FORMAL DINING FAMILY DINING FORMAL LIVING GUEST BEDROOM GARAGE STORE MAID'S BATH GUEST BATHROOM MAIN ENTRY STAIR LOBBY REV. 01 15.06.2023 PM OVEN REV. 02 21.06.2023 PM REV. 03 14.07.2023 PM REV. 04 01.08.2023 PM 08.08.2023 REV. 05 08.08.2023 PM UP UP UP UP LIFT DKP KP KP TS DKP DKP DKP DKP DKP POWER LEGENDS: SYMBOL DESCRIPTION SINGLE SOCKET OUTLET MEP NOTE: TOTAL AMOUNT OF POWER AND SWITCH OUTLETS ARE SUBJECT TO FINAL LOAD CALCULATION BY MEP CONSULTANT. DOUBLE CONVENIENCE OUTLET JUNCTION BOX ELECTRICAL PROVISION NO. OF SOCKET OUTLET WITH USB PORT DATA POINT TELEVISION ANTENNA OUTLET THERMOSTAT DRYER SHAVER SOCKET TOUCH SCREEN (MAIN SWITCH) DISPLAY KEYPAD WITH THERMOSTAT KEYPAD TS KP DKP LIGHTING LEGENDS: MAIN DISTRIBUTION BOARD DISTRIBUTION BOARD POWER LEGENDS NOTES: INDICATES NEW/PROPOSED POWER SOCKETS INDICATES EXISTING POWER SOCKETS REV. 00 GROUND FLOOR POWER LAYOUT PLAN PM ID067-PL-106.1 24.05.2023 PM SCHEMATIC DESIGN 1:100 PLAN The contractor is responsible for verifying correct dimensions on site and should send detailed drawings before construction to GROUNDED DESIGN. Update Date Scale Drawn by Sheet # File Drawing Project Client ID Revision No. Date Revised By The drawing is property of Grounded Design and is protected under copyright. Reproduction is prohibited. 1m 2m 0 5m RACHIT GULATI AND ALEFIA SALEEM 063 PM ARABIAN RANCHES AS SHOWN NOTE: - ALL MEASUREMENTS MUST BE VERIFIED ON SITE PRIOR TO CONSTRUCTION/FABRICATION AND FINAL POSITIONING OF FIT-OUT WORKS, FIXTURES AND SERVICE OUTLETS. MAID'S ROOM KITCHEN LAUNDRY ELEC. ROOM SERVICE PASSAGE STORE POWDER ROOM STORE FAMILY LIVING TERRACE FORMAL DINING FAMILY DINING FORMAL LIVING GUEST BEDROOM GARAGE STORE MAID'S BATH GUEST BATHROOM MAIN ENTRY STAIR LOBBY REV. 01 15.06.2023 PM OVEN REV. 02 21.06.2023 PM REV. 03 14.07.2023 PM REV. 04 01.08.2023 PM 08.08.2023 REV. 05 08.08.2023 PM UP UP 01 GROUND FLOOR PLAN MAID'S ROOM KITCHEN LAUNDRY ELEC. ROOM SERVICE PASSAGE STORE POWDER ROOM STORE FAMILY LIVING TERRACE FORMAL DINING FAMILY DINING FORMAL LIVING GUEST BEDROOM GARAGE STORE MAID'S BATH GUEST BATHROOM MAIN ENTRY STAIR LOBBY 1400 1600 BOUNDARY LINE DKP KP KP DKP DKP DKP DKP TS 01 Xref C:\Users\mia\Grounded Design Dropbox\On-going Projects\ID067 - ALEFIA ARABIAN RANCHES\02 - Design Development Drawings\100_Schematic Design Drawings\00_Master Cad DKP KP KP DKP DKP DKP DKP TS PENDANT LIGHT/CHANDELIER CEILING COVER LIGHTS MEP NOTES: TOTAL AMOUNT OF LIGHTS ARE SUBJECT TO FINAL LOAD CALCULATION BY MEP CONSULTANT CEILING HEIGHT TO BE CONFIRMED BY MEP CONSULTANT. REFER TO JOINERY ELEVATION DETAILED DRAWINGS FOR EXACT LOCATIONS OF LED LIGHTS. DOWNLIGHT LED LIGHTS WALL LIGHT INDICATES NEW/PROPOSED ELECTRICAL SWITCHES INDICATES EXISTING ELECTRICAL SWITCHES NO. OF GANG - TWO WAY SWITCH SINGLE POLE SWITCH 20A DP SWITCH FOR EXHAUST FAN SWITCH FOR CEILING FAN TOUCH SCREEN (MAIN SWITCH) DISPLAY KEYPAD WITH THERMOSTAT KEYPAD TS KP DKP ELECTRICAL LOOPING GROUND FLOOR LIGHTING LAYOUT PLAN PLAN PM ID067-LL-105.1 REV. 00 24.05.2023 PM SCHEMATIC DESIGN 1:100 NOTE: - ALL MEASUREMENTS MUST BE VERIFIED ON SITE PRIOR TO CONSTRUCTION/FABRICATION AND FINAL POSITIONING OF FIT-OUT WORKS, FIXTURES AND SERVICE OUTLETS. Dropbox\On-going Projects\ID067 - ALEFIA ARABIAN RANCHES\02 - Design Development Drawings\100_Schematic Design Drawings\00_Master Cad File (XREF)\TITLE BLOCK.dwg REV. 01 15.06.2023 PM REV. 02 21.06.2023 PM REV. 03 14.07.2023 PM REV. 04 01.08.2023 PM 08.08.2023 REV. 05 08.08.2023 PM

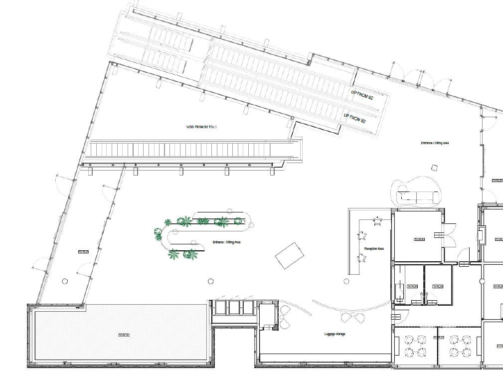
TRANS HUB BLUE WATERS ISLAND

DUBAI

Completion date : September 2024

Project budget : 2.5 MILLION AED

Project Scope :

Renovation with complete interior design scope.

My Role: Architect - Interior Designer

Space Planning Initial Concept , FF&E specs, production of DD package and 3D rendrings, and site coordination. Landscape Design and communication with on-site contractors.

Proposed Elevation Front Existing Elevation
Front

Turn static files into dynamic content formats.

Create a flipbook
Issuu converts static files into: digital portfolios, online yearbooks, online catalogs, digital photo albums and more. Sign up and create your flipbook.
Interior design portfolio by syed Azaz Mustafa - Issuu