Architecture +/- Design
SYDNEY OKORIGBA |
B.Arch Student
EDUCATION
Laurentian Universit y- McEwen School of Architecture
Bachelor of Architectural Studies, 2021- Present Dean’s Honour List
York Universit y- Lassonde School of Engineering
Bachelor of Science, Mechanical Engineering, 2017 - 2020
Transferred to Architecture
WORK EXPERIENCE
Home Depot |Deck Designer|May 2024 - Present
Developed detailed deck layout plans for 15+ projects monthly, integrating client requirements with industry best practices to ensure design viability
Utilized 2D and 3D CAD soft ware to produce comprehensive construction drawings, reducing design revisions by 25% and expediting client approvals by 20%.
material selections.
Prepared accurate estimates of lumber and hardware materials, minimizing waste, while of fering design options within budget constraints.
RONA+ |Millwork Specialist|May 2022 - August 2022 & May 2023 - Aprl 2024
Engineered custom millwork designs for 25+ projects, acting as the primary liaison bet ween clients and vendors like Jeld-Wen, to uphold design integrit y and functionality.
Coordinated and tracked over 50 orders for custom components, reducing shipment delays by 30% and ensuring seamless integration into ongoing residentialal projects.
Implemented qualit y control measures that boosted installation accuracy by 20%, enhancing overall project qualit y and client satisfaction.
McEwen School of Architecture|Student Librarian|September 2022 - April 2023
Provided supplementary support to the Librarian, catalogueing 300+ architectural resources, increasing
Updated database records and assigned call numbers to maintain a 100% accurate index, supporting informed design research.
Ikigai Denim - Creative Director, Denim design and dye craft|Dec 2020 - Present
Led design and production for a sustainable fashion brand, crafting 50+ unique, handcrafted denim pieces. Implemented slow fashion principles, reducing material waste through upcycling and small-batch production
SKILLS
Soft ware: AutoCAD, Autodesk Revit, Rhino3D, Enscape, Lumion, Grasshopper, Adobe Photoshop, Illustrator InDesign, Webdesign, eQuest
LEADERSHIP AND VOLUNTEER WORK
Vice President- Student Architects Collective, MSoA|2024 - Present Sudbur y ON
Appointed to represent the SAC in partnerships and community outreach ef forts, building bridges bet ween academia and industry to expand access and advocacy for emarging voices in architecture. Collaborating with executive members to lead initiatives that foster mentorship, and professional development within the Architecture community
Graphic Designer- The Telegraph, MSoA|2025 - Present Sudbur y ON
Developed engaging layouts and graphic assets for the Telegraph, to enhance storytelling and highlight key communit y projects.
Collaborated with editorial teams to maintain cohesive branding and ensure high-quality visual representation of student/facult y work and initiatives.
Audio/Visual Technician- Laurentian Architecture Student Association, 2021& 2022 Sudbur y, ON Appointed to represent the Architecture student body, coordinating events and activities throughout the term. Responsible for capturing and curating key aspects of architectural student life for digital publication
COMMUNIT Y PROJECTS AND HONOURS
Nuit Blanche Art Festival, 2023 & 2024
Sudbur y, ON Collaborated with a team to set up art installations, and organize the Nuit Blanche Art Festival, with activities and installations spread throughout the school premises.
UpHere Festival, 2024 Sudbur y ON Assisted in painting and restoring 2 murals across downtown Sudbury in preparation for the festival.
BigFest Ar t Festival, 2021
Toronto, ON Collaborated with a team to set up and host an arts, fashion and music festival, where several local businesses shared and presented their craft
CKCC Best Graduating Student, 2016 Ogun, Nigeria Awarded the best graduand at Christ the King Catholic College. 2016 HighSchool graduating set.
WASSCE National Merit Award, 2016 Abuja, Niger a distinctions, at the National level.
Sudbury Impact Theatre
Borgia Neighbourhood | SUDBURY, ON












Communitas North
Downtown Sudbury | SUDBURY, ON
Moulin-a-Fleur Kindergarten
Flour Mill Daycare | SUDBURY, ON
Laurentian Ecology Centre
Laurentian Conservation Area | SUDBURY, ON
‘Anchored’
Bennet Lake Sauna | SUDBURY, ON
‘Horizon’
Ramsey Lake Icehuts | SUDBURY, ON












SUDBURY IMPACT THEATRE
Downtown Sudbury Theatre
| Team Project -Fall/Winter ‘24&’25
[Ongoing project]

The Sudbury Impact Theatre & Residential Complex is a mixed-use development designed with the intent to revitalize downtown Sudbury by integrating entertainment, social interaction, and accessible urban living. At its core, the project features a cascading cinema structure, a public urban plaza, and affordable residential units tailored for growing and immigrant families. Drawing inspiration from the Fibonacci sequence, spatial play, and Chicago’s architectural motifs of obscured curiosity, the design invites exploration through a dynamic interplay of forms. The massing follows a game-like logic, where volumes shift in response to an evolving set of spatial rules, resulting in interconnected public and private spaces that unfold like a puzzle. The cascading theaters, suspended above an open plaza, employ a modular, kriss-kross timber structure that spans the full arch length, allowing for an uninterrupted urban space beneath.
A tiered theater arrangement supports a variety of cinematic experiences, from large-scale event spaces to intimate screening rooms, accommodating everything from festivals and corporate rentals to independent films. At the ground level, the streetscape is animated by a brew pub, gaming café, and incubator kitchens, fostering engagement and economic opportunity while blurring the boundary between public and private realms. Above, the residential component introduces skip-stop duplex units that ensure cross-ventilation, privacy, and affordability. Inspired by Le Corbusier’s Unité d’Habitation, these units prioritize multi-generational living, offering three and four-bedroom layouts specifically designed to accommodate Sudbury’s young families, and growing immigrant community. The elevated cinema volumes preserve a flexible plaza below, an adaptable urban void that encourages public gatherings, pop-up markets, and spontaneous interactions, reinforcing the site’s role as a cultural and social anchor within the city.



















































































































Third Floor plan-Residential








































































































Communitas North
Downtown Sudbury
| Winter 2024

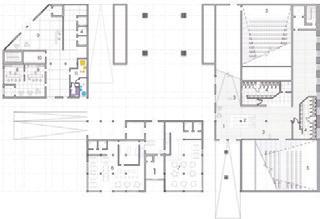
Communitas North reimagines downtown Sudbury by transforming underutilized urban blocks into an engaging public realm rooted in the “spirit of community”. The proposal addresses gaps in density and missed opportunities for social interaction, encouraging people to linger, engage, and connect not only with each other but also with the built environment. A key strategy unearths Junction Creek at Memorial Park, drawing people to a revitalized waterfront and extending a tree-lined pedestrian and cycling trail that funnels visitors into a city square. Concrete planters with soft edges offer natural seating, creating moments of pause aligned with Jan Gehl’s principles of urban livability. The project follows a phased development approach that fosters community participation and skill-building. Local artisans and bricklayers first construct a communal workshop before moving on to the adjacent cohousing complex.
This cohousing model prioritizes shared experiences, with ground-floor commercial space, a second-floor common house for communal meals, and modular apartments designed for privacy while encouraging interaction through offset balconies.
The main event center serves as a multifunctional hub for sports, culture, and commerce to ensure continuous activation. Designed with a strong emphasis on basketball, the hall incorporates a unique structural strategy where hoops are mounted directly onto secondary trusses, embedding the game into the architectural framework. Adjacent market stalls support local vendors, keeping the space active beyond major events. The upper level features a restaurant overlooking the city and a sound-optimized performing arts hall, while below grade, a fitness center and flexible storage facilities accommodate


Perspectival Section along X-X
The initial analysis revealed gaps in density and several missed opportunities for people to actually stop, engage and linger within the two urban blocks in downtown Sudbury, as opposed to driving around or through them. The proposal explores ways to begin to reanimate that center through a process coined- Communitas meaning “Spirit of Community”, and so the central ideas revolve around creating spaces the community can actively engage in. At the urban scale, the question becomes ‘what can we include on the site that would encourage people to linger, and engage, not only with each other, but with the infrastructure?’
The main Event center has two main event spaces, a restaurant, and on the sides are rentable market stalls. That way, even if there are no big events happening, people still have a reason to come to the site to exchange goods and services. Visitors proceed through the main entrance, and are greeted with an expansive foyer/reception leading to a ticketing station/bar, before accessing the main event hall.
The main hall is designed to be more sports focusedspecifically basketball. A key design feature is the idea to mount the basketball hoop system onto the secondary trusses of the actual building assembly, integrating the standard hoop height of 10ft into the building design. On the 2nd floor, is a restaurant accessible through an elevator on the right wing. It is secluded from the rest of the building, and facing the street, so visitors can enjoy the changing cityscape, as they eat. On the left wing of the second floor, is the music/ performing arts hall. The walls and ceiling of this space is padded with sound panels, to reflect all the sound waves produced in this space, enhance the reverberation, and improve the overall listening experience. Below grade, is an included fitness center/changing rooms for guests during big sporting events, and on the right, is storage for all the equipment that would need to be tucked away as the space is adapted for various uses. In between the two roof planes of the main hall, and the market stalls, are operable clerestory windows, which open up channels for rising warm air to escape and allow for cross ventilation.








Ventilation Diagram

















The Moulin-a-Fleur Kindergarten proposes a design that seamlessly integrates the existing playground with the school premises, acting as a bridge between education and recreation. The design pays homage to the renowned Flour mill, once slated for destruction, by preserving its essence and reimagining it
At its core, the kindergarten serves as a ‘connective tissue’. By mirroring the form and materiality of the flour mill, the design echoes its warm, rustic aesthetic, employing rammed earth in the classroom walls and retaining walls framing a new skatepark behind the classrooms.
This approach transforms the learning landscape into more than a mere educational institution. It becomes a vibrant hub where children engage in holistic development, nurturing their motor skills, coordination, and cognitive abilities within the framework of the Ontario Preschool curriculum. The incorporation of a skatepark not only encourages physical activity but also fosters a sense of adventure
The process of learning can now transcend the confines of traditional methods, evolving into an immersive journey where curiosity is sparked, and exploration is encouraged. The once mundane act of learning is infused with excitement, igniting a passion for discovery that children eagerly anticipate.




















L au rentian Ec o l o gy Cent r e



Advancing past the old construction of the Nature Chalet, nestled between the southern conservation trails, the new Ecology Centre sits just atop the NASA Observatory, towering over the landscape below like the wings of an eagle. The building Parti is drawn directly from the geology focused site analysis on the Conservation Area, which revealed areas of the site saturated with bedrock, including the different kinds of visible rock outcrops.
The two most common rocks discovered are Quartzite- derived from sedimentary Sandstone, and Gabbro intrusive rock.
The Quartzite is formed from decades of layered sediment buildup, bonded together by chemical processes, combined with tons of pressure from the above layers of bedrock. The Gabbro, formed by molten magma, intrudes the landscape at arbitrary moments throughout the site, creating dark green/ black surfaces of barren rock.
The layout and form of the ecology centre evolved naturally from the will to revive decades of rich geological history. It is designed to take the form of this weathered rock that has been transported to the site and deposited, through processes of erosion and geological transportation. Its form is strategically extruded towards key aspects of the site, and faceted at specific walls to simulate the edges of a ‘foreign boulder’.
The first level of the boulder opens up via a vertical slit, which directs visitors into the vestibule, and the welcome area/mudroom.
The mudroom is furnished with bench-integrated student cubbies, where the children can sit as they take off coats, and unpack belongings, before proceeding towards the laboratory on the right, or the adjacent stairwell/elevator which leads to the main teaching space.



NORTH-SOUTH SECTION
The teaching space is characterised by an expansive enclosure, with layers of seating arrangements which are stepped down vertically, leading towards the teaching stand. The room is capped behind the teaching stand with a full-span curtain wall, framing the views towards Lake Laurentian. The teaching space, which accounts for a quarter o the program area, is cantilevered on the second level, creating a sheltered condition below. The space below is then transformed into an outdoor extension of the adjacent laboratory, where students can walk onto the deck, harvest berries and other local plant species for their practical learning; with a path extension connecting the existing trails.
On the other side of the building, the deck opens up once again, creating an outdoor workstation where Kayaks can be temporarily stored and epaired. The deck extends from he workstation towards he parking, o allow for ease o watercraft transport. An exterior stair intervention is introduced onto the hill supporting the main building volumes, connecting the Nasa Observatory to the site below. The former access road is transformed into a narrow pathway leading to the play area, Kayak Storage and Dock. The existing trails cut across, connecting the other half of he site, while the excess land area is re-greened with Jack Pine White Pine Spruce and Fir trees.
In erms o materiality, the boulder form is framed with Glulam columns and beams, anchored to the bedrock via concrete piers and footings. Glued laminated timber offers enough lightness and rigidity to both frame and span the cantilevered beams supporting the second level. Steel is introduced minimally o bolt the column/beam/bracing connections. The exterior cladding of natural Black Nephrite veneer s blended with the cladding of the nterior walls, blurring he distinction between the outdoor and indoor, while the flooring and stairwell assembly are clad with Gabbro creating a unique contrast n the nterior. The Precambrian Nephrite cladding contrasts with he ocal geology, simulating a oreign rock presence embedded onto the site, after years of glacial transportation and abrasion. This selection of materials allows for a careful disassembly of building sections to either repurpose the space, or recycle the building materials.
The timber framing and Gabbro veneer which accounts for majority o the building structure and volume, can be returned to he forest a the end of the building life-cycle, contributing to the sustainability goals of the design. The roofs of both levels feature an elevated Urban garden, housing tens of local species, ncluding blueberries; while the topmost roof is retrofitted with retention boards to hold and redirect mass stormwater into a filtration and storage ank below the deck. This water is then pumped into the building o satisfy all its sanitary needs. These simple design gestures create a language o sustainable use and reuse, greatly reducing the carbon footprint of the ecology centre.
As an education centre, the intent is that it becomes a cultural landmark, not only for its design and symbolism, but through its services to the community




‘ A N CHORE D ’

In thinking about Architecture and its qualitative possibilities, one is often invited to recall the natural order; the natural rhythm of life -to derive answers from all that have stood the test of time. ‘Anchored’ provides a Sauna solution to one of the most delicate, yet accommodating terrains around Bennett Lake. The overarching concept is birthed from the site path leading to the lake, before looping into the recreation centre. The key programmatic elements are tangentially anchored at opposite ends of the path, following the movement of the sun. The spaces shape into an asymmetrical twin structure, with the space closest to the primary site access becoming the public space, while the neighbouring structure is reserved for the more private sauna and changing rooms. The twin spaces are aligned to purposefully frame the lake ahead, with the path serving a dual purpose of wreathing the arrival threshold.
Visitors walk along the path, and are drawn into the arrival deck where they can wander into the climate controlled gathering area, or simply enjoy the lake views. The only way to access the sauna would be through the traditional changing and shower areas, right beside the sauna space.
‘Anchored’ is to be thought of as a living organism, speaking to the more organic cycles of life. The interior of the space meanders through, as if adapting to the slender curves of the human body; but also allowing for the circulation of rising heat through the hierarchy of sauna pods, before heat escapes through the adjacent openings. The result is a self-replenishing cycle that keeps the entire sauna heated, with the highest pods receiving the most heat as the steam escapes.







The sauna rests on wooden stilts that have been offset to mimic the rise of the forest canopy. Each stilt touches the ground at strategic locations, leaving room for the blossoming ecosystem below. This subtle gesture softens the transition between the natural and manmade form, effectively introducing a sense of lightness to the structure, while maintaining minimal landscape intervention. It also allows for the creation of additional storage space underneath the sauna, whether for the storage of some excess wood, or even to store a canoe, to take a ride during the summer months. It enables a greater connection between the public sphere of the Bennet lake and the private sphere of the sauna. Layered with charred wood on the roof and clad with Cedar to integrate and return to the forest, ‘Anchored’ is a deliberate response to Bennet lake’s diverse site.

‘ HO RI Z ON ’
| Team Project -Fall/Winter ‘21&’22

Constructed from dimensional lumber, the Ice-hut took the form of a large arch which looped overhead, and was strategically offset in plan to touch the ground at a different plane. It was originally designed to emerge from the ice, loop overhead, pierce the ice, continue underground as if anchored, and then emerge once again from the ice; completing one full cycle, and stopping about one-third of the next cycle -picture the coils of a spring. As the conversations progressed, our team of 15 architecture students decided on a singular loop, completing just one cycle. I remember observing on one of our earlier visits to the site, before the lake completely froze up in the winter; this vast expanse of freshwater filled with flocks of ducks, geese, and the horizon not too far ahead. Just past the lake, where the horizon began, we could see the campus. The lake felt alive.
We decided we wanted to preserve this precious moment, and capture it however we could through our design, and so this became a key driver for the Ice-hut project -This idea of Framing the horizon, and using the shelter as a way to unite community members as they enjoyed this key moment, whether that be at dawn, or dusk.
The Ice-hut project was conceived entirely through community engagement, and the art of teamwork; and as the ice began to melt, our team embarked once again to uninstall and disassemble the huts. The lumber pieces were taken back to the woodshop to be repurposed.


















REVEAL
Hand Sketch - Ink on Paper
Anatomy studies of the Human arm










































‘Question ’ is Process Process is Strategy