Architecture Portofolio 2023 - Syamsul Maarif

Page 1

PORTFOLIO

SYAMSUL MAARIF SELECTED WORKS 2023 ARCHITECTURE

Built Project Organization

Mar, 2023 Stages and backdrop

SMEEC Pertamina Plaju

Small Medium Enterprise Empowerment Competition

Jul, 2022 Rumah Cepi Bayung Lencir

Junior Architect

Jun, 2022 Gedung Picu Nicu Rumah Sakit Gelumbang

Junior Architect

Apr, 2022 Rumah Bu Agnes Muara Enim

Junior Architect

RIEF. Syamsul Maarif Education

I graduated from the Department of Architecture at Sriwijaya University. During college, was active following several organizations, workshop, volunteer and freelance working on built projects as a junior architect. I am very interested in architectural design and exhibitions.

Architecture in perspective is form of function and art that has a purpose, as wellcreate a psychological inside by communicating it in the form of buildings that are functional, artistic, unique and become a certain identity

Birth : June 23, 2001

Address : Desa Selat Batanghari, Jambi

Phone : 0813-7337-6113

Email : Maaarif2306@gmail.com

Instagram : @rief.__

Issue : issuu.com/rief__

Profile

2019 - 2023 Sriwijaya University

Bachelor of Architecture

Faculty of Engineering

GPA 3.80/4.00 (Cumlaude)

2016 - 2019 SMAN 1 Muaro Jambi

Competetion

Jul, 2022 Sayembara H-7 Podomoro University

Re - Greeneration Participant

Nov, 2021 Sayembara Aksi Reaksi 2021

Comunal Space, Green Campus

Top 10

Aug, 2021 IMA Indenpendence Day Architecture

Competition Sriwijaya University

Rumah Paska Pandemi Participant

Nov, 2020 Sayembara Aksi Reaksi 2020

Ruang Publik Tanggap Pandemi Participant

Mar, 2022 Interior Zahara Dental care Palembang

Feb, 2022 Gedung Rawat Inap Rumah Sakit Gelumbang

Junior Architect

Nov, 2021 Kantor Dinas Pemberdayaan Perempuan dan Perlingunga Anak Muara Enim

Junior Architect

Experience

Intership

Apr - Jun 2022 CV. Cahaya Konsultan

During three month period of internship I gained knowledge both in architectural design practice and technical development.

Volunteer

Oct, 2022 Prologue, Linimassa 2022 Art Exhibition.

Workshop

Nov, 2022 Workshop Pengukuran dan Dokumentasi Bangunan kayu Bongkar pasang

- Tanjung Batu

Jul, 2022 Workshop Cutting Laser

Proses Desain dan Pengerjaan Cutting Laser

- Garuda Sriwijaya Cutting

2021 - 2022 Assistant Lab

Teaching Assistant

Major Architecture, Sriwijaya University

Jan - Dec, 2022 Assistant Lab Teknologi Bangunan

Teaching Assistant - Teknologi Bangunan

Lecturer - Iwan Muraman Ibnu S.T., M.T.

Aug - Dec, 2021 Assistant Lab Studio Perancangan

Teaching Assistant - Studio Perancangan 3

Lecturer - Anjuma Perkasa Jaya, S.T., M.T.

Oct, 2022 Team Suvey - IWWA 2023 Lahat International Workshop on wooden Architecture , SETON

Jan - Dec, 2022 Vice Executive IMA Sriwijaya

Kabinet Progresif 2022

Ikatan Mahasiswa Arsitektur Universitas Sriwijaya

Jul, 2021- May, 2022 Head of Departement Porseni Pemuda Olahraga dan Seni Himpunan Mahasiswa Jambi UNSRI

Kabinet Angso Duo 2021

Oct, 2021 Head of Public Relation

SNEPCO 2021

Sriwijaya National Engineering Poster Contest

May, 2021 Head of KKL Tradisional 2021 Menelaah Wisata Sumatra Selatan.

Dec, 2020 - Nov, 2021 Staff Of Departemen Senor Seni dan Olahraga

BEM FT Kabinet sandya Naraya

Skills Interest

Proficient

- Sketch Up

- Autocad

- Lumion

- Enscape

- Adobe Photoshop

- Adobe Premier Pro

- Adobe Indesign

- Mocrosoft Office

Personal

- Problem Solving

- Concept Development

- Team Work

- Fast Learner

- Architecture

- Concept Design

- Technical Development.

- 3D Modeling

- 3D Visualization

- 3D Animation

“The joy that you give to others are the joy that comes back to you.”
– John Greenleaf Whittier
Resume - Curiculum Vitae

Table Of Content ARCHITECTURE WORKS

Academic Works

Stadion Bandimton Siginjai

Anagata Tower

Personal Project

Kantor DPPPA Muara Enim

Rumah Bu Agnes

Interior Zahara Dental Care

1 2 3 4 5
Project : Studio Project Year : 2021 Type : Badminton Stadium Area : 17000 m² Location : Kota Baru, Jambi 1
STADION BADMINTON SIGINJAI
Stadion Badminton Siginjal

Indonesia merupakan negara yang memiliki “sejarah olahraga badminton yang hebat hingga sekarang”. Dimana Indonesia sudah menjuarai kejuaraan dunia badminton sejak tahun 1977. Banyak atlet badminton Indonesia sekarang yang menduduki ranking 10 besar BWF. Berbagai prestasi yang telah terukir dalam sejarah badminton indonesia membuat perlunya “Regenerasi” dan memberikan kesempatan bagi atlet muda indonesia untuk mempertahankan kejayaan olahraga badminton indonesia di kancah dunia. Namun, masi sedikit pembinaan terhadap atlet muda di indonesia dan perlombaan sebagai pembentuk atlet berbakat di penjuru indonesia.membuat olahraga ini kurang mendapat perhatian dari masyarakat yang menganggap “profesi Atlet Badminton” tidak memiliki potensi yang besar.

Perlunya wadah agar masyarakat lebih dekat dengan olahraga badminton. Bangunan yang dapat menaungi olahraga badminton seperti, latihan, perlombaan, yang berstandar nasional dan tempat rekreasi bagi masyarakat sekitar, sehingga masyarakat lebih mengenai olahraga badminton bangunan, dan dapat menjadi “sarana” bagi atlet di Indonesia, Sehingga perlunya “Stadion Badminton” berstandar nasional di seluruh provinsi di Indonesia guna dapat menciptakan atlet berbakat di penjuru Indonesia.

STADION BADMINTON SIGINJAI merupakan jawabannya bagi provinsi JAMBI guna menfasilitasi para atlet badminton untuk berlatih dan bertanding dengan standar nasional, serta menjadi landmark baru di kota jambi. Di desain dengan memperhatikan kenyamanan pengguna dan adaptasi bangunan dari rumah adat kajang lako yang mejadikan bangunan ini seperti rumah bagi atlet badminton jambi.

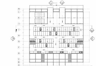
Bangunan dibuat berada pada tengah barat tapak dan berorientasi menghadap utara dengan bukaan dan vegetasi pada keliling bangunan sebagai respon terhadap matahari dan kebisingan jalan. Tapak dibuat cut and fill untuk merespon kontur denganbasement untuk mengurangi penggunaan lahan hijau. Sirkulasi tapak dan saluran utilitas dibuat pada sisi barat tapak dikarenakan memiliki elevasi terendah.

Bentuk awal persegi menyesuaikan ben tuk tapak dan kebutuhan ruang bangunan.

Bagian depan ditambahkan aksen segitiga Rumah Adat Kajang Lako Jambi dan ditinggikan untuk membuat kesan panggung dan bagian badan di tarik kedalam untuk sirkulasi bangunan.

Bangunan di selimuti oleh Secondary Skin dengan motif Batik Jambi sehingga akan membuat Shadding pada bangunan saat terkena cahaya matahari,

Bentuk atap bangunan merupakan transformasi dari Shuttlecock Badminton yang dibuat berlapis dan di teruskan ke bawah.

3 Stadion Badminton Siginjal
4 Stadion Badminton Siginjal
5 Stadion Badminton Siginjal
Atap Zincalume Struktur Spaceframe Secondary Skin Area Tribun Penonton Area Lapangan Pertandingan Area Basement Struktur Beton KONEKTOR BAJA B32 JOIN BALL BAJA Ø300 mm PIPA BAJA UKURAN 7" PIPA BAJA UKURAN 5" SKALA 50 DETAIL A KONEKTOR BAJA B32 JOIN BALL BAJA Ø300 mm PIPA BAJA UKURAN 7" PIPA BAJA UKURAN 5" JOIN BALL BAJA Ø300 mm KONEKTOR BAJA PIPA BAJA UKURAN 5" PIPA BAJA UKURAN 7" ENAMEL STEEL PANELTEBAL 10 mm SKALA 50 DETAIL A KONEKTOR BAJA B32 JOIN BALL BAJA Ø300 mm PIPA BAJA UKURAN 7" PIPA BAJA UKURAN 5" JOIN BALL BAJA Ø300 mm KONEKTOR BAJA PIPA BAJA UKURAN 5" PIPA BAJA UKURAN ENAMEL STEEL PANELTEBAL 10 mm JOIN BALL BAJA Ø300 mm KONEKTOR BAJA B32 PIPA BAJA UKURAN SEAT FITTING SKALA 1 50 DETAIL A PIPA BAJA UKURAN PLAT BAJA 7 Stadion Badminton Siginjal 8 Stadion Badminton Siginjal
9 Stadion Badminton Siginjal
Arena Pertandingan
10
Pusat Informasi
Stadion Badminton Siginjal
Project : Studio Project Year : 2022 Type : Rental Office Area : 3027 m² Location : Palembang, Sumatra Selatan 11 Anagata Tower
ANAGATA TOWER

Contribution : Cocept, DED, Visualization

Partner : M. Raihan Fahreza, Dimas Prasetyo, Syera Muti’ah

Kota Palembang merupakan salah satu kota besar di indonesia dengan kemajuan yang begitu pesat dibuktikan dengan pertumbuhan infrastruktur, serta pusat-pusat perekonomian dan bagunan lain sebagai kegiatan perdagangan dan jasa. Lokasi yang strategis berada pada lintasan utara-selatan Pulau Sumatera dan Selat Malaka akan mempengaruhi tingkat interaksi dengan kota-kota lain. Berdasarkan data Badan Pusat Statistik (BPS), produk domestik regional bruto (PDRB) atas dasar harga berlaku (ADHB) di kota tersebut pertumbuhan ekonomi di Kota Palembang senilai Rp 155,82 triliun pada tahun 2020. Sejalan dengan hal tersebut membuat semakin sempitnya lahan kosong pada tempat strategis di kota Palembang, dimana masyarakat lebih memilih untuk melakukan kegiatan ekonomi secara harizontal. Seperti masih memilih untuk menjadikan ruko atau rumah tinggal sebagai kantor pribadi.

Solusi dari permasalahan tersebut adalah dengan membuat kegiatan perekonomian menjadi terpusat dan di buat vertikal untuk merespon keterbutuhan lahan dan lokasi yang strategis.Memperhatikan kebutuhan ruang karena akan lebih murah dan memenuhi kenyamanan serta keamanan dan privasi dalam bekerja. Penerapan collaborative workspace dimana menggabungkan berbagai kegiatan perekonomian pada satu bangunan. sehingga dapat menjadi pusat perekonomian baru di kota Palembang.

Anagata Tower merupakan jawaban bagi kota Palembang untuk mendukung perkembangan perekonomian yang pesat dan keterbatasan lahan yang sempit. dengan fasilitas yang lengkap berupa Mall. Foodcourt, Rental Office dan pendukung lainnya yang dapat memanjakan pengguna dan pengunjung bangunan serta terintergrasi dengan fasilitas Umum. Pendekatan Arsitektur Tropis dengan merespon tapak yang berada di tengah kota. Memaksimalkan penggunaan Pencahayaan Alami dan adaptasi dengan Secondary Skin pada bangunan. Sirkulasi Udara Alami dengan pengunaan Roof Garden pada bagian tertentu untuk membuat suasana yang lebih nyaman. Sehingga dapat beradaptasi dari masa ke masa dengan kemajuan teknologi, globalisasi, modernisasi, yang membuat penghuninya selalu fresh dalam bekerja, dan berfikir kreatif

13 Anagata Tower 14 Anagata Tower
15 Anagata Tower Bio Retention Swale Bio Retention Soil Ravel Base JALAN
200 cm 250 cm
16 Anagata Tower
RAYA VEGETASI
PEDESTRIAN

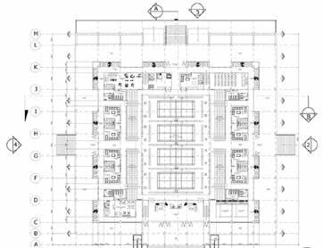
Core berukuran 5 x 10 m Dengan ketebalan Shear wall 40 cm Kolom Struktur Beton diameter 85 cm Balok Struktur Beton 40 x 80 cm Pondasi Borepile diameter 40 cm dengan Pilecap 2 m

LT. Ground Floor Lobby, Retail Retail Retail Office Office Office Office Office Office Office Office Office Office Office Office Office Office Office Office Office Office Rooftop LT. 1-3 Mall Retail, Foodcourt, Event stages LT. 4-6 Standart Office LT. 9 Open Space, Roof Garden LT. 10-20 Suite Office LT. 21-24 Executive Office Basement 30 C CO2 Roof Garden Vegetation Growing Medium Filtration Drainage Waterproofing Roof 17 Anagata Tower LEGENDA 1. Bangunan 2. Drop Off 3. Parkir Vip 4. Shelter 5. Titik Kumpul 6. Akses Service 7. Parkir Service 8. Pos Satpam 9. Pedestrian
18 Anagata Tower
STANDART OFFICE SUITE OFFICE 19 Anagata Tower EXECUTIVE OFFICE EXECUTIVE OFFICE 20 Anagata Tower
Project : Personal Project Year : 2021 Type : Office Area : 6880 m² Location : Muara Enim, Sumatra Selatan 21 Kantor DPPPA ME
DPPPA MUARA ENIM

Contribution : Junior Architect, Cocept, 3D Modeling, DED, Visualization

Architect : Ar. Nyimas Adelina Widyastuti, ST, IAI

Clien : Dinas Pemberdayaan Perempuan dan Perlindungan Anak Muara Enim

Dinas Pemberdayaan Perempuan dan Perlindungan Anak merupakan dinas yang bergerak dalam pengembangan, pemberdayaan, dan perlindungan perempuan dan anak. Menindak lanjuti rencana pengembangan pusat perkantoran kabupaten Muara Enim terpadu untuk membuat semua perangkat pemerintahan menjadi saling terhubung satu sama lain pada suatu kawasan, membuat perlunya pemindahan kantor Dinas Pemberdayaan Perempuan dan Pelindungan Anak ke pusat pemerintahan yang baru dan menjadi identitas dari instansi tersebut.

Desain Kantor DPPPA ini dirancang sesuai kebutuhan dari pengguna dan tentunya ramah terhadap anak-anak sehingga dapat memberikan pelayanan yang maksimal. Bangunan di buat hangat untuk mencirikan Perempuan dengan nuasan klasik namun tetap terlihan simple dengan perpaduan bentuk dan list profil serta modern sengan akses acp dan wpc pda bangunan.

23 Kantor DPPPA ME 24 Kantor DPPPA ME
IN U S T B 25 Kantor DPPPA ME 26 Kantor DPPPA ME
Massa bangunan berbentuk letter L merespon lahan berkontur dan view bangunan yang berada di hook. Sisi terluar bangunan yang menghadap jalan di substraksi sehingga membuat bangunan menjadi dinamis dan mereduksi cahaya matahari langsung. Bentuk atap di buat limas untuk merespon iklim tropis di indonesia dan membuat kesan bangunan megah. Setiap akses masuk dan keluar bangunan di substraksi sebagai pertanda sirkulasi bangunan.
RUANG BACA ±0.00 R.LAKTASI ±0.00 T.BERMAIN ANAK ±0.00 R.KONSELING ±0.00 R.KONSELING ±0.00 R.FORUM ±0.00 R.FORUM ±0.00 R.FORUM ±0.00 R. BID. PERLINDUNGAN PEREMPUAN DAN ANAK + 4.00 R. KABID ±0.00 R. KASI ±0.00 R. KASI ±0.00 R. KASI ±0.00 R. STAFF ±0.00 R. KABID ±0.00 R. KASI ±0.00 R. KASI ±0.00 R. KASI ±0.00 R. STAFF ±0.00 NK T.WUDHU -0.05 MUSHOLA ±0.00 GUDANG ±0.00 PANTRY ±0.00 RUANG PERTEMUAN ±0.00 RUANG ARSIP ±0.00 TOILET WANITA - 0.02 TOILET LAKI LAKI - 0.02 R. BIDANG B.G dan PERBERDAYAAN PEREMPUAN + 4.00 TERAS -0.02 TERAS -0.02 TERAS -0.02 SHAFT 1 200 ARS 002 KEGIATAN KONSULTAN PERENCANA DI PERIKSA JUDUL GAMBAR SKALA NO. LEMBAR KODE GBR. Tanggal No. Uraian Paraf CATATAN DETAIL ENGINEERING DRAWING KANTOR PPPA CV. CAHAYA KONSULTAN TIM TEKNIS DINAS PUPR KAB. MUARA ENIM AGUS RAHMAN, ST, MM 19740801 199603 1001 MENGETAHUI/MENYETUJUI PEJABAT PEMBUAT KOMITMEN (PPK) Ir. AGNES T. LESTARI NIP. 19670219 199603 2002 DI PERIKSA TIM PERENCANA CV. CAHAYA KONSULTAN NYIMAS ADELINA W, ST TEAM LEADER DENAH LANTAI DASAR RUANG BACA ±0.00 R.LAKTASI ±0.00 T.BERMAIN ANAK ±0.00 R.KONSELING ±0.00 R.KONSELING ±0.00 R.FORUM ±0.00 R.FORUM ±0.00 R.FORUM ±0.00 R. BID. PERLINDUNGAN PEREMPUAN DAN ANAK + 4.00 R. KABID ±0.00 R. KASI ±0.00 R. KASI ±0.00 R. KASI ±0.00 R. STAFF ±0.00 R. KABID ±0.00 R. KASI ±0.00 R. KASI ±0.00 R. KASI ±0.00 R. STAFF ±0.00 NK T.WUDHU -0.05 MUSHOLA ±0.00 GUDANG ±0.00 PANTRY ±0.00 RUANG PERTEMUAN ±0.00 RUANG ARSIP ±0.00 TOILET WANITA - 0.02 TOILET LAKI LAKI - 0.02 R. BIDANG B.G dan PERBERDAYAAN PEREMPUAN + 4.00 TERAS -0.02 TERAS -0.02 TERAS -0.02 SHAFT 1 200 ARS 002 KEGIATAN KONSULTAN PERENCANA DI PERIKSA JUDUL GAMBAR SKALA NO. LEMBAR KODE GBR. Tanggal No. Uraian Paraf CATATAN DETAIL ENGINEERING DRAWING KANTOR PPPA CV. CAHAYA KONSULTAN TIM TEKNIS DINAS PUPR KAB. MUARA ENIM AGUS RAHMAN, ST, MM 19740801 199603 1001 MENGETAHUI/MENYETUJUI PEJABAT PEMBUAT KOMITMEN (PPK) Ir. AGNES T. LESTARI NIP. 19670219 199603 2002 DI PERIKSA TIM PERENCANA CV. CAHAYA KONSULTAN NYIMAS ADELINA W, ST TEAM LEADER DENAH LANTAI DASAR RUANG BACA ±0.00 R.LAKTASI ±0.00 ±0.00 R.KONSELING ±0.00 R.KONSELING ±0.00 R.FORUM ±0.00 R.FORUM ±0.00 R.FORUM ±0.00 R. BID. PERLINDUNGAN PEREMPUAN DAN ANAK + 4.00 R. KABID ±0.00 KASI ±0.00 R. KASI ±0.00 R. KASI ±0.00 R. STAFF ±0.00 R. KABID ±0.00 R. KASI ±0.00 KASI ±0.00 R. KASI ±0.00 R. STAFF ±0.00 T.WUDHU -0.05 MUSHOLA ±0.00 GUDANG ±0.00 ±0.00 RUANG PERTEMUAN ±0.00 RUANG ARSIP ±0.00 TOILET WANITA - 0.02 - 0.02 R. BIDANG B.G dan PERBERDAYAAN PEREMPUAN TERAS TERAS -0.02 TERAS -0.02 SHAFT 1 200 ARS 002 KEGIATAN KONSULTAN PERENCANA DI PERIKSA JUDUL GAMBAR SKALA NO. LEMBAR KODE GBR. Tanggal No. Uraian Paraf CATATAN DETAIL ENGINEERING DRAWING KANTOR PPPA CV. CAHAYA KONSULTAN TIM TEKNIS DINAS PUPR KAB. MUARA ENIM AGUS RAHMAN, ST, MM 19740801 199603 1001 MENGETAHUI/MENYETUJUI PEJABAT PEMBUAT KOMITMEN (PPK) Ir. AGNES T. LESTARI NIP. 19670219 199603 2002 DI PERIKSA TIM PERENCANA CV. CAHAYA KONSULTAN NYIMAS ADELINA W, ST TEAM LEADER DENAH LANTAI DASAR R. RAPAT + 4.00 RUANG KEUANGAN + 4.00 RUANG SEKRETARIS + 4.00 RUANG KEPALA DINAS + 4.00 RUANG ISTIRAHAT + 4.00 TOILET WANITA +3.98 TOILET PRIA +3.98 PANTRY +4.00 MUSHOLA +4.00 T.WUDHU +3.95 TR TR R. BID. DATA dan INFO GENDER dan ANAK + 4.00 R. BID. PEMENUHAN HAK ANAK + 4.00 R. SUB.BAG 4.00 R. KABID +4.00 R. KABID +4.00 R. KASI +4.00 R. KASI +4.00 R. KASI +4.00 R. KASI +4.00 R. KASI +4.00 R. KASI +4.00 R. KASUBAG UMUM +4.00 R. KASUBAG PERENCANAAN +4.00 R. STAFF +4.00 R. STAFF +4.00 TOILET +3.98 TOILET +3.98 R. RAPAT + 4.00 RUANG KEUANGAN + 4.00 RUANG SEKRETARIS + 4.00 RUANG KEPALA DINAS + 4.00 RUANG ISTIRAHAT 4.00 TOILET WANITA +3.98 TOILET PRIA +3.98 PANTRY +4.00 MUSHOLA +4.00 T.WUDHU +3.95 TR TR R. BID. DATA dan INFO GENDER dan ANAK 4.00 R. BID. PEMENUHAN HAK ANAK + 4.00 R. SUB.BAG + 4.00 R. KABID +4.00 R. KABID +4.00 R. KASI +4.00 R. KASI +4.00 R. KASI +4.00 R. KASI +4.00 R. KASI +4.00 R. KASI +4.00 R. KASUBAG UMUM +4.00 R. KASUBAG PERENCANAAN +4.00 R. STAFF +4.00 R. STAFF +4.00 TOILET +3.98 TOILET +3.98 27 Kantor DPPPA ME 28 Kantor DPPPA ME
rangka baja ringan ex. tasso 75/75 atap metal berpasir ACP rangka hollow 4/4 kemiringan atap WPC rangka hollow 4/4 1 200 ARS 008 POTONGAN A-A KEGIATAN KONSULTAN PERENCANA DI PERIKSA JUDUL GAMBAR SKALA NO. LEMBAR KODE GBR. Tanggal No. Uraian Paraf CATATAN DETAIL ENGINEERING DRAWING KANTOR PPPA CV. CAHAYA KONSULTAN TIM TEKNIS DINAS PUPR KAB. MUARA ENIM AGUS RAHMAN, ST, MM 19740801 199603 1001 MENGETAHUI/MENYETUJUI PEJABAT PEMBUAT KOMITMEN (PPK) Ir. AGNES T. LESTARI NIP. 19670219 199603 2002 DI PERIKSA TIM PERENCANA CV. CAHAYA KONSULTAN NYIMAS ADELINA W, ST TEAM LEADER rangka baja ringan ex. tasso 75/75 atap metal berpasir kemiringan atap WPC rangka hollow 4/4 alumumium catting 1 200 ARS 009 POTONGAN B-B KEGIATAN KONSULTAN PERENCANA DI PERIKSA JUDUL GAMBAR SKALA NO. LEMBAR KODE GBR. Tanggal No. Uraian Paraf CATATAN DETAIL ENGINEERING DRAWING KANTOR PPPA CV. CAHAYA KONSULTAN TIM TEKNIS DINAS PUPR KAB. MUARA ENIM AGUS RAHMAN, ST, MM 19740801 199603 1001 MENGETAHUI/MENYETUJUI PEJABAT PEMBUAT KOMITMEN (PPK) Ir. AGNES T. LESTARI NIP. 19670219 199603 2002 DI PERIKSA TIM PERENCANA CV. CAHAYA KONSULTAN NYIMAS ADELINA W, ST TEAM LEADER 29 Kantor DPPPA ME 30 Kantor DPPPA ME
31 Kantor DPPPA ME R. KABID +4.00 1 100 ARS 010 DETAIL FACADE #1 PEMERINTAH KABUPATEN MUARA ENIM DINAS PPPA KABUPATEN MUARA ENIM KEGIATAN KONSULTAN PERENCANA PERIKSA JUDUL GAMBAR SKALA NO. LEMBAR KODE GBR. Tanggal No. Uraian Paraf CATATAN DETAIL ENGINEERING DRAWING KANTOR PPPA CV. CAHAYA KONSULTAN TIM TEKNIS DINAS PUPR KAB. MUARA ENIM AGUS RAHMAN, ST, MM 19740801 199603 1001 MENGETAHUI/MENYETUJUI PEJABAT PEMBUAT KOMITMEN (PPK) Ir. AGNES T. LESTARI NIP. 19670219 199603 2002 PERIKSA TIM PERENCANA CV. CAHAYA KONSULTAN NYIMAS ADELINA W, ST TEAM LEADER R. KABID +4.00 1 100 ARS 010 DETAIL FACADE #1 PEMERINTAH KABUPATEN MUARA ENIM DINAS PPPA KABUPATEN MUARA ENIM KEGIATAN KONSULTAN PERENCANA DI PERIKSA JUDUL GAMBAR SKALA NO. LEMBAR KODE GBR. Tanggal No. Uraian Paraf CATATAN DETAIL ENGINEERING DRAWING KANTOR PPPA CV. CAHAYA KONSULTAN TIM TEKNIS DINAS PUPR KAB. MUARA ENIM AGUS RAHMAN, ST, MM 19740801 199603 1001 MENGETAHUI/MENYETUJUI PEJABAT PEMBUAT KOMITMEN (PPK) Ir. AGNES T. LESTARI NIP. 19670219 199603 2002 DI PERIKSA TIM PERENCANA CV. CAHAYA KONSULTAN NYIMAS ADELINA W, ST TEAM LEADER R. KABID +4.00 1 100 ARS 010 DETAIL FACADE #1 PEMERINTAH KABUPATEN MUARA ENIM DINAS PPPA KABUPATEN MUARA ENIM KEGIATAN KONSULTAN PERENCANA PERIKSA JUDUL GAMBAR SKALA NO. LEMBAR KODE GBR. Tanggal No. Uraian Paraf CATATAN DETAIL ENGINEERING DRAWING KANTOR PPPA CV. CAHAYA KONSULTAN TIM TEKNIS DINAS PUPR KAB. MUARA ENIM AGUS RAHMAN, ST, MM 19740801 199603 1001 MENGETAHUI/MENYETUJUI PEJABAT PEMBUAT KOMITMEN (PPK) Ir. AGNES T. LESTARI NIP. 19670219 199603 2002 PERIKSA TIM PERENCANA CV. CAHAYA KONSULTAN NYIMAS ADELINA W, ST TEAM LEADER R. KABID +4.00 1 100 ARS 010 DETAIL FACADE #1 PEMERINTAH KABUPATEN MUARA ENIM DINAS PPPA KABUPATEN MUARA ENIM KEGIATAN KONSULTAN PERENCANA PERIKSA JUDUL GAMBAR SKALA NO. LEMBAR GBR. Tanggal No. Uraian Paraf CATATAN DETAIL ENGINEERING DRAWING KANTOR PPPA CV. CAHAYA KONSULTAN TIM TEKNIS DINAS PUPR KAB. MUARA ENIM AGUS RAHMAN, ST, MM 19740801 199603 1001 MENGETAHUI/MENYETUJUI PEJABAT PEMBUAT KOMITMEN (PPK) Ir. AGNES LESTARI NIP. 19670219 199603 2002 PERIKSA TIM PERENCANA CV. CAHAYA KONSULTAN NYIMAS ADELINA W, ST TEAM LEADER 32 Kantor DPPPA ME DINAS PEMBERDAYAAN PEREMPUAN DAN PERLINDUNGAN ANAK KABUPATEN MUARA ENIM R. KASUBAG +4.00 1 100 ARS 011 DETAIL FACADE #2 PEMERINTAH KABUPATEN MUARA ENIM DINAS PPPA KABUPATEN MUARA ENIM KEGIATAN KONSULTAN PERENCANA PERIKSA JUDUL GAMBAR SKALA NO. LEMBAR KODE GBR. Tanggal No. Uraian Paraf CATATAN DETAIL ENGINEERING DRAWING KANTOR PPPA CV. CAHAYA KONSULTAN TIM TEKNIS DINAS PUPR KAB. MUARA ENIM AGUS RAHMAN, ST, MM 19740801 199603 1001 MENGETAHUI/MENYETUJUI PEJABAT PEMBUAT KOMITMEN (PPK) Ir. AGNES LESTARI NIP. 19670219 199603 2002 PERIKSA TIM PERENCANA CV. CAHAYA KONSULTAN NYIMAS ADELINA W, ST TEAM LEADER DINAS PEMBERDAYAAN PEREMPUAN DAN PERLINDUNGAN ANAK KABUPATEN MUARA ENIM R. KASUBAG +4.00 1 100 ARS 011 DETAIL FACADE #2 PEMERINTAH KABUPATEN MUARA ENIM DINAS PPPA KABUPATEN MUARA ENIM KEGIATAN KONSULTAN PERENCANA PERIKSA JUDUL GAMBAR SKALA NO. LEMBAR KODE GBR. Tanggal No. Uraian Paraf CATATAN DETAIL ENGINEERING DRAWING KANTOR PPPA CV. CAHAYA KONSULTAN TIM TEKNIS DINAS PUPR KAB. MUARA ENIM AGUS RAHMAN, ST, MM 19740801 199603 1001 MENGETAHUI/MENYETUJUI PEJABAT PEMBUAT KOMITMEN (PPK) Ir. AGNES LESTARI NIP. 19670219 199603 2002 PERIKSA TIM PERENCANA CV. CAHAYA KONSULTAN NYIMAS ADELINA W, ST TEAM LEADER
R. KASUBAG UMUM +4.00 R. KASUBAG +4.00 R. KEUANGAN +4.00 100 ARS 012 DETAIL FACADE #3 DINAS PPPA KABUPATEN MUARA ENIM KEGIATAN KONSULTAN PERENCANA DI PERIKSA JUDUL GAMBAR SKALA NO. LEMBAR KODE GBR. Tanggal No. Uraian Paraf CATATAN DETAIL ENGINEERING DRAWING KANTOR PPPA CV. CAHAYA KONSULTAN TIM TEKNIS DINAS PUPR KAB. MUARA ENIM AGUS RAHMAN, ST, MM 19740801 199603 1001 MENGETAHUI/MENYETUJUI PEJABAT PEMBUAT KOMITMEN (PPK) Ir. AGNES LESTARI NIP. 19670219 199603 2002 DI PERIKSA TIM PERENCANA CV. CAHAYA KONSULTAN NYIMAS ADELINA W, ST TEAM LEADER 33 Kantor DPPPA ME R. KASUBAG UMUM +4.00 R. KASUBAG +4.00 R. KEUANGAN +4.00 100 ARS 012 DETAIL FACADE #3 PEMERINTAH KABUPATEN MUARA ENIM DINAS PPPA KABUPATEN MUARA ENIM KEGIATAN KONSULTAN PERENCANA DI PERIKSA JUDUL GAMBAR SKALA NO. LEMBAR KODE GBR. Tanggal No. Uraian Paraf CATATAN DETAIL ENGINEERING DRAWING KANTOR PPPA CV. CAHAYA KONSULTAN TIM TEKNIS DINAS PUPR KAB. MUARA ENIM AGUS RAHMAN, ST, MM 19740801 199603 1001 MENGETAHUI/MENYETUJUI PEJABAT PEMBUAT KOMITMEN (PPK) Ir. AGNES LESTARI NIP. 19670219 199603 2002 DI PERIKSA TIM PERENCANA CV. CAHAYA KONSULTAN NYIMAS ADELINA W, ST TEAM LEADER TOILET +3.98 100 ARS 013 DETAIL FACADE #4 PEMERINTAH KABUPATEN MUARA ENIM DINAS PPPA KABUPATEN MUARA ENIM KEGIATAN KONSULTAN PERENCANA DI PERIKSA JUDUL GAMBAR SKALA NO. LEMBAR KODE GBR. Tanggal No. Uraian Paraf CATATAN DETAIL ENGINEERING DRAWING KANTOR PPPA CV. CAHAYA KONSULTAN TIM TEKNIS DINAS PUPR KAB. MUARA ENIM AGUS RAHMAN, ST, MM 19740801 199603 1001 MENGETAHUI/MENYETUJUI PEJABAT PEMBUAT KOMITMEN (PPK) Ir. AGNES LESTARI NIP. 19670219 199603 2002 DI PERIKSA TIM PERENCANA CV. CAHAYA KONSULTAN NYIMAS ADELINA W, ST TEAM LEADER 34 Kantor DPPPA ME TOILET +3.98 100 ARS 013 DETAIL FACADE #4 PEMERINTAH KABUPATEN MUARA ENIM DINAS PPPA KABUPATEN MUARA ENIM KEGIATAN KONSULTAN PERENCANA DI PERIKSA JUDUL GAMBAR SKALA NO. LEMBAR KODE GBR. Tanggal No. Uraian Paraf CATATAN DETAIL ENGINEERING DRAWING KANTOR PPPA CV. CAHAYA KONSULTAN TIM TEKNIS DINAS PUPR KAB. MUARA ENIM AGUS RAHMAN, ST, MM 19740801 199603 1001 MENGETAHUI/MENYETUJUI PEJABAT PEMBUAT KOMITMEN (PPK) Ir. AGNES LESTARI NIP. 19670219 199603 2002 DI PERIKSA TIM PERENCANA CV. CAHAYA KONSULTAN NYIMAS ADELINA W, ST TEAM LEADER
35 Kantor DPPPA ME

RUMAH Bu Agnes

Project : Personal Project

Year : 2022

Type : House Area : 300 m² Location : Muara Enim, Sumatra Selatan

37 Rumah Bu Agnes

Contribution : Junior Architect, Cocept, 3D Modeling, DED, Visualization

Architect : Ar. Nyimas Adelina Widyastuti, ST, IAI

Client : Ibu Agnes

Belokasi di kabupaten Muara Enim dengan jarak 180 km dari kota Palembang. Berada di salah satu permukiman yang masi asri dengan pepohonan. Klien merupakan pasangan yang bekerja sebagai pegawai pemerintahan di Muara Enim, yang menginginkan rumah yang dapat memenuhi kebutuhan dirinya beserta keluarga yang memiliki 2 orang anak. Nyaman sehingga dapat melepas kejenuhan, kesibukan dari aktivitas setelah sehabis bekerja. Bentuk berbeda dan minimalis yang dimana rumah disekitarnya memiliki bentuk yang sama antara satu sama lain.

Lokasi yang masi asri menjadi kekuatan pada desain bangunan ini, menjadi solusi yang ideal dengan mempertahankan area hijau pada tapak sebagai area refresing bagi pengguna sehingga dapat menjernihkan pikiran setelah beraktivitas, serta serta dapat menyejukkan bangunan. Rumah Bu Agnes merupakan rumah dengan kosep membuat bangunan dekat dengan alam namum tetap menjaga privasi serta menjadi rumah yang ikonik namum tetap ramah dengan lingkungan sekitar.

PALEMBANG

Massa awal bangunan berbentuk kotak menyesuaikan bentuk tapak

Massa ditambahkan menjadi letter L, untuk menjaga area privasi bangunan

Masa Bangunan disubstraksi pada bagian depan dan samping untuk memberikan aksen bangunan. dan pada bagian samping timur sebagai Inner Garden

Bentuk atap bangunan di buat miring dengan beda ketingian segingga berbentuk seperti Atap Pelana.

MUARA ENIM
39 Rumah Bu Agnes
40 Rumah Bu Agnes

Atap Miring material Metal Berpasir, agar tidak berisik dan meredam panas. serta mudah di dapat.

Kanopi Trasparan

EZ-Lock, Agar mendapat cahaya alami pada area yang tertutup.

Inner Garden

Sebagai penyejuk bangunan, agar sirkulasi pada bangunan menjadi lancar. Serta sebagai area serbaguna yang nyaman.

Seccondary Skin

Penggunaanya Roster untuk mereduksi cahaya matahari langsung serta untuk menjaga Privasi

material
41 Rumah Bu Agnes 42 Rumah Bu Agnes
43 Rumah Bu Agnes
POTONGAN A-A POTONGAN B-B
RUANG KELUARGA KAMAR TIDUR UTAMA 44 Rumah Bu Agnes
Project : Personal Project Year : 2022 Type : Interior Room Area : 60 m² Location : Palembang, Sumatra Selatan 45 Interior Zahara Dental Care
INTERIOR ZAHARA DENTAL CARE

Interior ruangan merupakan elemen penting dalam bangunan dinama dapat membuat suasana bangunan menjadi lebih hidup, efesien, dan tentunya dapat membuat kegiatan didalamnya menjadi lebih nyaman. Interior klinik gigi ini terdiri dari 2 ruangan yaitu ruang tunggu, dan ruang praktek. Ruang tunggu difungsikann sebagai ruang publik yang menerima pasien dan menunggu antrian sehingga harus dapat menfasilitasi pasien dengan berbagai usia. Ruang praktek difungsikan sebagai ruang konsultasi dan pemeriksaan pasien. Sehingga pemilik klinik gigi ingin membuat interiornya yang minimalis dan netral bagi pengguna, nyaman dan menarik.

Interior dengan gaya Skandinavia menjadi jawaban yang tepat dengan nuasan interior yang netral perpaduan warna yang soft dari dinding putih, list profil, material kayu, yang membuat ruangan menjadi hangat. Ruang tunggu memiliki fasilitas berupa meja resepsionis, kursi tunggu, area bermain anak, kabinet, mushola, dan toilet dan ruangan praktek berupa meja konsultasi, tempat pemeriksaaan, kabinet penyimpanan, dan TV.

Dinding Plaster Fin. Cat Putih, List Profil

HPL TACO TH 002 G - Pearl White Gloss Floor Fin. Viny

47 Interior Zahara Dental Care
HPL TACO TI X0044 CM - American Teak
48 Interior Zahara Dental Care
TV- 010 Warm Cherry
RUANG GUDANG TOILET RUANG TUNGGU RUANG PRAKTEK MUSHOLA B A C D 49 Interior Zahara Dental Care B 120 cm 50 cm 180 cm 100 cm 120 cm 75 cm 130 cm 85 cm 40 cm 85 cm 240 cm 10 cm 10 cm 90 cm 35 cm 35 cm 50 cm 50 cm 50 cm 210 cm 60 cm 150 cm 50 Interior Zahara Dental Care
51 Interior Zahara Dental Care
Syamsul Maarif

Turn static files into dynamic content formats.

Create a flipbook
Issuu converts static files into: digital portfolios, online yearbooks, online catalogs, digital photo albums and more. Sign up and create your flipbook.