SYAHMI AZNAN // ARCHITECTURE PORTFOLIO // LAM PART 1

Page 1

WORKING EXPERIENCES

Malek Hassan Architect

March 2018 - June 2018

Architectural Intern

Space City Malaysia @ Pekan, Pahang.

3-storey Bungalow, Seri Beringin, Bandar BukitDamansara. MixedDevelopmentMasterplan, KintaPerak.

ProjekDewan llmu Terbuka, Sekolah lntegrasiMasjidDarulEhsan, Subang Jaya Selangor.

LKMD Architecture Sdn Bhd

February 2020 - October 2021

AssistantArchitect

Proposal - Selangor Intelligent City, ShahAlamSelangor.

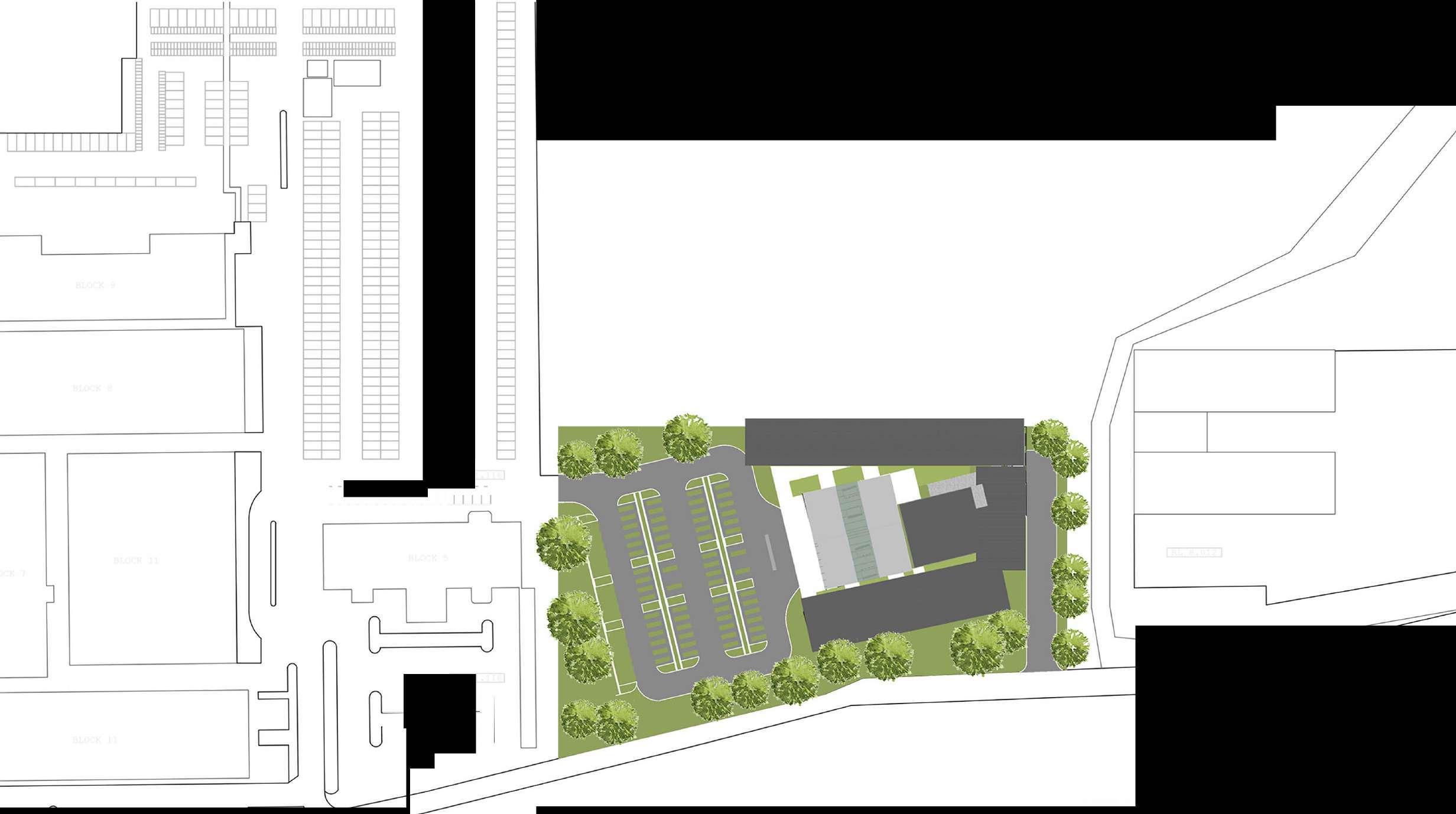
Proposal- MyHERO Hypermarket and Warehouse, SubangPerdana, Selangor.

Proposal - Pagoh Medical City, Johor.

Submission andDocumentation - Fit-out-The Pastels Shop, Queyside Mall, KotaKemuningSelangor.

Submission andDocumentation - Batu Laut and Tanjung Sepat Foodcourt, Kuala Langat, Selangor.

Proposal - Kemasin Integrated Symbiotics Centre, Bachok Kelantan.

Proposal-TanjungMalimHalal Integrated City, Perak.

REFERENCES

Ar. Lukman Bin Mahmood Managing Director

LKMDArchitecture Sdn. Bhd

12-2, Jalan Solaris4, Solaris Mont Kiara, 50480 Kuala Lumpur.

Mobile: +6016-9465050

E-mail: lukemhd@gmail.com

Ts.Dr.WanNurRukiahBintiMohdArshard Architect

LKMDArchitectureSdn.Bhd.

12-2,JalanSolaris4, SolarisMontKiara, 50480KualaLumpur.

Mobile: +60133924533

E-mail: nur77.arshard@gmail.com

SOCIAL

lffl https://www.linkedin.com/in/syahmiaznan/

0 facebook.com/ahmadsyahmi.abdulaznan

@) https://www.instagram.com/syahmiaznan_2/

@ www.pinterest.com/syahmi_aznan/

Arts � �/ Science & Technology • Books Travel HOBBIES & INTERESTS Ill Coffee Culture Musics History & Culture Auto
1 L S

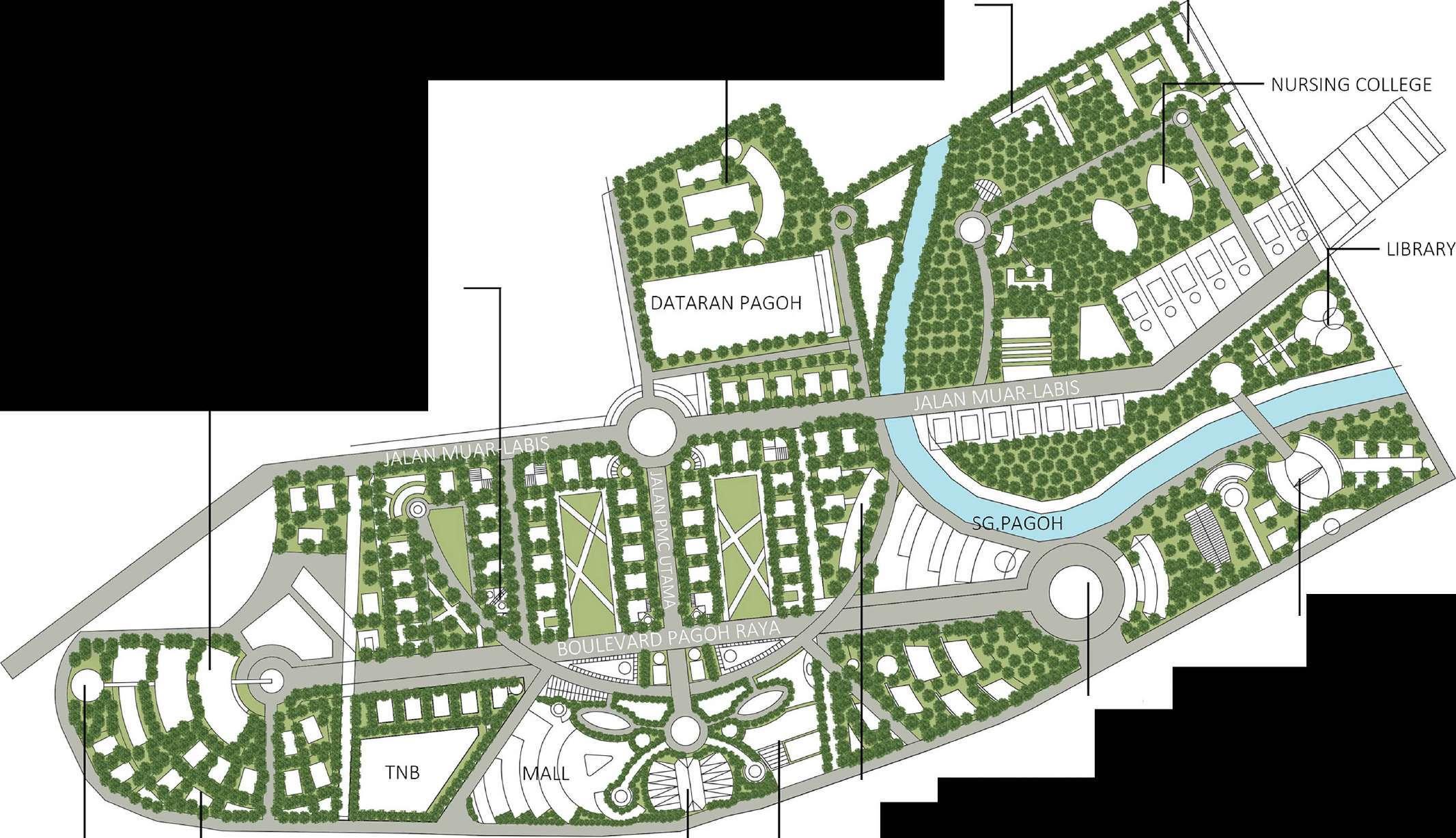
Pagoh Medical City is a propo�i encompassing a 900 acres area'\that consisting of medical and health facilities. This proposal was also being idealised to connect with the proposed High Speed Rail station and education cluster at the Northwestpart that consisting of Universiti Teknologi Malaysia (UTM), International Islamic University of Malaysia (IIUM), Universiti Tun Hussein Onn Malaysia (UTHM), and public polytechnic colleges under the Politeknik Malaysia program.

PAGO H MEDICAL CITY

..
TO KUALA LUMPUR ,a.
TOAAGOHJll n m
TO BANDAR 1' MAHARANI, MUAR
PLASTIC SURGERY HOSPITAL MEDICAL COLLEGE PAGOH CITYCOUNCIL IPD MOORFIELD EYEHOSPITAL RESEARCH LAB PAGO H L.....---PAGOH HEART HOSPITAL .___-PAGOH HOSPITAL ...___ 70 STOREY PAGOH TOWER MEDICAL 900ACRES CITY SPECIALIST HOSPITAL MEDICAL ,____ UNIVERSITY PHARMACEUTICAL RESEARCH & LABS 16 OCTOBER 2020

Kemasin Integrated Symbiotics Center is a proposal encompasses the ideas of an all-in-one center for agro & aqua tourism, research and development facilities, resorts, spa and wellness facilities, and also educational activities park. This center is being proposed on a 36 acres area at Kemasin Beach, Bachok Kelantan, a very ideal location seeing the potential of Bachok as an ideal hub for agrotourism and aquatourism. Amongst the first of its kind in Bachok, this proposal seeks to promote the ideas of agrotourism and aquatourism and how these two areas can generate a sustainable source of income for the locals and also the state government. Besides can be a great source of income, this proposal also aimed at giving emphasizing on scientific research and development program on aquaculture and agriculture fields.

K E M A S I N I N T E G R A T E D S Y M B I O T I C S C E N T E R
Overall Masterplan Masterplan Zoning

INTEGRATED FARMING

- Agri Culture

- Aqua Culture (fresh water & marine)

- Live Stock

- Organic Fertilizer

- Organic Food for aqua & live stock

- Agro & Aqua Tourism

INTEGRATED NATURAL WELLNESS

- Wellness Tourism

- Natural wellness packages

- Natural product

AGRICULTURE

- Hydroponics

- Aquaponics

- Dutch Buckets

- Natural Fertilizer using microbe

- Fresh & Frozen product

AQUACULTURE

- Fresh & Marine

- Floating cages

- Aquarium

- Fish Breeding

- Natural Aqua food

- Fresh & Frozen product

Aquaculture Cluster Agriculture Cluster Resorts, Spa & Wellness Facilities
SELECTEDUNDERGRADUATEWORKS (2016-2019)

NSC C S,U

SS

-JF::v----

DESIGN STATEMENTS

To design a learning facility that encourage for the close relationship between human and nature. This is as a result of rapid development that undergoingthroughroutIUKL hence have been a threat to the ecological system of the nature and vegetation all aroundIUKL.

To comply with this intention, a few design strategies will be implemented:

DESIGN DEVELOPMENT DIAGRAM

1)Siteasan experimentalfield

2nd Floor

- Lecturer's rooms

- Resource Centre

- Discussion area

-a view towards the green/ trees from every angle of the building except for auditorium and services

- Green features at the atrium

2)Identifysite setback

1st Floor

- Classrooms

- Green features at the parking area - trees are being planted throughout the parking lots to encourage for natural shades

3)Identifyviews

nd Floor

dmin Office & meeting room

- Computer labs

- Auditorium

- Cafe

-Installation of brise soleil as building facade to encourage for the growth of creepers in the future.

4)Identifysiteaxis &geometry

7)Substractaccordingto function&views

5)Identifyforcefor senseofwelcoming

8)Insertionofauditorium asthedominantelement

6)Resultingmass/ volume

9)Massingandzoning

"'"' "'�
y�
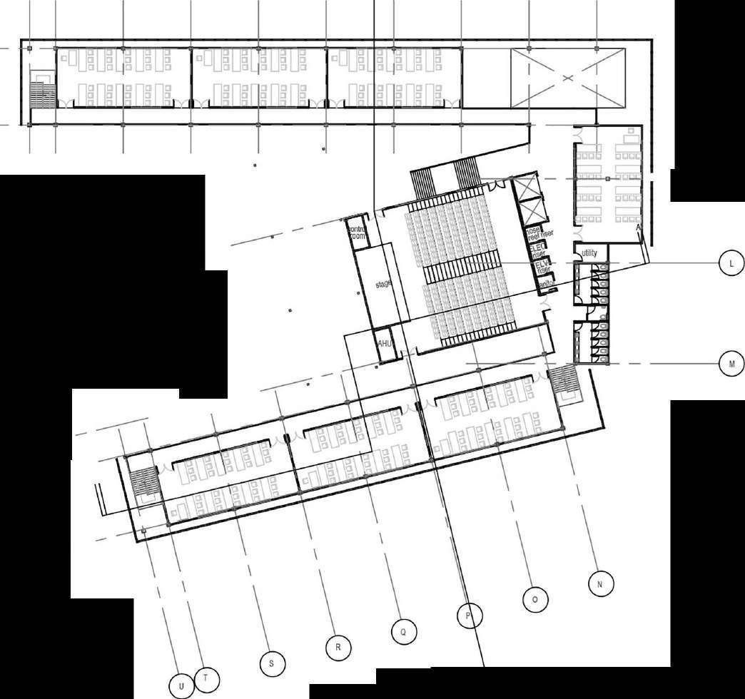
: I I I I I I I I I I I I II I I I I � SITE PLAN
0-o--� --------------------8 .J .---------,-� ----,--.�" JA'-- 8 8 N GROUND FLOORPLANCD
8-8----------0----__.---- A -------. ------<.--. s=-----l B' 1-----, K N 1st FLOOR PLAN CD
B C)-C)------------. ----------� ---8 �. -. ------ey--------- A � -----� \ N 2nd FLOOR PLAN CD B'

WESTELEVATION

SOUTH ELEVATION

-II!!!! ·-L.iiii LIi l1l11JIW

EAST ELEVATION

NORTH ELEVATION

w w w w z z z z ::::i ::::i � >- ::::i ::::i (.) 0::: >- � <l'.'. <l'.'. 0::: (.) i -� - <l'.'. <l'.'. z 0 co ::::> z g, ::::> w 0 (f) co
SECTION B-B'

The cafetaria

The cafe is located at the Northern part of the building and placed nearby the computer labs, classes and lecturer rooms at the Northern Arm, and Northern entrance of theAuditorium.

Being designed as a porous volume to encourage for visual interaction from and into the cafe. Users can enjoy the views to the football field at the northern part of the building while savouring their food or just chilling out at the cafe.

BLACK COATED BRISE SOLEILPANEL

x150mm RC LINTEL

WINDOWS WITH ALUMINIUM CASEMENT

THK BRICKWALL WITHPLASTER ON BOTH SIDES

-150mm THKRC GROUND SLAB 50mm THK SAND BEDDING 150mm THK HARDCORE DAMP PROOF MEMBRANE

1tl.ll.===--------+-+------HEAT INSULATION PANELS �·· =::··:·..�-��:-�::.�·.,;.:�.�;:�.;:.•{:<:.-..:::;.:.:·1·.:·::.-� �:.·:•:1-,.=.�:� \': ---El---- -
r.a:+---++-------- 250mm
1+- GLASS
,,A-- 150mm
�������=:=:=-����---�
.:;,:i/-" :.....,.·:-.1f--- --PAD FOUNDATION TO , �·· ENGINEER'S DETAILS TYPICAL DETAIL SECTION / / / / / /'' / .,,,..,,,., ,,,,,,.. -------- -............ ...... ,' ' ' \ \ \ \ I I I I I \ \ METAL DECKING ROOFPANELS I I I I---,-+--- HEAT INSULATION PANELS I I I I L--���!!l:::=t--�STEELROOFTRUSSES \ \ \ \ \ \ I I I \ \ \ ' ' ' , ,......... .....__ / / / I I / 150mm THK BRICKWALL WITH PLASTERS ON BOTHSIDE / / / / I I / / / / / ,,, "' / ----DETAILX --- --' ' ' ' \ \ STEELTRUSS \ \ \ \ \ \ /------r::::r:7-1-i======================_-:=._-:=._., rr +=-il ....._ -, -+------'-STAINLESS STEEL / •. \ BRACKET TO HOLD / \ BRISE SOLEIL I \ / \ PANELS I \ I \ I I I I I I I I I \ I \ I \ I \ I \ I \ I \ I \ I \ I \ I \ I \ I \ I \ / \ \ ' \ ' ' ' ' , ,------ --------DETAILY / / ,,, "' .,...,,. ........ / / / / / / / BRISE SOLEIL PANELS

ELEVATORS

FIRE FIGHTING PROVISION

FIRE STAIRCASES

FIRE STAIRCASES

ASSEMBLY POINTS

EXTERNAL

FIRE HYDRANTS

BUILDING SERVICES

Turn static files into dynamic content formats.

Create a flipbook
Issuu converts static files into: digital portfolios, online yearbooks, online catalogs, digital photo albums and more. Sign up and create your flipbook.