Architecture portfolio_Swathe Sivagami

Page 1

1. Exploring spatial metaphors

CAN THE PLACE MATTER TO THE SPACE?

2. Inserting an Urban catalyst

WHAT CAN BE THE SIGNIFICANCE OF HISTORIC LANDMARKS TODAY?

3. Professional experience

THE IDEA OF HAVING A DESIGN PROPOSITION THROUGH DIAGRAMMING

Exploring Spatial Metaphors

CHIDAMBARAM

Location :Tamil Nadu

Undergraduate thesis

Can the PLACE matter to the SPACE?

Exploring architectural metaphors in design

The aim of this intervention is a quest for meaning and relevance of a place in Architecture and Architecture to the context. Reassembling larger ideologies and abstracting the context and essence to the design of an urban insert.

In a culture constructed Space like Chidambaram, how can one programmatically represent the City's essence? Is it pertinent to tie back to the City?

Temple
- MICROCOSM
the Cosmos Architecture - MICROCOSM
the Context
Town
of
of

INTERPRET

Legacy of Sculptures

Literature

Paintings

History

Iconography

Sculptures

Scriptures

RESEARCH PERFORM

Dance

Music

Theatre

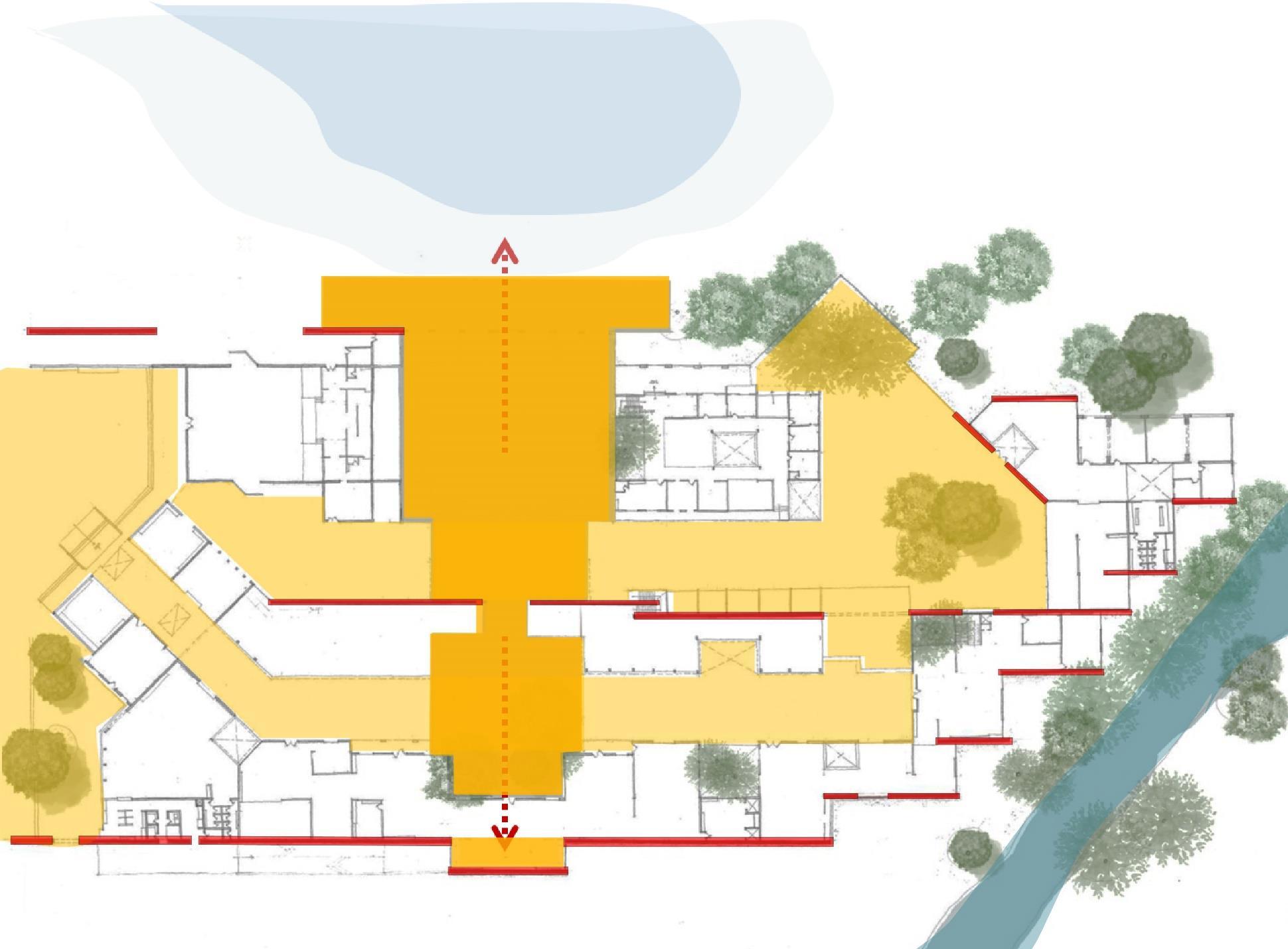
The intervention is aimed at the zone that is at the cusp of the old and the new town_ about 600m East of the temple. An important point of transition in and for the town.

Can this point of transition be another PLACE OF CELEBRATION for the town, its visitors, locals, etc.

DESIGN

Microcosm

Discipline of a larger place

Meaning of context

Program relevance

Language of the built

Place Representation

METAPHOR - A medium

CONTEXT

Settlement pattern

Cultural Landmarks

Activities

Ideologies

Social elements

Cardinals

Cultural setting

City core

The town has a concentric square layout which are the network patterns. The new part of the town has developed organically for motorable roads, incorporating flyovers, heavy vehicles. Etc.

How can a designer approach a project in this location and make it more rooted to its context, in such a way that it cannot be placed anywhere else? Can the site draw in the concentricity of the lake to an extent into the site itself? The temple has its own Kalyani and way of architecturally respecting it through spatial theme surrounding it. The concentricity is drawn inside to an extent that it can be used as one of the most respected activities within the site A performance Space addressing the presence of the water body and its theme – THE OPENNESS.

Seating

Termination in a space Portal

Every response of the intervention is attributed to an inspiration from the place(context)

There is a narrative for the design stand - zoning, program, users, spatial themes and expressions, materiality and structure

Backdrop Frame The transition of a wall

There are WALLED ENCLOSURES which are prominent. One always moves along these walls and between them.

Different heights, materials and expression of walls that adds to the belonging to its context

Marker walls

Location : Karnataka

Individual project in the Urban Design studio

Inserting an Urban Catalyst CHITRADURGA

The cultural precinct _ A REVIVAL

What can be the significance of historic landmarks?

The SANTHE HONDA was one of the most important water collection point along the entire water planning network of Chitradurga. It was socially and culturally significant owing to the temple activities and religious processions around it. This was the culmination of an entire water network from the Chitradurga fort which was used by the town people to fetch water and eventually became a place of meeting and celebration.

At present, the Honda has become inactive because no one is dependant on it for their water necessities. The proposal is for it to be revived as a commercial catalyst considering the present activity mapping in the precinct.

How can the CULTURAL SIGNIFICANCE of this precinct be revived for today and the future by overlaying the present activities, development and demand?

The precinct being commercial has varying typologies of activities.

Pottery, wood workshops, clay products store, old books store. The dominant being the vending activities and markets. There is an overlay of culture and commercial aspect in this place. The design is an attempt to include both the aspects in the design integrating it with the physical factors like visually relieving spaces and green buffers.

The intent is to activate the water body and make it well maintained and a part of present day activities of the town fabric and not remain a neglected element.

The intervention is multidimensional – serving the versatile user group and activities of that area.

SPACE + ACTIVITY = A PLACE

Intervention around SANTE HONDA

• Viewing Decks

• A place to wind down and relax for evening discussions

• Walkway for residents.

• Vending platforms

• Eateries

Intervention in the COMMERCIAL ZONE

• Shops, Parks, Reading area, Library

• Exhibition area

• Handicrafts and Clay Product stores

The idea of diagramming and having a design proposition

My professional journey and process CnT Architects, Bangalore

Design for a community of elderly citizens, Bengaluru

Establishing the Ground plane and public spaces

Zoning and activity orientation for a Group housing development for Senior living in Bengaluru, India

Ground level connectivity

In a high rise dense residential development, the maximum scope to add value as a community/public nature lies in the Ground plane connectivity of the site.

Formation of nodes, anchor points and interconnectivity are important aspects achieved through the diagram

Creating anchor points

The open spaces and nodes are anchored by recreational activities that complete the space network

The residential tower

The tower sits on a strong Ground plane datum

Role : Project architect Concept design, diagram and translation to plan

Role : Project architect

Concept design and inputs for visualization

Rendering by Visualization team

Role : Project architect Concept design and inputs for design development Rendering by Visualisation team

Master plan for a Group housing villa development, Hyderabad

Understanding through diagramming

Possible distribution of open spaces for a Group housing villa development in Hyderabad, India

Role : Architect for Master plan concept

HEALING : A holistic approach to hospital wards, Bengaluru

Creating an optimal healing environment through design

Role : Project Architect and Site architect. Completed in 2022 Design, Construction drawing and Site monitoring

Turn static files into dynamic content formats.

Create a flipbook
Issuu converts static files into: digital portfolios, online yearbooks, online catalogs, digital photo albums and more. Sign up and create your flipbook.