Swapnil Jalgaonkar
I am an Architect, having graduated in 2021 from St. Wilfred’s Institute of Architecture. Over the past four years, I have had the opportunity to work with Nilesh Sawant Architect and am currently working at Ar. Hafeez Contractor’s office. These experiences have allowed me to work on a diverse range of projects in residential, urban, and interior design.
What excites me most about architecture is the process of planning new spaces it gives me the freedom to express myself creatively while also presenting the challenge of fitting requirements within a defined area. I find this balance between creativity and functionality to be the most rewarding part of design.
Looking ahead, I aspire to grow into a long-term role where I can take on greater responsibilities, contribute meaningfully to impactful projects, and continue evolving as an architect.
email : swapniljalgaonkar10@gmail.com +91 88796 05075
Architecture
Residential Township, Posari – Navi Mumbai
This is an ongoing project with Architect Hafeez Contractor (2024–present), currently in the design development stage. The project envisions a Parisian-themed urban neighbourhood comprising G+4 residential structures, villas, schools, a clubhouse, and other township amenities. I have been involved since the concept stage, developing the master plan and architectural language through schematic and design development phases, and currently oversee the coordination process.
















Proposed Residential Redevelopment, Bandra – Mumbai
This ongoing project with Architect Hafeez Contractor (2025–present) is a rehabilitationbased redevelopment located in the dense urban fabric of Bandra. The design aims to accommodate over 600 members within a compact site, integrating a commercial tower, podium-top amenities, and ample parking provisions. The brief also called for commercial spaces for existing residents with businesses in the area, ensuring continuity of livelihood. I have been involved since the layout approval stage, leading the project through schematic and design development phases, focusing on spatial efficiency and contextual integration.

















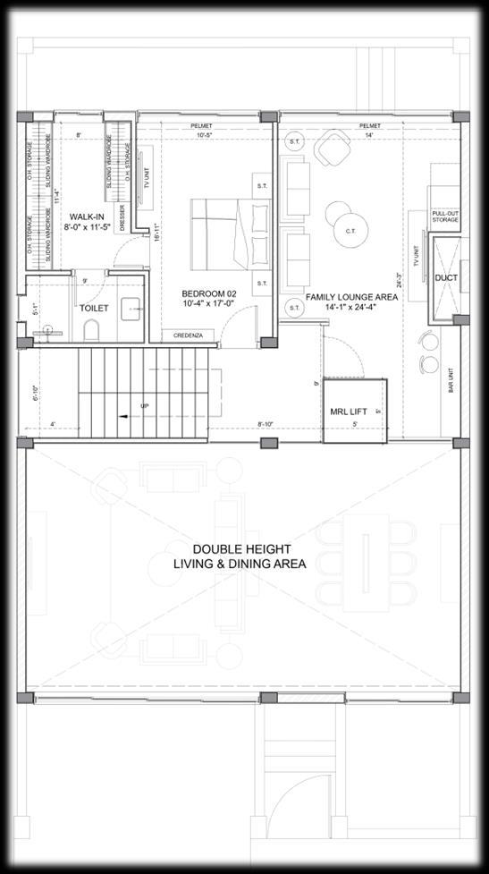
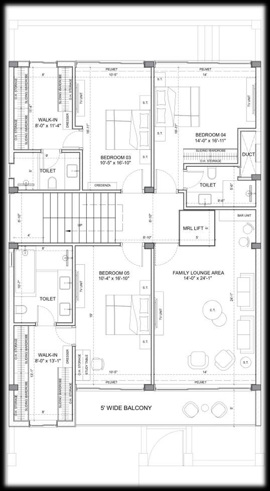
A proposal project with Nilesh Sawant Architect (2023) for an 8BHK villa intended to attract NRI investors. The design challenge involved redeveloping an existing bungalow while retaining most of the original column layout, with only three new columns introduced to minimize cost. I was involved from the concept stage through approval drawings and assisted in 3D modelling for the proposal.














Interior
4BHK Residential Interior, Powai –Mumbai
A completed residential interior project with Nilesh Sawant Architect (Oct 2022 – Apr 2023). The client envisioned a traditional, classic interior style reflected in both spatial design and furniture detailing. I managed the project end-to-end from proposal and concept development to final drawings, site coordination, and handover.
















A completed residential interior project with Nilesh Sawant Architect (June 2023 – Jan 2024). The client preferred a modern design approach, reflected through clean lines and contemporary furniture detailing. I managed the project from proposal and concept development to final drawings, site execution, and handover
















Education + Experience
• Bachelor of Architecture – St. Wilfred’s Institute of Architecture, Mumbai University, 2016 - 2021
• Junior Architect – Nilesh Sawant Architect, September 2021 - January 2024 (2 years, 4 months)
• Architect – Architect Hafeez Contractor, February 2024 – Current (1 year, 8 months)
Contact
• Name - Swapnil Sunil Jalgaonkar
• Email – swapniljalgaonkar10@gmail.com
• Phone - +91 88796 05075
• LinkedIn - www.linkedin.com/in/swapnil-jalgaonkar903315106
Thank You for reviewing my work!