Svitlana Lysenko

Page 1

PORTFOLIO
SVITLANA LYSENKO ARCHITEKTKA
СИТУАЦІЙНИЙ ПЛАН РОЗГОРТКА З БОКУ ВУЛИЦІ ВОЛГОГРАДСЬКОЇ РОЗГОРТКА З БОКУ ВУЛИЦІ СОЛОМЯНСЬКОЇ ВОЛГОГРАДСЬКІЙ, ФАСАД У ВІСЯХ 15-1 ФАСАД У ВІСЯХ Л-В ФАСАД У ВІСЯХ 1-15 ФАСАД У ВІСЯХ В-Л РОЗРІЗ 2-2 Нічний вигляд ПЛАН ПАРКІНГУ НА ВІДМ. -7.700 ПЛАН ПАРКІНГУ НА ВІДМ.-4.400 ПЛАН 1-ГО ПОВЕРХУ ПЛАН 2-ГО ПОВЕРХУ ПЛАН 3,4,5,6-ГО ПОВЕРХІВ ПЛАН 19-ГО ПОВЕРХУ - приміщення загального призначення - 1-кімнатні квартири Умовні позначення: - 2-кімнатні квартири - 3-кімнатні квартири - 4-кімнатні квартири Умовні позначення: Вестибюль,конс’єрж,технічні приміщення житлової частини Коридори,сходові клітини,тамбур, лоджія,ліфтові шахти 117,0 2 № 1 3 Площа приміщень загального призначення 385,0 368,0 Загальна площа поверху Площа приміщень інженерного обладнання Найменування Площа,м2 Розрахункова площа вбудованих приміщень ТЕП ПЛАНУ 1-ГО ПОВЕРХУ А Б Загальна Секція 1757,0 833,0 924,0 788,0 241,0 547,0 216,0 207,0 9,0 753,0 В тому числі: 477,0 268,0 209,0 275,0 158,0 ТЕП ПЛАНУ ПАРКІНГУ НА ВІДМ.-4.400 Секція №1 1307 м2 Загальна площа поверху 3257 м2 Кількість машиномісць поверху 104 м/місця Секція №2 1950 м2 ТЕП ПЛАНУ ПАРКІНГУ НА ВІДМ.-7.700 Секція №1 1398 м2 Загальна площа поверху 3449 м2 Кількість машиномісць поверху 112 м/місця Секція №2 2051 м2 Кількість машиномісць підземного паркінгу 216 м/місць Загальна площа паркінгу 6705 м2 тому числі: - для автомобілів середнього класу - - місце; - для автомобілів малого класу місць; - для мотоциклів місць; - для інвалідів місць. - приміщення паркінгу Умовні позначення: ВИД 3 Площа, м2 Розрахункова площа вбудованих приміщень В тому числі: 183,0 355,0 Секція Секція А 2,1 Площа приміщень загального призначення (коридори,сходові клітини,тамбур,лоджія) В тому числі: Секція ТЕП ПЛАНУ 2-ГО ПОВЕРХУ Загальна площа поверху Секція А Найменування № 1840,0 1485,0 773,0 1,1 1,2 712,0 172,0 2,1 Площа, м2 1869,4 898,3 216,9 52,1 490,8 138,5 396,5 671,2 274,7 142,3 158,8 301,1 Секція Секція А Секція 1-кімнатні квартири 2,1 2,2 1,1 1,2 Загальна площа поверху Найменування Загальна площа квартир В тому числі: № Загальна площа приміщень загального призначення (коридори,сходові клітини,тамбур,лоджія) В тому числі: ТЕП 3,4,5,6-ГО ПОВЕРХІВ Секція А Кільк. 1568,3 16 2-кімнатні квартири 3-кімнатні квартири 1 4-кімнатні квартири 1-кімнатні квартири 2-кімнатні квартири Площа, м2 1067,6 352,4 352,4 187,7 564,8 377,1 150,4 150,4 Секція Секція Секція квартири вільного планування 2,1 2,2 1,1 1,2 Загальна площа поверху Найменування Загальна площа квартир В тому числі: № 1 Площа приміщень загального призначення (коридори,сходові клітини,тамбур,лоджія) В тому числі: ТЕП 19-ГО ПОВЕРХУ Секція Кільк. шт 917,2 8 1 1-кімнатні квартири 2-кімнатні квартири 3 4 - приміщення загального призначення Умовні позначення: - 1-кімнатні квартири - 2-кімнатні квартири - квартири вільного планування -вбудовані приміщення - приміщення загального призначення Умовні позначення:
Bytový dům v Kyjevě ВИД3 ВИД2
Bytový dům v Kyjevě
Rodinný viladům
Rodinný viladům
Rodinný viladům
Obytný soubor ve Lvově
Rodinný viladům. Hlavní vstupní brána, plot
Plot pro pamětní komplex na památku obětí hladomoru v Ukrajině
Plot pro pamětní komplex na památku obětí hladomoru v Ukrajině
Polzfukční dům
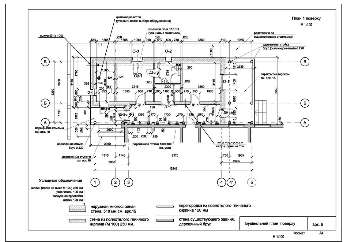
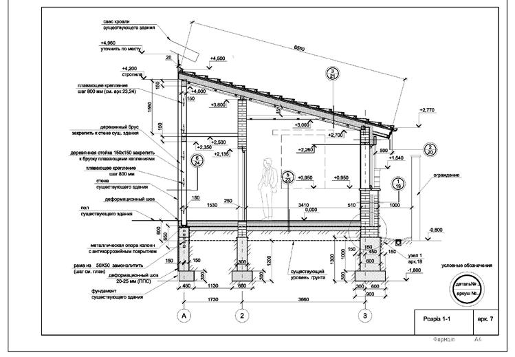
Přístavba rodinného domu
Přístavba rodinného domu

Turn static files into dynamic content formats.

Create a flipbook
Issuu converts static files into: digital portfolios, online yearbooks, online catalogs, digital photo albums and more. Sign up and create your flipbook.
Svitlana Lysenko by Svitlana_Lysenko - Issuu