archmsu2022thesis_SUTIMAPHORN_02

Page 1

36 พิพิธภัณฑ์พระกรุนาดูนและนครจาปาศรี (Na Dun Buddha Amulet and Champasri Ancient city museum.) [A143] เทคนิคการจัดแสดงภาพในอาคาร 4.5 วิเคราะห์ความสัมพันธ์และพื้นที่ใช้สอยโครงการ [A144] ภาพวิเคราะห์ความสัมพันธ์และพื้นที่ใช้สอยโครงการ

4.6 วิเคราะห์ความต้องการด้านเทคโนโลยีอาคาร

1.ระบบโครงสร้างทั่วไปของอาคาร ใช้โครงสร้างคอนกรีตเสริมเหล็กก่ออิฐมวลเบา เพราะเข้ากับบริบทและความแข็งแรงอาคารในสภาพ

โครงถักและโครงหลังคาให้เกิดความสวยงามของอาคาร ในการตกแต่ง

2.โครงสร้างอื่นๆ

บริเวณพื้นที่ส่วนจอดรถและภายนอกจะมีการจัด สวนและนำบล็อกหญ้าคอนกรีตสามารถระบายน้ำได้ใน บริเวณฤดูฝนอาจมีน้ำขังสามาตกแต่งให้สวยงามได้ บริเวณพื้นที่โล่งอาจจะมีแผ่นฉนวนกันความร้อนใต้ หลังคาในการลดอุณหภูมิในอาคารและนอกอาคาร

วัสดุปูพื้นทางเดินในสวน

https://www.bloggang.com

4.ระบบวิศวกรรมไฟฟ้า

โดยในโครงการได้มีนำแผงโซล่าเซลล์ออฟกริดมา ติดตั้งเผื่อให้เป็นพลังงานแสงสว่างทั้งกลางวันและ กลางคืนให้กับโครงการลดพลังงานและมลพิษต่อบริเวณ ป่าไม้โดยรอบโครงการ

37 พิพิธภัณฑ์พระกรุนาดูนและนครจาปาศรี (Na Dun Buddha Amulet and Champasri Ancient city museum.)
พลังงาน
อากาศต่างๆอาจจะมีเหล็กเสริมเพิ่มเติมเข้ามาในส่วนของ
[A145] ภาพจาก
[A146] ภาพจาก ระบบโซล่าเซลล์ออฟกริด
5.ระบบรักษาความปลอดภัย มีระบบ CCTV เผื่อรักษาความปลอดภัยต่อผู้เข้า ชมวัตถุโบราณของมีค่าและดูแลความปลอดภัยโดยรอบ ทั้งหมดอาคารเพราะบริเวณพื้นที่รอบข้างอยู่ในเขตสวน รุกขชาติและมีพื้นที่เป็นสาธารณะค่อนข้างเปิด จึงเห็น ความสำคัญในการนำมาใช้กับโครงการ
http://www.sunpro-solar.net

[A147] ที่มา ARCHITECT DATA

พื้นที่การชมงานศิลปะสื่ออิงผนัง 1.44 x 2.46

ผ่าศูนย์กลางการมอง 2.85 เมตร

คำนวนพื้นที่ (2.00x2.85 + 1.4)x1.46 = 10.36 ตรม.

ระยะการมองงาน = 2.00x2.85 = 5.70 เมตร

พื้นที่ทางสัญจร (30%)(10.36x30) = 310.80/100

= 3.10 ตรม.

10.36+3.10 = 13.46 ตรม.

ประมาณ 8 ผนัง = 107.68 ตรม.

[A148] ที่มา ARCHITECT DATA

(4.20x4.20) = 17.64 ตรม.

ระยะการมองงาน 0.60-1.20 เมตร

(30%) (17.64x30) = 529.20/100 = 5.30

17.64+5.30 = 22.9

12 ตู้ = 274.80 ตรม.

[A149] ที่มา ARCHITECT DATA พื้นที่การชมงานศิลปะภาพการพิมพ์และสื่อ

(1.950x1.32) +1.40x1.06 ตรม. = 4.058 ตรม.

ระยะการมองงาน 1.950x1.320 = 2.574 เมตร พื้นที่ทางสัญจร (30%)(4.05x30) = 121.5/100 = 1.21

4.058+1.21 = 5.26

ประมาณ 8 จอ = 42.08 ตรม.

[A150] ที่มา

ระยะการมองงาน 1.20 = 1.44

ประมาณ 8 จอ = 11.52

38 พิพิธภัณฑ์พระกรุนาดูนและนครจาปาศรี (Na Dun Buddha Amulet and Champasri Ancient city museum.)
4.7 คำนวณพื้นที่โครงการ
พื้นที่การชมงานประติมากรรมหุ่นจำลอง คำนวนพื้นที่
พื้นที่ทางสัญจร
ประมาณ
คำนวนพื้นที่
วิชาการพิพิธภัณฑ์ พื้นที่การชมงานศิลปะสื่ออิงผนังเเบบ 1 บุคคล คำนวนพื้นที่ (1.20
1.20)
x
ตรม.
ตรม [A151
ที่มา วิชาการพิพิธภัณฑ์ พื้นที่การชมงานศิลปะสื่ออิงผนังเเบบ 2 บุคคล คำนวนพื้นที่ (1.20x2.40) = 2.88 ตรม. ระยะการมองงาน 1.20 เมตร ประมาณ 8 จอ = 23.04 ตรม.
]

[A152] ที่มา ARCHITECT DATA

2.40x2.40 = 5.76 ตรม.

1.40 เมตร

ประมาณ 8 จอ = 46.08 ตรม.

[A153] ที่มา

(3.00x3.00) = 9.00 ตรม.

0.60-1.20 เมตร

(30%)(9.00x30) = 270/100 = 2.70

10 ตู้ = 27.00 ตรม. [A154] ที่มา วิชาการพิพิธภัณฑ์

(4.20x4.20) = 17.64 ตรม.

ระยะการมองงาน 0.60-1.20 เมตร

พื้นที่สัญจร (30%)(17.64x30)

= 529.20/100 = 5.30

17.64+5.30 = 22.94

10 ตู้ = 229.4

[A155] ที่มา

39 พิพิธภัณฑ์พระกรุนาดูนและนครจาปาศรี (Na Dun Buddha Amulet and Champasri Ancient city museum.)
พื้นที่การชมงานสื่อเเบบภาพฉาย คำนวนพื้นที่
ระยะการมองงาน
วิชาการพิพิธภัณฑ์ พื้นที่การชมงานประติมากรรมหุ่นจำลอง คำนวนพื้นที่
พื้นที่สัญจร
ประมาณ
พื้นที่การชมงานประติมากรรมหุ่นจำลอง คำนวนพื้นที่
ระยะการมองงาน
ประมาณ
ตรม.
วิชาการพิพิธภัณฑ์ พื้นที่การชมงานสื่อเเบบภาพประกอบเสียง คำนวนพื้นที่ 1.00x0.80 = 0.80 ตรม. ระยะการมองงาน 1.40 เมตร ประมาณ 8 จอ = 6.40 ตรม. [A156] ที่มา ที่มา ARCHITECT DATA พื้นที่การชมงานโมเดลผังเมือง 4 มิติ คำนวนพื้นที่ 3.60x3.20 = 11.52 ตรม. ระยะการมองงาน 1.20-1.40 เมตร ประมาณ 5 โมเดล = 57.60 ตรม.

Rr 22/7r = 36.80/2 = 18.42

=22/7 x 18.42 x 18.42 = 1,066.36 ตรม

36 คน

40 พิพิธภัณฑ์พระกรุนาดูนและนครจาปาศรี (Na Dun Buddha Amulet and Champasri Ancient city museum.) พื้นที่จำลองโดมและสื่อดิจิตอลภาพฉาย คำนวนพื้นที่
สูตรการหาพื้นที่วงกลมผ่าศูนย์กลาง
ความจุคนประมาณ
[A157] คำนวนพื้นที่ใช้สอย
41 พิพิธภัณฑ์พระกรุนาดูนและนครจาปาศรี (Na Dun Buddha Amulet and Champasri Ancient city museum.) [A158] คำนวนพื้นที่ใช้สอย
42 พิพิธภัณฑ์พระกรุนาดูนและนครจาปาศรี (Na Dun Buddha Amulet and Champasri Ancient city museum.) [A159] คำนวนพื้นที่ใช้สอย [A160] คำนวนพื้นที่ใช้สอย
43 พิพิธภัณฑ์พระกรุนาดูนและนครจาปาศรี (Na Dun Buddha Amulet and Champasri Ancient city museum.) [A161] คำนวนพื้นที่ใช้สอย [A162] สรุปการคำนวนพื้นที่ใช้สอย

3.มุมมองโครงการ

4.ศักยภาพในการเรียนรู้

5.เชื่อมโยงเมืองโบราณและเเหล่งที่ค้นพบวัตถุโบราณ

สภาพทั่วไป พื้นที่ส่วนใหญ่เป็นพื้นที่ราบลุ่ม

44 พิพิธภัณฑ์พระกรุนาดูนและนครจาปาศรี (Na Dun Buddha Amulet and Champasri Ancient city museum.) บทที่ 5 แนวความคิดที่ตั้งโครงการ 5.1 พื้นที่ตั้งโครงการ พื้นที่โครงการตั้งอยู่ในบริเวณเขตอนุรักษ์ชนบทและเกษตรกรรม [A163] 1 การเลือกที่ตั้ง 3 พื้นที่ในจังหวัดมหาสารคาม อ.นาดูน นั้นอ้างอิง จากเกณฑ์การเลือกที่ตั้ง โครงการดังนี้ 1.การเข้าถึงกลุ่มเป้าหมาย 2.เชื่อมโยงกับสถานที่ท่องเที่ยว
เพาะปลูก พื้นที่ส่วนใหญ่เป็นที่นาและการเกษตร ตำบลนาดูนมี 10 หมู่บ้าน มีเนื้อที่ 22.50 ตารางกิโลเมตร ทิศทางพื้นที่ ทิศเหนือ ติดกับตำบลดงยาง อ.นาดูน ทิศใต้ ติดกับตำบลหัวดง อ.นาดูน ทิศตะวันออก ติดกับตำบลพระธาตุ อ.นาดูน ทิศตะวันตก ติดกับตำบลดงดวน อ.นาดูน สภาพแวดล้อมทางกายภาพ อาคารมนพื้นที่เป็นกลุ่มอาคารพักอาศัยกระจายตัวอยู่ ตามหมู่บ้าน โดยทั่วไปจะเป็นอาคารสูง 1-3 ชั้น ส่วนใหญ่ เป็นอาคาร 2 ชั้นเป็นบ้านพักอาศัยทรงจั่ว เป็นทาว์โฮม 3 ชั้น และอาคารพาณิชย์กรรม ตลาดและศูนย์ราชการ ระดับอำเภอ ส่วนใหญ่เป็นอาคารสร้างขึ้นใหม่และอาคาร เดิมที่ถูกปรับปรุง อาคารก่ออิฐฉาบปูนส่วนใหญ่ เส้นทางหลักเข้าถึงสู่อำเภอนาดูน เส้นทางสู่อำเภอนาดูนเข้าได้ 2 เส้นทางหลักคือ เส้นทางที่มาจาก อำเภอวาปีปทุม-พยัคฆภูมิพิสัย เส้นทางที่มาจากอำเภอนาเชือก-นาดูน วิเคราะห์ว่าเส้นทางหลักที่มีปริมาณการจราจรหนาเเน่น เป็นเส้นทางหลักที่ผู้มาเยือน อ.นาดูนคือเส้นทางจาก อ. เมืองมหาสารคาม-อ.พยัคฆภูมิพิสัย-อ.วาปีปทุมเป็นถนน ทางหลวง 2 เลน และ 4 เลน
ลาดลงจากทิศเหนือสู่ทิศ ใต้ ลักษระดินเป็นดินร่วนปนทรายเหมาะสำหรับการ
45 พิพิธภัณฑ์พระกรุนาดูนและนครจาปาศรี (Na Dun Buddha Amulet and Champasri Ancient city museum.) 5.2 ผังแสดงพื้นที่สำคัญในบริเวณพื้นที่ใกล้เคียงโครงการ [A164] ผังแสดงพื้นที่สำคัญในบริเวณพื้นที่ใกล้เคียงโครงการ [A165] ผังแสดงพื้นที่ค้นพบหลุมพระสถูปเดิม และพื้นที่ประดิษฐานองค์พระสถูปองค์ใหม่
46 พิพิธภัณฑ์พระกรุนาดูนและนครจาปาศรี (Na Dun Buddha Amulet and Champasri Ancient city museum.)
66
[A167]ภาพวิเคราะห์ย่านพื้นที่ทำการเกษตรและบริเวณค้นพบพระบรมสารีริกธาตุ
[A1
] ภาพวิเคราะห์ย่านเมืองโบราณนครจำปาศรี
47 พิพิธภัณฑ์พระกรุนาดูนและนครจาปาศรี (Na Dun Buddha Amulet and Champasri Ancient city museum.) [A168] ภาพวิเคราะห์ย่านพื้นที่อำเภอนาดูนและพระธาตุนาดูน [A168] ภาพวิเคราะห์ย่านพื้นที่อำเภอนาดูนและพระธาตุนาดูน

6.1 ด้านคติความเชื่อในการออกแบบ

[A169] กระบวนการเชื่อมโยงความเชื่อในการออกแบบ

6.2 แนวคิดด้านรูปแบบอาคาร

[A170] [A171]

[A170],[A171] ภาพสเก็จการออกแบบโดยการถอดแบบจากสถาปัตยกรรมพื้นถิ่น

48 พิพิธภัณฑ์พระกรุนาดูนและนครจาปาศรี (Na Dun Buddha Amulet and Champasri Ancient city museum.) บทที่
6 แนวความคิดและการออกแบบ
49 พิพิธภัณฑ์พระกรุนาดูนและนครจาปาศรี (Na Dun Buddha Amulet and Champasri Ancient city museum.) [A172] ภาพ concept โครงการ 6.3 วิเคราะห์ Zoning จากบริบทรอบข้างโครงการ [A173] ภาพ Zoning จากบริบทรอบข้างโครงการ
50 พิพิธภัณฑ์พระกรุนาดูนและนครจาปาศรี (Na Dun Buddha Amulet and Champasri Ancient city museum.) [A174] ภาพ
6.4 ผลการออกแบบครั้งที่ 1 [A175] Funtion diagram ครั้งที่ 1
Zoning จากบริบทรอบข้างโครงการ
51 พิพิธภัณฑ์พระกรุนาดูนและนครจาปาศรี (Na Dun Buddha Amulet and Champasri Ancient city museum.)
[A176] ภาพ iso matric ครั้งที่ 1 [A177] ภาพ iso matric ครั้งที่ 1
52 พิพิธภัณฑ์พระกรุนาดูนและนครจาปาศรี (Na Dun Buddha Amulet and Champasri Ancient city museum.) 6.5 ผลการออกแบบครั้งที่ 2 [A178] ภาพ iso matric ครั้งที่ 1 [A179] ทัศนียภาพภายนอกโครงการ ครั้งที่ 2
53 พิพิธภัณฑ์พระกรุนาดูนและนครจาปาศรี (Na Dun Buddha Amulet and Champasri Ancient city museum.) [A180] ทัศนียภาพภายนอกโครงการ ครั้งที่ 2
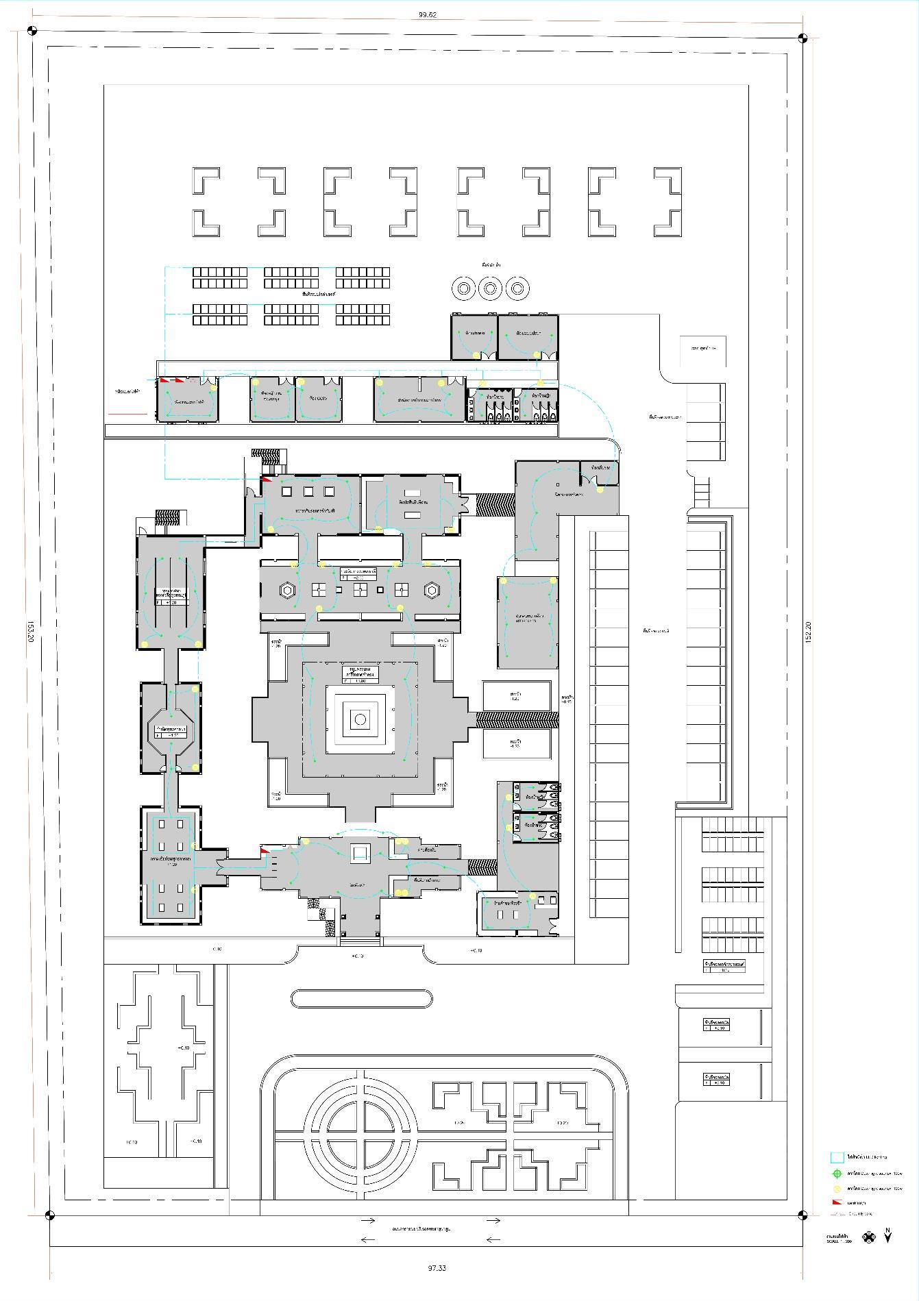
54 พิพิธภัณฑ์พระกรุนาดูนและนครจาปาศรี (Na Dun Buddha Amulet and Champasri Ancient city museum.) 6.6 ผลการออกแบบครั้งที่ 3 [A181] แปลนผังพื้นชั้น 1
55 พิพิธภัณฑ์พระกรุนาดูนและนครจาปาศรี (Na Dun Buddha Amulet and Champasri Ancient city museum.) [A
182] ภาพผังหลังคา
56 พิพิธภัณฑ์พระกรุนาดูนและนครจาปาศรี (Na Dun Buddha Amulet and Champasri Ancient city museum.)
[A183] ภาพ ISO MATRIC ผังอาคารโครงการ [A184] ภาพ ISO MATRIC ผังอาคารโครงการ
57 พิพิธภัณฑ์พระกรุนาดูนและนครจาปาศรี (Na Dun Buddha Amulet and Champasri Ancient city museum.)
185] ภาพ ISO MATRIC ผังอาคารโครงการ 6.7
[A
ผังงานระบบในโครงการ
[A186] ผังระบบปะปา
58 พิพิธภัณฑ์พระกรุนาดูนและนครจาปาศรี (Na Dun Buddha Amulet and Champasri Ancient city museum.) [A187] ผังระบบไฟฟ้า
59 พิพิธภัณฑ์พระกรุนาดูนและนครจาปาศรี (Na Dun Buddha Amulet and Champasri Ancient city museum.) [A188] ผังระบบปรับอากาศ
60 พิพิธภัณฑ์พระกรุนาดูนและนครจาปาศรี (Na Dun Buddha Amulet and Champasri Ancient city museum.) 6.8 รูปด้านโครงการ [A189] ภาพรูปด้าน [A190] ภาพรูปด้าน
61 พิพิธภัณฑ์พระกรุนาดูนและนครจาปาศรี (Na Dun Buddha Amulet and Champasri Ancient city museum.) [A191] ภาพรูปตัด [A192] ภาพรูปตัด
62 พิพิธภัณฑ์พระกรุนาดูนและนครจาปาศรี (Na Dun Buddha Amulet and Champasri Ancient city museum.)
ทัศนียภาพโครงการ
6.9
[A193] มุมทัศนียภาพภายนอกบริเวณพระธาตุนาดูนและโครงการ [A194] มุมทัศนียภาพภายนอกบริเวณโครงการ
63 พิพิธภัณฑ์พระกรุนาดูนและนครจาปาศรี (Na Dun Buddha Amulet and Champasri Ancient city museum.) 6.9.1 ทัศนียภาพโครงการ [A195
[A196] มุมทัศนียภายภายนอกบริเวณโครงการ
] มุมทัศนียภายภายนอกบริเวณสถูปจำลอง
64 พิพิธภัณฑ์พระกรุนาดูนและนครจาปาศรี (Na Dun Buddha Amulet and Champasri Ancient city museum.)
A
[A197] บริเวณโครงการและภาพมุมมองแนวแกนพระธาตุนาดูน [
198] บริเวณสวนหน้าโครงการและภาพมุมมองแนวแกน
65 พิพิธภัณฑ์พระกรุนาดูนและนครจาปาศรี (Na Dun Buddha Amulet and Champasri Ancient city museum.) 6.9.2 ทัศนียภาพภายในโครงการ [A199] ห้องจัดแสดงกำเนิดพุทธศาสนา [A200] บริเวณสมาคมพระเครื่องในโครงการ [A201] บริเวณสถูปจำลองค้นพบพระธาตุนาดูน
66 พิพิธภัณฑ์พระกรุนาดูนและนครจาปาศรี (Na Dun Buddha Amulet and Champasri Ancient city museum.)
ภาพโมเดลโครงการ
โมเดลจำลองอาคาร
[A202] ห้องจัดแสดงทวารวดีและนครจำปาศรี 6.9.3
[A203]
[A204] โมเดลจำลองอาคาร
โมเดลจำลองอาคาร
[A205]
[A206] โมเดลจำลองอาคาร

พิพิธภัณฑ์พระธาตุนาดูนและนครจำปาศรีเป็นศูนย์กลางการเรียนรู้และอนุรักษ์พื้นที่บริเวณพระธาตุ นาดูนเป็นพื้นที่อนุกรักษ์

ทำกิจกรรมสมาคมและศึกษาต่างๆทำให้สร้างรายได้ให้แก่ ชุมชนและองค์กรที่ดูแลพระธาตุนาดูนและยังทำให้คุณภาพพื้นที่คุณภาพชีวิตผู้คนดีขึ้น สอดคล้องกับประเพณีและพิธีทางศาสนา

และออกมาเป็นสถาปัตยกรรมที่เข้าใจง่ายแล้วเข้าถึงเข้าใจจึงเน้นความเป็นพื้น

1.เนื่องจากไม่ค่อยเก่งเรื่องการออกแบบ และการลดทอนตัวอาคารให้ดูขนาดเล็กลงหรือดูไม่เป็นกลุ่มก้อนจึงทำให้ดู ทึบในช่วงการออกแบบช่วงแรกจึงทำให้มีการยกเลิกแบบเดิม ล้มแบบทำใหม่บ้างทำให้ Function ทางสัญจรไม่ค่อยดี

2.การทำงานด้าน graphic design ในด้านการนำเสนอยังไม่ดีเท่าที่ควรต้องฝึกฝนการนำเสนอรูปแบบต่างๆอีก มากมายต้องมีความชัดเจนในด้านรูปแบบโครงการและ

67 พิพิธภัณฑ์พระกรุนาดูนและนครจาปาศรี (Na Dun Buddha Amulet and Champasri Ancient city museum.) บทที่
สรุปผลการศึกษา
นามธรรมคติธรรม
ถิ่นเน้นความเข้ากับสภาพแวดล้อมธรรมชาติ ไม่ก่อมลพิษ ไม่โดดเด่นหรือข่มอาคารรอบข้างเกินไป ปัญหาในการศึกษาและออกแบบ ปัญหาที่พบระหว่างการทำวิทยานิพนธ์ คือ อาคารที่เคยสร้างหรือเคยเกิดขึ้นขององค์ต่างๆที่เข้ามามี ส่วนร่วมในการฟื้นฟูพื้นที่นาดูนนั้น ได้ปิดตัวลงไปอย่างถาวร เหลือเพียงกู่สัตรัตน์ที่ยังเปิดใช้บริการให้ศึกษา จึงเป็นข้อคิดที่ค่อย ข้างยากในช่วงทำการออกแบบ ว่าจะทำอย่างไรให้น่าสนใจและใช้งานได้ดีไม่เหมือนกับโครงการที่ผ่านมา ข้อเสนอแนะ
7 สรุปผลการศึกษา
วัตถุโบราณสมัยทวารวดี เป็นพื้นที่พูดคุย
ที่สำคัญแสดงออกเป็นรูปธรรม
การนำเสนอ

http://www.nadoon.net/nadoon/?page=about

68 พิพิธภัณฑ์พระกรุนาดูนและนครจาปาศรี (Na Dun Buddha Amulet and Champasri Ancient city museum.) บรรณานุกรม สืบค้นจากหนังสือ สืบค้นจาก หนังสือ ทวารวดีในอีสาน ผศ.ดร. รุ่งโรจน์ ธรรมรุ่งเรือง สำนักพิมพ์มติชน สืบค้นจาก หนังสือ ประวัติศาสตร์สถาปัตยกรรมไทย พัฒนาการ แนวความคิด และคลี่คลายรูปแบบ บทที่ 2 สถาปัตยกรรมสมัยทวารวดี,อาจารย์วิโรจน์ ชีวาสุขถาวร สืบค้นจากหนังสือ คติ สัญลักษณ์ และความหมายของซุ้มประตู - หน้าต่างไทย สำนักพิมพ์ คณะสถาปัตยกรรม ศาสตร์ มหาวิทยาลัยศิลปากร,อ.สมคิด จิระทัศนะกุล สืบค้นจาก หนังสือ สืบสานสถาปัตยกรรมไทย 3,4 ภาควิชาสถาปัตยกรรมศาสตร์จุฬาลงกรณ์มหาวิทยาลัย โรง พิมพ์แห่งจุฬาลงกรณ์มหาวิทยาลัย สืบค้นจาก หนังสือ กรมศิลปากร.วรรณกรรมสมัยรัตนโกสินทร์เล่ม 1 (หมวดศาสนจักร)คัมภีร์ มหาวงศ์.กรุงเทพฯ:กองวรรณคดีและ ประวัติศาสตร์,2534 ตรีอมาตยกุล, “โบราณสถานเมืองโบราณที่พงตึก” นิตยสารศิลปากร มิถุนายน,2480 พระวาจิสสรเถระ พระคัมภีร์ถูปวงศ์ตำนานว่า ด้วยการสร้างพระสถูปเจดีย์ พิมพ์เป็นอนุสรณ์ 27 มีนาคม พ ศ 2511. สถาพรขวัญยืน “การขุดแต่งโบราณสถานที่อำเภอนาดูนจังหวัดมหาสารคาม” นิตยสารศิลปากร ปีที่ 24 ฉบับที่ 2 พฤษภาคม,พ.ศ.2523 จีราวรรณ แสงเพ็ชร บทคัดย่อ การประดิษฐานพระบรมสารีริกธาตุสมัยทวารวดี,การประดิษฐานพระบรม สารีริกธาตุสมัยทวารวดี สืบค้นสืบค้นจากเว็บไซต์ มูลนิธิพระบรมธาตุนาดูน,พระธาตุนาดูน ศูนย์ศึกษาประวัติศาสตร์นครจัมปาศรี
โครงถัก หรือโครงข้อหมุนในงานสถาปัตยกรรม (Truss Structure) https://www.wazzadu.com/article/4597 สืบค้นจาก ความสับสน ในงานสถาปัตยกรรมไทย,Silpawattanatham – ศิลปวัฒนธรรม
สืบค้นจาก พิพิธภัณฑสถานแห่งชาติ พระนคร https://th.wikipedia.org/wiki/พิพิธภัณฑสถานแห่งชาติ พระนคร สืบค้นจาก พิพิธภัณฑ์บริติช พิพิธภัณฑ์บริติช - วิกิพีเดีย (wikipedia.org) พิพิธภัณฑ์ลูฟวร์ พิพิธภัณฑ์ลูฟวร์ - วิกิพีเดีย (wikipedia.org)
https://www.silpa-mag.com/art/article_5280

E-mail pang.ben10@gmail.com

69 พิพิธภัณฑ์พระกรุนาดูนและนครจาปาศรี (Na Dun Buddha Amulet and Champasri Ancient city museum.) ประวัติผู้ศึกษา ชื่อ นางสาวศุฑิมาภรณ์ จินาพันธ์ วันเกิด วันศุกร์ ที่ 26 กุมพาพันธ์ พ.ศ.2542 สถานที่อยู่ปัจจุบัน 140 หมู่ 12 กิโลศูนย์ ต.เขื่องคำ อ.เมือง จ.ยโสธร หมายเลขโทรศัพท์ 095-1688715
สถานที่ฝึกงาน บริษัท เอ็กต์เปอร์ สตูดิโอ (XPER STUDIO) จำกัด อ.ลำลูกกา จ.ปทุมธานี วิทยานิพนธ์ พิพิธภัณฑ์พระกรุนาดูนและนครจำปาศรี ประวัติการศึกษา ประถม โรงเรียนอนุบาลยโสธร มัธยมต้น โรงเรียนยโสธรพิทยาคม มัธยมปลาย โรงเรียนยโสธรพิทยาคม มหาวิทยาลัย มหาวิทยามหาสารคาม คณะสถาปัตยกรรมศาสตร์มาตร์ผังเมืองและนฤมิตศิลป์ ประสบการณ์เรียนและทำงาน ปี 2561 นิสิตต้นแบบพิธีพระราชทานปริญญาบัตร ประจำปีการศึกษา 2560-2561 คณะสถาปัตยกรรมศาสตร์ผังเมืองและนฤมิตศิลป์
70 พิพิธภัณฑ์พระกรุนาดูนและนครจาปาศรี (Na Dun Buddha Amulet and Champasri Ancient city museum.)

Turn static files into dynamic content formats.

Create a flipbook
Issuu converts static files into: digital portfolios, online yearbooks, online catalogs, digital photo albums and more. Sign up and create your flipbook.
archmsu2022thesis_SUTIMAPHORN_02 by Pang Sutimaphorn - Issuu