Portfolio | Selected Works 2018 - 2024

Page 1


ARCHITECTURE

PORTFOLIO 2024

Sushrut Shankar

As an architectural and urban designer, I’m driven by a passion for crafting functional, sustainable, and inclusive spaces tailored to diverse users and stakeholders. With three years’ experience as an architect in India, I’ve adeptly handled projects spanning residential, commercial, spatial planning and urban planning domains leveraging design research, critical thinking, and interdisciplinary coordination. My commitment to critical thinking and research fuels my eagerness to tackle new challenges, making me an ideal candidate for roles where creativity, problem-solving, and community engagement are paramount.

In my previous roles, led design team for seven residential projects in Pune, ensuring precision and delivery across varying scales. Partnered on local projects, overseeing design, technical aspects, and on-site construction, fostering connections with MEP and fabrication teams. Also, worked in international project drawings and BIM modeling as a Junior Architect at AECOM where I Honed technical skills and international standards understanding contributing to accurate architectural documentation globally. As an intern architect, gained exposure to working drawings, detailed Revit modeling, and active roles in rendering and design in a small firm environment.

SUSHRUT SHANKAR

URBAN & ARCHITECTURAL DESIGNER

Address:

Mobile: E-mail:

Linkedin:

SKILLS

• Urban Design

166, Gatehill Court, Nottinghill, London, UK , W113QT

+447762760969 / +971557936253

sushrutshankar24@gmail.com

linkedin.com/in/sushrut-shankar-484950225

• Waterfront Design

• Mixed Use

• Master Planning

• Social Housing

• Commercial

RESEARCH

• M.arch - Flood resilience in Urban Design

• B.Arch - Spaceframes and alternate roofings

EDUCATION

Bachelor’s ( B.Arch )

EXPERIENCE

Name

Malviya National Institute of Technology

Isha Yoga Center

2014-19

Creative Curves AECOM GDC

WORK

SOFTWARE SKILLS

Auto CAD

Date of birth

Nationality

LANGUAGES

Sushrut Shankar

15th March 1996

Indian

English , Hindi , Marathi

PERSONAL AWARDS

Academic awards

• Top 10 Thesis, Scotland, UK New Glasgow Society

• Special Mention GSA, University For Top Thesis of the Year 2023

Extracurricular awards

• Participation, Scotland (Group), Buchanan Galleries: Foster + Partners, ARUP, MLA, LDA, Landsec, 2023

Master’s ( M.Arch)

Freelance Space Mekk Architects The Glasgow School of Art 2022-24 2019 2020 2021 Intern

Gurgaon Glasgow London
Pune Coimbatore

01 THE HIVE TREE

/ Key Info

Type : Individual

Date : May 2024 - Aug 2024

Location : City center/ River Clyde

This project explores a 300-meter mixed-use skyscraper on Dubai Creek, blending public spaces, hotels, and residential units vertically. The design features twisting floor plates around a central core, optimizing daylight and offering panoramic views of Dubai. This intervention aims to address housing and space needs through multifunctional zoning, demonstrating how high-rise buildings can efficiently meet urban demands while enhancing the city’s skyline and creating a vibrant urban experience along the creek.

Step 1 - High Rise Block on Site

Step 3 - Twisting for maximum views in all directions

Step 2 - Scaling along Z-axis from hexagon to a square.

Step 4 - Adding Custom facades for Shading and daylight

Site Plan

The entrance to the building is kept towards the main access routes for ease of access and walkability of the urban block along the Dubai Creek front.

The Atrium helps in visually connecting the spaces of the same function while allowing sunlight right into the core of the structure during the daytime.

Interior View of the commercial Floor

Central Core

Floor Slabs

Isometric Structure

Explode

Diagrid
Space Frame
Facade Skin

02 THE HABITABLE WALL

“ This project is an anecdotal effort to explore the possibility of retrofitting a river edge with flood resilience design interventions. Tried on the banks of river Clyde of Glasgow , how this new imagined river front can tackle not only the future flood issues but bring the city together on it’s bank to rekindle the experience of a river as a ‘intimate’ part of the city. ”

/ Context Glasgow

/ Rising Flood Risk

The current waterfronts worldwide are not adequately prepared for climate change and are expected to become obsolete in the coming years. New development projects are devising innovative solutions to address these challenges. Some have implemented long Dyke options as flood barriers, while others have increased plinths.

The challenge lies in maintaining city’s integrity while allowing water to enter. Retrofitting rivers can not only tackle floods but also create new urban edges, enhancing the region’s urban identity.

“ How can Glasgow’s riverfront be transformed from a ‘Place signifying destination to a ‘Flood proof, PlaceLed destination ”

/Contemporary Figure Ground

/Historic Figure Ground

/Functionality

/Frontage

/ URBAN FORM EVOLUTION

STEP 1 - CREATE

The method of channeling the river in Glasgow to a consistent 80m width can expand land and improve flood resilience. This is similar to Dubai’s artificial palm islands. Shifting the weir from Glasgow Green to Kingston Bridge can also stabilize water tides, preventing water levels from rising too close to the edge fabric.

STEP 2 - ALLEVIATE

Making room for water in cities allows water to enter for flood adaptability. Public spaces along the edge enable temporary river expansion, like water squares in Rotterdam and Morocco Plaza in Ha-fen City. Circular reservoirs facilitate water flow outward, creating a slowing loop and fostering water interaction in nearby pools.

STEP 3 - ALLEVIATE

The project aimed to create a vibrant place by establishing floodable spaces for immediate use. This led to the creation of ‘rooms’ 3.5-4 meters below the river’s upper edge, providing closer access and unique identities. For example, a cafe room with cafe and restaurants is located outside the IFSC district.

STEP 4 - RESTRICT

A ’restrictive’ wall in Glasgow, inspired by early 20th-century sheds, serves as a vital part of urban infrastructure. Drawing inspiration from Glasgow’s historical sheds, the wall features upper edge courts for dynamic activities and a raised walkway 3.5 meters above street level, offering unobstructed views of the river and skyline.

/ FINAL URBAN FORM

DESIGN STRATEGIES

/ View Frames / Flooding / Street Courts

View frames have been punctured through the walls to keep a visual connect with the river and it’s rooms.

The lower courts are flooded and sacrificed so that the river can expand without flooding the city.

Every urban block is received by the courts on street level creating new frontages and access along the river edge.

new water lagoons slowing the flow of river and making it accessible.
new design proposal for St. enoch with new streets and corridoors
new bridges for better pedestrian movement across the river.
shifted tidal weir seperating the saline sea water from the fresh river water.

LOCAL EATERY ROOM GARDEN ROOM

DECKS ROOM

/ River-front Rooms / Masterplan

PARK ROOM

LOCAL EATERY ROOM

LOCAL EATERY ROOM

VIEWING DECKS ROOM

GARDEN ROOM

GARDEN ROOM

URBAN PARK ROOM

HABITABLE WALL

VERTICAL CIRCULATION

UPPER EDGE

LOWER EDGE

NEW BRIDGES

CYCLE ROUTE

ROAD NETWORK

PARKS

VIEWING
URBAN
SWIM AND SAUNA ROOM
GLASGOW GREEN ROOM
GHAT STEPS ROOM
MARKET ROOM

The habitable wall at different levels has unique responses: street courts engage public with active fronts, while elevated walkway offers restricted views of Glasgow and river. Lower deck focuses on river with specific room activities. Each river-facing room threshold is unique based on physical parameters.

GHAT STEPS ROOM MARKET ROOM
STEPS ROOM MARKET ROOM
GHAT STEPS ROOM MARKET ROOM
LOCAL EATERY ROOM GARDEN ROOM
VIEWING DECKS ROOM
URBAN PARK ROOM
SWIM AND SAUNA ROOM
GLASGOW GREEN ROOM
GHAT STEPS ROOM MARKET ROOM
LOCAL EATERY ROOM GARDEN ROOM
VIEWING DECKS ROOM
ROOM

plots

UPPER LVL LAYOUT

LVL LAYOUT

plots

LOWER DECK LVL LAYOUT 0 5 10 20 40

ROAD

/ Section @ AA’

/ Section @ BB’

“ If provision of shelter is the passive function of the house, then its positive purpose is the creation of an environment best suited to the way of life of people as social unit of space ”

THE CLOVER COURT 03

/ Key Info

Type : Bachelor’s / Individual

Date : Sep 2018 -Jan 2019

University : M.N.I.T

Location : Jaipur, Rajasthan

/ Form evolution

/ Context

The design for Clove Court in Jaipur’s walled city incorporates the concept of ‘Chowks’ as gathering points for public activities. The central triangular plaza connects pedestrian access and communal activities.

Drawing inspiration from traditional Havelis, three courtyards are integrated to enhance natural cooling and lighting for dwelling units. This strategic design pattern defines the form and relationships of communal spaces within Clove Court housing.

The study explores the integration of IG social housing into urban landscapes, considering segregation of private, semi-private, and public spaces while incorporating traditional design principles for hot, dry climate conditions.

Mass Break Align Invert

/ Urban Form

The city Grid and Hierarchy of urban spaces of the city.

Typical balconies looking over communal spaces and streets.

Figure ground for public spaces, streets and junctions.

Figure Ground of the ‘urban Block’ showing courtyards.

The new pedestrian access and major street connections through the site.

Balconies as shared communal spaces for social interactions.

Visual and spatial connections between courtyards of the site.

The visual connect from the courtyards to the balconies

The access for the individual Blocks of the site through internal routes.

The aim was to provide accessible communal spaces on every block floor, breaking down social discrimination by not providing individual balconies. This approach sparked new hobbies and talents among users, fostering a more sensitive community that embraces individual differences and fosters unity among users.

G 1 2 3 4 5

/ Unit Layouts

1BHK AREA = 50 SQM

2BHK AREA = 75 SQM

2BHK AREA = 85 SQM

1BHK AREA = 70 SQM

3BHK AREA = 95 SQM

1BHK AREA = 60 SQM

3BHK AREA = 120 SQM

4BHK AREA = 128 SQM

/ THE INNER COURTYARD VIEW OF BLOCK B

/ THE CENTRAL PUBLIC COURTYARD VIEW

UNMANISFEST ABODE 04

/ Key Info

Type : Bachelor’s Thesis / Individual

Date : Jan 2019 - May 2019

University : M.N.I.T

Location : Ahemedabad, Gujrath

ADMIN OFFICE PLAZA TOWER OF LIGHT

BAZZAR

“ How can a meditation campus along the Sabarmati riverfront in Ahmedabad harmonize private and public spaces to address urban challenges and promote mental and physical well-being in the dynamic metropolitan environment of India?

RITUAL’S AREA

The journey to stillness begins with water, centered on the Sabarmati river-front in Ahmedabad. It symbolizes adaptability and the need to flow with life’s challenges.

Leading to the first plaza is barren soil, symbolizing the earth element. It signifies stability for the seeker’s physical and mental well-being, a reminder of life’s origins and eventual return.

The path proceeds to the plaza center with the fire element. In Indian temples, it’s the ‘Deepa Stambh’ or pillar of light.

NA MAH

/ Site plan

‘ NA ’ - WATER ELEMENT ‘ MAH ‘ - EARTH ELEMENT ‘ SHI ’ -

Fire, a sacred symbol, derives energy from the sun, providing light and change and signifies the journey to Nirvana.

SHI VA YA

The path to temple embodies the wind element, influenced by water bodies for a cooler microclimate. Wind symbolizes the body - soul connection through breath, reflecting a seeker’s mental agility.

Approaching the temple, the seeker attains the final element, Ether or Akash Tatva in Sanskrit, obtained through submission to the deity. It facilitates connection with higher consciousness and meditative state.

/ Zoning and access

Modern Indian temples follow Vastu principles, featuring a cubical base and conical roof. The entrance aligns with the central axis, promoting circumambulation. Contemporary structures use concrete and steel, with skylights for enhanced interiors. The roof, adorned with pyramidal skylights, absorbs natural light, and supports coffered beams for even load distribution. Thick stone cladding and cascading columns modernize Indian

“From materialistic approach of looking outwards “

“To a conscious approach of looking inwards “

R.D.E OMAN

Retail, Dining and Entertainment

/ Key Info

Office - AECOM GDC , Gurgaon

Project Type - Mixed-Use Commercial

Project Year - 2019 to 2020

Valuation -

Work Scope -

SITE

BIM modeling of various units, detailing of plans, elevations and sections of units, site plan , site sections, interdisciplinary coordination £ 500 ,000 ,000

CONTRIBUTIONS RIBA STAGES ( ADAPTED IN ‘UK’ TERMS )

/ Project Brief

The Hayy Al Sharq project in Barka, Oman is a 1.5 million square meter entertainment and leisure theme park with a theme park, wildlife and water parks, an equestrian center, and an edutainment center. It also includes retail areas, three hotels, and 200 residential units. The scope of work involved providing schematic and detailed drawings for the master plan.

M.C-DONALD STORES 06

Office

Project Type

AECOM GDC , Gurgaon

Commercial Chain Project

Project Year 2019 TO 2020

Valuation

Work Scope

£0.2 - £1.5 million / Site

BIM modeling of various stores, demo elevations and plans, detailing of plans and elevations, wall sections and inter disciplinary coordination.

/ Project Brief

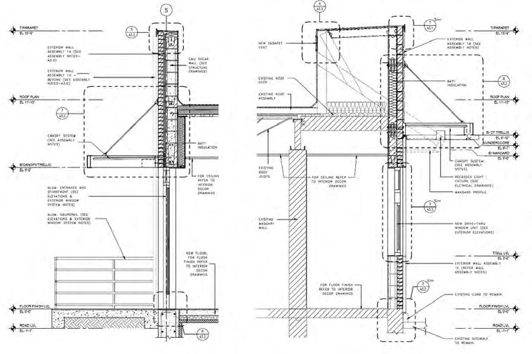
/ Key Info 4 5 3

The aim was to create a modern version of the old pitched roof structure by following the ‘BB20’ store design guideline. Depending on the original construction type, partial demolition was needed for the adaptation of newer design and technology. Created phase drawings and detailed drawings including adding trellis, canopy,

CONTRIBUTIONS RIBA STAGES ( ADAPTED IN ‘UK’ TERMS )

OLD DESIGN OF THE STORE (BEFORE 2020)
NEW DESIGN OF THE STORE (BEFORE 2020)

/ New proposed layout

/ Old layout

/ New proposed elevation

/Old elevation ( Demolition )

/ New extended wall section / New wall section

Turn static files into dynamic content formats.

Create a flipbook
Issuu converts static files into: digital portfolios, online yearbooks, online catalogs, digital photo albums and more. Sign up and create your flipbook.