Skip to main content

Case Studies for Sports Center for Para-athletes.

Page 1

CONTENT:

• Introduction

• Case Studies

3. Sports Complex For The Disabled, Iran.

4. Sports Fitness Center For The Disabled, Arizona.

• Comparative Analysis

• Site Selection

1. Shri Shiv Chhatrapati Sports Academy, Balewadi
2.Paraplegic Rehabilitation Center, Khadki

India bagged four medals at the 2016 Rio Paralympic games, India stands tall on the worlds top 10 countries to win medals at each Paralympics tournaments, Yet Indians have a lenient approach towards such a talent and barely promote sports amongst such individuals.

The idea is to design and plan a cuttingedge sports centre in India specifically for athletes with physical disabilities. The mission of the Sports Centre for Physically Challenged Athletes is to be a hub of athletic excellence, empowerment, and inclusivity. It also seeks to further the general growth and acknowledgement of the abilities of people with physical disabilities in the field of sports

NDATA COLLECTIO

There are 1.2 billion persons with disabilities in the world. They represent 15% of the global population and 80% of persons with disabilities reside in low-income countries 15%

INTERVIEWS

To have a better understanding about disabilities in the sports community interviews were taken of a para-athlete and a physiotherapist.

NO DISABILITY PERCENTAGE OF ADULTS WHO DO NOT GET SUFFICIENT AEROBIC PHYSICAL ACTIVITY AS PER THEIR DISABILITY TYPE.

About 25% of the world's population remains insufficiently active, and this number is twice as high in high-income countries

Compared to those who meet activity criteria, people who are insufficiently physically active have a 20% to 30% increased risk of all-cause mortality. The figure above shows the percentage of adults who do not get sufficient aerobic physical activity as per their disability type

As per the Census 2011, the differently-abled population in India is 26 8 million In percentage terms, this stands at 2 21% There has been a marginal increase in the differently-abled population in India, with the figure rising from 21.9 million in 2001 to 26.8 million over 10 years.

EMPOWERING ABILITIES

(Sports Center For Para-Athletes)

• The para-athlete began by expressing the transformative impact of sports on their life, highlighting the empowering nature of adaptive sports. He emphasized the importance of sports centers specifically designed for disabled athletes, envisioning these facilities as critical hubs for fostering inclusivity, skill development, and community support

• In terms of recommendations for the design of sports centers for disabled athletes, the paraathlete stressed the need for collaboration between architects, designers, accessibility experts, and the disabled athlete community. They emphasized the importance of involving athletes in the design process to ensure that the facilities meet their unique requirements.

• While the Physiotherapist stressed on the need for physical activities for disabled people, necessary setups for their therapy, therapy sessions including hydrotherapy, running, training active and non active muscles to support their weight.

• She also emphasized on the materials to be used in the sports facility like flooring, acoustic treatment, navigation tools and supports. She added on the need for a mental counselling session for athletes to motivate them in life and for their passion in sports

D. Y. P. S. O .A, PUNE SUSHUMNA. K FifthYearA(21)
INTRODUCTION
57% 40% 36% 33% 26% MOBILITY
COGNITIVE VISION HEARING

SPORTS COMPLEX, BALEWADI.

ABOUT:

• Location : Pune, MH

• Site Area : 150 acres

• Capacity : 22,000 pax

• A Part of the Indian Olympic Association

• Hosted the 2008 Common Wealth Games

• Grid Pattern Planning

• Architect : Shashi Prabhu & Associates.

• Opened: 1994

INTRODUCTION:

• Located in Balewadi on the side of the NH4 highway, has hosted the 2008 common wealth games, Khelo India Youth Games 2019, AFC Womens Leauge and is house to the future Olympians of India.

• The complex is situated about 15 km from Pune downtown and 5 km from Hinjawadi

• Field Size: 100m x 68m

FACILITIES OFFERED:

• Athletic stadium

• Velodrome

• Hockey ground

• Basketball

• Tennis

• Table tennis

• Gymnasium

SITE PLANNNING AND ACCESS

• Entry from East and South direction

• Inside the campus, only pedestrian movement is permitted

• Vehicular access is provided only till the parking zone

• The grid planning offers a decent accessibility to all facilities but the absence of a diagonal approach makes it time consuming to access multiple faculties at once.

• Parking were provided in 2 separate zones, with 414 car parking and 1800 bike parking in front of the athletic ground.

• Services yard behind the car parking equipped with DG and Water tanks

MOVEMENT IN THE SITE:

• There are 2 main entries and 2 exits to the complex.

• Grid planning allows a planned accessibility to the facilities

• The landscape around these pedestrian walk ways are very well organised and cater to the need of the complex.

Landscaping:

• Landscape plays in a important role in motivating humans especially ports person needs an environment which seeks in keeping fresh to them. The use of local natural and trees is used in this complex.

• Palms trees, neem, eucalyptus and huge local trees are present.

• Trees are planted on the walk ways providing shade and cooling effect during the day

• Pathways are 4 lane as shown in the sketch below

ROADS AND WALKWAYS:

• Aquatic center

• Badminton

• Weightlifting

• Wrestling

• Boxing

• Fencing/ shooting

EMPOWERING ABILITIES

(Sports Center For Para-Athletes)

• 4 lane road with walkways

• Walkways of 1.5m wide

• Crosswalks at every intersection

• Tress planted on the sidewalks

SHRI SHIV CHHATRAPATI
Fig: Ariel View Of The
Stadium
Pedestrian Vehicular
Parking Residence outside the complex
K Fifth Year A (21)
Fig: Walkways and Crossways D. Y. P. S. O .A, PUNE SUSHUMNA.

5. Tennis Arena

• Cap: 1500 pax

• It consists of 4 competition courts and 6 courts for practice

• Air conditioned hall with changing rooms and VIP seating

FACILITIES:

1. Velodrome/ Cycling arena:

• Previously used as media and velodrome now is a cycling arena.

• Area: 333.3 sq m

Fig:

2. Athletics:

• All athletics are practiced here

• Seating: 11,000 pax

• 8 lane race track

• 4 floodlights

3. Boxing arena:

• 3 rings for competition

• 5 warm up rings

• Cap: 3500 pax Seating Women's changing Gents changing Competition ring

6. Basketball Arena

• This facility consists of 5 competition courts and 4 warmup courts.

• Well equipped with changing rooms and Air conditioned seating halls

• Capacity: 4000 pax

7. Badminton Arena

• This facility has 6 competition courts and a capacity of 3800

• This facility consists of 5 competition courts and 4 warmup courts.

8. Aquatic center

• It has 2- 50x25m with 2.1m depth pools one of which is a warmup pool and the other is a competition pool

• A diving fool of 6m depth and a wading pool.

• Changing rooms are provided.

The images show the type of wall acoustic treatments that have been used, glass wool with wall panels that are acoustically treated.

The ceiling also is related with acoustic material in a concave pattern allowing proper reverberation

(Sports Center For Para-Athletes)

• A covered seating is provided at the 1st & 2nd level.

Diving pool Competition pool Warm up pool Wading pool Mens changing room Womens changing room Seating Pump Room

Fig: View Of The Stadium View Of Velodrome
up ring Warm up ring Warm up ring Warm up ring Warm up ring
Warm
Fig: Analytic plan
of
boxing arena SHRI SHIV CHHATRAPATI SPORTS COMPLEX, BALEWADI. Warm up Competition court Warm up Womens changing Mens changing Practice courts
Fig: Analytic plan of tennis arena Fig: Plan Badminton Arena Fig: Views of Aquatic Center
K Fifth Year A (21)
Fig: Analytic plan of Aquatic Center
D.
Y. P. S. O .A, PUNE
SUSHUMNA.
EMPOWERING ABILITIES

SHRI SHIV CHHATRAPATI SPORTS COMPLEX, BALEWADI.

FACILITIES:

9. Table tennis:

• This facility consists of 6 warmup and 6 competition courts.

• With a capacity of 1400 pax.

• It is air conditioned with Changing rooms and VIP seating

Women's changing Gents changing Warm up Competition table Competition table Competition table

11. Hockey Arena:

• Initially the facility had regular users, as time passed a lot of the arena remains unused and rarely conducts any sports events or even practices.

Fig: View for Hockey Field

12. Shooting/ Fencing:

Fig: Analytic Plan for Hockey

Structural systems and Materials Used

• Steel Structural frames are used for roofing and long span systems are used in the making

• Wooden flooring in indoor arenas w channels for disposal of water

• Curved cellular beams in the indoor arena for roofing

• Acoustic treatments in indoor facilities with boards and other insulation materials.

10. Gymnasium

Gymnasium is provided with changing rooms, air conditioned hall and all acts of gymnasium are performed here

Wooden flooring in indoor arenas with proper channels for disposal of water Seating

• Fencing arena was divided into 2 block

• The first block had the 10m and 50m arena for shooting

• The second block consisted of 25m shooting ranges

• Additionally a locker room for the equipment's and a room for physical examination was also present at this facility.

• The facility was air conditioned and the ranged had seating and viewing spaces as well.

Fig: Images show the 10m fencing arena

Universal Design and it’s Approach towards Paraathletes

• Universal Design is kept in mind while designing this complex, 2m wide ramps are provided at the entrance of each facility.

• Lifts with 2m×1.5m are provided in all facilities.

• Counters are at a height of 0.9m to facilitate wheelchair accessibility

(Sports Center For Para-Athletes)

Fig: Acoustical treatments for walls and ceilings

Fig: Cellular bands

Inferences: INFERENC ES POSITIVE NEGETIVE

Site plan Impressive design keeping nature alongside keeping athletes mental health in mind

Parking Arrangement of parking is done systematically

Zoning Zoning is well planned making all major facilities accessible

No diagonal walkways

No segregation in parking is done

Staff quarters, hostels and food services are outside the campus making it inaccessible during practise hours

Stadiums Oriented north-south Lacks aesthetics

Indoor stadiums Good aesthetics and design perspectives

Food facility Café is provided for visitors in the NE corner of the site

Lack of natural light and ventilation

Food facility is provided inside the hostels in the SE corner of the site which becomes hectic during practice sessions

D. Y. P. S. O .A, PUNE

Fig: Analytic Plan for Table Tennis Fig: Wooden Floor Fig: Long Span Trusses
K Fifth Year A (21)
SUSHUMNA.
EMPOWERING ABILITIES

PARAPLEGIC

REHABILITATION CENTER, KHADKI.

ABOUT:

• Location : Khadki, Pune, MH

• Site Area : 41600 sqm

• Capacity : 117 pax

• A Part of the Indian Olympic Association

• Grid Pattern Planning

• Architect : Anand Uplekar & Associates.

• Opened: 1974

INTRODUCTION:

• A lot of soldiers from the armed forces, navy and Airforce who are injured during the course of their duty are taken into this academy.

• This rehabilitation center doesn't just provide accommodation to such individuals but also helps them gain confidence, live with dignity and as an important part of the society.

• At present 78 members are rehabilitated in this center, though the capacity of this center is 117.

FACILITIES OFFERED:

• Athletic race course

• Badminton ground

• Basketball

• Tennis

• Table tennis

• Aquatic center

• Art center

SITE PLANNNING AND ACCESS

• The site is located at 500 m from Khadki Railway station and the yellow lines represents the main road which is the major access to the site

• The secondary internal roads are all made of Tar.

• There is a peripheral road which goes about the entire site for services.

Fig: Zoning

• Accommodations

• Physiotherapy

• Healthcare center

• Library

• Workshops

• Workstations

LANDSCAPING:

• Landscape plays in a important role in motivating humans especially ports person needs an environment which seeks in keeping fresh to them. The use of local natural and trees is used in this site.

• Palms trees, neem, eucalyptus and huge local trees are present.

• Trees are planted on the walk ways providing shade and cooling effect during the day

• Pathways are 4 lane as shown in the sketch below

• Parking were provided inside the campus at 100m from the entry with 4 car parking and 8 bike parking .

• Services yard at the north corner, equipped with DG and Water tanks

Residence

Sports and activities

Parking Workshops

Open spaces

MOVEMENT IN THE SITE:

• There are 2 main entries and 2 exits to the complex.

• Grid planning allows a planned accessibility to the facilities

• The landscape around these pedestrian walk ways are very well organised and cater to the need of the complex.

Movement

Entry & Exit

Site boundary

Fig: Image showing the movement inside the site

• Not just that there is also a dedicated green space for wheelchair movement

Fig: Park

ROADS AND WALKWAYS:

• Roads and walkways can be divided into 2 major categories

• First is the main entry which has a footway and a drive way of 6m and 2 m respectively

• Second is the movement roads inside the campus which are 6m wide paver roads.

• It is well connected with ramps

View of the center
Fig:
Fig: Image showing green and open spaces
Fig: Main entry
D. Y. P. S. O .A, PUNE SUSHUMNA. K FifthYearA(21)
Fig: Internal roads
Para-Athletes)
EMPOWERING ABILITIES (Sports Center For

PARAPLEGIC REHABILITATION CENTER, KHADKI.

FACILITIES:

1. Basketball court:

• Basketball court is situated on the west side of the campus.

• Wheelchairs used in the complex are different than the ones used in day to day uses

2. Athletics:

• All athletics are practiced here, ranging from high jumps, disc throws, javelin throws and wheelchair race

• 8 lane race track

3. Badminton court (indoor and outdoor):

• 2 courts are present.

• Mostly used for practise purposes

• Indoor badminton court is used for table tennis as well

• The building consists of 2 courts, changing rooms, water dispenser area, storerooms

Women's changing Gents changing

T.T T.T Seating

Badminton court

Badminton court

4. Aquatic center

• It has a 50x15m with 0.9m depth pool

• The pool is used for hydrotherapy and also for swimming practice.

• The pool has to be maintained at a constant temperature for which they use solar powered sheets to warm the pool

• As persons with spinal injury cant support themselves there is a machine for the mechanical lifting and supporting them into the pool.

• The aquatic center consists of female washrooms, pumprooms, storerooms and a coach's room.

6. Workshops:

• Most of the athletes are in the age group of 25-35, they not only participate in sports but also take part in workshops held for them at an industrial level.

• The athletes work for tech companies and call centres during the day.

• Work Station Facilities for them are created inside the campus.

Fig: Inside workstations

7. Academics and Library:

5. Physiotherapy:

• Along with first aid and other medical facilities there is also a physiotherapy cabin

• 4 beds with 1 doctors cabin

• Physiotherapy sessions for up to 20 mins per week is taken up for the athletes.

lobby

Fig:

Physiotherapy cabin

• The athletes that live here not only have access to library and education but are located 20 m from Pune university and thus attend classes and study to get a degree along with practising sports.

• A library is provided within the dormitories

• Computer lab and artists rooms are provided in the centre for education purposes

• The daily schedule for thee athletes is that they work on their mental health and academics during the morning and in the evening concentrate on their physical well being and sports activities.

8. Accommodation:

• With 117 beds and 30 rooms for accommodation, the centre provides a very well equipped accommodation facility inside the centre.

• The accommodation block consist of 30 rooms with 4 beds each, 1 attached washroom and storage per person

• Along with this there is also a eatery and a lounge in the centre for the athletes.

• the eatery has a total capacity of 40 Pax with a kitchen where the food for the entire campus is prepared.

Fig: Views Of The race course Fig: Basketball court Fig: Analytic plan of badminton zone Pump Room Pool Womens changing Mens changing Coach room Fig: Analytic plan of Aquatic Center Fig: Basketball Wheelchair Fig: Machine for assistance Fig: solar sheet for heating water
Waiting
Storage Beds Beds Doctors Cabin Beds Beds Washroom
Analytic plan Fig: Inside library and computer labs
D. Y. P. S. O .A, PUNE SUSHUMNA. K FifthYearA(21)
EMPOWERING ABILITIES (Sports Center For Para-Athletes)

STRUCTURAL SYSTEMS & MATERIALS USED

PARAPLEGIC REHABILITATION CENTER, KHADKI.

UNIVERSAL DESIGN AND IT’S APPROACH TOWARDS PARA-ATHLETES

• Universal Design is kept in mind while designing this complex, 2m wide ramps are provided at the entrance of each facility.

• Counters are at a height of 0.9m to facilitate wheelchair accessibility

• Sill level of 0.3 m is maintained through out

• The door sizes are 1.75m wide and 2.1m high

• Aling with this, 1.8m wide ramps are provided through out the campus for universal accessibility through the entire campus

• The toilets are designed in very much detail catering to the needs of a para-athlete

• Equipment used in the center are very thoughtful and easy to operate without any hustle.

• Structural systems is mostly column and beams

• The entire campus is a ground floor only structure

• Steel Structural frames are used for roofing and long span systems are used in the making of the roof of the pool

• Metal roofing is preferred in these areas

• Wooden flooring in indoor areas w channels for disposal of water

• Also used as insulating material

• Acoustic treatments in indoor facilities with boards and other insulation materials.

• Flooring throughout the campus is made of anti skid tiles

• Paver blocks of lower threshold is preferred as people with disabilities also have to be able to move with their legs and a higher threshold might not permit it.

• There are guide handles to every corridor which provides ease in walking in case of amputees

EMPOWERING ABILITIES

(Sports Center For Para-Athletes)

Inferences: POSITIVE NEGETIVE

Site plan

Universal accessibility and Connectivity throughout

Parking Parking is provided near the entrance for easier facilitation of athletes

Zoning Zoning is well planned making all major facilities accessible

-

No diagonal walkways

• No segregation in parking is done.

• Not enough space is provided for parking

Outdoor Sports Oriented north-south Lacks aesthetics and proper planning

Indoor stadiums

Good aesthetics and design perspectives

Eatery facility

Eatery is provided inside the facility with proper designated space indoor and outdoor creating a good ambience

Lacks seating space in case of competitions

Lack of proper seating and table facilities creates quite a hurdle for users

Fig: Wooden Floor Fig: Toilets designed for para-athletes Fig: Showing ramps for accessibility Fig: Heights of washbasins and towel handles Fig: Ramps for accessibility Fig: Steel roof truss Fig: Insulation materials Fig: Anti-Skid Tiles Fig: Railing guides and pavers with lower frictional threshold Fig: Section through the swimming pool Fig: Section through the swimming pool
D. Y. P. S. O .A, PUNE SUSHUMNA. K FifthYearA(21)
Fig: Detail of Swimming pool finish

SPORTS COMPLEX FOR THE DISABLED, IRAN.

ABOUT:

• Location : Tehran, Iran

• Site Area : 5000 sq m

• Takes care of Disabled Athletes and their sports in Iran.

• Single Block Building plan

• Architect : Experimental Branch of Architecture.

• Opened: 2011

• Built-up Area: 1800 sqm

• Use: Public spaces

INTRODUCTION:

• More than 3 million disabled of natural disasters, accidents and Iran-Iraq war are living in Iran.

• They are so vulnerable and forgotten due to the lack of urban facilities and other special services.

• In 2007, Cultural-Social Administration of Tehran municipality, decided to construct a cultural-sport complex for disabled in each 22 Tehran districts, in order to increase these kinds of facilities.

• Thus, one physical program was prepared by initiatory consultant and was advised to all districts to have a same program for all of these complexes.

SITE APPROACH AND LOCATION

• Situated in District no. 20 of Tehran, The plot area of the building is surrounded by major roads and secondary roads.

• Site is located in a predominantly residential, followed by a few commercial and mixed use spaces.

Cultural

MOVEMENT IN THE SITE:

• There are 1 main entry and 2 exits to the complex.

• Single block plan facilitates most of the crowd into a proper direction

• The landscape around these pedestrian walk ways are very well organised and cater to the need of the complex.

• There is a park on the open side of the site which imbibes into the building

• Parking were provided in the north side of the complex providing an entry from the north

• The building is situated on the edge of the main road providing an ease in commute

• The red represents secondary roads and the yellow represents the main road.

LAND USE PATTERN

• Site is located in a predominantly residential, followed by a few commercial and mixed use spaces.

CLIMATIC CONDITION AND SITE STUDY

• The wind direction for the site is from north-west to south east.

• It experiences composite climate

• Average high temperatures are between 32 and 37 °C

• Summers are hot, arid, and clear and the winters are very cold, dry, and mostly clear.

Fig: View for sports complex for disabled, Iran Sports Complex for Disabled, Tehran Fig: View inside the north entrance Fig: Fig showing Land use pattern
D. Y. P. S. O .A, PUNE SUSHUMNA. K Fifth Year A (21)
ABILITIES
Center
Fig: Fig showing Site orientation and climatic condition
EMPOWERING
(Sports
For Para-Athletes)

SPORTS COMPLEX FOR THE DISABLED, IRAN.

FACILITIES:

• Cultural-sport complex for the disabled contains these spaces:

• The administrative sector and cultural sector contain of Library, Gallery, Amphitheater, media center.

• The educational sector contains of a conference hall, training classes, and workshops.

• Sports sector contains:

1. Pool

2. Steam Sauna

3. Hydrotherapy Pool

4. Table Tennis Hall

5. Gym, Fitness

6. Shooting Hall

7. Multipurpose Hall

8. Chess Room

9. Wheelchair park

• Service contains of Buffet, Public hall, place of worship, parking utility and circulation.

FLOOR PLANS:

• The ground floor comprises of the administration area with cabins for the president, vice president, staff. and conference room towards the eastern side, entrance towards the northern side and library towards the western side.

• The structure is divided into two functional boxes separated by an atrium between the two boxes from second to fourth floor.

• The functional box towards the west comprises of gymnasium, shooting range and locker rooms in the first floor, table tennis and chess room in the second floor and multipurpose hall on the fourth floor box towards the east comprises of training, counselling

• The functional box workshop rooms in the first and second floors, and an auditorium in the fourth floor and fifth floor

• Fifth floor is an extension of the fourth floor comprising multipurpose hall and auditorium and an athletic wheel chair track on the roof

Library

Circulation

Public Spaces

Vertical Zoning

• The vertical zoning for the complex has been highlighted through the figure where central atrium has the accessible ramps which connects to different spaces like the multifunctional hall, restaurant and amphitheater etc.

Fig: View of the building Fig: Analytic plans of the center Fig: Conceptual Vertical zoning
D. Y. P. S. O .A, PUNE SUSHUMNA. K Fifth Year A (21) EMPOWERING ABILITIES (Sports Center For Para-Athletes)

INFERENCES:

• The disabled sports complex in Tehran, Iran consists of a single building structure that includes various sports facilities for the para-athletes namely: basketball, table tennis, chess, swimming and shooting.

Accessibility

Considering the comfort of the disabled athletes, the northern facade of the centre has been dedicated to cores, where importance has been given to ramps that runs through the entire length of the building and connects the different levels together.

• Another intriguing factor about the sports complex is that different functions, i.e. culture, sports and education have been coherently clubbed together in order to formulate the design and these functions have been merged in such a manner that the working of any of the functions, remains unaffected by the other.

• Further, considering the convenience and comfort of the disabled athletes, the entire northern facade of the building has been dedicated to the cores, where specific importance has been given to ramps that runs through the entire length of the building and connects the different levels together, thereby ensuring efficient and hassle-free movement of the para-athletes.

SPORTS COMPLEX FOR THE DISABLED, IRAN.
Fig: Analytic 2 nd , 3 rd and roof plans of the center Fig: Sections through the ramps Fig: Sections through the center Fig: Sections through the center
Library Circulation Public Spaces Overall circulation D. Y. P. S. O .A, PUNE SUSHUMNA. K Fifth Year A (21) EMPOWERING ABILITIES (Sports Center For Para-Athletes)

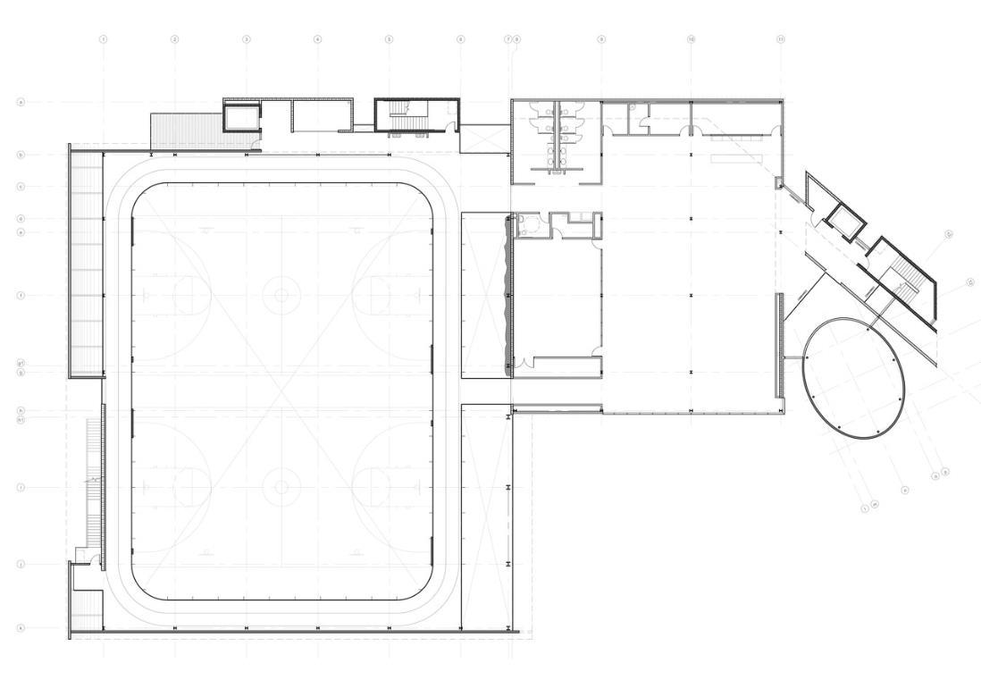
CENTER FOR THE DISABLED, ARIZONA, USA

ABOUT:

• Location : Arizona, USA

• Site Area : 4180.6 sq m

• Takes care of Disabled Athletes and gives them a sense of security and a way to live.

• Single Block Building plan

• Architect : Ballinger Arch. Studio.

• Opened: 2012

• Built-up Area: 1800 sqm

• Use: Public spaces

INTRODUCTION:

• The Sport and Fitness Center, nestled in the heart of Arizona, serves as an architectural marvel dedicated to the well-being and inclusivity of disabled athletes.

• Against the backdrop of Arizona's unique landscape and cultural diversity, this case study explores the center's commitment to innovative and accessible design, fostering an environment that champions the athletic aspirations of individuals with disabilities.

SITE ZONING AND LOCATION

• Situated in the center's design is deeply influenced by the Arizona landscape, featuring a seamless integration with the surrounding environment. The choice of materials and the building's orientation consider the region's climate, maximizing natural light and ventilation while minimizing energy consumption.

MOVEMENT IN THE SITE:

• There is 1 main entry and exits to the complex.

• Single block plan facilitates most of the crowd into a proper direction

LAND USE PATTERN

• Site is located in a predominantly commercial space, followed by a Public spaces, green spaces and Residential spaces.

CLIMATIC CONDITION AND SITE STUDY

• Arizona is characterized by a diverse climate owing to its varied topography, ranging from low desert areas to high mountainous regions. The state generally experiences a semiarid to arid climate, with some areas having a cold desert climate.

• Strong winds, known as haboobs, which are dust storms caused by downdrafts from thunderstorms. These winds can lead to reduced visibility and occasionally affect air quality.

• It has an unique climate and cultural diversity, the center has become a focal point for promoting health, fitness, and community engagement. Fig: View

• The landscape around these pedestrian walk ways are very well organised and cater to the need of the complex.

• The walkways are designed to be 2m wide and with proper access according to the need of the users.

SPORTS AND FITNESS
for sports complex for disabled, Arizona
Sports
Parking Zone Pool Changing rooms Vehicular Access Pedestrian Access Library Sports center Parking Disabled Parking Admin N
Fig: Fig showing Site orientation and climatic condition
arena
circulation
Fig: Fig showing Site
D. Y. P. S. O .A, PUNE SUSHUMNA. K FifthYearA(21)
Center For Para-Athletes)
Fig: Fig showing
circulation
EMPOWERING ABILITIES (Sports

SPORTS AND FITNESS CENTER FOR THE DISABLED, ARIZONA, USA

FACILITIES:

1. AdaptiveSportsComplex: Specialized facilities and equipment for adaptive sports, promoting inclusivity.

2.FitnessCenter: Fully equipped for cardiovascular exercises, strength training, and adaptive workouts.

3. Indoor Track: Climate-controlled track with wheelchairaccessible features.

4.AquaticsCenter: Heated pool with ramps and lifts for adaptive swimming and water aerobics.

5.SportsCourts: Basketball and tennis courts with adjustable features for traditional and adaptive sports.

6.OutdoorRecreationalAreas: Outdoor spaces for holistic well-being and inclusive outdoor workouts.

7.TherapyandRehabilitationFacilities: Specialized facilities and staff for physical therapy and rehabilitation.

8.CommunitySpaces: Spaces for social interactions, educational programs, and community events.

Circulation Washrooms/Changing room Court

Seating Space Spectators seating Conference Space Gym

Indoor Athletic Track

Outdoor Pool:

• The Aquatics Center includes a heated pool, ensuring a comfortable environment for users of all abilities.

• Specialized programs and classes are tailored for adaptive swimming, allowing individuals with varying abilities to engage in water-based activities.

Fig: View of the building
FIRST FLOOR PLAN.
Fig: Basketball court
GROUND FLOOR PLAN.
Fig: Changing rooms Fig: Athletic Track Fig: Gym Fig:Fig:Washrooms Washrooms Fig: Corridors Fig: Seating lobby and reception Fig: Outdoor Pool
D. Y. P. S. O .A, PUNE SUSHUMNA. K FifthYearA(21) EMPOWERING ABILITIES (Sports Center
For Para-Athletes)

SPORTS AND FITNESS CENTER FOR THE DISABLED, ARIZONA, USA

DESIGN PHILOSOPHY:

• FormandStructure

The architectural form is both functional and inspirational. Purposeful design allows for the integration of specialized areas equipped for disabled athletes, ensuring that the structure itself is an embodiment of accessibility.

• SpatialDesignandPlanning

The layout is meticulously crafted to offer open, accessible spaces, promoting ease of movement and interaction among users.

• SustainabilityPractices

The center's commitment to sustainability aligns with its inclusive ethos

STRUCTURE:

• The building is a steel and concrete construction. Trusses are used to span large spaces like the basketball courts and exercise floor.

• Diagonal bracing, and shear walls are used to help resist lateral loads.

• All loads are transferred to the ground by the columns throughout the building.

• The building is supported by a concrete slab foundation with concrete footings supporting major structural loads.

UNIVERSAL DESIGN AND ACCESSIBILITY:

• UniversalDesignPrinciples: The Sport and Fitness Center goes beyond compliance, embracing universal design principles that cater to the varying abilities of disabled athletes.

The incorporation of ramps, wider pathways, and tactile indicators reflects a commitment to ensuring universal access.

• AdaptiveSportsInfrastructure: Specialized equipment and adaptive sports infrastructure are integral components of the center's design. From adaptive workout stations to facilities for inclusive sports, the center is a testament to providing disabled athletes with the tools they need to excel.

• The center adapts a barrier free circulation throughout the space.

• Accessible Parking: The facility includes accessible parking spaces to facilitate convenient access for individuals with disabilities.

• TactileIndicators: Tactile indicators, such as textured surfaces and braille signage, are incorporated to assist individuals with visual impairments in navigation.

EMPOWERING ABILITIES

(Sports Center For Para-Athletes)

INFERENCES:

POSITIVE NEGETIVE

Site plan Universal accessibility and Connectivity throughout Absence of service entries

Parking Parking is provided near the entrance for easier facilitation of athletes

Zoning Zoning is well planned making all major facilities accessible

Outdoor

Sports Oriented north-south -

Indoor stadiums

Good aesthetics and design perspectives

Eatery facility Eatery facility with proper designated space indoor and outdoor creating a good ambience

• No segregation in parking is done.

Zoning could have been better if the athletic track would have been outdoors

Lacks seating space in Athletic track, Wall climbing wall does not cater to the sport properly

Eatery is not located inside the building making it quite hectic to move inside and outside there building for breaks

Fig: Section through the basketball court Fig: Section through the athletic track and fire exit Fig: Showing the Structural members Fig: overall view of the center Fig: rear view Fig: Safety and fire exit
D. Y. P. S. O .A, PUNE SUSHUMNA. K FifthYearA(21)
Fig: Swimming pool and hydrotherapy

Turn static files into dynamic content formats.

Create a flipbook