FOLIO
2025- SELECTED WORKS
BY SUSHMITHA SRIDHAR
SUSHMITHA SRIDHAR
REGISTERED ARCHITECT
Nationality: Indian
Date of birth: 14-12-1995
Phone: +91 8248405027 Bengaluru, India mailtosushmithasridhar@gmail.com
CAREER OBJECTIVE
Certified architect with a strong academic foundation from a top global architecture university in Italy. Specializing in conservation and restoration, as well as sustainable architecture frameworks. With 2 years of hands-on experience, I am a self-driven and dynamic professional eager to further develop my academic and practical expertise in the domain of architecture. Highly motivated to contribute to innovative, sustainable design solutions.
ACADEMIC QUALIFICATIONS
Master of Science in Building Architecture Politecnico di Milano, Milan, Italy
• Grade: 94/110 or 85.4%
Sept 2019 - April 2022
• Thesis on restoration and conservative transformation of “società umanitaria”, a historical architectural complex in Milan.
Bachelor of Architecture Anna University, Chennai, India
• Cgpa: 7.19 or 71.9%
Aug 2014 - Jul 2019
• Thesis on contemporary performance space that reconciles the concepts of architecture, acoustics, sound, perception, and anthropology into a single interdisciplinary perspective of aural architecture.
PROFESSIONAL EXPERIENCE
Associate Retail Planning Tesco, Bengaluru, India
Sept 2023 - Present
As a Retail Store Planner at Tesco, I manage multiple high-volume projects, focusing on the interior design and layout of both large and convenience stores across the UK.
• Working closely with project managers and business owners, I deliver strategic store plans aligned with key business initiatives, ensuring timely and efficient execution.
• Collaborating with cross-functional teams, optimizing space, and supporting business goals to enhance the customer experience and drive store performance.
Junior Architect
Studio HD Architects, Chennai, India
Jun 2022 - Jan 2023
• Provided support to other disciplines and collaborated on design projects to ensure that the project documents are coordinated with others.
• Developed presentation materials including proposals, designs, sketches, and technical documentation.
Architectural and Interior design Internship
Studio Minerbi, Milan, Italy
Oct 2021 – Nov 2021
• Worked on initial design development along with interior and exterior design solutions for residential project.
Architectural and Interior design Internship
Chandarr & Associates, Chennai, India
Jun 2017 – Mar 2018
• Contributed to a diverse range of projects in the design and planning phase, as well as preparing construc- tion drawings for residential and commercial projects.


Certificate of Completion
Congratulations, Sushmitha Sridhar
Revit 2020: Essential Training for Architecture (Metric)
Course completed on Sep 13, 2022 at 05:21PM UTC • 12 hours 10 min
By continuing to learn, you have expanded your perspective, sharpened your skills, and made yourself even more in demand.

Head of Content Strategy, Learning
Certificate Id: AcP3smeHUH1rLGUQWyfKdTC8YCmz
LinkedIn Learning
1000 W Maude Ave Sunnyvale, CA 94085


Certificate of Completion
Congratulations, Sushmitha Sridhar
Introduction to Graphic Design: Concepts
Course completed on Aug 10, 2022 at 11:17AM UTC • 52 min
By continuing to learn, you have expanded your perspective, sharpened your skills, and made yourself even more in demand.

Head of Content Strategy, Learning
Certificate Id: AW3-Z9rb-54uIGZlFJrHK4xNeuUP
LinkedIn Learning 1000 W Maude Ave Sunnyvale, CA 94085

SushmithaÊSridhar
LeanÊAssociate hasÊbeenÊrecognisedÊasÊa
forÊsuccessfulÊdemonstrationÊofÊtheÊexpertiseÊand experienceÊrequiredÊtoÊimplementÊandÊembedÊLean

SeptemberÊ17,Ê2024


01 02 03 04 05 06
Student Housing Masters design

Societa Umanitaria Masters Thesis

Residence Bachelors design

Professional practice

Office complex Bachelors design

Structural Modeling Masters design

STUDENT HOUSING
Zona Farini, Milan, Italy
The project is to develop a student housing in the city of Milan, Italy located within one of the masterplan’s scenarios defned by OMA’s and Laboratorio Permanente’s winning proposal for the competition for the area called Scalo Fariniand titled AgentiClimatici.
The project is designed in such a way that it provides new forms of relations between private and public programs and the relative support spaces, as well as the ones between individual and collective living in order to provide a wholesome experience for the students.
There are two main towers consisting of the typical floors, mostly of private and semi-private functions with various types of rooms for the students which are connected by a central atrium with common spaces for students. The tower is connected with the Lancetti station with its underground level. The curved structure consisting of public functions creates a central plaza and also serves as a focal point from the entrance. The lower levels of the towers consist mainly of public functions which is not restricted to just the students but can also be used by the neighbourhood


























Typical room section with operable window



The student rooms are located from the 4th floor till the 24th floor which provides more privacy for the students. Each floor is provided with study boxes where students can collaborate with eachother.

Each room is provided with an operable window which can be adjusted according to the weather conditions and the internal comfort.


SOCIETA UMANITARIA
Milan, Italy
Masters Thesis
The “Società Umanitaria” architectural complex, is located in Milan and is a historical city fabric, which is itself a long-term urban architecture transformation. The design approach on restoration and transformation of the Societa Umanitaria complex is based on preserving the heritage and enhancing its architectural characteristics and its historic values, proposing functions to revive the Societa Umanitaria complex. The entrance on Via San Barnaba is made as the primary entrance to the site for the visitors to access the cloisters.
The design strategies include reorganizing the existing spaces with new programs and functions without much architectural intervention that blends the old and the new to create something interesting. The transformation is based on creating visual permeability through the cloisters connecting the new entrance and the garden areas. There is an addition of a new pavilion whose design proposal is based mainly on creating a new multifunctional space that could be used by the users of Umanitaria as well as the public in the neighbourhood.










The Design proposal consists of addition of new pavilion by taking advantage of the corner with the intersection of two axis, with the concept of juxtaposing the new upon the old, with a contrasting approach with the use of contemporary materials. It helps in creating a sense of modern freshness to the Umanitaria complex. The pavilion is constructed using metal frames and glass panels to make it a light structure. The use of glass helps is providing visual permeability to the structure.
In the Cloisters there is no visual connection between the indoor and outdoor space due to the existing wooden doors. The transformation is based on providing visual permeability and transparency through the cloisters. The new intervention is modular, recognizable and contemporary in nature. This connection between the old and the new is accomplished seamlessly with the use of glass openings that do not disturb the harmony of the existing building.
Isometric assembling view of pavilion



Structural Intervention





Intervention of openings in cloister of Glicini





1. Demolition of existing doors
2. Strengthening brick column with metal frame
The transformation is based on providing visual permeability and transparency through the cloisters connecting the new entrance and the garden area. This is done with minimal intervention through the addition of glass openings in the walls of the cloisters.
3. Demolition of bricks from the existing wall on either side
The process consists of demolition of existing walls and strengthening of the brick column by using metal frames which helps in carrying the loads of the existing structure. C-shaped steel beams are used for the connections. After creating the openings by demolition of existing walls on either side the new glazing is placed.
4. Creating openings in new strenthened structure
5. Placement of new glazing in the opening

RESIDENCE
Undergraduate project
This is a residential project, where we were asked to design a residence that is suitable to the site, along the sea shore. The main aim of the building is to make the best use of the site conditions by providing maximum views and vistas. The public and semi public spaces are zoned in the ground floor and private spaces are zoned in the first floor to provide more privacy and comfort.There are two large balconies on the first floor which serves as a connection between the interior and exterior.
The facade has a simple massing in contemporary style with some bold projections to highlight the spaces inside. The use of wooden paneling on the exterior creates a contrast between that portion and the rest of the toned down parts. At night the subtle light makes it seem even warmer and more beautiful as the texture of the wood becomes prominent and charming.

Ground Floor Plan


First Floor Plan




The entry is through a small foyer, which opens into a large living room with combined dinning and leads to an open lawn which is designed to enhance a relaxing sensory experience creating a connection between the interior and exterior.
The living room acts as a focal point and all the other spaces radiate from here. The use of Double-height gives an illusion of extra space. This open on the living and dining area on the upper level creates a link between the living spaces and the bedrooms on the upper floor.
The use of light and warm tones in the living and dining areas make the room more cozy and inviting. The use of a combination of ambient, accent and task lighting creates uniform illumination and enhance and strengthen the characteristics of the space by highlighting areas of interest and architectural details.


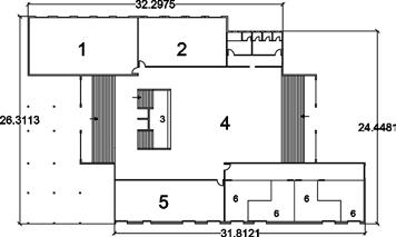
PROFESSIONAL PRACTICE

Ground floor Plan
First floor Plan
Second floor Plan
The proposed Concept aims to create light-filled living spaces that helps in improving health and comfort leve;s of the building. A maximum number of French windows is provided in the residence in order to facilitate natural lighting and ventilation thereby reducing artificial light requirements. This residence features two courtyards that create openness and a double-height ceiling in the living room for a sense of space.



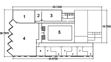
Ground floor Plan
First floor Plan
Second floor Plan
The proposed villa is of over 5500 Sqft builtup area, with privacy as the main point of interest. The aim is to balance a desire for privacy against the desire to enjoy one’s surrounding,.Nature and light, as well as surrounding views, are allowed into the home while also managing the amount of space exposed to the public gaze.The design consists of a number of informal spaces and in order to incorporate privacy into the design, private outdoor spaces in the form of interior courtyard is proposed. It’s planned as a central cut out space with the core areas that continue for two floors, making the entire transition space more inviting and grand.

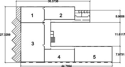
The proposed residence is located on a linear site consisting and modernistic design letting inside a lot of natural light are a number of open terrace and balconies proposed in interior spaces creating a harmonious atmosphere for a
consisting of three floors. The main idea was to create a simple light making the interior extremely bright and cozy. There in the design that seamlessly connects the outdoor with the healthy modern lifestyle.

Terrace floor Plan
Longitudinal Section
Cross Section
OFFICE COMPLEX
GRIHA - Competetion project
GRIHA is one of the focal organisation that reduces the building energy sources against the non -eco friendly environment.The design ensures us to create positive sustainable environment for Experion.It enables to create built through integrity between technologies and users.
The aim of this project is to create an office complex in a sustainable and environmentally friendly design. The design consists of an office complex witha banquet hall and a parking lot. The various prindiples of sustainability such as the passive cooling techniques which includes Earth berms, Wing walls, Solar chimneys, Warka trees and L-chambers with respect to the site conditions are used in the design to enhance the overall comfort of the users.





Climatic analysis
The climatic factor on site tends to be extremely hot during summers and cold in winters. So, the design is responded with passive design techniques.




Traffic and Pedestrian
The intersection of SH and NH parallel to the site boundary makes it an high amenity zone.On analyzing the pedestrian movement through the site,the corners are left open to reinforce and respect movement.

Sensory and Views
The design has to be an stand alone self sustaining structure creating views at the front and parallel sides of the site and by blocking the view through the site at the rear ends.

Slope and Drain
The natural drain is towards the south west side of the site draining towards sea.The zoning is done considering the natural drain pattern zoning parkings and other low profile structures at rear end.

Ground floor plan - Office complex



Solar Chimneys
1.Meeting room
2.Display area
3.Reception
lobby
Structural / Architectural floor

Legend Legend
1.Open space
2.Reprography
The earth berm is used at the junction of the banquet hall and office space providing a cognitive feel displacing each space. The space accentuated by the earth berm proves to be a passive cooling technique without any active means.

The air within the space is driven out by cold winds through vents which has to fling off so they are brought up by the stack effect.
Warka trees
It condenses the moisture content and precipitates down as potable water.The tree can be optimized to provide shade without,any active means


Wing Walls
The wing walls along the west side are used to permit the light.Reducing the bounce back radiation it also serve as barrier to avoid harsh hot winds. When air hits the bottom portion of window it dashes towardds the inner room maintainig the space cooler always.


L-Chamber
The L-Shaped workspace helps to keep workers in iteration shunning the regular health hazards to generate the exumberance.


1.HR Cabin
Department
3.CEO Office
Department 3.Meeting room 5.Server room Office floor plan Meeting area plan

lobby
space
Structural Modeling in Architecture and Numeric computation
Mountain Dwelling by BIG Architects


Architecture & Engineering points of view:
The building has been divided by zones in propotions 1/3 living and 2/3 parking. Main concept idea is covering parking with the inclined slab of apartments with terraces. Parking itself is the an open space only with columns inside, closed by sides covered with a transparent enclosure with the mountain print, covered above. So it means that the apartment slap surrounded by the street from all the sides, even from below.
The model is drawn in AutoCAD and then imported to MIDAS from dxf format. Since the whole structure model of the mountain is made by the same repetitive system of blocks, with same measures for height and width and only decreasing in number of blocks from the back to the front and to the sides, by suggestion we made a central section of the volume, leaving the representative shape and main heights.






Displacement


Chosen section



Reaction force at restraints


Internal force in the beams


INDIAN INSTITUTE OF ARCHITECTS - INSTALLATION, 2017 PAINTING




MODEL MAKING


LIVE SKETCHING

ARCHITECTURE PORTFOLIO BY SUSHMITHA SRIDHAR