Architecture Portfolio

Page 1


Sushmita Gautam

Portfolio

Namaste! I am Sushmita..

To start my story, let me recall the first time I could differentiate between a ‘vacant space’ and an ‘open space’, and how ‘streets’ aren’t just for commuting, I learned how Architecture could go beyond the traditional ‘built spaces’. Fortunately, I come from Kathmandu, a place of traditional architecture and a modern blend of urban settlements. Places are not just spaces here; the traditional city is carefully designed where there’s nothing you can’t find. It has been long known how a city should be planned for people without needing to read heavy books. Well, urban cities have begun to develop to keep up with the pace of the world. My interest in studying urban planning and design was further sparked by the challenge of designing an urban city while keeping in mind the traditional methods. I am looking forward to pursue graduate studies with a focus on Urban Planning and Design, where I could improve my knowledge and which will allow me to reflect on what I’ve learned thus far.

01 02 03 04 05

Redevelopment of Kalimati...

Bridging Communities...

Thesis/ Academic 2024 Urban Design/ Academic 2023

Conservation of Traditional...

Conservation Studio/ Academic 2023

Bridging the Gap

Academy Hall/ Competition 2024

Photography

Extras -

Redevelopment of Kalimati Vegetables and Fruits Market:

Defining a Sense of Place in a Marketplace

Location: Kathmandu, Nepal

Year: 2024

Typology: Urban Market

Supervisor: Ar. Shova Thapa

Kalimati Vegetable and Fruits Market has the potential to become a social hub due to its location and commercial importance. However, the market faces issues such as improper circulation, solid waste management issues, poor shop layout, stall design, and incompatible zoning with the functions of markets. This thesis explores ways to overcome the problems through different design approaches. Successful urban markets require well-designed circulation and efficient use of space. This study explores the possibility of marketplaces as public spaces where many forms of sociability can occur.

The project indicated that markets offered an important public and social space for different groups in the neighborhood as a location for vibrant social contacts and social inclusion. In an urban region, marketplaces are the sites that most people pass through daily. Because of this, marketplaces should serve as a public center rather than merely a location to sell and buy. The study investigated several ways to modify an existing marketplace in a compact urban environment and applied them to a re-developed market that improves the area’s sense of place.

A warm day in communal space of the proposed Kalimati Market

Urban Pattern

Irregular urban pattern, indicating organically developed regions, and shows the characteristics of old towns, blocks of the area are not clearly defined, looks permeable but is not straightforward and might bring confusion.

Road Network

Site is connected to the major highways, has close proximity to the ring road connecting the market with regions outside the valley is connected to the minor arterials and local streets as well, making the site permeable from a distance.

Existing Case of Kalimati Vegetables and Fruits Market

Existing Placemaking startegies

a) Newspaper Wall, b) Occasional boxing programs during off-hours
c) Preparation for cultural program in Dashain
Open Space vs Built Space
Exisiting Market Uses, Various market types, scattered buildings.
Exisitng Circulation pattern pattern, Conflict Points indicated by red dots
Exisitng entrance pattern to the market, is perforated and accessible through multiple entrances.

Why Kalimati Market?

Redevelopment Strategy

Intangible aspects of existing Market into Proposed Market

Maintaining existing Market uses and heirarchy of the market. Maintaining existing thoroughfare, without changing the existing pattern of the masterplan.

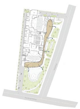
Masterplan

Separating Pedestrian and Vehicular

Perspective section showing relationship between different entitites of the marketplace.

3D view showing the Dabali, Farmer’s Market at the ground floor and offices at the top floor.
3D view showing the front Plaza, amphitheatre, and top floor social spaces.

02

Bridging Communities: A Sustainable, Inclusive, and Connected Neighborhood Design

Re-imagining Gongabu Town Planning

Location: Kathmandu, Nepal

Year: 2023

Typology: Neighbourhood Design

Supervisor: Dr. Subik Kumar Shrestha, Ar. Animesh Shrestha

Involvement:

Group Members: Arbind B. Magar Garima Neupane Mandeep Gurung Pragya Upadhaya Sushmita Gautam

• Collaborated with group members during the site analysis and conceptual phase.

• Collaborated with team members on the final design, specifically contributing to the development of the public plaza area.

The project aims to connect the commercial and residential areas by increasing the permeability of commercial boundaries using open, accessible designs. It improves the residential core by increasing walkability and integrating local facilities, establishing a strong community identity. A wide mix of land uses fosters a vibrant, balanced community where residents can live, work, and interact. Public spaces promote community connection, and store-fronts and workspaces empower local entrepreneurs, boosting economic vibrancy and inclusivity.

The design aims to create a vibrant community by mixing land uses. Commercial areas are on the main ringroad, residences are spreadout, and the central area leads to a park with markets and community buildings. Tall condos surround houses, and mixed-use buildings are on the primary road. .

Existing Site of Gongabu planning area

Urban Connectivity

Intersection of Legibility, Public Nodes, and Traffic Node.

Traffic Analysis and Zoning

The site has three main roads: primary, secondary, and tertiary.Busparks ease traffic on the primary road,while diagonal andsecondary roads improve connectivity. Tertiary roads prioritizepedestrian and cyclist safety, with pocket parks and cafes between junctions.Traffic and public nodes are strategically located for optimal connectivity. .

Increasing porosity of commercial edges to strengthen residential core Creating a Dynamic and Diverse Neighborhood through Land Use Variety. . Fostering community interaction Empowering local entrepreneurship by providing affordable storefronts and workspaces. .

The Community Parks

The Park features two parks, with one located next to the community hall and market area, while the other is situated within the residential core. These parks serve as vibrant public spaces, attracting peoples during their daily commutes. They are equipped with seating areas, recreational facilities and children play area to enhance visitor’s experience.

Central Plaza and Park

The main park features a large plaza space adjacent to the community center and market hall, allowing the market to expand as needed. The plaza can host a variety of cultural and political functions. Passers-by are given with adequate seating along the sidewalks. A children’s play area and leisure activity section with exercise equipment and TT tables are also available .

Pocket Park

A pocket park is designed in the residential core near the school premises, where seating is provided as well as a picnic table that can also act as a study table for the students. .

Eye- Level view of the central park featuring side walks and seatings for passerby.
The Alleys with only pedestrian accessibility.
Eye-level view of the Pocket Park.

Conservation of Traditional and Modern Houses at Itumbahal, Kathmandu

Group Members:

Location: Kathmandu, Nepal

Year: 2023

Typology: Conservation Studio

Supervisor: Ar. Renu Maharjan, Ar. Purushottam Awal

Involvement:

Nishma Guragain

Pragya Upadhaya

Rabindra Dev Yadav

Shreya Poudel

Sushmita Gautam

Susmita Shrestha

• Collaborated with group members during the documentation and proposal phase.

• Specifically documenting and analyzing the traditional (above 100 years old) residences.

• Collaborated with the team during the survey

• Worked on 3D views for the proposed court

Exiting East Elevation of the Court

Part 1: Documentation

This research work presents a comprehensive documentation of the traditional dwellings that encompass the historical court of Itumbahal. Throughout our study, we were able to acquire valuable insights into the materials and construction technologies employed in typical traditional architecture. We documented the shifts from age-old traditional methods to the gradual incorporation of modern innovations. This chronology of changes provides a valuable perspective on how the community adapted to new materials and construction advancements while cherishing their cultural roots.

Exiting West Elevation of the Court

Documentation: Existing Condition

During the documentation, types, age, uses, and division were also analyzed. Out of 36 houses, 16 are more than a century old and 20 are less than 100 years old. Similarly, houses used traditional, mixed, or modern (RCC) construction techniques, as illustrated in Figure 3. It was also observed that the structures in Itumbahal were used for household or commercial reasons. Figure 4 illustrates residences that have undergone subdivision

Proposed East Elevation of the Court

Part 2: Proposal

To ensure the continued significance and utility of the courtyard, the existing buildings were preserved as they are on the site. Several buildings have been serving specific purposes for many years, like the masala shops, tea shops which has been functioning for half a century. The intervention involved preserving traditional houses and uses. Some houses with vacant ground floor were proposed to be used for other purposes that enhances the tourism of the Itumbahal which will further help in economic aspect of the court.

Despite these, the proposal involved white washing or incooperating brick facade to maintain the traditional courtscape. Similarly, following the current bylaws which doesn’t allow buildings to go beyong certain height and certain styles. The proposal of the court involved addition of few traditional amenities like the Dabali that would not disturb the current cultural as well as social function of the court while keeping the court interactive.

Proposed West Elevation of the Court

Bridging the Gap:

Location: Kathmandu, Nepal

Year: 2024

Typology: National Academy of Music and Dance

Competition: Kaleidoscope 2023-24 All Nepal Architecture & Interior Design Students Competition.

This project intends to bridge the gap between the old folk arts of Nepal that seamlessly merge into the contemporary context of Kathmandu keeping the functionality in mind. Based on Folk dances and Dramas of Nepal, especially those on the verge of extinction, the project is designed in a way that shows abstract form of folk dance in the building itself. . Nepali folk performances portrays the common people’s everyday lives by acting out scenes on the green plains, roads, Chautara, Dabali, and Aagan, as depicted in the image. The project intends to keep the landscape as simple and traditional so the public doesn’t feel foreign while performing or just watching the performances.

घाटु

(Ghatu Dance)

The major concept of this project is based on the movements of Ghatu Nach. Ghatu folk dance or drama is traditional dance form performed by people of Gurung, Magar, Tharu, Dura, Kumal etc. community, which are moving towards extinction. Girls perform the Ghat Dance, which is portrayed in the figure next to it. It is slow, smooth, and gentle. It’s claimed that this dance requires the performers to be in a hypnotic state in order for the audience to move in unison with them. The gestures, postures, and bodily movements are all fluid, free-flow-ing, and smooth. This project attempts to create an abstract representation of the performers’ body movement within the building as shown in the figure adjacent.

Masterplan

Legend 1: Chaur

2: Sunken Amphitheatre

3: Dabali

4: Surface Parking

5: Ticket Counter

6: Hall 1 Lobby

7: Hall 2 Lobby

8: Hall 3 Lobby

9: Restaurant

10: Backstage

Natraj Statue

Saraswati Statue

View of the proposed NAMD from Southern road
+0000
Visual connection between the outdoor and indoors

PHOTOGRAPHY

PHOTOGRAPHY

Rhythm Life Look Straight

Contact: tha075bar047@tcioe.edu.np

Sushmita Gautam

Turn static files into dynamic content formats.

Create a flipbook
Issuu converts static files into: digital portfolios, online yearbooks, online catalogs, digital photo albums and more. Sign up and create your flipbook.
Architecture Portfolio by Sushmita Gautam - Issuu