PORTFOLIO
Selected works
Susanna Risi
PIRANESI PRIX DE ROME 2023
Piranesi Award winners and special mention in Stones Display Accademia Adrianea, Tutor: Valerio Tolve
Team: A. Calzato, E. Carucci, M. Dellepiane, C. Donato, S. Risi
NUOVO ASSE.
HADRIAN’S VILLA. WATER ARCHITECTURE AND ARCHAEOLOGICAL LANDSCAPE
The competition project develops in Villa Adriana, one of the most extraordinary archaeological and landscape realities in the world, a UNESCO site in Tivoli, Rome. The project concept aims to keep together the three themes described in the competition (design of a spa pavilion, Fashion Show and Exhibit Design), through the tracing of a founding axis that ideally connects Piazza d’Oro to the large Vestibule, the latter original entrance to the Villa. It is along this axis that the intervention is inserted, connected by a fragmentation of floors and walkways, the new vestibules, which aim to improve the use and accessibility of the villa. Among the interventions, the thermal pavilion aims to present itself as a reversible intervention, through the use of materials that allow it to be rewritten in the future. The project for the Fashion Show is located in the Canopus of the villa and sees Versace as the protagonist. The Stones Display, the exhibition of widespread stone finds, was conceived within the Great Baths of the Villa, in ancient times a space dedicated to the well-being of the mind and body, revealing an already first museum approach of the time. An exhibition system of self-supporting shells is proposed in the intrados of the walls, designed to protect the actual structure and at the same time reveal its face, presenting itself as a micro-perforated sheet metal which itself is dressed in exhibition niches. A linear arrangement of statues on pedestals inhabits the large rooms of the Baths, creating a scenography of characters, capturing the eye of visitors from outside and of those who follow the path inside.

Founding axis of the project
Stones Display at the Grandi Terme
Stones Display detail at the Grandi Terme
The great Vestibule, detail of Itinerant Stones modules display
COMPETITION: PAST HERITAGE FOR A SUSTAINABLE FUTURE
Winners Plečnik House - to be exhibited at Biennale di Venezia 2024 Open Atelier, Politecnico di Milano. February, 2024.
Authors: O.Carlsen, M. Marangoni, M. Pecorari, S. Risi, N.Wojtasik
REPLEN
Plečnik House, Ljubljana, Slovenia.
RE ple N is a celebration of life and work of Joze Plečnik. Based on Plečnik’s principles of innovation , sustainability , community , adaptivity and synergy it inspires young creatives to answer the question on how can cultural heritage change community behaviour?
BUILD THE UNBUILT is the name of the first edition of yearly festival that starts with an international competition call challenging young creatives to rethink Plečnik’s work by designing an instalation. Winner of the competition will have an opportiunity to run a workshop for young artists from all over the world and build in scale 1:1 the winning proposal in the heart of the city. The workshop would be supported by local craftman that would act as mentors. Meanwhile Plečnik House will transform into a live exhibition where top 50 entries will be 3D printed using recyclabe materials and will create a temporary exhibition in the garden of the house.
REpleN aims to promote international cocreation supported by local craftmanship. This idea is inspired by Plečnik’s approach to designing from big urban scales to small architectural details of his various proposals for the city of Ljubljana. REpleN creates an enviroment for experimentation and innovation where young people can test their ideas in order to redefine and revolutionise architectural design. Through the festival Plečnik House will gain a strong position on the cultural scene of Europe as well as it will build a distinct community of enthusiasts and visitors that will keep coming back to Ljubjlana in order to discover the undiscovered talents and up-andcoming designers. Why? How? What?
PLEN festival
How?
1:1 installation of the winning project
Printing will be happening inside the house in contrast to the static composition of the permanent exhibition
House
House
Models
MASTER THESIS IN ARCHITECTURE
Politecnico di Milano. Professor: Arch. Laurent Salomon (Paris) 2024
BETWEEN ACROPOLIS AND SEA: NEW NARRATIVES FOR THE INDUSTRIAL HERITAGE OF ELEUSIS
(Eleusis, Greece)
Eleusis, a coastal Greek town near Athens, important for its ancient religious rites known as Eleusinian Mysteries, had a drastic change during the 19th century with the introduction of the process of industrialization. The pace with which this process was introduced, resulted in rapid and distinctive changes to the fabric of the settlement, causing interruption and fragmentation to the story of the city and lack of dialogue between the new and the old.
Despite that, this stratification has led to a new key of reading the territory, being recognized today as an integral part of the modern development of the city and its iconography. Consequently, following the decline of industry, the post-industrial impact found Eleusis as a city with a history of abandonment, both of its mythical religious beliefs and of its production factories under the hill and on the coast. A city torn apart in fragments by heavy industry and a lack of relationships between its parts. However, a city that recalls itself in both its industrial and ancient heritage can become a strong material to be reread and retold.
This thesis analyzes the abandoned industrial area of the city of Eleusis and its almost forgotten archaeological area, with the goal of developing new narratives for the industrial heritage in the contemporary city. These new narratives seek to reconstruct urbanity with memory, not by simply commenting on it, but by introducing a project as an ordering and meditative device, a “city within a city”. In a place in which the industry was created sporadically, the project presents itself as the bearer of new synergies and wants to insert itself with both continuity and contrast with the story of the city, rereading the existing fabric and producing new architecture.
BETWEEN ACROPOLIS AND SEA
The requalification of the ancient Botrys and Elaiourgiki factories into a museum, archaeological and cultural center and planning of housing for families, researchers and artists.
Tra Acropoli e Mare: nuove narrazioni per il patrimonio industriale di Eleusi
Studente: Susanna Risi Relatore: Laurent Salomon
Laurea Magistrale in Architettura e Disegno Urbano | A.A. 2022/2023
RESIDENZE
Tra Acropoli e Mare: nuove narrazioni
Studente: Susanna Risi
Laurea
Tra Acropoli
Mare: nuove narrazioni
Susanna Risi
Tra Acropoli e Mare: nuove narrazioni per il patrimonio industriale
Studente: Susanna Risi Relatore: Laurent Salomon
Laurea Magistrale
Portico | Family residences
Housing researchers - artists
Housing researchers - artists
P1
Portico | Family residences
IL POLO MUSEALE
IL POLO MUSEALE
Pianta piano terra, prospetto sud-est | scala 1:200
Pianta piano terra, prospetto sud-est | scala 1:200
THE MUSEUM
IL POLO MUSEALE
Pianta piano terra, prospetto sud-est | scala 1:200
Tra Acropoli e Mare: nuove narrazioni per il patrimonio industriale di Eleusi
Studente: Susanna Risi Relatore: Laurent Salomon
Laurea Magistrale in Architettura e Disegno Urbano | A.A. 2022/2023
Tra Acropoli e Mare: nuove narrazioni per il patrimonio industriale di Eleusi
Studente: Susanna Risi Relatore: Laurent Salomon
Laurea Magistrale in Architettura e Disegno Urbano | A.A. 2022/2023
Tra Acropoli e Mare: nuove narrazioni per il patrimonio industriale di Eleusi
Studente: Susanna Risi Relatore: Laurent Salomon
Laurea Magistrale in Architettura e Disegno Urbano | A.A. 2022/2023 t.8
requalification of Botrys, an ancient wine factory, into a museum and library
LA RAFFINERIA
LA RAFFINERIA
Caffetteria, Pianta piano terra | Biblioteca, prospetto sud scala 1:100
LA RAFFINERIA
Biblioteca, piante primo piano, prospetto ovest scala 1:100
Laurea Magistrale in Architettura e Disegno Urbano | A.A. 2022/2023
Magistrale in Architettura e Disegno Urbano | A.A. 2022/2023
THE REFINERY
RAFFINERIA
LA
Caffetteria, Pianta piano terra | Biblioteca, prospetto sud scala 1:100
LA RAFFINERIA
LA RAFFINERIA
Caffetteria, Pianta piano terra | Biblioteca, prospetto sud scala 1:100
LA RAFFINERIA
Tra Acropoli e Mare: nuove narrazioni per il patrimonio industriale di Eleusi Studente: Susanna Risi Relatore: Laurent Salomon Laurea Magistrale in Architettura e Disegno Urbano | A.A. 2022/2023
Tra Acropoli e Mare: nuove narrazioni per il patrimonio industriale di Eleusi Studente: Susanna Risi Relatore: Laurent Salomon
Tra Acropoli e Mare: nuove narrazioni per il patrimonio industriale di Eleusi Studente: Susanna Risi Relatore: Laurent Salomon
Laurea Magistrale in Architettura e Disegno Urbano | A.A. 2022/2023
Tra Acropoli e Mare: nuove narrazioni per il patrimonio industriale di Eleusi
Studente: Susanna Risi Relatore: Laurent Salomon
CONCÉNTRICO 10TH EDITION
Participation. Logroño International Festival of Architecture and Design. December, 2023.
Authors: Denis Dalladaku, Carlos Espejel, Susanna Risi
DISRUPTION IN THE LANDSCAPE
Location: Viña Lanciano, Logroño, La Rioja, Spain.
Puente romano de Mantible, was built as a fast-paced means to cross the Ebro River and link Nájera and Pamplona, two important nodes of the former Kingdom of Navarre. The bridge acted as an important manmade structure, dictating how to traverse the landscape. With the passing of time, the bridge decays and becomes no longer passable and the act of crossing is consequently disrupted.
We emphasize this particular moment of change in the landscape, where the bridge no longer connects but disrupts, with the intention of introducing ‘Disruption’ not necessarily as an end, but as a genesis of another experiential understanding of the landscape. Our pavilion intends to use the act of disruption as a means to slow down, question and then contemplate. The pavilion exists as a physical manifestation of the disruption of the bridge, but it also acts as a place of reflecting upon the values of the landscape, by stopping and perceiving rather than simply crossing. The design intends to utilize the moment during which the user’s movement is disrupted and provides no end, but offers a place to contemplate about the vineyards, the mountain peaks and rest of the beautiful landscape of La Rioja.
The modular design that stems from the dimensions of the Garnica panels, seeks to utilize the provided resources efficiently and sustainably, with a rather simple tectonic approach that is easily to assemble and disassemble. The stairs ascend to a narrow and closed space, which leads the user towards what is seemingly an end, a disrupted structure. This end, when reached casually opens on both sides, framing the views towards the vineyards and the mountain peaks, providing a sublime moment of contemplating about the landscape.
PROJETO AVANÇADO II
Universidade de Evora, Professors: João Manuel Barros de Matos, Daniel Nicolas Jiménez Ferrera A.A. 2022/2023
The new kindergarden of Alcacer do Sal aims to re-connect people with the story and the nature of the castle, creating a bond between those who get to experience it since they are little, the kids. The idea of the project finds its genesis in the features and in the character of the city itself. Alcacer do Sal, famous for its salt mines, is a fortress built on top of a hill. Height and differences in levels are key concepts in the project, it’s what dictates the rhytm of the life of who happens to be in the Alcacer. As it happens with any castle, the rhytm of the topography dictates the entrance: from the bottom, we find a door/portal, from which it’s possible to enter the kindergarden, climbing a portico and its promenade made of volume and voids, shadows and lights.The implantation is based on a court which overlooks the view from Alcacer do Sal. The court embraces both the building of the professors and the one of the childrens, being able to meet in between in the patio.
A NEW KINDERGARTEN FOR ALCÀCER DO SAL: THE RHYTHM OF THE CITY
The new kindergarten in Alcacer do Sal aims to reconnect people with the history and nature of the castle, creating a bond between those who experience it from an early age, the children. The idea of the project finds its genesis in the characteristics and character of the city itself. Alcacer do Sal, famous for its salt mines, is a fortress built on the top of a hill. Altitude and differences in height are key concepts of the project, it is what dictates the rhythm of life of those who come to Alcacer. As happens with every castle, the rhythm of the topography dictates the entrance: from below we find a door/portal, from which we enter the nursery, climbing a portico and its promenade made of volumes and voids, shadows and lights. facility is based on a courtyard overlooking the view from Alcacer do Sal. The courtyard embraces both the teachers’ building and the children’s building, being able to meet in the middle on the patio. The project aims to bring the urban fabric of the castle and the new contemporary building into dialogue. You can read it from the idea of

A KINDERGARDEN FOR ALCACER DO SAL: THE RHTYM OF THE CITY
The project aims to make a dialogue with the urban fabric of the castle and the new contemporary building. This can be read by the idea of working with masses and by details such as windows or cuts in the walls. A KINDERGARDEN FOR ALCACER DO SAL: THE RHTYM OF THE CITY
PROMENADE FUNCTIONS A KINDERGARDEN FOR ALCACER DO SAL: THE RHTYM OF THE CITY
PROMENADE FUNCTIONS A KINDERGARDEN FOR ALCACER DO SAL: THE RHTYM OF THE CITY
VOIDS
VOIDS
VOIDS
PROMENADE FUNCTIONS
PROMENADE FUNCTIONS
Ground floor plan, maquetta 1:100
CONSTRUCTABILITY AND SUSTAINABILITY DESIGN STUDIO
Politecnico di Milano, Architettura e Disegno Urbano, Professor: Arch. Matteo Gambaro, A.A. 2021/2022
Team: Francesco Bossola, Susanna Risi, Andrea Sogja
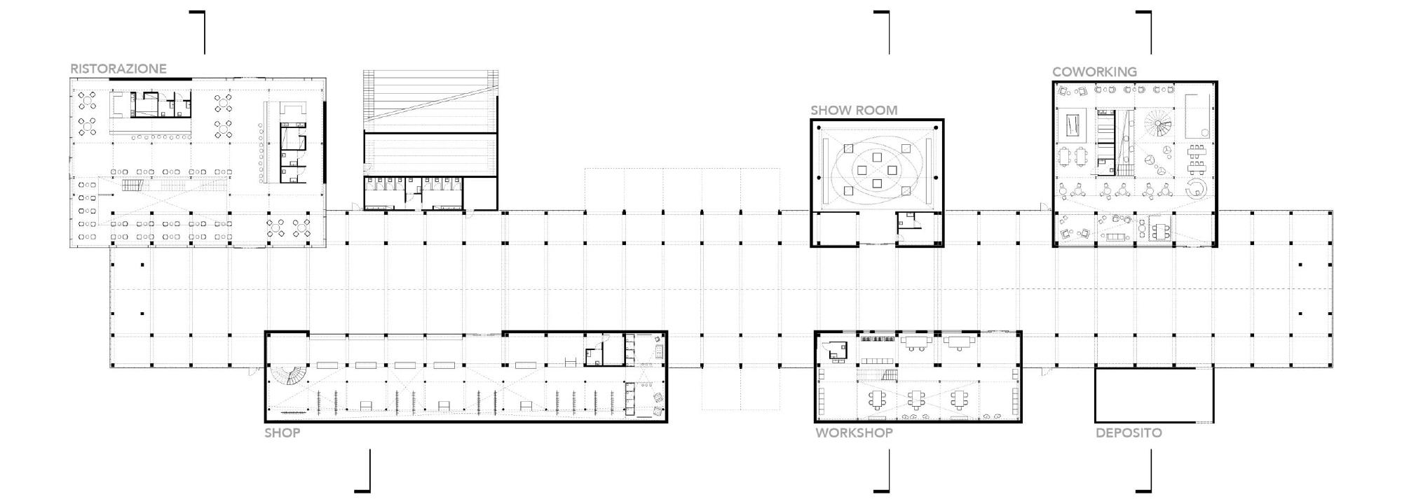
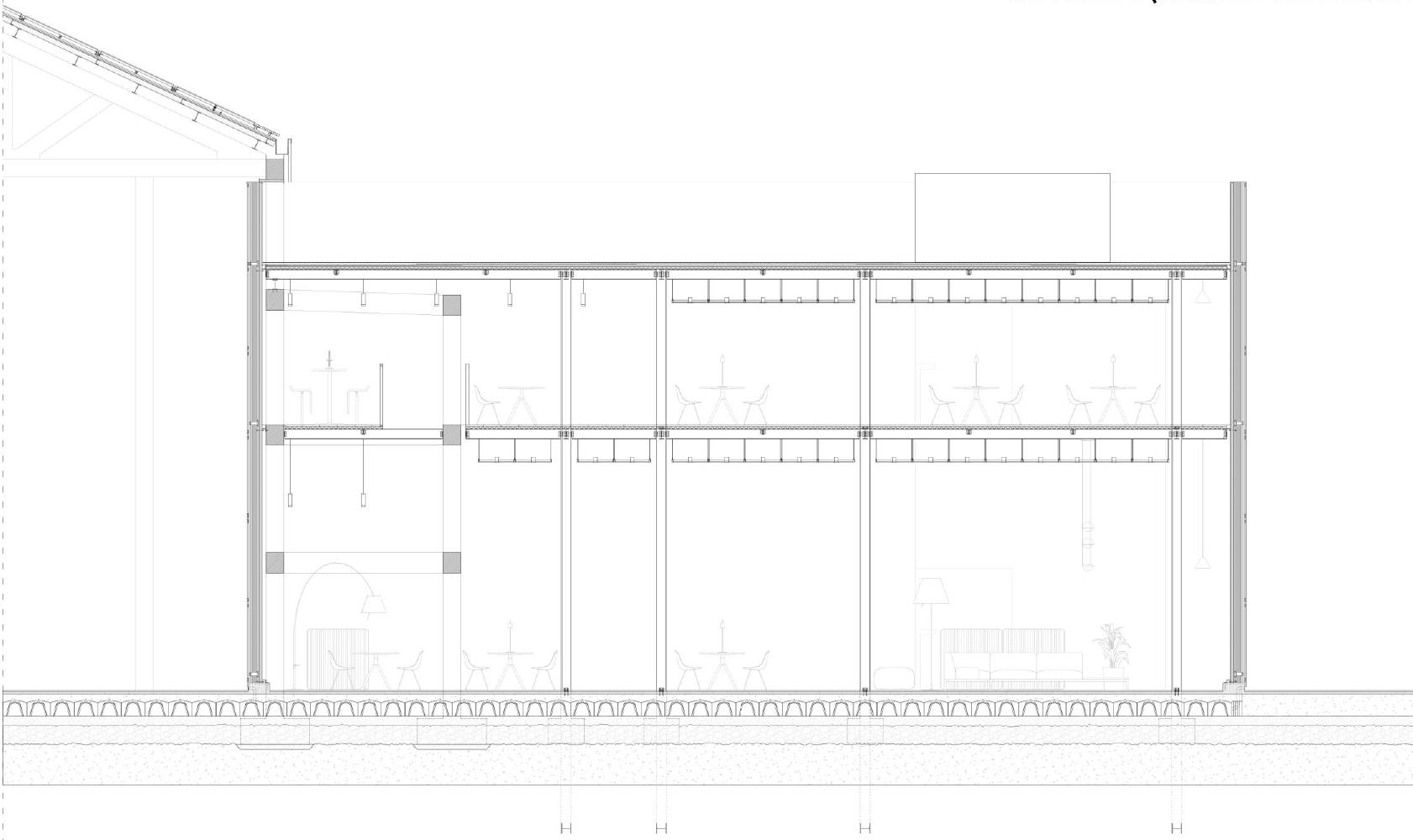
REQUALIFICATION OF THE FORMER ATC HEADQUARTERS IN NOVARA
The project intervention is located in an area of the urban fabric of Novara that is undeniably recognisable, thanks to the morpho-typological characteristics of the neighboring neighbourhoods. Within the settlement system it is possible to recognize significant creations of ex novo neighborhoods, created to respond, in different historical periods, to the need for new social rental housing for families unable to access the “ordinary” offers of the market real estate. The project program involves the transformation and reuse of the building complex for tertiary use, the former headquarters of the ATC Territorial Housing Company of Novara. It constitutes the “entrance door” to the city of Novara from the North and, more specifically, the access point to the new linear park created on the former site of the Ferrovie Nord Milano railway line.
Inner court
CONSERVATION STUDIO
Politecnico di Milano, Architettura e Disegno Urbano, Professore: Arch. Valeria Pracchi, Luigi Fregonese A.A. 2021/2022
Team: Monica Dell’Acqua, Chiara Donato, Valeria Dragone, G. Javier Gimeno, Susanna Risi
STAG A’DRÉE - THE MILL OF OZZERO
STAG A’DRÉE is a conservation project that brings the ancient Ozzero mallet press and the adjoining barn back into use. The press artefact has been recognized as having high historical and cultural value, as has the barn, despite the different dating of the two. The structure is in fact a place of production, it is a testimony dating back to the 15th century of the economic activities of the municipality of Ozzero and its surroundings. Respecting the activities for which the complex was home in the past and in accordance with the current geographical-territorial context, a business plan was developed that could be innovative, valorising and at the same time respectful. The program combines two different functions: the cycle workshop with bike sharing and panoramic refreshment in the barn; the reception house with multifunctional spaces on the ground floor used, alternately, as laboratories and restaurant room. By laboratories we mean collective activities carried out within the Maglio environments, where the people of the Casa di Accoglienza make themselves available to teach different disciplines.







TECHNOLOGICAL DESIGN FOR ARCHITECTURAL REQUALIFICATION
Sapienza, Extra course, Professor: Arch. Massimo Locci, A.A. 2021
Team: Michele Benignetti, Susanna Risi, Paola Venturi
C10 EXPO - NEW FASHION HUB IN TIBURTINA
This is the transformation of former warehouses into a fashion expo centre, located behind the Tiburtina station. The intervention takes place in an area of the city following the programs born from the ashes of the Pietralata SDO and involves not only the building, now a ruin, but the entire surrounding area, in anticipation of future interventions for the creation of the Pietralata district: in which will take shape the new Piazza dei Quintiliani which will host the ISTAT headquarters, FS management offices and La Sapienza laboratories. This transformation of the former C10 warehouses involves the entire surrounding area, therefore also the other abandoned buildings adjacent to it, but also the abundant green area in which they are located, which will allow continuity with the Aniene park through a series of corridors green areas and various cycle paths that will be linked to the GRAB project. After having carried out a series of historical, photographic, social and territorial investigations, and after having drawn up a careful SWOT analysis, it was agreed to involve the various design, fashion and cinema academies of Rome as future managers of the expo and warehouses. All this to give space to young scholars in the field and offer them the opportunity to exhibit their works and collaborate with the large cinema and costume companies that find a place here for important fairs. The close proximity to the film studios, the Piazza Bologna district and the future projects for the Pietralata area make the integration of different areas more possible, in which the C10 EXPO becomes the fulcrum, interacting with the public and the visitor who will stop to also enjoy green spaces and places for events of all kinds.









Ground floor plan, elevations and sections
Technical section, fashion show, retail shop
THESIS IN ARCHITECTURAL DESIGN
Thesis professor: Arch. Alfonso Giancotti (Rome) A.Y. 2020
“INHABITING THE UNFINISHED” THE CASE OF THE LIGINI TOWERS (Rome)
The compositional theme of the course involves the recovery of an unfinished architecture in the EUR district of the city of Rome: that of the complex of the former Ministry of Finance in Viale Europa. The outcome is to define a reflection on the methods through which it is possible to recover the unexpressed potential that unfinished architecture carries within itself, having passed from the moment of construction to the state of ruin without ever having been used, accepting incompleteness as an opportunity of possible opening. Inhabiting the unfinished means carrying out a rewriting operation, that is, reflecting on an architecture in which the premises were there, but were never completed. These architectures that are no longer habitable gain a symbolic value, becoming true vegetalized sculptures, the ruins of modernity. At the same time, these unfinished architectures, these “waste spaces”, find strength in their very condition of interruption. In fact, when the observer takes charge of this state, there is a refusal to see the unfinished buildings as a loss, but instead they are seen as an opportunity to create new spaces.



3. DISTRIBUTION PATH
PHYSICAL AND VISUAL PERMEABILITY
SKELETON
2. ADDING BLOCKS
4. NATURE
Residences
Public services
Private services (atelier)
Living area/common areas (residences and public services)
Sleeping area (residences)/living area (single residential units only)
Work spaces (ateliers)
Pre-existing connections
New cores
Interconnected floors
INVASION
MINERAL/VEGETABLE RATIO
By emptying the attics on the ground floor it was possible to create a walkable and semi-underground green space, in which nature invades the connection to the ground of the unfinished building, recalling its character as a modern ruin. Here the relationship that exists between the mineral component of the flooring, therefore artificial, and the vegetal component is important.
Sezione trasversale B-B’
This space is conceived as a sheltered place for free activities, and animates the building in line along its entire length.
T.A.R.I. (Rome) - Collaboration
- Participation in various international architecture competitions
- Development of CAD architectural drawings and post-production of graphic designs
- Creation of competition/presentation book
EUROPEAN FILM CENTER CAMERIMAGE BUILDING IN TORUN
Torun (POL), 2021.
A performative machine within a space of relationships.
With Studio Elia-Giancotti, Manlio Amadio, Valerio Villanucci, eng. Alban Bassuet And G.S. Grzanka, M.C. Mauriello, C. Nizi, B. Pizzicaroli, S. Risi, G. Rossini, B.A. Sison, G. Taverna.