

SUSAN WEBSTER
INTERIOR DESIGN

RESIDENTIAL SAMPLES
SAMPLE MOOD BOARDS




FALMOUTH POWDER ROOM




Concept Sketches Mood Board Examples




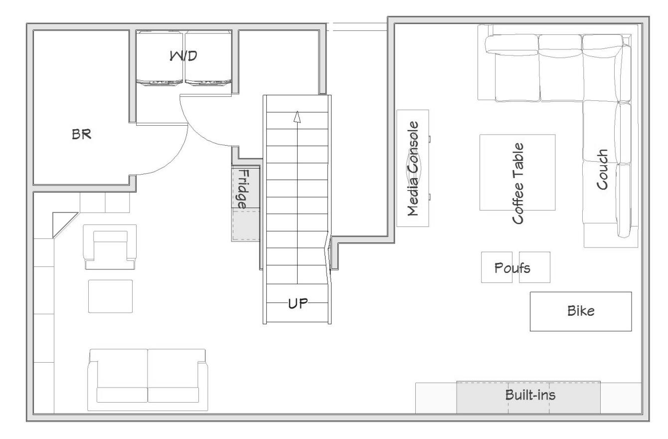
WESTPORT BASEMENT







Mural Mockup
Custom Mini Bar Mockup




Custom Bookshelves

Rendering

Fabrication




SKETCHES



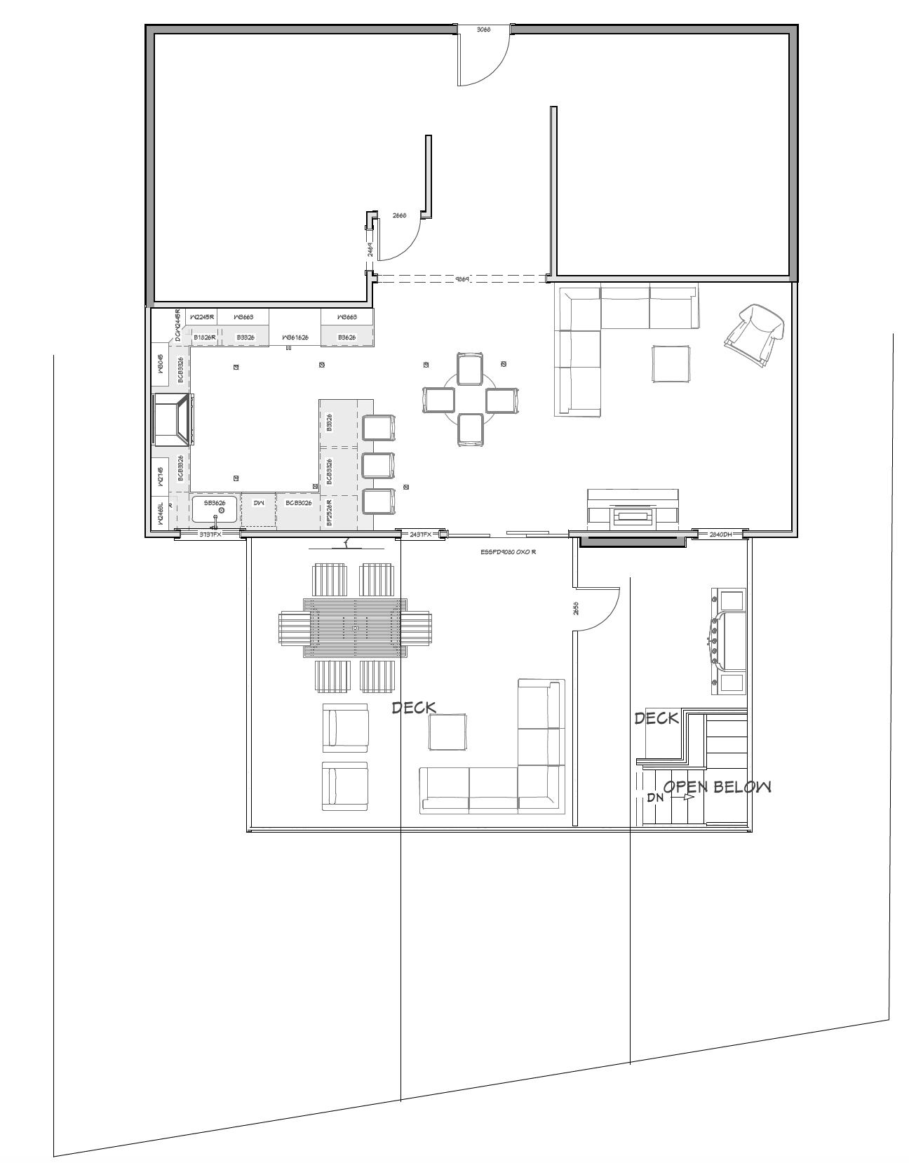
NEWPORT PORCH
*project currently active*

Proposed Plan

Back Perspective
STYLING





susan.webster0@gmail.com www.linkedin.com/in/susanlwebster