Portfolio Sample - Susana Cruz

Page 1

washington university in st. louis | b.s. 2023 susanacruz419@gmail.com
susana cruz architecture portfolio sample exterior rendering - enscape

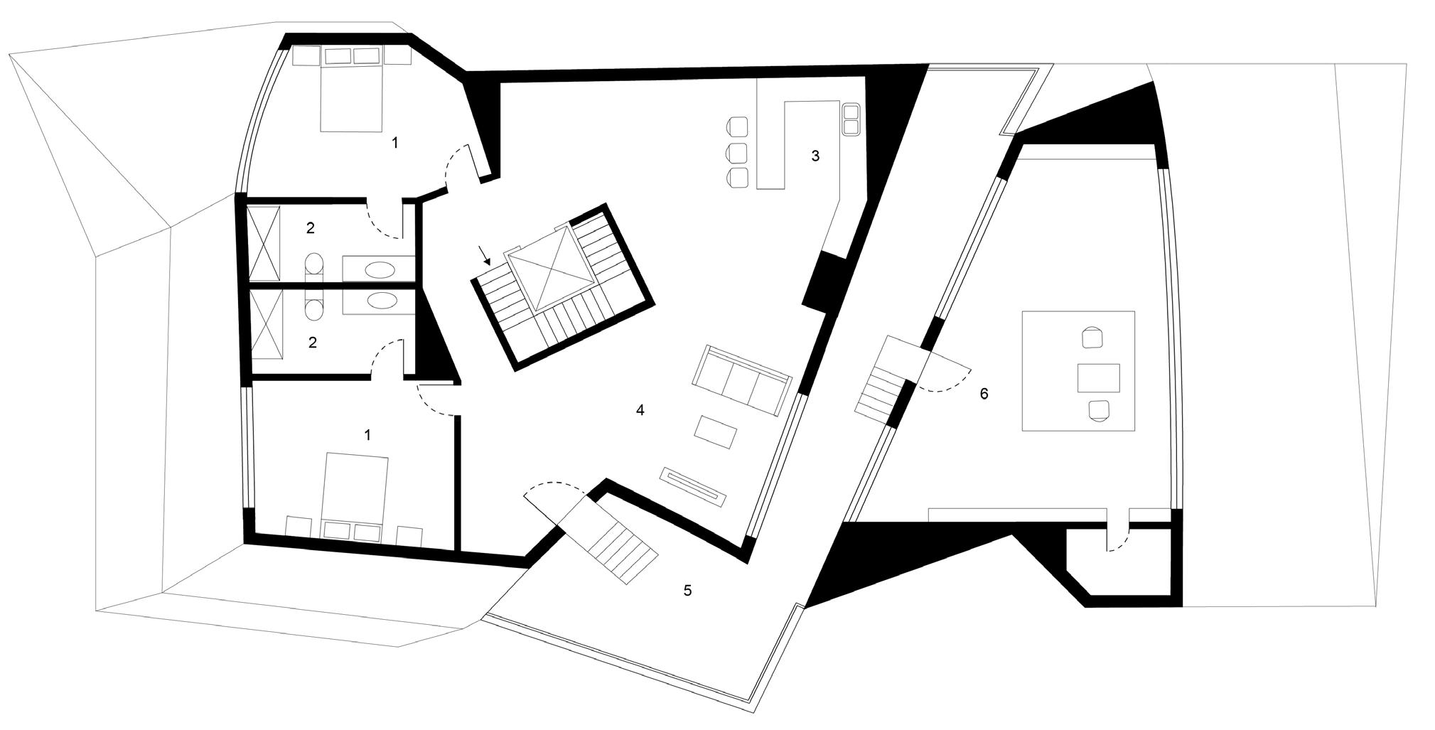
mountain as a gallery art gallery + residency

Located around a central area of arts in St. Louis, I modeled the art gallery to resemble a mountain in both its form and as a facilitator of exploration. There are different viewing points based on an individual’s relationship to the space (residential artist versus gallery visitor). Beginning with the ground floor as largely open for visitors to wander between the interior and exterior gallery space, the project becomes condensed to affect their view. The sight of visitors becomes largely restricted to interior space in the upper level. The line of sight is pushed out once again in the residential space through windows and the balcony space to allow residing artists the vantage point of observing visitors at the peak of the art gallery.

individual work

faculty: dusica stankovic site: arts district, st. louis site plan

form in site - bristol form

preliminary concrete study

vantage points analysis

model details - foam board + museum board second floor plan: gallery and resident studio third floor plan: residential space

final classroom interior - basswood + museum board

I designed a classroom with the approach of dividing the group and individual activities. Program elements include a greenhouse meant to spur responsibility while also introducing light to the classroom, as well as a collective group space with smaller activities such as reading and crafts overlooking the complex plaza.

a montessori study of the fold primary school complex

Located on the Vespucci Bridge, my design of this five-classroom Montessori school uses “folding walls” to experiment with the crossing between individual and group activity zones. Montessori education is meant to give students freedom, exploration, and responsibility because they decide the schedule of their day. In this study, folding is used as a method of expansion, and creates alternating views between the classroom and across the school piazza. As an interpretation of a Montessori education, this strategy of folding allows students a type of freedom of how they interact with the classroom space based on what they want to see or interact as a student within the classroom. The physical concept of this fold is inhabited as a multi-level patio that spills past and above the facade, with the form itself repeated on a small scale within the classroom and incorporated in the facade of the school’s piazza.

6 week charrette individual work faculty: robert mccarter site: ponte amerigo vespucci in florence, italy

classroom prototype - basswood + museum board
conceptual model perspective
section perspective
classroom
roof design model perspective full complex plan elevation drawing - river view

site plan in urban conttext

the city

is a

labrinyth urban pocket park

This studio focused on Florence’s urban planning and serves as a reflection of an individual’s experience in the city. The site is located in the outskirts, where leftover fragments of design limit the movement of the individual in residential neighborhoods. To address this concern and breathe a continuous sense of life in this area, I designed an underground pocket park connected to the opera to reengage the leftover and messy outskirts of Florence’s suburban area. Using drawing as a tool to understand various points of connection and disconnection in the design of the city, my project deals in constructing perspective with architectural and urban design as elements.

6 week charrette individual work faculty: zeuler lima site: outskirts of florence, italy

underground plan 1. cafe 2. bicycle shop 3. leisure path 4. direct path 5. exit to residential 6. exit to tram stop 7. exit to park 8. mural section e section c section a: view of mural
lobby rendering - enscape

surrealist dreaming

exhibition + gallery + residency

Using Edward James’ gardens in Mexico and the Museum Garage in Miami as inspirations for approaching surrealism, I investigated how color and movement could inform all stages of my design process. At its core, my project takes a playful, yet clean, approach in challenging traditional exhibition and gallery spaces. The design of this midrise art hub began by experimenting with form-making and interruption of uniform spaces with object hierarchy. My final study in this studio was the implementation of a facade skin intended to reflect the whimsical spirit of the interior organization and color.

individual work faculty: hans tursack site: hudson, new york

tectonic study using joints rendered still of animation objects of disruption study model perspective of lobby conceptual form of facade and interior section, physical model - 3D prints + laser cut facade

floor plan, lobby and exhibition space

first second floor plan, exhibition space

rendered details of first floor exhibition space - enscape

interior rendered details - enscape
section drawing

Turn static files into dynamic content formats.

Create a flipbook
Issuu converts static files into: digital portfolios, online yearbooks, online catalogs, digital photo albums and more. Sign up and create your flipbook.
Portfolio Sample - Susana Cruz by Susana Cruz - Issuu