ARCHITECTURE PORTFOLIO
ABOUT ME
I’m Susana Brinez, a graduate student currently enrolled at the Huckabee College of Architecture at Texas Tech University. I was born and raised in Venezuela, and moved to Houston in 2018.
My architectural journey is fueled by a passion for urban design, sustainability, and historic preservation. Growing up in Venezuela, I was captivated by the vernacular architecture of my city, Maracaibo. Unfortunately, due to the challenging socioeconomic conditions of my country, many of these structures faced neglect, making it harder for people to enjoy their inherent beauty.
My ultimate aspiration is to take all the knowledge I have acquired throughout my academic journey and to contribute to the restoration and sustainable development of historic buildings within Venezuela. I envision a future where the population can cultivate a shared passion for architecture through the revitalization of these culturally significant structures, much as I did.
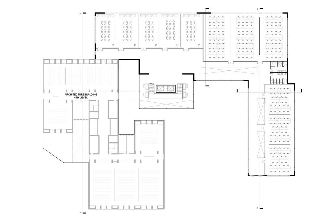
OLD MEETS NEW Architectural
Design VII
Semester: Fall 2023.
Project Location: Lubbock, TX.
Professor: Christi Weir, Lori Guerrero.
This studio’s task was to design a proposal for the renovation and expansion of the Huckabee College of Architecture, working in collaboration with the Interior Design students. With the concept of “old meets new”, the project seeks to rejuvenate the existing building by incorporating
a contemporary addition and including elements that represent Texas Tech’s campus, specifically the Bruno House Statue and the Spanish Renaissance style. The program covers 43,400 sq. ft. and includes a lecture hall, jury and exhibition spaces, studios, and leisure spaces.







Adjacent to the existing building, a contemporary wing emerges, symbolizing the evolution of architectural thought and design. This new space provides cutting-edge, labs, studios, collaboration, and jury spaces, as well as a lecture hall, setting
new standards for architectural education. By preserving the heritage of the original building and infusing it with contemporary elements, we created a space that not only educates but also inspires, ultimately embracing tradition and innovation.






Batt Insulation
Structure as Specified
Ceiling as Specified
4” Concrete Slab
Weathering (Corten) Steel Panel
Frame Clip
Air Gap
Rigid Insulation
Curtain Wall as Specified
Curtain Wall as Specified
2X Blocking
Structure as Specified
Ceiling as Specified
Interior Finish
5/8” Gypsum Board
Batt Insulation
Rigid Insulation
Air Gap
5/8” Gypsum Board
Mortar
Limestone Veneer Panel
Anchor
1/2” Carpet
Aluminum Soffit


02
CULTURA COMMONS
Integrative Architectural Design I
Semester: Fall 2024 - First Year Grad.
Project Location: Lubbock, TX.
Professor: Darrick Wade.
This project houses a coffee roastery, Hispanic bakery, and dance studio. The design’s core concept revolves around visibility from the corner and the central courtyard. The structure is pushed out to the site’s perimeter, maximizing visbility and catching the attention of passing traffic.
Building upon the central courtyard concept, this project emphasizes the creation of third spaces throughout the complex. These spaces encourage community engagement, turning the site into a social hot-spot within downtown Lubbock’s evolving landscape.








































































The project’s spatial strategy pushes the built form to the site’s perimeter, creating a dynamic three-story complex organized around a courtyard at the intersection of Buddy Holly and Broadway. The project houses three distinct programs vertically: a Hispanic bakery at ground level, coffee
roastery on the second level, and dance studio above. Front-ofhouse operations are strategically positioned at the corner to maximize visibility, while each level incorporates community gathering spaces that transform the complex from a business hub into an active urban destination.



























































































































































































Section Model




03
AUSTIN AQUATIC CENTER
Architectural Design VI
Semester: Spring 2023.
Project Location: Austin, TX.
Professor: Chris Taylor.
This studio focused on the exploration of the architectural landscape of Austin, Texas, with a particular focus on the synthesis of urban spaces and aquatic design. The objective was to conceptualize an innovative Aquatic Center that integrated with the city’s diverse urban
fabric while offering a communitycentric recreational space. The program comprised two Olympic pools, hot tubs, saunas, diving pools and recreational pools. Intersecting volumes and perpendicular planes that house the various programmatic elements drive the design.











