Surbhi Agrawal Undergraduate portfolio

Page 1

PORTFOLIO

SURBHIAGRAWAL surbhi.211098@gmail.com

PERSONALINFORMATION

Name:SurbhiAgrawal D.O.B:21stOctober,1998 Nationality:Indian Languages:English,Hindi

MobileNo.:+91-8319913226,+91-9826436789 Emailid:surbhi.211098@gmail.com

PermanentAddress:Houseno.-8-5,Jawahar Market,MGRoad,Ambikapur,Chhattisgarh Pin-497001

EDUCATION

FacultyofArchitecture,ManipalUniversity CGPA-8.46

Course:Bachelor'sofArchitecture(5years)

INTERNSHIPS

FinalYearInternship:July2020-April2021 ConceptAssociates,Chhattisgarh,India

SummerInternship:May2018-July2018

ShubhaakritiArchitects,Chhattisgarh,India

ACHIEVEMENTSANDCERTIFICATES

ACADEMIC

· Participatedinannualconferenceof SHAAPED,2019

CO-CURRICULAR

· HeadedthecollegedramaticsforumAILAAN -2018-2019

· Participatedandpresentedthesemesterresearch paperinSHAAPED,2020

· Participatedinz-axisconference,2018

· ParticipatedinCERA:publictoiletdesign competition,2018

· ParticipatedinMUNconferences,2014

· AformermemberofNSSwitha2year experience-2014-2016 TECHNICALSKILLS

OTHERSKILLS

2 3
AUTODESKAUTOCAD AUTODESKREVIT SKETCHUP MANUAL HANDDRAFTING SKETCHINGANDFINEARTS GRAPHICS ADOBEPHOTOSHOP ADOBEINDESIGN LIGHTROOM VISUALIZAION LUMION VRAY SOFTSKILLS EFFECTIVECOMMUNICATION TEAMBUILDINGANDCOOPERATION ADAPTABILITY CREATIVITYANDCRITICALTHINKING
MODELLING
WOODCRAFT SCULPTUREART SETANDCOSTUMEDESIGN DRAMATICSANDTHEATRE Observe.Engage.Create.Inspire

CONTENT

1. PROFESSIONALTRAINING

selectedworksofInternshipinChhattisgarh,India

2. NEUROLOGYANDNEUROSURGERYSUPERSPECIALTYHOSPITAL

Thesisproject

3. REVERIE:BARLOUNGE

InteriorDesignstudioproject

4. FORESTTRAININGANMANAGEMENTINSTITUTE

CampusDesign,ArchitecturalDesignandDetailingproject,handdrafted

5. SHREYAS:THERESIDENCE

ArchitecturalDesignandDetailingproject

6. INFORMALITY:BUNDER,MANGALORE

UrbanContextstudioproject

7. DISSERTATION

ExploringSpatialandSensorydesignelementsofHealingspacesforpatientsaffected withNeurodegenerativeDisorders

8. MISCELLANEOUS

Acollectionofarts,sketches,costumesanddramatics

6 10 20 26 30

36 42 44

7
5 4
Bhutan,2019:photographbySurbhiAgrawal

PROFESSIONALTRAINING

Academiclevel:Semester9and10,Year5,BachelorofArchitecture

Firm:ConceptAssociates,Chhattisgarh,India

Duration:20/07/2020-03/04/2021

Description:The33-weekinternshipgotcompletedin2phases.During phase1,Iworkedonnumerousplanninganddesignprojectssuchas residences,hospitals,rentalapartments,andcommercialcomplexes. Althoughtheworkwasprimarilyplanning-based,itwasalearning experienceinareaoptimizationandunderstandingclientrequirements.

Thevarioustypologiesofbuildingstobedesignedtaughtmehowto workwithdifferentarearestrictionsineachsite.Oneofthemajor challengeswastolearnhowtodealwithclientsandcommunicateour ideastothem.Findingabalancebetweenclientexpectationsand functionalityindesignwasquiteatask.

Duringphase2,Igottoworkonsitesandoverseeconstructiononthe field.Igottheopportunitytoheadaparticularresidentialprojectsite duringthelast2monthsofmytraining.Furthermore,Ialsodid3d modelingandrenderingworksforsmall-scaleprojects.

Altogether,theprofessionaltraininghasbeenamilestoneinahands-on learningexperienceItactedasarealitycheckofsortsastohowthe professionalofficesworkandprovidedafoundationforgraduatestudies. .

7 6 7
Ambikapur,2020:photographbySurbhiAgrawal

N

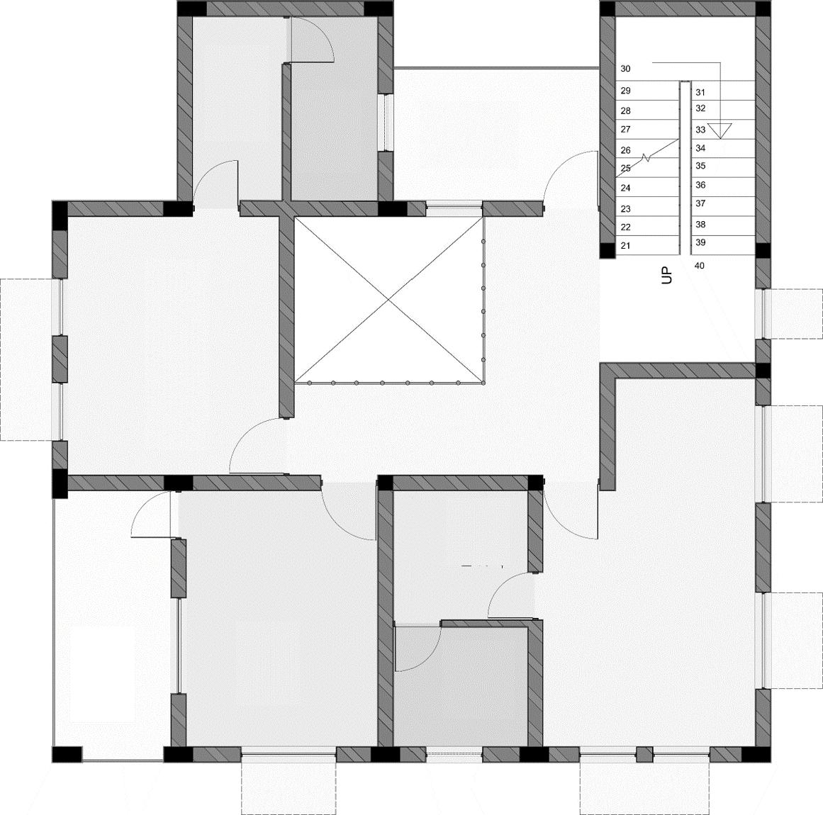
Academiclevel:semester9,year5 Scope:conceptualizationandfloor planning.Workedinateamof2 membersincludingmyself.

Basementactsastheservicefloor with spaces for laundry, housekeeping,manager'sofficeand parking.

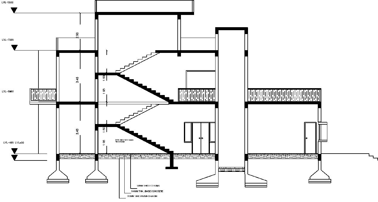
Sectionthroughstaircase

Eastsideelevation

Basementplan

Groundfloorplan

GroundfloorconsistsoftheOPD section, i.e the consultation chambersalongEmergencyarea. Thecrosslayoutofwidecentral circulationpathwayconnectsthe twodepartments.

Groundfloorplan

LUXURIOUSRESIDENCE

Firstflooractsasthesurgerylevel. ItconsistsofmajorOTs,ICU, Diagnostics,LabourroomandPre andPostNatalcare.Therampand patientdedicatedliftactsasmajor verticalcirculation.

Firstfloorplan

Academiclevel:semester9,year5 Scope:conceptualization,floorplanningandcorporatedrawing.AssistedtheprincipalArchitectinconceptualization andplanning,corporatedrawingdoneindividually.

Firstfloorplan

Secondfloorplan

SecondfloorconsistsofGeneral wards,Cafeteria,Boardroomand Doctor'slounge.Closeproximityof Cafeteria to wards functions convenientlyforpatientrelatives.

9
8
MULTISPEACIALTYHOSPITAL
N 3Drendersofmultipleresidentialprojects,individualwork
PROFESSIONALTRAINING

NEUROLOGYANDNEUROSURGERY SUPERSPECIALTYHOSPITAL

THESISPROJECT

Academiclevel:Semester8,Year4,BachelorofArchitecture

Studio:ArchitecturalDesignandDetailing

Duration:4months

Scope: Theacademicprojectsentailsunderstandingsiteanduser requirements,literaturestudies,concept,2dand3ddevelopment,and finalpresentationofdrawings;individualproject

Description:Asinglesuperspecialtyhospitalisahospitalprimarilyand exclusivelyengagedinthecareandtreatmentofpatientssufferingfrom aspecificillness.Theyofferspecializedservicestotheirpatients.

TheprojectaimstodesignaNeurosuperspecialtyhospitaltofacilitate advancedandholistictreatment,implementingideasofevidence-based designforphysicalandmentalnursing.

Theprojectderivesitsconceptfromhealingarchitectureand sensory-baseddesign.Promotingpatientrecoverythroughspatial components(roomlayout,finishes,activity-baseddesign)andsensory elements(color,noisereduction,view,andlighting)helpregulatea space.

Increatingahealingenvironment,amongphysicalfactorsthathavetobe consideredarenoisecontrol,airquality,thermalcomfort,lighting,colour, texture,privacyandviewtonature.(Malkin1991).

11 10
Viewofthemainentrancetohospital

Sincethehospitalwillhave NH66asitsadjacentprimary road,thehospitalwillbea functioning trauma and emergencycaredepartment

NH66

Towardsudupi

About1.5kmradiuscontext aroundsiteisdominatedby residentialarea,majorityof whichareG+1structures, thusthehospitalwillstand asalandmarkforthisarea

Oppositetothesite,isasmall patchof commercialarea consistingofhardwarestores andmarbletraders

Backroadconnectingthe residencesandnearestauto stand.Efficientoptionfor servicevehicleslesstraffic andconnectsintocity

· ObstructiontowindonSdirection,wardsandroomstobeontopfloors.

· Completefrontsetbackusedasthroughandthroughdriveway,less commotionforambulance.

· Separateaccessforbasementparking,andadditionalaccessforemergency dept.

· 8Mwide,firedrivewayaroundsite

Proximitytonearest amenities:

Hospitalandnursing:1.5km Busstand:2.8km Railwaystation:5.5km Commercialhub:3.1km

TowardsMangalore

Open space, around hospital,optionforfuture expansion

· Connectivitytoanothernursingfacilityisofkeyimportanceforasuperspecialtyhospital.Thepatientin distresswithalimitedreactiontimemightneedtobetransferredtoanotherfacilityfortreatmentsotherthan neuro,havingafacilitywithin2kmrangeisnecessary,inthiscaseitisTMAPaiMultispecialtyHospital

· NH66beingtheprimaryhighwayconnectsudupitocitieslikeMangalore,Bangalore,andthewesternports, increasesthepossibilityofVIPdoctorsandsurgeonstocomedownfromotherplacestotheselectedsite.

· Lackofanymedicalfacilitythatspecializesinneuroscienceswithina10kmrangeprovidesanedgetothe project,whichultimatelywillleanforittobecomealandmark

Zoningandanalysis

NEUROLOGYANDNEUROSURGERY SUPERSPECIALTYHOSPITAL 13 12
Udupi Swachhata Gopura (gateway),markstheentrance toudupitown
EMERGENCYDEPT.
MasterplanwithGroundfloor
N OPENAREAS VERTICALCIRCULATION VEHICLEMOVEMENT ENTRANCEFOYER CENTRALATRIUM SERVICEAREAS WINDDIRECTION OPDAREA SUNPATH
N

Neurotherapywalkingpath,closeto air flow and view, promotes recovery. Eachwardwithabalconyopening tonatureview,actsasapositive distraction

Doubleheightedwaitinglounge,with skylightfordaylighting. Nursingstationsateachfloorequipped withoncallbeds

Theentiresterileportionofthe surgeryfloorfunctionsasaseparate unitsecuredthroughautomated doubledoorsystem. Doctor's.AD/Ucorridorconnecting CSSDtoOT. Daycareopeningtoopentskyterrace area,provideslightandventilation alongwithextraplayspace.

Basementfloorplan

Widewaitingareawithdirect connectivitytocoffeekiosksand liftsopeningupnearwards. Separateliftsinemergencyward forreducingcommutetimeto surgery. Naturalboulderonsitemaintained asaninstallation.

Firstfloorplan

An8mwidefireserviceroad circumscribingthehospital. Staircaseequippedwithemergency doorsopeningtoassemblypoints.

Separatefireexitstaircasefor basement.

Explodedviewofhospital

NEUROLOGYANDNEUROSURGERY SUPERSPECIALTYHOSPITAL
N
OPENSPACECUTOUTS RAMPTOPARKING NATURALAIRFLOW VERTICALCIRCULATION 15 14
OPENTOSKYATRIUM
N

ServiceflowbetweenOTandCSSD(centralsterilesupplydept.)

InawelldesignedstateoftheartCSSD,thereathreeorganizedzones:soiledarea,cleanareaand sterilearea.CSSDislocatedinalowerfloordirectlyunderthesurgicalsuite.Thesurgicalareaand CSSDareconnectedthrough2dedicateddumbwaiterThesterilizationroomislocatednexttothe operatingrooms. Thirdfloorplan

Secondfloorplan

Medicalgassupplydiagram

NEUROLOGYANDNEUROSURGERY SUPERSPECIALTYHOSPITAL
17 16
N N

Viewofoutsideseatingandcoffeekiosks

Viewofchildren'sDaycare

Viewofpublicwaitinglounge

Exteriorviewofthehospital

NEUROLOGYANDNEUROSURGERY SUPERSPECIALTYHOSPITAL
19 18

Exteriorviewofthebarlounge

REVERIE:BARLOUNGE

INTERIORDESIGNSTUDIOPROJECT

Academiclevel:Semester7,Year4,BachelorofArchitecture

Studio:InteriorDesignandDetailing

Duration:4months

Scope: Theacademicprojectentailsunderstandingsiteanduser requirements,literaturestudies,concept,2Dand3Ddevelopment,and finalpresentationofdrawings;individualproject

Description:Thelocationofthesiteisinthevicinityofmajortransport facilitiesandmanycommonlyusedaccommodationfacilitiesinManipal. Thechosensitewaspreviouslyanicecreamparlor,whichwastobe reimaginedandtransformedintoanewproductivespace.

Hadiqa,oneofthemostpopularrestaurantsinthetown,sharesits boundarywiththeproposedbarlounge.Togethertheyworkasone wholehubforentertainment,foodanddrinks,andafunevening.

Theconceptwastohighlightkeyelementsofinteriorsusingglowing colors,creatingacoolandvibrantambience.Keepingrusticexteriorsto blendwiththecontextyetmakinginteriorsfuturisticthemedtoappeal totheyouthcreatesanelementofsurprisewhenenteredintothebar lounge.Thisprojectallowedmetolearnandplayaroundwithcolors, textures,mood,andspace.

20 21
REVERIE:BARLOUNGE 4 3 2 6 8 1 5 11 7 9 10 13 12 1.Waitingandentrancearea 2.Barcounter3.Publicseating 4.Privateseating5.Servicecorridor 6.Kitchen7.Freezer 8.Women'sroom9.Men'sroom 10.Speciallyabledtoilet 11.Washinganddrainage 12.Hadiqa 13.Parking GroundfloorplanofBarlounge Moodboardandcolorpalette N Sectionthroughbarcounter Blackbackdrops,anddarkfloorfinishpopsoutthecolorscheme.Warmglowlightsabovebarcounterbalancesthe coolambiences.Lowlyingloungesofasforseatingpromotesacomfortableandrelaxedatmosphere. Closeconnectivitytoserviceareasisnecessary,theservicecorridorfunctionsasthenecessarybufferand connectionbetweenkitchenandbarThecentralwideopenspacealsoactsasdancefloor.Largeentrancelobby withlandscapingcreatesapicturesquespot. Sectionthroughseatingandkitchen 23 22
REVERIE:BARLOUNGE 25 24
InteriorviewoftheBarlounge

FORESTTRAININGANDMANAGEMENTINSTITUTE DESIGNSTUDIOPROJECT

Academiclevel:Semester6,Year3,BachelorofArchitecture

Studio:ArchitecturalDesignandDetailing

Duration:4months

Scope: Theacademicprojectentailsunderstandingsiteanduser requirements,literaturestudies,concept,2Dand3Ddevelopment,and finalpresentationofdrawings;Acompletehanddraftedindividualproject

Description:Foresttrainingandmanagementwasstartedwiththe responsibilityofprofessionaltrainingandeducationofnatureand preservingit.Thisprojectaimstoprovideaspacethatinspiresindividuals torespecttheirsurroundingsandgainknowledgeinacomfortableand safespace.

ThesiteforthistraininginstituteisinPilikula,amajoreco-educationand tourismdevelopmentprojectpromotedbythedistrictadministrationof DakshinaKannadainthebeautifulcityofMangaluru,inKarnatakastate, India.

Anintegratedthemeparkwithawidevarietyoffeatures,Pilikulahasmany cultural,educational,andscientificinterestattractions.Comprisingofa tropicalforestandanenchantingPilikulalake,theprojectpresentlyinclude abiologicalpark,arboretum,asciencecenter,alakepark,agolfcourse, etc.,makingithighlyadvantageousforourprojectaswell.

"Acampusisasmallcityonitsown"-BasedontheprinciplesofKevin Lynch'simageofthecity,thefiveelements,i.e.,Paths,Nodes,Edges, Landmarks,andDistricts,havebeentakenasinspirationforthedesign.

26 27
Handmadecardboardmodeloftheproject

1

1.Admin2.Academic

3.Nursery4.Labs

5.Kioskarea

Groundfloorplanoftheacademicblock

Usingexistingcontourlevelstocreateastepped nurserywithpathwaystoeachkindofplantation, givingaproperaccessiblesegregationtodifferent nurslings.

STACKEFFECT:courtyardandwindowsenables freshairtogetinandcentralatriumletshotairout.

wallsectiondetail

wallsectiondetail: Acustomwallsection designedbyoptimizing the thickness and material to provide thermal comfort according to climatic conditions

Sectionthroughboyshostelandstaffquarters

2

N N

Theoctagonalacademic block is designed to ensuremaximumairflow andventilationinthe building. The central courtyard captures sunlightandactsasthe common interactive space.Itplaystheroleof alandmarkincampus. Smallkiosksalongthe pathwayscreatesmultiple meetandgreetspots dispersedaroundcampus andalsobooststhesales ofshops.

Aprefabconstructionusedforhostelblocksasan integrationofstructuralsystems.Prefabconstruction forbuildingswithtypicalfloorplansspeedsupthe construction. 3 5 4

Sectionthroughgirlshostel

Closeproximityofmessand hostel blocks makes it convenient for students to accessmessatlatehours. Commonseatingareasaround hostel blocks for group meetings, events and club activities. Thecentralpathwayactsasthe arterial road connecting residentialandacademicblock.

Sectionthroughnursery

1

3 2 2

4 6

Sectionthroughacademicblockandlabs

Gutterdetail

Groundfloorplanofresidentialblock

5

1.Girlshostel2.Seatingspaces 3.Director'shouse4.Boyshostel 5.Mess6.Staffquarters

FORESTTRAININGANDMANAGEMENTINSTITUTE 28 29

SHREYAS:THERESIDENCE DESIGNSTUDIOPROJECT

Academiclevel:Semester2,Year1,BachelorofArchitecture

Studio:ArchitecturalDesignandDetailing

Duration:4months

Scope: Theacademicprojectentailsunderstandingsiteanduser requirements,literaturestudies,concept,2Dand3Ddevelopment,and finalpresentationofdrawings;individualproject

Description:Residencedesignisthemostbasicandcrucialofprojects. ThisprojectisdesignedforafamilyofsixsettledinUdupi,Mangalore.In integrationwithstructurestudio,thematerialtobeexploredthrough thisprojectwasConcrete.

ThelocationofthesiteisinthesuburbsofUdupi.Nearbyareasaround thesitecontainrentalapartmentbuildings,apublicpark,andtheTAPMI instituteTheinstitutebuildingservesasthelandmarkforthecolony Themainroadadjacenttothesiteextendsfurtheruptothehilltopwitha magnificentviewofUdupitown.Thelocationisampleingreeneryand views.Sincethesiteisnotinthecommercialpartoftown,majormarkets andtransporthubsarenotinclosevicinity.

Theconceptwastokeepthedesignsimple,elegant,andcontemporaryin style.Thetwo-flooredresidenceincludes3BHKwithattachedbathrooms, livinganddining,kitchenandutility,study,worshiproom,balcony, kitchengarden,andoutsideseatingareawithlandscaping.

30 31
Exteriorviewoftheresidence

Highlightingbedpanelswithdarkgranitecladding, addingtherequiredcontrastandbalancingthe pastels.

Darkwoodveneerfinishfordoors,windowframes andselectedfurnitureblendsroyallywithbeige floortiles.Darkwoodfloorpanelingindiningarea iseasytocleanandalsomarksaseparation betweenpublicandsemiprivatearea.

Understatedsoftwarmglowlightingbringsoutthe pastelcolorsinfinishes,givingitarichelegant look.

keepingthewallinfrontoflivingsofaemptyto installwallmountedTV.Lowlyingcabinetunder, forstorage.Largeworshiproomwithfullsize curtainsforseparation.Elevatedplatformfor placingofidolwithminirecessedlightingunderto maketheplatformaglowingandspirituallook.

Modularkitchen withchanneldrawersand cabinets.Granitefinishtop,easytowipeand durable.

The entire setback area is covered with landscaping.Frontfaceholdsparkingandgarden gazebo.

SHREYAS:THERESIDENCE 32 33
Groundfloorplan Firstfloorplan 1.Worshiproom 2.Verandah3.Dining 4.Living5.Commontoilet 6.Utility7.Dressing 8.Parent'sroom9.Kitchen 10.Bathroom 1.Dressing2.Bathroom 3.Balcony4.Children'sroom 5.doubleheightcutout 6.Balcony7.Dressing 8.Study9.Bathroom 10.Masterbedroom 2 4 7 10 1 3 6 9 5 8 3 5 7 10 1 4 6 8 9 2 PartofGroundfloornightview Formdevelopment sectionalelevation:kitchen sectionalelevation:kicthen sectionalview:firstfloor sectionalview:groundfloor Doubleheightcutoutwithbalconywindowonfirstfloorlevel bringsinsunlightandventilationintolivingroom N elevatedbedboxinchildren'sroomgivesthefreshmodern look fullsizewindowopeninguptohillviewfromstudy
opencirculationbetweenkitchenanddiningforeasyserving.
wideentranceverandahforkeepingshoeracksand landscaping.Itasloprovidesgrandeurforthefrontdoor.
backdoorfromutilityopeningintokitchengarden,convenient accessfromkitchen
SHREYAS:THERESIDENCE 34 35
Sectionalviewoftheresidencewithfurniturelayout

DesignedgraphicallogoforMangalore

INFORMALITY:BUNDER,MANGALORE

URBANCONTEXTSTUDIOPROJECT

Academiclevel:Semester7,Year4,BachelorofArchitecture

Studio:Urbancontextstudio

Duration:4months

Scope:Thisacademicprojectentailsdocumentingandanalyzingthe BunderdistrictinMangalore,Karnataka,India,fromtheperspectiveof informality.Itisagroupproject,doneinateamof40students.

Theextentofcontribution:Documentationandanalysisofinformalityin carstreetandgather40(outofatotalof300)householdsurveys Assistedincreatingalocalactionplaninvolvingidentifyingvoidsand proposinginterventions.

Description:Mangalore,thenameisderivedfromGoddessMangala Devi.ItisalsocalledKudlainthelocallanguageTulu,meaningjunction. Multiculturalandmulti-linguisticnon-metrocitiesofIndia.Itisthe largestcityintheCoastalregionsofKarnataka.Acommercial,industrial, educational,andhealthcarehubonthewestcoastofIndia.

InformalityinMangalorefunctionsinrelationtotheformalsectors.The majorhotspotsorvendingzonesarearoundTransportnodesandstreets, areaswithhightrafficflowandcloseproximitytoformalsettlements. Thisstudyproposesinterventionstoaugmentinformaleastablishments throughplacemaking,urbanmobility,andretrofitting.

37 36

STRUCTURE

INFORMALITY

· TOTALNOOFVENDORS:1145

· VendorswithlicenseinBunderarea –338(applicableunderstreetvending act2014)AnnualEconomicRevenue generated80lakhs(approxvalue

· Theinformalityoncarstreetistemporal andexhibitsmostlyduringcarfestival, theremainingtimetheinformalityisa resultofthepresenceofthetemplesand flowermarketonthestreet

· Dhakke-oldportarea(40yrsold buildings)Mainactivity-fishing.

· Peopleusingtheareaarefromdifferent placeswhocomeforfishingbusiness throughboatsdaily.

MORPHOLOGYANDTRANSPORTION

· Underutilizationofunbuiltspacesandlackofcommunity spacesforplacemaking.

· Streetpatternandfinegrain/coarsegraindevelopments.

· Tacticalurbanism:Unsanctionedandtemporaryaddition tobuiltenvironmentforeffectiveremakingofbuildings

· Totalarea:2.11sq.km,Builtarea:0.692sq.km, Unbuiltarea:1.426sq.km

Roadhierarchy

Figuregroundmap

· Inadequateconnectivityofpedestrianpath network

· Poorpedestrianinfrastructure, pedestrianizationandbuildingfootpaths required.

· Onstreetparkingleadstoincreasedvolume countoftransportationmodes

· Restrictionoffreightvehiclesincarstreetand kundlamarketroadstoavoid loading/unloadingduringpublichours.

SOCIETYANDSPACE

INFORMALITY:BUNDER,MANGALORE
DAKSHINAKANNADA KARNATAKA INDIA MUDAEXTENT MCCEXTENT DISTRICT STATE COUNTRY TALUK WARD
Areawisemigratorystatus Occupationdistribution Ownershipdistribution
IdentifyingInformalityinBunder
39 38
Sketchofcarstreet
INFORMALITY:BUNDER,MANGALORE Localactionplan
"Toaugmentinformalestablishmentsinthedelineatedareathroughurban mobility,placemakingandretrofitting" Streetshops Dhekkefishmarket Fishnetworkshop Nehrumaidanwalkability Walkability Kudlamarketretrofitting Seawalk Ferrywharfextension walkabilityincarstreet 41 40
PROJECTVISIONSTATEMENT

Abstract

Thispaperaimstoestablisharelationshipbetweenphysicalbuiltenvironmentandpatient’sabilitytoexperience thespacethroughanarchitecturalperspectiveandfromwhatweknowthroughevidence-baseddesign(EBD).

Thisstudyexploresthepatient’sdailyroutineinordertocreatespacesbasedonthespecificactivityandsensory requirementstostimulatetheresponsesinapatientwithParkinson’s,Alzheimer’sorDementia.Itdoessoby organizingtheenvironmentalvariablesintwoparts:spatialandsensory.Tounderstandapatient’sexperience basedonthesecategories,amixedmethodapproachisusedwherein,qualitativeandquantitativedatais collected,notonlyfrompatientsbutnursingstaffalso.

Hereweshowhowpatientresponsestowardstheirsurroundingsandwhataspectsofourbuiltenvironment createsanimpactonpatientoutcomes.Forex:majorityofpatientsdescribehealingasa“feelingbetter”or “gettingwell”or“feelinglighter”whicharethebasicresponsesthispaperaimstoanalyzeandconclude. Keywords:healing,overallwellness,evidence-baseddesign,spatialandsensory,mixedmethod.

Literature

Neurodegenerativediseasesareprogressivedisorders wherenervecellsinthebrainorperipheralnervous systemlosefunctionovertimeandultimatelydie. Althoughtreatmentsmayhelprelievesomeofthe physicalormentalsymptomsassociatedwith neurodegenerativediseases,thereiscurrentlynoway toslowdiseaseprogressionandnoknowncures.

“WHOprojectionssuggestthatby2025,about three-quartersoftheestimated1.2billionpeopleaged 60yearsandolderwillresideindevelopingcountries. Thus,by2040,ifgrowthintheolderpopulation continues,andtherearenochangesinmortalityor burdenreductionbypreventivemeasures,71%of81.1 milliondementiacaseswillbeinthedevelopingworld.

Theprevalenceratesofthespectrumofneurological disordersfromdifferentregionsofthecountryranged from967-4,070withameanof2394per100000 population,providingaroughestimateofover30 millionpeoplewithneurologicaldisorders(excluding neuroinfectiousandtraumaticinjuries).”(Gourie-Devi, 2015)

Discussion

Patientsdescribinghealingandhealingspacesin termsofspaceenhancershasbrokenagroundfor establishmentofasignificantrelationshipbetween builtenvironmentandpatientoutcomes.The repetitionofphysicalattributesofspaceinmajority ofresponsesiscohesivewiththeoriescollected fromstudiesofLorissaMcAllister'sandWayneB Jonas’s.

Thestudyhasalsoshownacontradictionto literatureinaspectofpresenceoftechnology. Majorityofpatientsratethepresenceofsound generatingequipmentasdisturbinginsteadofa positivedistractionassuggestedincertainalternate theories.

Theliteraturecategorizeshealingintomajorly4 categories,namely:Psychological,self-efficacy, socialandfunctional.Allfourcategorieshavefound tobeconsistentthroughoutthestudywithsocial beingthemostsignificantone.

Patientresponsestowardsinteractivespacesand spendingtimeinpeople’scompanyhasgivena substantialscopefordesigninginteractivespaces thatstimulatespositiveresponsesfrompatients.

Theliteraturereviewidentified4domainsand8 constructsofOHEframework,thearchitectural variables,accesstoopenareas,interactivespaces directlyandindirectlyfacilitateoneormore domainofOHEanddemonstratethecontribution ofarchitecturalprecinctsinhealing.Healingisa process;ithappensoveraperiodoftime.Positive impacts,senseofwholeness,peaceofmindis somethingveryabstractandpersonaltobe measured,yetstrategiesofEBDtakeuscloserto understandingpatientoutcomes.“Theclinical encountermaynotnecessarilybewherehealing occurs,butitcanbecomeanimportantcatalyst forhelpingthepatientmovetowardhealing withintheirlifespace”(DuBoseetal.,2018).

Methodologyflowchart

DISSERTATION
43 42
Patientresponsestoquestionnaires
Example:AParkinson'spatientenvironmentsetting Patientdemographics ResearchDesign OHEconstruct,(DuBoseetal.,2018)
MISCELLANEOUS 44 45
Costumedesign,collegeannualevent OPUS,2018 HanddonePencilPortrait Stageplaydirectedandproducedby headeddramaticsforumOPUS,2019 HanddoneArchitecturalhistorysketches MIME,Dramaticsforum,REVELS,2019 Lightingworkshopandcompetition, IALD,2019
SURBHIAGRAWAL surbhi.211098@gmail.com

Turn static files into dynamic content formats.

Create a flipbook
Issuu converts static files into: digital portfolios, online yearbooks, online catalogs, digital photo albums and more. Sign up and create your flipbook.