Supasan K. PORTFOLIO

Page 1

01
Beachfront Pattaya Condominium
YEAR 4 DESIGN PROJECT RESIDENTIAL, HIGH RISE Location : Pattaya, Banglamung, Chonburi Building Area : 42251.4 sq.m. 3 ATMOSPHERE SPACE ที�มีความกว้างขวาง มีระเบียงส่วนตัวทุก UNIT การใช้องค์ประกอบที�เป�นรั�ว สีและวัสดุ ที�มีความเป�น TROPICAL ให้ความรู้สึกเหมือน ได้มาพักผ่อน หรืออยู่บ้าน สร้างบรรยากาศให้ผู้อยู่อาศัยเหมือน ได้มาพักผ่อนตากอากาศ และในส่วน ที�อยู่อาศัยก็จะรู้สึกเหมือนอยู่บ้าน 1 MATERIALS 2 SPACE&ELEMENTS การทําคอนโดมิเนียม ให้มีบรรยากาศเหมือน ที�พักอาศัยแนวราบ CONCEPT HOME&RESORT

ISOMETRIC

AREA SUMMARY SITE AREA FAR AREA ( FAR=7 ) OSR AREA ( 4.5% ) GFA TOTAL SALABLE AREA RETAIL AREA RESIDENTIAL AREA TOTAL UNIT EFFICIENCY PARKING LOTS REQUIRED PROVIDED GREEN AREA OVER ALL ON BUILDING ON GROUND 6,415 44,905 2,020.725 42,251.4 21,039.2 1,000 20,039.2 290 49.80% 145 178 REQUIRED 945 >472.5 SQ.M. SQ.M. SQ.M. SQ.M. SQ.M. SQ.M. SQ.M. UNIT LOTS LOTS PROVIDED 1,930 791 1,139
SUMMARY PENTHOUSE CITY TYPE BALCONY TYPE SUNSET TYPE PERSPECTIVE
E G DESIGN
จากแนวคิดในการออกแบบให้เหมือนกับที�พักอาศัยแนวราบ จึงได้นํารั�วมาใช้บริเวณระเบียงของห้องพัก BALCONY TYPE ซึ�งเป�นจุดขายหลักของโครงการ เพื�อเพิมความปลอดโปร่งแก่ห้องพัก เกิดความรู้สึก เหมือนอยู่บ้าน และทุก 3 ชั�นจะมีกระบะปลูกต้นไม้เพื�อเพิมพื�นที�สีเขียว สร้างความร่มรื�นให้ห้องพักโดยที�มี การเตรียมพื�นที�ให้ส่วนกลางมาดูแลรักษาต้นไม้ได้ เป�นการอํานวยความสะดวกแก่ผู้อยู่อาศัย MAINTAINANCE SERVICE ENTRANCE LARGE BALCONY PLANTER FENCE
CONCEPT
BALCONY 1 55.90 SQ.M. BALCONY 2 58.10 SQ.M. BALCONY 3 68.80 SQ.M. CITY 1 57.50 SQ.M. CITY TYPE BALCONY TYPE เป�นห้องที�มองเห็นวิวทะเลได้ชัดเจนที�สุดจึงทํา ระเบียงขนาดใหญ่เพื�อรับกับวิวทะเล และมีพื�นที� พักผ่อนมากขึ�น เป�นห้องที�ไม่ได้รับวิวทะเล จึงมีการออกแบบให้มี ระเบียงขนาดใหญ่ เพื�อให้ห้องมี บรรยากาศที�ดีขึ�น
SUNSET 1 50.10 SQ.M. SUNSET 2 70.10 SQ.M. SUNSET 3 120.30 SQ.M. PENTHOUSE 2 159.00 SQ.M. PENT-
SUNSET
ห้อง PENTHOUSE เป�น ห้องที�มีขนาดใหญ่ที�สุด และมีเพียง 10 ยูนิต เป�นห้องที�หันไปทางด้านทิศตะวันตก จึงสามารถ มองเห็นพระอาทิตย์ตกได้ชัดเจนและยังมองเห็น วิวทะเลได้อีกด้วย
HOUSE
TYPE

02

Semi-detached House Village

YEAR 3 DESIGN PROJECT RESIDENTIAL Location : Ladprao 107, Bangkok Building Area : 650 sq.m. CONCEPT FLEXIBILITY การออกแบบบ้านที�คํานึงถึงการเปลี�ยนแปลงในอนาคต รวมถึงความต้องการใช้งานที�หลากหลายมากขึ�นในบ้าน FLEXIBIILITY DESIGN จึงถูกนํามาใช้ออกแบบส่วนต่างๆในบ้าน เพื�อตอบรับความต้องการที�มากขึ�นรวมถึง CRITERIA เดิม

CONCEPT FLEXIBILITY

MULTI-USE SPACE FLEXIBLE SCENERY MOVABLE PARTITION

zoning Public Area Semi Public Area Private Area Service Area Circulation core massing เพื�อให้ทุกส่วนมีการระบายอากาศที�ดี และได้รับแสงธรรมชาติอย่างทั�วถึง roof เพิมพื�นที�ที�มีลักษณะเป�นหลังคาที�มีความชัน ช่วยให้อากาศถ่ายเทสะดวก และความรู้สึกที� ต่างจากห้องที�มีเพดานราบ adaptability moveability responsiveness
การจัดเตรียมพื�นที�และมุมมองที�หลากหลาย ตามความต้องการที�ต่างกัน ผู้อยู่อาศัยสามารถออกแบบหรือปรับ การใช้งานได้ด้วยตนเอง การจัดเตรียมองค์ประกอบที�สามารถตอบสนอง ต่อการเปลี�ยนแปลงของป�จจัยภายนอกเช่นแดด ลม ความเป�นส่วนตัว ADAPTABLE EAVE ชายคาที�สามารถปรับองศาได้ตามความต้องการ จุดเด่นของการออกแบบบ้านหลังนี�คือการใช้องค์ประกอบของหลังคา หลากหลายรูปแบบมาปรับใช้ในแต่ละส่วนของบ้านให้เกิด FLEXIBILITY

CONCEPT DIAGRAM

ADAPTABLE EAVE ชายคาที�สามารถปรับองศาได้ตามความต้องการ MULTI-FUNCTION ELEMENT หลังคาชันที�ช่วยเพิม space ทางตั�งให้กับห้องและ ยังทําให้เกิดช่องแมวลอดนําแสงเข้าสู่บ้าน MOVABLE PARTITION เป�นองค์ประกอบที�สามารถปรับให้ ห้องต่างๆ เป�นได้ทั�งพื�นที�ภายในและกึ�งภายนอกหรือเป�น ตัวช่วยในการแบ่งหรือรวม space FLEXIBLE SCENERY MULTI-USE SPACE สามารถจะเชื�อมหรือแยกพื�นที�หลายพื�นที� ได้ตามความต้องการ เช่น ชั�น 1 ห้องรับแขกและห้องอเนกประสงค์ ชั�น 2 ห้องนั�งเล่น ห้องรับประทานอาหาร และชาน
โครงการหมู่บ้านจัดสรร ที�ประกอบไปด้วย บ้านทั�งหมด 74 หลัง ลักษณะของบ้านเป�น บ้านแฝดสูง 4 ชั�น ประกอบไปด้วย 3 ห้องนอน 3 ห้องนํา
LAYOUT PLAN PLAN/ SECTION ELEVATION
03 DOF Home Office
YEAR 2 DESIGN PROJECT RESIDENTIAL Location : Soi Ari Samphan 5, Phayathai, Bangkok Building Area : 900 sq.m. CONCEPT HARMONY เป�นการออกแบบบ้านและออฟฟ�ศ ที�เมื�อมองจากภายนอกแล้ว จะรู้สึกถึงความกลมกลืนเป�นหลังเดียวกัน แต่การใช้สอยภายใน ได้มีการแบ่งส่วนของบ้าน และออฟฟ�ศอย่างชัดเจน ไม่เกิดการรบกวนซึ�งกันและกัน

ISOMETRIC

PLAN การใช้วัสดุต่างๆก็จะมีความกลมกลืนกับธรรมชาติ เช่น ไม้ คอนกรีตเปลือย และมีทั�งบ่อนํา ศาลาไม้ ซึ�ง จะเป�นส่วนเชื�อมต่อระหว่างอาคาร และธรรมชาติใน ที�ตั�ง ให้เกิดความสมดุลระหว่างกัน
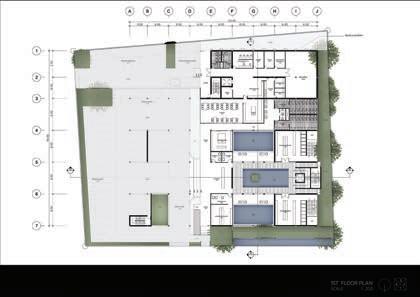
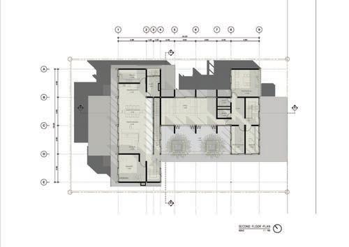
2ND FLOOR PLAN 3RD FLOOR PLAN HOME OFFICE SHARED SPACE
1ST FLOOR PLAN

04 Thai Porcelain Museum

CONCEPT BENJARONG VILLAGE

YEAR 4 DESIGN PROJECT CULTURAL ARCHITECTURE Location : Phayathai Rd, Pathum Wan Bangkok Building Area : 17150 sq.m. รูปทรงของอาคารได้รับแรงบันดาลใจจาก ลักษณะของหมู่บ้านเบญจรงค์ดอนไก่ดี หนึ�งในหมู่บ้านเบญจรงค์ ที�มีชื�อเสียงที�สุดของประเทศไทยที�มีลักษณะเป�นบ้านหลายหลัง จึงได้แบ่งอาคารเป�นหลังๆทั�งหมด 5 หลังเพื�อ ช่วยลดทอนขนาดอาคาร ให้เกิดความรู้สึกเหมือนได้มาเรียนรู้ในหมู่บ้านที�เป�นแหล่งทําเครื�องถ้วยของไทย

THAI PORCELAIN MUSEUM

MASS BENJARONG VILLAGE FINISH

ดอนไก่ดี จ.สมุทรสาคร ที�มีชื�อเสียงไปทั�วโลกซึ�งเปรียบเสมือนว่าเครื�องถ้วย ของไทยยังคงอยู่

การแบ่งอาคารเป�นหลังๆซึ�งได้แรงบันดาลจาก หมู่บ้านเบญจรงค์
และมีชื�อเสียงได้จนถึงป�จจุบัน
และยิงใหญ่ของเครื�องถ้วย ไทยในรูปแบบต่างๆ การใช้สีของดินก่อนนําไปเผามาเป�น โทนสีหลักของอาคาร
พิพิธภัณฑ์เครื�องถ้วยไทย เป�นพิพิธภัณฑ์ที�บอกเล่าเรื�องราวเครื�องถ้วยของไทย ตั�งแต่อดีตจนถึงป�จจุบันแสดงให้เห็นถึงความสําคัญ
ISOMETRIC D E B A C A B C D E RECEPTION PERMANENT EXHIBITION TEMPORARY EXHIBITION PUBLIC AREA SERVICE AREA PLAZA THAI PORCELAIN MUSEUM PLAN LAYOUT F F BUS ENTRANCE VEHICLE ENTRANCE VEHICLE EXIT ENTRANCE ENTRANCE EXIT ถนนพญาไท ซอยจุฬาลงกรณ์ 12 MBK CENTER หอพักนิสิตจุฬา

THAI PORCELAIN MUSEUM SECTION

ELEVATION

0 5 10 20
SECTION A-A
0 5 10 20
SECTION B-B

PERSPECTIVE

1 2 3 4 5 6 1 2 3 4 5 6 สมัยก่อนประวัติศาสตร์ สมัยประวัติศาสตร์ สมัยอยุธยา-ธนบุรี สมัย ร.1-ร.3 สมัย ร.4-ร.5 คุณค่าเครื�องถ้วยไทย
1 2 3 4 5 6 6 A TICKET C TEMPORARY EXHIBITION D PUBLIC AREA D WORKSHOP D LIBRARY F PLAZA
PERMANENT EXHIBITION DIAGRAM PERSPECTIVE

05 Wanderwide Market Community Space

YEAR 2 DESIGN PROJECT COMMERCIAL Location : Soi Naradhiwas 20, Yannawa, Bangkok Building Area : 1950 sq.m. CONCEPT CAVE การนําองค์ประกอบของ “ถํา” มาใช้ในการออกแบบให้เกิด Space ที�หลากหลาย และสร้างประสบการณ์แก่ผู้ใช้งาน
ด้วยความต้องการที�จะสร้าง Community Space ที�แปลกใหม่และสอดคล้องกับความต้องการที�หลาก หลายของผู้ใช้งาน ทั�งในส่วน Supermarket และ Comunity Mall จึงออกมาเป�น Conept “ถํา” เพื�อ ให้เกิดพื�นที�ที�หลากหลาย การออกแบบให้มีลักษณะ เหมือนถํา การใช้ช่องแสง และธรรมชาติ นําไปสู่การ วาง Zoning ของอาคาร ร้านค้าทั�วไปก็จะเข้าถึงได้ ง่าย รวดเร็ว แต่พื�นที�สําคัญของโครงการ และเป�น จุดเด่น เช่นร้านอาหารก็จะให้อยู่ลึกเข้าไป ใช้เวลาใน การเข้าถึงนาน เพื�อให้เกิดความรู้สึกได้ผจญภัย เป�นการสร้างประสบการณ์แก่ผู้ใช้งาน 1ST FLOOR SUPERMARKET M FLOOR OFFICE 2ND FLOOR POP-UP STORE 3RD FLOOR RESTAURANT
EXPLODED ISOMETRIC
1ST FLOOR PLAN 3RD FLOOR PLAN 2ND FLOOR PLAN FLOOR PLAN SECTION
and
06 Thara-cot Onsen
Spa

YEAR 3

DESIGN PROJECT

HEALTHCARE ARCHITECTURE

Location : Soi Nawamin 111, Bangkok

Building Area : 6000 sq.m.

CONCEPT TERRACOTTA /

/

THARA
COURT สปาที�มีการสร้างบรรยากาศที�ผสมผสานระหว่างความหรูหรา และความใกล้ชิดธรรมชาติ โดยนําวัสดุดินเผามาใช้เป�นจุดเด่นของอาคารแห่งนี� รวมถึงการนําคอร์ท และบ่อนํามาไว้ใน จุดต่างๆจนกลายมาเป�น THARA-COT Onsen and Spa

CONCEPT

DAYSPA --- TERRACOTTA / THARA / COURT

การแทรกคอร์ทไปยังจุดต่างๆของสปา เป�นอีกหนึ�งจุดเด่น ของสปาแห่งนี� นอกจากจะเป�นการสร้างความร่มรื�นแล้วยัง ช่วยเพิ มทิวทัศน์ที�ดี ที�ไม่สามารถหาได้จากพื�นที�โดยรอบ ที�ตั�งของสปา

SECTION
WELCOME COURT ONSEN CORRIDOR MAIN COURT
PLAN
CORRIDOR PRIVATE MASSAGE ROOM
07
PACC Office Civic Office
YEAR 3 DESIGN PROJECT CIVIC ARCHITECTURE
: Naa Mueng Rd, khonkaen
Area : 3500 sq.m. CONCEPT KHONKAEN IDENTITY อาคารราชการที�มีการใช้วัสดุท้องถินมาเป�นจุดเด่นของอาคาร โดยสามารถแสดงถึงภาพลักษณ์องค์กร และแสดงเอกลักษณ์ของจังหวัดขอนแก่น และภาคอีสานได้เป�นอย่างดี
Location
Building

กําแพงคอนกรีต ทําหน้าที�กําหนดทางเข้าหลักของอาคาร ซึ�งจะตรงกับทางเข้าของอาคารฝ��งตรง

ISOMETRIC อาคารแบ่งเป�น 2 ส่วนคือส่วนที�มีบุคคลภายนอกมากติดต่อเป�นตัวแทนของประชาชน และส่วนของสํานักงานเป�นตัวแทนขององค์กร และมีการออกแบบสะพานเชื�อมสื�อถึงการเชื�อมโยงขององค์กรและประชาชน
ข้าม แสดงถึงความเชื�อมโยงกับอาคาร โดยรอบ กําแพงดินอัด (Rammed Earth) โดยได้ใช้ ดินแดง ซึ�งเป�นเอกลักษณ์ของจังหวัดขอนแก่น มีลักษณะเป�น กําแพงก่อสูงขนาบข้างอาคาร สื�อถึงการ ควบคุมและตรวจสอบเจ้าหน้าที�ของรัฐที�มีการทุจริต และ แสดงถึงความมั�นคงขององค์กร LANDSCAPE การจัดภูมิทัศน์รอบอาคาร มีการใช้องค์ประกอบ ของเนินดินและพื�นดินต่างระดับ สื�อถึงภูมิประเทศ ของภาคอีสาน สํานักงานคณะกรรมการป�องกันและปราบปรามการทุจริตในภาครัฐ เขตพื�นที� 4 ขอนแก่น
COURT OFFICE CANTEEN REST AREA MEETING ROOM
PLAN 1ST FLOOR PLAN 2ND FLOOR PLAN 3RD FLOOR PLAN พื�นที�ส่วนกลาง (บุคคลทั�วไป) พื�นที�ส่วนกลาง (พนักงาน) กลุ่มการเงินและพัสดุ กลุ่มบริหารงานทั�วไป กลุ่มงานป�องกัน กลุ่มงานปราบปราม 1 กลุ่มงานปราบปราม 2 กลุ่มงานปราบปราม 3 กลุ่มผู้อํานวยการ ส่วนประชุม ส่วนบริการอาคาร ทางสัญจรหลัก

SECTION/ ELEVATION

Bangkachao Learning Center

08

CULTURAL ARCHITECTURE

Location : Phra Pradaeng, Samut Prakan

CONCEPT

2
YEAR
DESIGN PROJECT
Building Area : 1200 sq.m. พบ-ผ่าน ศูนย์การเรียนรู้คุ้งบางกะเจ้า เป�นพื�นที�ที�จะทําให้ผู้คนได้”พบ”กัน ได้เรียนรู้วิถีชีวิตแบบบางกะเจ้า “ผ่าน” จุดต่างๆ ของโครงการที�ได้มีการออกแบบให้ผู้คนได้รับประสบการณ์ และความรู้เกี�ยวกับ คุ้งบางกะเจ้า

จึงออกแบบให้มีทางสําหรับจักรยานภายใน

“ พบผ่าน ” พบ 01 พบเจอสิ งต่างๆ ในบางกะเจ้า จากศูนย์การเรียนรู้แห่งนี� จึงออกแบบให้อาคารแต่ละหลัง องค์ประกอบทางสถาป�ตยกรรมต่างๆ เป�นตัวแทนของเอกลักษณ์ต่างๆ ในบางกะเจ้า 02 พบเจอผู้คนที�มาเยี�ยมชม ใช้งานศูนย์การเรียนรู้นี� จึงออกแบบอาคารให้มีการล้อมคอร์ท จึงพบเห็นกันได้ง่าย ผ่าน จักรยานเป�นหนึ�งในเอกลักษณ์ของบางกะเจ้า
โครงการ
ไปยังพื�นที�ต่างๆได้ง่าย ไม่ซับซ้อน ผ่าน จักรยานเป�นหนึ�งในเอกลักษณ์ของบางกะเจ้า จึงได้ออกแบบให้มีทางสําหรับจักรยานภายใน โครงการ เพื�อให้จักรยานสามารถผ่านไปได้ และยังมีการออกแบบทางสัญจรคนให้ผ่าน ไปยังพื�นที�ต่างๆได้ง่าย ไม่ซับซ้อน
เพื�อให้จักรยานสามารถผ่านไปได้และยังมีการออกแบบทางสัญจรคนให้ผ่าน

04 ซุ้มทางเข้ามีการปลูกต้นจากซึ�งพบเห็นได้มากในบางกะเจ้า ทําให้ผู้ที�เข้ามารู้สึกเหมือนตัวเองเห็นแนวต้นจากจํานวนมาก เมื�อตอนเรานั�งเรือข้ามมาบางกะเจ้า

แนวเสาไม้จํานวนมากเปรียบกับต้นไม้ ในบางกะเจ้าที�มีจํานวนมาก รั�วกั�นที�เหมือนกับราวกันตกที�พบเห็น ได้ทั�วไปในบางกะเจ้า การใช้ไม้ไผ่จักสานมาใช้เป�นฝ�าป�ดโครงสร้างหลังคาซึ�งจะ พบเห็น จากหลายที�ในบางกะเจ้า เช่น ตลาดนําบางนําผึ�ง ซุ้มประตูของศูนย์การเรียนรู้แห่งนี�ได้นําลักษณะซุ้มประตูท่าเรือ มาปรับใช้ และลดทอนรายละเอียดลง BANGKACHAO ELEMENTS 01 ส่วนอาคารWORKSHOPเป�นตัวแทนของท่าเรือเพราะฝ��งนี� เป�นด้านแรกที�คนจะพบเห็นอาคาร จึงใช้ลักษณะท่าเรือซึ�งเป�น ที�แรกที�พบเห็นในบางกะเจ้าจากการสร้างบ่อนําติดอาคาร 02 อาคารต้อนรับ เนื�องจากเป�นส่วนที�ติดคลองจึง มีการออกแบบให้มีความโปร่งให้ผู้คนมีปฏิสัมพันธ์ กับคลองมากที�สุด 03 อาคารอเนกประสงค์ เป�นตัวแทนของชุมชน จึง มีการออกแบบ ให้มีพื�นที�รองรับคนจํานวนมากเช่น ชานกว้าง ศาลาริมนํา

SECTION PLAN ELEVATION

MULTI-PURPOSE ROOM MEETING ROOM
WORKSHOP ENTRANCE RIVERSIDE GARDEN WORKSHOP MAIN COURT
YEAR 3 DESIGN PROJECT PUBLIC ARCHITECTURE Location : Hatyai, Songkhla Building Area : 4500 sq.m. HATYAI BUS TERMINAL สถานีขนส่งผู้โดยสารเทศบาลนครหาดใหญ่แห่งที� 1 แห่งใหม่นี�ถูกสร้างขึ�นเพื�อเป�นศูนย์กลางของ ระบบขนส่งทั�งรถโดยสารและรถตู้ระหว่างเทศบาลนครหาดใหญ่กับจังหวัดต่างๆในภาคใต้

OTHER WORKS / EXPERIENCE

YEAR 3 - LIGHTING DESIGN (GROUP PROJECT)

1

2

MODEL MAKING

YEAR 1 : HOUSE NO.1 MODEL

YEAR 4 THAI PORCELAIN MUSEUM MODEL

3

SKETCH DESIGN

YEAR 2 Utopian Architecture - Topyard Farm

YEAR 4 : Veterinary Hospital / TESLA Charging Station

จัดแสดง ณ โบสถ์น้อย วัดอรุณราชวรารามราชวรมหาวิหาร ออกแบบในแนวคิดการ แสดงวิถีชีวิตชาวจีนโบราณ ผ่านการจัดแสดง แจกันจีนเซรามิกเนื�อสีขาวเคลือบเงา ขนาด 30x90 ซม. ที�ได้เล่าเรื�องราวเป�นภาพเขียนธรรมชาติ วิถีชีวิตชาวจีนโบราณ
TEASER, TRAILER & MUSIC VIDEO หัวหน้าฝ�ายวิดีโอ และมีส่วนร่วมในการทํา Teaser และ Trailer ของ ถาป�ดการละคอน ครั�งที� 63 “The Nutcracker อัศจรรย์คืนฝ�นวันคริสต์มาส” และ MV คืนฝ�น (snooze) - Tapadkarnlakorn63rd [The Nutcracker OST] 5 PHOTOGRAPHY
No.5 Photography Contests by RCU Digital Media Club (Participants) 6 ARCHITECTURAL COMPETITION 2017 รางวัลชนะเลิศ - การแข่งขันทักษะทางสถาป�ตยกรรม หัวข้อ “สถาป�ตยกรรมทําดี” โดย RMUTL 2018 รางวัลชนะเลิศ - การแข่งขันทักษะทางสถาป�ตยกรรม หัวข้อ “แชร์...จิตสํานักการแบ่งป�นการอยู่ ร่วมกัน” โดย RMUTL
4
Picture

Turn static files into dynamic content formats.

Create a flipbook
Issuu converts static files into: digital portfolios, online yearbooks, online catalogs, digital photo albums and more. Sign up and create your flipbook.