SUNIDHI S KANEKAL- UNDERGRADUATE PORTFOLIO

Page 1


dob: 25/04/2003

email: kanekalsunidhi@gmail.com

phone: +9108141339

instagram: sunidhi kanekal

SunidhiKanekal

4th Year Architecture Student

I’m a fourth-year undergraduate student at School of Architecture, KLE Tech, Hubballi. Passionate about designing functional, context sensitive spaces, i like to explore the psychology of spatial experiences while intergrating local insights. I grow in collaborative environments, embracing leadership with a flexible, processdriven approach.

I’m seeking an internship that allows me to collaborate on meaningful projects, challenge my perspectives and and grow as a designer who balances imagination with intention, with clarity and creativity.

Stilunfolding.Stil becoming.Stil burnng

UNIVERSITY OF ART, DESIGN AND ARCHITECTURE

INTERIOR DESIGN

SOCIAL HOUSING FOR FISHERMEN COMMUNITY

WORKING DRAWING

NASA • MISCELLANOUS

CURIOSITY

FOCUS AND MASTERY

STAGES OF A STUDENT’S GROWTH

The campus represents students growth, where each building/space represents a distinct phase in the student’s journey-linked by the pathways flowing between built/unbuilt spaces, reflecting the students progress as they move from one place to another.

A PATH THROUGH KNOWLEDGE AND NATURE

MASTERPLAN

SITE AREA : 5 1 ACRES

BUILT UP AREA : 2.23 ACRES

The campus is imagined as a journey mirroring the growth of a student over time-from curiosity to contribution. The looped circulation ties the campus together, guiding movement through broad open areas, learning zones, and quiet pockets for reflection

The academic zone wraps around the Open Air Theatre, which sits beside the Pool of Reflection, a waterbody placed along the contours forming the symbolic and spatial heart of the campus. Learning spaces support focus and making, while open areas invite collaboration. Pathways connect everything, letting ideas flow. The hostel zone, slightly tucked away offers a sense of pause.

OPEN CLASSROOM VIEWED FROM TOP
CORRIDOORS AND CLASSROOMS
NDOOR STAIRS VIEWED FROM BALCONIES

ADMIN

DEAN S OFF CE

STUD OS

OPEN CLASS

RESEARCH LABS

THEORY CLASSROOMS

EXHIBIT ON SPACE

LIBRARY TOILETS

PRODUCT DESIGN STUUDIOS

THEORY CLASSROOMS

TEXTILE STUD OS

MATER AL LABS

RESEARCH LABS

SEM ENCLOSED CLASSROOMS

WORK STAFF ROOMS

L BRARY

TOILETS

STUDIOS

THEORY CLASSROOMS

COMPUTER LAB

CLIMATOLOGY LAB

MATER AL LAB

NASA ROOM

WORKSHOP SPACE TOILETS

SOCIAL HOUSING FOR FISHERMEN COMMUNITY

Where the sea meets the shore, stories are cast before nets Here, home is not a shelter-it is rhythm, salt, memory The fishermen don’t return to walls-they return to each other ❞

This community housing project is designed to be more than just shelter it supports the everyday life and needs of the fishermen community. It focuses on affordability, self-built homes, and creating a sense of belonging. The aim is to build a connected, inclusive settlement shaped by the people who live there. •epigraph

MASTERPLAN

LIVING UNITS

HOUSING TYPOLOGIES

LIVING KITCHEN BEDROOM TOILET

MULTIPURPOSE -ROOM

LIVING KITCHEN BEDROOM BACKYARD TOILET

LIVING KITCHEN

BACKYARD TOILET BALCONY

BEDROOM 1

BEDROOM 2

LIVING KITCHEN BEDROOM 1 BEDROOM 2 TOILET

INTERIOR DESIGN FOOD COURT

•epigraph

More than just a place to eat, the food court is a vibrant hub designed for connection and shared experiences. Its accessible, comfortable, and flexible layout welcomes everyone, encouraging social interaction through open seating and flowing spaces. Natural materials, local textures, and sustainable elements create an inviting atmosphere perfect for relaxing, enjoying a meal, and connecting with others.

SPATIAL REQUIREMENTS AND AREA ANALYSIS

SEATING LAYOUT

- DINING AREA (65-75 M )2

- BAR/LOUNGE AREA (20-30 M )2

- TOTAL (85-105 M ) 2

KITCHEN AND SERVICE AREA

- KITCHEN (30-40 M )2

- SERVICE COUNTER/BAR (10-15 M )2

- TOTAL (40-55M )2

ACCESSIBILITY AND CIRCULATION

- AISLE WIDTH (0.9-1.2 M )2

RESTROOMS - MEN S RESTROOM (5-7 M )2 - WOMEN'S RESTROOM (5-7 M )2 - TOTAL (10-15 M )2 ENTRY AND WAITING AREA (10-15 M )2

6.STORAGE AND UTILITY - DRY STORAGE (10-15 M )2 - REFRIGERATION (10-15 M )2 - UTILITY AREA (20-30 M )2 - TOTAL (40-60 M )2

GROUND FLOOR PLAN

FLOORING

TERRAZZO ANTI SLIPPERY
VINYL SHEET FLOORING
INDOOR LAWN BED
PATTERN TILES
BRICK FLOOR TILE
WOODEN LAMINTES

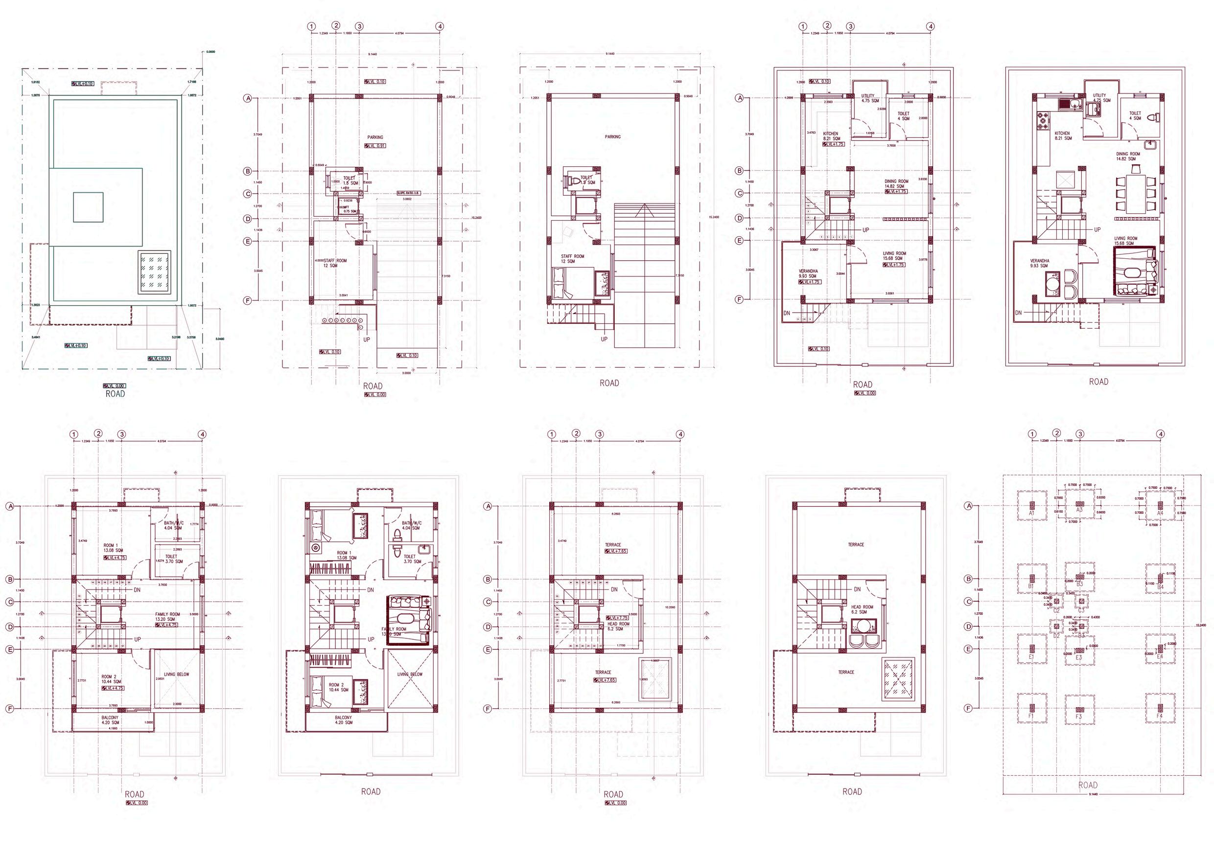
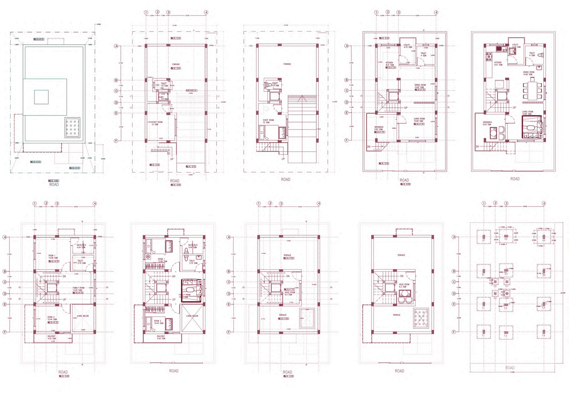
WORKING DRAWINGS

RESIDENTIAL HOUSE

NASA | PHOTOGRAPHY

This proposal reimagines the historic Durgadbail Market as a culturally rooted, community-driven urban space that blends tradition, livelihood, and architecture to revive the everyday spirit of local life.

TRAVEL DIARIES...

Stillunfoldng.Stllbecomng.Stllburning...

Email: kanekalsunidhi@gmail.com

Phone: 9108141339 Instagram: sunidhi _ kanekal

Turn static files into dynamic content formats.

Create a flipbook
Issuu converts static files into: digital portfolios, online yearbooks, online catalogs, digital photo albums and more. Sign up and create your flipbook.