

![]()



























MUNICIPAL ADDRESS
4,8 FREEPORT LD NE, CALGARY, AB
USE DESIGNATION
I-C INDUSTRIAL-COMMERCIAL
D-C DIRECT CONTROL
BUILDING USES
OFFICE (PERMITTED)
VEHICLE STORAGE (PASSENGER)
SITE AREA: 16,149m2
FAR (Floor Area Ratio)
MAXIMUM ALLOWED: 1
PROVIDED: 0.15
BUILDING HEIGHT (ALLOWABLE: 12m)
PROVIDED: BUILDING A - 11m
BUILDING B - 3m
GFA (Gross Floor Area)
BUILDING A: 1,214m2
BUILDING B (2X): 638m2





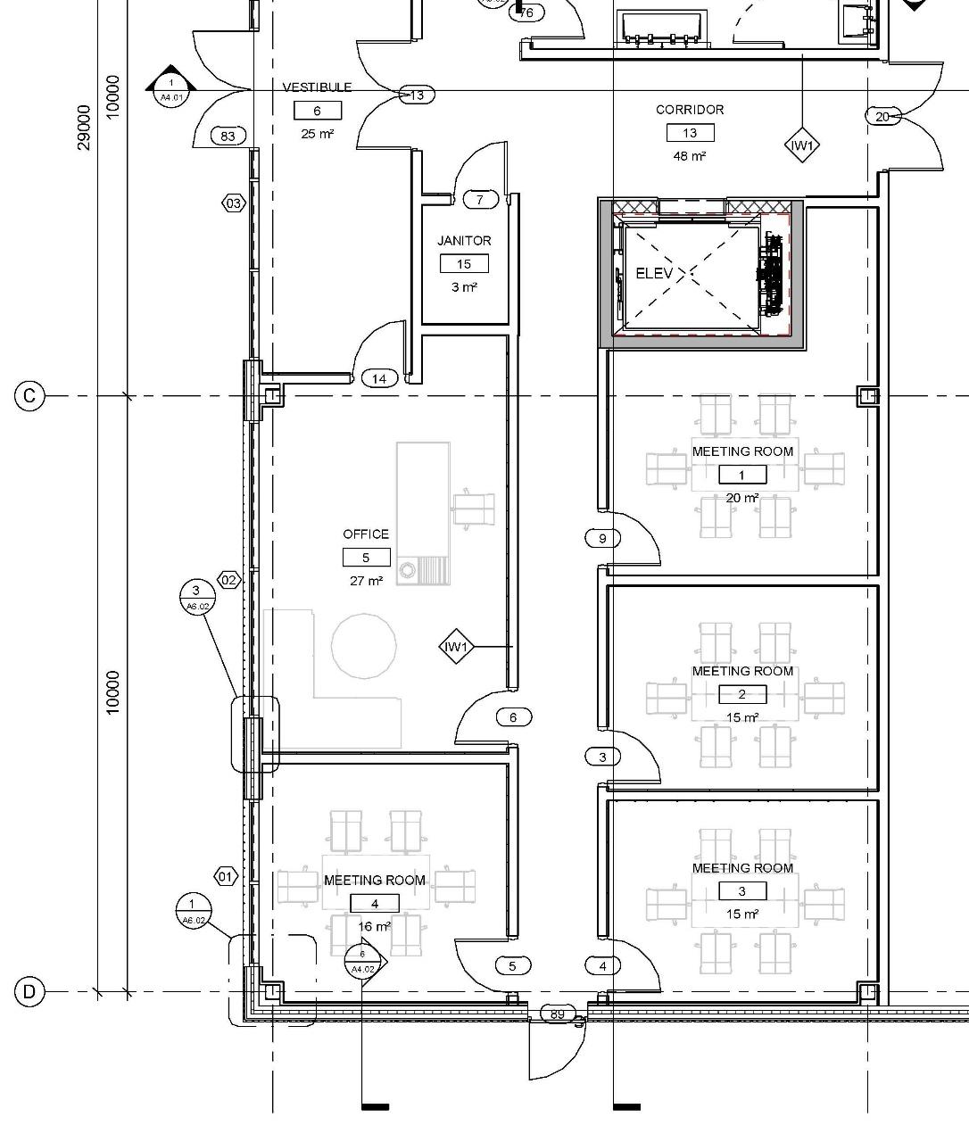
BUILDING C - NORTH


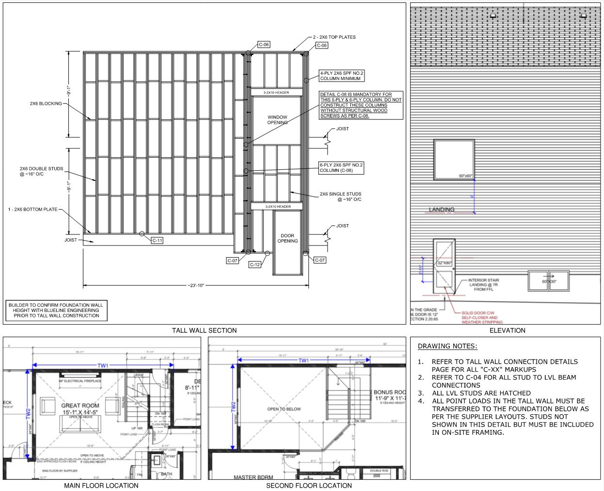
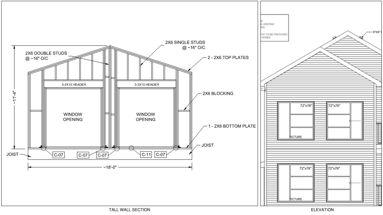
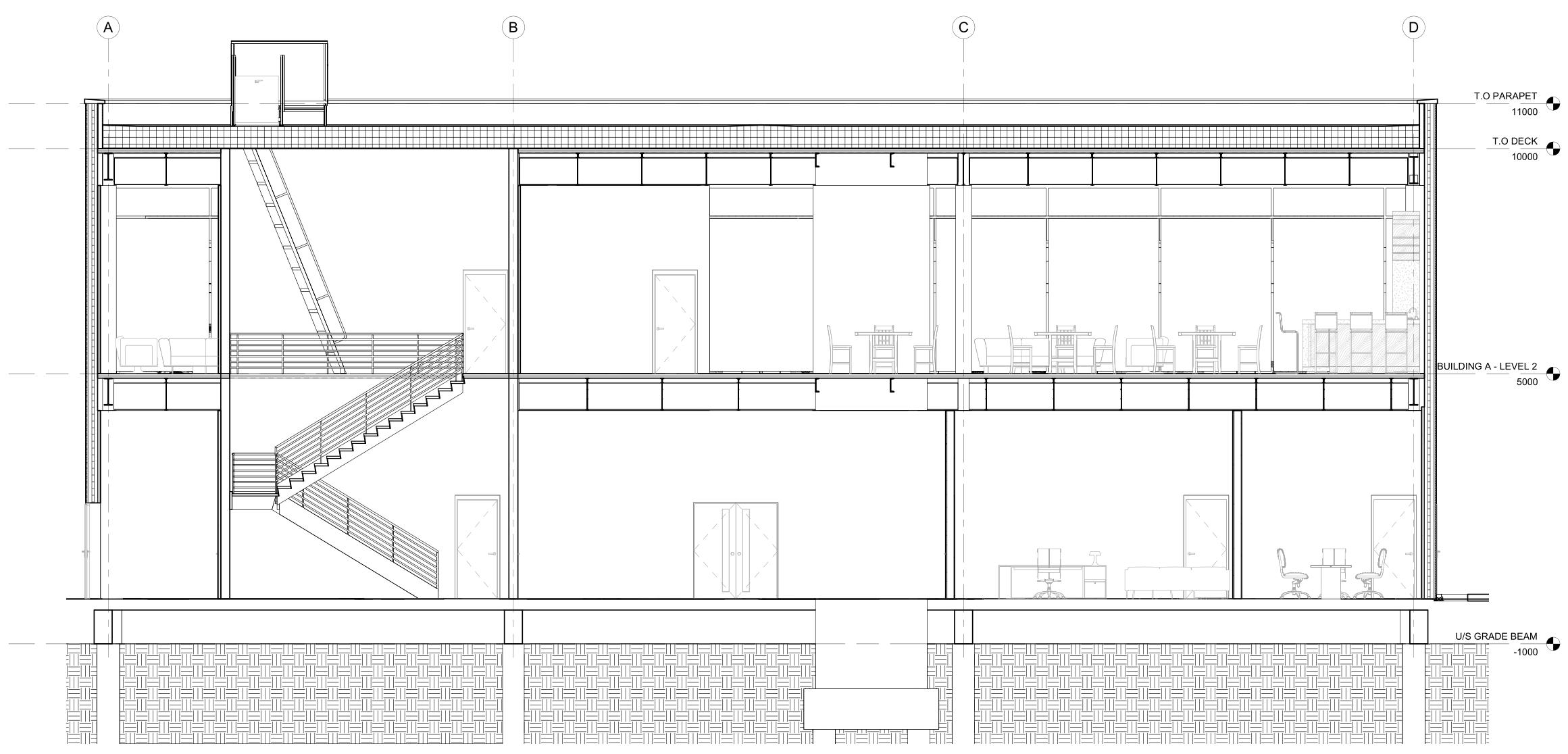
BUILDING A - SECTION 1

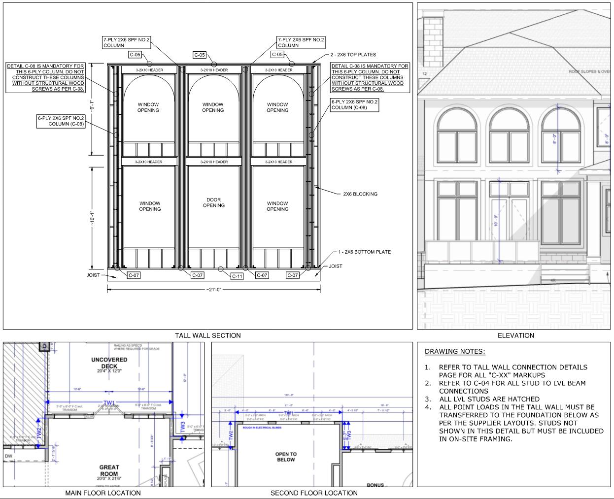
BUILDING A - SECTION 2

STAIR - ENLARGED 3D VIEW








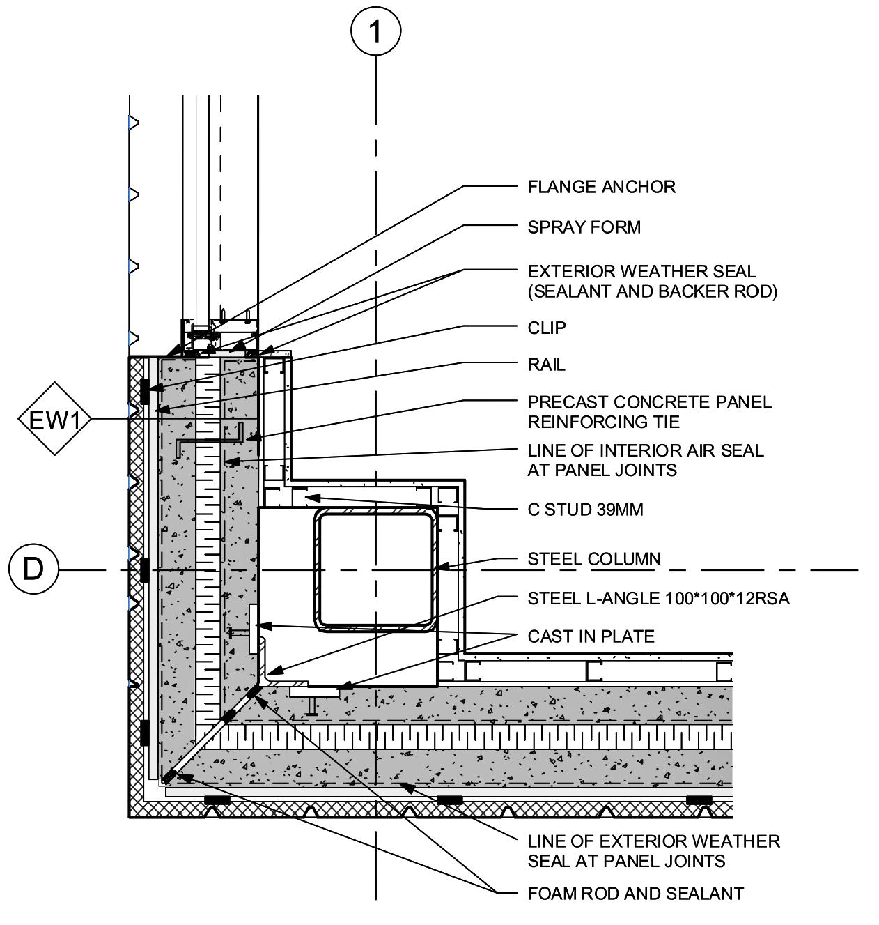
CORNER PLAN DETAIL (PRECAST CONCRETE)

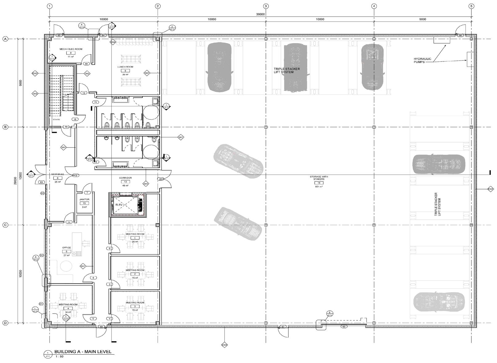
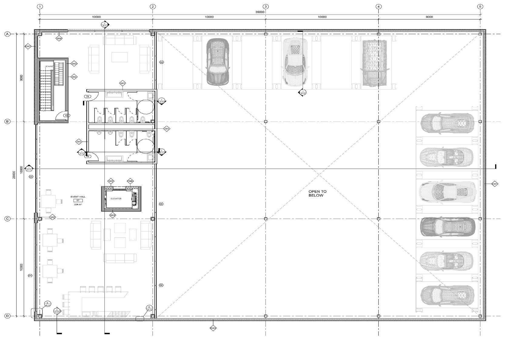
BUILDING A - MAIN LEVEL



OVERHEAD DOOR TO PRECAST DETAIL


BENEFITS OF PRECAST CONCRETE
SAVING TIME: Because the parts being used come already created.
UNIFORMITY: Because the concrete components were put together in a factory using the same moulds, over and over, it is fairly easy to maintain uniformity among the precast concrete components.
HIGH-QUALITY PRODUCTS: Precast Concrete products are monitored easily and quality checked before going to the job site.
SAVING MONEY: Using precast concrete can help to save money by reducing the time spent on a project
Efficiency: You can simply put the pieces where they are needed and move to the next stage of your project













• EXPOSING BUILDING FACE


• EXPOSING BUILDING FACE

• FIRE RATING AND MEANS OF EGRESS


