

INTERIOR DESIGN PORTFO L IO
STUDIO APARTMENT
INTRODUCTION STUDIO APARTMENT
Minimalist Harmony






Concept Style
It is a studio apartment house with a minimalist, modern interior design where the black color and tones are in harmony with the wood material and the balance is established with the

User Analysis


It will be designed for the software developer who loves black. He does not sleep much due to professional difficulties, but he likes sleep. He likes to spend all his tiredness by spending time in the kitchen. He has adopted the minimalist concept of life and is interested in modern designs. He also wants this studio apartment to be designed as his preferred place to relax.





Peaceful CLIENT



Programme Analysis
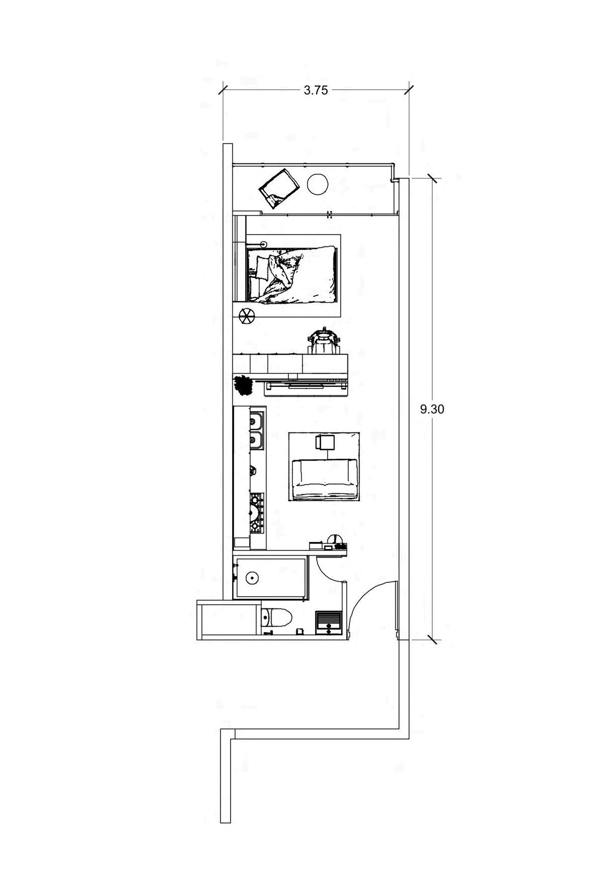
This plan, which consists of a total area of 30 square meters and a balcony area of 4.25 square meters and , includes a kitchen pantry , living space ,work space , bedroom, wc / bathroom.

Software Developer
A software developer, also known as a computer programmer, creates computer programs. They design, program, build, deploy, and maintain software. Software developersalsohelpbuildsoftwaresystemsthatpowernetworksanddevices.


‘HOPE’ LAVAN’S STUDIO APARTMENT / MMGS ARCHITECTS


COLOMBO, SRI LANKA
Architects: MMGS ARCHITECTS
Area: 45 m²
Year: 2017


This elegant and refined studio apartment conceals quite a ramshackle past. Located in the rundown nook of a chaotic looking housing scheme near Beira Lake in Sri Lanka’s commercial capital Colombo, the original flat was found in utter disrepair with oozing sewers, water clogs, broken down doors and blackened walls. The ‘salvation’ of this flat signifies Hope to the deteriorating settlement.





BOARD



Colorscheme

















Black & White





WORK SPACE & BED
WORK SPACE & BED





KITCHEN PANTRY KITCHEN PANTRY












SECTION B-B’
SECTION B-B’
FURNITURE











MATERIALS
GLOSSY TILE MARBEL
Glossy marble tiles can also be used to create a stunning accent wall in any room. They're a great way to add a touch of glamour and sophistication







WOODEN FLOORING
Wood adds warmth, character, and elegance to any room. Its natural variations in color and grain create auniqueandtimelesslook.(15mm)






WALLPAPERS
Wallpaper can be a great way to express personal style and add some pizzazz to a room. It can be used to create a variety of moods and atmospheres, from elegant and sophisticatedtofunandwhimsical.
COLOR PALETTE
RENDERED VIEWS






RENDERED VIEWS




