Portfolio 2021-2024

Page 1


SUMAMAH JAVED

Portfolio 2021-2024

IHug Community Centre 2022

Often designing big spaces we forget that while these spaces are "public" they are isolated in many ways especially since the pandemic hit. My community centre's synergistic design revolves around the idea of transition, and typography while balancing the quiet and public spaces.

Each program is placed strategically in the interconnected U- shape to provide maximum exposure to the visitors. The dome serves as the "synergistic" feature of my design where all four programs are connected together hence showcasing the idea of bringing people together. The fountain pool is another important feature in my design which sits outside the library to make a soothing effect on the environment.

This mirrored "U- shaped" design, not only plays with the typography in design creating an elongated space for the courtyard and the fountain pool, but it also leans into the transition between the public and private nature of my community centre.

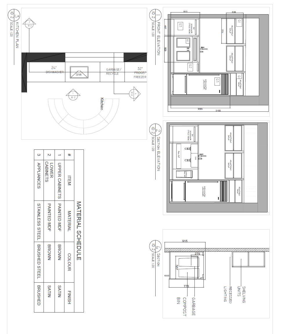
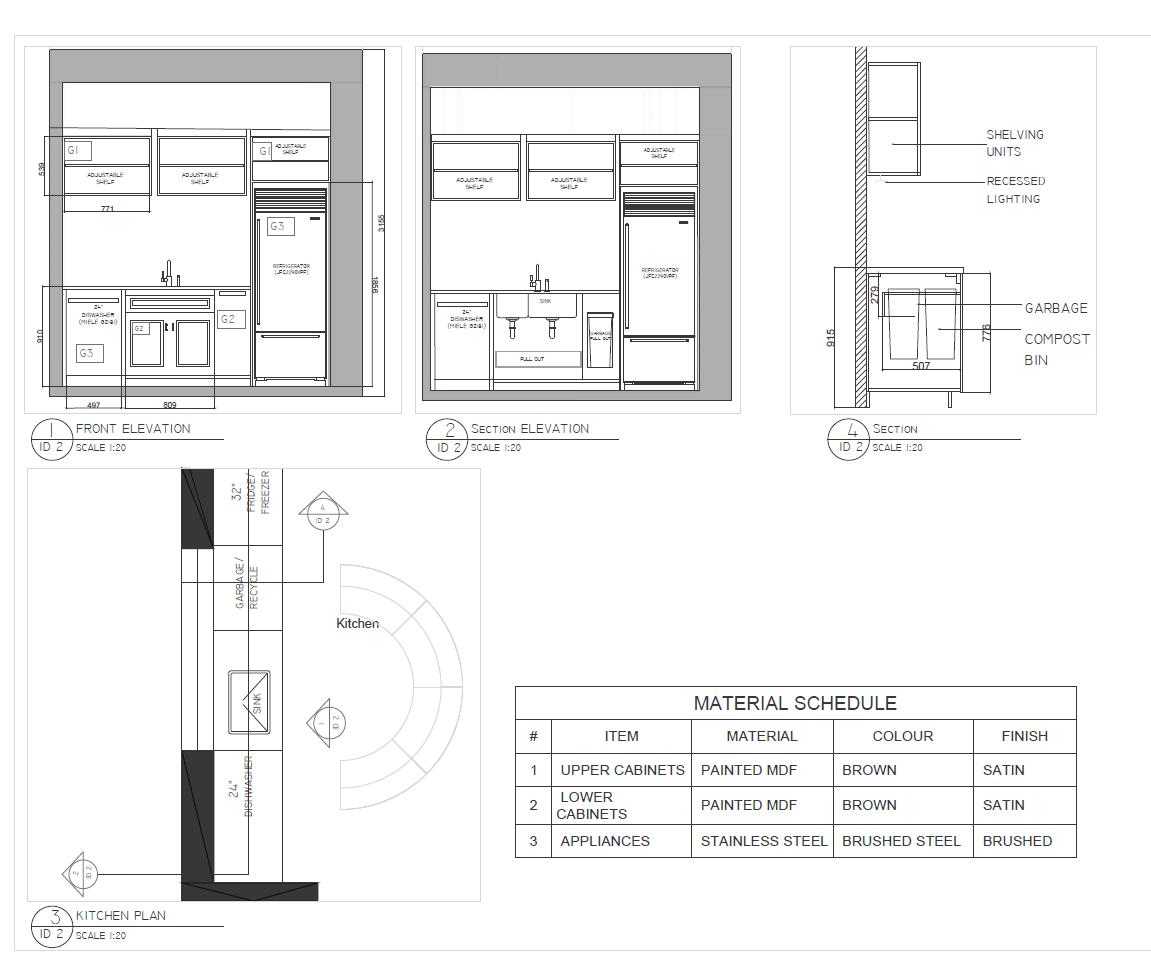
The space is designed for a client who likes to experiment with coffee. The design allows the user to enjoy the coffee and observe the process of making one at the same time, hence making it an experience by encouraging one to use the sense of smell, taste and sight at the same time.

Auxiliary Dwelling Unit design 2021
Workspace
Medium: digital
Medium: Micron pen on 11 x 14 inch vellum
Medium: Photoshop

III

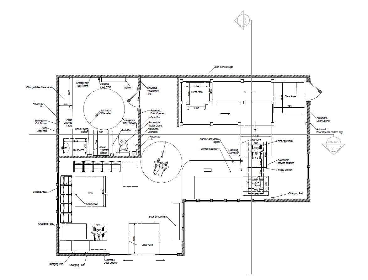
The Library Lobby, an essential public facility, is committed to serving the diverse needs of our community. This accessibility narrative focuses on inclusivity and adherence to accessibility requirements. The design aligns with the Ontario Building Code (OBC), and the Design of Public Spaces (DOPS) Standards, and incorporates best practices in accessibility, integrating the lived experiences of persons with disabilities.

ENSCAPE RENDER

SCAPE RENDER

ENSCAPE RENDER

IV

Habitat Home 2023

The design imitates the metaphor of a Camera by focusing light from the scene and capturing the beautiful view of the path leading down to the grenadier pond.

Designed to accommodate the needs of a student who commutes from high park to OCAD university in downtown.

Medium: Indiana Ink on 7x7 inch paper
Medium: Indiana Ink on 7x 11 inch paper

VAMALGAMATE OASIS 2024

The project ethos is a social enterprise that redefines community that goes beyond traditional hospitality. By incorporating a garden and greenhouse, we bring together hotel guests and Torontonians, integrating guests into authentic Toronto culture while providing locals with a 'farmers market' close to home . With Toronto being the most multicultural city in the world, we pay homage to all the beautiful cultures that make up our city. Our goal in designing the hotel is to blur the lines that divide us and create a collection of the beauty of each culture, thus forming a new culture/community that unites us all as humans.At the core of our concept lies threshold conditions – the transformative moment when guests step into a realm of new experiences and sensations.

TYPOFORMATION 2021

This project went through three transformations: erode, remove and score. Erosion can be observed on the solid mass of balsa wood, carved using a chisel which almost makes it look like fossil remains, revealing its natural wood colour. A thin wall between the curve and the solid balsa wood has been “removed” to provide the viewer with an interior view of the curve where various slabs support the structure and form a symmetrical balance along the curve. The curve of the letter “D” is “scored” vertically from the inside which not only aids in bending the curve but also gives a visually pleasing view when observed from the outside.

Medium: Balsa wood and matt board
10'' x 10'' x 8'' mounted on 11x 13 inch plywood

Exploring linear construction through recycled linear material like wire, thread, and paper clips challenging the designer to avoid using glue and rather coming up with other environmentally friendly joinery methods.

Linear Construction 2021

VIII

Bronze Sculpture 2023

The idea for making this piece comes from my great passion of reading. This on in particular take inspiration from the game of Quidditch in J.K Rowling’s books of Harry Potter. It follows the idea of "retaining after getting scattered" which can be observed in every step of creating it.

Techniques Used:

Ceramic Shell Mold

Plasma Cutting

Metal finishing

Patina Application

Patina Weld Plasma Cutting

PHOTOGRAPHY SERIES:

LIFE 2022

Medium: digital

Taken using Canon EOS

These photographs explore beauty through the earth by forming a regenerative journey between youthfulness and old age.

Painting is an extension of exploring rejuvenation.

Mixed media on canvas 2022 11 x 11 inches

PROJECTS BY SUMAMAH JAVED

Let's work together

Turn static files into dynamic content formats.

Create a flipbook
Issuu converts static files into: digital portfolios, online yearbooks, online catalogs, digital photo albums and more. Sign up and create your flipbook.