Architektur Portfolio

Page 1

PORTFOLIO
KAYAN
Sultan
2019-2023
INHALT 01 02 03 04 05 06 07 08 LEHRGEBÄUDE TECHNISCHES UNIVERSITÄT WIEN DER BLICK AUF DIE STADT NEUE BLICK WINKEL <> CO+ THE GREEN CAMPUS Der Anger Kellergasse Heiligenbrunn Objekt Nr. : 130

LEHRGEBÄUDE TECHNISCHES UNIVERSITÄT WIEN

Individuelles Projekt

TU WIEN
Lehrgebäude Ort:
SS2019
Museum
Wien
Projekt
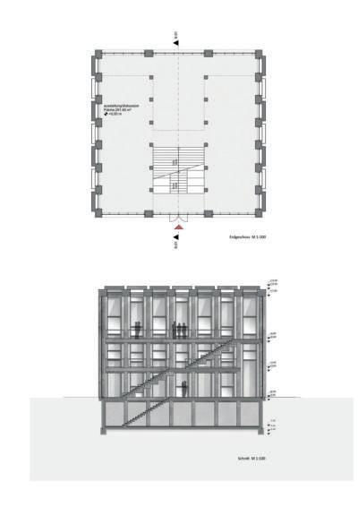
DER BLICK AUF DIE STADT Unterirdisches
Ort:
WW2019 Individuelles

NEUE BLICK WINKEL

Ort: Wien

SS2020

Gruppenprojekt mit Gabriel Bittmann und Valentina Gruber

Museum
Ansicht Süd-West Ansicht Nord-Ost Blickachse Ausstellungsbegäude
±0,00 ±0,00 -2,00 -1,00 ±0,00 ±0,00 -2,00 +4,00 +4,00 -1,00 ±0,00

geschosszone im gesamten Entwurf öffentlich und somit woh

Wohnbau

Ort: Barcelona

anderenBlickwinkel

SS2020

Gruppenprojekt mit Cvetelina Ivanova, Nesma Shehata, Johanna Hämmerle und Danery Mejia Rivera

schaffen, in

traktionen findet jede Altersgruppe im Erdgeschoss zusammen.

Aktivitäten unternommen werden. So konnten wir das Öffent

Atmosphäre

Mein Projekt
<><>

Wohnfläche: 78,41 m²

Terrasse: 16,97 m²

A Typ WohnungB Typ Wohnung

Balkon: 18,38 m²

C Typ Wohnung

Wohnfläche: 65,74 m²

Balkon: 7,53 m²

D Typ Wohnung

GSEducationalVersion S-2S-2
GSEducationalVersion

Städtebau

Ort: Wien

WW2020

Gruppenprojekt mit Nesma Shehata

Wohnung Büro und Studio

Halle, Handelsgeschäft, Wohnung, Büro und Studio

Stadtwald

Parkplatz

Wohnung

Büro und studio

Handelsgeschäft

Multifunktionale Halle

Freiraumgestaltung

Gesamtmodell

THE GREEN CAMPUS

Grün-Terrasse Grün-Terrasse Grün-Terrasse 1 2 5 5 A B B 4 7 8 9 10 A 3 6 + 6,50 8 1 2 3 4 5 7 6 S-BAHN +- 0,00 +- 0,00 B A A
Lehrgebäude Ort: Wien WW2020 Gruppenprojekt mit Nesma Shehata und Hieba Elmeana Fitness Seminarraum Hörsaal Lager Bibliothek Lernraum Cafe + Küche 1.OG Grundrisse M 1:250 Garderobe Technik 10 Mediathek+Arbeitsbereich + 6,50 1 2 3 4 5 6 7 8 Restaurant Lager Fahrradabstellplatz Archiv Müllraum Parkplatz Raumlufttechnik/ Technik Werkstatt
Fachschaft + 12,00 A B A B 2 2.OG Kinderbetreunung Hörsaal Lager 1 2 3 4 5 6 7 Garderobe Mediathek+Arbeitsbereich 6 4 74 4 Mensa + 12,00 1 2 3 55 5 3.OG Grundrisse M 1:250 A Lesebereich+Lernbereich Lernbereich Ausstellung + Projektsammlung Lager 1 2 3 4 5 6 7 Garderobe Veranstaltungssaal Übungsräume + Projekträume 44 6 7 B B + 17,00 + 17,00 A

ImErdgeschosssinddieMarktstände,Jugendzentrum und Veranstaltungsraum vorhanden. Die Zusatzfunktionen und der weitergeleitetenVeranstaltungsraumsindimObergeschoss geplant. Die Cluster sind so angeordnet dass in einem Cluster vier Marktstände untergebracht werden können. Im Oberengeschoss sind Terrassen und Durchgänge vorhanden, die durch die Verschiebung und der Versetzung von der Baukörper entstehen. Die Terrassen und die Durchgänge ermöglichen im Obergeschoss eine durchlaufende Stadtebene, die den Erdgeschoss widerspiegelt. Durch die Verschiebung nach außen, indem die Durchgänge entstehen, werden im Obergeschoss wegen Durchbrüche kleine Gäste erzeugt. Damit es eine Blickbeziehung zwischen Obergeschoss und Erdgeschoss entsteht.

DER ANGER

ENTWERFEN BACHELOR

Wiener Märkte

Ort: Wien

SS2021

Individuelles Projekt

TragwerkskonstruktioneinesClustersFunktionsdarstellungeinesClusters

Funktionsdarstellung eines Clusters

MarktstandDer Stand von Vier Marktstände in Beziehung zueinander Eine weitere Marktstandanordnung Erschließung
Stadtebene
OG
OG;
OG,
EG
auf der
im
Versetzte Baukörper im
Aufenthaltsräume im
Schutzbereiche im
Die Verschiebung, die Erzeugung der Aufenthaltsräume in der Stadt Kombination der Clustern; Die größere Aufenthaltsräume auf der Stadtebene Der Anger im Grundriss Der Anger; die Blickbeziehung zwischen der Straßen
Dachsituation mit Pergola
Die Erschließung im Gesamtbild; Treppen, Aufzüge und Brücken (mit Aufenthaltsräume)

Die Marktstände sind so geplant, dass eine mehr seitige Verkaufsfläche um den Marktstand wegen der in der Mitte gelegenen Lagerräume entsteht. Im Erdgeschoss sind die Marktstände nach entweder drei oder zwei Richtungen orientiert. Im Obergeschoss ist ein Spiel zwischen Durchsichtig und Undurchsichtig oder zwischen Offen und Geschlossen. Die Brücken in der Mitte im Obergeschoss sind nicht nur für die Verbindung der anderen Cluster geplant, sondern auch für den Aufenthalt geeignet.

Funktionsaxonometrie

Marktstand

WC

Müllraum

Marktamt

Jugendzentrum

Veranstaltungsraum

Bücherei

Veränderbarer Raum

Studio

Restaurant + Cafe

Kursraum

Erschließung

Decke, 1. OG

F:28,89 F:31,05 F:32,78 F:30,49 m F:30,78 F:29,16 F:36,18 m F:38,19 F:32,49 m F:30,78 F:29,16 F:30,78 F:38,19 F:36,18 F:29,16 F:30,78 m F:32,78 m F:31,05 m F:34,56 m F:36,48 m F:30,78 m F:29,16 m F:30,78 m F:32,49 191,16 m F: 177,76 m F:34,77 m F:36,78 F:28,14 F:29,76 0510 EG M 1:500
F:78,39 F:63,59 m F:81,14 F: 104,58 m F:69,68 F:59,28 F:83,08 F:24,23 m F:22,95 F:26,13 F:21,06 m F:21,06 F:26,13 F:21,06 m F:22,23 m F:37,73 m F:26,16 F:32,34 F:22,68 m F:26,88 F:23,94 F:20,52 m F:19,44 F:46,09 m F:34,56 m F:40,04 F:28,08 106,26 0510 1. OG M 1:500
Schnitt Perspektive 1 M 1: 500 Schnitt Perspektive 2 M 1:500
Axonometrie, städtebauliche Situation

Vernakuläre

Architektur

Objekt Analyse

Ort: Burgenland

SS2022

Individuelles Projekt

SULTAN KAYAN 2019-2023

Turn static files into dynamic content formats.

Create a flipbook
Issuu converts static files into: digital portfolios, online yearbooks, online catalogs, digital photo albums and more. Sign up and create your flipbook.