

INTERIOR DESIGN PORTFOLIO
SUKINA A. ALGHERYAFI
SELECTED PROJECTS 2022 -
PRESENT

MADANA Architects
EDUCATION SOFTWARE SKILLS
Imam Abdulrahman
Bin Faisal University
2017 - 2022
Bachelor of interior design engineering
GPA: 4.51/5
STEP: 88/100
EXPERIENCE
Spaces X Places
May 2024 - April 2025
Interior Designer
Oct 2023 - Feb 2024
Lead interior design tasks that include conceptual design, interior design, 3D modeling, bill of quantities (BoQ) and shop drawings. | 3Ds Max | Auto CAD
Interior Design trainee/ Interior Designer
- Assisting the lead interior designer for a month as a trainee.
- On-the-job Training (TAMHEER): complete interior design tasks that include 3d modeling, drafting and meeting clients.
Integrated Lines Office
Jun 2022 - Aug 2022
Interior Design trainee
Interior architecture internship program at rate of 400 hours.
Tarmeem Charaty
2021
Cost estimator
Cost management and condition reports for houses renovation.
ANALOG SKILLS
Revit | Twin motion | V-ray render | Photoshop | Time management | Layout planning | Good communication | Sketching
LANGUAGES
ENGLISH ADVANCED
| InDesign | Corona render | Microsoft office | Enscape render ARABIC NATIVE
CONTENTS
both academic and real life projects in sections are presented in descending order from the most recent project (click on the page number to go directly to the project).
REAL LIFE PROJECTS
CONTOMPORARY DESIGN PAGE 1
CONTEMPORARY PRIVATE OFFICE PAGE 7 4 ZONES


SBC TV AND RADIO STATION PAGE 31

MINIMAL DIWANIYAH PAGE 10 DUPLEX VILLA PAGE 17 BALANCE BIKES PAGE 26

CONTEMPORARY LIVING ROOM PAGE 13



TECHNICAL DRAWINGS PAGE 37 ARTWORKS PAGE 43
01 02 05 03 04 06 09

Spaces x places | 4 zones Contemporary design | Sukina A. AlGheryafi | 2025

4 ZONES CONTEMPORARY
DESIGN
Residential
2025 - Spaces x Places
This project showcases different four spaces located in the same villa which include: entrance + majlis, living area with open kitchen and a bedroom.
The interior follows a contemporary style design incorporating neutral warm tones, walnut wood, Crema Marfil marble and black stainless steel accessories while maintaining minimal ceilings and floors with emphasis on furniture design.
Location:
Saudi Arabia - Eastern Province - Dammam
Spaces x places | 4 zones Contemporary design | Sukina A. AlGheryafi | 2025


Entrance+majlis: for the apartment located in the second floor, warm tones, walnut wood, marble and clean lines shape a refined space anchored by key features: a movable partition ensuring privacy between entrance and majlis, custom TV unit, chandelier, and elegant central wall design in addition to simple floor and ceilings enhancing furniture and lighting.
Spaces x places | 4 zones Contemporary design | Sukina A. AlGheryafi | 2025



Spaces x places | 4 zones Contemporary design | Sukina A.

Living area: as a part of another apartment, this open living and kitchen area feels calm and connected, with soft colors and clean lines throughout. The kitchen blends quietly into the space, while the lounge zone adds warmth through cozy furniture and layered lighting. A softly lit feature wall anchors the living area, adding depth and a subtle focal point.


AlGheryafi
Spaces x places | 4 zones Contemporary design | Sukina A. AlGheryafi | 2025

Seating area + layout plan 5
Bedroom: blending clean lines with warm textures and featuring a layered headboard wall, built-in workspace and vanity for quiet functionality. Soft lighting, natural wood, and neutral tones create a calm, retreat.
Spaces x places | 4 zones Contemporary design | Sukina A. AlGheryafi | 2025



Spaces x places | Contemporary office | Sukina A. AlGheryafi | 2024

CONTEMPORARY PRIVATE
OFFICE
Residential
2024 - Spaces x Places
The presented design is a private office room designed as a part of a residential villa.
The layout is focusing on providing a calm retreat for light office work by arranging: a desk, seating chair and mini copy station/shelf designed in warm neutral tones with oak wood as the main design element.
Location: Saudi Arabia - Eastern Province - Ajyal 02
Spaces x places | Contemporary office | Sukina A. AlGheryafi | 2024


Furniture layout Copy station
Spaces x places | Contemporary office | Sukina A. AlGheryafi | 2024

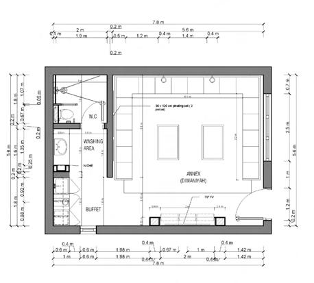
Spaces x places | Minimal diwaniyah | Sukina A. AlGheryafi | 2024

Location:
Saudi Arabia - Eastern Province - Ajyal 02
MINIMAL DIWANIYAH
Residential 2024 - Spaces x Places
A modern minimal designed DIWANIYAH with elevated floor seating was requested by the client.
Located in the external annex, this diwaniyah includes: living area, coffee corner and a bathroom.
Seating and TV area are the main design focus by including limestone cladding,wall scones lighting and a TV unit to provide a formal yet friendly atmosphere.
Spaces x places | Minimal diwaniyah | Sukina A. AlGheryafi | 2024


Entrance point of view
Spaces x places | Minimal diwaniyah | Sukina A. AlGheryafi | 2024





Spaces x places | Contemporary Living Room |
Sukina A. AlGheryafi | 2024

CONTEMPORARY LIVING ROOM
Residential
2024 - Spaces x Places
This living room functions as family seating mainly and cater for guests when needed overlooking 2 windows views with access to kitchen (hidden door) - dining room (mahogany sliding door) and staircase. The proposed design emphasizes on combining existing elements (mahogany wood sliding door - black marble stairs) with warmer tones and wood walls. Also, a coffee corner, side bench and abaya closet were included as requested by the client.
Location:
Saudi Arabia - Eastern Province - Khobar
Spaces x places | Contemporary Living Room | Sukina A. AlGheryafi | 2024


Furniture Layout Full view
Spaces x places | Contemporary Living Room | Sukina A. AlGheryafi | 2024



Sketch Ideation
Spaces x places | Contemporary Living Room | Sukina A. AlGheryafi | 2024



TV unit + coffee corner and side bench
Abaya Closet
|
villa | Sukina A. AlGheryafi | 2023

Duplex villa
Residential
2023- MADANA architects
The project showcases an open living area on the ground floor and a master bedroom suite on the first floor.
The design approach for this villa duplex interior balances modern minimalism with functional luxury utilizing white surfaces to create an open and airy atmosphere. Beech wood accents are thoughtfully integrated, providing warmth and texture. Green is introduced as an accent color in selected statement pieces providing vibrancy and life.
Location:
Saudi Arabia - Eastern Province - Qatif
MADANA architects
Duplex

Living Area: adjacent to the kitchen, the casual seating area features a modern TV unit, offering a relaxed space for everyday living. In contrast, the formal seating area functions as a refined guest room, providing a sophisticated yet comfortable environment for hosting visitors. The dining area, strategically positioned to enhance flow, is characterized by its elegant simplicity and serves as a focal point for both casual family meals and formal gatherings.
MADANA architects | Duplex villa | Sukina A. AlGheryafi | 2023

Living area


MADANA architects | Duplex villa | Sukina A. AlGheryafi | 2023



Dining area
MADANA architects | Duplex villa | Sukina A. AlGheryafi | 2023


Seating area

MADANA architects | Duplex villa | Sukina A. AlGheryafi | 2023

Master bedroom suite:
The secluded bedroom area is designed as a personal retreat, with a serene ambiance fostered by a minimalist approach.
The entrance foyer sets a welcoming tone, leading to a spacious walk-in closet that blends functionality with a streamlined aesthetic. The bathroom features clean lines and white surfaces, further enhanced by subtle touches of beech wood that add warmth and sophistication.
M.BEDROOM
WALK-IN CLOSET
M.BATH
TERRACE
MADANA architects | Duplex villa | Sukina A. AlGheryafi | 2023

Bedroom


MADANA architects | Duplex villa | Sukina A. AlGheryafi | 2023



Walk in closet
MADANA architects | Duplex villa | Sukina A. AlGheryafi | 2023




MADANA architects | Duplex villa | Sukina A. AlGheryafi | 2023
Integrated Lines Office | Balance Bikes (retail store) | Sukina A. AlGheryafi | 2022

BALANCE BIKES
Retail Store (Conceptional design)
2022- Integrated Lines Office
Balance Bikes is a conceptional store specialized in sport biking gears, fit ware, spare parts in addition to providing bikes as the main product for merchandising and rental.
The concept is based on Biking as a balancing activity.
Location:
Saudi Arabia - Eastern Province - Qatif
Integrated Lines Office | Balance Bikes (retail store) | Sukina A. AlGheryafi | 2022

Integrated Lines Office | Balance Bikes (retail store) | Sukina A. AlGheryafi | 2022




Integrated Lines Office | Balance Bikes (retail store) | Sukina A. AlGheryafi | 2022

Entrance
Industrial style = athletic + energetic
Graffiti = street simulation + wood


Greenery = casualness
Mezzanine
Integrated Lines Office | Balance Bikes (retail store) | Sukina A. AlGheryafi | 2022
1
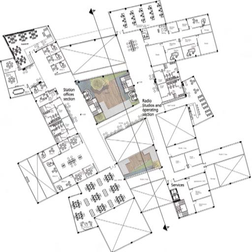
IAU | Design Studio 10 | SBC TV and Radio Station | Sukina A. AlGheryafi | 2022

SBC TV AND RADIO STATION
Headquarters and Studios 2022- Design studio 10
SBC (Saudi Broadcasting Centre) is a free-to-air, formal and governmental TV channel and part of multiple radio and TV stations run by The Saudi Broadcasting Authority (SBA). SBC channel is specialized in airing variety shows and dramas.
The concept is about providing a new media platform that match the country’s new futuristic vision.
Location:
Saudi Arabia - Riyadh - northern Qirawan



IAU | Design Studio 10 | SBC TV and Radio Station | Sukina A. AlGheryafi | 2022
| Design Studio 10 | SBC TV and Radio Station | Sukina A.


First floor
Second floor
AlGheryafi | 2022


IAU | Design Studio 10 | SBC TV and Radio Station | Sukina A. AlGheryafi | 2022




IAU | Design Studio 10 | SBC TV and Radio Station | Sukina A. AlGheryafi | 2022




A. AlGheryafi | 2022
TECHNICAL DRAWINGS
To view the academic production drawings portfolio click the link below. Various Projects | Technical drawings | Sukina A. AlGheryafi | 2022-2024 Academic production drawings: Click Here
The presented technical drawings belong to different real-life projects.


Various Projects | Technical drawings | Sukina A. AlGheryafi |
Furniture layouts
KITCHEN
Various Projects | Technical drawings | Sukina A. AlGheryafi | 2022-2024





















Interior elevations







Various Projects | Technical drawings | Sukina A. AlGheryafi | 2022-2024
Various Projects | Technical drawings | Sukina A. AlGheryafi |

Artwork | Sukina A. AlGheryafi | 2017 - Present
ARTWORK
Sketches and Paintings
2017 - Present
Ink, gouache, watercolors, pencils and colored pencils.






Artwork | Sukina A. AlGheryafi | 2017 - Present