Undergraduate Architecture Portfolio

Page 1

2019 2023

Sujata Dhakal

sujatadhakal32@gmail.com linkedin.com/in/sujata-dhakal/

Greetings! I am Sujata Dhakal, a fourth-year architecture student currently enrolled at Cosmos College of Management and Technology in Lalitpur, Nepal.

My design approach is mostly grounded on site analysis, research and understanding the context and users of the space. I ardently believe that each site possesses a unique narrative waiting to be unveiled and every architectural space serves as the catalyst for social change.

I am eagerly anticipating new experiences and embracing fresh opportunities for personal and professional growth as I continue my educational journey.

ACADEMICS

2019 – Present 2017 - 2019

Bachelor in Architecture, (Merit Scholar), Cosmos College of Management and Technology

+2 in Science, Sunrise English School

2017 Secondary Education Examination (SEE), Sunrise English School

ARCHITECTURE COMPETENCE

Sketching

EXPERIENCES

3D Modelmaking Research and Analysis Leadership Teamwork

2023- Unit Designee, 65th Year Annual Nasa Convention at Lovely Professional University.

2023- Initiated “Chirayu” – digital social project dedicated to promoting awareness of Nepalese architecture.

2023- Winner of ICT Tech Talk on “Blueprints, Digital Twin and BIM”

2022 - Co-published an article on “BIM-Building Information Management”

2022- 2023 - Quest fellow for Quest Fellowship Program on “Innovation & Entrepreneurship”

2021- 2022 - Communication Manager at Hult Prize at CCMT.

2022- Wedu fellow for “Introduction to Leadership”

2021 - Batch Co-ordinator for In-College Architectural Exhibition “Paila”

2020- 2022 - Completed 3d printing, solidwork, powerpoint workshop.

TECHNICAL SKILLS

CO N T E N T

COMMERCIAL COMPLEX CIVIC CENTER 01 02 03 PRIMARY SCHOOL 04 LIVE PROJECT 05 MISCELLANEOUS

COMMERCIALCOMPLEX

Project : Commercial Complex

Location : Teku, Kathmandu, Nepal

Programs: Retail, Offices, Civic Park, Restaurants, Swimming pool, Theatre

“A MIXED USED BUILDING AIMING TO AMALGAMANTE GREEN SPACE IN A HIGHLY DENSE AREA AS A RESPONSE TO GROWING POLLUTION AND REDUCE CARBON FOOTPRINT “

SITELACKING

GREEN SPACES

TRAFFIC CONGESTION, AIR POLLUTION, INADEQUATE INFRASTRUCTURE

OPPORTUNITIES

AMPLE PARKING SPACE ACCESSIBLE GREEN PARK PLANNED BUILT UP ONE STOP SOLUTION

01
Portfolio | Sujata Dhakal 6

Axis from roundabout of road

The central axis of reference emanates from the heart of the roundabout branching into two diverging pathways on either side, each serving distinctanduniquepurposes

Maximum Visibility area

The perspective, the vantage point connecting individuals with the surroundings, undergoes a process where mass is removed from the area to lessenitsvisualweight

This transformation unveils a spacious plaza with foodstallsstrategicallypositionedforthoseworking inoraroundnearbyoffices

Program's visibility from atrium

Unnobstructed visual linkage from the central atriumtoeveryfacetandpurposeofthespace

North and east glass facade for clear visibility betweenroadandtheretailstores

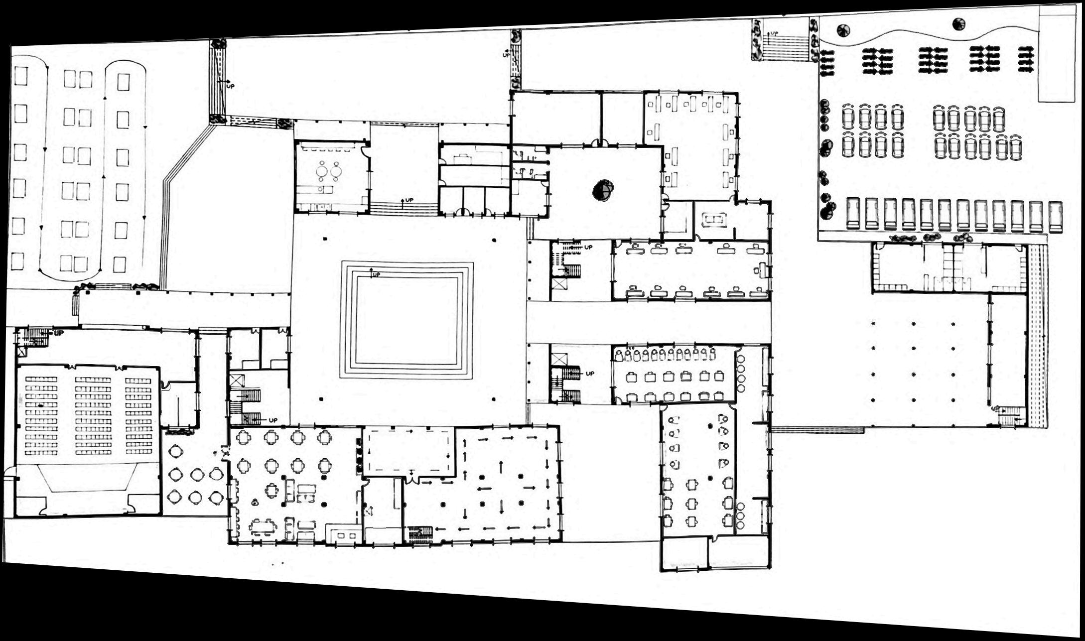
LOWERGROUNDFLOORPLAN

View Consideration

The parks designed to extend in NE and NW oientation, offering captivating vistas of iconic dmarks such as the Dharahara and Swayambhunath.

Food
and Drinks
DESIGNDEVELOPMENT
Rentable Area Service Area Outdoor Plaza TOTAL
SQ.M. RENTABLE
SERVICE
SQ.M
AREA: 2328.18
AREA: 1661.18 SQ.M,
AREA: 441
7 Portfolio | Sujata Dhakal

FIRSTFLOORPLAN

SECONDFLOORPLAN

THIRD FLOORPLAN

SECTIONATA-A’ SECTIONATB-B’
AREA: 2090.97 SQM. RENTABLE AREA: 1514 SQM. TOTAL AREA: 205287 SQ.M RENTABLE AREA: 1496 SQ.M. TOTAL AREA: 201697 SQ.M. RENTABLE AREA: 1424 SQ.M Portfolio | Sujata Dhakal 8
TOTAL

BASEMENTPLANS

TOTAL AREA: 205287 SQM CAPACITY BIKE (259), CAR (46)

TOTAL AREA 205287 SQM

CAPACITY: CAR (103)

Portfolio | Sujata Dhakal LOWERBASEMENTPLAN UPPERBASEMENTPLAN
9

Swimming pool

Changing rooms

Civic Park

Movie theatre

Lounge

Rentable spaces

Movie theatre

Lounge

Balcony

Offices

Co-workerking spaces

Breakout zone

NORTHELEVATION

Rentable spaces

Food and drinks

Balcony

Rentable spaces

Balcony

Rentable spaces

Food and drinks

Balcony

Civic park

Rentable spaces

Food and drinks

Rentable spaces

Food and drinks

Foyer

Washroom

EASTELEVATION
10

02

CIVICCENTER

Project : Civic Center

Location : Thimi, Bhaktapur, Nepal

Programs: Gallery, Cafeteria, Pottery making, Mask making, Woodcraft making, Farmer's market, Football practice ground

This project began with a comprehensive examination of the site, along with the study of its surroundings and neighboring settlements. The historic Newari settlements nearby had a rich tradition of local art and craft production, but this heritage was fading with each passing generation.

To revitalize these traditions and foster their growth, I proposed the establishment of a civic center. This center would serve as a hub for sharing knowledge about crafts through interactive workshops, captivating galleries, and enlightening exhibitions, all aimed at promoting and preserving the vibrant local art and craft traditions

My design approach drew inspiration from these neighboring settlements, incorporating the essence of their communal courtyards into the design.

Portfolio | Sujata Dhakal 11

SITE

-nearby local settlements

settlement context

POTENTIAL PROGRAMS FROM NEARBY SETTLEMENT

settlement pattern interconnected courtyards

‘interconnected loop of courtyards’

SITE LACKING

Nagdesh night market causing traffic

Inadequate space for local craft making

Lack of training and worshop spaces

OPPORTUNITIES

Proper vegetable market

Training and workshop center

Gallery and exhibition spaces

Periodical art/craft library

S I T E T A K E A W A Y S A N D C O N C E P T Portfolio | Sujata Dhakal
CONCEPT
SITE CONTEXT
Thimi Sano thimi Magar Gaun Pottery
Marketplace Mask making
Nagdesh
12

DESIGN DEVELOPMENT

Axis extending from central longer side

Axis is drawn from the heart of the site's center

Access, circulation and entry

Unobstructed access and visible entry point to pedestrian

COURTYARD ACTIVITIES

A central courtyard emerges at the intersection of the axis line and the entry point.

Visual connection from central court

Formation of central courtyard ‘dabali’ Diagnol courtyard brancing from dabali

Diagonal courtyards stemming from the central courtyard separated according to functions

Air access in all blocks, South facing courtyards

Visual connection to different programs from center. Blocks placed according to prevailing wind direction and south facing courtyards for different programs

Portfolio | Sujata Dhakal
Pottery- sun drying Outdoor gathering Visual connection- programs Local Performance Local market, exhibition display Informal trainings
13

ZONING

farmers market

Woodcraft Gallery/ exhibition
Portfolio | Sujata Dhakal NORTHELEVATION
Pottery Pati
14
Handicraft shops

GROUNDFLOORPLAN

farmers market

Portfolio | Sujata Dhakal
Pottery block Cafeteria Multipurpose hall Open plaza- exhibition, market
15
Woodcraft production + local shops Admin
SOUTHELEVATION

SHADOWANALYSIS

JUNE21ST-9AM

JUNE21ST-12PM

JUNE21ST-3PM

DEC21ST-9AM

DEC21ST-12PM

DEC21ST-3PM

Portfolio | Sujata Dhakal
SUMMER MORNING WINTER MORNING WINTER DAY WINTER NIGHT SUMMER DAY SUMMER NIGHT 16

PRIMARYSCHOOL

Project : Primary school

Location : Shukranagar, Chitwan, Nepal

Climate: Hot and Humid

Requirement: 9 classrooms, Staffroom, Canteen, Multipurpose

This project aims to design for climatic comfort in a remote village of Chitwan, Nepal.

The main idea was to explore the potential of simple construction with the use of indigenous materials, and traditional building methods so that the community can trust in its own, trust in the strength of earth, their local material and construction technique It's about fostering unity within the community to enhance the quality of their living spaces.

The octagonal shape was inspired by the local's "Chatri" accessory, which aids in stability, reduce heat gain, while allowing more light and air flow.

03
Portfolio | Sujata Dhakal 17
B E S I G N P R O C E S S A N D C O N C E P T Portfolio | Sujata Dhakal Construction idea
Roof
Wall Window Floor
local khapra tiles bamboo + timber rat trap bond masonry colored timber stone, cement, sand
Truss
DESIGN DEVELOPMENT
Local Building’s context veranda composite wall (mud, straw) thatch, tiles
Private playspace a/c to agegroup Air access in all blocks 18 hot air
Radial
axis from entry road Clustered arrangement and veranda- inspiration from site Clear entrance to classrooms

Playgroup and Nursery

LKG, UKG classrooms

Grade 1, 2, 3 classrooms

Portfolio | Sujata Dhakal
NORTHELEVATION
FLOORPLAN Private play- lkg, ukg Chautari- outdoor learning Veranda as passive cooling technique
19
Northern private play- nursery

04

LIVEPROJECT

Project : Japanese Language Center

Location : Butwal, Nepal

Firm: Daksha Multipurpose pvt. ltd.

Assisted in planning, designing, material selection and interior rendering

Portfolio | Sujata Dhakal 20

MISCELLANEOUS

05
MODELMAKING 21

CHIRAYU,

asocialmediainitiative

chirayu.by.design

Portfolio | Sujata Dhakal
22
Portfolio | Sujata Dhakal 23

PHOTOGRAPHY

Portfolio | Sujata Dhakal
24

sujatadhakal32@gmail.com

linkedin.com/in/sujata-dhakal/

SUJATA DHAKAL

Turn static files into dynamic content formats.

Create a flipbook
Issuu converts static files into: digital portfolios, online yearbooks, online catalogs, digital photo albums and more. Sign up and create your flipbook.