Skip to main content

Su Lae Shwe Ye - BIM Portfolio

Page 1

PORTFOLIO SU LAE SHWE YE
BIM

Su Lae Shwe Ye

Architect, Designer & Modeler

Throughout my 9 years of practice in architectural firms, I have implemented projects across South East Asia to Africa, Encompassing High Rise, Residential, Industrial, Commercial and Retail sectors from conception to construction drawings. My expertise lies in space planning, detailed drawings, modeling, family creation, schedules and interdisciplinary coordination using Revit, AutoCAD and other software. I have extensive knowledge of Building Codes and regulations, including Myanmar, Ghana, Singapore Fire Code and NFPA standards.

PERSONAL

Nationality - Myanmar

Date of birth - 23.03.1993

Email - sulaeshweye@gmail.com

Phone - +95 943027579

LinkedIn - www.linkedin.com/in/sulae

EDUCATION

English - Fluent

Chinese -Inter mediatte

Myanmar - Native

EDUCATION

Bachelor of Architecture

West Yangon Technological University - 2014

PROFESSIONAL AFFILIATION

Licensed Architect

Myanmar Architect Council - 2018

CERTIFICATE

ICDL PROFILE CERTIFICATE

2D Computer Aided Design

Designing for Greater Efficiency

The International Finance Corporation

SKILL SET

Autodesk Revit

AutoCAD

SketchUp

Enscape

Adobe Indesign

Adobe Photoshop

Rhino

Lumion

Microsoft Office

SELECTED WORKS TREASURE AYA - MIXED USED URBAN VILLA - RESIDENTIAL DIPLOMATIC HOUSING - RESIDENTIAL HUNTSMAN FACTORY - INDUSTRIAL CENTRE COMMERCIAL PLAYCE - RETAIL 4 10 16 21 25
MIXED USED
TREASURE AYA
5 SU LAE SHWE YE PLANS TREASURE AYA
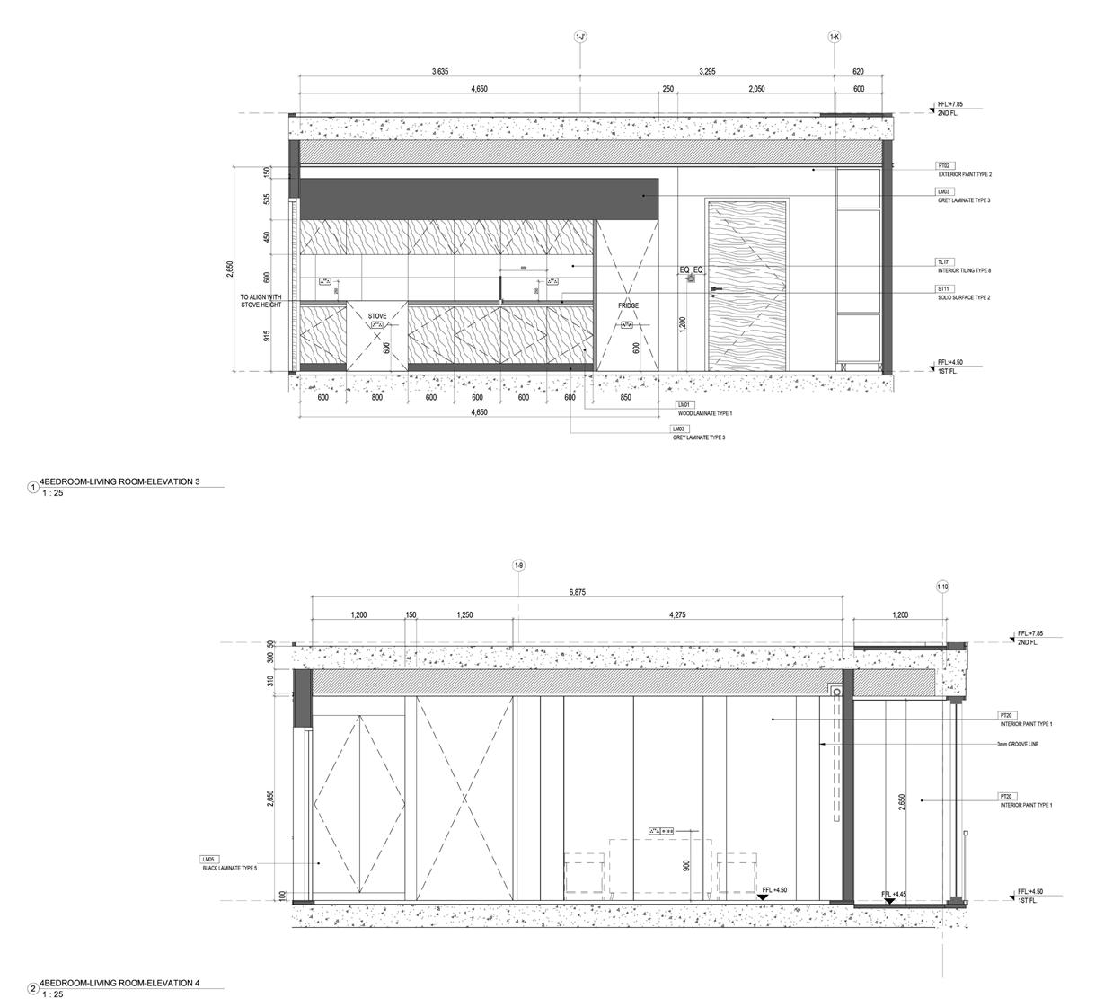
6 SU LAE SHWE YE ELEVATIONS TREASURE AYA
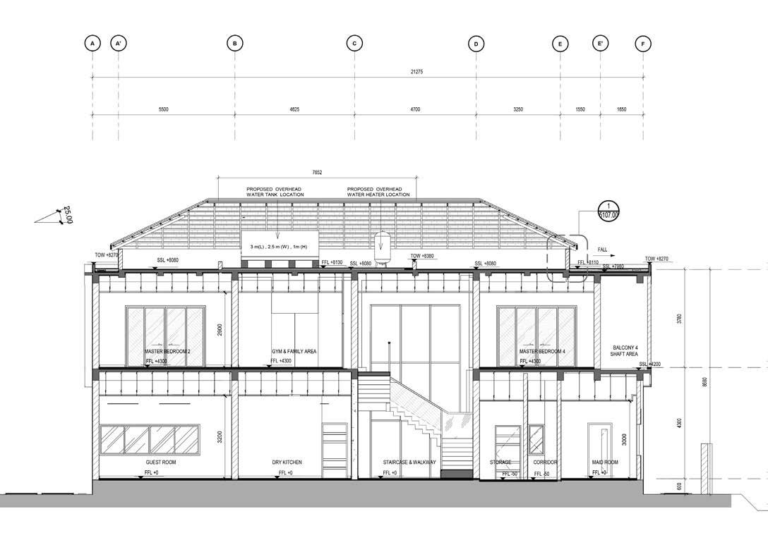
7 SU LAE SHWE YE SECTIONS TREASURE AYA
8 SU LAE SHWE YE DETAILS TREASURE AYA
9 SU LAE SHWE YE SCHEDULES TREASURE AYA
RESIDENTIAL
URBAN VILLA
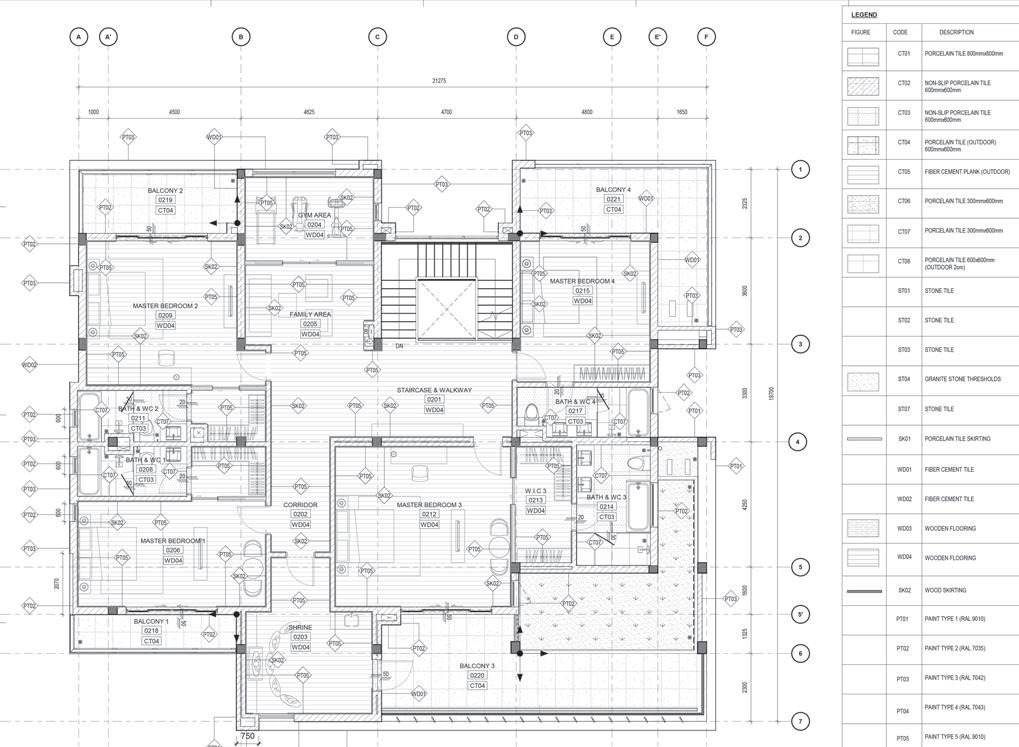
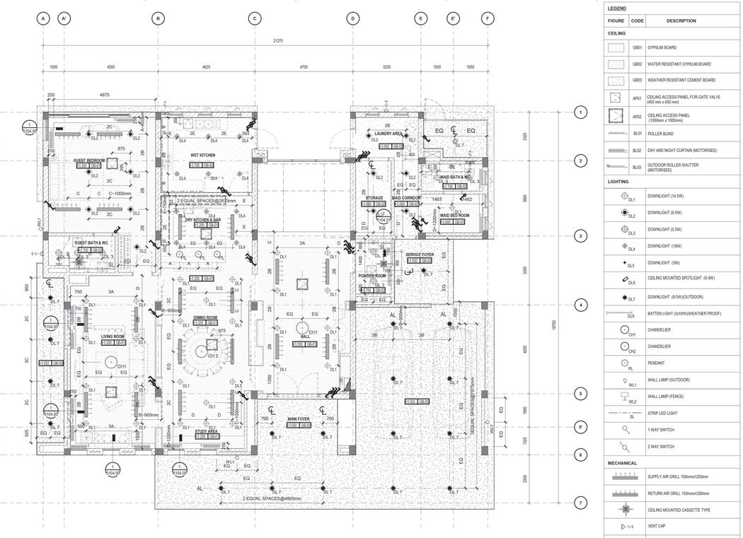
11 SU LAE SHWE YE PLANS URBAN VILLA
12 SU LAE SHWE YE PLANS URBAN VILLA
13 SU LAE SHWE YE ELEVATIONS URBAN VILLA
14 SU LAE SHWE YE SECTIONS URBAN VILLA
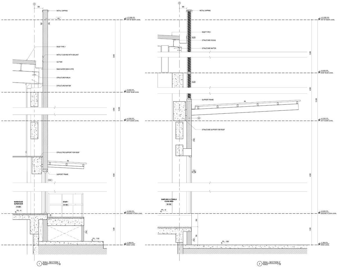
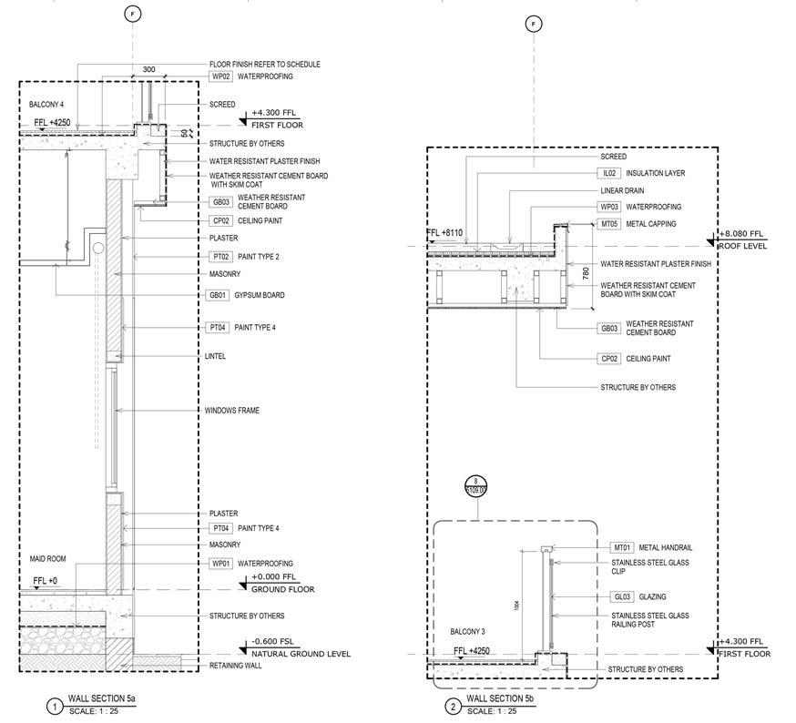
15 SU LAE SHWE YE DETAILS URBAN VILLA
RESIDENTIAL
DIPLOMATIC HOUSIHG
17 SU LAE SHWE YE PLANS DIPLOMATIC HOUSING
18 SU LAE SHWE YE ELEVATIONS DIPLOMATIC HOUSING
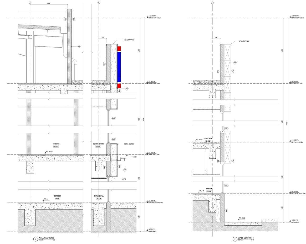
19 SU LAE SHWE YE DETAILS DIPLOMATIC HOUSING
20 SU LAE SHWE YE DETAILS DIPLOMATIC HOUSING
21 SU LAE SHWE YE
DIPLOMATIC HOUSING
COORDINATIONS

HUNTSMAN FACTORY

INDUSTRIAL
23 SU LAE SHWE YE PLANS HUNTSMAN FACTORY
24 SU LAE SHWE YE ELEVATIONS HUNTSMAN FACTORY
25 SU LAE SHWE YE SECTIONS HUNTSMAN FACTORY

CENTRE COMMERCIAL PLAYCE

RETAIL
27 SU LAE SHWE YE PLANS CENTRE COMMERCIAL PLAYCE
28 SU LAE SHWE YE ELEVATIONS CENTRE COMMERCIAL PLAYCE
29 SU LAE SHWE YE PERSPECTIVE CENTRE COMMERCIAL PLAYCE
ALONE WE CAN DO SO LITTLE, TOGETHER WE CAN DO SO MUCH.
LinkedIn

Turn static files into dynamic content formats.

Create a flipbook