Portfolio

Page 1

STUTI SHRESTHA

Portfolio

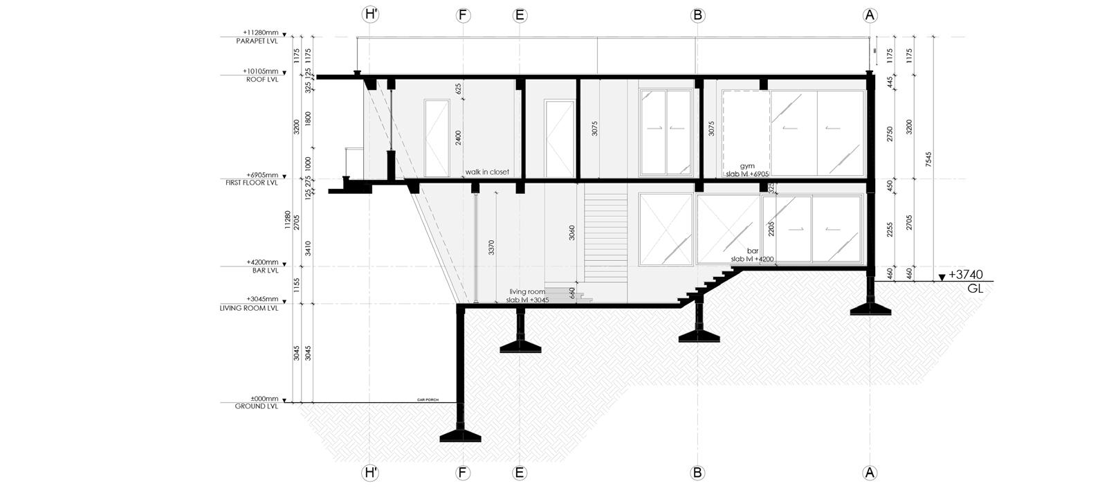
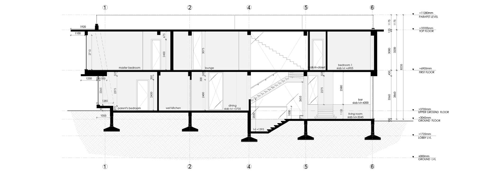
Residence Design at Kathmandu, Nepal

This modern piece of residential design is distinguished by clean lines, geometric shapes, wide floor plans, and thoughtful, intetntional decor that says a lot with a little. Situated on top of a Bhaisepati hills, the large windows overlooks a serene view of the cascading hills.

YEAR: 2018

MEDIA : AutoCAD, Photoshop, SketchUp, Lumion

5
6
7
10
11
12
13
14
15
16

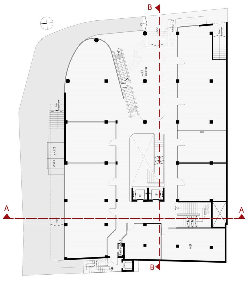
1 Durbar Mall at Kathmandu, Nepal

Situated in the bustling heart of Kathmandu, right across the street from the former Royal Palace, 1 Durbar Mall presents forward-looking culture that includes uniqueness and a graceful way of life and also brings together the best in the world under one roof. The five-storey retail platform is home to the biggest international and local names in fashion, dining, beauty, design and tech.

YEAR: 2019

MEDIA : AutoCAD, Photoshop, 3DS MAX

Ground Floor Plan

20
21
22
23
24
25
26
27
28
29

Module 2727 at Turtle Creek, Dallas, TX

Professor: Narjes Abbasabadi

Teammates: Jocelyn Gonzalez, Gehovany Vazquez, Maylin Gomez & Stuti Shrestha

Module2727 is a mixed-use, 191,802 sq ft. live-work project located in the upscale district of Oak Lawn at 2727 Turtle Creek Blvd in a 5-acre (188, 225 sq. ft.) lot. Falling under the commercial service and multi-family districtt 2 which opened the opportunity to create a mixed-use project that would offer various programs in response to the needs of the area based on site conditions researched and observed.

YEAR: Fall 2021

MEDIA : AutoCAD, Rhino, Revit, Photoshop, Lumion

The goals set for Module2727 are in response to the site conditions and are concentrated on achieving and encouraging equity, resilience and a carbon neutral design. Equity is focused on welcoming diversity, easing accessibility and in offering employment opportunities. Resilience places designing for the future and its possible catastrophic natural forces as a priority. Lastly achieving a carbon neutral design through the incorporation of passive design strategies.

Equity in Module2727 welcomes diversity in household types for its residents by providing three different housing modules to meet the needs of singles, couples, and families. Another strategy of inviting diversity into the area is encouraging community engagement through programs. Programming such as the urban lab that allows the community to take an active role in learning about the urban farms and connects the community closer to the workers who make this cycle possible, and outdoor communal spaces such as splash pools, a restaurant, and a library.

33
Courtyard space West Facade
34
35

These programs also provide employment opportunities to the residents with the benefit of a live + work lifestyle. Lastly, to ease accessibility and mobility, Module2727 includes a bike trail at the site’s perimeter that extends to connect with Turtle Creek park that sits across the site. Resilience in Module2727 prepares for the possibility of future natural disasters due to climate change. Strategies such as passive adaptability, extreme weather resilient water/flood control systems prepare the building to respond to the current environmental conditions of the site as it sits by a flood zone.

36

The incorporation of passive design strategies and a high-performance building skin help achieve a carbon-neutral design. Passive design strategies such as the usage of PV panels, a proper building form in response to the sun’s orientation, and the addition of an atrium that allows natural light and ventilation through the building.

37
40
41
43
45

Immersion Portal at Badwater Basin

Professor: HKS Line (Heath May, Eric Broberg, Timothy Logan)

Teammates: Kian Ghanbarnejad, Pooja Isane & Stuti Shrestha

Badwater Basin is the lowest point in North America with a surreal landscape of vast salt flats, located in Death Valley National Park, California. The idea is to create a mirage sculpture that seamlessly submerges itself to the landscape of the Badwater Basin.

YEAR: Spring 2022

MEDIA : AutoCAD, Rhino, Photoshop, Enscape

48

The idea is to create a mirage sculpture that seamlessly submerges itself to the landscape of the Badwater Basin. The sculpture will function in response to the landscape, the sun position and the weather. The mirrored facade allows the sculpture to camouflage into the surrounding environment, disappearing from one’s vision like a magical illusion.

On one end, the interior of the immersion portal emulates the undulations of the Antelope Canyons in Arizona. On the southern end, is a mirrored space where you can embrace infinite reflections similar to the mirrored salt flats.

49
Views from the site Topography of the site
50
51
52
54
57

Visitor Center at Exchange Place, TN

Professor: Charles McBride

Exchange Place is a living history farm in northern Tennessee that takes you back to the early 1800s. The main concept of this project is to connect the visitors center to the Exchange place with it’s planning and it’s programs. The use of barns doors have been used throughout the project as a means of making the spaces flexible for the various events that are held at the Exchange place.

YEAR: Fall 2022

MEDIA : AutoCAD, Rhino, Photoshop, Enscape

Tectonics in architecture is defined as “the science or art of construction, both in relation to use and artistic design.” It refers not just to the “activity of making the materially requisite construction that answers certain needs, but rather to the activity that raises this construction to an art form.”

60

Simply put, tectonics can be defined as “the poetics of construction.” The tectonic path in this project is defined by movement and it is reflected in this project with the help of barn doors. In order to get to final conclusion of using barn doors to express this tectonic path, Shoji screen doors were first explored and finally barn doors were chosen to fit the region and the historical context.

61

Exchange Place is a living history farm in northern Tennessee that takes you back to the early 1800s. There are several buildings collected across the site, many of them original to the place and others relocated or built new. Each building showcases intricate use of wood and shows the intricate joints used in such vernacular setting at this early period in American history.

It is a historical place that has preserved the architecture, the tradition and the culture of the early 1800s to this day. The visitor center acts as a bridge between the past and the present. The purpose of this project is to connect the Exchange place and help the visitors navigate through Exchange place.

62
63
LOG BARN, EXCHANGE PLACE BLACKSMITH FORGE, EXCHANGE PLACE ROSELAND HOUSE, MUSEUM STORE & CARETAKER’S HOUSE MAIN HOUSE, EXCHANGE PLACE

The project is located on the Farmstead side, near the creek. The main idea of this proposed location was to connect the visitor center to the Exchange place and it’s programs.

The gallery is located near the event garden and the classroom is located near the educational area of the Exchange place. In this way, the visitor center becomes a extension of the existing programs. Also, by locating the visitor center near the creek and the trail, it invites people that are passing by the trail.

64
65
66
Circulation D-04
Site
67 Site Opportunities D-06
68
Purposed Location Plan
D-07

The project focuses on movement as a tectonic path and hence barn doors have been used to express this idea. The main idea is to use barn doors as a means to open up the spaces and connect them with the events happening at Exchange place.

The barn doors can be used to transform the space, making the spaces public or private depending on the purpose of the event.

Metal fasteners have been used throughout the project to relate back to the fastener assignment.

70
Framing study model Study model of Shoji screen doors
71 Circulation Diagram
Horizontal Circulation Vertical Circulation
72 Campus Plan
Site Plan

Ground Floor Plan

74 CLASSROOM AREA:600SQ.FT EVENTPATIO AREA:1500SQ.FT AREA:CUSTODIAL50SQ.FT up OFFICE AREA:140SQ.FT ENTRY/WELCOMEAREA AREA:300SQ.FT lvl±0 lvl-2'-3" lvl±0 lvl±0 lvl±0 lvl±0 lvl±0 GALLERYSPACE AREA:900SQ.FT C D H 1 2 3 lvl±0 A A B C D E F K 6 K J G 5 4 H G 1 3 4 5 7 A B S-01 C S-03 B S-02 D S-04 WASHROOM AREA:40SQ.FT WASHROOM AREA:40SQ.FT

FIRST FLOOR PLAN

SCALE: 1/16”=1’-0”

ROOF PLAN

SCALE: 1/16”=1’-0”

CRAWL SPACE PLAN

SCALE: 1/32”=1’-0”

75 CRAWLSPACE
HVAC
lvl-4'-0"
AREA:50SQ.FT STORAGEROOM AREA:140SQ.FT
VIEWINGTERRACE AREA:400SQ.FT lvl+9'-8"
DN lvl+9'-8" A B C D E J K 7 6 K J G H G 6 7 A B E C D F H MEP
SECURITY AREA:40SQ.FT
COVEREDTERRACE AREA:850SQ.FT lvl+9'-8"
AREA:40SQ.FT
SECTION AT A
AT B
SECTION
AT C
SECTION
AT D
SECTION
84 Detailed Section
85
86
87 I2 I1 lvl +22'-7" lvl ±0
Detailed Elevation
88 lvl ±0 lvl ±0 GALLERY SPACE AREA: 900 SQ.FT H 1 2 lvl ±0 A I F S-01 Detailed Plan
89 Detailed Axon
90
91
92
93
94 Thank you for your time Stuti Shrestha Tel : +1 (871)-471-4284 Email : stuti.3495@gmail.com sxs7285@mavs.uta.edu

Turn static files into dynamic content formats.

Create a flipbook
Issuu converts static files into: digital portfolios, online yearbooks, online catalogs, digital photo albums and more. Sign up and create your flipbook.