Architecture Portfolio (Architecture case)

Page 1

PORTFOLIO

Stanislav Skorobogatov

Architect

Contacts

Minsk, Belarus +375291436205 stskpraca@gmail.com

Links

https://www.behance.net/ d38780cb

https://www.linkedin.com/in/ stskprc/

Skills

AutoCAD, Revit, Archicad, SketchUp, QGIS, MapInfo, Photoshop, Illustrator, InDesign, AI.

Languages

Belarusian - native Russian - native English - intermediate Čeština - intermediate

Hobby Digital art, music creation.

Architect with 2 years of experience in designing public spaces and preparing project documentation. In my work, I integrate new trends in the field into my own design solutions. I have experience in solving customer problems, coordinating my own ideas regarding the requirements of related specialists and regulatory documentation. Aimed at creating the architecture of tomorrow for today.

Professional experience

5, 2021 - present moment. Architect, "Institute for Regional and Urban Planning", Belarus

The organization specializes in the development of urban planning documentation, scientific and reference documentation in the field of territorial planning

• Developed several urban planning projects with a total profit of up to 150,000 US dollars;

• Worked with various types of urban planning documentation, which in general covers up to 1200 hectares;

• Coordinated the work of a group of related specialists;

• Represented projects at public meetings, city councils and supervised the passage of expertise;

• Took part in competitions of concepts for the development of public spaces.

Education

07.2016 - 06.2022

Bachelor, Belarusian National Technical University, Minsk, Belarus Diploma topic “Environmental renovation of the Narochansky National Park”

Participation in contests

• Nanjing Dajiaochang Airport Renewal Plan Runway Park 2018

•"Multi-comfort house "Saint-Gobain" 2019

• Konkursu Koncepcyjnego KOŁO „Projekt Łazienki 2021”

• Nature Inspired Youth Center 2022

• Competition for the creation of public spaces in Mogilev 2023

Profile
... 1

List of projects

Multifunctional center on the street City wall 2021. Educational.

Service object at Huciska glade KOŁO 2021. Competition, in a team.

Youth center in the suburbs of Vancouver "GladeHood" 2022. Competition, as part of a team.

Detailed plan of the estate building area in Starobin 2022. Working draft.

p. 9 p. 3 p. 14 p. 19 ...
... 2
Multifunctional center on the street City wall 3

Project area is located inside the historical block. The environment was formed in the 19th - 20th century.

Today’s meaning of the historical center has partially pushed out permanent residents from here, as this is a very expensive part of the city to live in.

The systematization of the environment and its features was carried out for the subsequent development of proposals.

The image was created to continue the local architecture and establish a backdrop for the historical buildings.

The result is synergy through the combination of similar elements that form the stylistic development of the area.

At the level of the first floor, the rhythm of the former historical building is repeated in the plan.

Second floor "quarter". The zones are gathered around horizontal communications and separated by vertical ones.

To maintain the necessary humidity, temperature and light climate, special voids have been created.

The fourth floor is a residential area. Living quarters can change their parameters.

A building that combines housing and economy functions was created on historical basis.

4
Scheme of the secondary facade.
5
Scheme of first floor. Scheme of second floor.
6
Building section diagram. Scheme of the main facade in context. Scheme of third floor.
7
Scheme of fourth floor.
8
Service object at Huciska glade 9

Flexibility and renewability Sustainable development and energy efficiency

Greenery MaterialsTrace Water Future Now

Factors

In order to reduce the load on the ecosystem, scenarios for reducing the impact on nature have been developed.

E W W W E W E W W E W
010
The site is located along the tourist route on the Husicki field in one of the largest reserves in Poland. The form is dictated by the local architecture and the processes of interaction between it and nature. The new volume is shaped with accents to signify the new character of the building. A territory with its own history, traditions and forms. The goal is to adapt to the context. that were taken into account in the formation of the service object in the reserve.
Nature
neutrality Natural consumption
10
2100 2900 2900 2100 0 5000 4000 3000
Scheme of the secondary facade.
11
Scheme of the plan.
5750 1700 750 13601360 10001000 750750
Scheme of the main facade.
12
Building section diagram.
13
14
Youth center in the suburbs of Vancouver "GladeHood"

The site opposite the school should become an additional leisure place for children and teenagers in the area.

On the territory of 2500 m2 there is a building that forms a connection between the interior space and its environment.

The idea was inspired by the local interaction between locals and nature.

Establishment of functional volumes Orientation to the cardinal points

Integration into the total volume

Community "lives" on free glades between forests.

Creating transition parts Forming entry points Opening surounding through a form

So, was created an active recreation area integrated into the environment.

Its transition between inside and outside creates new opportunities for interaction

Requirement in nature neutral building also inspired idea of "transparent", living and breathing volume.

The project area is located on a picturesque slope of a forest hill in the suburbs of Vancouver.
15
14442 12000 3218 14442
Scheme of the secondary facade.
16
Scheme of the ground flore. Scheme of the main facade.
17
Building section diagram.
18
Detailed plan of the estate building area in Starobin 19

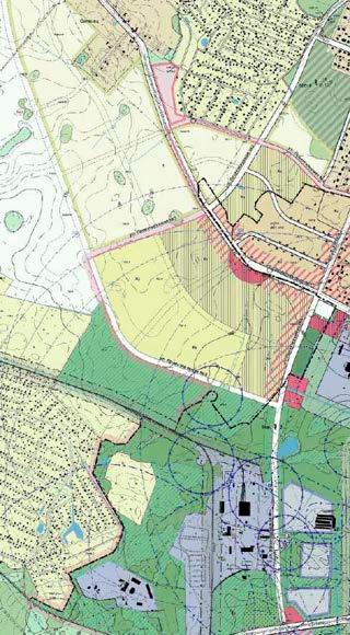
Today, the territory is represented by water bodies in the form of canals and water intake ponds, formed around them by forests and an urbanized landscape, represented by the surrounding buildings, streets and agricultural land.

The aim of the project is the formation of manor buildings on the territory of an agricultural field.

Once this natural landscape was transformed into agriculture, now this area should become a home for people and continue

the development of the city. The area of the territory is 69 hectares.

as they are. Using the provisions of the master plan.

,,
гп.Старобин Строителей проезд 153.17 заросш. 153.31 152.91 152.34 152.24152.20 Р-1.1 ул.Строителей ул.Проектируемая№1 ул. Проектируемая ул.Проектируемая№2 ул.Проектируемая№4 ул.Проектируемая№5 ул.Проектируемая№5 ул.Проектируемая№3 ул. Проектируемая №6 №6 ул. Проектируемая ул. Проектируемая №7 ул. Проектируемая №8 ул. Проектируемая №8 граница существующая границы линии регулирования застройки; УСЛОВНЫЕ ОБОЗНАЧЕНИЯ Границы 40.21-00.ГМ-3 ДП республиканское БЕЛНИИПГРАДОСТРОИТЕЛЬСТВА Инв.39271 индивидуальной жилой г.п. Старобин Солигорского Стадия Архитектурно-планировочное Детальный план района индивидуальной жилой застройки в г.п. Старобин Солигорского района Жилые: Жилая усадебная низкоплотная застройка; усадебная низкоплотная репрезентативная застройка; Рекреационные: Р-1.1 Рекреационная общего пользования высокими рекреационными Р-1.2 Рекреационная пользования средними рекреационными Инженерной инфраструктуры: И-1.1 Инженерных коридоров подземных коммуникаций; Общественная; О-2.3 Школьных дошкольных учреждений; О-2.5 Торгово-обслуживающих предприятий; Территории под водными поверхностями; Экспликация: Торгово-обслуживающий объект расширенным спектром Учебно-педагогический комплекс Детальный план М 1:2000 Функциональные зоны Зона санитарной охраны артезианских скважин, пояс санитарной охраны артезианских Природные территории подлежащие специальной охране Охранные зоны Газопровода высокого Планировочные ограничения: Общественная специализированная застройка Улицы городского значения Усадебная застройка Рекреация общего пользования Городская черта г.п. Старобина Территория детального плана SOCIETY NATURE HOUSING Усадебная застройка Лес Городская черта г.п. Старобина Кустарно-древесные насаждения (Вымочки⁴⁾) Сельскохозяйственные земли Территория детального плана Общественная специализированная застройка Усадебная застройка Лес Городская черта г.п. Старобина Кустарно-древесные насаждения (Вымочки⁴⁾) Сельскохозяйственные земли Территория детального плана Общественная специализированная застройка Резерв общественной специализированной застройки Усадебная застройка Лес Городская черта г.п. Старобина Кустарно-древесные насаждения (Вымочки⁴⁾) Сельскохозяйственные земли Территория детального плана Fixing things
Formation based on
Creating
a stored system.
a starting point for city development.
20
NATURE WATER SYSTEMS URBANIZED LANDSCAPE

Detail plan boundary

УСЛОВНЫЕ ОБОЗНАЧЕНИЯ

Границы территорий

Red lines

Building regulation lines

Boundaries of plots

граница детального плана ;

Functional areas:

красные линии;

линии регулирования застройки;

Residential

границы участков

Функциональные зоны

Жилая:

Residential buildings of low density

Residential buildings are representative

Ж-2.1 Жилая усадебная низкоплотная застройка;

Recreational:

Ж-2.4 Жилая усадебная низкоплотная репрезентативная

застройка;

Рекреационная:

Common with high loads

Р-1.1 Рекреационная общего пользования с высокими

рекреационными нагрузками;

Common with low loads

Р-1.2 Рекреационная общего пользования со средними рекреационными нагрузками;

Engineering:

Инженерной инфраструктуры:

Прочие

Engineering infrastructure

И-1.1 Инженерных коридоров подземных коммуникаций;

Public:

Общественная;

О-2.3 Школьных и дошкольных учреждений;

School and preschool institutions

О-2.5 Торгово-обслуживающих предприятий;

Trade enterprises

Others:

Автобусные остановки;

Живые изгороди

Bus stops

Территории под водными поверхностями;

"Green" fences

Деревья

Площадка сбора ТБО;

Пешеходно-транспортная часть ( проезжая часть, тротуар, тротуар с

возможностью подъезда транспорта, велодорожка);

Water surfaces Trees

Внутриквартальный проезд( проезжая часть, тротуар, тротуар с

возможностью подъезда транспорта);

Land for solid waste

Проезд, разметка машиномест на автостоянках;

Велодорожка, пешеходная дорожка;

Main streets

Трансформатарная подстанция 10/0,4 кВ;

Intra-quarter trips

Газорегуляторный пункт;

Parking lots

Коллективные огороды в составе Р-1.1;

Территория за границами детального плана:

Cycling belts, pedestrian belts

Существующая жилая усадебная застройка; Сельскохозяйственная (пашни).

Transformer

Экспликация:

Engineering gas regulating structures

1.Торгово-обслуживающий объект с расширенным спектром услуг; услуг; 2. Учебно-педагогический комплекс на 300 мест.

Collective gardens

Areas outside the detailed plan:

Existing building

Agricultural lands

Г А Г Г Г Г дв. дв. дв. дв. дв. пуст. дв. дв. дв. дв. пуст. КЖ КЖ КЖ КН ул.Строителей ул.Строителей А ул.Проектируемая№1 ул.Проектируемая№1 ул. Проектируемая №2 ул.Проектируемая№2 ул.Проектируемая№4 ул.Проектируемая№4 ул.Проектируемая№5 ул.Проектируемая№5 ул.Проектируемая№3 ул.Проектируемая№6 ул. Проектируемая №6 ул.Проектируемая№7 ул.Проектируемая№7 ул.Проектируемая№8 ул.Проектируемая№8 А
1. 2.
А
в г.п. Старобин Солигорского района. Эскиз застройки. М 1:2000.
21

Diversity

Community-based activities

Local community development

Often this type of neighborhood on the border with the suburbs is in a depressed state, as it cannot enjoy the advantages of the city and the suburbs. It offers a different plan of life in it.

Proposed to form on the basis of the existing nature of the points of "entry/exit" of people.

The preserved natural elements are transformed into public spaces.

Green fencing Preservation of local natural regimes

Control of water infiltration

Native plant varieties

Heat-affected areas

Carbon dioxide absorption

Such a space helps to tie to this area and neighboring areas, in which a significant shortage of public space has been identified. When connected to a design street system, these "green" planning elements can be combined into one structure.

t o CO2 BY
Walkability
22
23

Turn static files into dynamic content formats.

Create a flipbook
Issuu converts static files into: digital portfolios, online yearbooks, online catalogs, digital photo albums and more. Sign up and create your flipbook.
Architecture Portfolio (Architecture case) by Stanislau Skarabahatau - Issuu