PORTA FOLIO


![]()


Sobre mí
Me llamo Stevan Ruiz Rincon, procedente de Cali y actual estudiante de Arquitectura en la Universidad Nacional de Colombia, sede Medellín.
A lo largo de mi ciclo en la vida universitaria y de estudiante, sentí un gran interés en la representación, modelado y el diseño de proyectos públicos.
Tengo habilidades en software de modelados 3D así como otros medios digitales para la representación arquitectónica. Para mis estudios estoy interesado en el análisis de datos, presupuestación y aplicación bioclimática en los proyectos.
Tengo como pasatiempo explorar las ciudades y sus alrededores, me gusta conocer las profundidades e historia de cada zona a la que visito, observar su forma de vida, su arquitectura, sus costumbres, sus dinámicas. También disfruto visitar museos y lugares patrimoniales, me hacen sentir en otra época o como otra persona, además salir con mis compañeros y hablar de nuestras vidas o cosas absurdas.
Soy una persona responsable y comprometida, creativo, proactivo y habituado en el trabajo en equipo.
Idiomas
Español Nativo
Ingles B2
Bachiller Académico con profundización en inglés
Pregrado de Arquitectura (Promedio 4.2)
Curso: Diseño y modelado arquitectónico 3D con Revit Intensidad horaria: 5h 30m
Curso: Modelado de edificios paramétricos con Revit Intensidad horaria: 6h 33m
Curso: BIM User - BIM PRO
Intensidad horaria: 56h - 48h
AutoCAD
Sketchup
Revit BIM
Photoshop
Illustrator
InDesign
Stevan Ruiz Rincon
Celular: +57 3107475086
Correo: sterr8803@gmail.com struiz@unal.edu.co
Medellín, Antioquia / Candelaria, Valle del Cauca
Colegio Ana Julia Holguín de Hurtado 2021
Universidad Nacional de Colombia 2021- Actualidad
Domestika 2023
Domestika 2024
GridStudio 2023-2024
Lumion
V-ray
Twinmotion
Excel






Edificio Híbrido
RVT

La casa entre medianeras aprovecha su cercanía con otras construcciones similares para integrarse visualmente sin comprometer su diseño. Aunque su superficie construida es excesiva para el programa propuesto, se utiliza para experimentar con soluciones espaciales que conecten las diferentes plantas. Se destina un gran área de jardín que se adapta para garantizar la habitabilidad y la privacidad familiar. El porche en el extremo opuesto del terreno también es crucial, no solo por sus funciones, sino por su impacto visual en el entorno cercano. Se busca dar profundidad al límite trasero para mejorar la concepción visual del espacio exterior.


















































La casa entre medianeras es un proyecto que se propone en el primer semestre de la facultad, cuya maqueta y planos de dicha entrega están a los costados de la página. Por el aprecio que le tengo decidí modelarlo respetando la geometría y diseño que planteé en este taller.




“CASA QUEBRADA”

C/ Sebastián Ocampo Restrepo

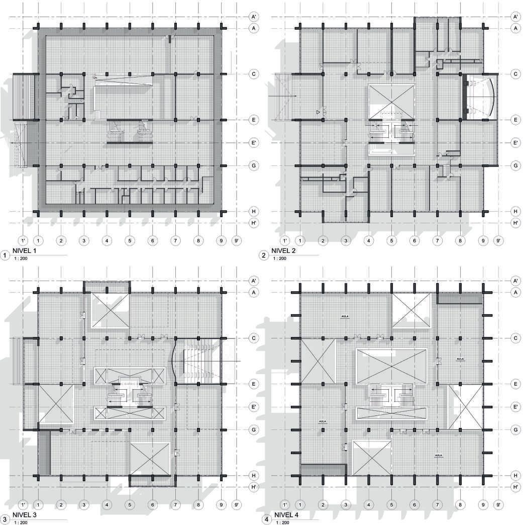
El parque biblioteca “La Otra Puerta del Oriente” es un proyecto que busca destacarse como un icono en el municipio de Guarne. El edificio cuenta con tres volúmenes independientes que son integrados por una plazoleta central, lo cual fomenta el encuentro y permite gran accesibilidad. El programa incluye una amplia biblioteca, aulas, salas de exposiciones, administración, y un auditorio. Se propone, además, un parque lineal adyacente al edificio el cual ofrece espacios para el recorrido y el contacto con la naturaleza. El objetivo del proyecto es enriquecer la vida cultural y social de la comunidad, impulsar un nuevo hito de apropiación e identidad local y convertirse en un referente departamental.



SECCIONES TRANSVERSALES A-A' ESCALA 1:200
SECCIÓN TRANSVERSAL D-D' ESCALA 1:200

SECCIÓN TRANSVERSAL B-B' ESCALA 1:200
SECCIÓN TRANSVERSAL D-D' ESCALA 1:200 FACHADA ESCALA 1:200


Sección longitudinal A-A’

Sección longitudinal B-B’

Sección longitudinal D-D’
4. Isométrico emplazamiento
Retrceder y relacionar
Permeabilidad
EQUIPAMENTOS
COLISEO MENOR
PARQUE EDUCATIVO ÉLIDA DEL CONOCIMIENTO
COLEGIO “LA INMACULADA CONCEPCIÓN”
5 Distribución de actividades y extensión
COLEGIO “LA INMACULADA CONCEPCIÓN”
SENA GUARNE
CATEDRAL “NUESTRA SEÑORA DE LA CANDELARIA”
PARQUE PRINCIPAL

“LA OTRA PUERTA DE GUARNE”



C/ Sebastián Ocampo Restrepo

Un proyecto de ciudad vertical organizado por volúmenes horizontales, donde cada una de las plantas tiene relación con las otras por medio de vacíos. Es un conjunto hibrido de programas y forma, cuenta con aulas de clase, talleres una biblioteca, una mediateca, galería, museo, vivienda, coworking, centro cívico y auditorios de gran capacidad. El principio para la proyectación de la manzana fue primero entender lo propio del lugar con el fin de entender sus dinámicas, y así conectar los nodos de los pasajes. También comprender y respetar su contexto y paisaje urbano.











Permeabilidad y emplazamiento






Esquema de intervención








“TORRE ENTRE LOS PASAJES” EDIFICIO HÍBRIDO











Recopilatorio de trabajos hechos en la universidad o cursos personales en uso de softwares de modelado y represen Perspectiva









































































































































































































































































Modelo propio en Revit de estructura y arquitectura hecho apartir del curso de Modelamiento de estructruas y Bim user, de Grid Studio. Su fin era explorar los conocimientos conseguidos en el Software de Revit por medio de los cursos y aplicarlo en un proyecto conocido. Para hacer el modelo, usé de referencia la Tésis de Fernando Téllez “Lirismo material. Expresividad técnica en la arquitectura de Laureano Forero”.
























